Скачать Типовой проект 902-2-426.86 Альбом 1. Технологическая часть. Архитектурно-строительные решения. Конструкции железобетонные. Отопление и вентиляция. Электрооборудование и автоматика. Показатели результатов применения научно-технических достижений в строительных решениях. Спецификации оборудованияДата актуализации: 01.01.2021
|
| Обозначение: | Типовой проект 902-2-426.86 |
| Обозначение англ: | 902-2-426.86 |
| Статус: | не определен законодательством |
| Название рус.: | Альбом 1. Технологическая часть. Архитектурно-строительные решения. Конструкции железобетонные. Отопление и вентиляция. Электрооборудование и автоматика. Показатели результатов применения научно-технических достижений в строительных решениях. Спецификации оборудования |
| Дата добавления в базу: | 01.09.2013 |
| Дата актуализации: | 01.01.2021 |
| Дата введения: | 01.03.1987 |
| Дата окончания срока действия: | 30.06.2003 |
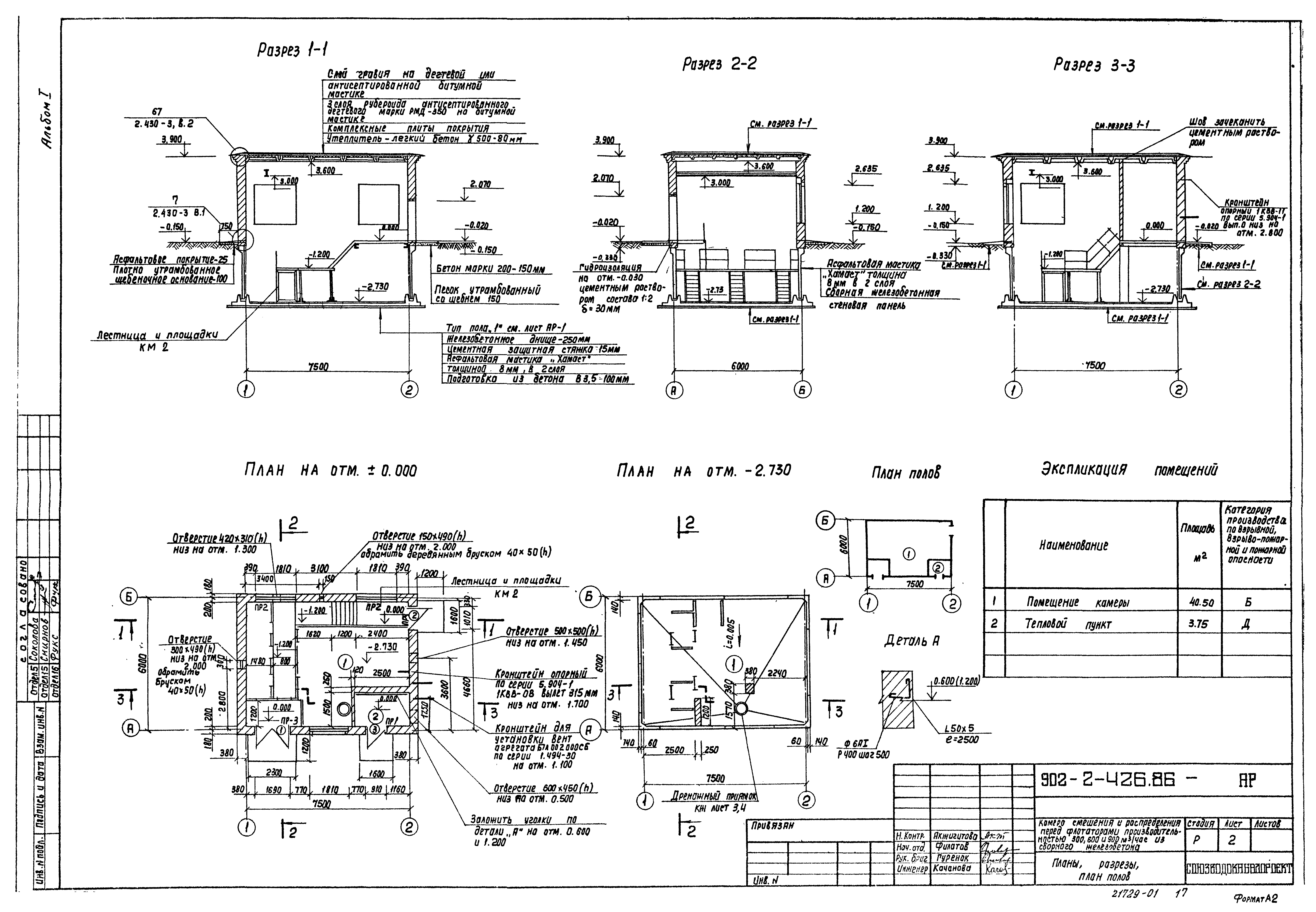
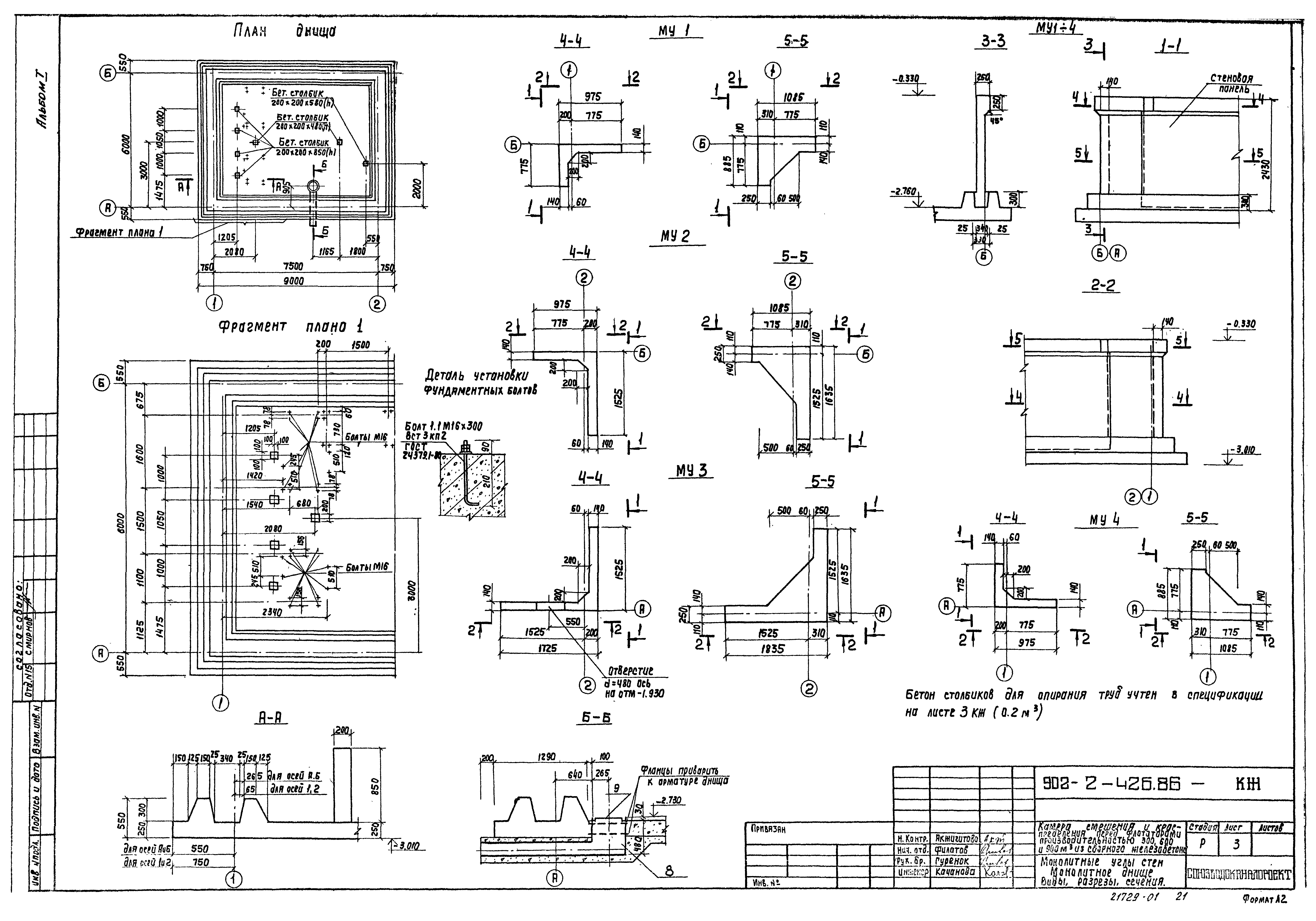
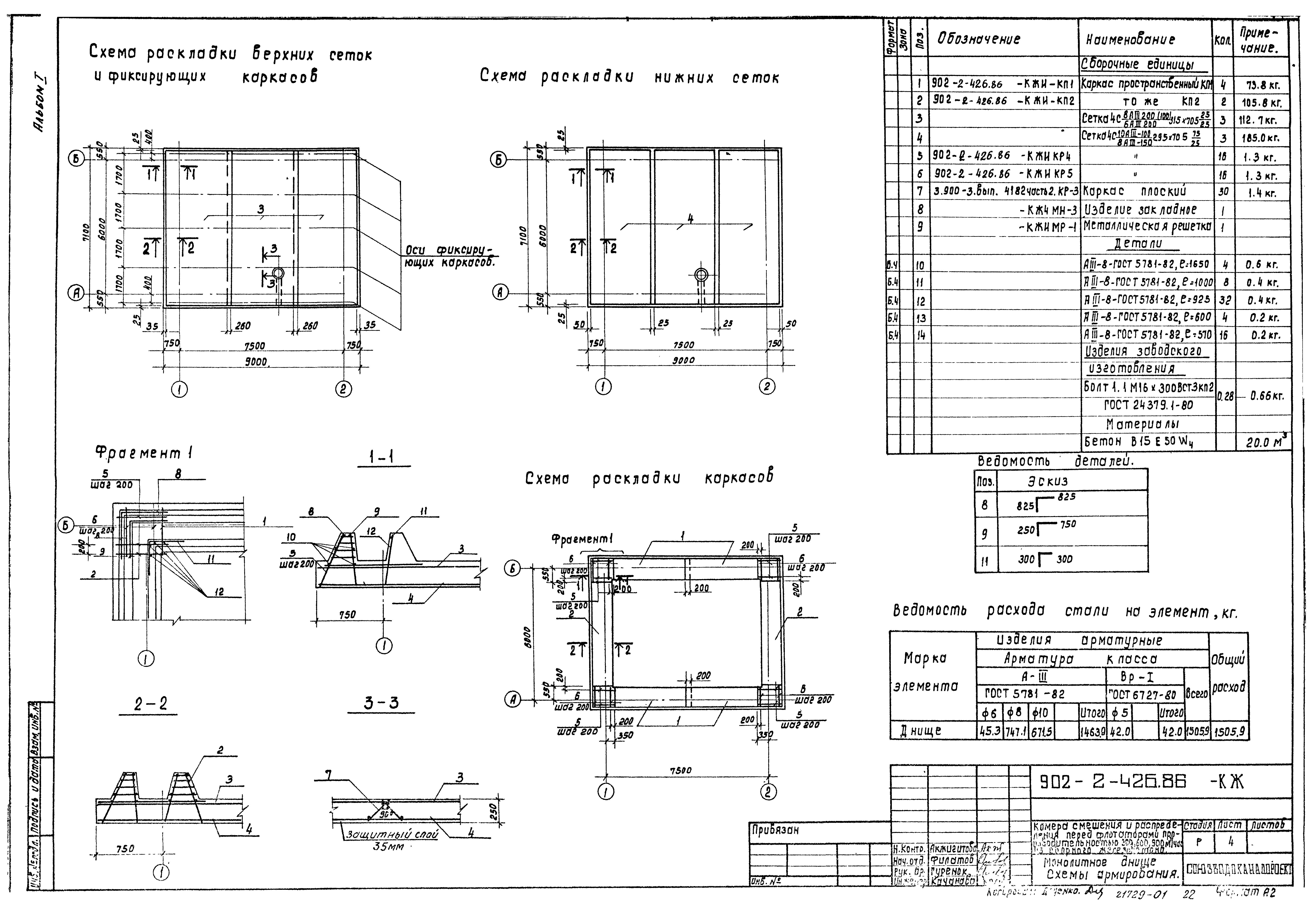
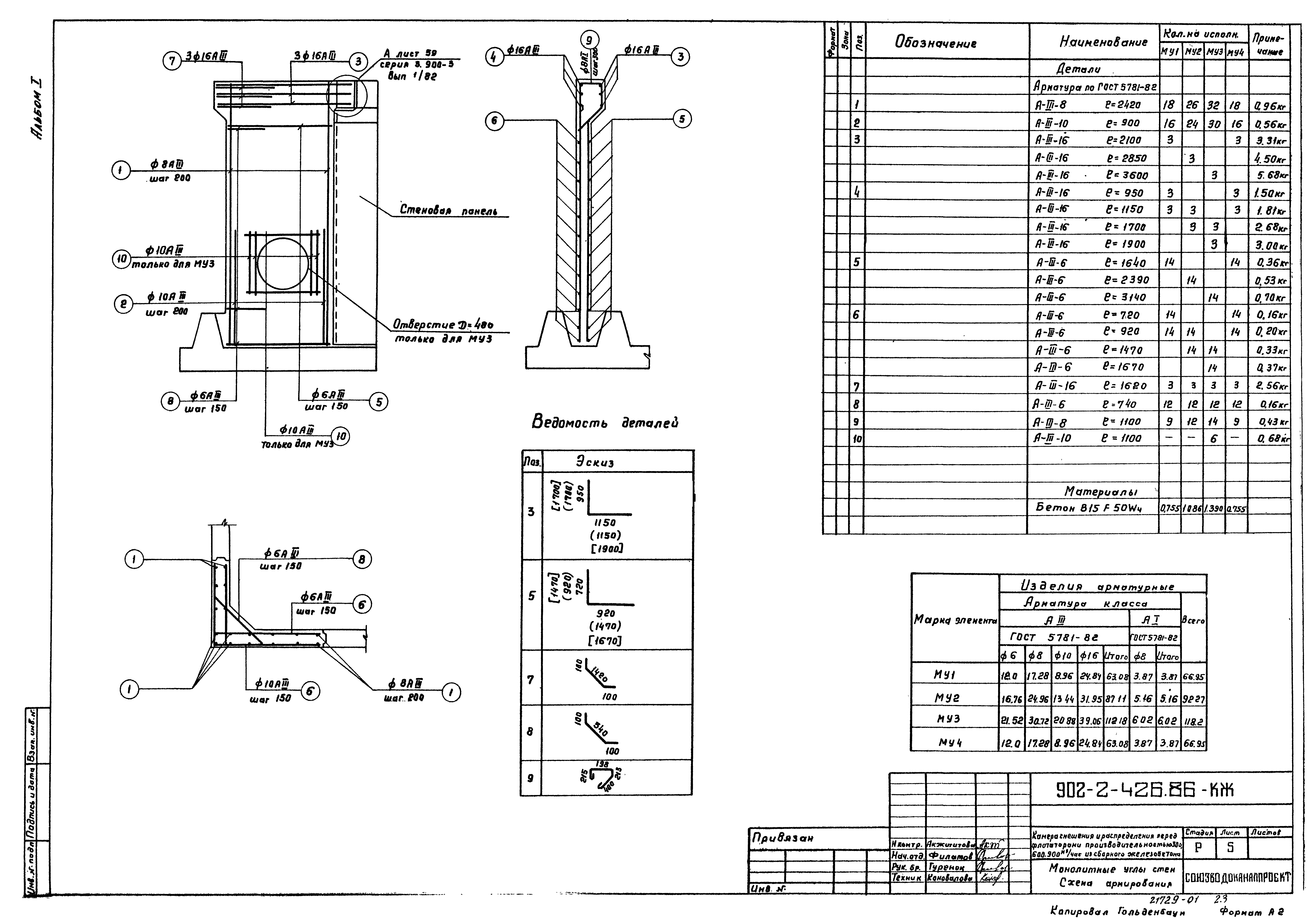
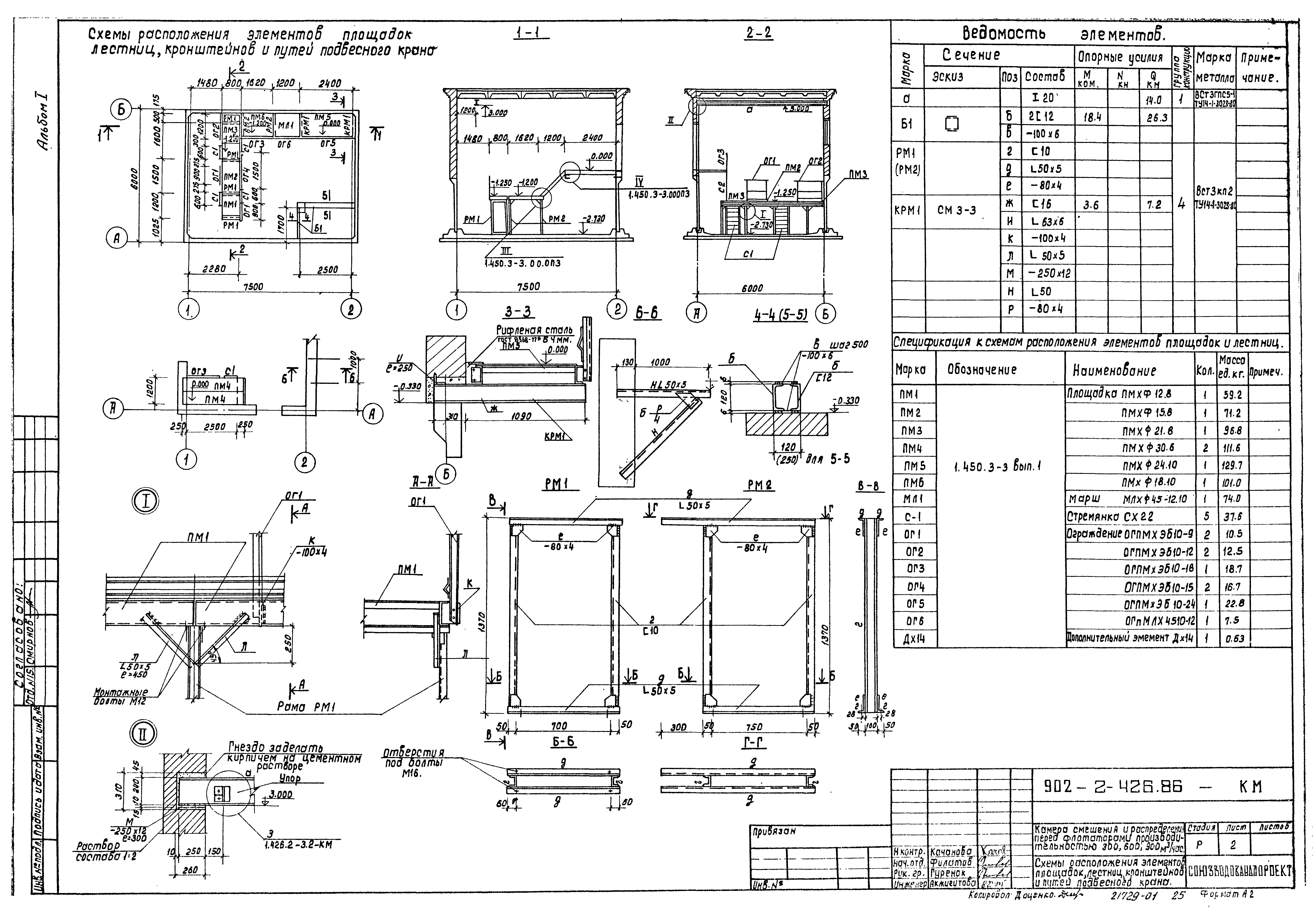
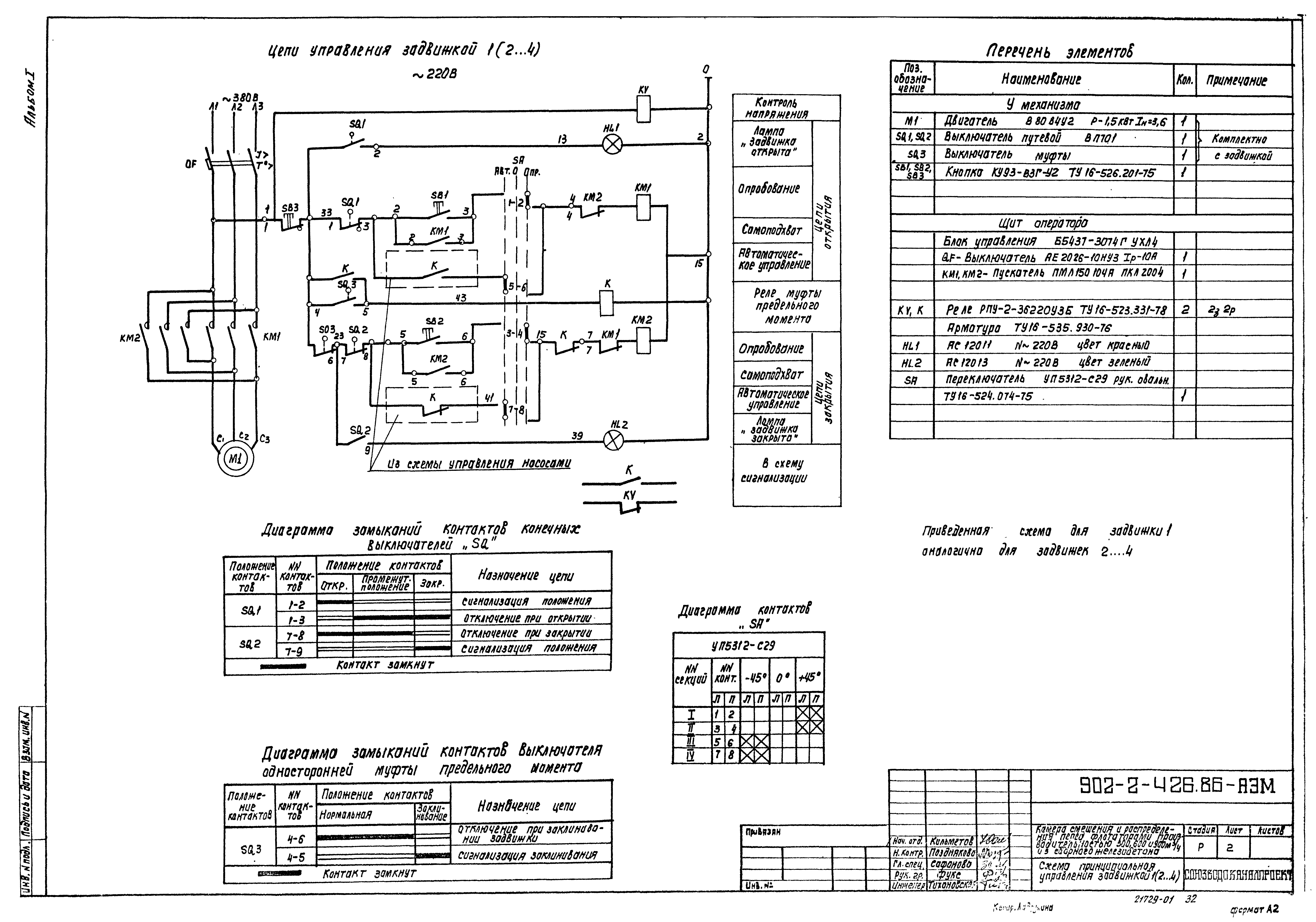
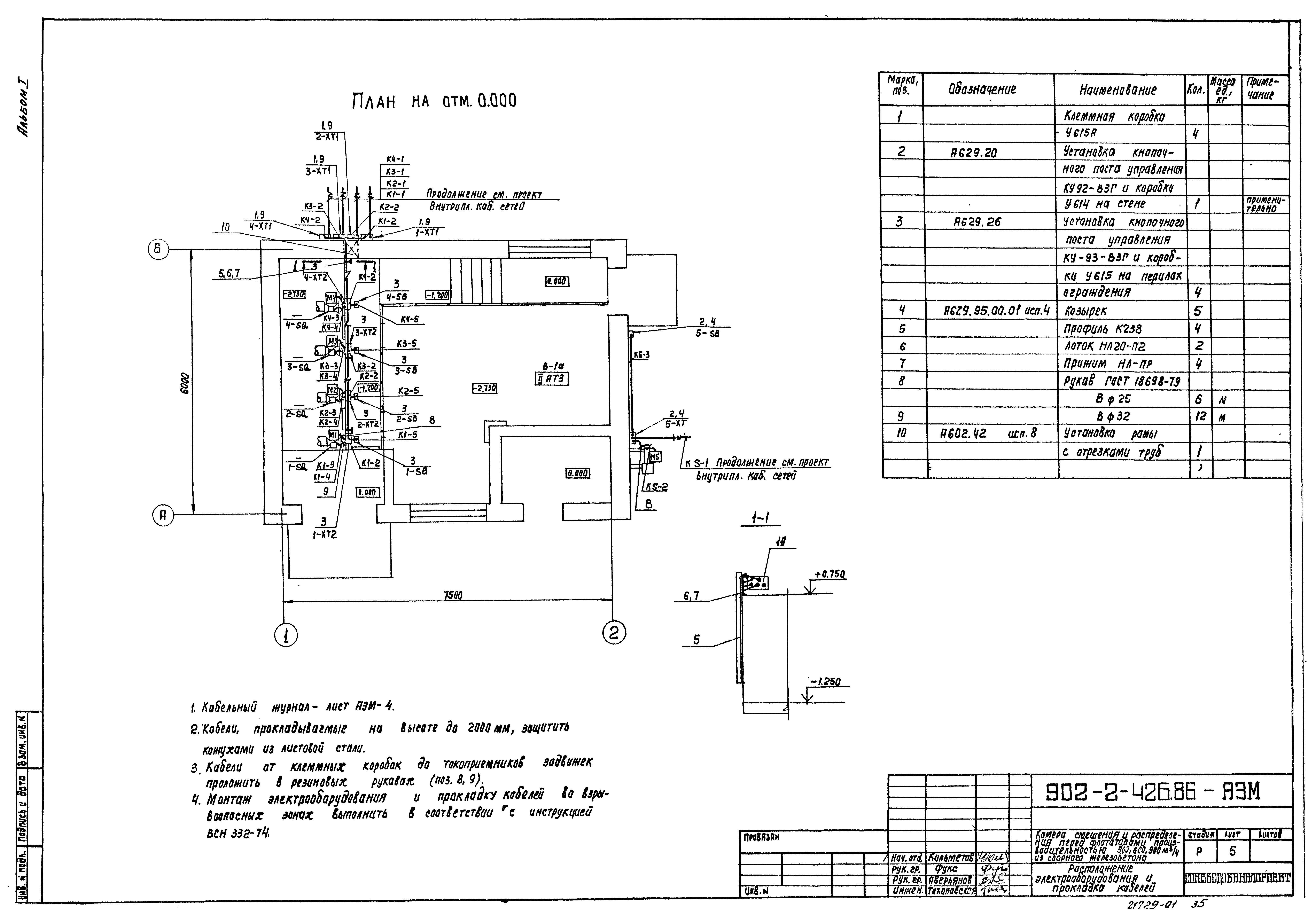
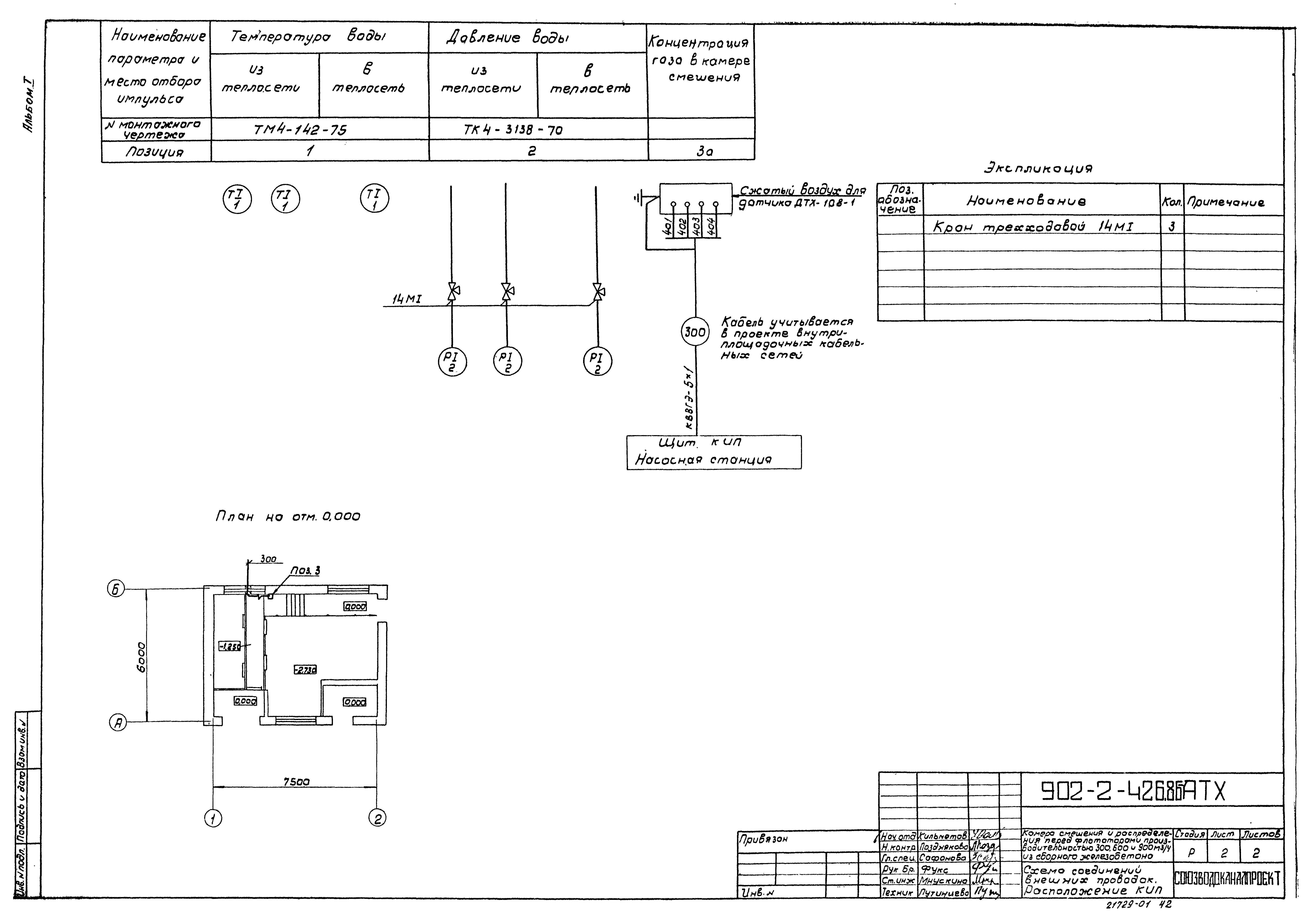
| Оглавление: | Содержание альбома Технологическая часть НК-1 Общие данные НК-2 Пояснительная записка НК-10 Монтажный чертеж. План, разрезы НКН-1 Смеситель НК-СО Спецификация оборудования Архитектурно - строительная часть АР-1 Общие данные АР-2 Планы и разрезы. План полов АР-3 Фасады. План кровли КЖ-1 Общие данные КЖ-2 Схемы расположения элементов. Покрытия, перекрытия стен и подземной части КЖ-3 Монолитные углы стен. Монолитное днище. Виды, разрезы, сечения КЖ-4 Монолитное днище. Схемы армирования КЖ-5 Монолитные углы стен. Схема армирования КМ-1 Общие данные КМ-2 Схемы расположения элементов площадок, лестниц, кронштейнов и путей подвесного крана КЖИ-4 Строительные изделия Электрооборудование, автоматика АЭМ-1 Общие данные АЭМ-2 Схема принципиальная управления задвижкой 1 (2…4) АЭМ-3 Схема подключения электрооборудования АЭМ-4 Кабельный журнал АЭМ-5 Расположение электрооборудования и прокладка кабелей АЭМ-6 Молниезащита АЭМ-7 Электроосвещение АЭМ.СО Спецификация оборудования Технологический контроль АТХ-1 Общие данные. Схема функциональная АТХ-2 Схема соединений внешних проводок. Расположение КИП АТХ.СО Спецификация оборудования Отопление и вентиляция ОВ-1 Общие данные ОВ-2 Отопление и вентиляция. План, разрез. Схемы. Узел ввода ОВН1 Эскизные чертежи общего вида ОВ-СО Спецификации оборудования ПРИ Показатели результатов применения научно-технических достижений в строительных решениях проекта |
| Разработан: | Союзводоканалпроект |
| Утверждён: | 23.07.1986 Госстрой СССР (Государственный комитет Совета Министров СССР по делам строительства) (USSR Gosstroy А4-46) |




















































