Скачать Утяжелители болотные охватывающие модернизированные для магистральных трубопроводов диаметром 1420, 1220, 1020, 820, 720, 530 мм. Рабочие чертежиДата актуализации: 01.01.2021
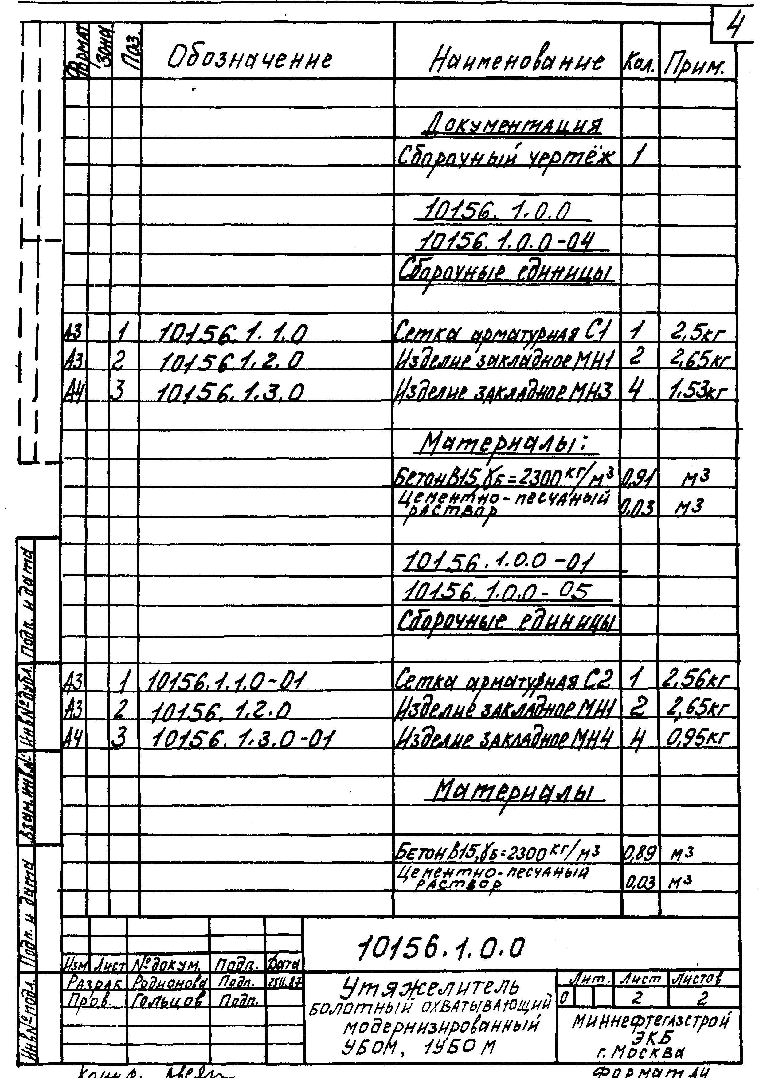
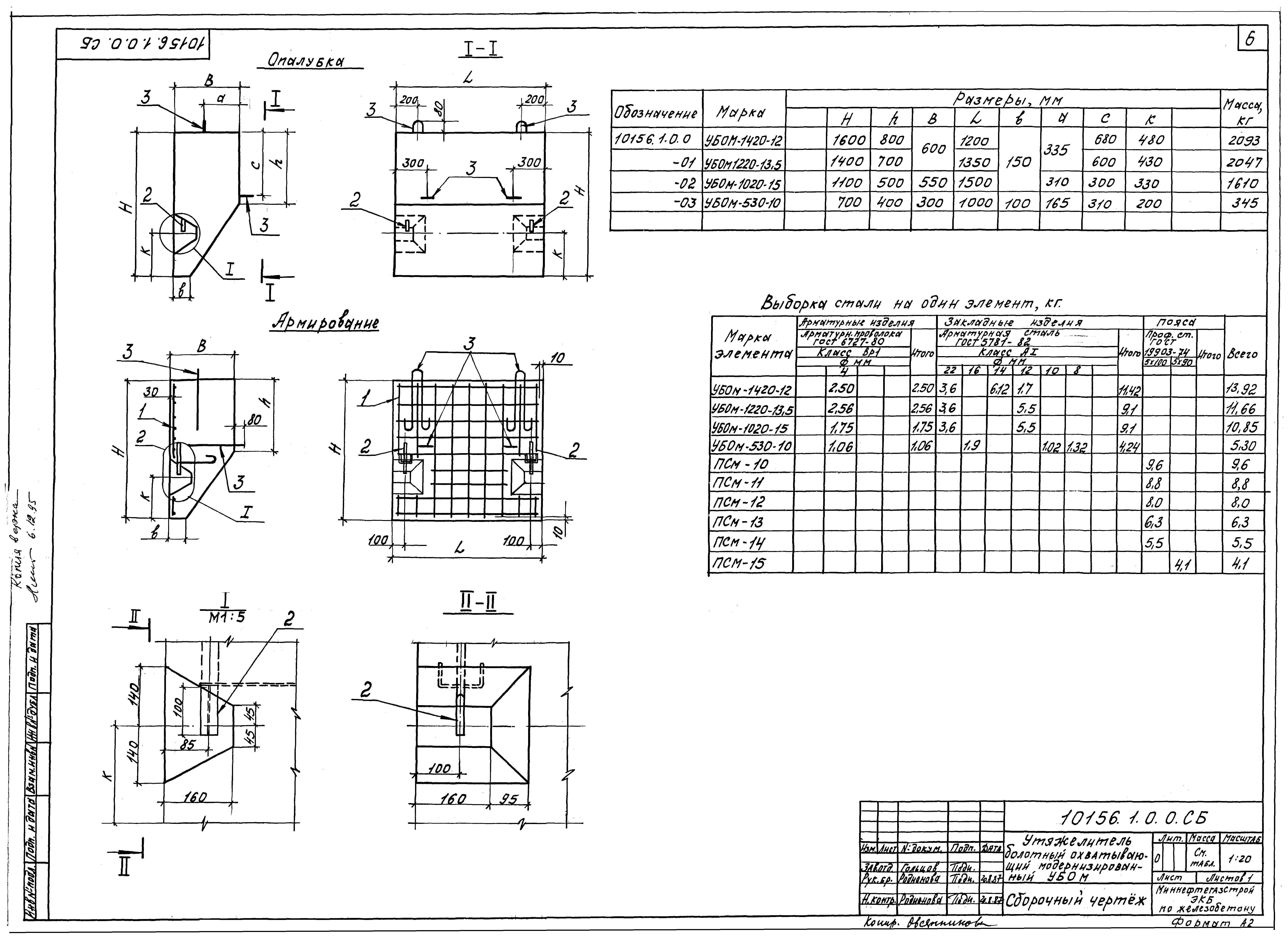
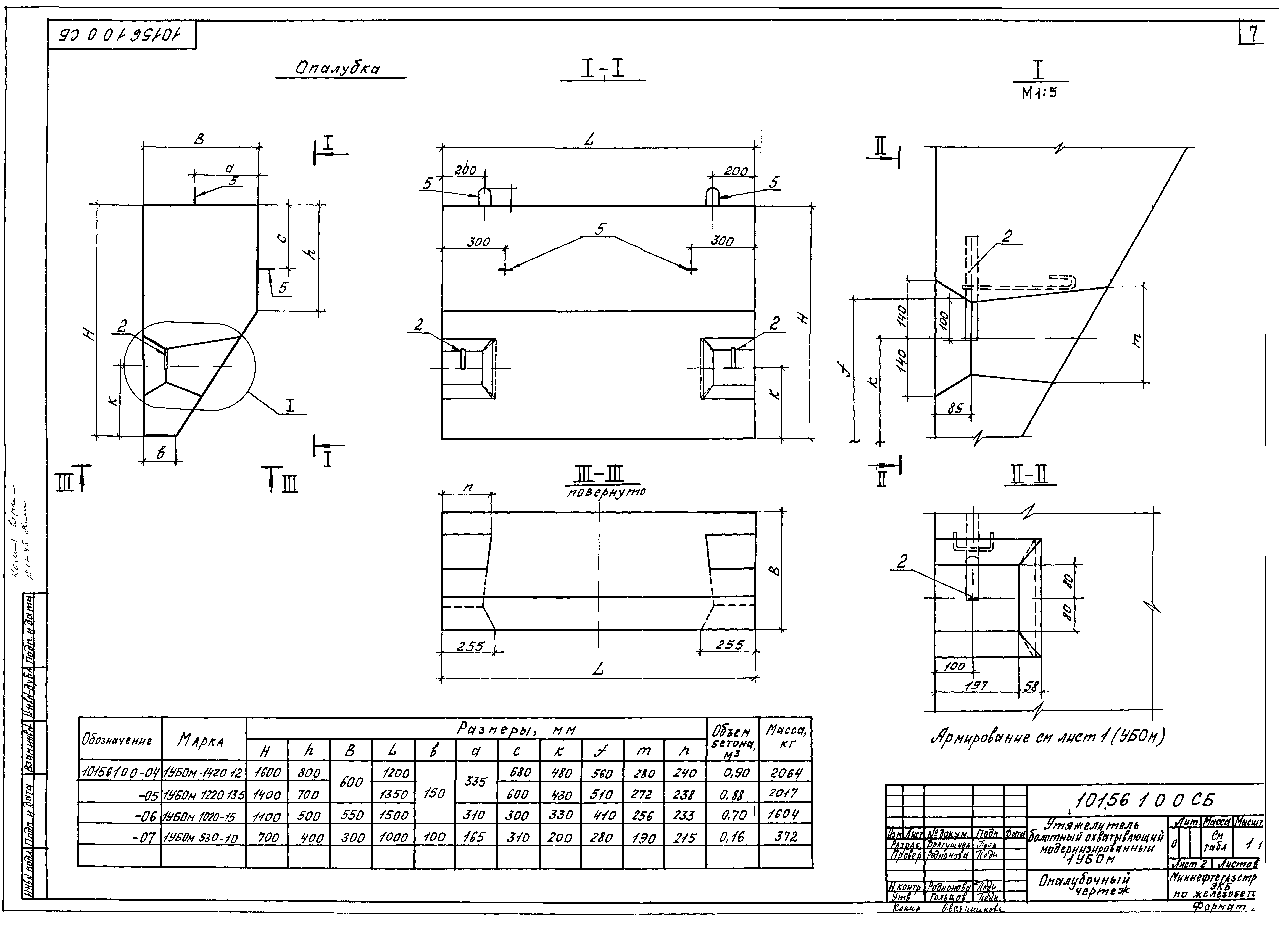
Утяжелители болотные охватывающие модернизированные для магистральных трубопроводов диаметром 1420, 1220, 1020, 820, 720, 530 мм. Рабочие чертежи| Статус: | не определен законодательством | | Название рус.: | Утяжелители болотные охватывающие модернизированные для магистральных трубопроводов диаметром 1420, 1220, 1020, 820, 720, 530 мм. Рабочие чертежи | | Дата добавления в базу: | 01.09.2013 | | Дата актуализации: | 01.01.2021 | | Дата введения: | 01.01.1984 | | Дата окончания срока действия: | 30.06.2003 | | Оглавление: | Титульный лист 10156.0.0.0.ОД Пояснительная записка. Содержание проекта 10156.0.0.0.СБ Маркировочная схема комплекта. Основные показатели. Сборочный чертеж 10156.1.0.0. Утяжелитель болотный охватывающий модернизированный УБОм, 1УБОм 10156.1.0.0.СБ Утяжелитель болотный охватывающий модернизированный УБОм. Сборочный чертеж 10156.1.0.0.СБ Утяжелитель болотный охватывающий модернизированный 1УБОм. Сборочный чертеж 10156.1.1.0. Сетка арматурная С1, С2, С3, С4 10156.1.2.0.СБ Изделие закладное МН1, МН2 10156.1.2.1 Стержень С1, С2 10156.1.2.2 Петля П1, П2 10156.1.3.0 Изделие закладное МН3, МН4, МН5 10156.2.0.0 Пояс соединительный модернизированный ПСМ 10-ПСМ-15 | | Разработан: | Миннефтегазстрой СССР
| | Утверждён: | 01.01.1984 Миннефтегазстрой (Minneftegazstroy )
|
           
|