Скачать Типовой проект 902-2-427.86 Альбом 3. Строительная частьДата актуализации: 01.01.2021
|
| Обозначение: | Типовой проект 902-2-427.86 |
| Обозначение англ: | 902-2-427.86 |
| Статус: | не определен законодательством |
| Название рус.: | Альбом 3. Строительная часть |
| Дата добавления в базу: | 01.09.2013 |
| Дата актуализации: | 01.01.2021 |
| Дата введения: | 01.02.1987 |
| Дата окончания срока действия: | 30.06.2003 |
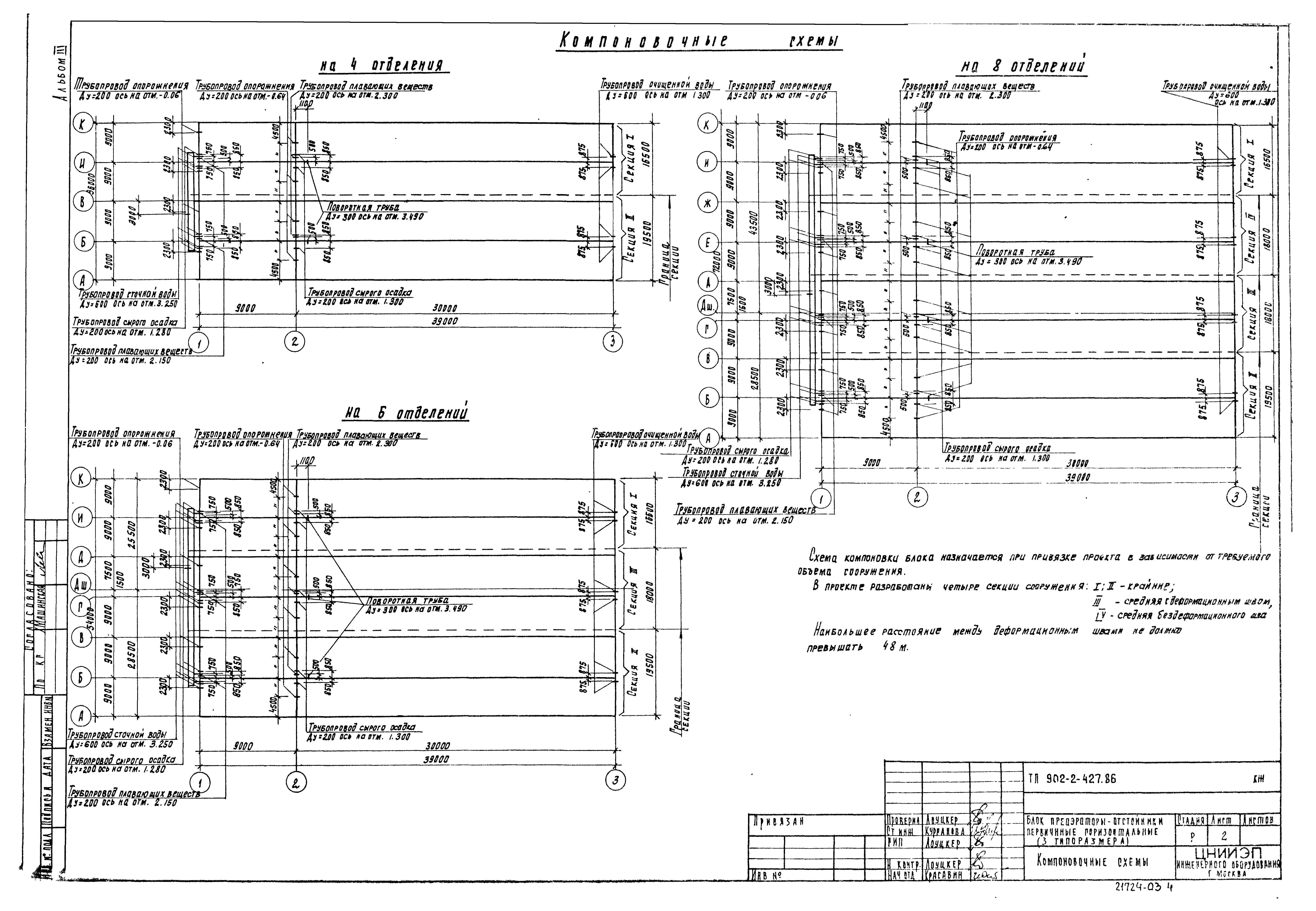
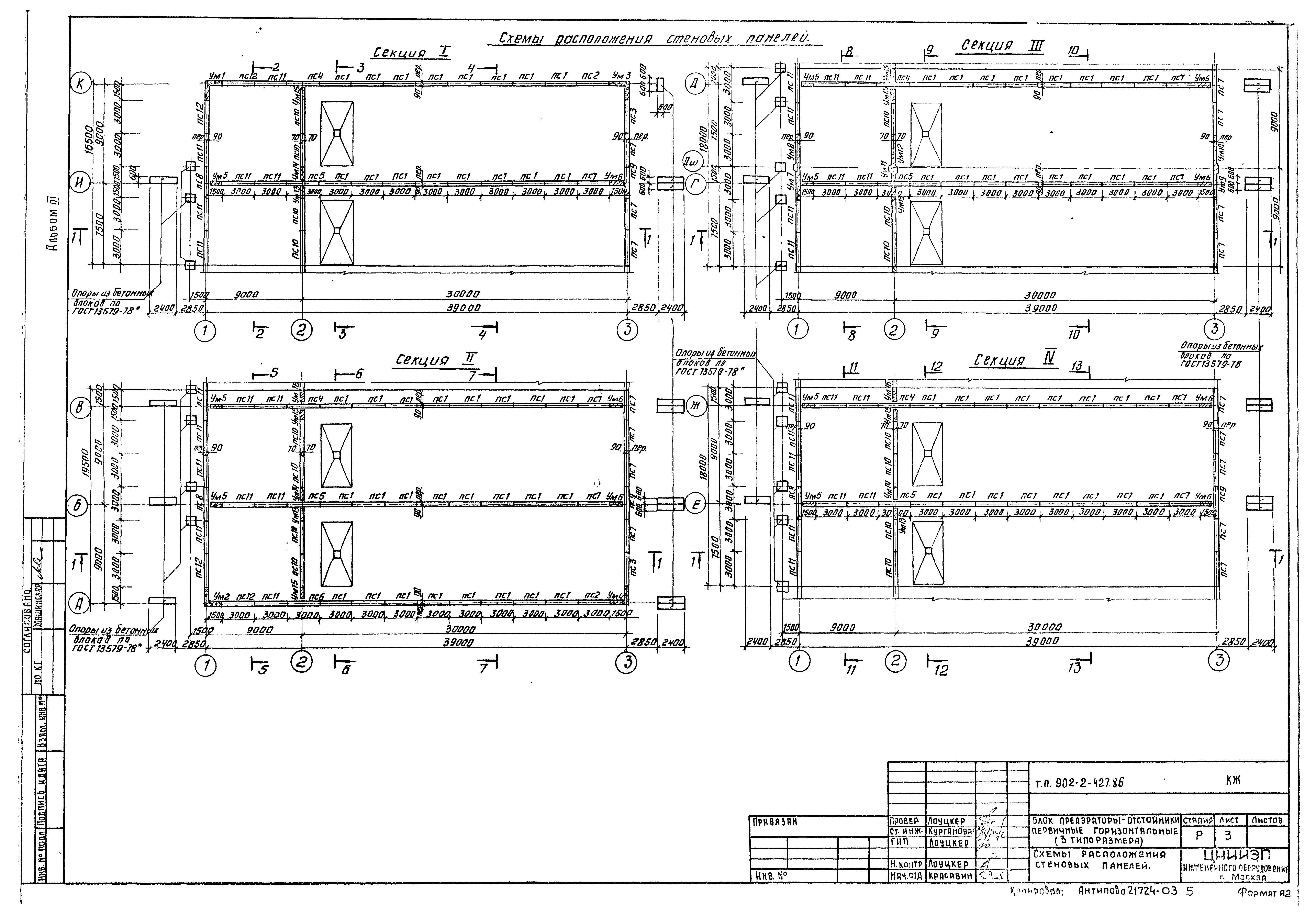
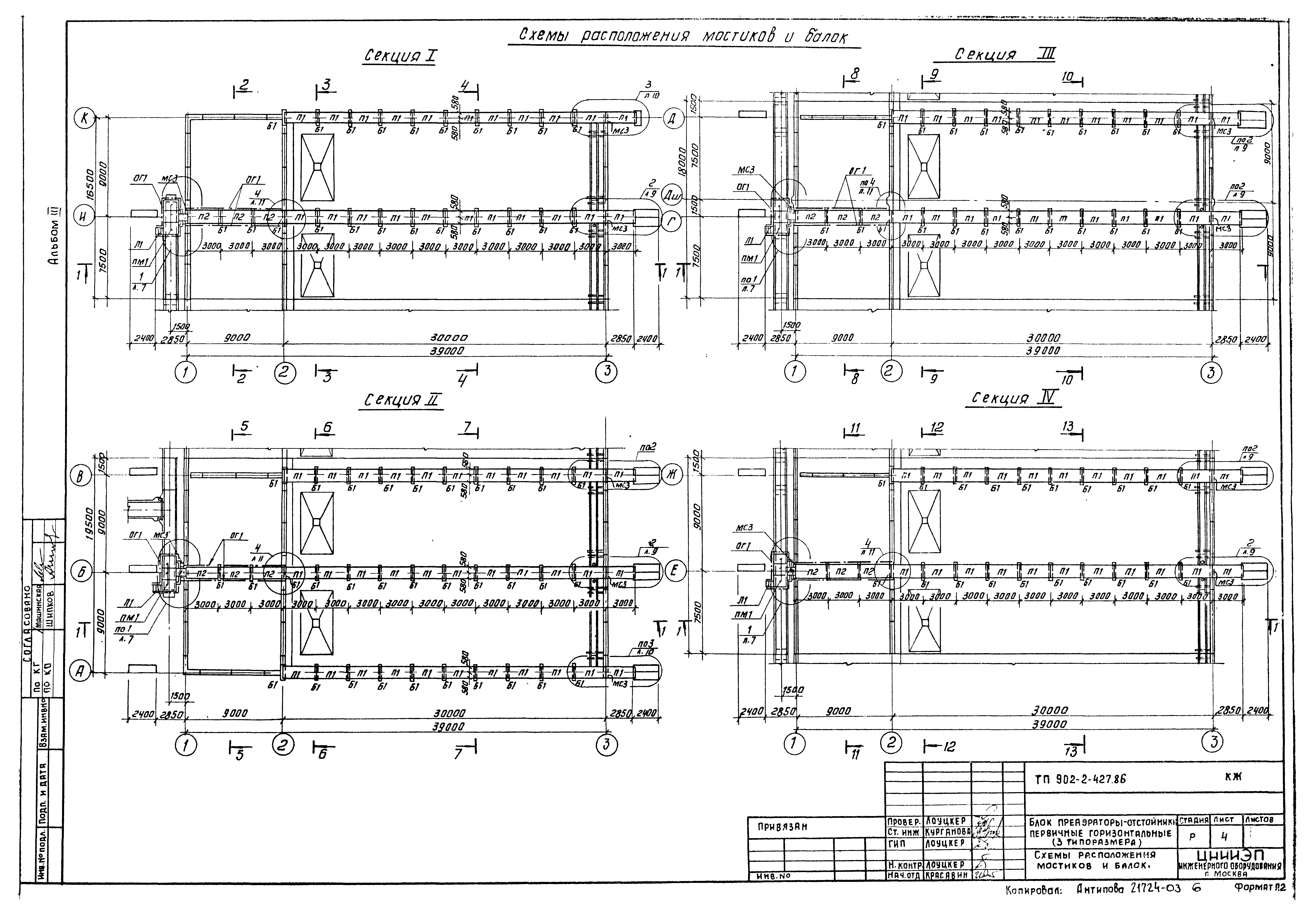
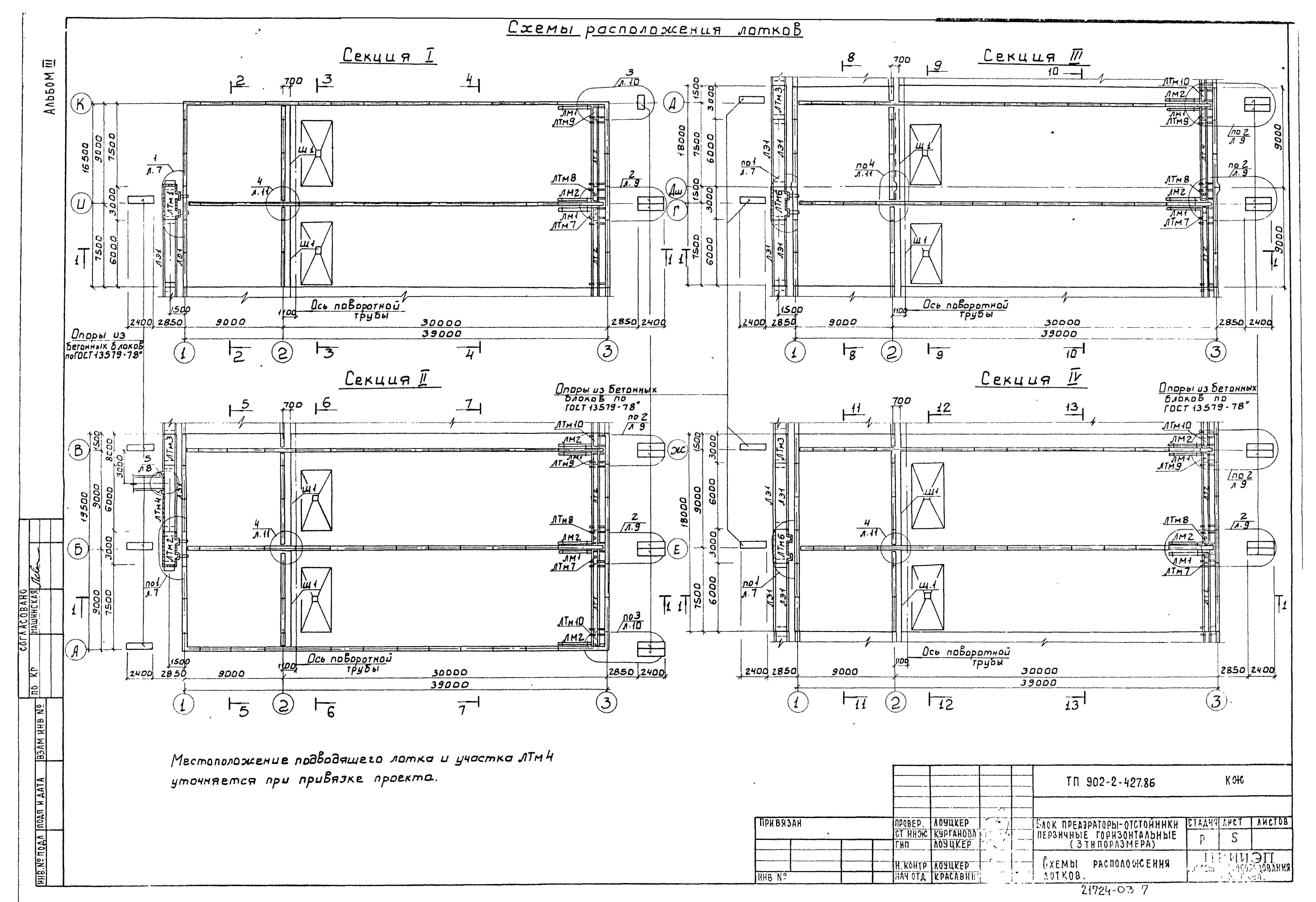
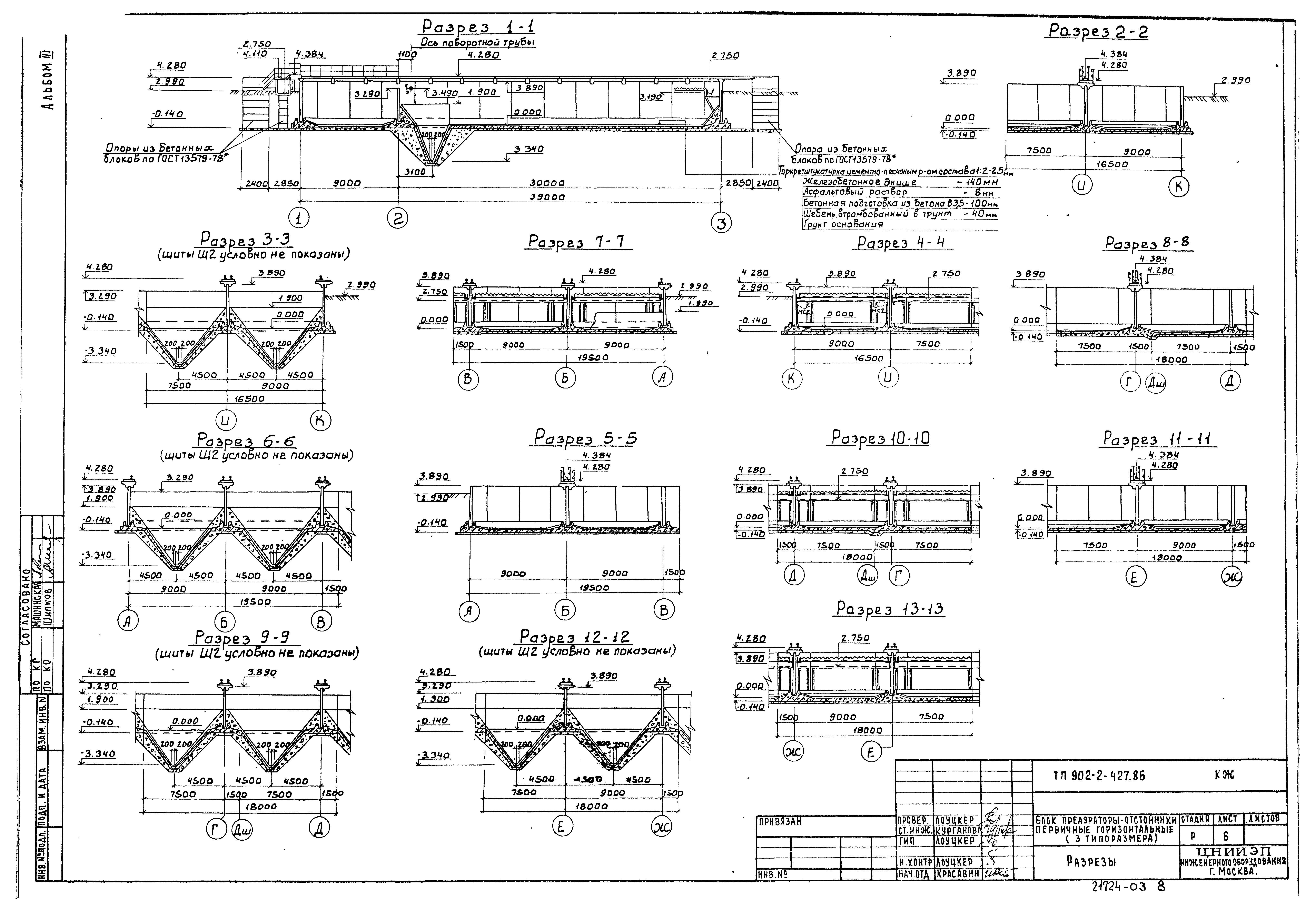
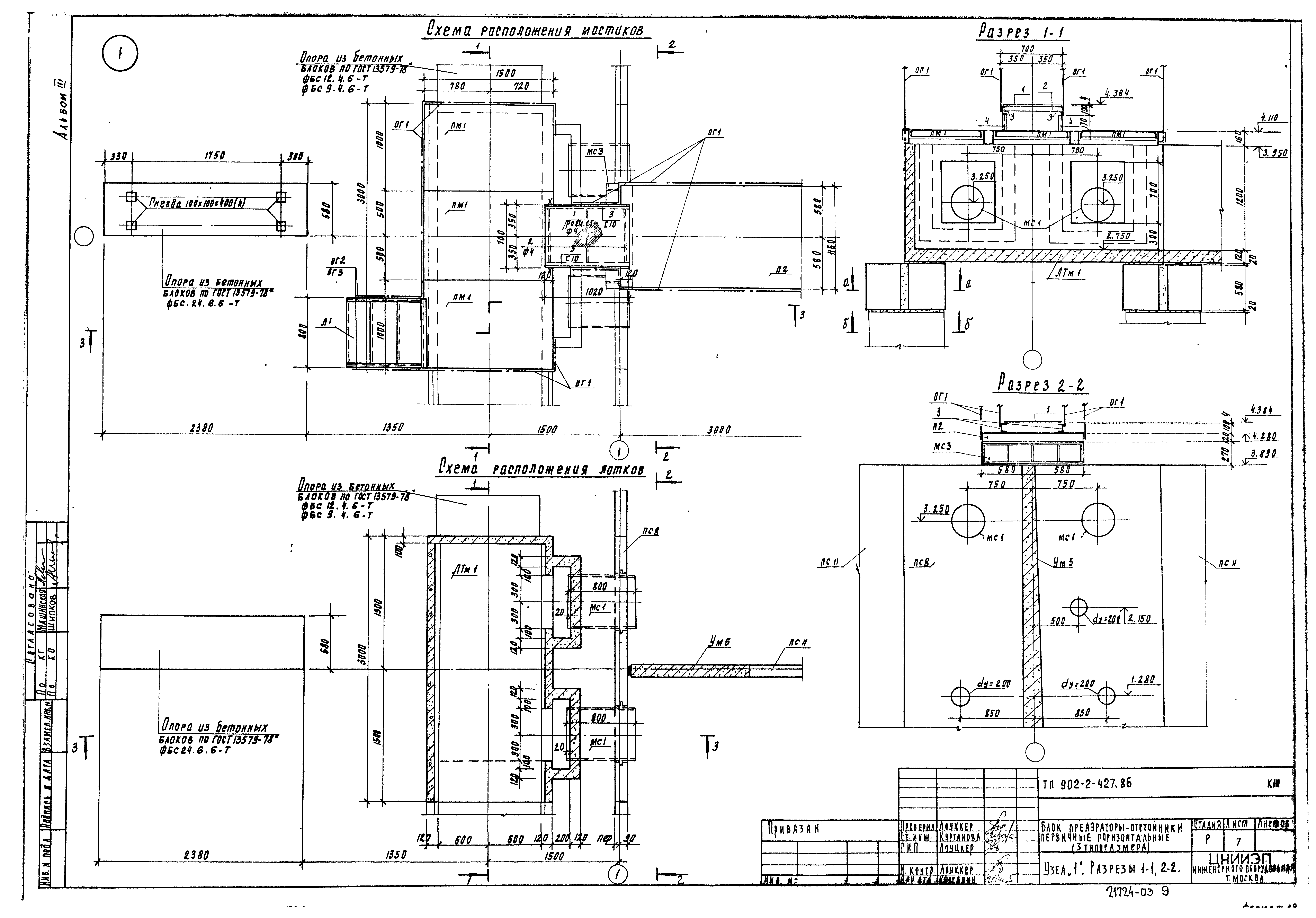
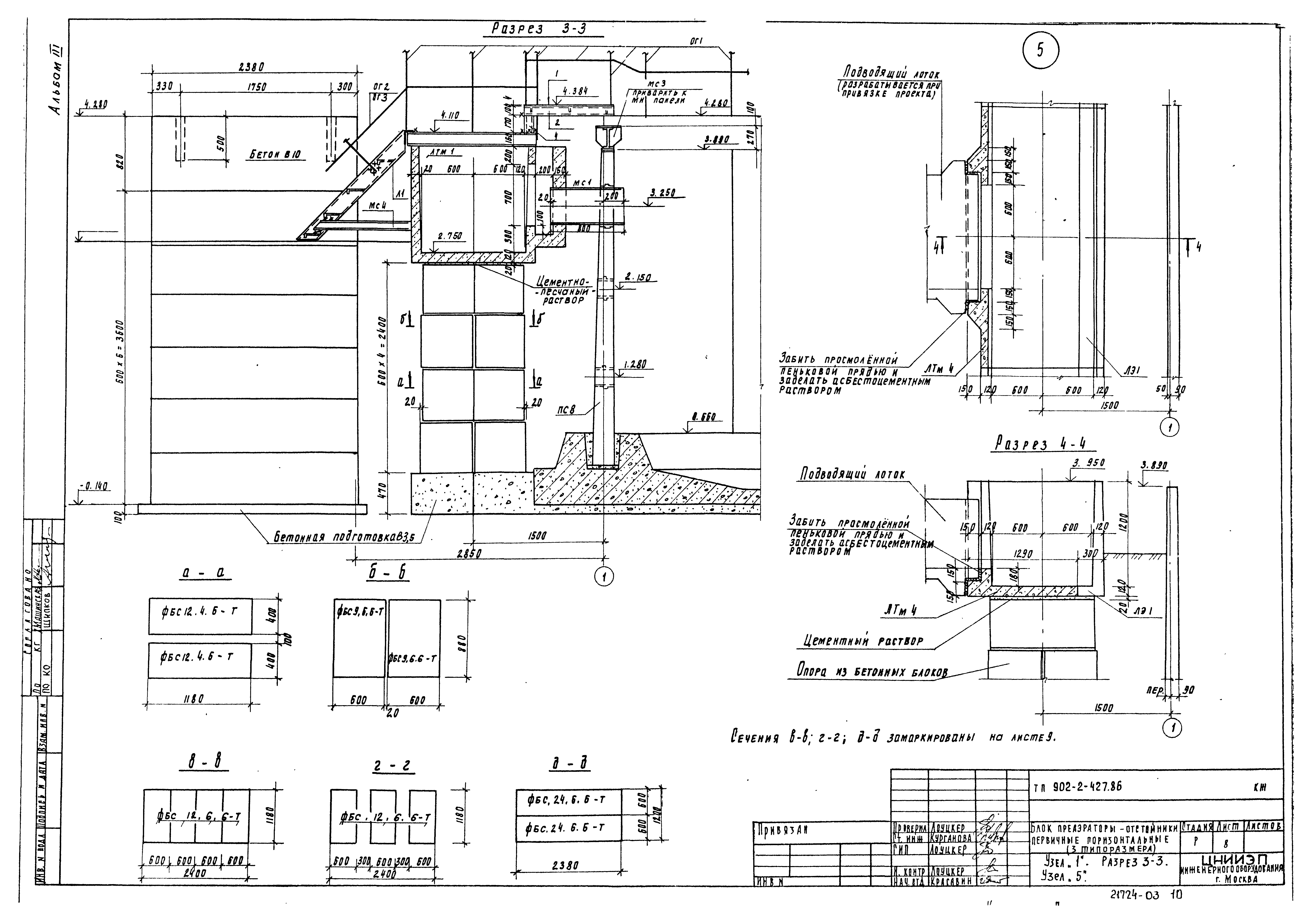
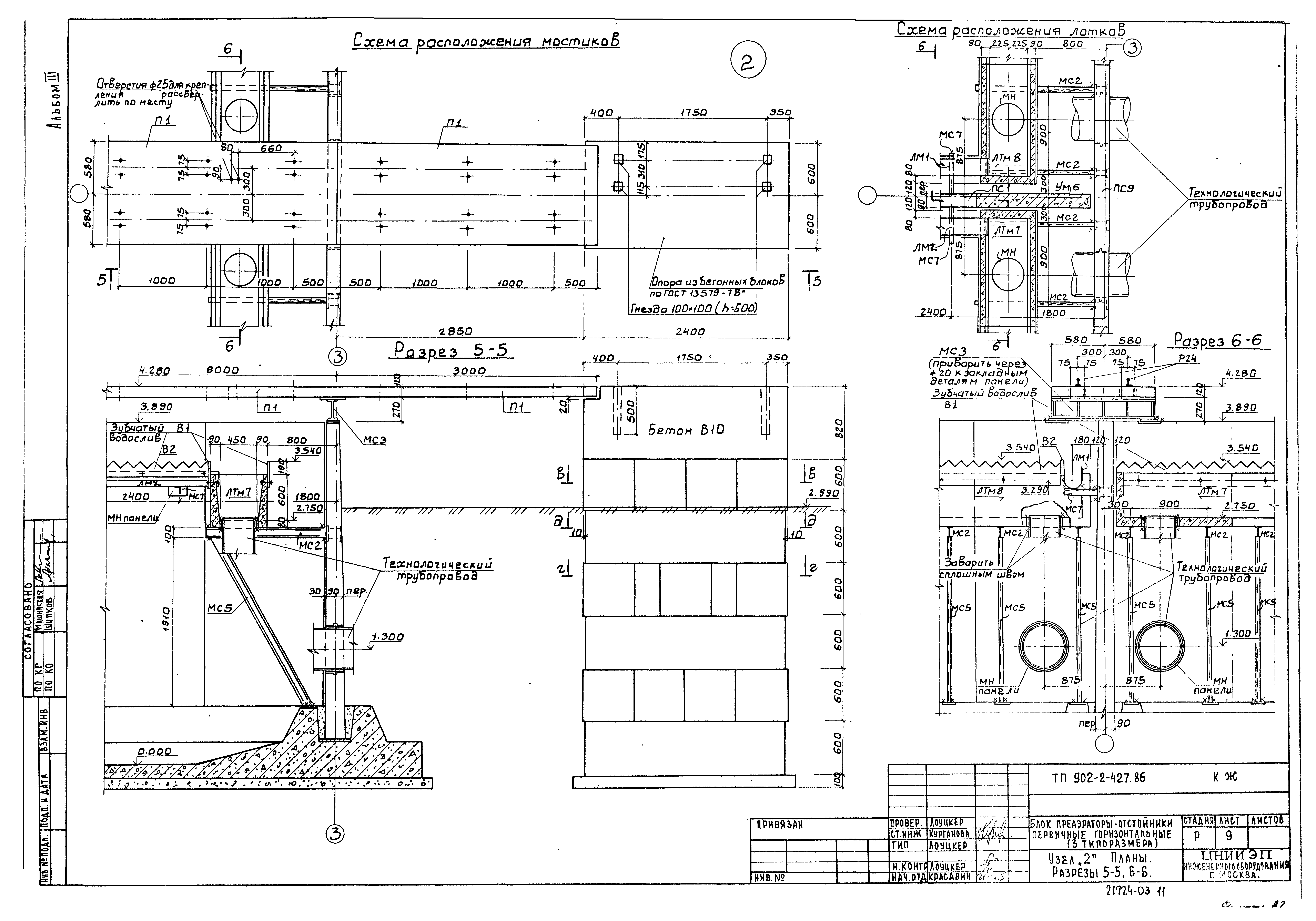
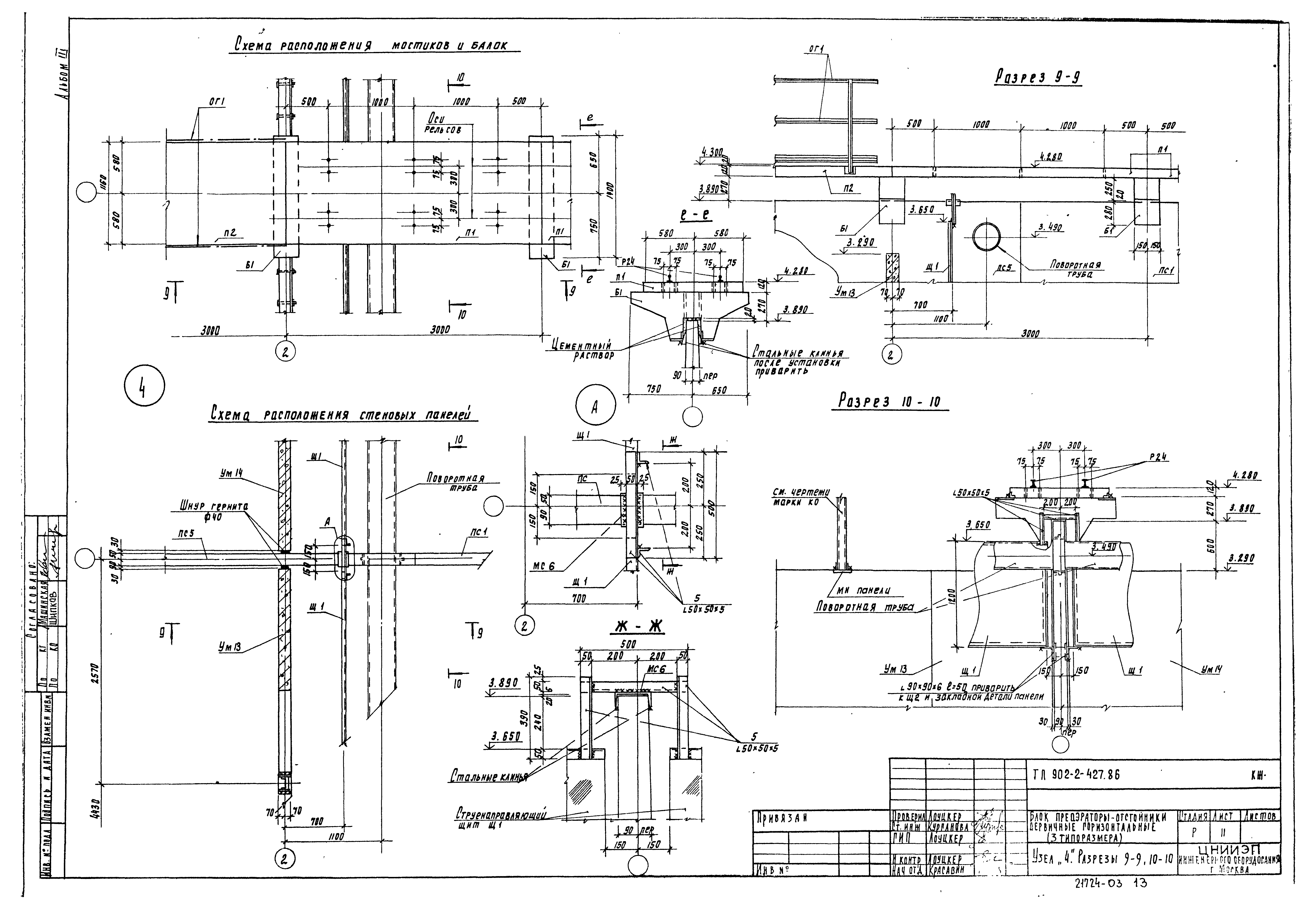
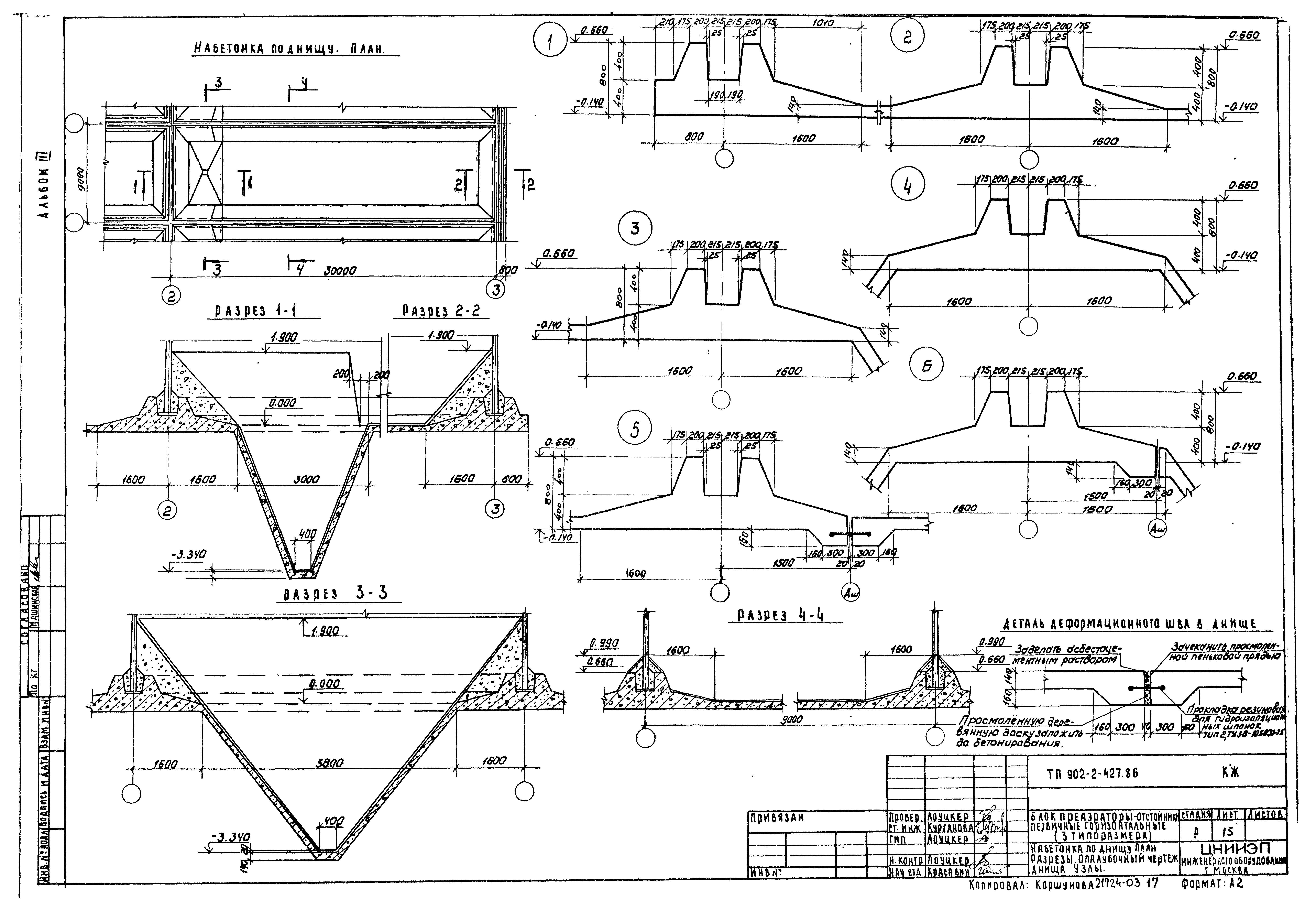
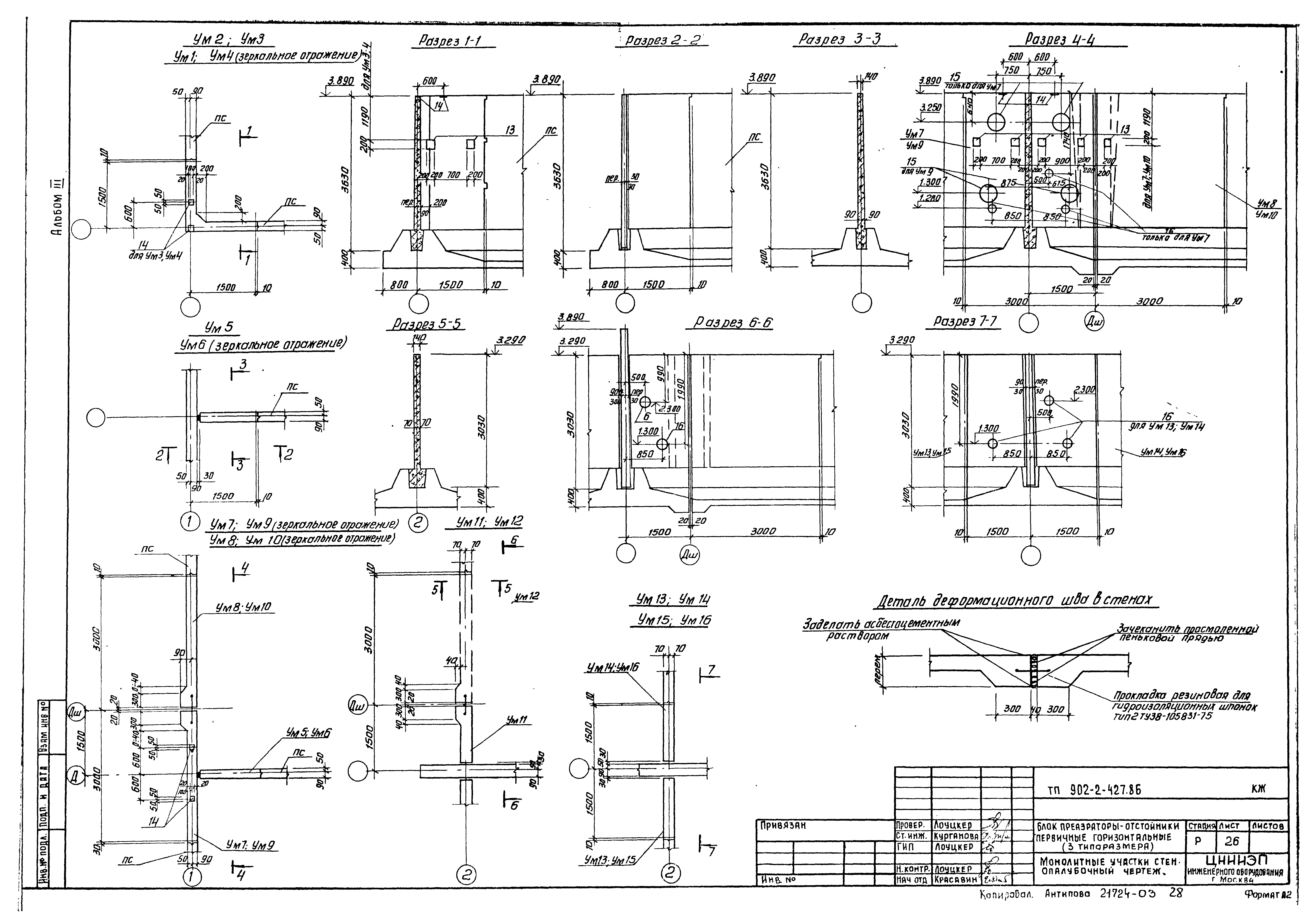
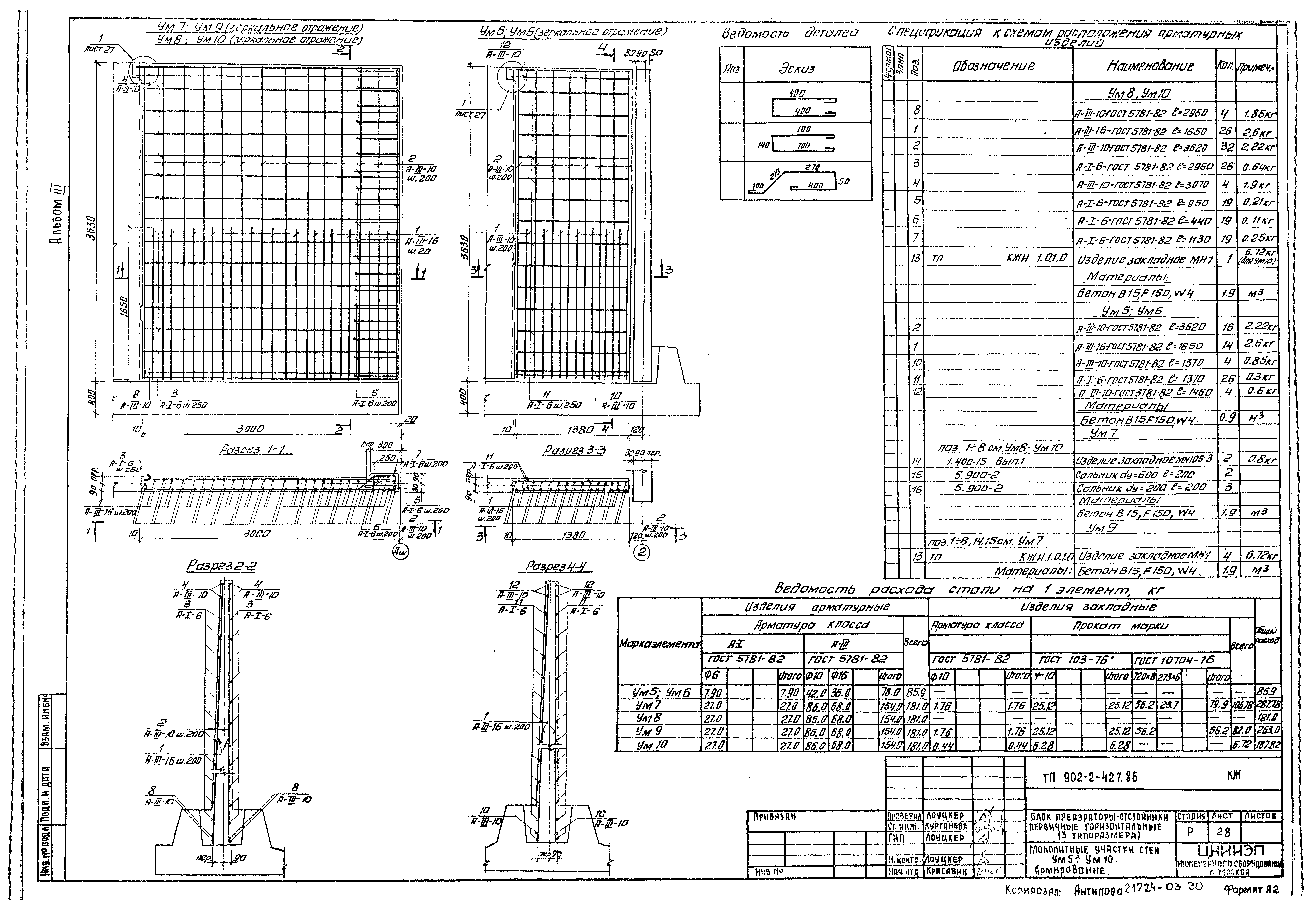
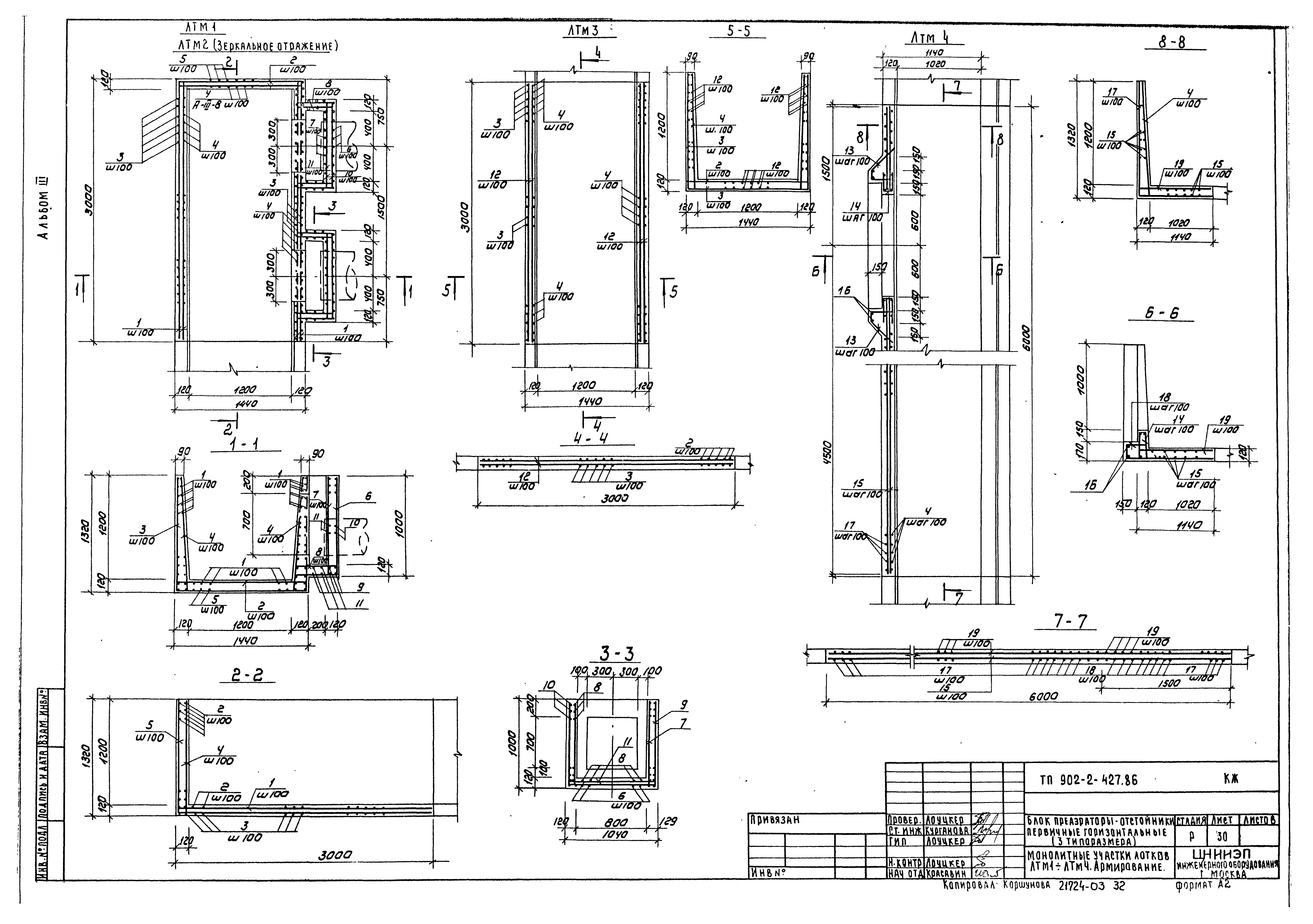
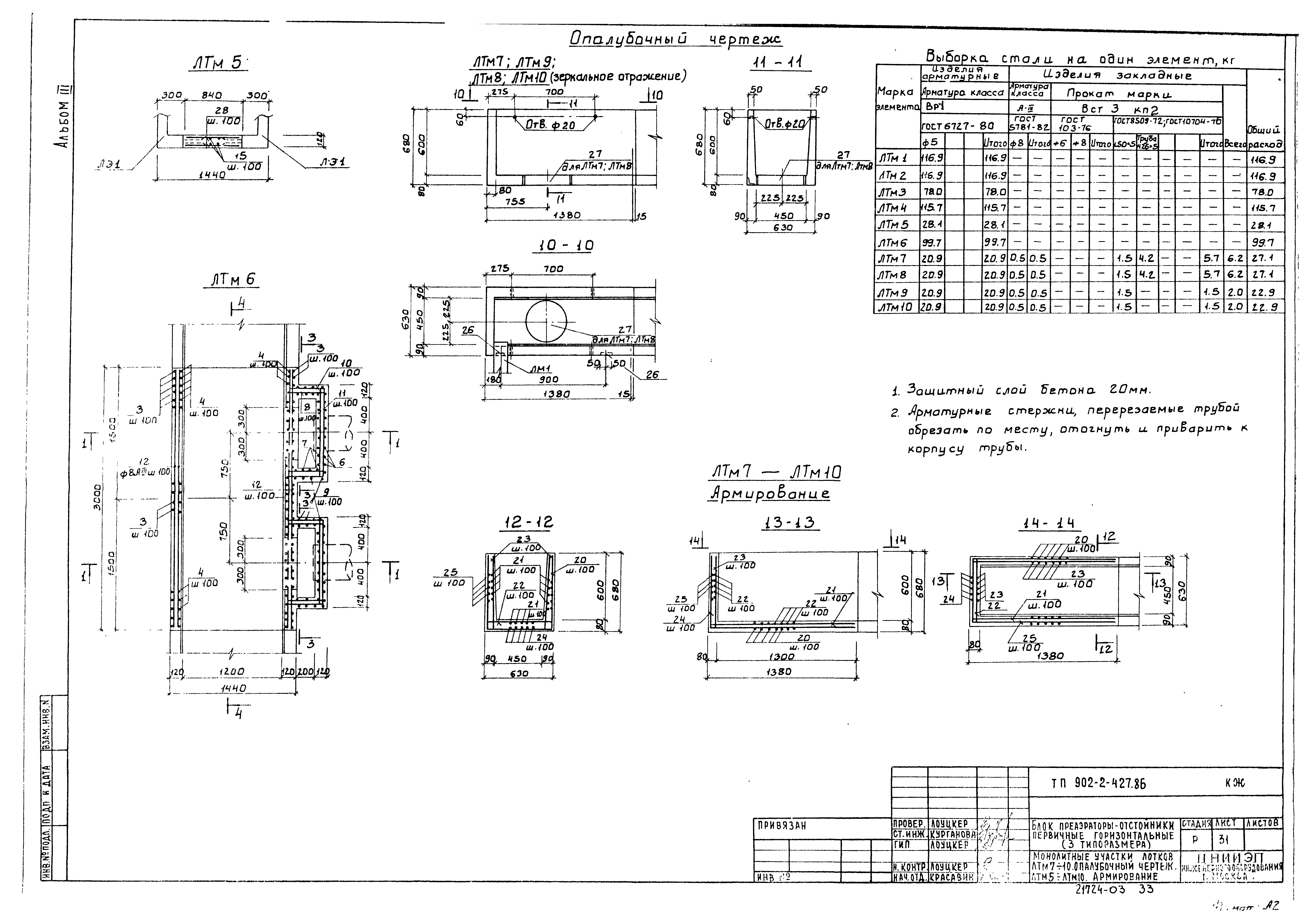
| Оглавление: | Общие данные Компоновочные схемы. Схемы расположения стеновых панелей Схемы расположения мостиков и балок Схемы расположения лотков Разрезы Узел 1. Разрезы 1-1, 2-2 Узел 1. Разрез 3-3. Узел 5 Узел 2. Планы. Разрезы 5-5, 6-6 Узел 3. Планы. Разрезы 7-7, 8-8 Узел 4. Разрезы 9-9, 10-10 Спецификация к схемам расположения стеновых панелей, мостиков и балок, лотков Днище. Опалубочный чертеж. Планы Днище. Опалубочный чертеж. Разрезы Набетонка по днищу. План. Разрезы. Опалубочный чертеж днища. Узлы Днище. Армирование. Секция 1. Схема расположения нижних сеток. Разрез 1-1 Днище. Армирование. Секция 1. Схема расположения верхних сеток. Разрезы 2-2, 3-3 Днище. Армирование. Секция 2. Схема расположения нижних сеток. Разрез 4-4 Днище. Армирование. Секция 2. Схема расположения верхних сеток. Разрез 5-5 Днище. Армирование. Секция 3. Схема расположения нижних сеток. Разрез 6-6 Днище. Армирование. Секция 3. Схема расположения верхних сеток. Разрез 7-7 Днище. Армирование. Секция 4. Схема расположения нижних сеток. Разрез 8-8 Днище. Армирование. Секция 4. Схема расположения верхних сеток. Разрез 9-9 Днище. Армирование. Узлы Днище. Армирование. Спецификация Монолитные участки стен. Опалубочный чертеж Монолитные участки стен Ум1…Ум4. Армирование. Узлы 1, 2 Монолитные участки стен Ум5…Ум10. Армирование Монолитные участки стен Ум11…Ум16. Армирование Монолитные участки лотков ЛТм1…ЛТм4. Армирование Монолитные участки лотков ЛТм7…ЛТм10. Опалубочный чертеж. ЛТм5…ЛТм10. Армирование Монолитные участки лотков. Спецификация График производства работ (начало) График производства работ (продолжение) График производства работ (окончание) |
| Разработан: | ЦНИИЭП |
| Утверждён: | 05.09.1986 Госгражданстрой (Gosgrazhdanstroy 280) |




































