Скачать Типовой проект 416-6-27.88 Альбом II. Отопление и вентиляция, внутренние водопровод и канализация, электрооборудование, связь и сигнализация, автоматизация систем отопления и вентиляции, автоматизация систем технологического оборудованияДата актуализации: 01.01.2021
|
| Обозначение: | Типовой проект 416-6-27.88 |
| Обозначение англ: | 416-6-27.88 |
| Статус: | не определен законодательством |
| Название рус.: | Альбом II. Отопление и вентиляция, внутренние водопровод и канализация, электрооборудование, связь и сигнализация, автоматизация систем отопления и вентиляции, автоматизация систем технологического оборудования |
| Дата добавления в базу: | 01.09.2013 |
| Дата актуализации: | 01.01.2021 |
| Дата введения: | 25.12.1987 |
| Дата окончания срока действия: | 30.06.2003 |
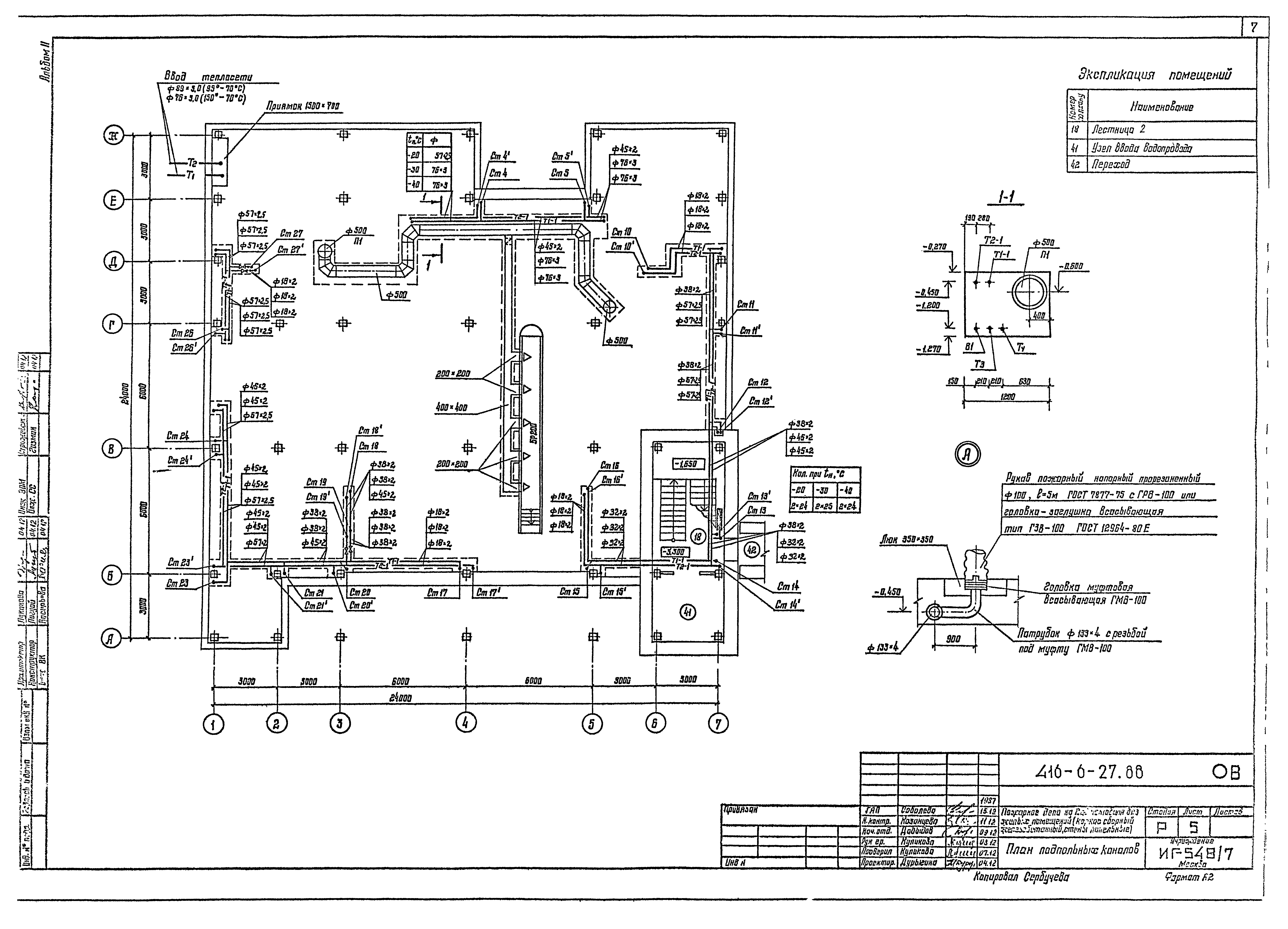
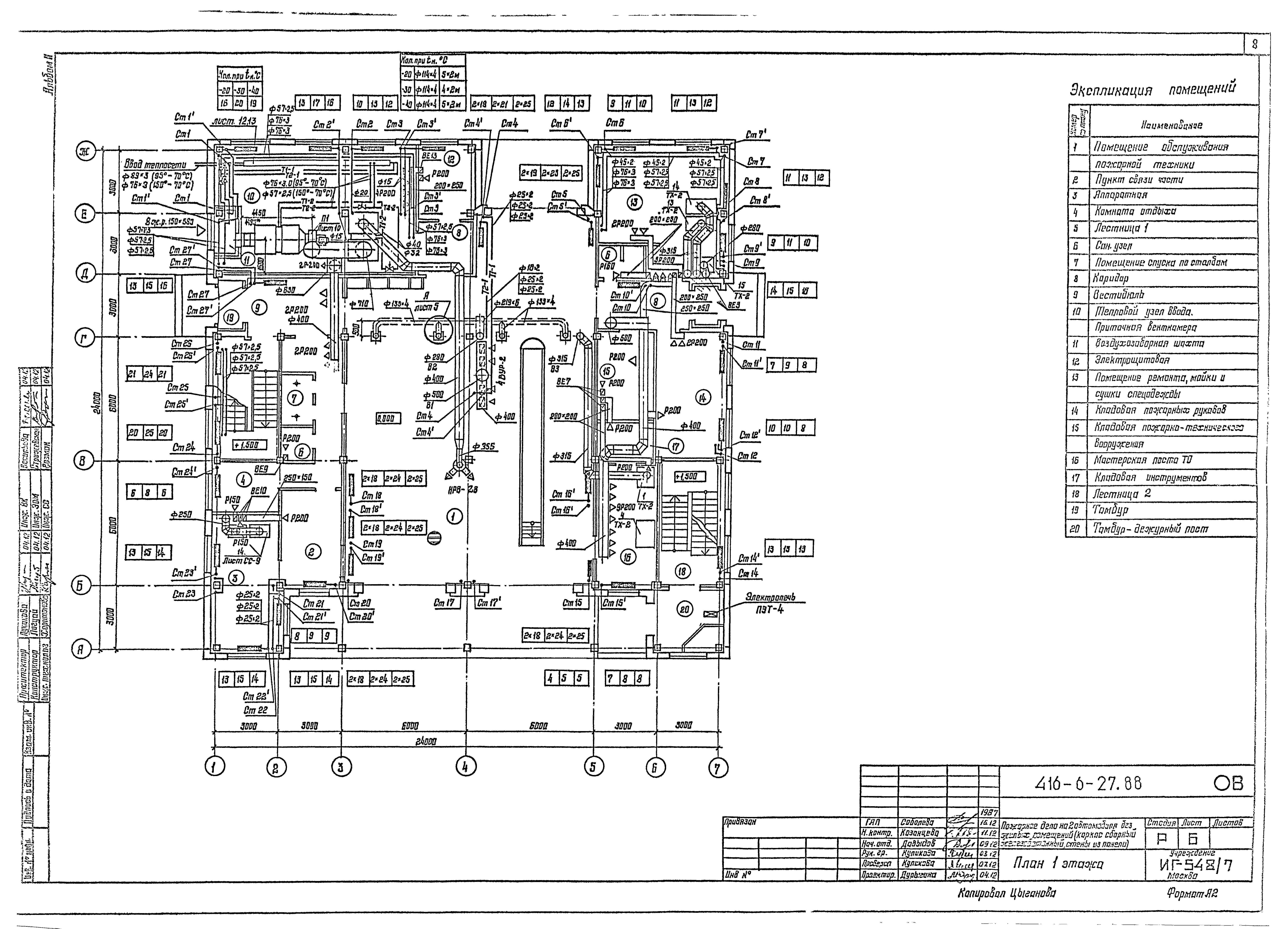
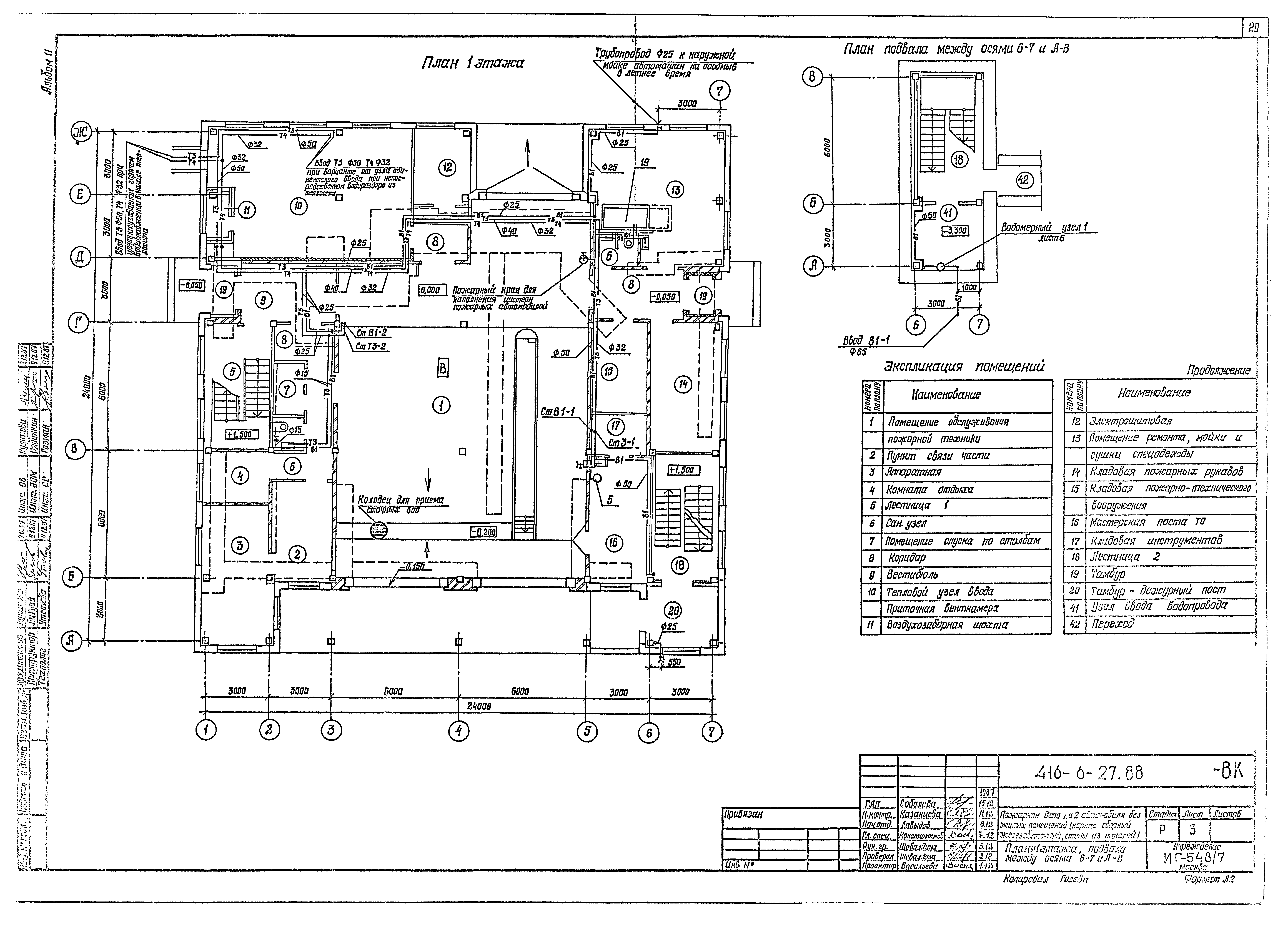
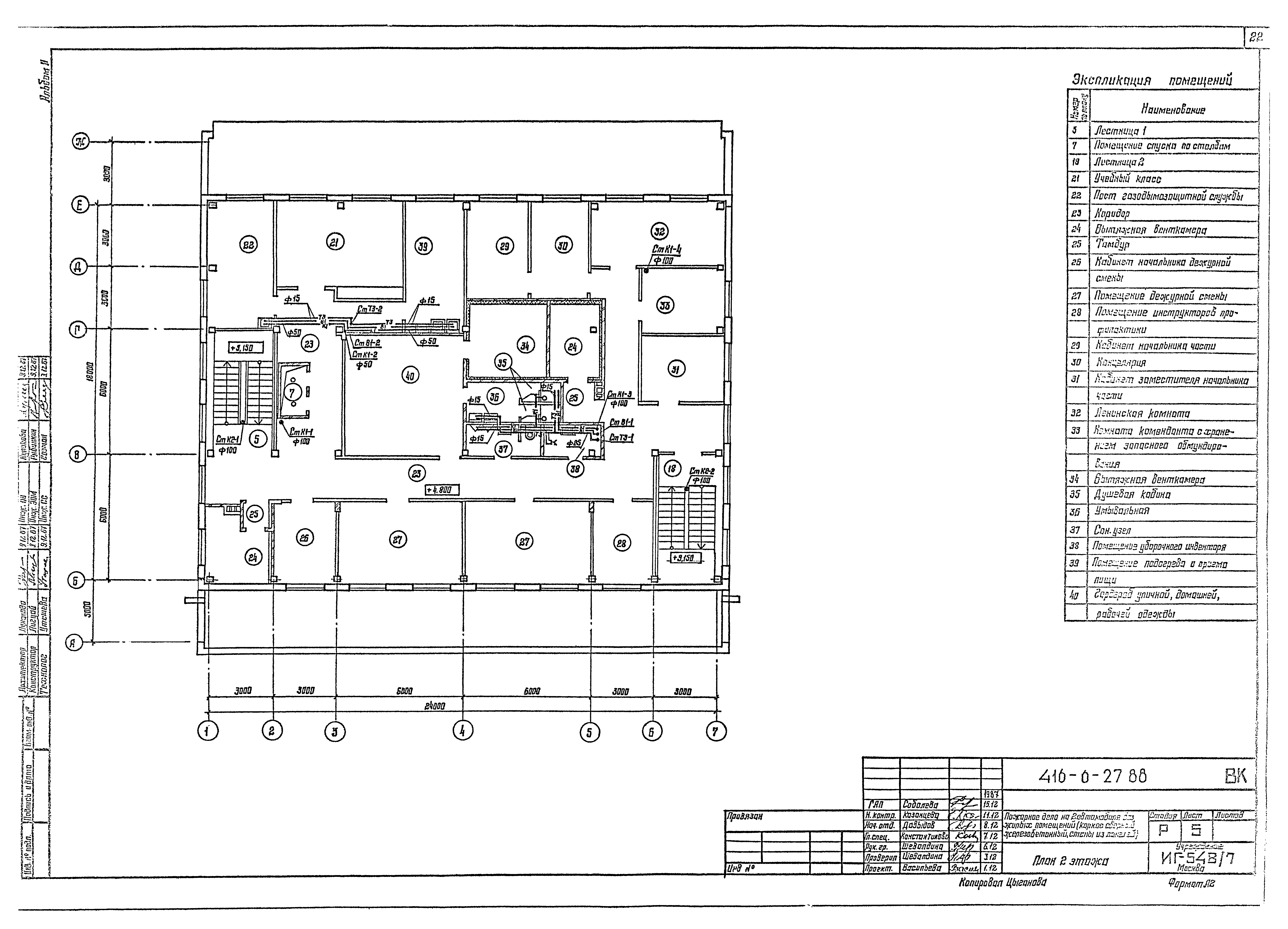
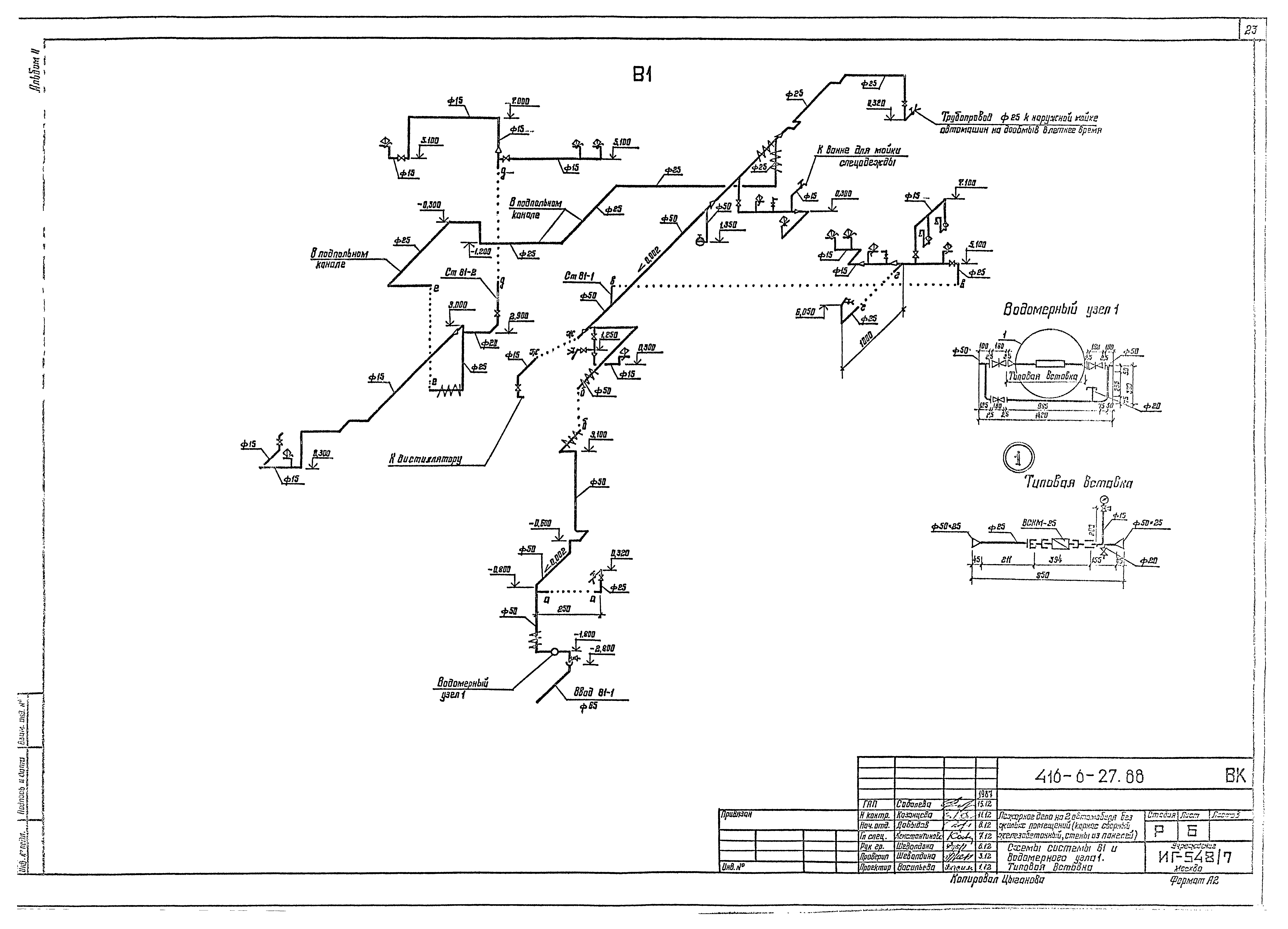
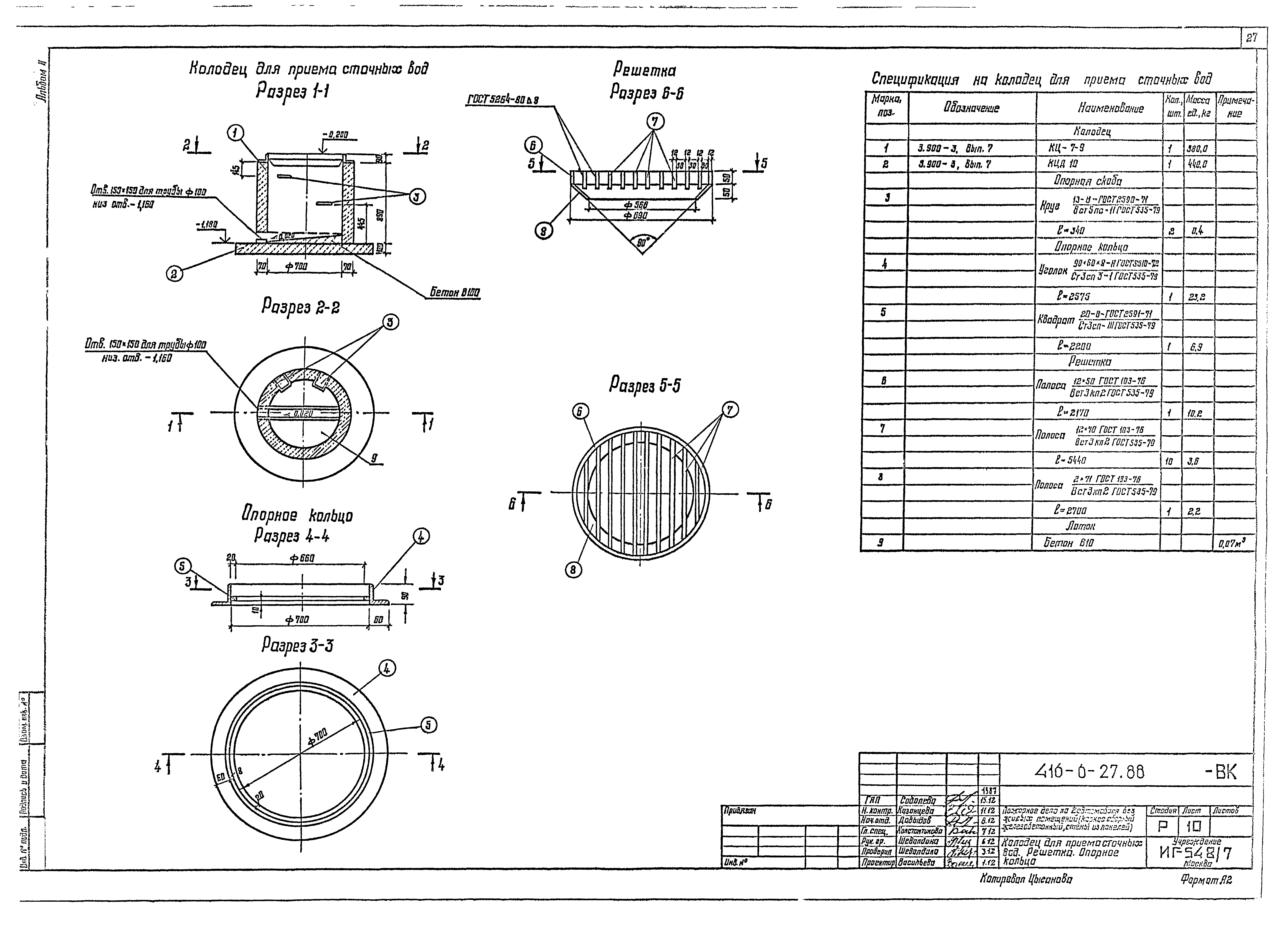
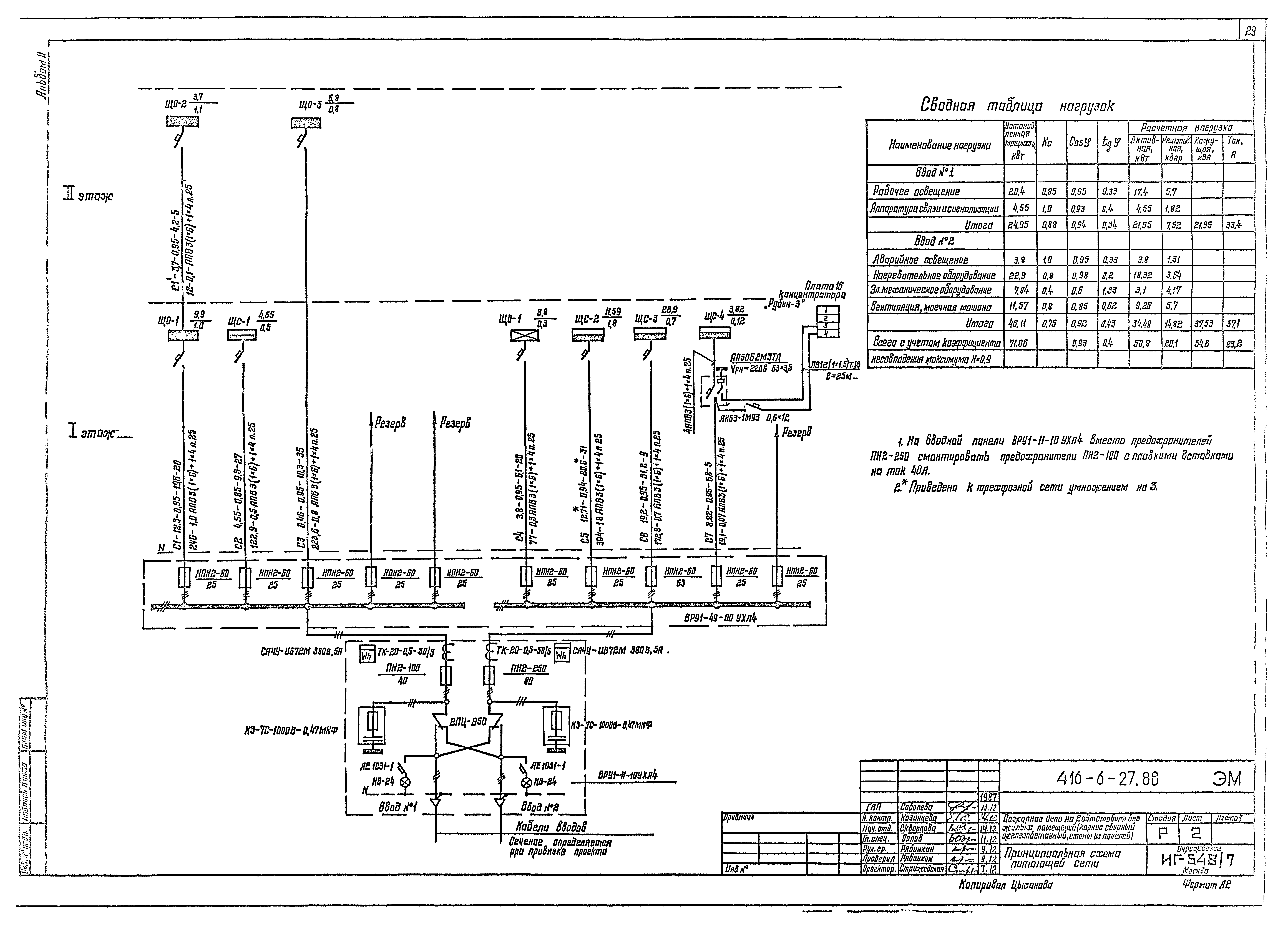
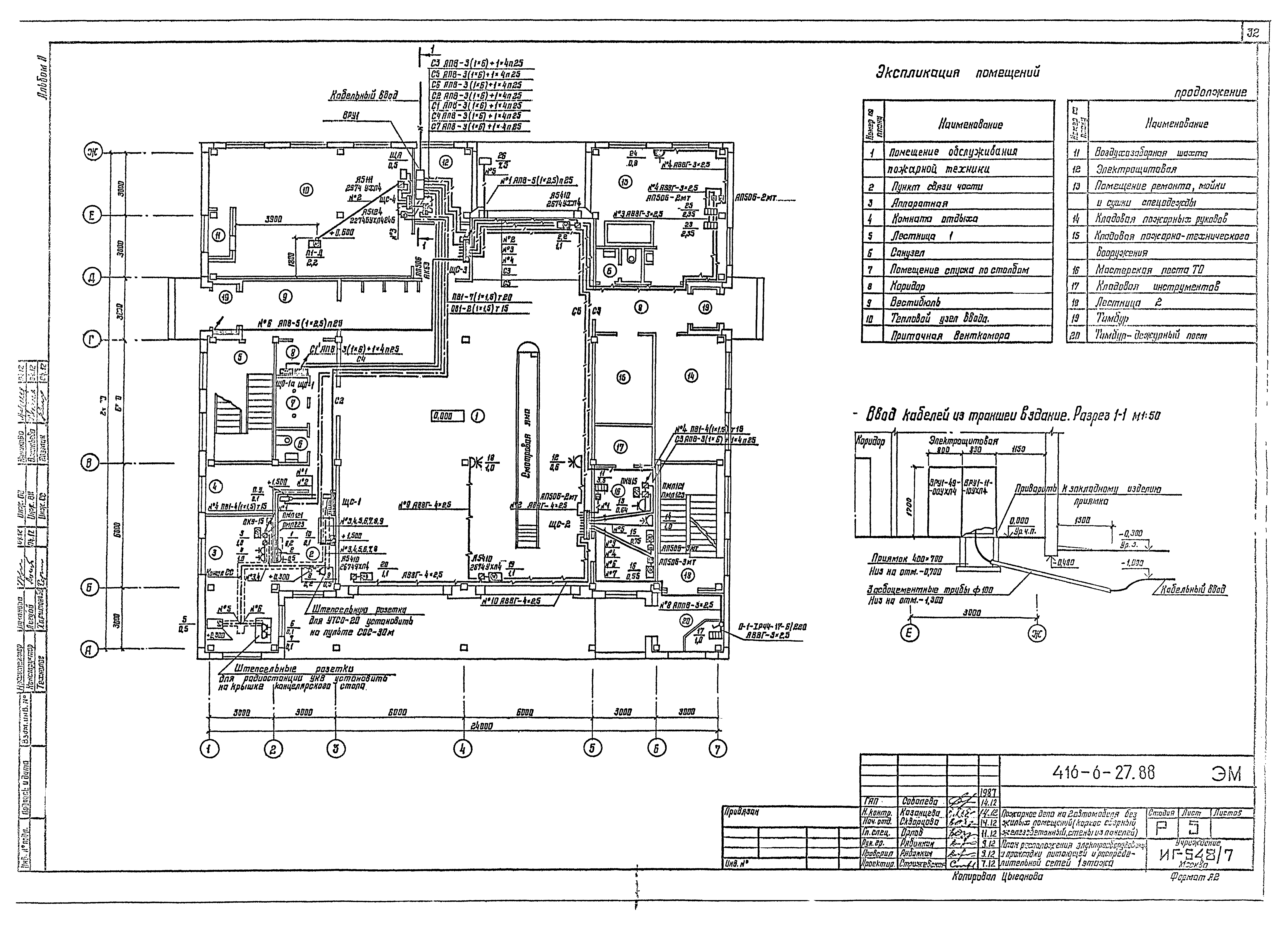
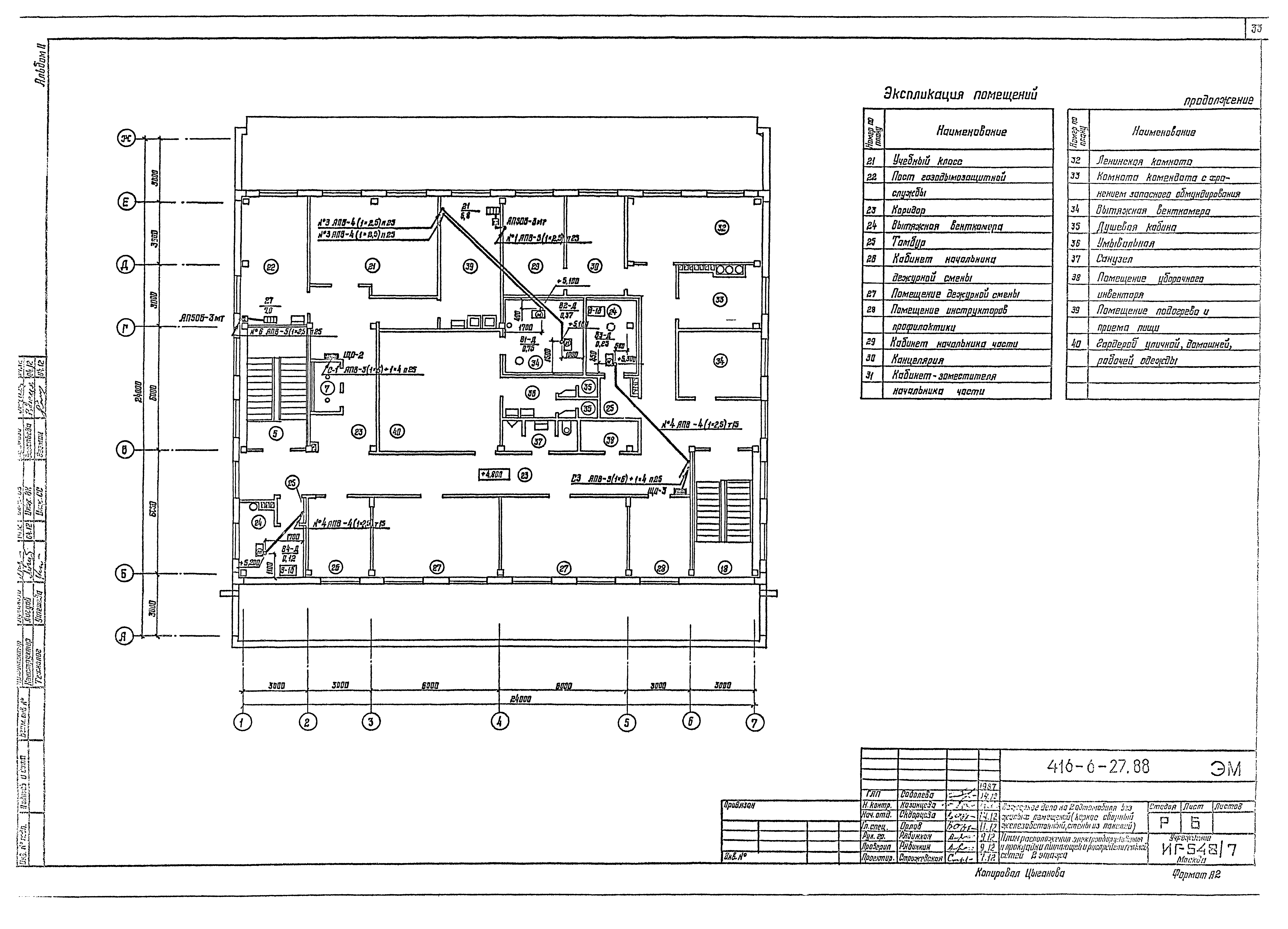
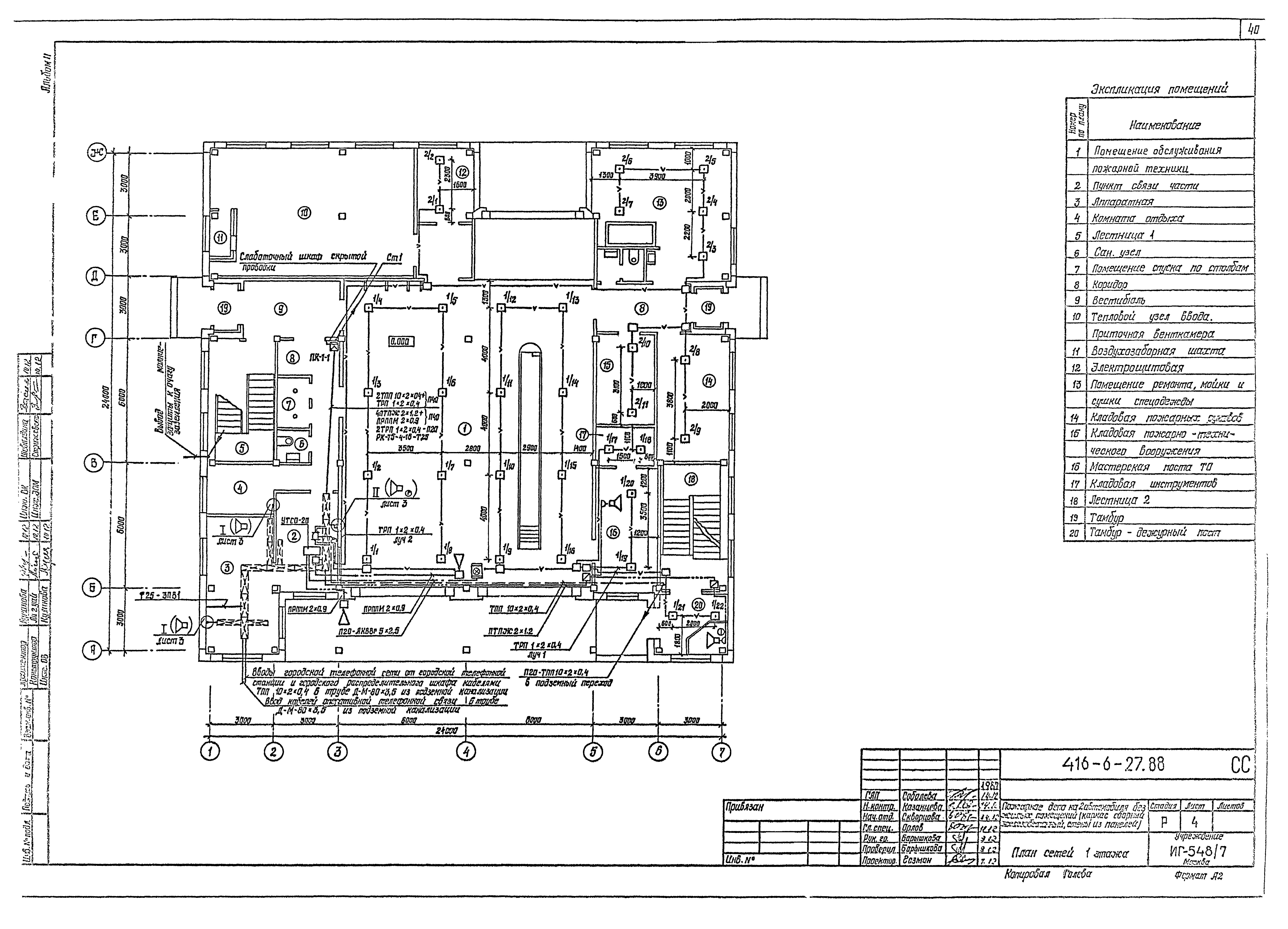
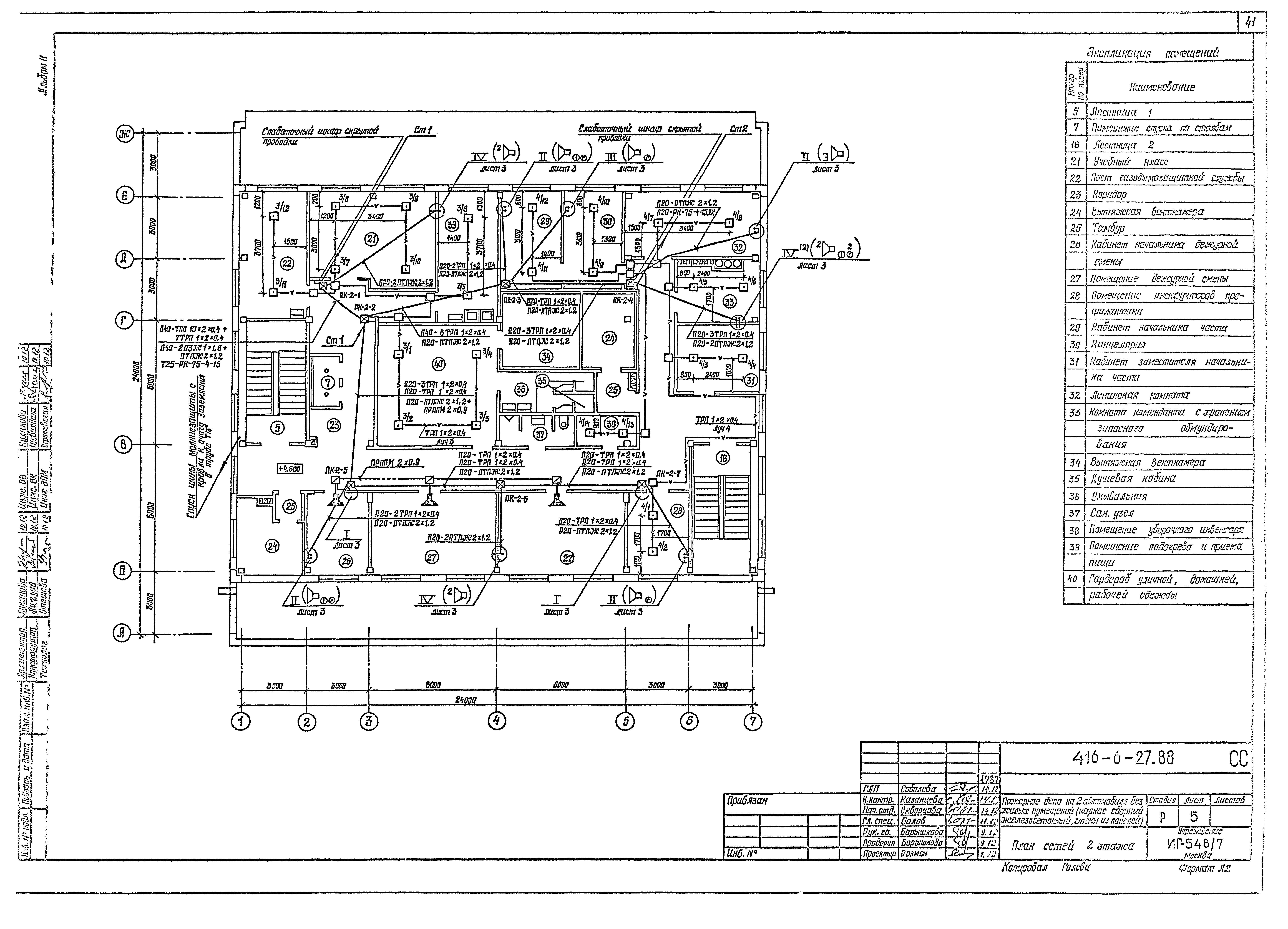
| Оглавление: | Чертежи марки ОВ Общие данные План подпольных каналов План 1 этажа План 2 этажа Схема системы отопления Схемы системы П1, В1…В4, ВЕ1…ВЕ13 Установка систем П1, В1…В4 Спецификация отопительно-вентиляционных установок П1, В1…В4 ИТП. Узел управления (теплоноситель: вода 95 - 70 градусов Цельсия). Схема системы теплоснабжения установки П1 ИТП. Узел управления (теплоноситель: вода 150 - 70 градусов Цельсия) Прилагаемые документы Патрубок1 Патрубок2 Патрубок3,4 Торцевой лист Чертежи марки ВК Общие данные Планы 1 этажа, подвала между осями 6 - 7 и А - В Планы 1 этажа и кровли План 2 этажа Схемы системы В1 и водомерного узла 1. Типовая вставка Схема системы Т3, Т4 Схемы систем К1, К2. Гидрозатвор Схемы системы К3. Ванна для мойки спецодежды. План. Разрез 1-1 Колодец для приема сточных вод. Решетка. Опорное кольцо Чертежи марки ЭМ Общие данные Принципиальная схема питающей сети Расчетные схемы распределительной сети ЩС-1, ЩС-2 Расчетные схемы распределительной сети ЩС-3, ЩС-4 План расположения электрооборудования и прокладки питающей и распределительной сетей 1 этажа План расположения электрооборудования и прокладки питающей и распределительной сетей 2 этажа План расположения электрооборудования и прокладки групповой сети подвала и 1 этажа План расположения электрооборудования и прокладки групповой сети подвала и 2 этажа Опросный лист для заказа вводно-распределительного устройства ВРУ1 Чертежи марки СС Общие данные Схемы сетей. Узлы скрытой проволоки План сетей 1 этажа План сетей 2 этажа План сетей на отм. - 3.300. План сетей кровли План расположения оборудования в помещении аппаратной и пункте связи части Подпольная коробка Спецификация элементов подпольной коробки Чертежи марки АОВ Общие данные Система П1. Схема автоматизации Система П1. Схема электрическая принципиальная управления приточным вентилятором Система П1. Схемы электрические принципиальные регулирования и защиты калорифера от замораживания Система П1. Схемы электрические принципиальные регулирования (2 подогрев) и питания Система П1. Схема соединений внешних проводок Система П1. План расположения Прилагаемые документы Щит системы П1. Общий вид Чертежи марки АТХ Общие данные Распашные ворота ВР1…ВР3. Схема электрическая принципиальная управления и сигнализации Распашные ворота ВР1. Схема соединений внешних проводок Распашные ворота ВР2, ВР3. Схема соединений внешних проводок Распашные ворота ВР1, ВР2. План расположения Распашные ворота ВР1…ВР3. План расположения Прилагаемые документы Пульт управления распашными воротами ВР1..ВР3. Общий вид |
| Разработан: | Учреждение ИГ-548/7 |
| Утверждён: | 27.11.1986 МВД СССР (USSR Ministry of Internal Affairs 172-86) |































































