Скачать Типовой проект 901-3-145 Альбом 3. Архитектурно-строительная, технологическая, санитарно-техническая, электротехническая части блока служебных помещений с насосной станцией II подъемаДата актуализации: 01.01.2021
|
| Обозначение: | Типовой проект 901-3-145 |
| Обозначение англ: | 901-3-145 |
| Статус: | не определен законодательством |
| Название рус.: | Альбом 3. Архитектурно-строительная, технологическая, санитарно-техническая, электротехническая части блока служебных помещений с насосной станцией II подъема |
| Дата добавления в базу: | 01.09.2013 |
| Дата актуализации: | 01.01.2021 |
| Дата введения: | 12.12.1980 |
| Дата окончания срока действия: | 30.06.2003 |
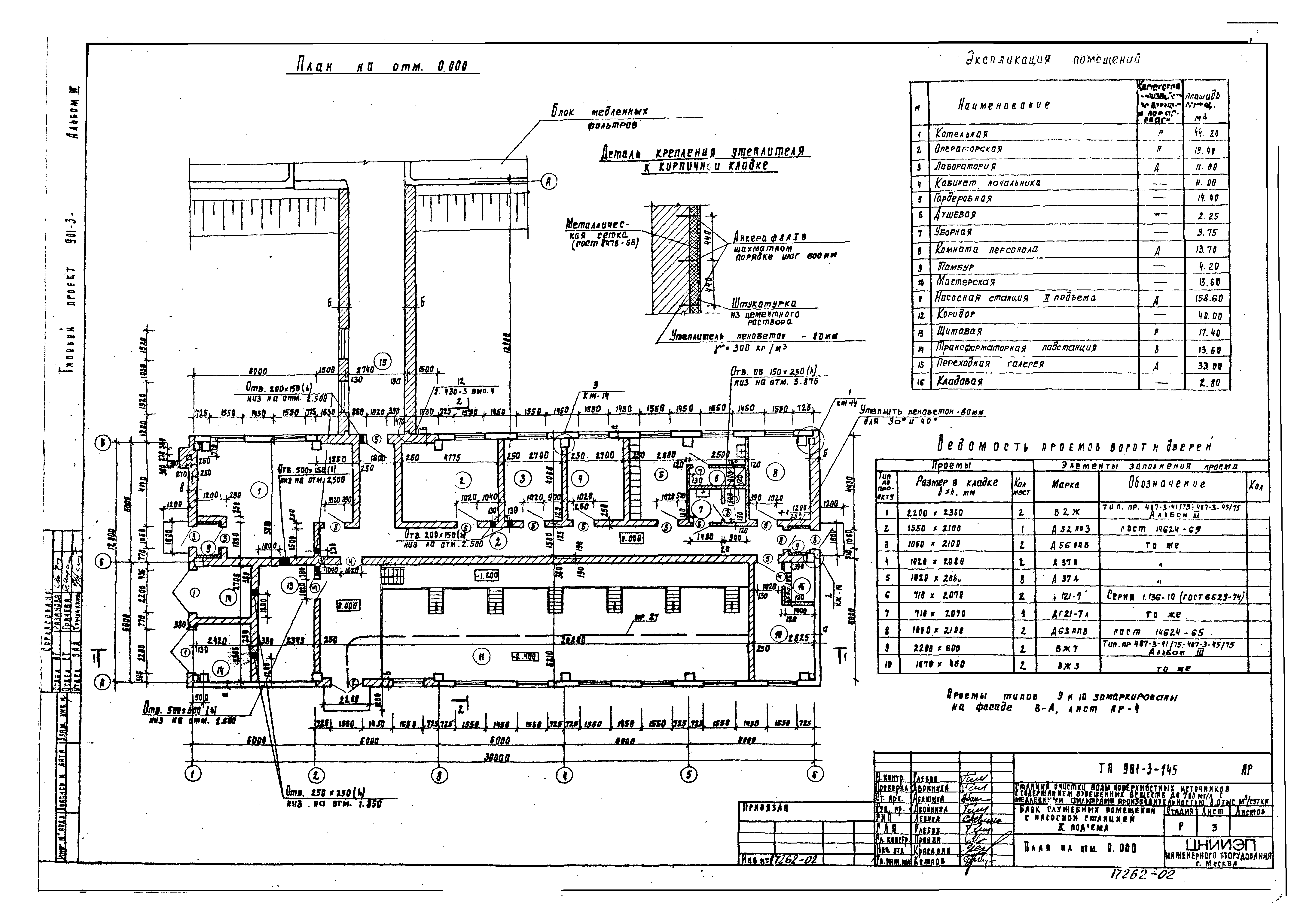
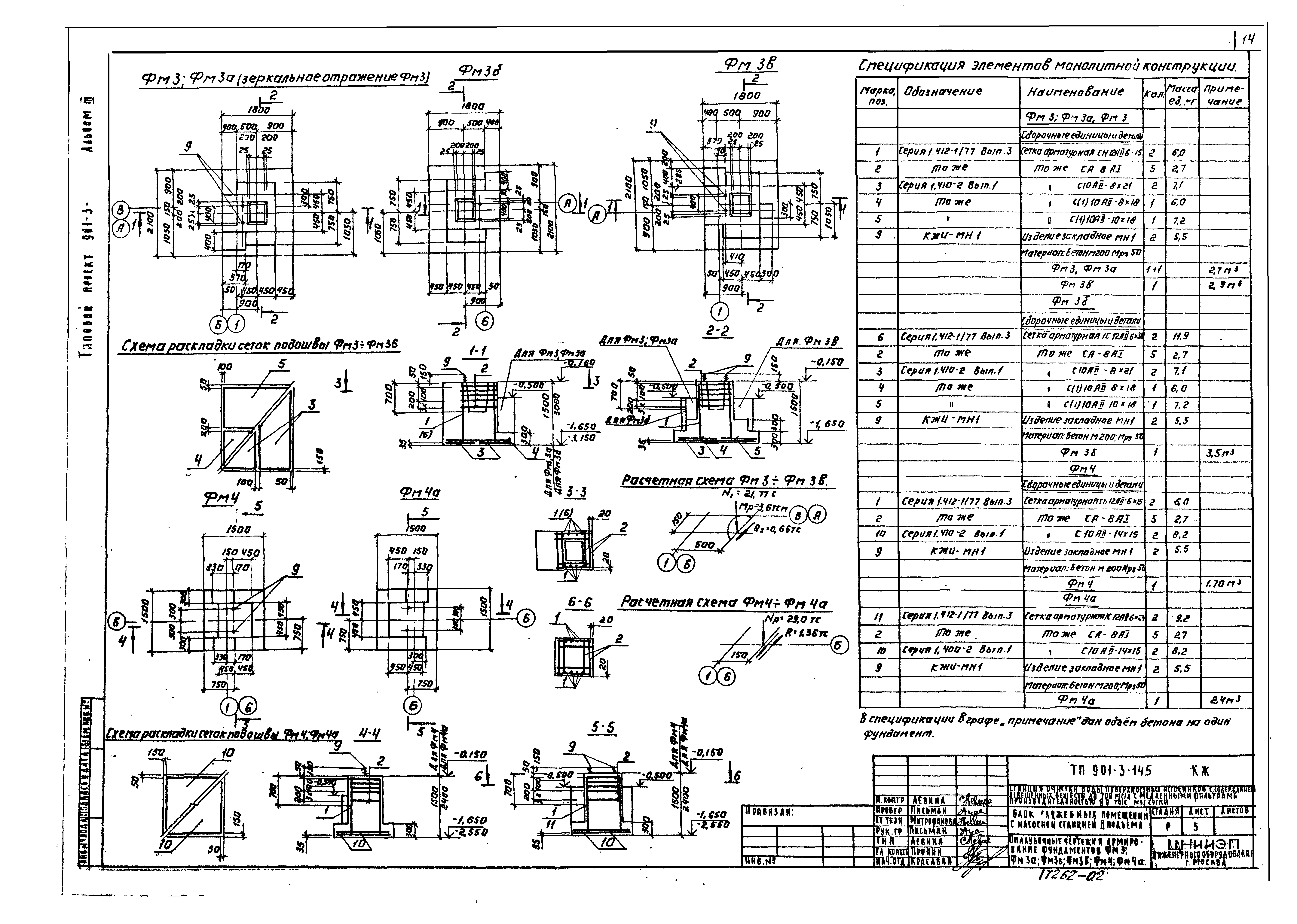
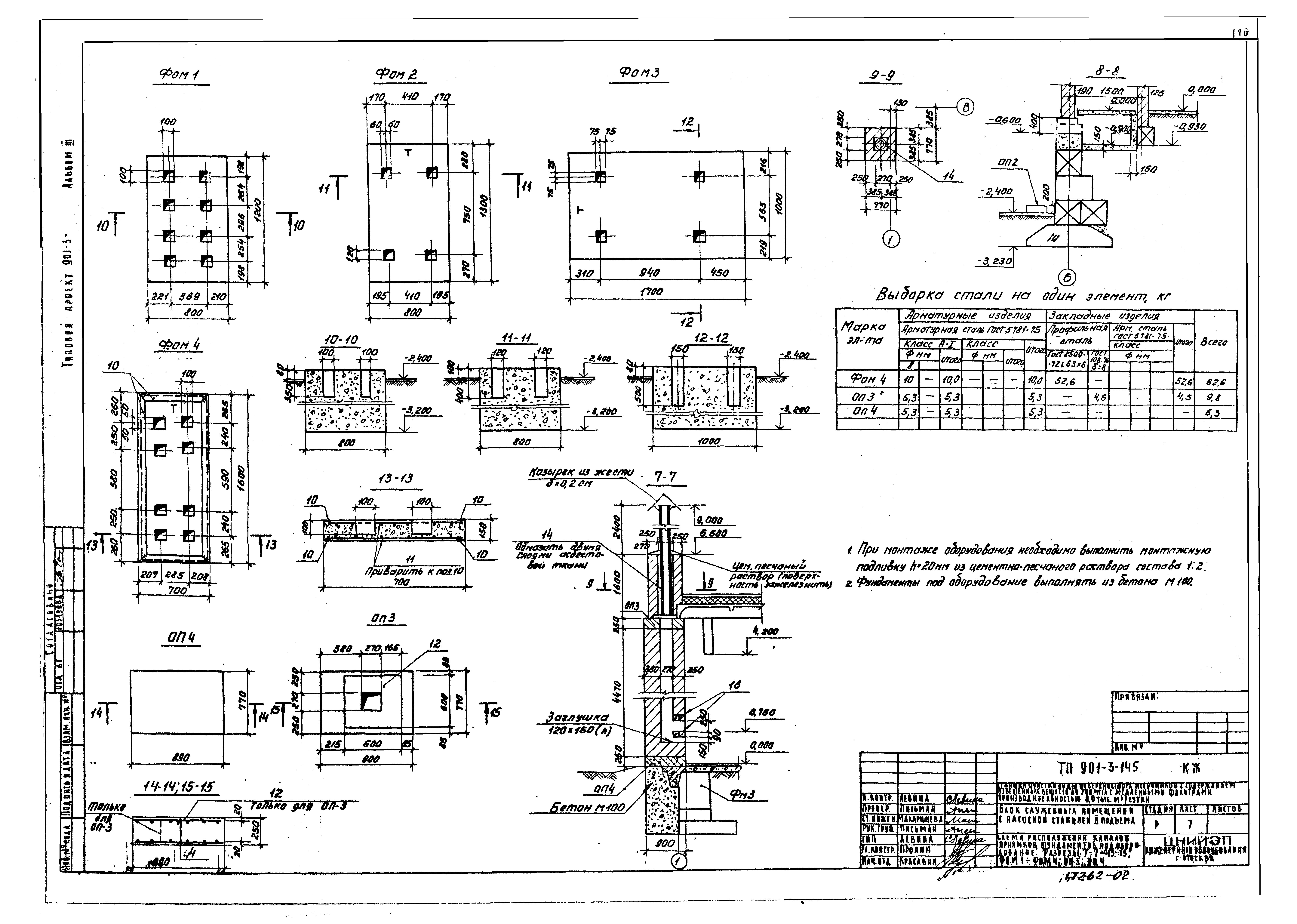
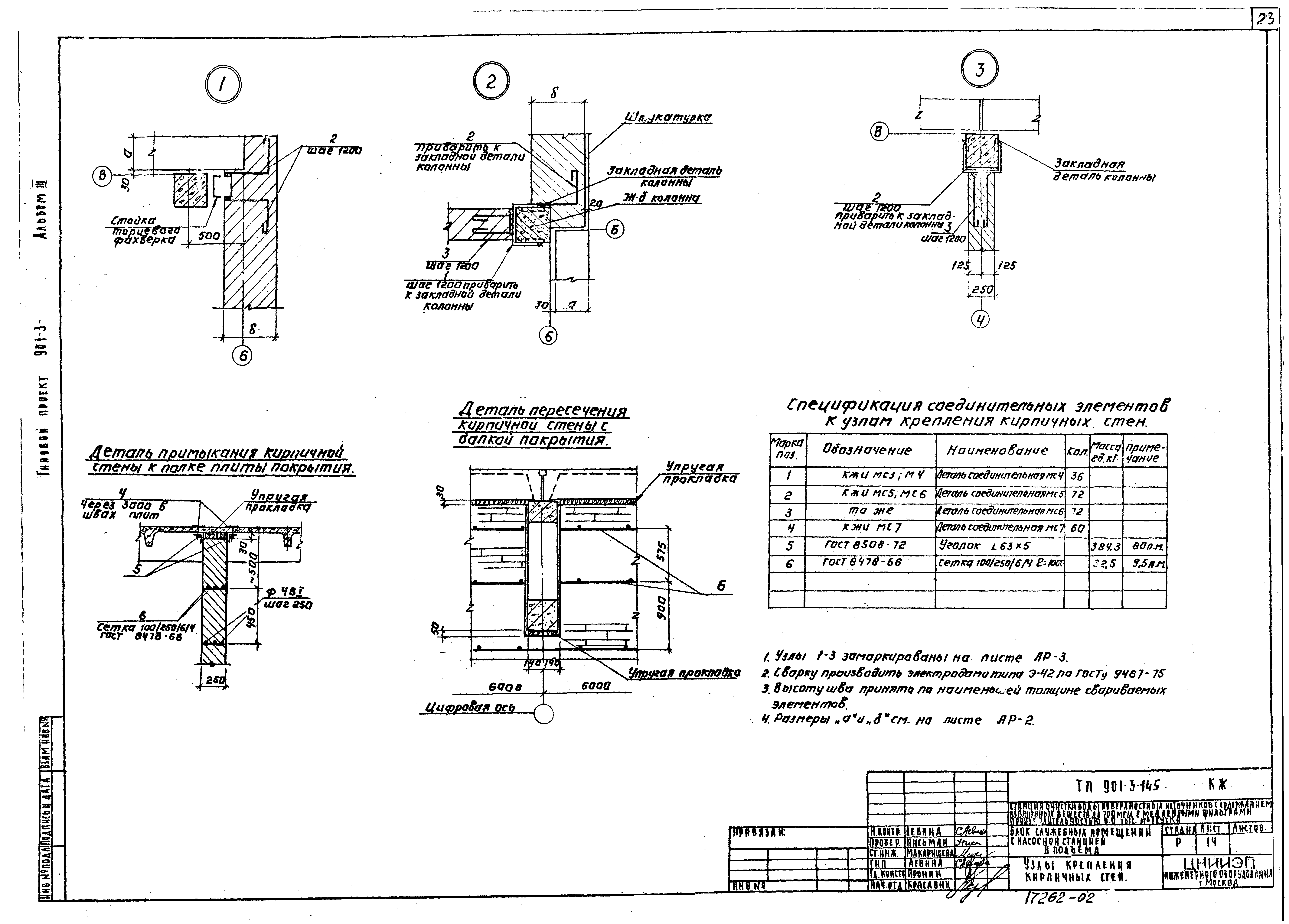
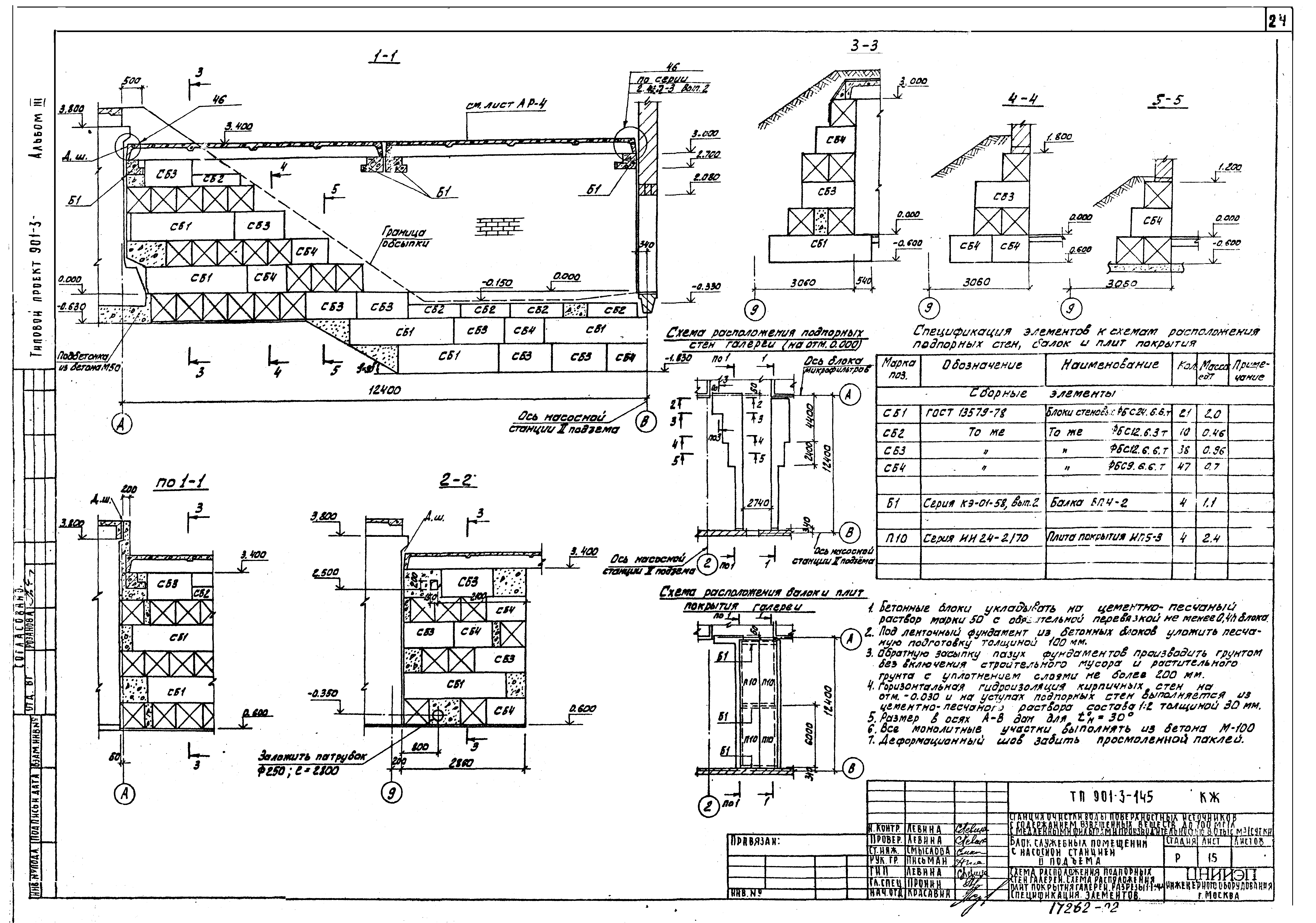
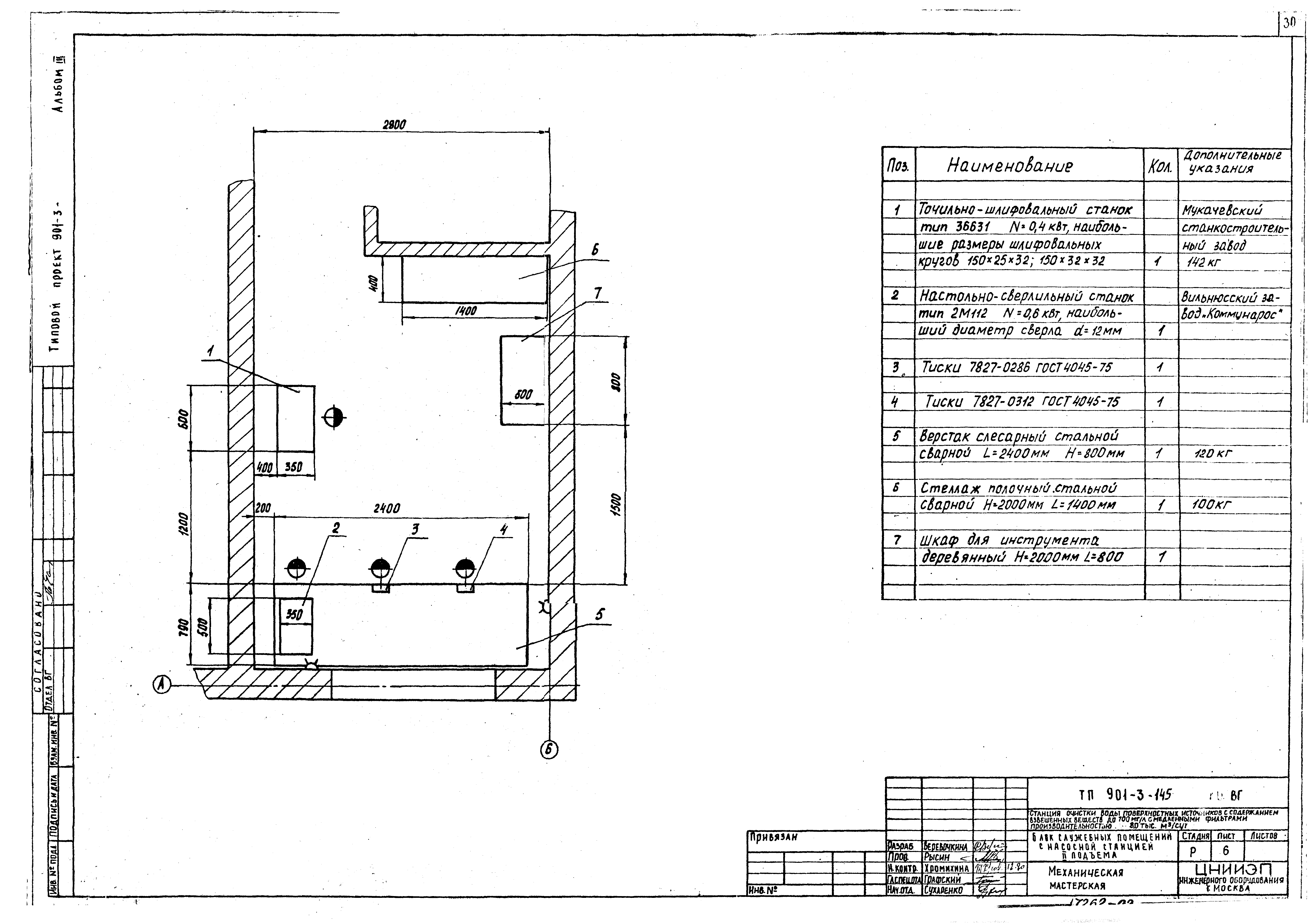
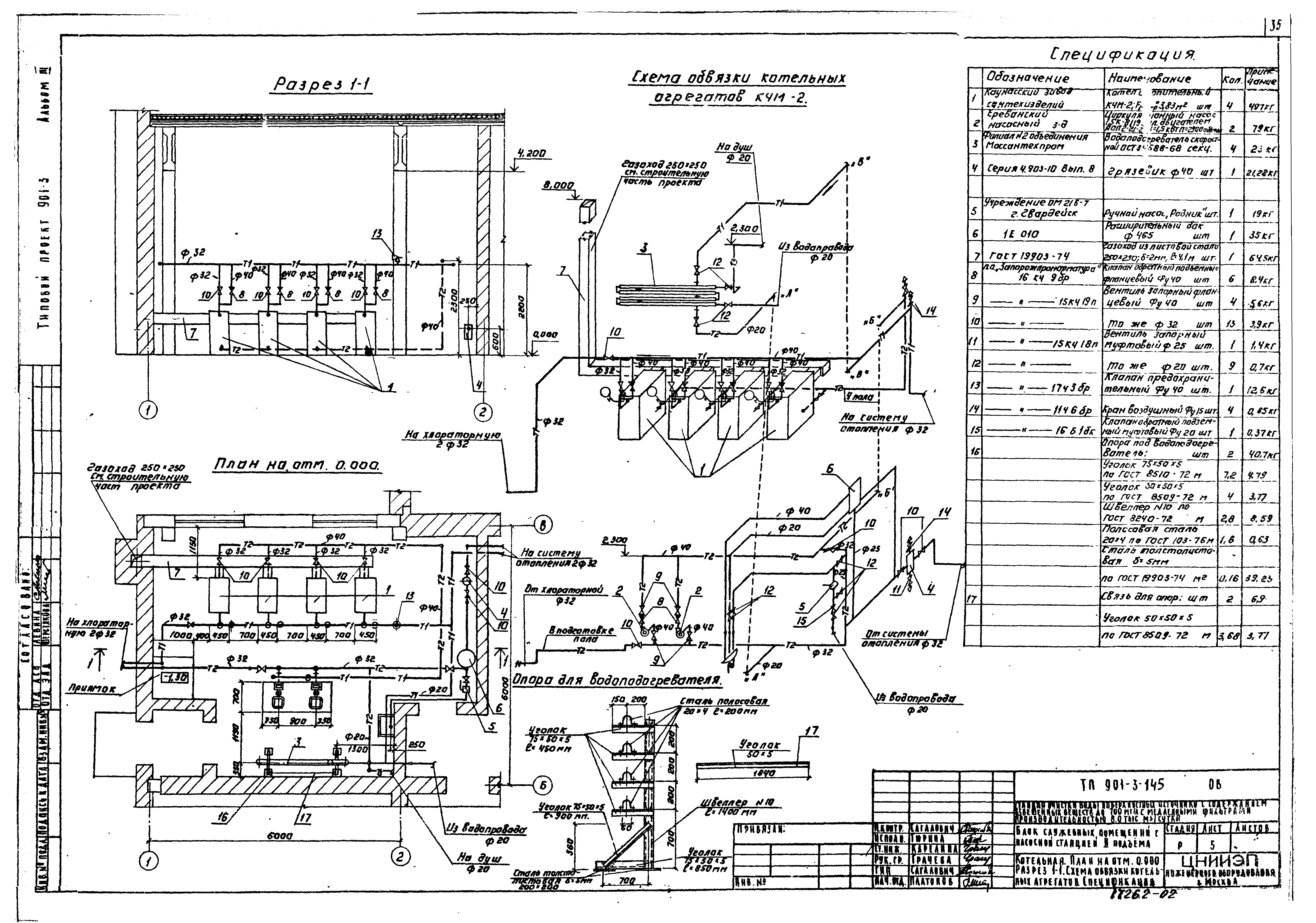
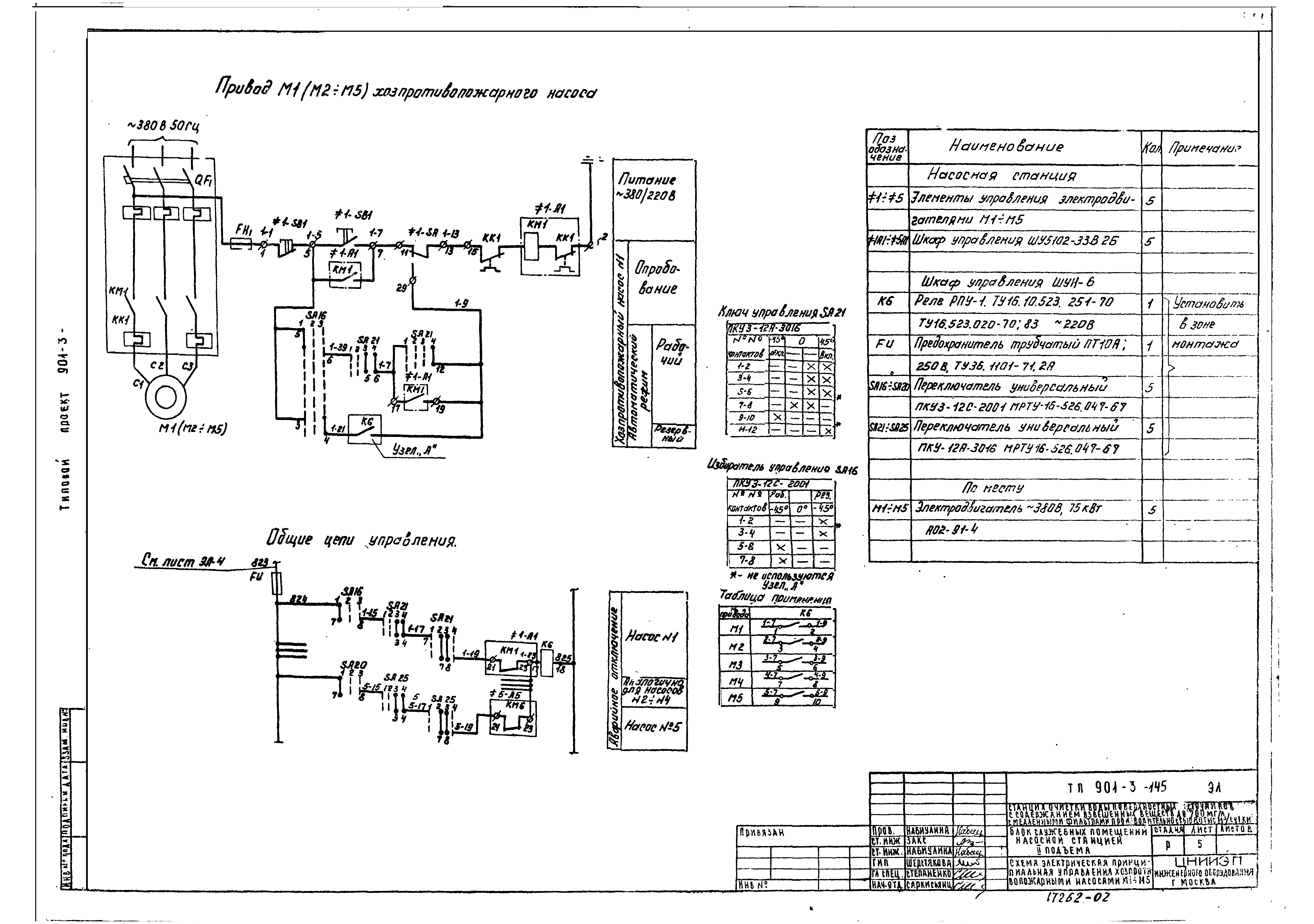
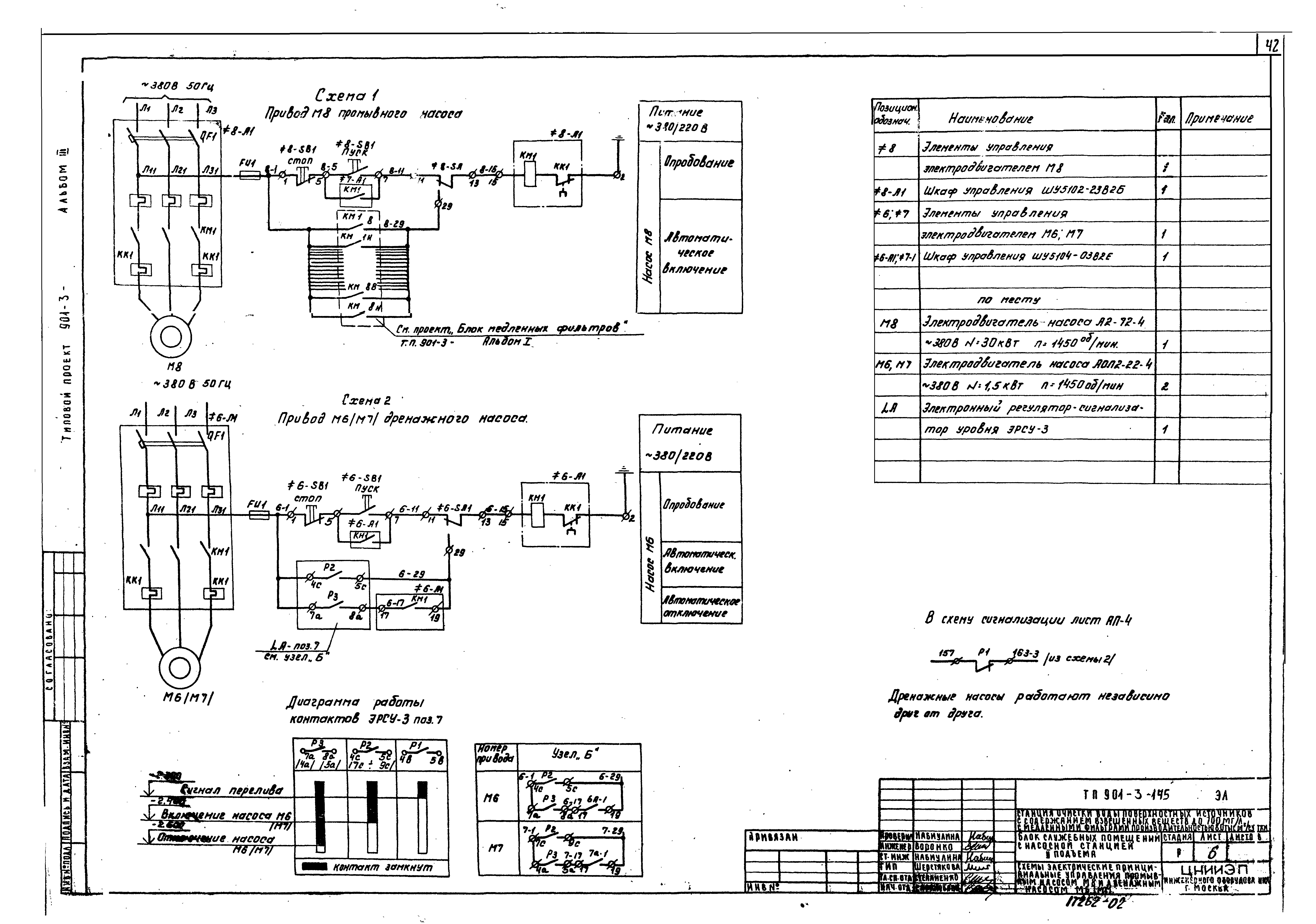
| Оглавление: | Содержание альбома Архитектурно-строительная часть АР-1. Пояснительная записка АР-2. Общие данные АР-3. План на отм. 0,000 АР-4. Фасады 1-6, 6-1, А-В, В-А и разрезы 1-1, 2-2 АР-5. Планы кровли, полов, перемычек и экспликация полов АР-6. Ведомость перемычек и отделки помещений КЖ-1. Общие данные КЖ-2. Схемы расположения фундаментов и фундаментных балок КЖ-3. Схемы расположения фундаментов и фундаментных балок. Разрезы 1-1…9-9 КЖ-4. Опалубочные чертежи и армирование фундаментов ФМ1, ФМ1а, ФМ1б, ФМ2, ФМ2а КЖ-5. Опалубочные чертежи и армирование фундаментов ФМ3, ФМ3а, ФМ3б, ФМ3в, ФМ4, ФМ4а КЖ-6. Схемы расположения каналов, приямков, фундаментов под оборудование и опор. Разрезы 1-1…6-6 КЖ-7. Схемы расположения каналов, приямков, фундаментов под оборудование и опор. Разрезы 7-7…16-16. Фом1…Фом4, ОП3, ОП4 КЖ-8. Схемы расположения колонн, балок и плит покрытия. Спецификация элементов КЖ-9. Схемы расположения стеновых панелей по осям А, Б, В. Спецификация элементов КЖ-10. Схема расположения стальных стоек и насадок торцевого фахверка по оси Б. Фрагменты 1…9. Спецификации КЖ-11. План на отм. 0,800 и 0,000. Разрезы 1-1…5-5. Спецификация элементов КЖ-12. Бм1, Бм2, Пм1. Разрезы 1-1…3-3. Выборка стали КЖ-13. Схема расположения балок монорельса. Схема расположения балок металлической площадки. Техническая спецификация стали. КЖ-14. Узлы крепления кирпичных стен КЖ-15. Схема расположения подпорных стен галереи. Схема расположения плит покрытия галереи. Разрезы 1-1…4-4. Спецификация элементов Технологическая часть ВГ-1. Общие данные (лист 1) ВГ-2. Общие данные (лист 2) ВГ-3. План ВГ-4. Разрез 1-1, 2-2. Ведомость материалов. Экспликация оборудования ВГ-5. Внутренний водопровод и канализация. План на отм. 0,000. Схемы систем В1, В3, К1. Спецификация мебели и основного лабораторного оборудования. КОВГ-6. Механическая мастерская Отопление и вентиляция ОВ-1. Общие данные (начало) ОВ-2. Общие данные (окончание) ОВ-3. План на отм. 0,000 ОВ-4. Схема системы отопления. Схемы систем вентиляции ВЕ1…5 ОВ-5. Котельная. План на отм. 0,000. Разрез 1-1. Схема обвязки котельных агрегатов. Спецификация ОВ-6. Звено прямого участка шовного асбестоцементного воздуховода Электротехническая часть ЭЛ-1. Общие данные ЭЛ-2. Ведомость ЭЛ-4. Схема электрическая принципиальная питающей сети ~380/220 В ЭЛ-5. Схема электрическая принципиальная управления хозпротивопожарными насосами М1…М5 ЭЛ-6. Схемы электрические принципиальные управления промывным насосом М8 и дренажным насосом М6 (М7) ЭЛ-7. Шкаф управления ШУН-6 хозпротивопожарными насосами М1…М5. Схема электрическая принципиальная и расположения ЭЛ-8. Схема подключения электрооборудования ЭЛ-9. Кабельный журнал ЭЛ-11. Размещение электрооборудования и прокладка кабеля. План на отм. -2,400, -1,200 и 0,000 ЭЛ-12. Спецификация на электрооборудование. Разрезы ЭЛ-13. Трансформаторная подстанция. Однолинейная схема. План и разрезы. Спецификация ЭЛ-14. Трансформаторная подстанция. Выводы Н.Н. В камере трансформатора. Конструкция ЭЛ-15. Трансформаторная подстанция. Установка разъединителя РВ3-10/400 и трех предохранителей ПК2-…. ЭЛ-16. Трансформаторная подстанция. Конструкция под разъединитель РВ3-10/400 и трех предохранителей ПК2-…. ЭЛ-17. Трансформаторная подстанция. Заземление. План. Узлы и детали ЭЛ-18. Шкаф счетчиков. Общий вид и схема соединений ЭЛ-19. Опросный лист на распределительные щиты 380/220 В из панелей серии ЩО-70 ЭЛ-20. Опросный лист и панельная спецификация на аппаратуру шкафов ШР 1107-69. ШУН-6 ЭЛ-21. Электрическое освещение. План на отм. 0,000 Связь и сигнализация СС-1. Общие данные. План на отм. 0,000 с нанесением сетей связи Автоматизация и КИП АП-1. Общие данные АП-2. Ведомость на приборы и средства автоматизации АП-3. Схема функциональная, подключения приборов и устройств технологического контроля АП-4. Схема электрическая принципиальная сигнализации |
| Разработан: | ЦНИИЭП |
| Утверждён: | 18.08.1976 Госгражданстрой (Gosgrazhdanstroy 186) |






























































