Скачать Типовой проект 704-1-171.84 Альбом I. Конструкции металлические резервуараДата актуализации: 01.01.2021
|
| Обозначение: | Типовой проект 704-1-171.84 |
| Обозначение англ: | 704-1-171.84 |
| Статус: | действует |
| Название рус.: | Альбом I. Конструкции металлические резервуара |
| Дата добавления в базу: | 01.09.2013 |
| Дата актуализации: | 01.01.2021 |
| Дата введения: | 23.05.1983 |
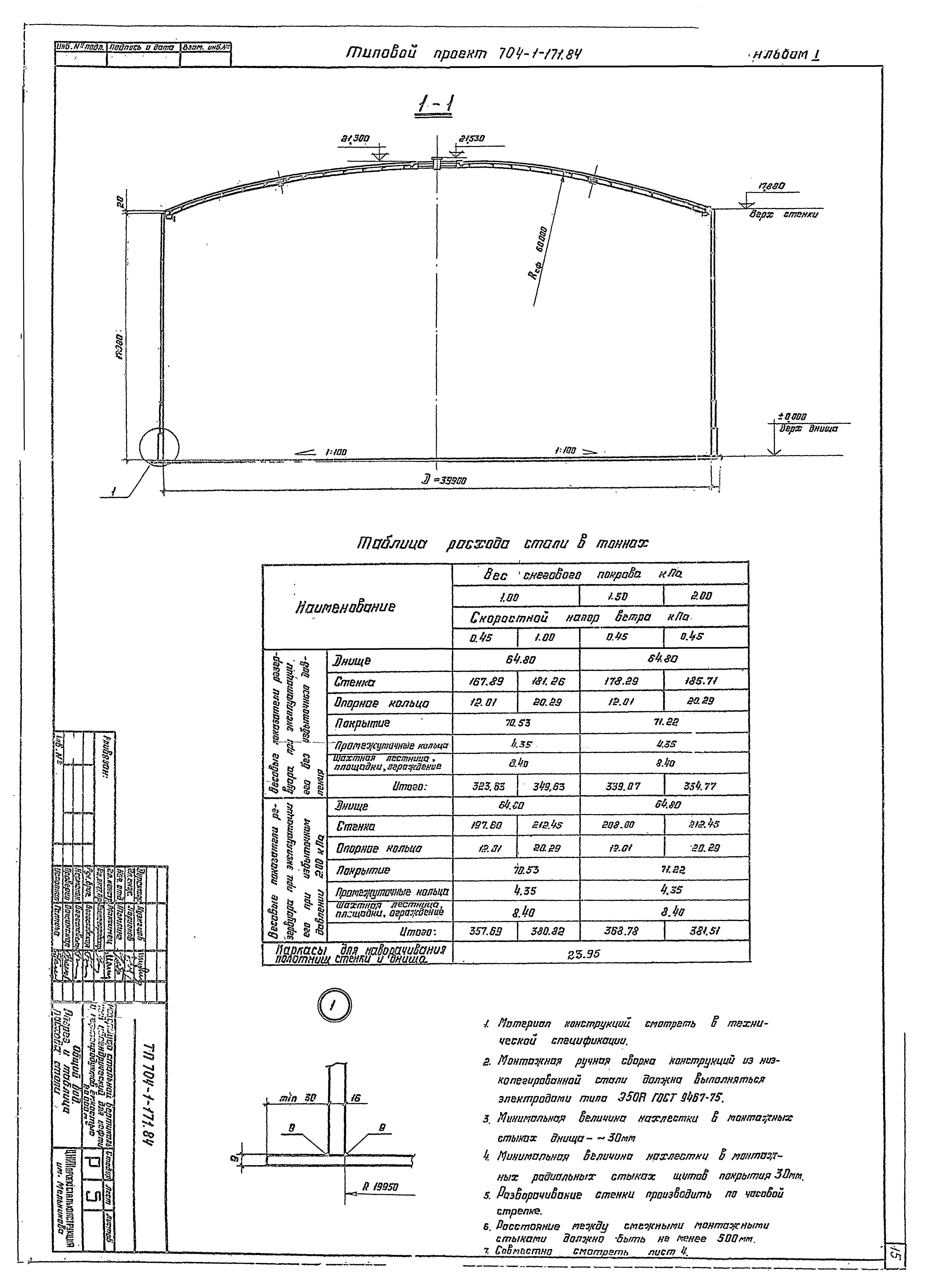
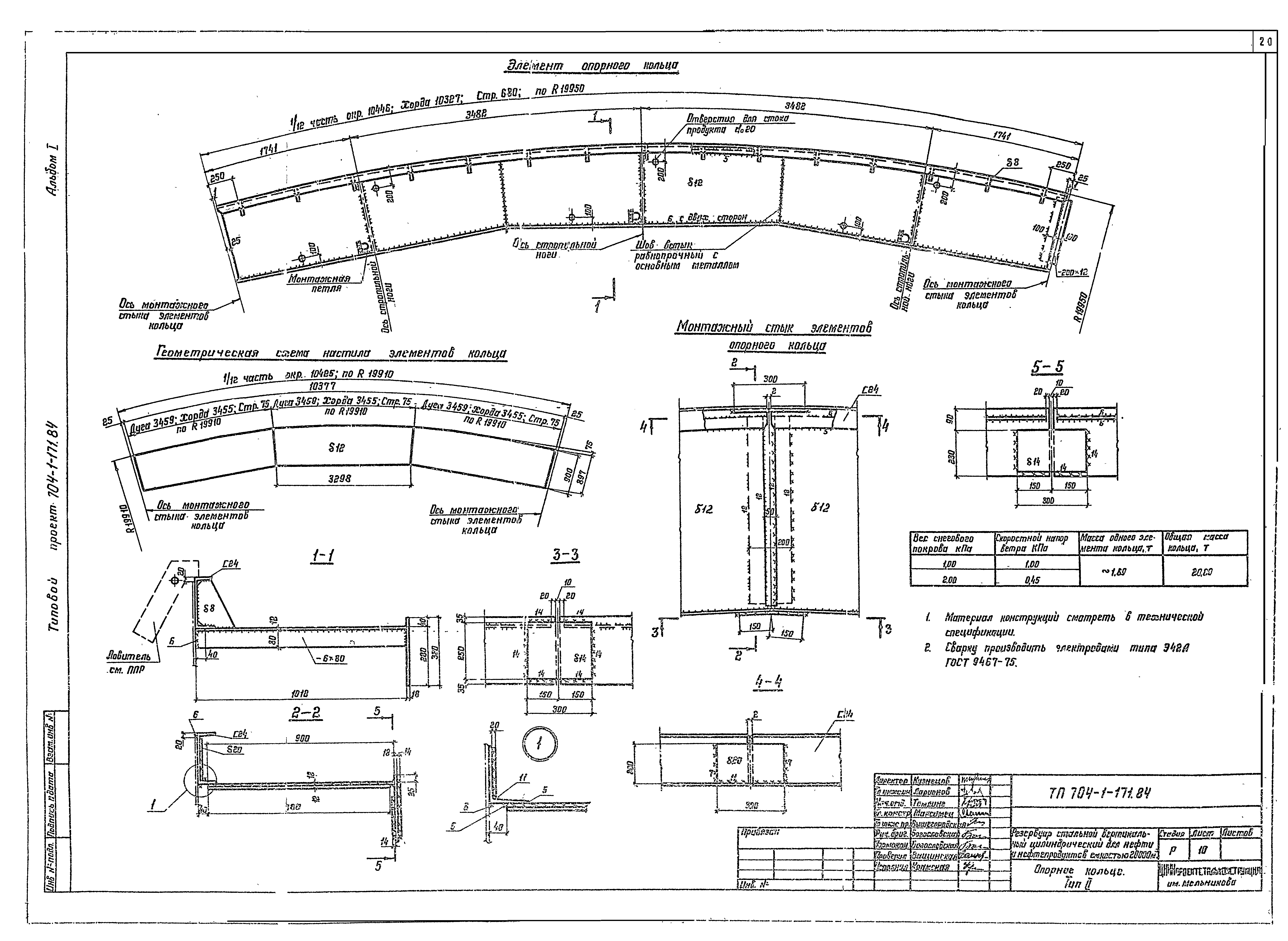
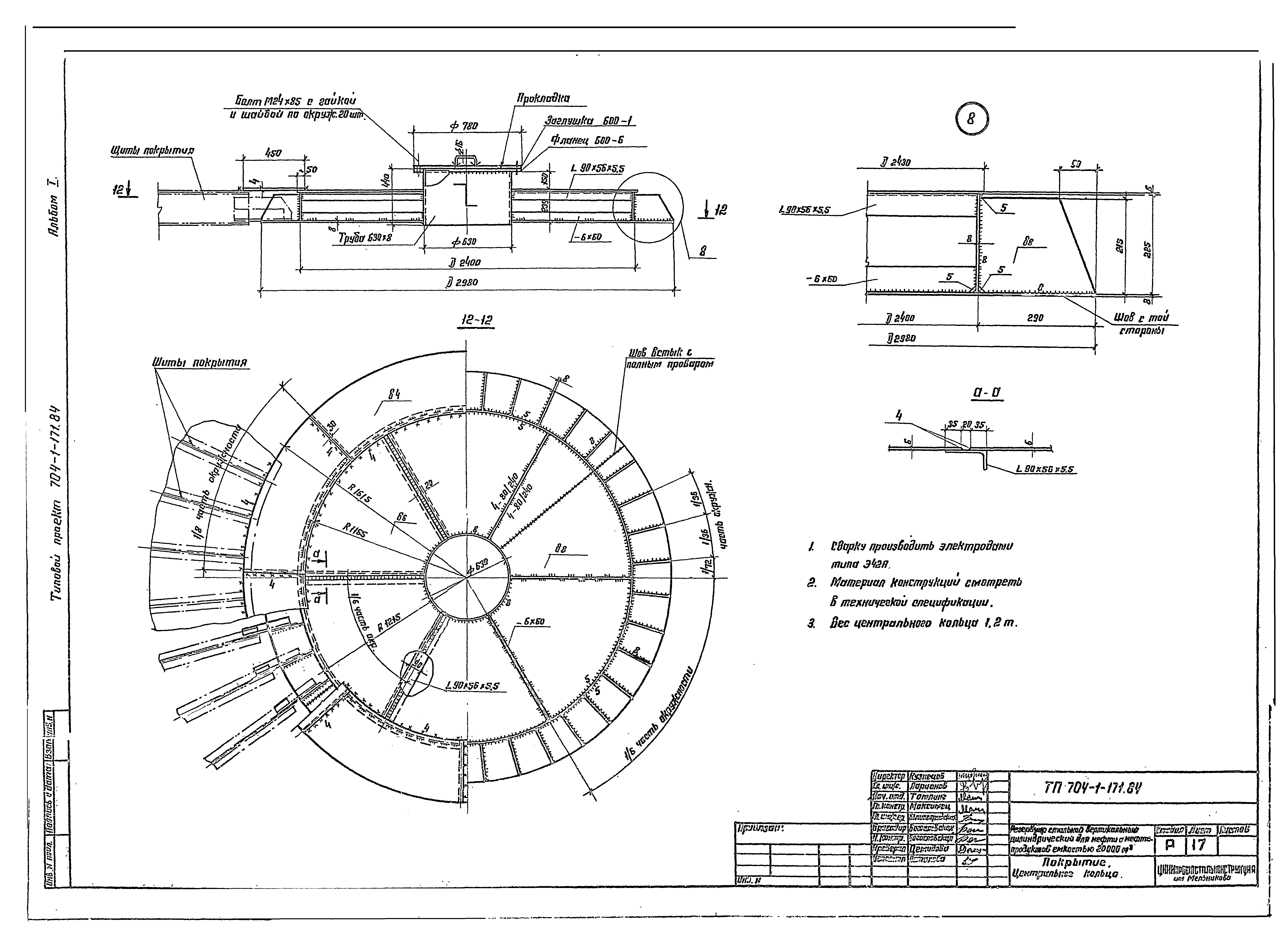
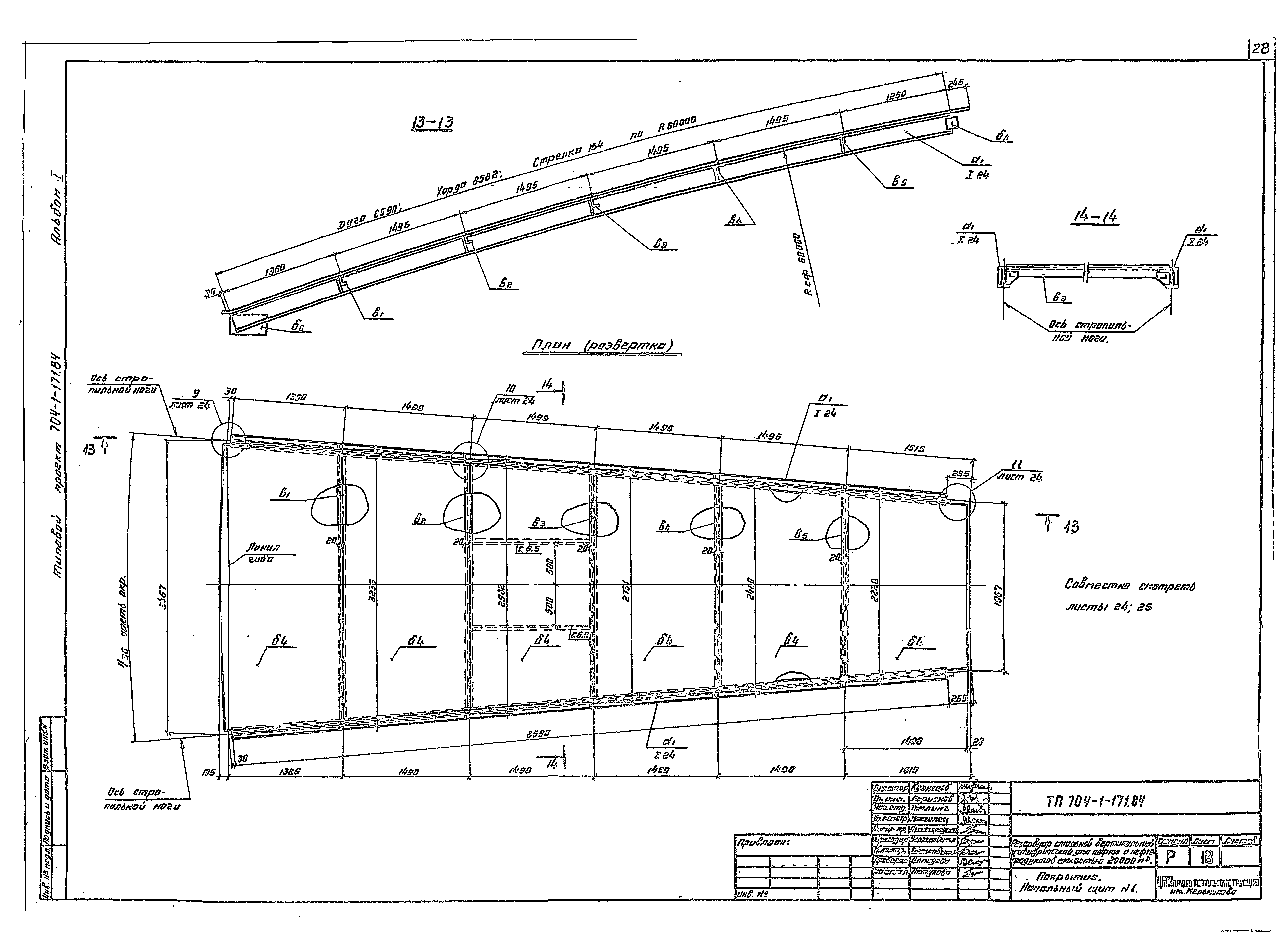
| Оглавление: | Общие данные (начало) Общие данные (окончание) Техническая спецификация стали. Снег 1,00 кПа, ветер 0,45 кПа. Избыточное давление 0 Техническая спецификация стали. Снег 1,00 кПа, ветер 1,00 кПа. Избыточное давление 0 Техническая спецификация стали. Снег 1,50 кПа, ветер 0,45 кПа. Избыточное давление 0 Техническая спецификация стали. Снег 2,00 кПа, ветер 0,45 кПа. Избыточное давление 0 Техническая спецификация стали. Снег 2,00 кПа, ветер 0,45 кПа Техническая спецификация стали. Площадки и ограждения на крыше Ведомость металлоконструкций по видам профилей. Снег 1,00 кПа, ветер 0,45 кПа. Избыточное давление 0 Общий вид. Фасад и план Общий вид. Разрез и таблица весовых показателей Стенка Днище. План и разрезы Днище. Раскрой листов и узлы Опорное кольцо. Тип 1 Опорное кольцо. Тип 2 Промежуточные кольца жесткости. Патрубок для зачистки Покрытие. Монтажная схема Покрытие. Монтажные узлы Покрытие. Укрупненный щит Покрытие. Геометрическая схема щитов Покрытие. Таблица сечений и расчетных усилий элементов щитов Покрытие. Центральное кольцо Покрытие. Начальный щит №1 Покрытие. Начальный щит №2 Покрытие. Промежуточный щит №3 Покрытие. Промежуточный щит №4 Покрытие. Замыкающий щит №5 Покрытие. Замыкающий щит №6 Покрытие. Узлы щитов Площадки и ограждения на крыше Люки-лазы в 1 поясе стенки Люк монтажный и патрубки на крыше Патрубок приемо-раздаточный Dу 600 Патрубок приемо-раздаточный Dу 700 Исходные данные для проектирования основания и фундаментов Патрубок приемо-раздаточный Dу 500 Патрубок приемо-раздаточный Dу 700 (для варианта с хлопушкой) |
| Разработан: | ЦНИИпроектстальконструкция |
| Утверждён: | 23.05.1983 Миннефтепром (Minnefteprom ) |












































