Скачать Типовой проект 704-1-171.84 Альбом II. Конструкции металлические понтонаДата актуализации: 01.01.2021
|
| Обозначение: | Типовой проект 704-1-171.84 |
| Обозначение англ: | 704-1-171.84 |
| Статус: | не действует |
| Название рус.: | Альбом II. Конструкции металлические понтона |
| Дата добавления в базу: | 01.09.2013 |
| Дата актуализации: | 01.01.2021 |
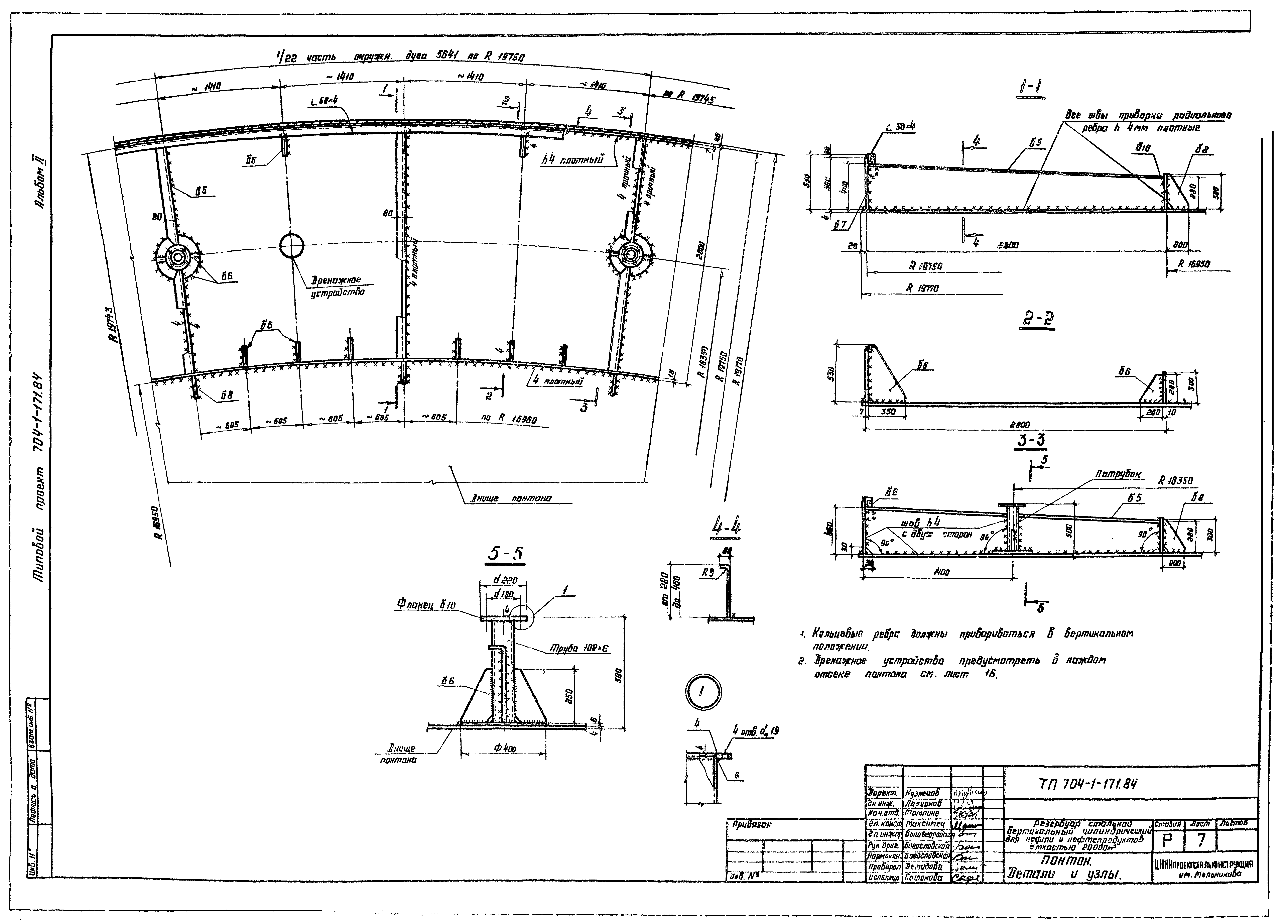
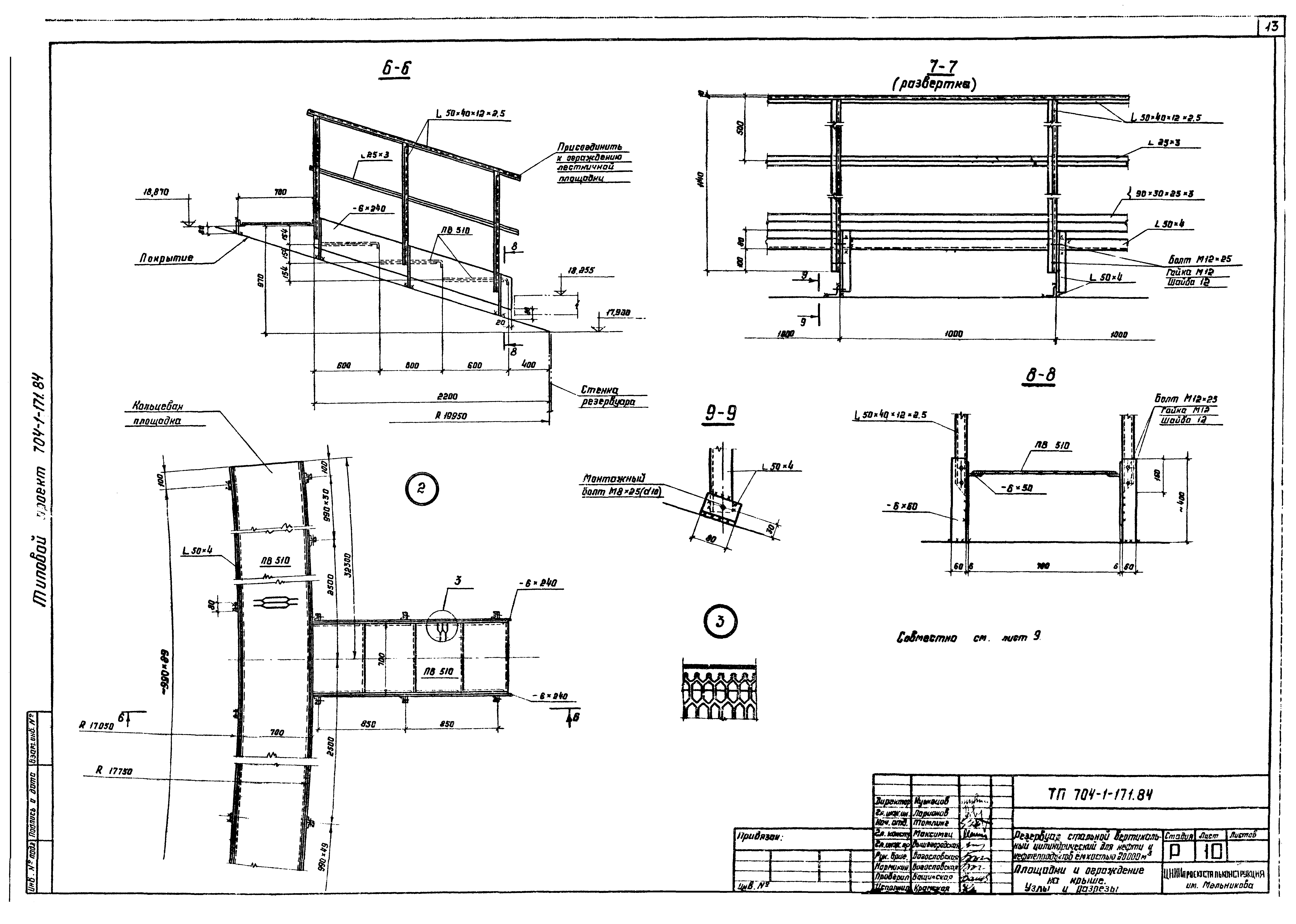
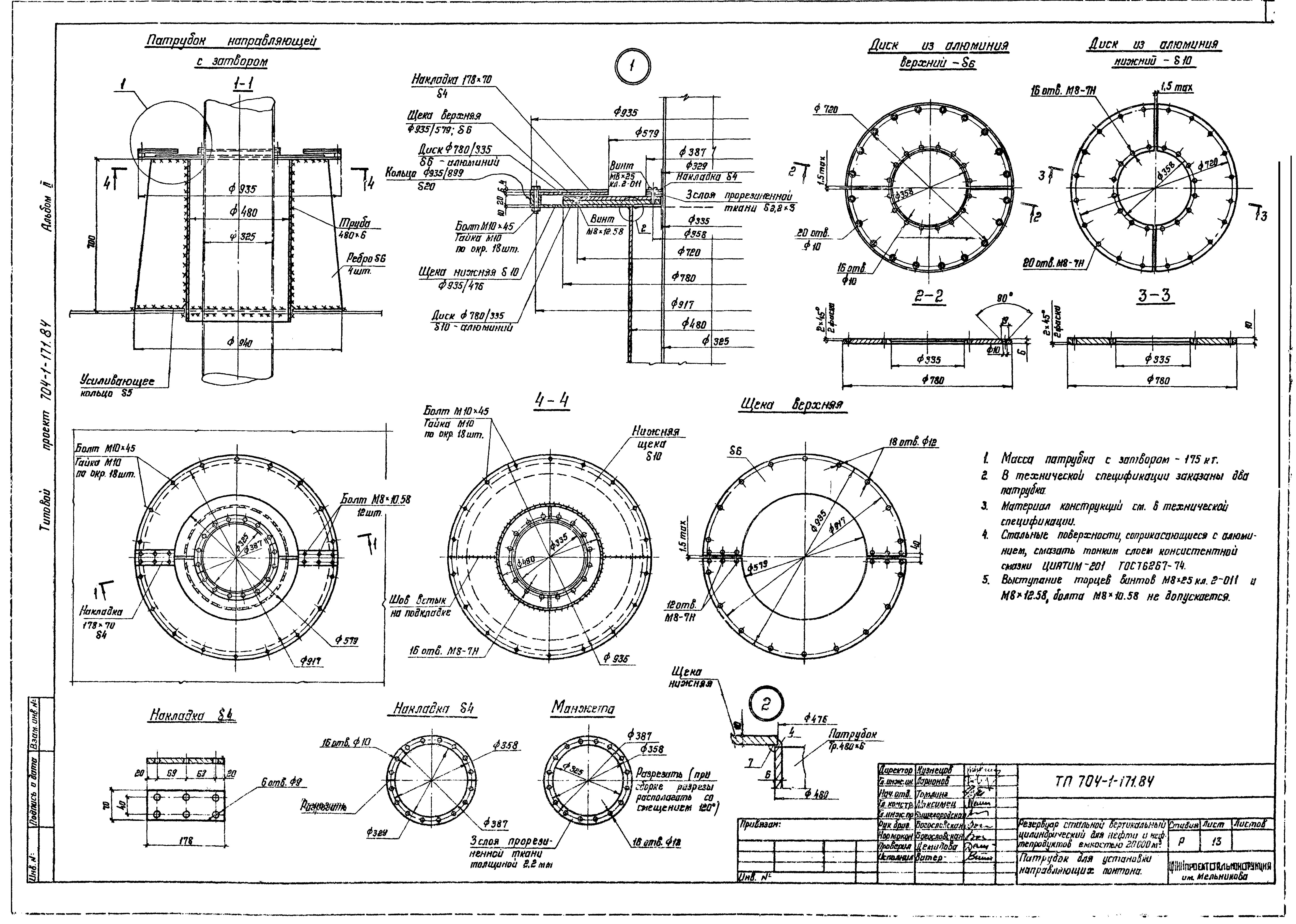
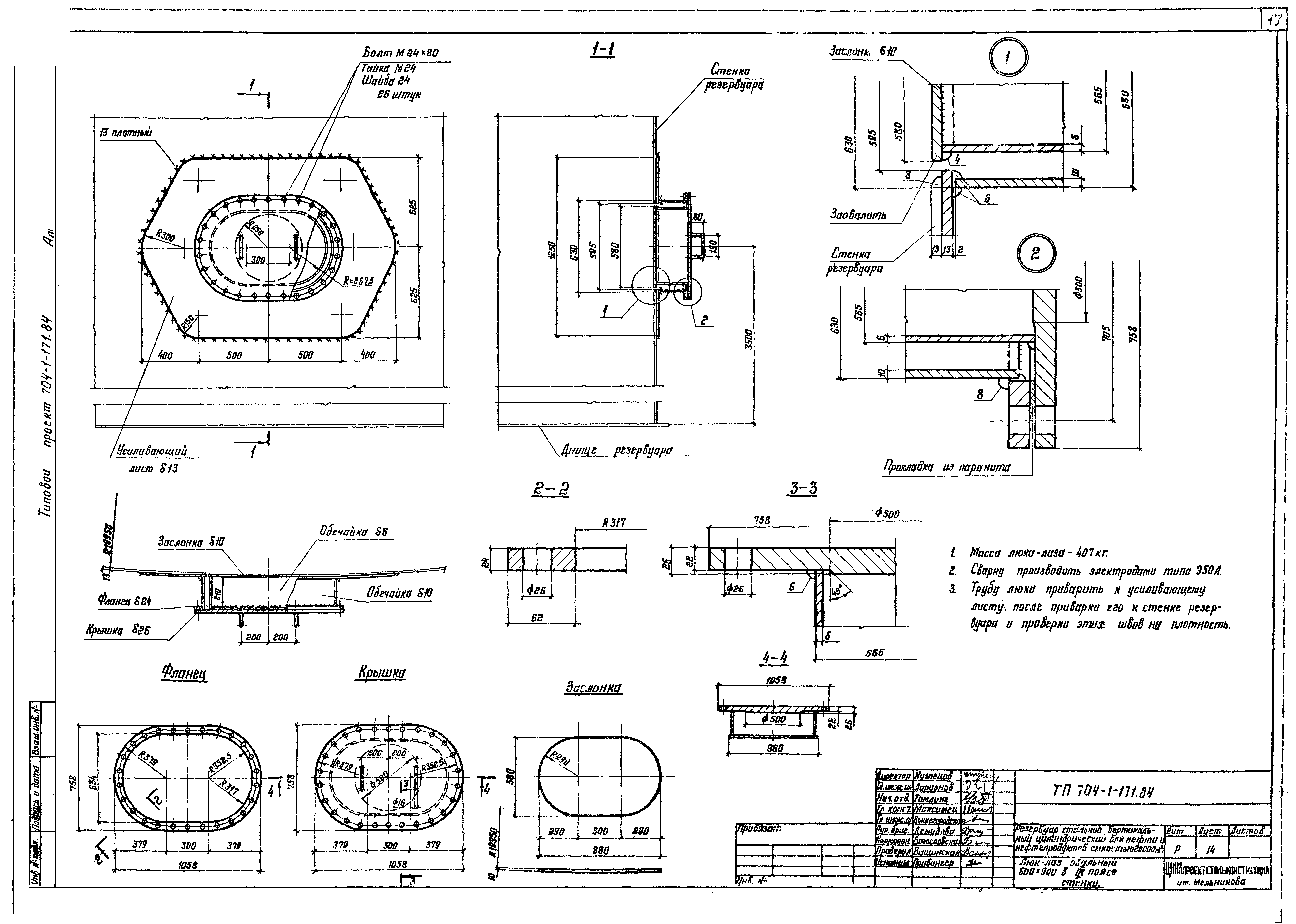
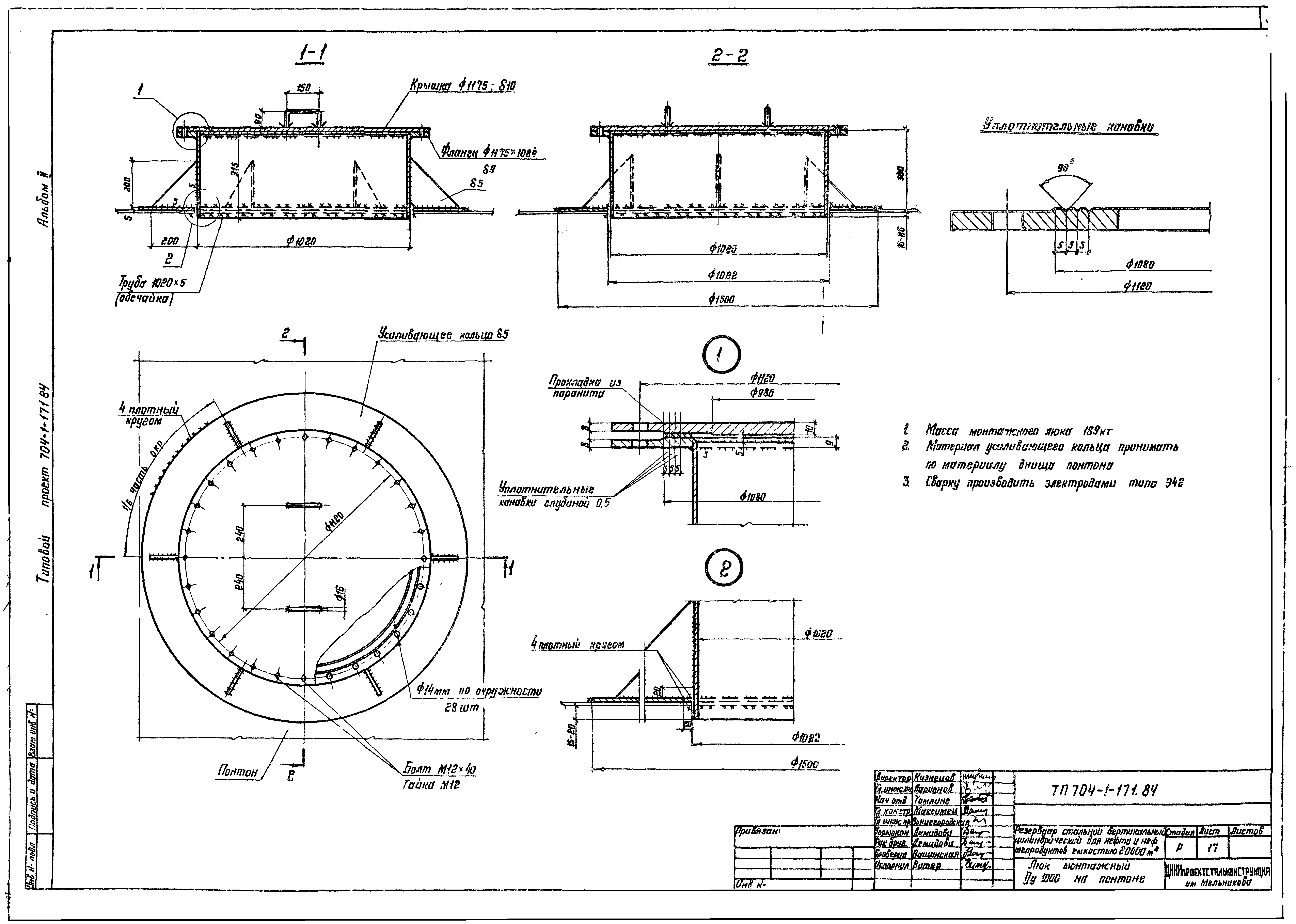
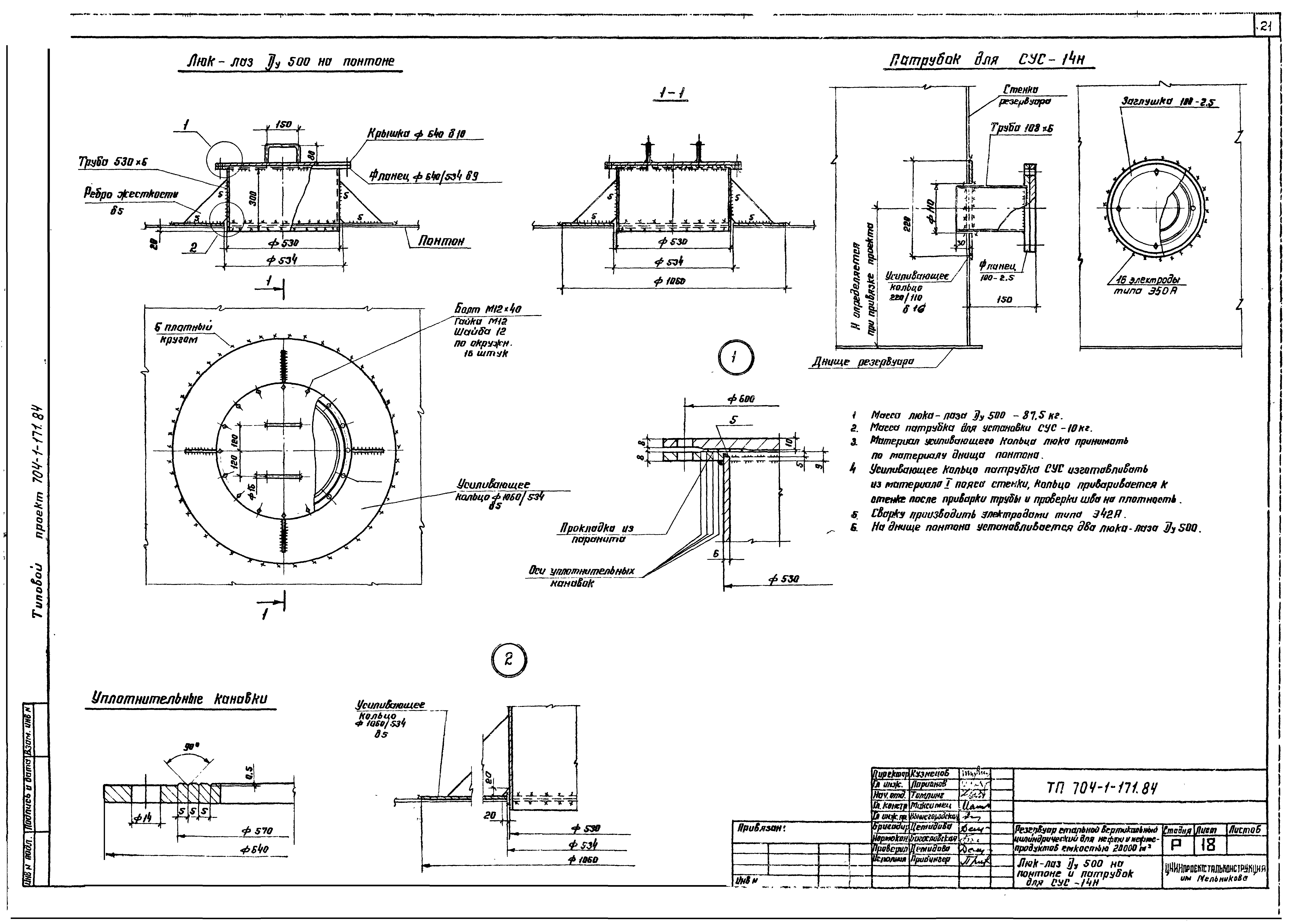
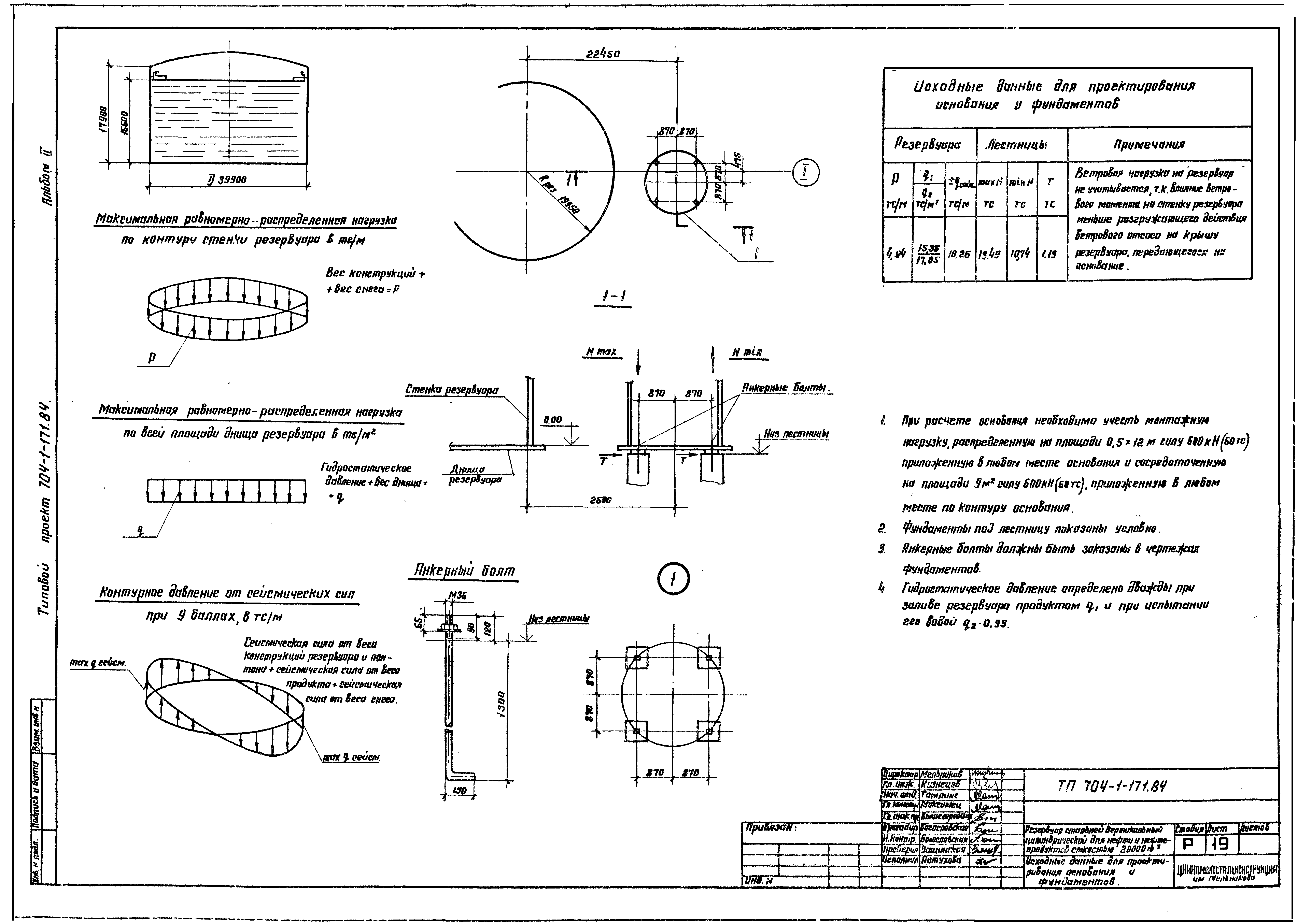
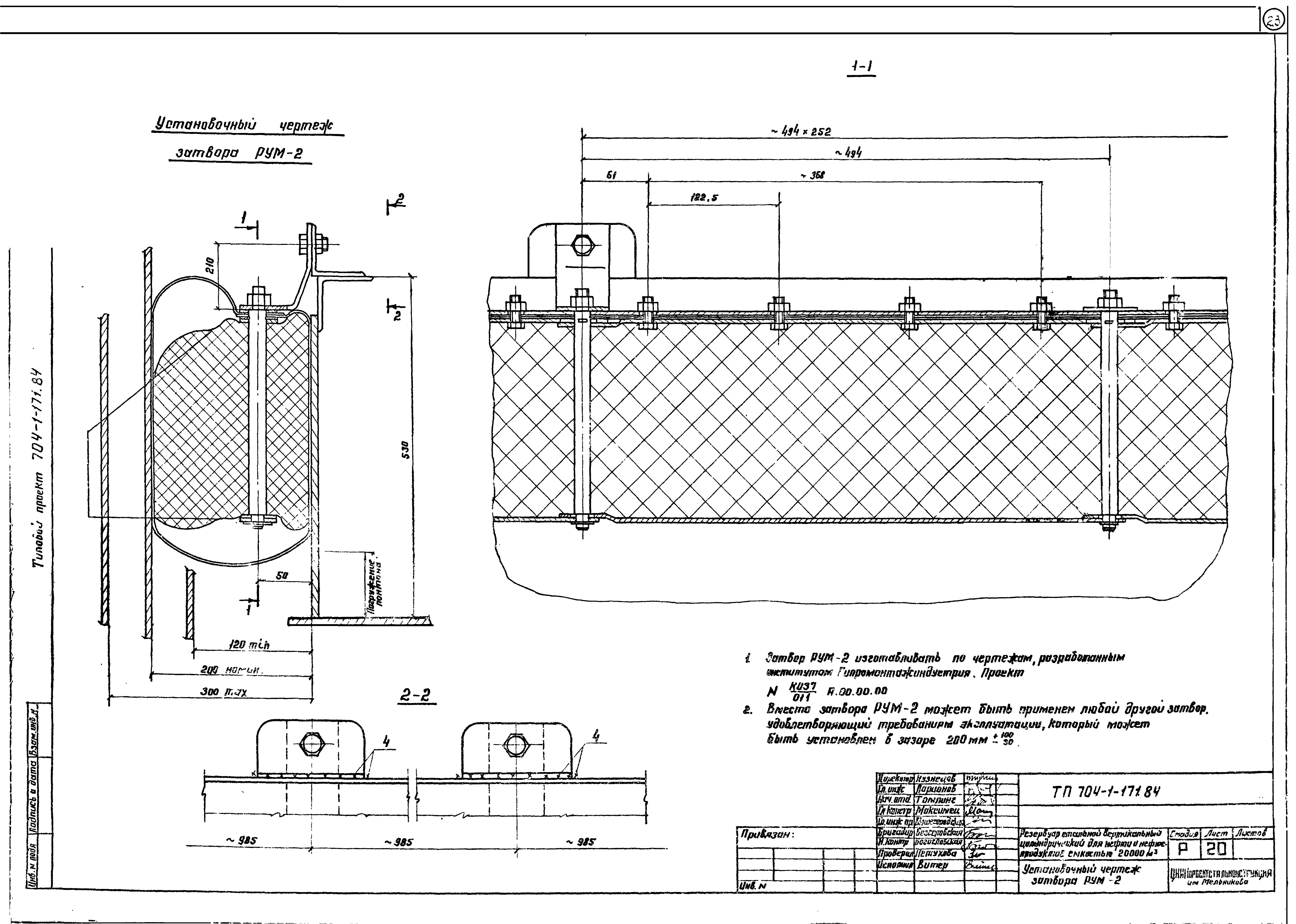
| Оглавление: | Общие данные Техническая спецификация стали Техническая спецификация стали. Площадки и ограждения на крыше Ведомость металлоконструкций по видам профилей Понтон. План и разрез Понтон. Расположение подкладных листов под опорные стойки понтона Понтон. Днище Понтон. Детали и узлы Опорные стойки понтона. Люк пробоотборника Площадки и ограждения на крыше. План Площадки и ограждения на крыше. Узлы и разрезы Площадка и стремянка у люка-лаза в III поясе стенки Направляющие понтона Патрубок для установки направляющих понтона Люк-лаз овальный 600 х 900 в III поясе стенки Люк-лаз Dу 500 в III поясе стенки Патрубок в понтоне для УДУ и дренажное устройство Люк монтажный Dу 1000 на понтон Люк-лаз Dу 500 на понтоне и патрубок для СУС-14Н Исходные данные для проектирования оснований и фундаментов Установочный чертеж затвора РУМ-2 |
| Разработан: | ЦНИИпроектстальконструкция |
| Утверждён: | 23.05.1983 Миннефтепром (Minnefteprom ) |
























