Скачать Типовой проект 704-1-171.84 Альбом V. Оборудование резервуара без понтона для нефти и нефтепродуктовДата актуализации: 01.01.2021
|
| Обозначение: | Типовой проект 704-1-171.84 |
| Обозначение англ: | 704-1-171.84 |
| Статус: | не действует |
| Название рус.: | Альбом V. Оборудование резервуара без понтона для нефти и нефтепродуктов |
| Дата добавления в базу: | 01.09.2013 |
| Дата актуализации: | 01.01.2021 |
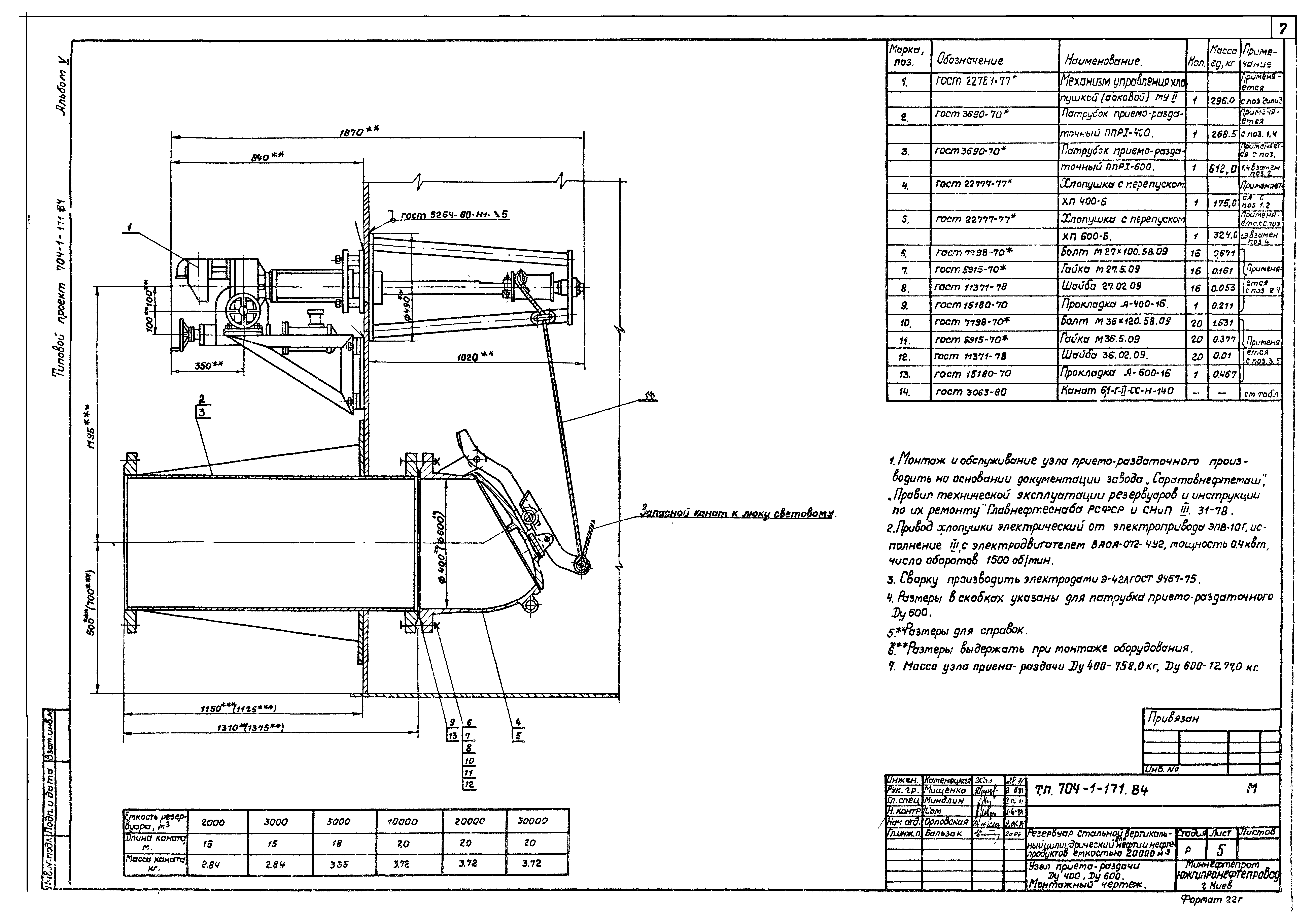
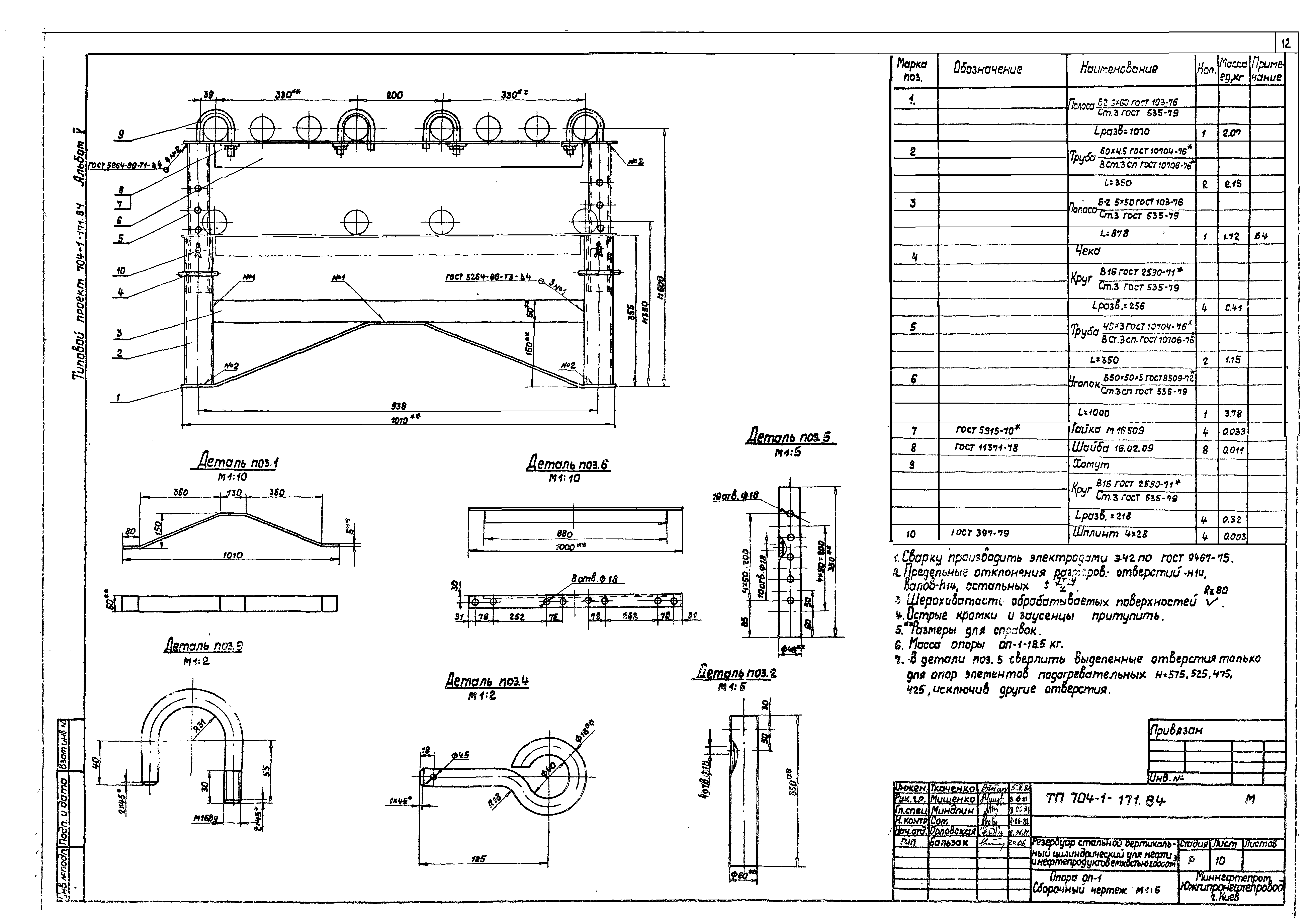
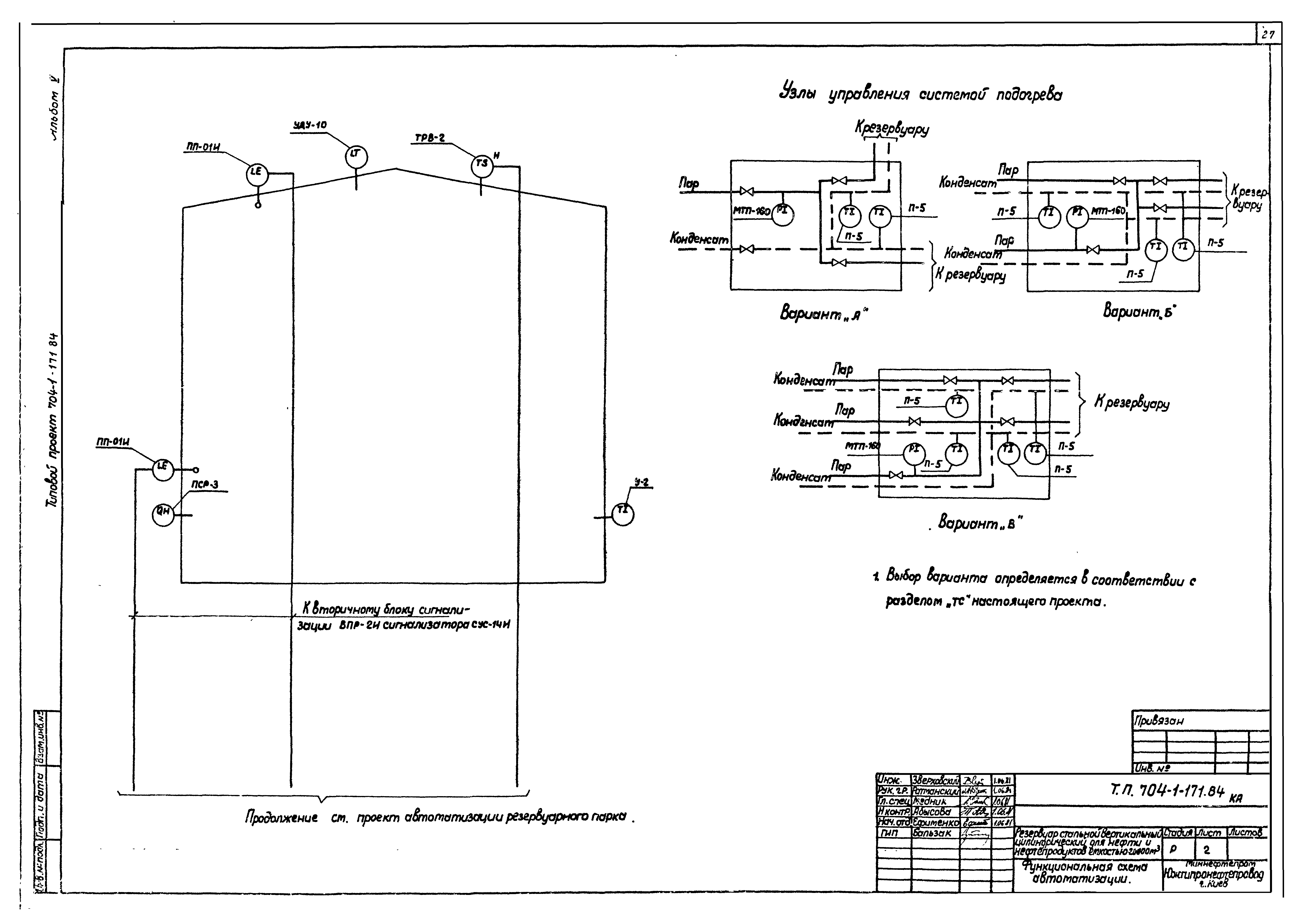
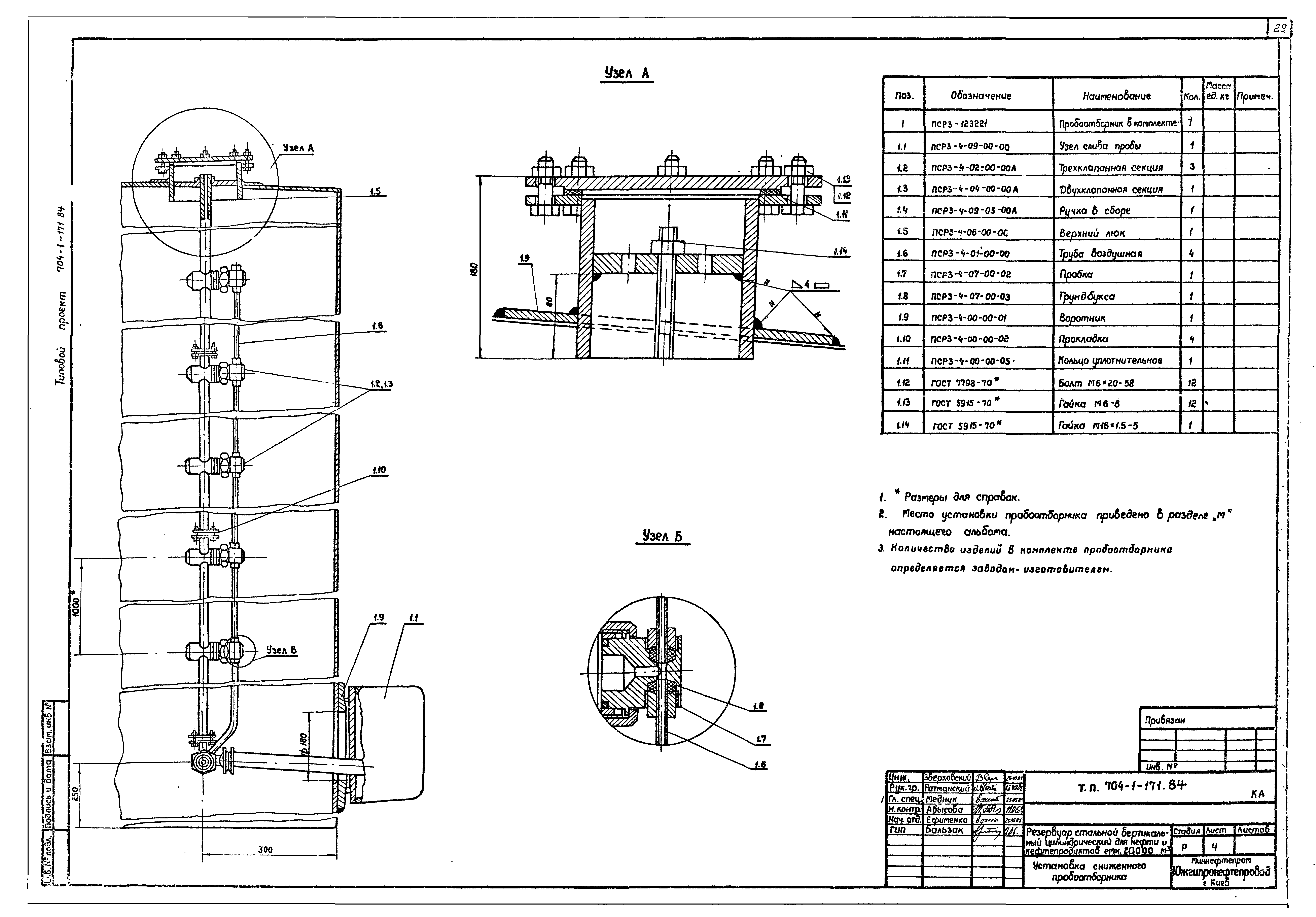
| Оглавление: | Содержание Механическое, технологическое оборудование Общие данные Оборудование резервуара. Монтажный чертеж Узел приема-раздачи Dу 400, Dу 600. Монтажный чертеж Узел приема-раздачи Dу 700. Монтажный чертеж Подогреватель секционный поверхностью нагрева F1 - 172 кв. м Подогреватель секционный поверхностью нагрева F1 - 217 кв. м Элемент подогревательный. Коллектор. Сборочный чертеж Опора ОП-1. Сборочный чертеж Опора ОП-2, С-2. Сборочный чертеж Стойка С-1, С-2. Сборочный чертеж Система размыва осадка. Монтажный чертеж Система размыва осадка. Узлы. Детали Система размыва осадка. Узел. Детали Теплоснабжение Узел управления системой подогрева. Общие данные (начало) Узел управления системой подогрева. Общие данные (окончание) Узел управления системой подогрева. Планы. Разрез. Схема (F1 - 172 кв. м) Узел управления системой подогрева. Планы. Разрез. Схема (F1 - 217 кв. м) Узлы присоединения шланга к трубопроводу 57 х 3 Пожаротушение Общие данные Оборудование резервуара средствами пожаротушения Электротехническая часть Молниезащита Автоматика Общие данные Функциональная схема автоматизации Установка указателя уровня Установка сниженного пробоотборника Установка термоизвещателя и сигнализатора уровня |
| Разработан: | Южгипронефтепровод Миннефтепрома СССР |
| Утверждён: | 16.06.1983 Миннефтепром (Minnefteprom ) |































