Скачать Типовой проект 902-3-51.86 Альбом 2. Технологическая, санитарно-техническая, архитектурно-строительная частиДата актуализации: 01.01.2021
|
| Обозначение: | Типовой проект 902-3-51.86 |
| Обозначение англ: | 902-3-51.86 |
| Статус: | не определен законодательством |
| Название рус.: | Альбом 2. Технологическая, санитарно-техническая, архитектурно-строительная части |
| Дата добавления в базу: | 01.09.2013 |
| Дата актуализации: | 01.01.2021 |
| Дата введения: | 01.12.1986 |
| Дата окончания срока действия: | 30.06.2003 |
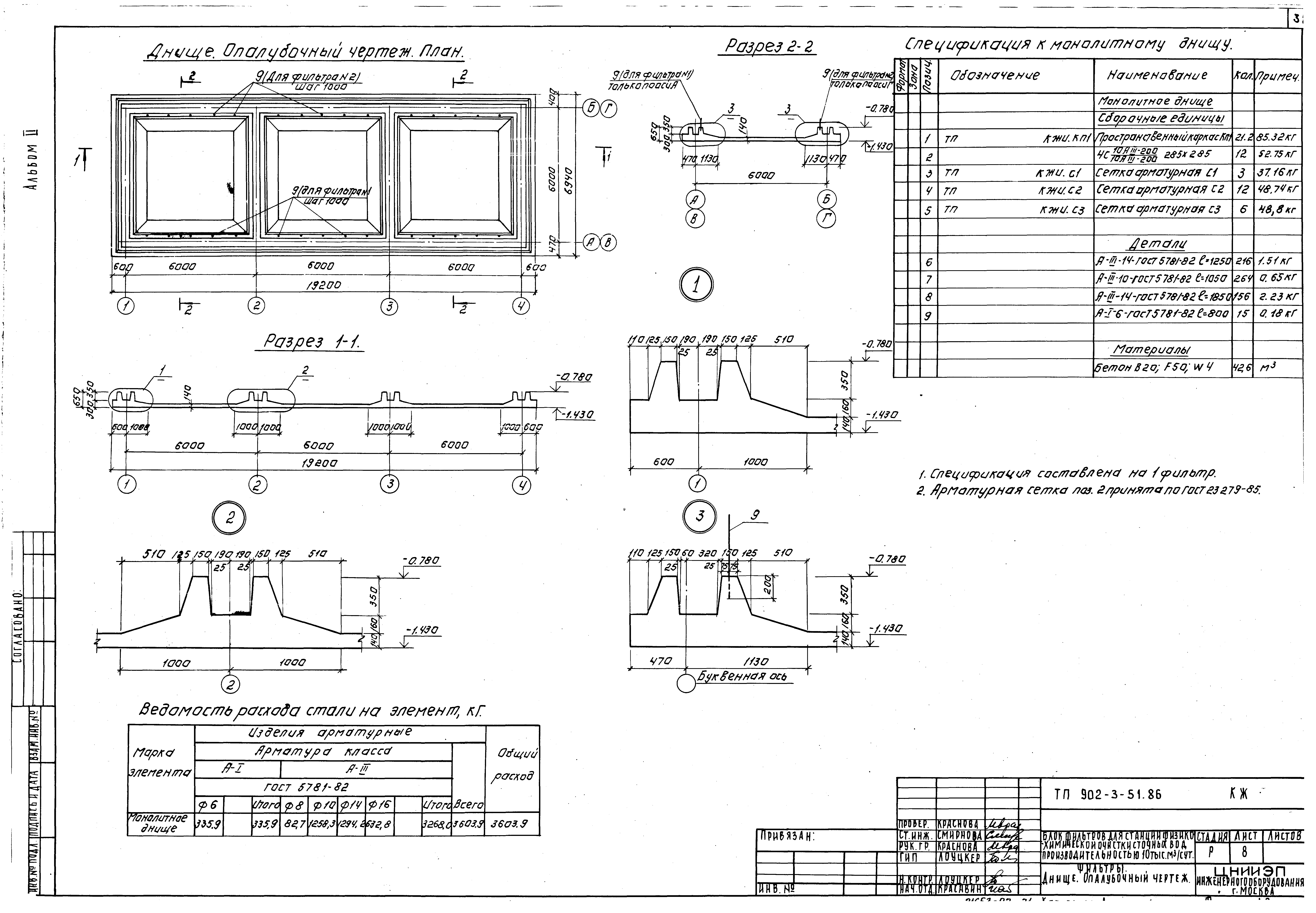
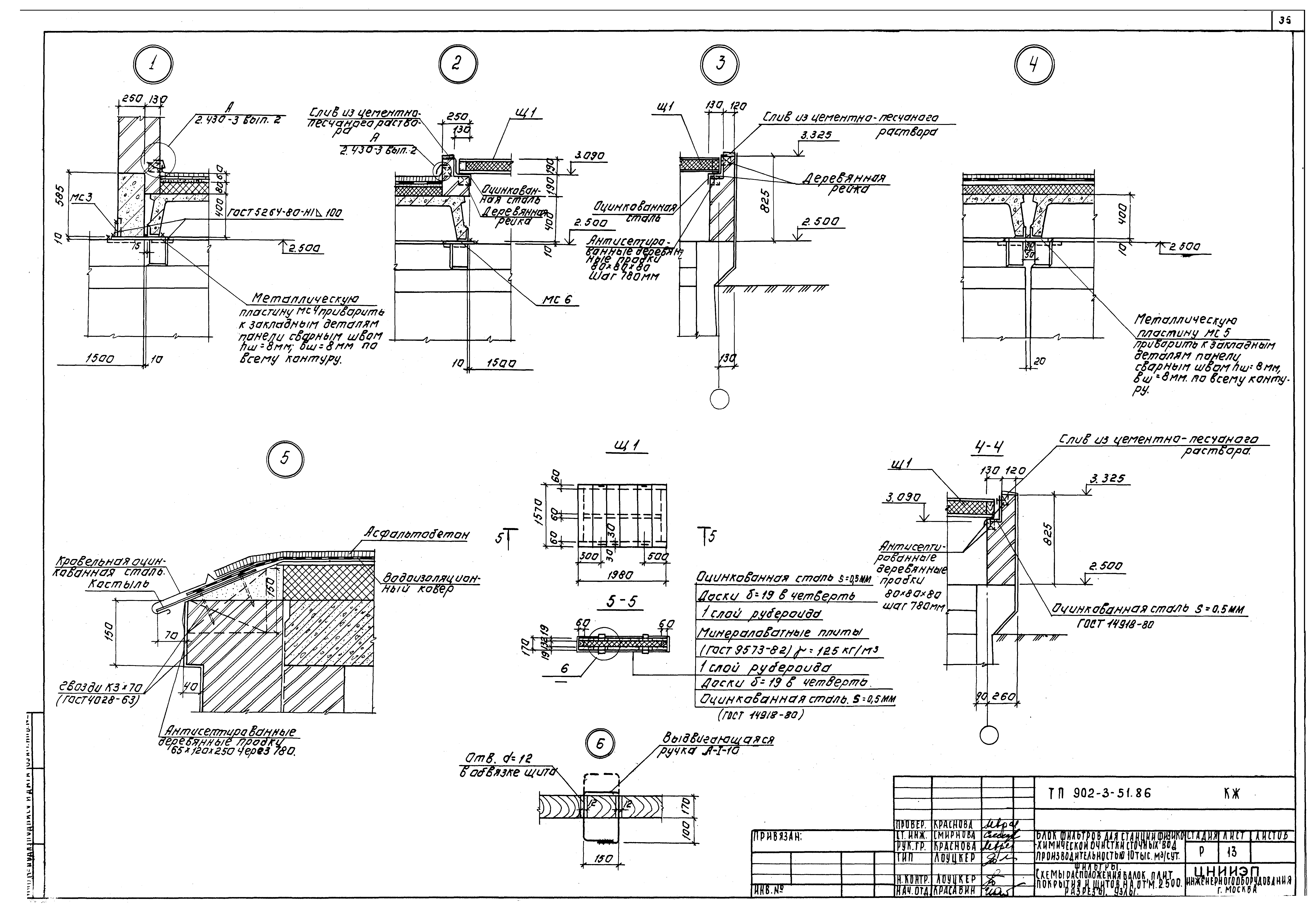
| Оглавление: | Содержание альбома Технологическая часть Общие данные План. Разрезы 1-1, 2-2, 3-3 Вид А-А. Вид Б-Б Вид В-В Разрез 4-4 Разрезы 5-5, 6-6. Узел 1 Асконометрические схемы трубопроводов А0, М4, М2. Деталь заделки трубопровода опорожнения Асконометрические схемы трубопроводов М7, М8, П2. Детали Отопление и вентиляция Общие данные План на отм. -1,900; 0,000. План на отм. 1,500; 2,500 Схема системы отопления. Схемы систем В1, ВЕ1, ВЕ2, ВЕ3 Установка системы В1 Воздуховод из асбестоцементных листов. Узлы соединений Конструкция изоляции трубопроводов Архитектурные решения Общие данные План на отм. -1,900; 0,000 План на отм. 1,500; 2,500. Экспликация помещений Разрез 1-1 Фасады 1-4, 4-1, А-Г, Г-А План и экспликация полов. Ведомости. Спецификации Конструкции железобетонные Общие данные Схема расположения фундаментов и подпорных стен Схема расположения фундаментов и подпорных стен. Разрезы 1-1…7-7 Схема расположения фундаментов и подпорных стен. Разрезы 8-8…14-14. Схема расположения канала и приямка Фильтры. Схемы расположения стеновых панелей и лотков Фильтры. Схемы расположения стеновых панелей и лотков. Разрезы Фильтры. Схемы расположения стеновых панелей и лотков. Разрезы. Узлы Фильтры. Днище. Опалубочный чертеж Фильтры. Днище. Армирование Фильтры. Монолитные участки стен. Опалубочный чертеж Фильтры. Монолитные участки стен. Армирование Фильтры. Схемы расположения балок, плит покрытия и щитов на отм. 2,500 Фильтры. Схемы расположения балок, плит покрытия и щитов на отм. 2,500. Разрезы. Узлы Схемы расположения плит покрытия на отм. 5,800 и 2,640 Конструкции металлические Общие данные (начало). Техническая спецификация стали Общие данные (продолжение). Техническая спецификация стали на типовые конструкции Общие данные (окончание). Ведомость металлоконструкций по видам профилей Схема расположения подвесного пути Схема расположения переходных площадок и лестниц. Разрезы. Узлы |
| Разработан: | ЦНИИЭП |
| Утверждён: | 05.11.1984 Госгражданстрой (Gosgrazhdanstroy 320) |







































