Скачать Типовой проект 902-2-348 Альбом 1. Технологическая часть, строительная часть, электрооборудование и автоматика, заказные спецификацииДата актуализации: 01.01.2021
|
| Обозначение: | Типовой проект 902-2-348 |
| Обозначение англ: | 902-2-348 |
| Статус: | не определен законодательством |
| Название рус.: | Альбом 1. Технологическая часть, строительная часть, электрооборудование и автоматика, заказные спецификации |
| Дата добавления в базу: | 01.09.2013 |
| Дата актуализации: | 01.01.2021 |
| Дата введения: | 05.04.1982 |
| Дата окончания срока действия: | 30.06.2003 |
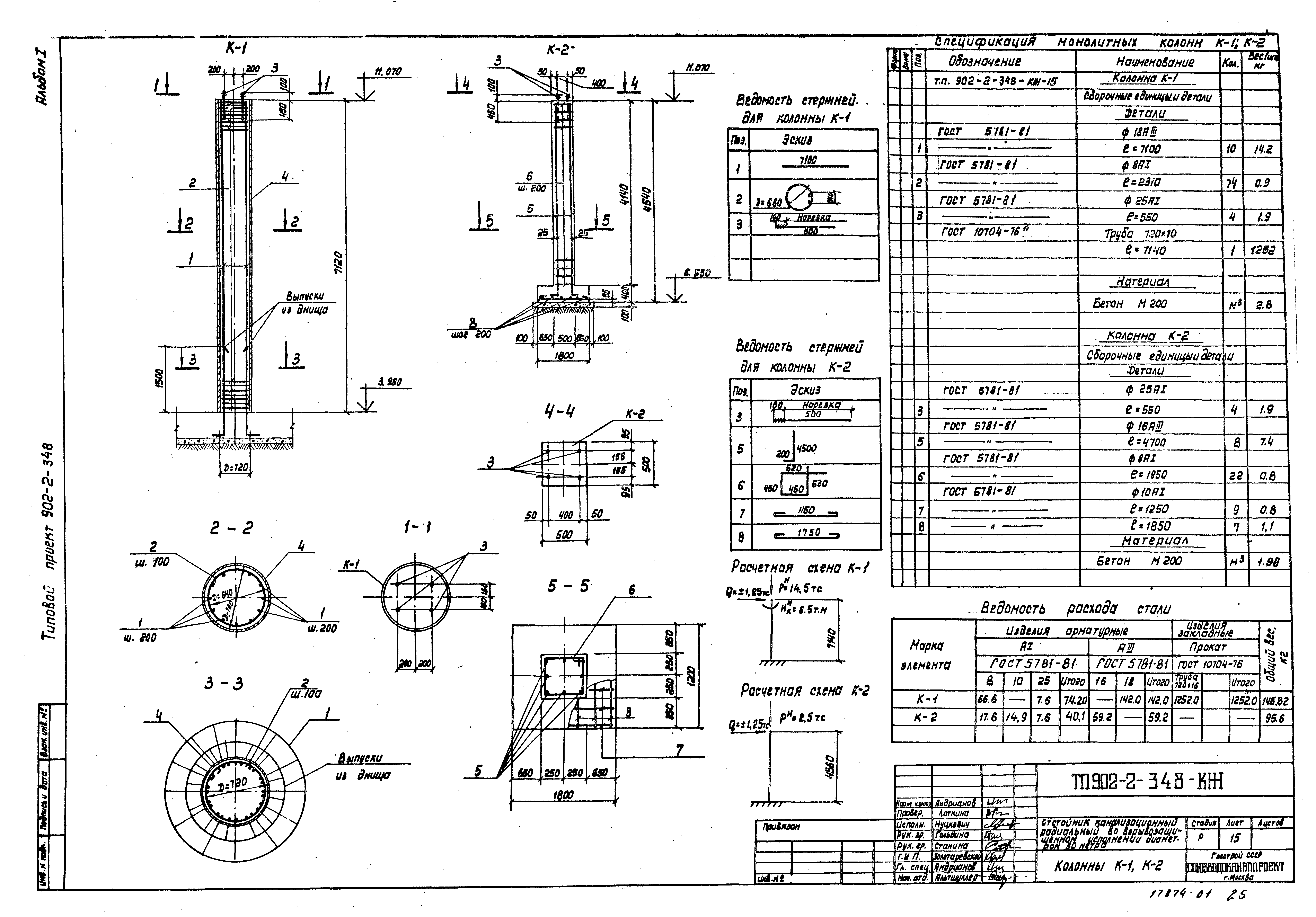
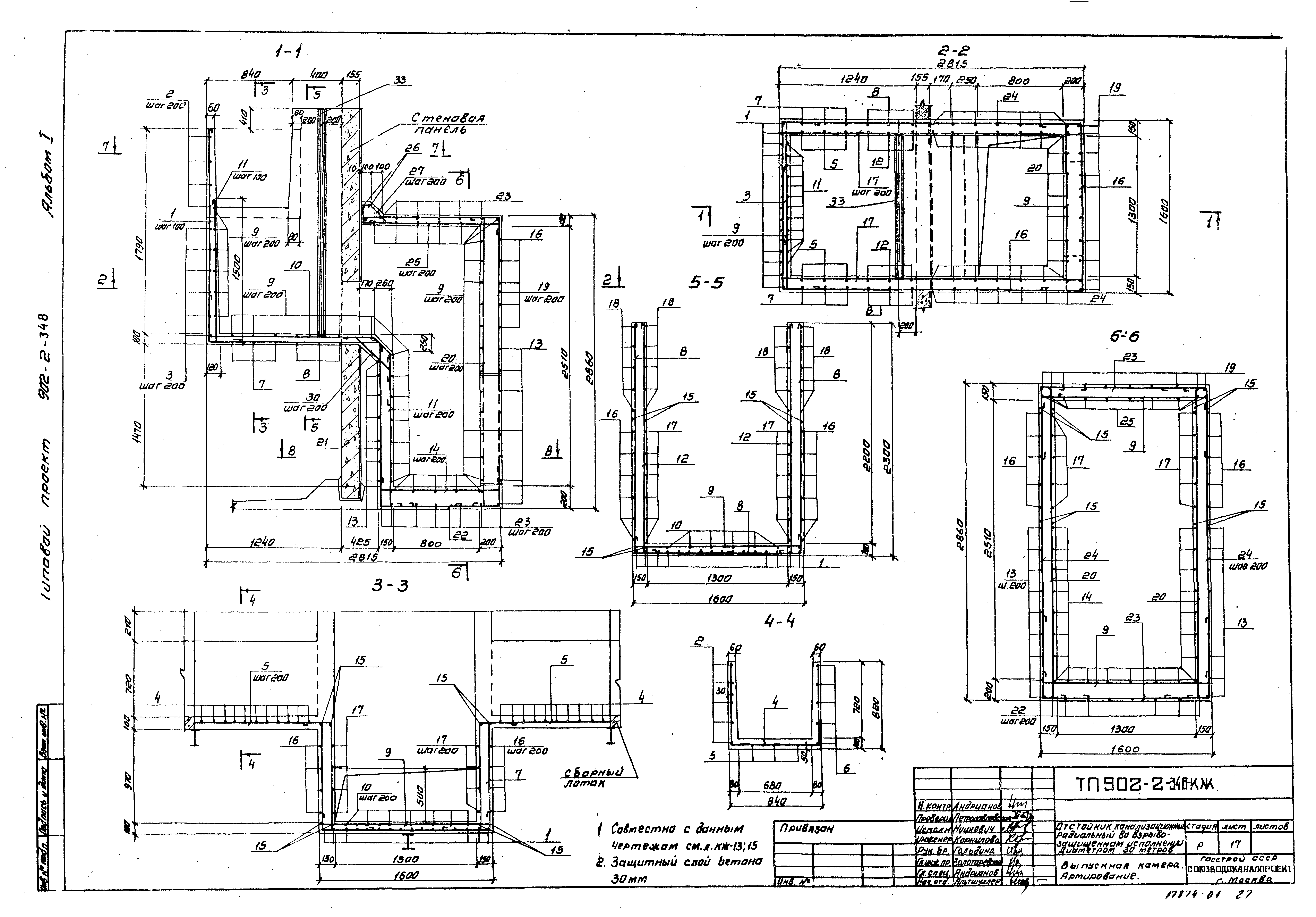
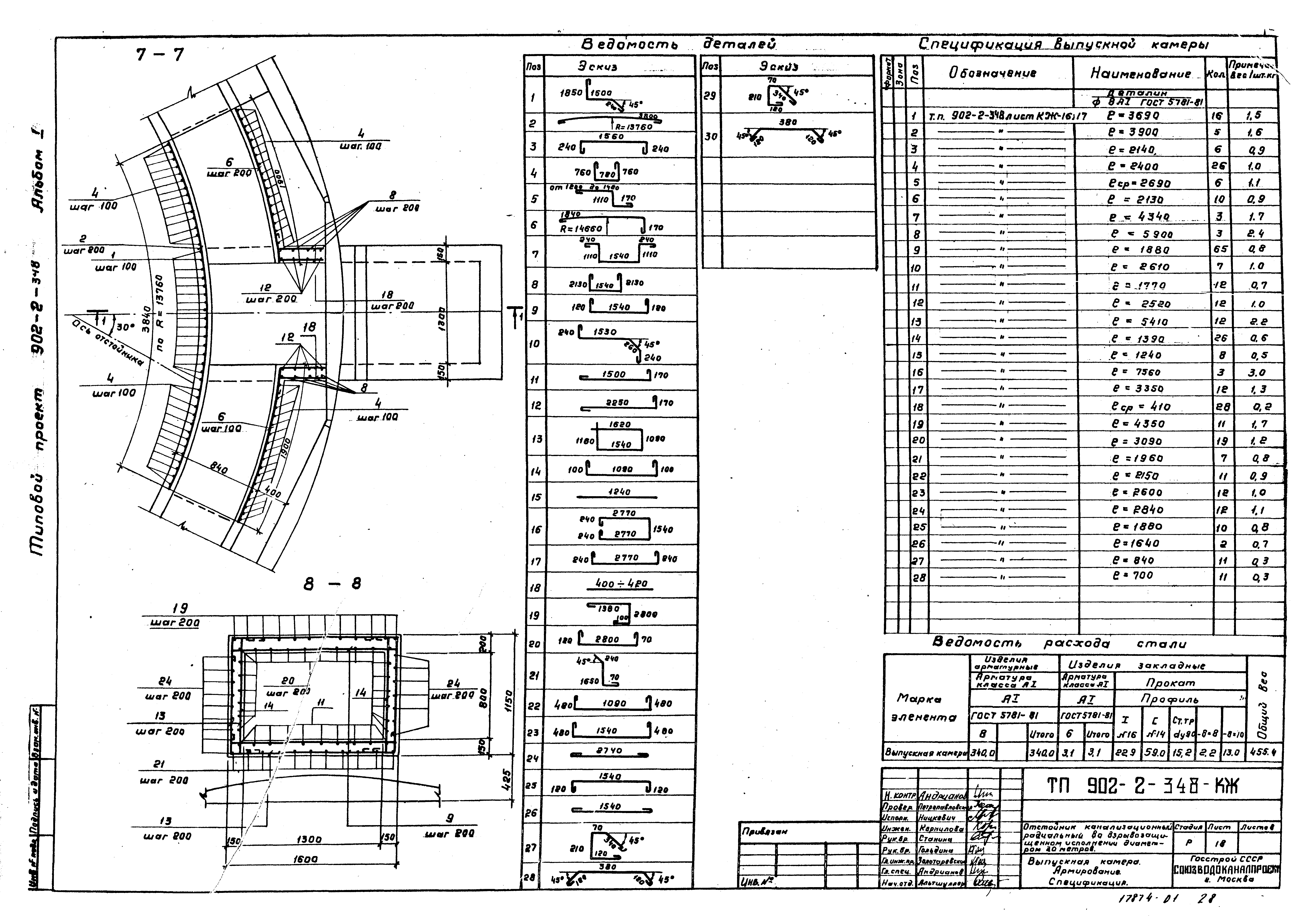
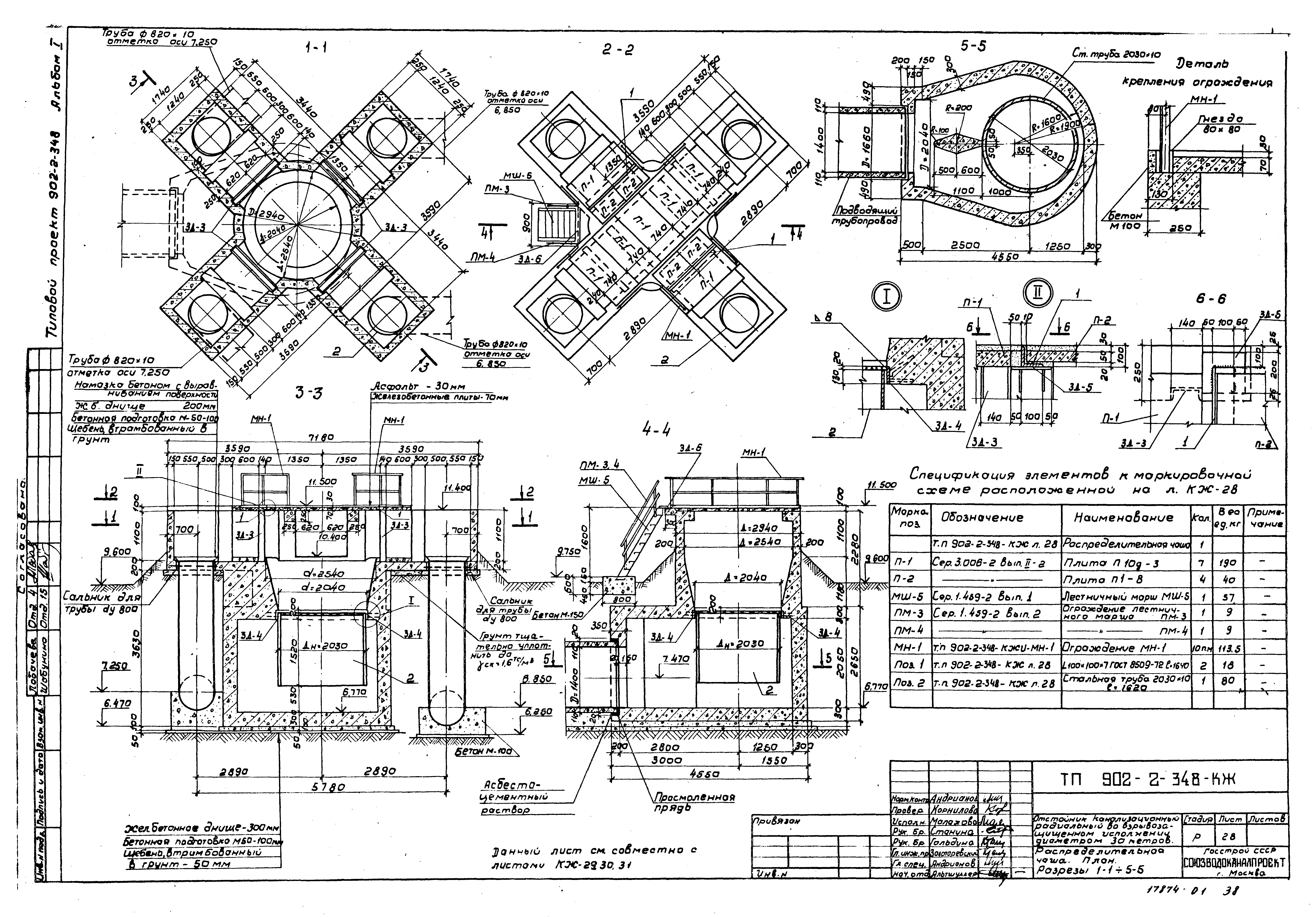
| Оглавление: | Содержание альбома Технологическая часть Общие данные Монтажный чертеж. План, разрез Монтажный чертеж. Разрезы, узлы, детали Нефтесборный колодец, колодец для осадка, распределительная чаша Строительная часть Общие данные Общий вид отстойника. План Общий вид отстойника. Разрез 1-1. Узлы 1…5 Маркировочная схема стеновых панелей. Узлы Маркировочная схема стеновых панелей. Навивка кольцевой арматуры Днище Дн-1. Опалубка и армирование. Спецификации Центральная часть. План. Разрезы 1-1…3-3 Центральная часть. Разрезы 4-4…7-7 Центральная часть. Армирование Центральная часть. Армирование. Разрезы 2-2, 7-7, 8-8 Центральная часть. Спецификация Колонны К-1, К-2 Выпускная камера. План, разрезы Выпускная камера. Армирование Выпускная камера. Армирование. Спецификация Переходный мостик Пм1. Монтажная схема. Узлы 1…4 Металлическая ферма Фм1. Схемы. Узлы 5…8 Переходный мостик Пм1. Узлы 9, 10, 11. Спецификация Камеры ОП-1, ОП-2. Опалубочный чертеж Камера ОП-1. Армирование. Спецификации Камера ОП-2. Армирование. Спецификации Нефтесборный колодец. План. Разрезы Нефтесборный колодец. Армирование Нефтесборный колодец. Спецификация Распределительная чаша. План. Разрезы 1-1…5-5 Распределительная чаша. Армирование. Планы, разрезы 1-1…7-7 Распределительная чаша. Армирование. Планы, разрезы 8-8…14-14 Распределительная чаша. Спецификация Электротехническая часть Общие данные Схема принципиальная управления приводом отстойника Схема принципиальная управления задвижкой на выпуске нефти Схема принципиальная управления задвижкой на выпуске осадка Схема подключения электрооборудования Кабельный журнал Расположение электрооборудования и прокладка труб Заказные спецификации Заказная спецификация на оборудование Заказная спецификация на материалы Нефтесборный колодец. Колодец для осадка. Распределительная чаша. Заказная спецификация на оборудование и арматуру Заказная спецификация на электрооборудование и материалы |
| Разработан: | Союзводоканалпроект |
| Утверждён: | 14.12.1981 Союзводоканалпроект (Soyuzvodokanalproject 69) |





















































