Скачать Типовой проект 402-12-52 Альбом I. Электрическая и механическая частиДата актуализации: 01.01.2021
|
| Обозначение: | Типовой проект 402-12-52 |
| Обозначение англ: | 402-12-52 |
| Статус: | действует |
| Название рус.: | Альбом I. Электрическая и механическая части |
| Дата добавления в базу: | 01.09.2013 |
| Дата актуализации: | 01.01.2021 |
| Дата введения: | 27.07.1973 |
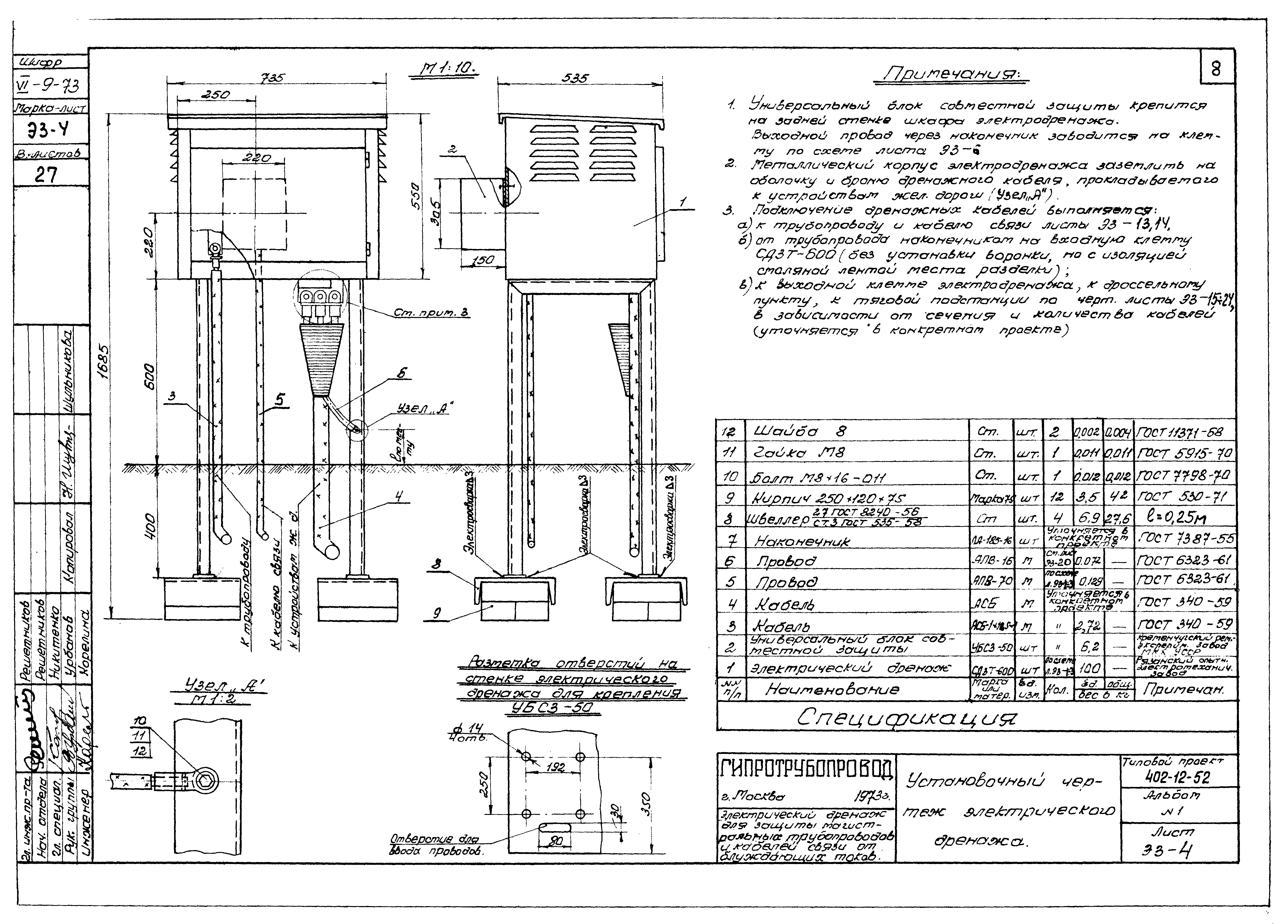
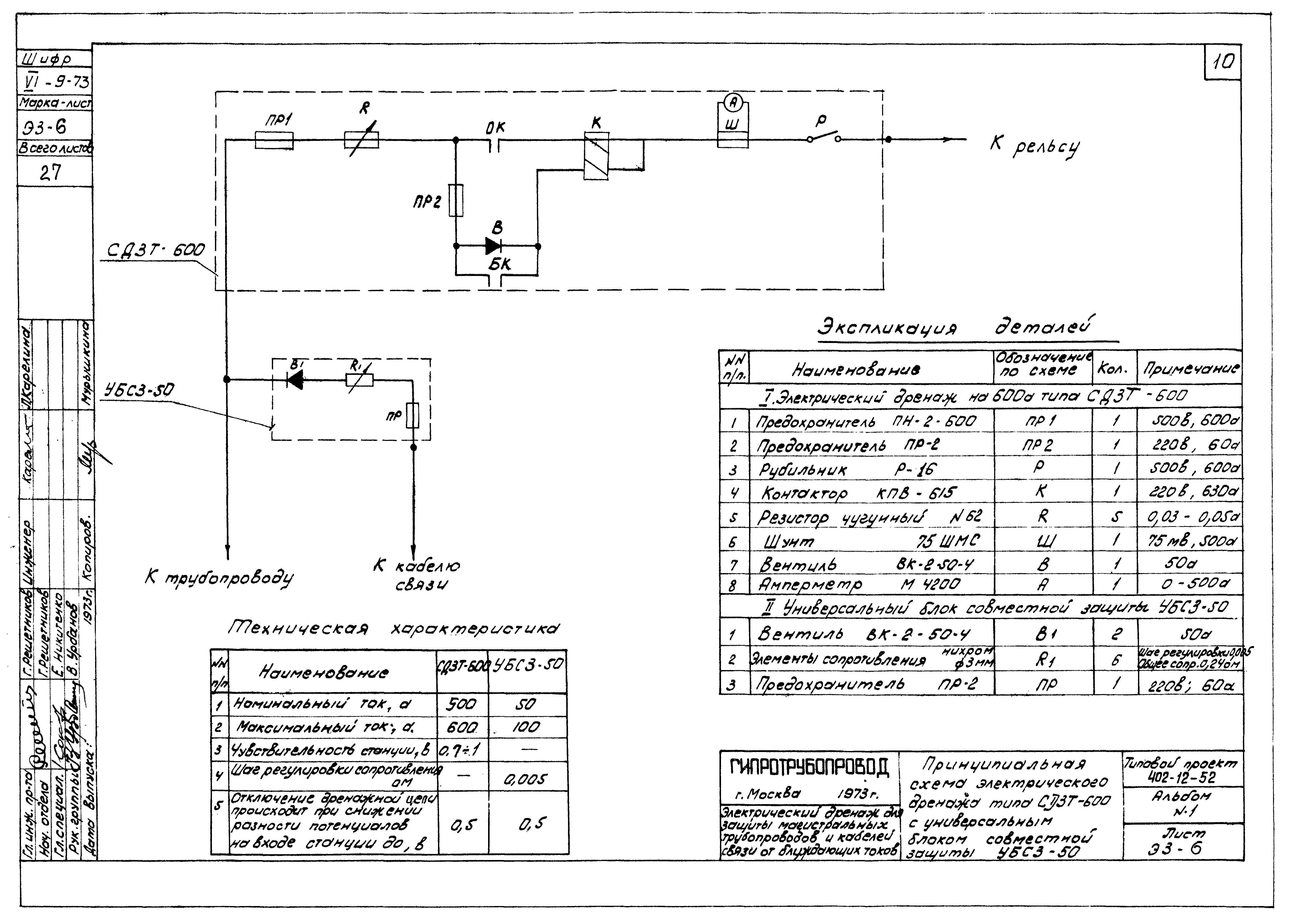
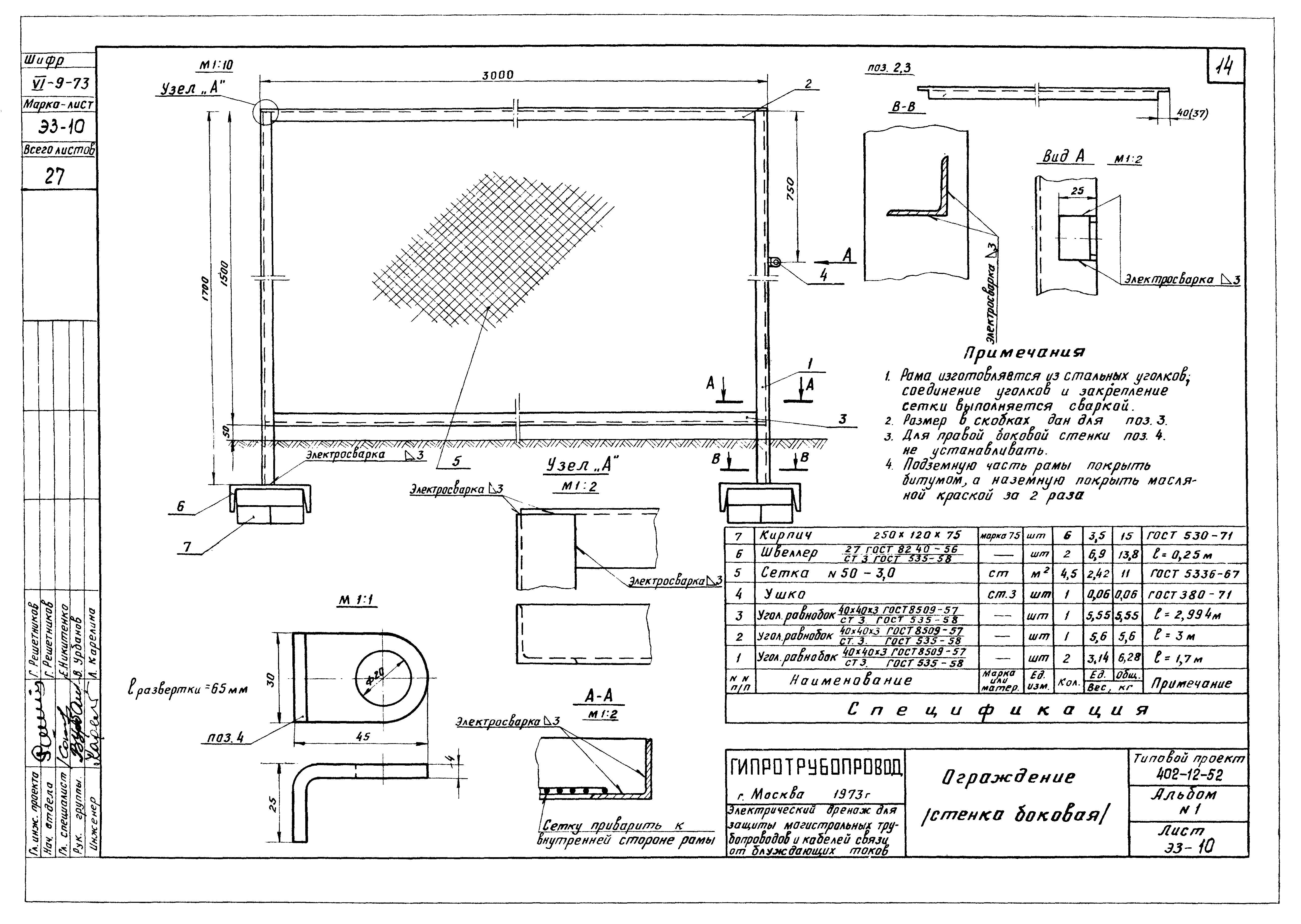
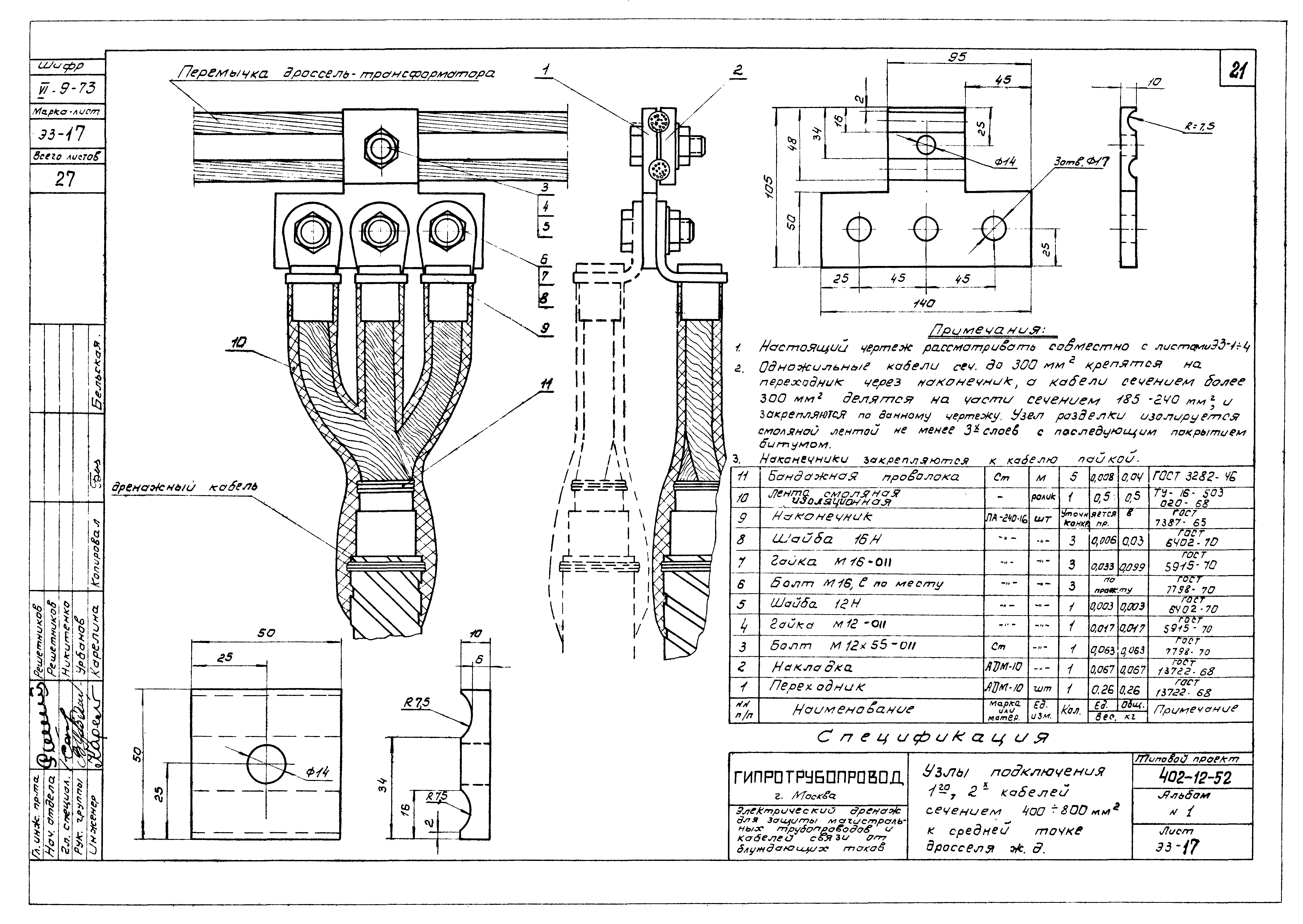
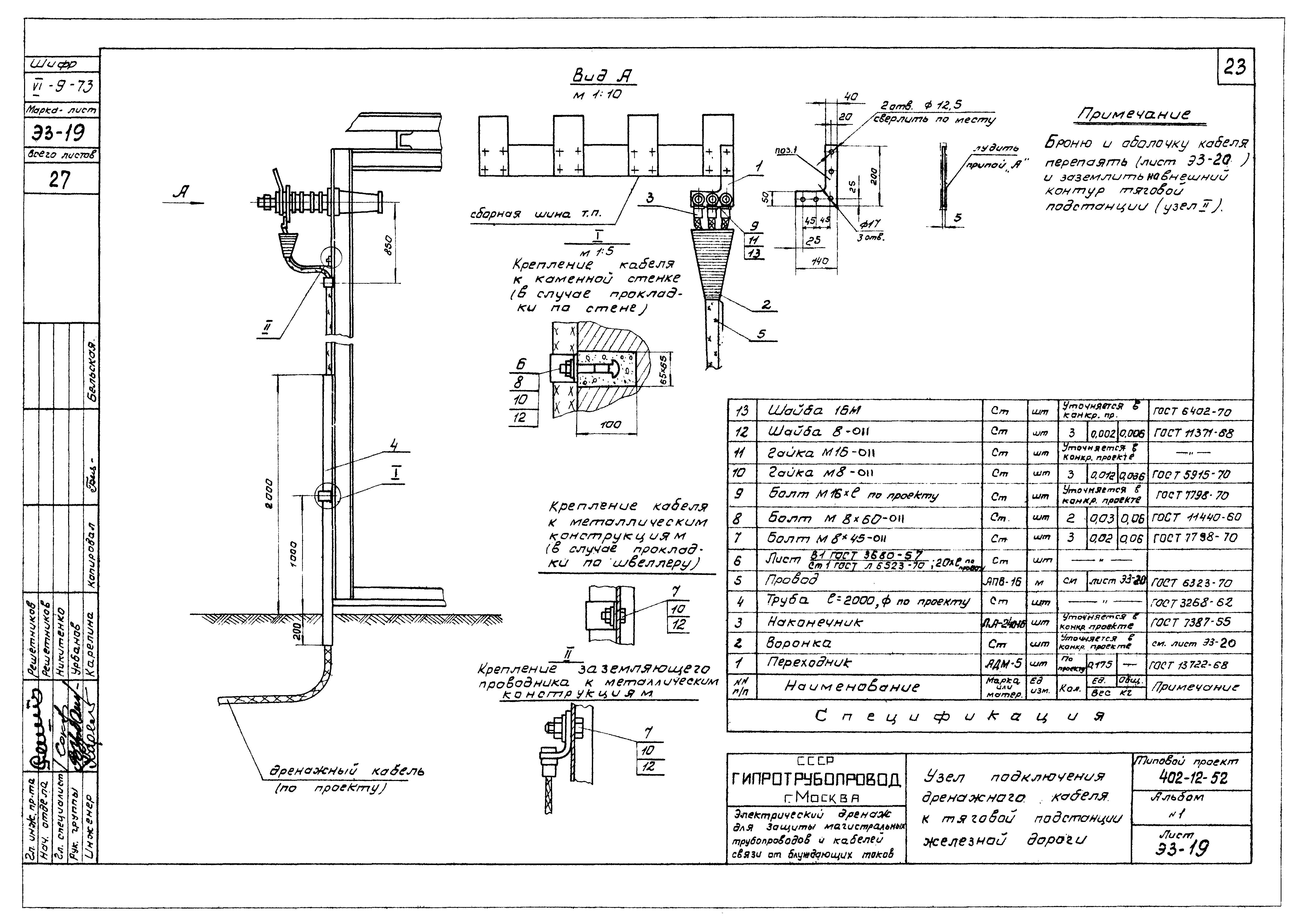
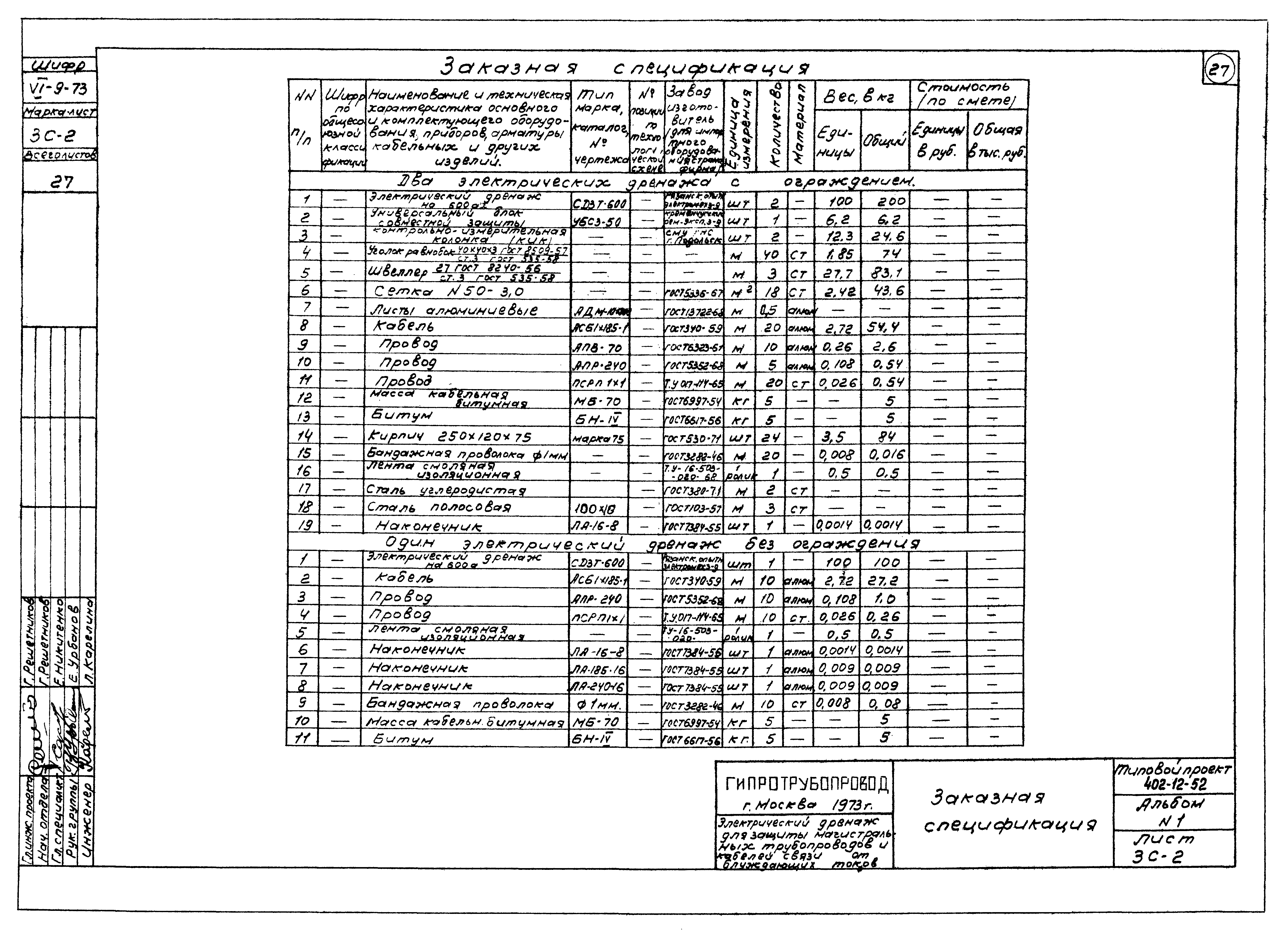
| Оглавление: | Титульный лист Содержание альбома Пояснительная записка Варианты размещения и схема подключения электродренажа типа СДЗТ-600 Варианты размещения и схема подключения электродренажа типа СДЗТ-600 для защиты нескольких трубопроводов и кабелей трубопроводов и кабелей связи Варианты размещения и схема подключения электродренажа типа СДЗТ-600 для защиты трубопровода совместно с существующими сооружениями Установочный чертеж электрического дренажа Электрический дренаж в ограждении Принципиальная схема электродренажа типа СДЗТ-600 с универсальным блоком совместной защиты УБСЗ-50 Ограждение (общий вид) Ограждение (стенка передняя) Ограждение (стенка задняя) Ограждение (стенка боковая) Ограждение (дверь) Узел присоединения дренажного кабеля к трубопроводу Узел присоединения дренажного кабеля к кабелю связи Перепайка металлической оболочки кабеля связи с его броней Узлы подключения 1-го, 2-х кабелей сечением 400 - 800 кв. мм к электродренажу Узлы подключения 3-х дренажных кабелей сечением 625 кв. мм к электродренажу Узлы подключения 1-го, 2-х кабелей сечением 400 - 800 кв. мм к средней точке дросселя ж.д. Узлы подключения 3-х дренажных кабелей сечением 625 кв. мм к средней точке дросселя ж.д. Узел подключения дренажного кабеля к тяговой подстанции ж.д. Концевая заделка дренажного кабеля Контрольно-измерительный пункт в ограждении электродренажа Заказная спецификация |
| Разработан: | Институт Гипротрубопровод |
| Утверждён: | 18.07.1973 Миннефтепром (Minnefteprom ) |


























