Скачать Типовой проект 905-1-31.87 Альбом 1. Пояснительная записка. Газоснабжение внутреннее. Эскизные чертежи общих видов нетиповых конструкций системы газоснабжения внутреннего. Архитектурно-строительные решения. Отопление и вентиляция. Эскизные чертежи общих видов нетиповых конструкций системы отопления и вентиляции. Автоматизация. Эскизные чертежи общих видов нетиповых конструкций системы автоматизации. Электрическое освещение. СвязьДата актуализации: 01.01.2021
|
| Обозначение: | Типовой проект 905-1-31.87 |
| Обозначение англ: | 905-1-31.87 |
| Статус: | не определен законодательством |
| Название рус.: | Альбом 1. Пояснительная записка. Газоснабжение внутреннее. Эскизные чертежи общих видов нетиповых конструкций системы газоснабжения внутреннего. Архитектурно-строительные решения. Отопление и вентиляция. Эскизные чертежи общих видов нетиповых конструкций системы отопления и вентиляции. Автоматизация. Эскизные чертежи общих видов нетиповых конструкций системы автоматизации. Электрическое освещение. Связь |
| Дата добавления в базу: | 01.09.2013 |
| Дата актуализации: | 01.01.2021 |
| Дата введения: | 01.10.1987 |
| Дата окончания срока действия: | 30.06.2003 |
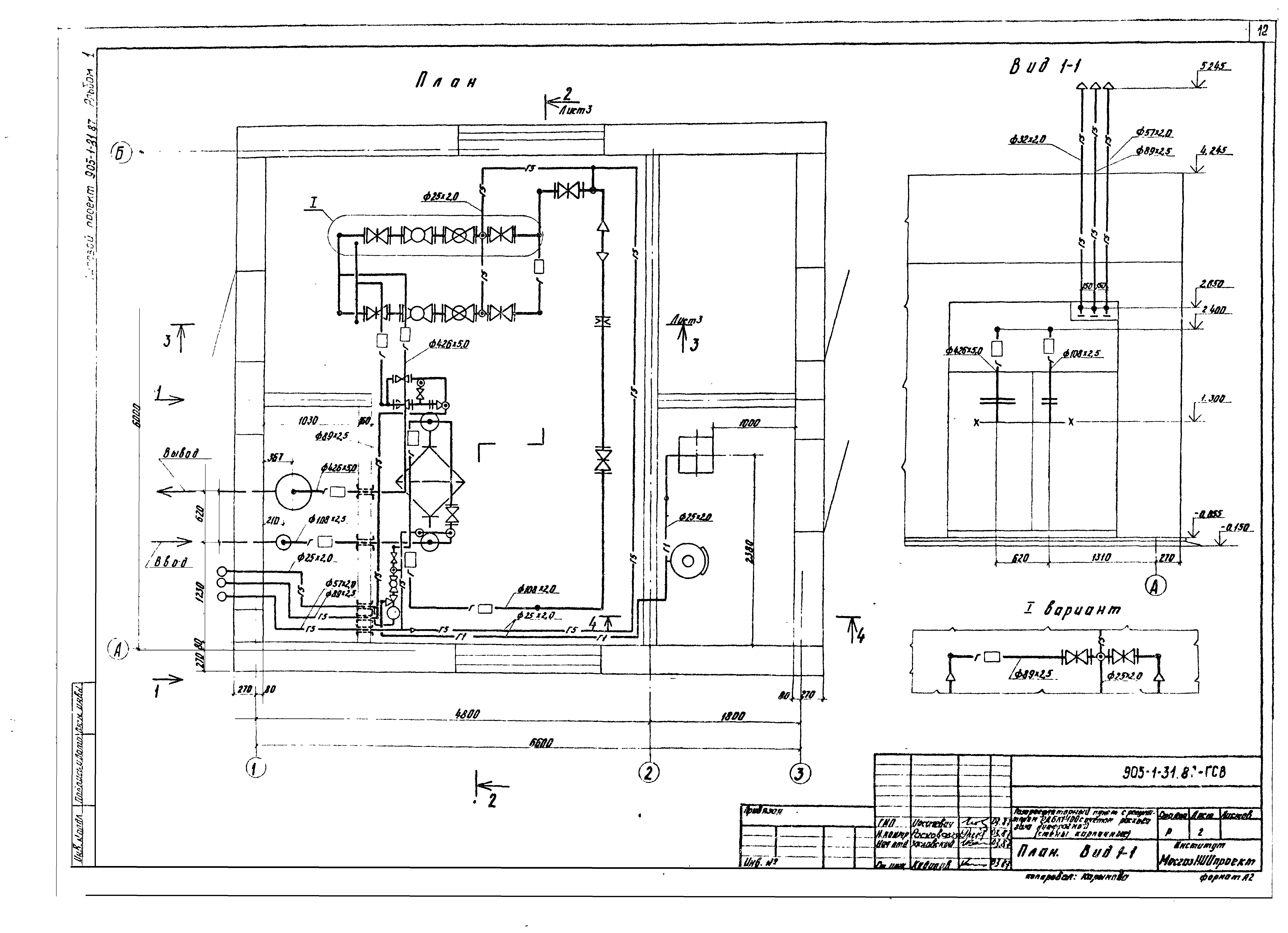
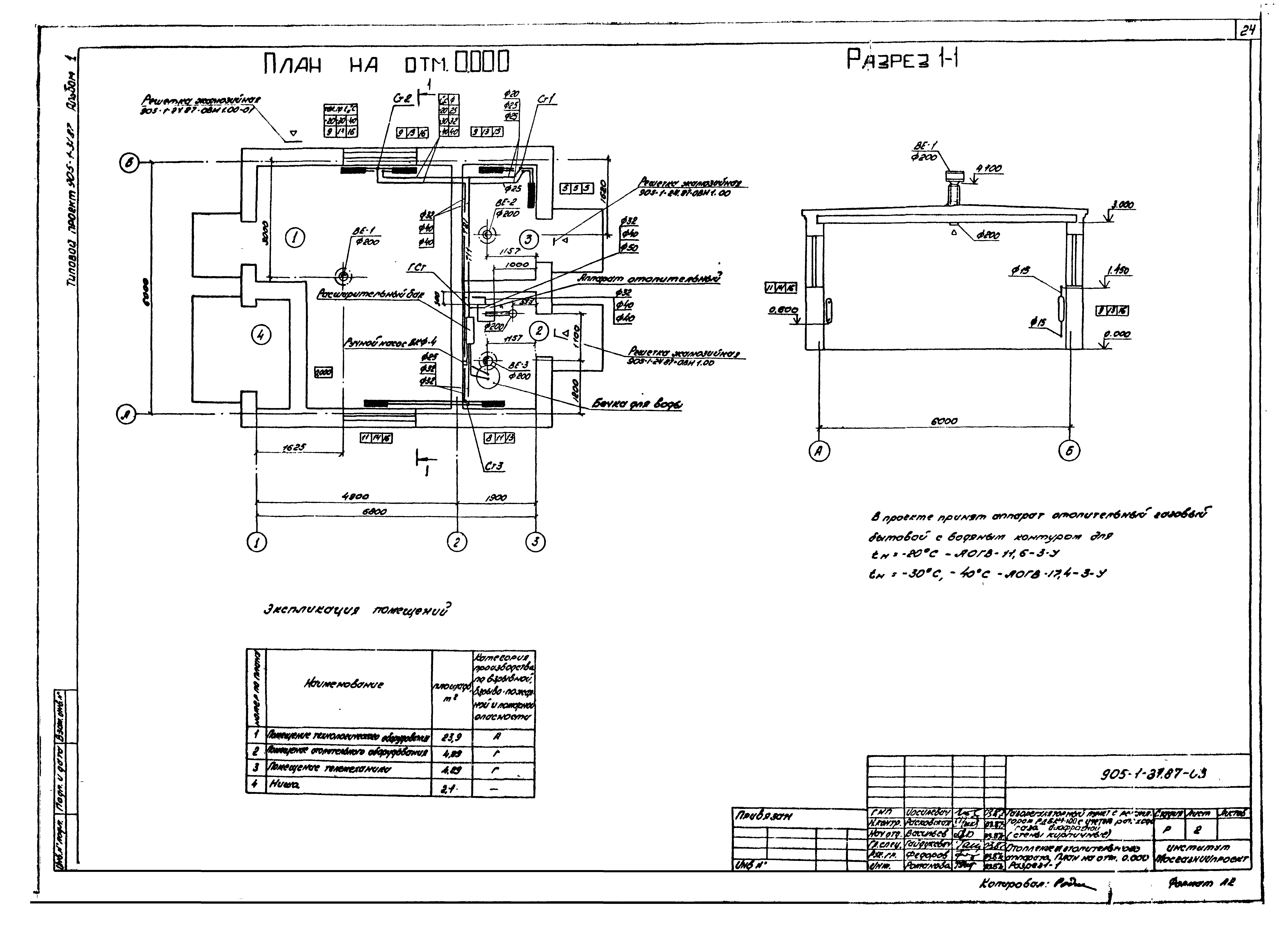
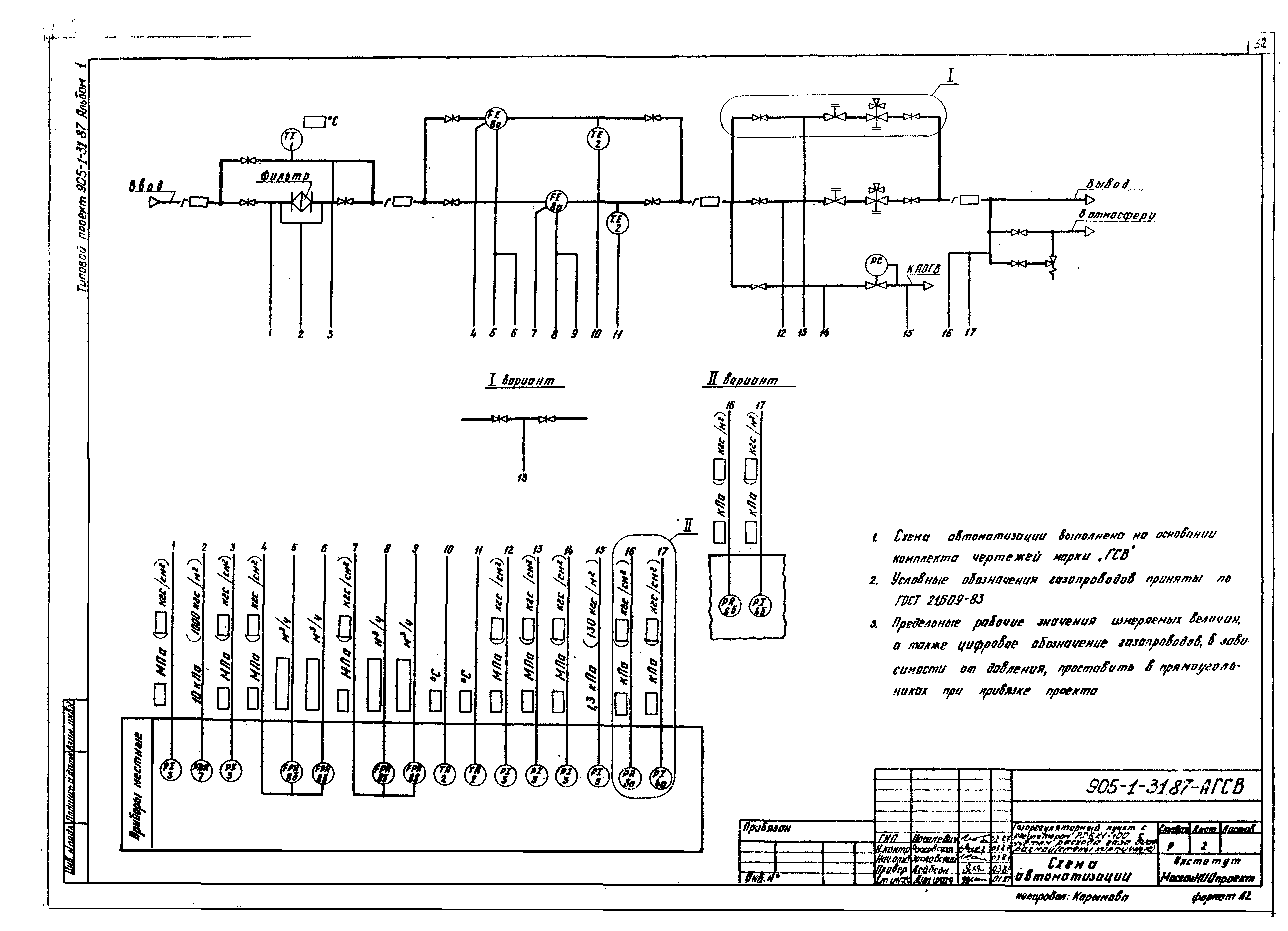
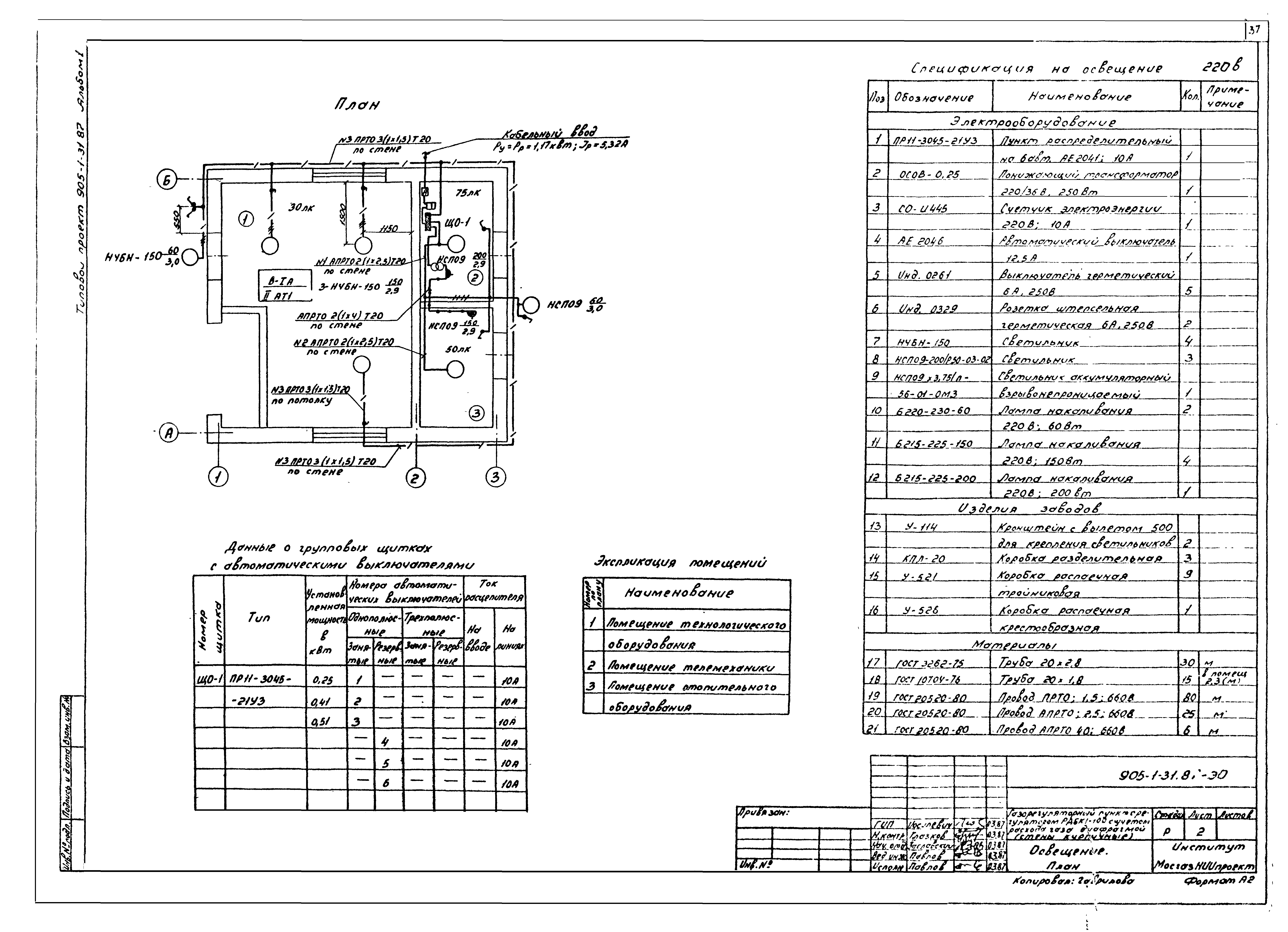
| Оглавление: | Содержание альбома Пояснительная записка Газоснабжение внутреннее Общие данные План. Вид 1-1 Разрезы 2-2, 3-3, 4-4, 5-5 Схема Кронштейн под газопровод Ду300 Архитектурно-строительные решения Общие данные План на отм. 0,000. Разрезы 1-1, 2-2 План на отм. 0,000. Ведомости и спецификации Фасады 1-3, 3-1, Б-А, А-Б План фундаментов. Схемы расположения блоков по осям сечения Схема расположения элементов покрытия. Узлы и детали Планы кровли и полов. Экспликация полов. Схема расположения отверстий. Узлы и детали Отопление и вентиляция Общие данные Отопление от отопительного аппарата. План на отм. 0,000. Разрез 1-1 Отопление от отопительного аппарата. Схема системы отопления Отопление от наружных тепловых сетей. План на отм. 0,000. Разрез 1-1 Отопление от наружных тепловых сетей. Схема системы отопления. Тепловой узел 1, 2 Катушка Автоматизация Общие данные Схема автоматизации Схема соединений внешних проводов План расположения Рамка для напоромера мембранного НМП-52 Щиток для термометра монометрического ТЖС Электрическое освещение Общие данные Освещение. План Молниезащита. План. Фасад Связь Общие данные План расположения телефонной сети |
| Разработан: | Мосгазниипроект Мосгорисполкома |
| Утверждён: | 20.04.1987 Госстрой СССР (Государственный комитет Совета Министров СССР по делам строительства) (USSR Gosstroy А4-46) |









































