Скачать Типовой проект 901-5-44.87 Альбом 4. Металлические конструкцииДата актуализации: 01.01.2021
|
| Обозначение: | Типовой проект 901-5-44.87 |
| Обозначение англ: | 901-5-44.87 |
| Статус: | не определен законодательством |
| Название рус.: | Альбом 4. Металлические конструкции |
| Дата добавления в базу: | 01.09.2013 |
| Дата актуализации: | 01.01.2021 |
| Дата введения: | 27.05.1986 |
| Дата окончания срока действия: | 30.06.2003 |
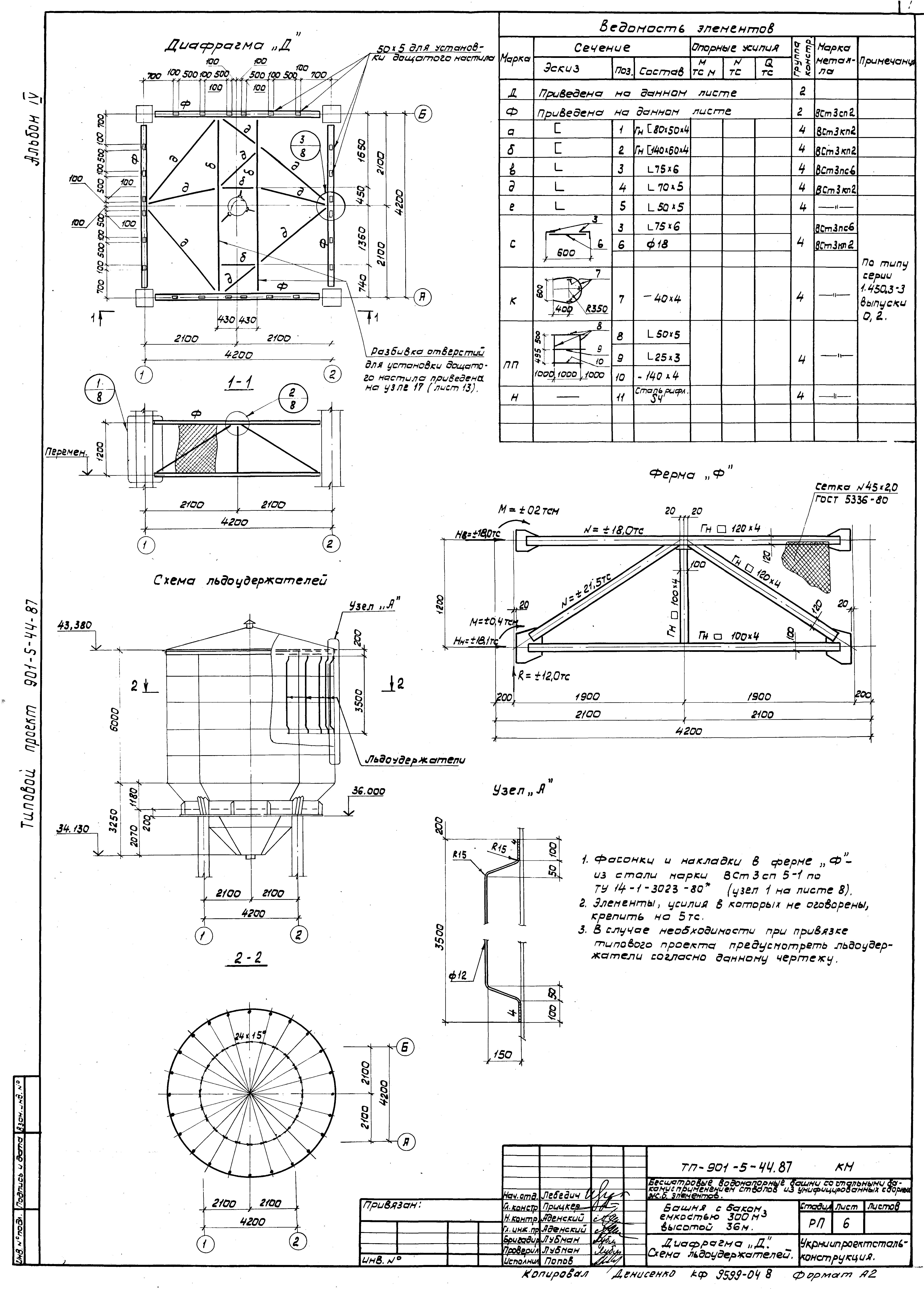
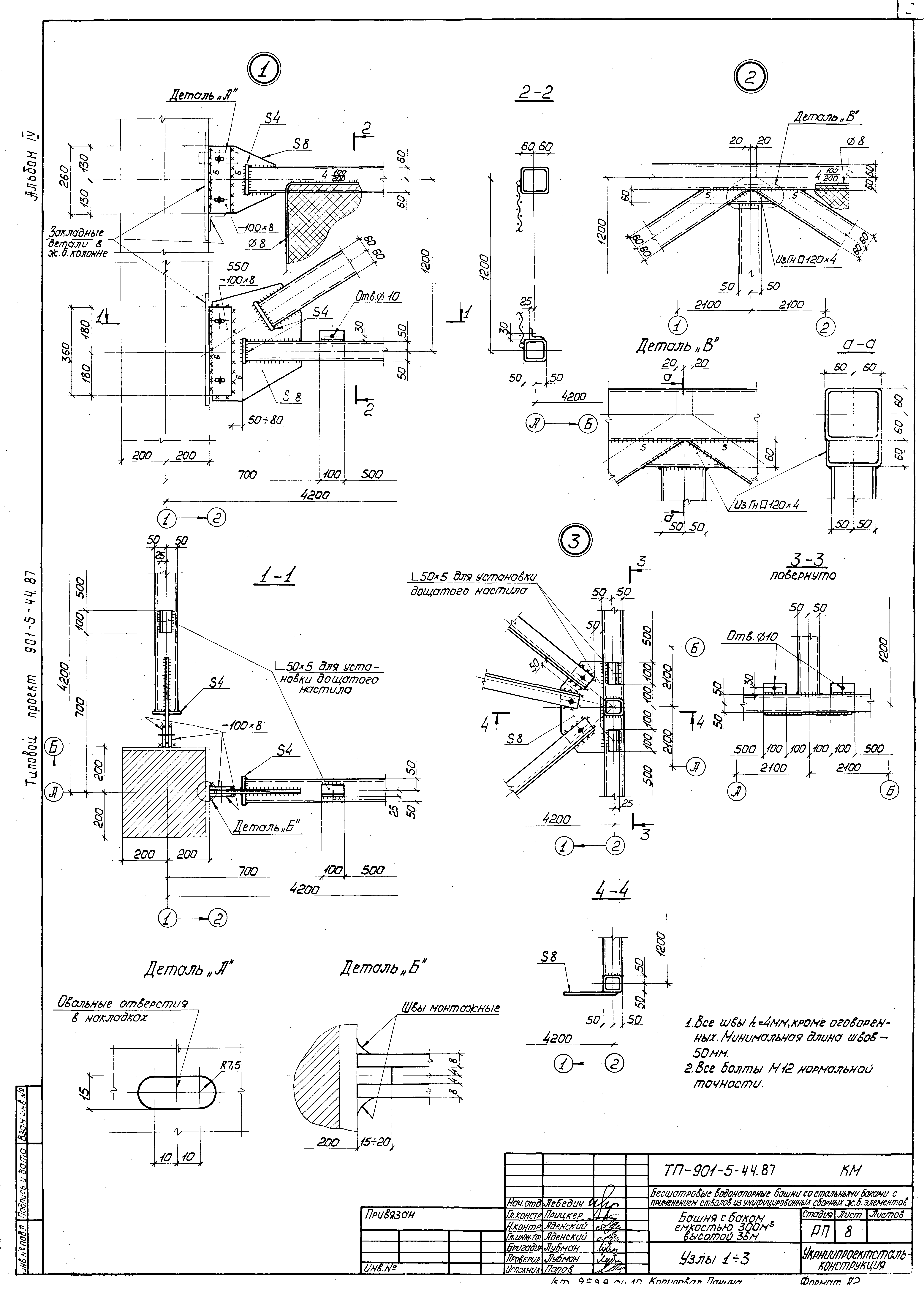
| Оглавление: | Общие данные (начало) Общие данные (окончание) Техническая спецификация металла Ведомость металлоконструкций по видам профилей Схема башни Диафрагма "Д". Схема льдоудержателей Общий вид бака Узлы 1…3 Узлы 4, 5 Узлы 6…9. Шпиль на крышке бака Узлы 10…13 Узлы 14…16 Узлы 17, 18 |
| Разработан: | Укрниипроектстальконструкция |
| Утверждён: | 29.04.1986 Госстрой СССР (Государственный комитет Совета Министров СССР по делам строительства) (USSR Gosstroy А4-25) |














