Скачать Типовой проект 901-3-212.85 Альбом 2. Архитектурно-строительные решения, технологическая, сантехническая, электротехническая частиДата актуализации: 01.01.2021
|
| Обозначение: | Типовой проект 901-3-212.85 |
| Обозначение англ: | 901-3-212.85 |
| Статус: | не определен законодательством |
| Название рус.: | Альбом 2. Архитектурно-строительные решения, технологическая, сантехническая, электротехническая части |
| Дата добавления в базу: | 01.09.2013 |
| Дата актуализации: | 01.01.2021 |
| Дата введения: | 26.09.1985 |
| Дата окончания срока действия: | 30.06.2003 |
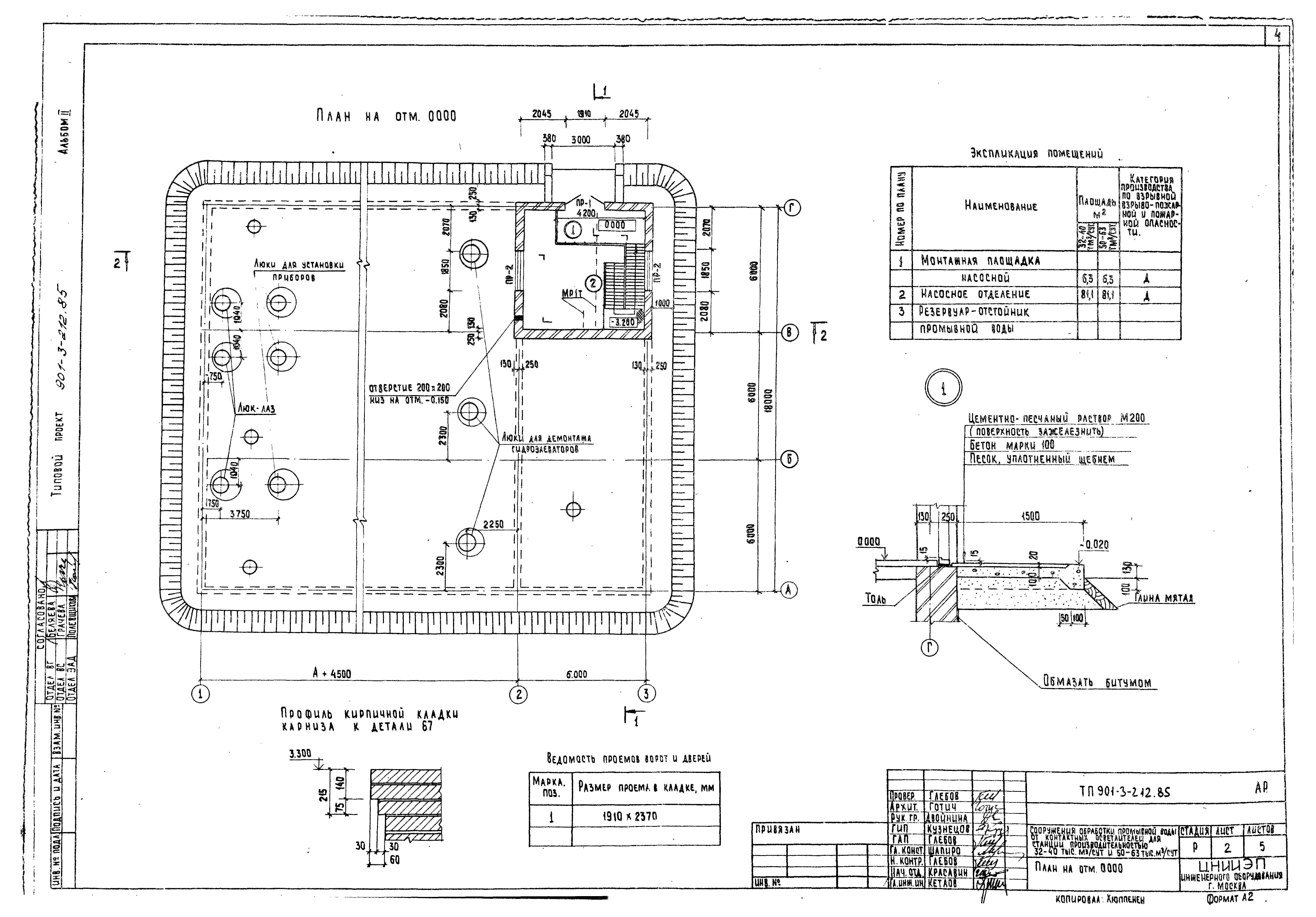
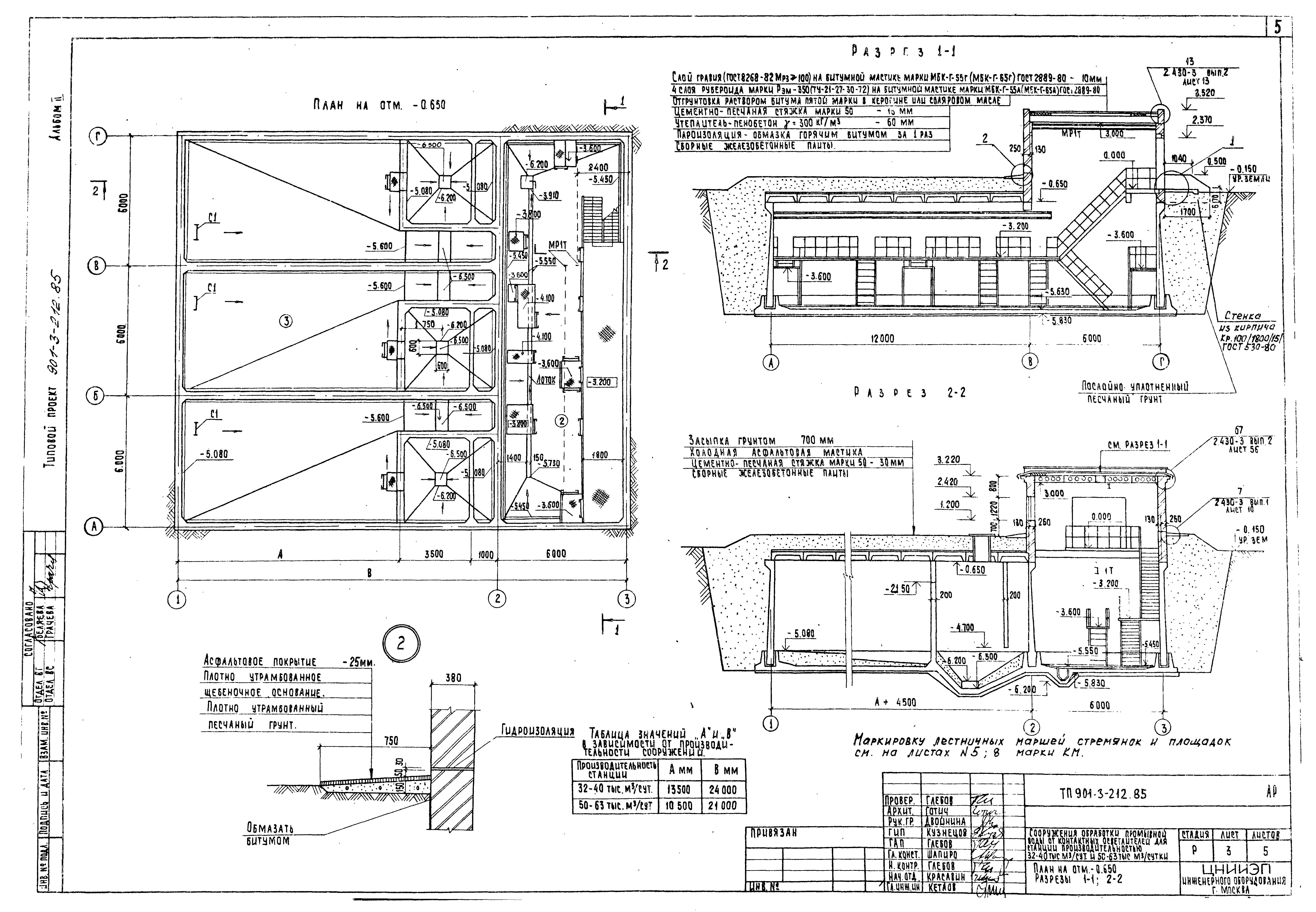
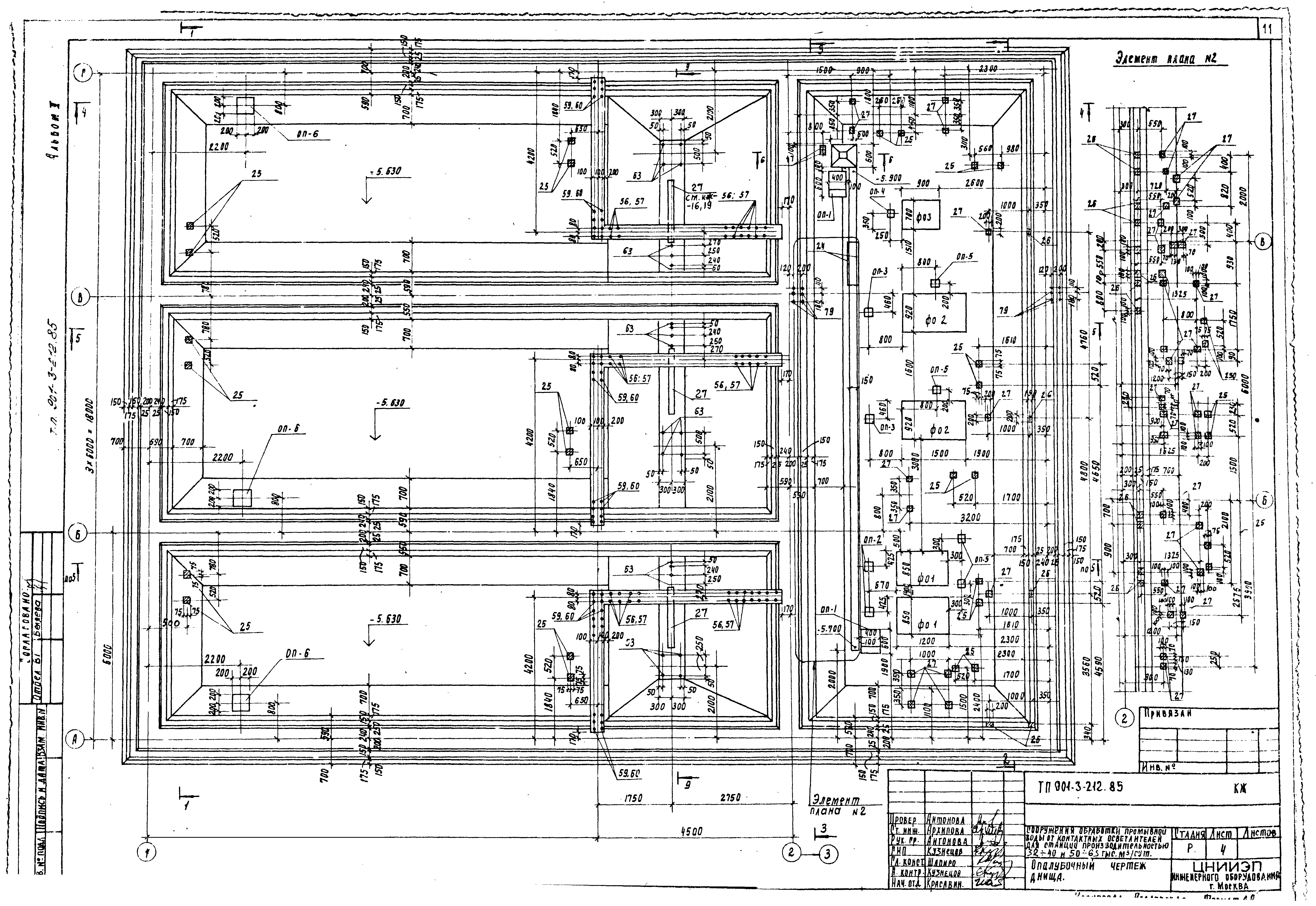
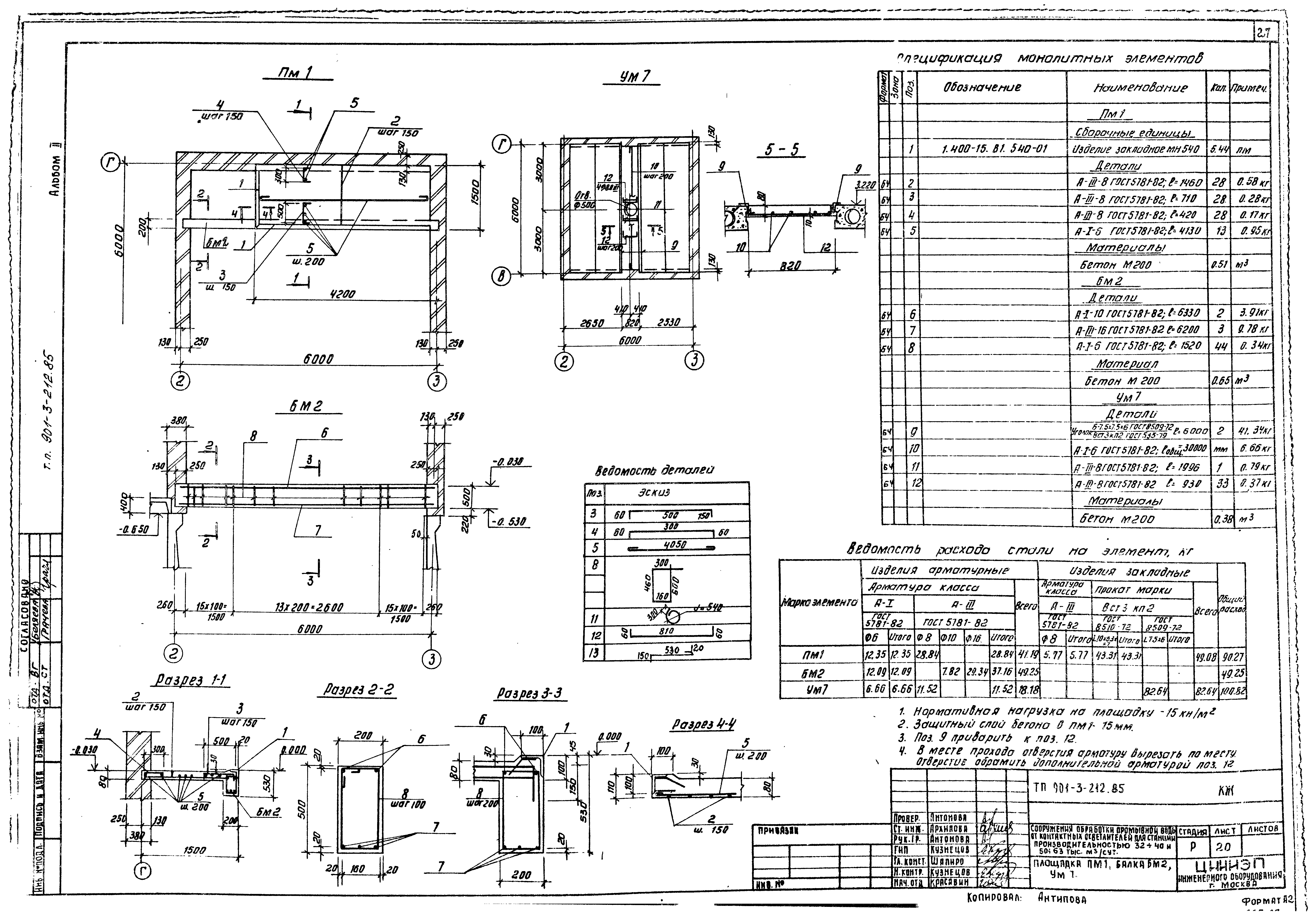
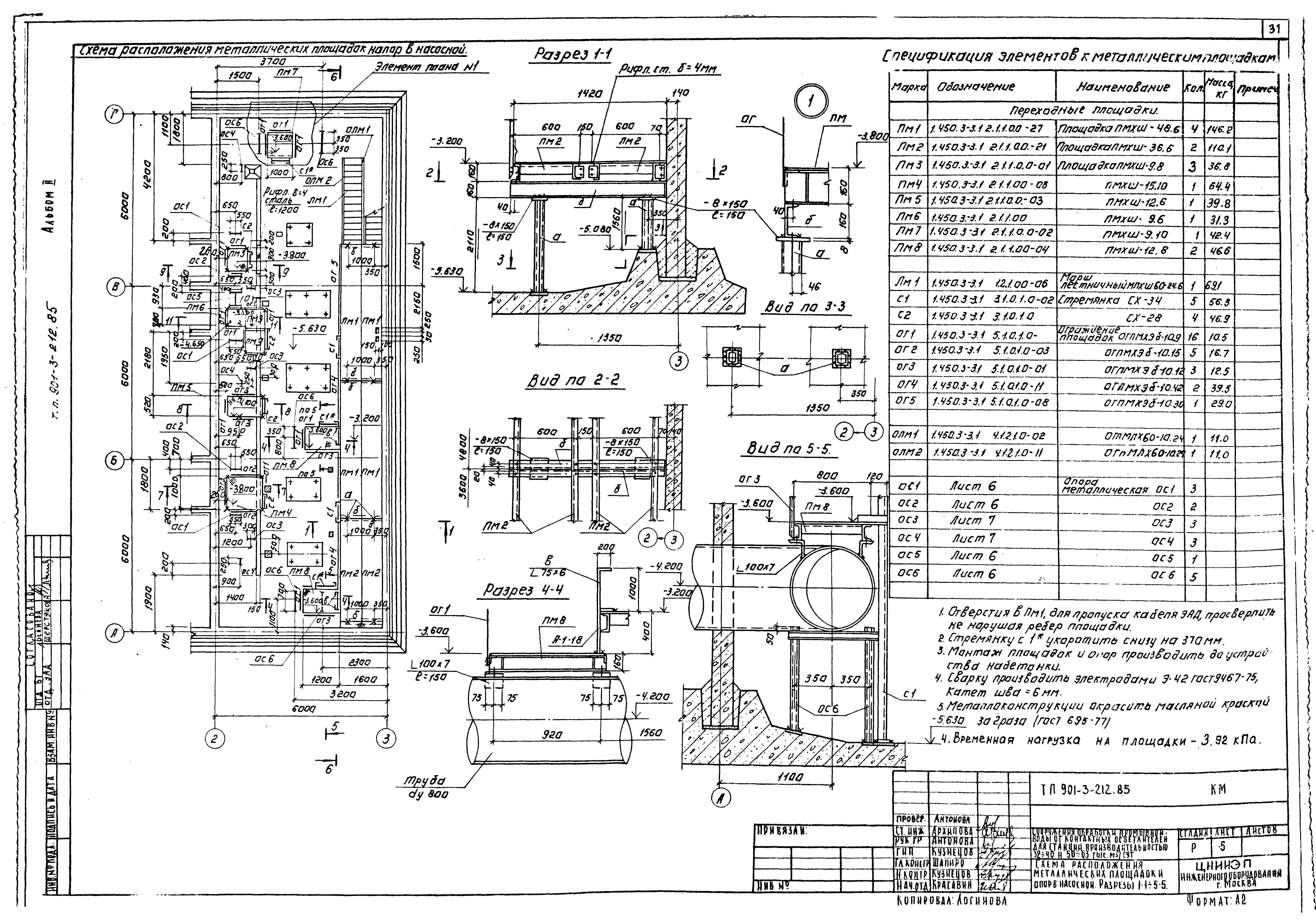
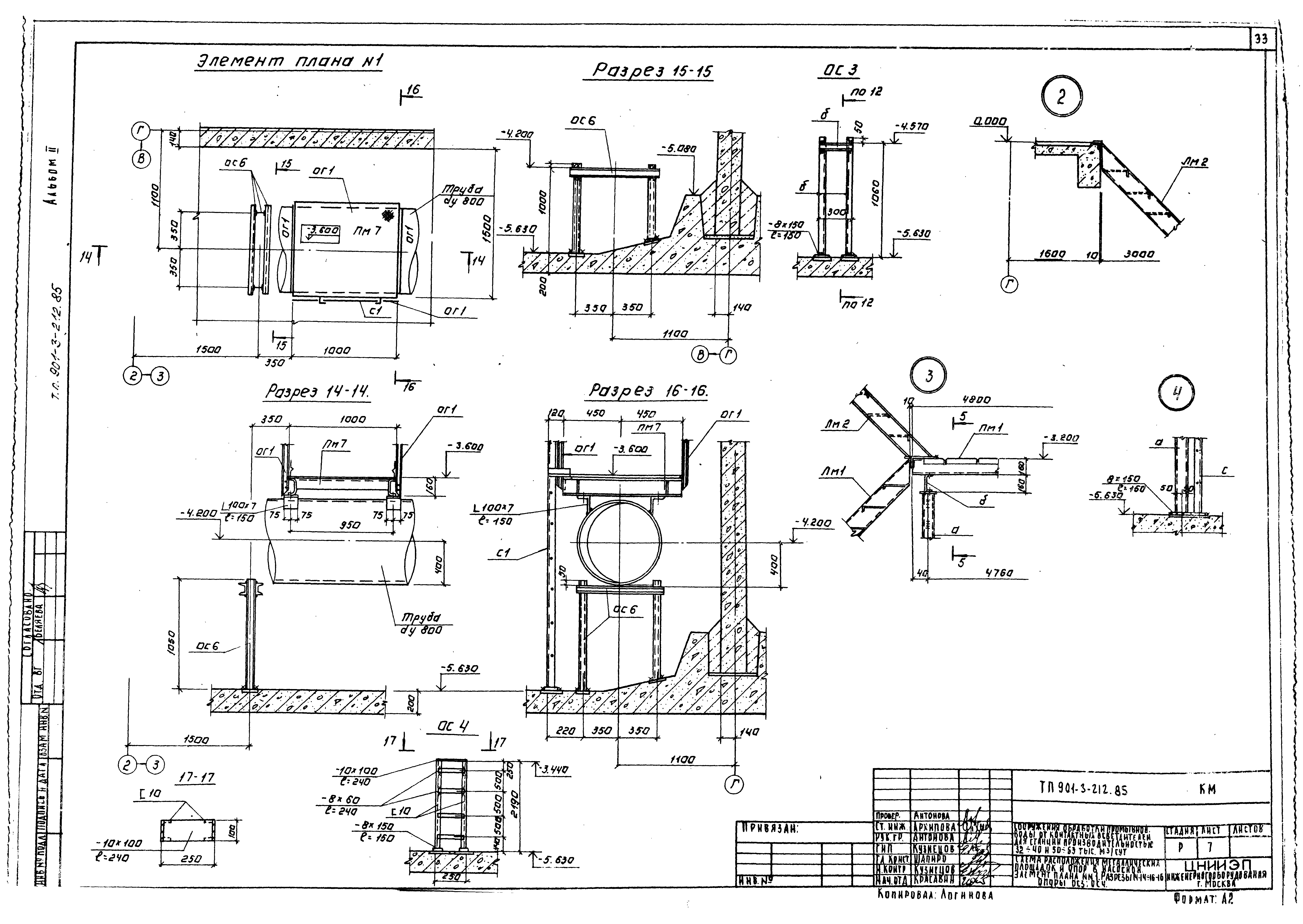
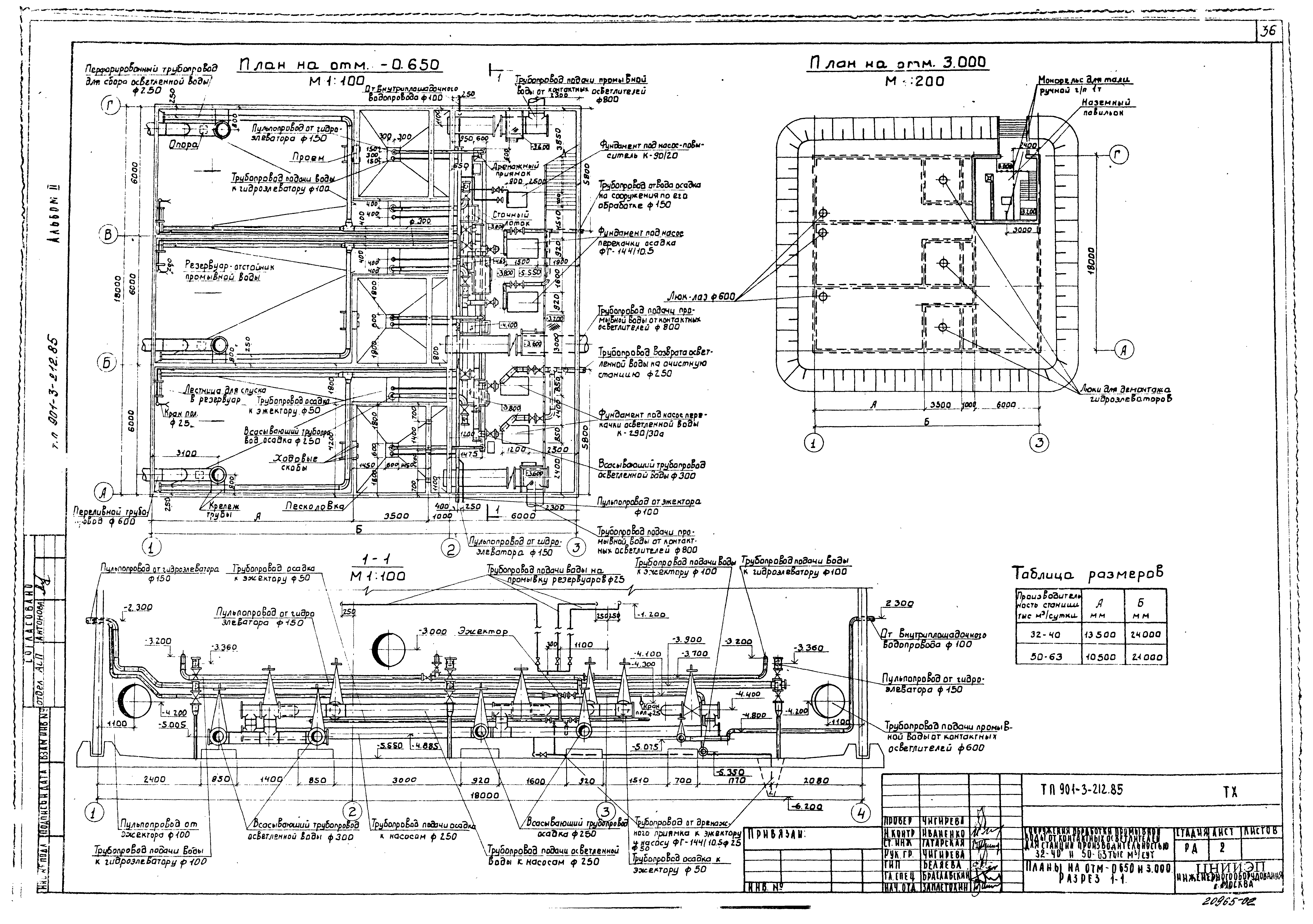
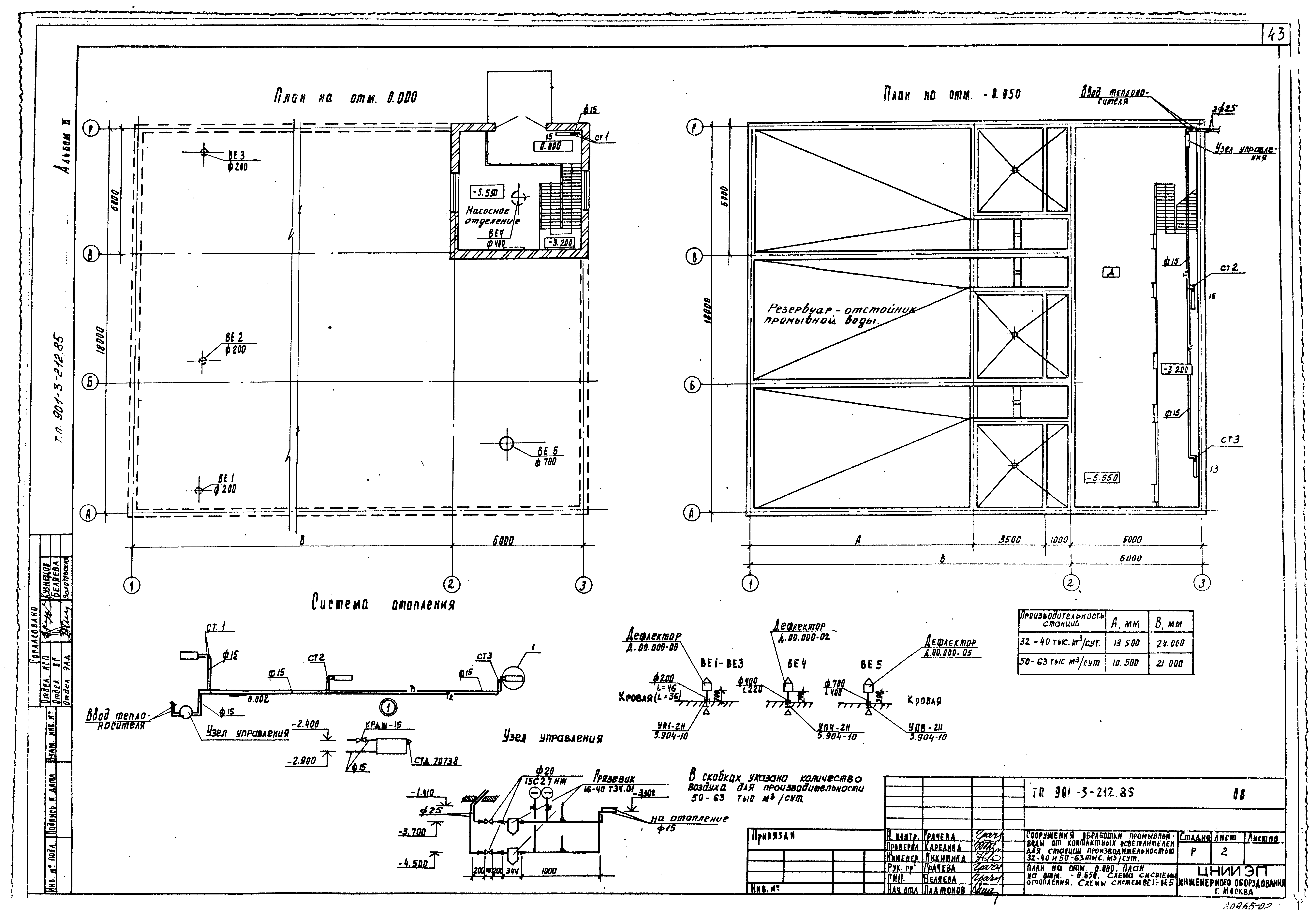
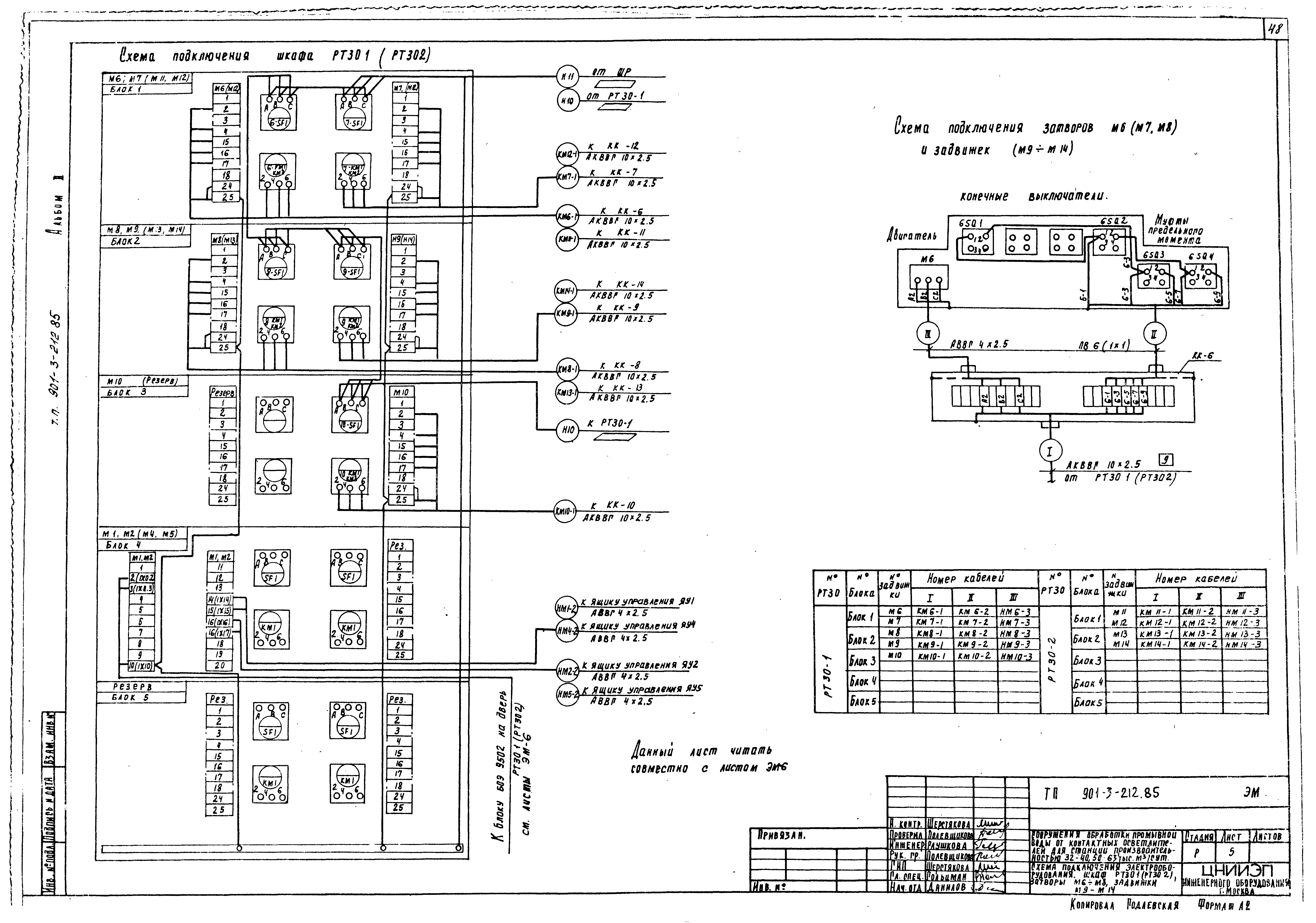
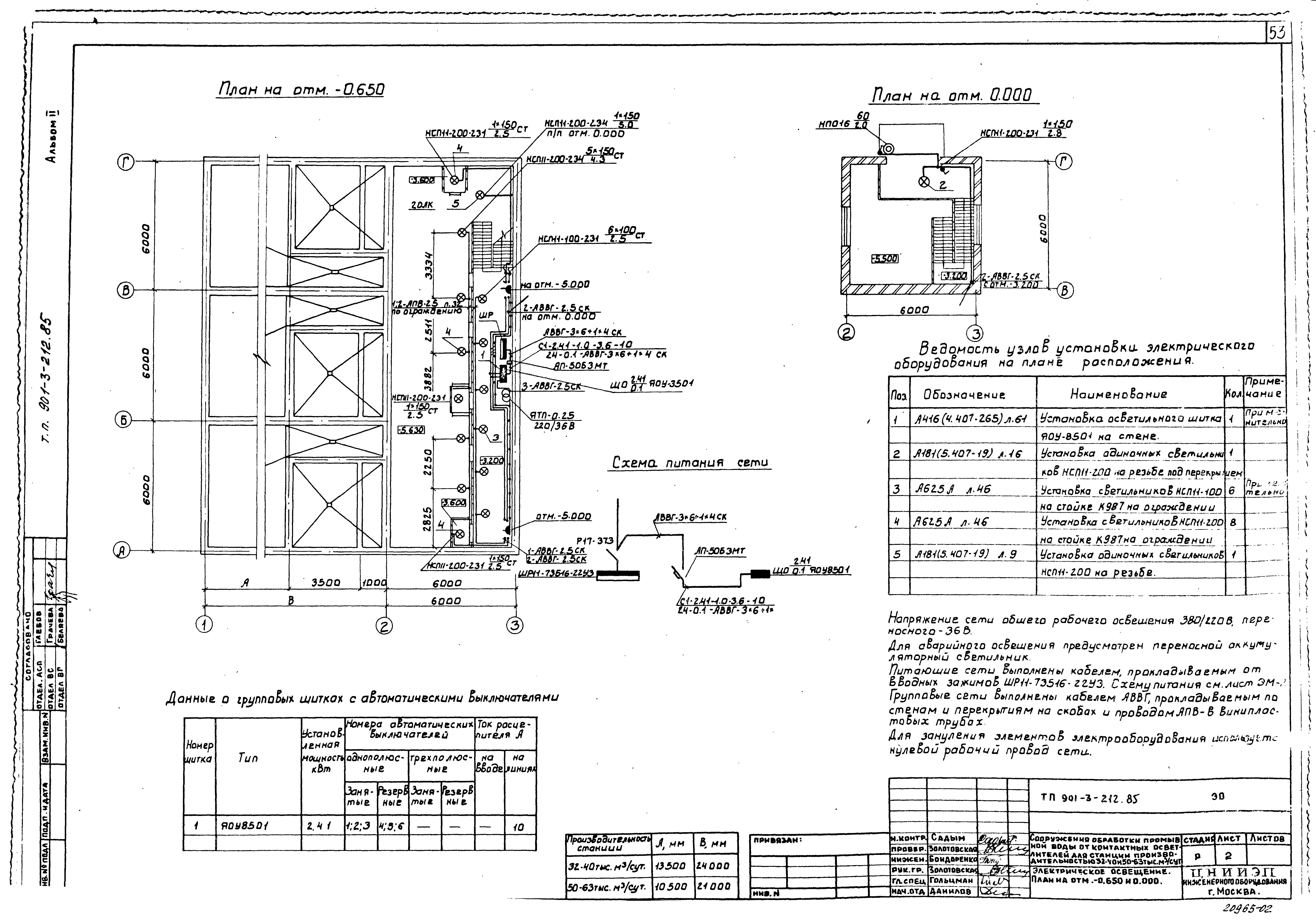
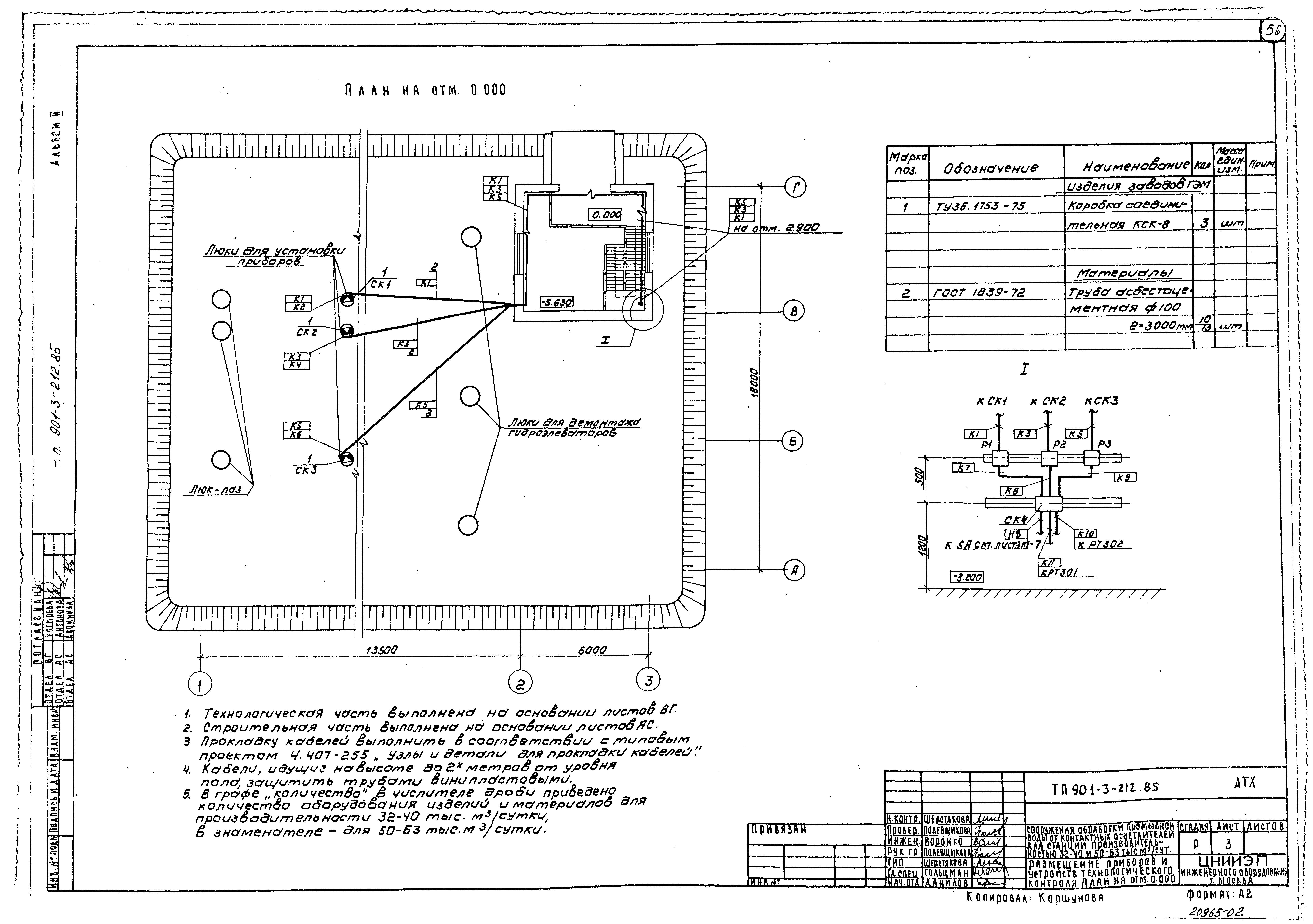
| Оглавление: | Архитектурно-строительные решения Общие данные План на отм. 0,000 План на отм. -0,650. Разрезы 1-1, 2-2 Фасады 1-3, 3-1, А-Г, Г-А Планы кровли и полов. Экспликация полов. Ведомости перемычек и отделки помещений. Спецификация перемычек и элементов заполнения проемов Конструкции железобетонные Общие данные Схема расположения элементов стен Схема расположения плит покрытия Опалубочный чертеж днища Схема расположения элементов стен. Виды 1-1…5-5 Схема расположения элементов стен. Виды 6-6…9-9. Узлы 1…4 Узлы 5…8. Фундаменты под оборудование Фо 1, 2, 3. Разрезы Узлы 9…11 Армирование днища. Схема расположения нижней арматуры Армирование днища. Схема расположения верхней арматуры Армирование днища. Схема расположения каркасов. Узлы 3-4. Ведомость деталей Армирование днища. Узлы 5…7 Спецификация днища Опалубочный чертеж. Участки монолитные Ум1, 2, 3, 4, 5 Участки монолитные Ум1, 2, 4. Армирование Участок монолитный Ум6. Балка Бм1. Опалубочный чертеж Участок монолитный Ум6. Армирование Участки монолитные Ум5, 6. Армирование Спецификация на участки монолитные Ум 5, 6 и 6м1 Площадка Пм1. Балка Бм2.Ум7 Конструкции металлические Общие данные. Техническая спецификация металла Общие данные. Техническая спецификация металла на типовые конструкции Общие данные. Ведомость металлоконструкций по видам профилей Схема расположения подвесного пути на отм. -1,570 и 2,700. Узлы 1…4. Разрезы 1-1…3-3 Схема расположения металлических площадок и опор в насосной. Разрезы 1-1…5-5 Схема расположения металлических площадок и опор в насосной. Разрезы 6-6…13-13. Опоры металлические ОС1, ОС2, ОС5, ОС6 Схема расположения металлических площадок и опор в насосной. Элемент плана №1. Разрезы 14-14…16-16. Опор ОС3, ОС4 Схема расположения кронштейнов площадок, лестниц, ограждений и стремянок Технологические решения Общие данные Планы на отм. -0,650 и 3,000. Разрез 1-1 Фрагмент насосной на отм. -0,650. Разрез 2-2 Схемы В1, В3, К3, К6 Эжектор. Эскизный чертеж общего вида Гидроэлеватор. Эскизный чертеж общего вида Трубопровод перфорированный. Эскизный чертеж общего вида Отопление и вентиляция Общие данные План на отм. 0,000. План на отм. -0,650. Схема системы отопления. Схемы систем ВЕ1…ВЕ5 Электротехническая часть Общие данные Схема электрическая принципиальная распределительной сети ~380/220 В Схема электрическая принципиальная управления насосами М1, М2, М4, М5 Схема электрическая принципиальная управления затворами М6…М8, М9…М14 Схема подключения электрооборудования. Шкаф РТ301 (РТ302). Затворы М6…М8, задвижки М9…М14 Схема подключения электрооборудования. Шкаф РТ301 (РТ302). Ящики управления ЯУ1, ЯУ2, ЯУ3, ЯУ4, ЯУ5 Кабельный журнал Размещение электрооборудования и прокладка кабелей. План на отм. -0,650 Электроосвещение Общие данные Электрическое освещение. Планы на отм. -0,650 и 0,000 Автоматизация Общие данные. Схема функциональная технологического процесса Схема подключения приборов и устройств технологического контроля Размещение приборов и устройств технологического контроля |
| Разработан: | ЦНИИЭП |
| Утверждён: | 06.05.1980 Госгражданстрой (Gosgrazhdanstroy 120) |

























































