Скачать Типовой проект 901-3-199.85 Альбом 2. Архитектурно-строительные решения, технологическая, санитарно-техническая, электротехническая частиДата актуализации: 01.01.2021
|
| Обозначение: | Типовой проект 901-3-199.85 |
| Обозначение англ: | 901-3-199.85 |
| Статус: | не определен законодательством |
| Название рус.: | Альбом 2. Архитектурно-строительные решения, технологическая, санитарно-техническая, электротехническая части |
| Дата добавления в базу: | 01.09.2013 |
| Дата актуализации: | 01.01.2021 |
| Дата введения: | 01.03.1986 |
| Дата окончания срока действия: | 30.06.2003 |
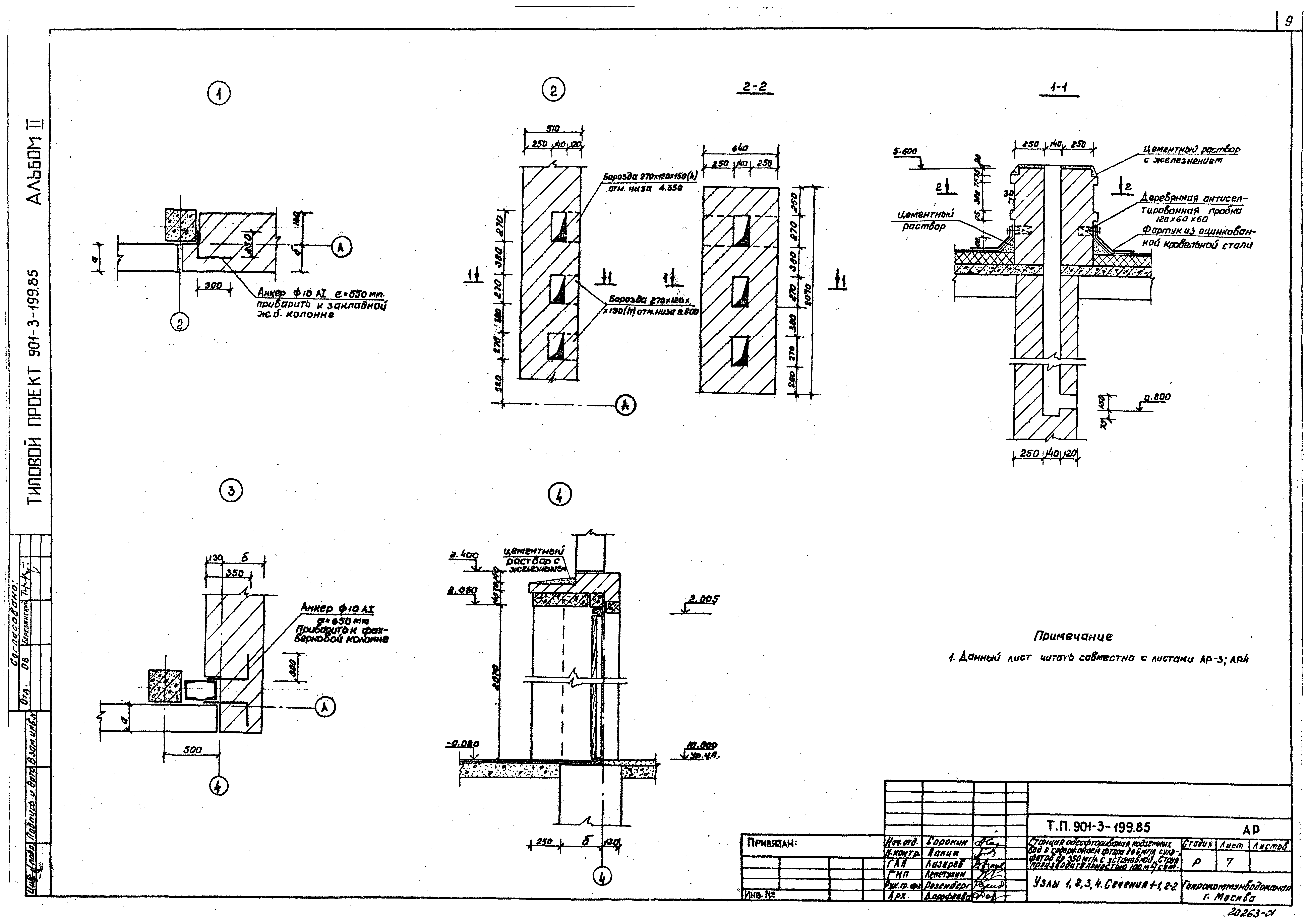
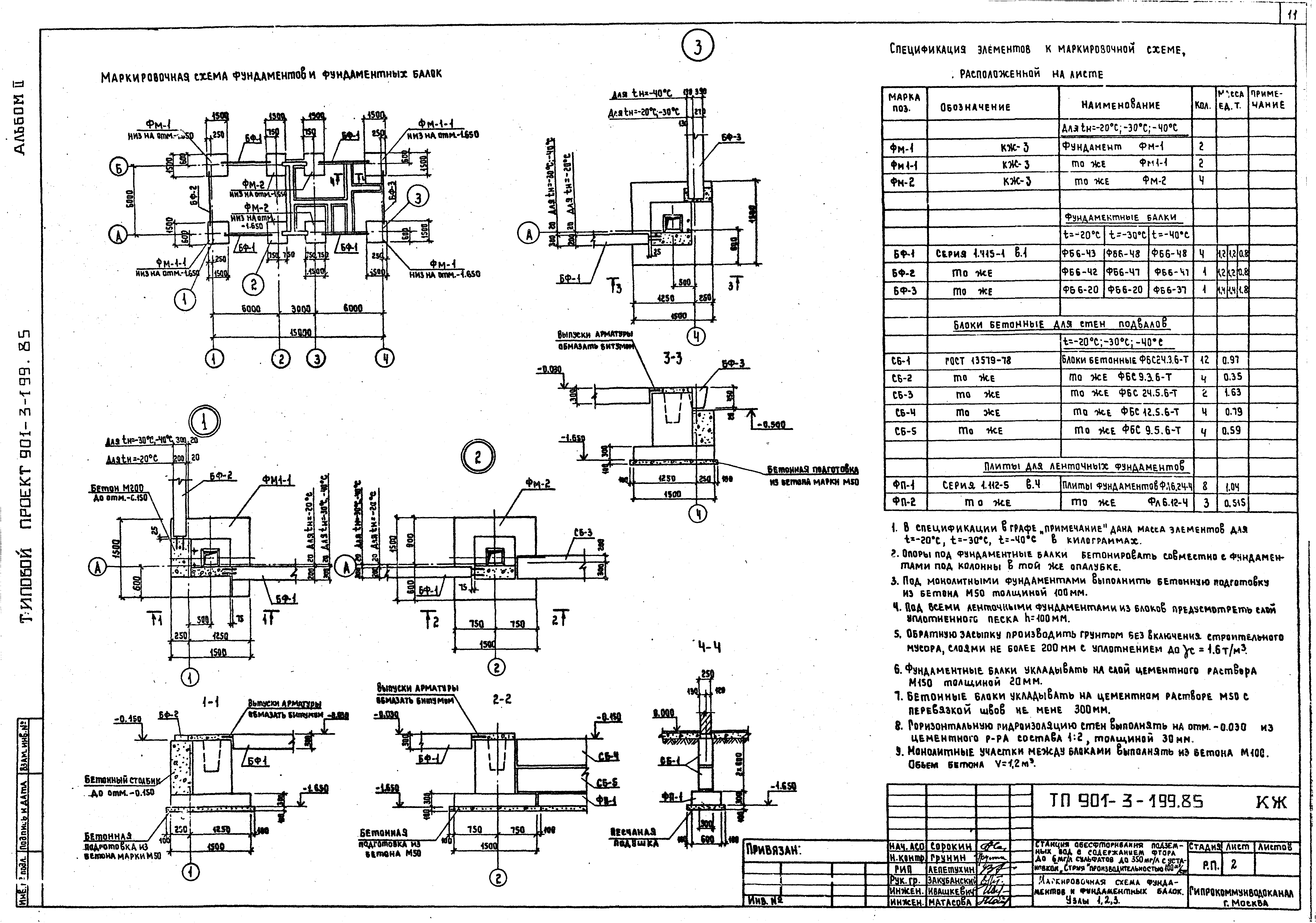
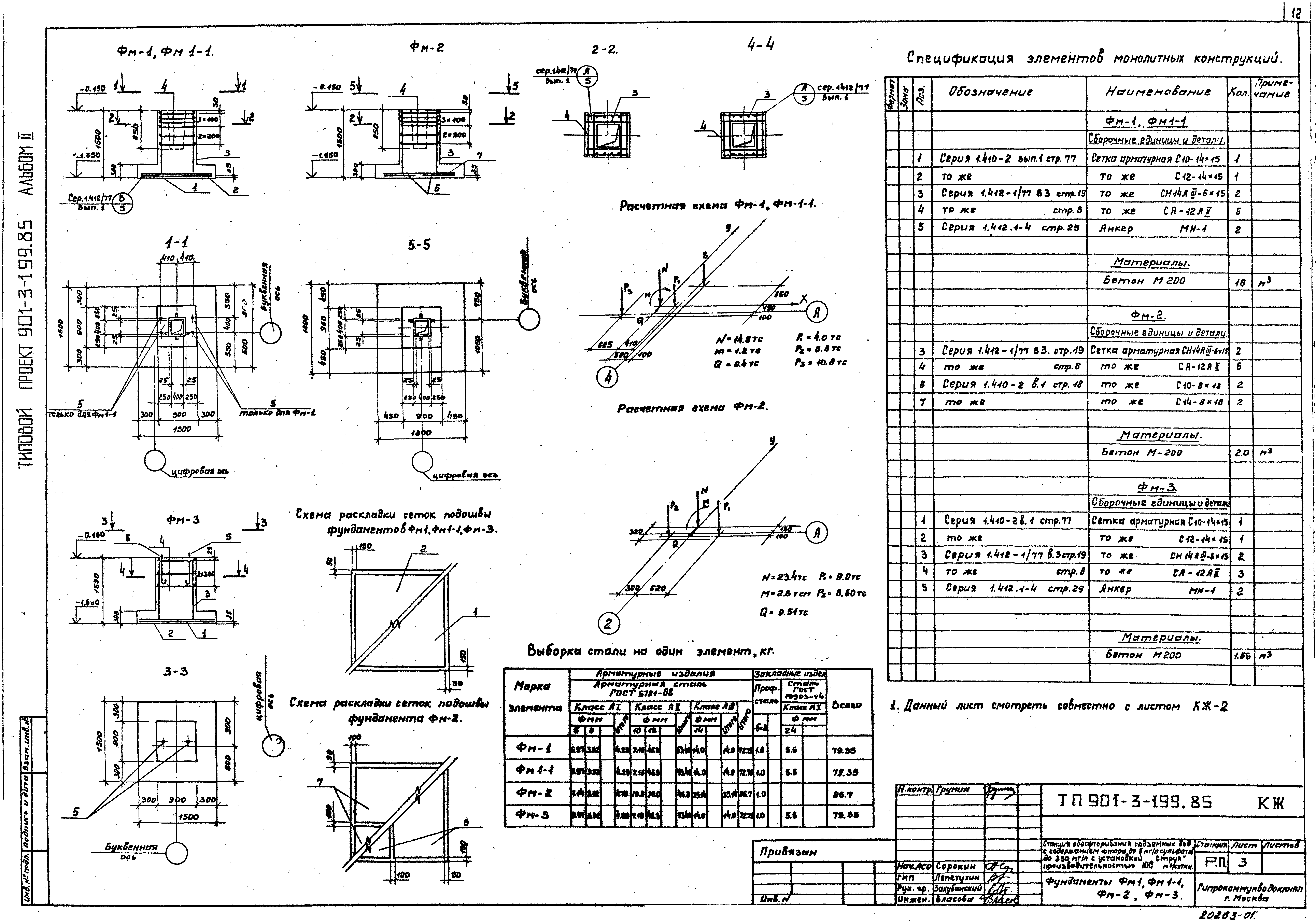
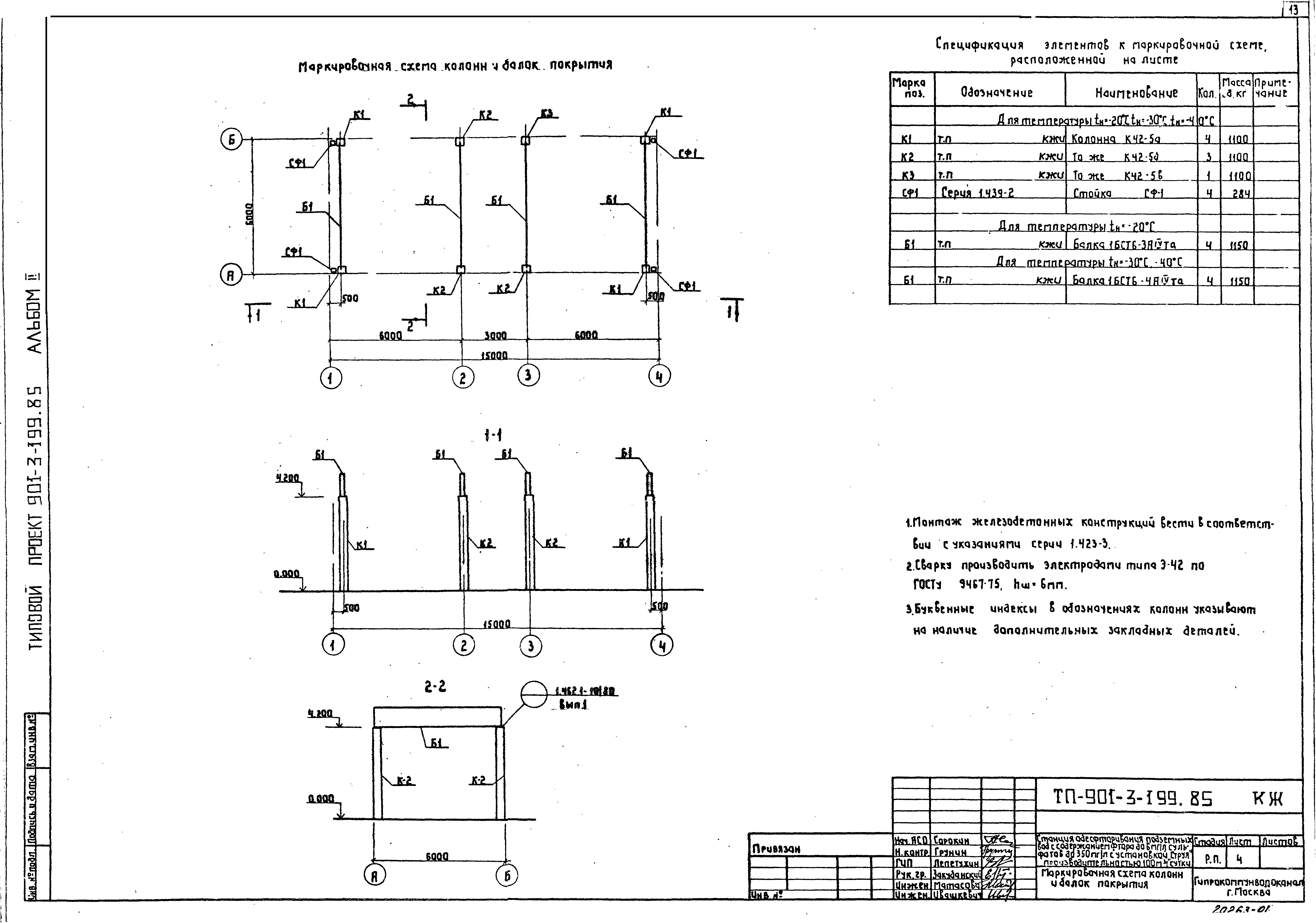
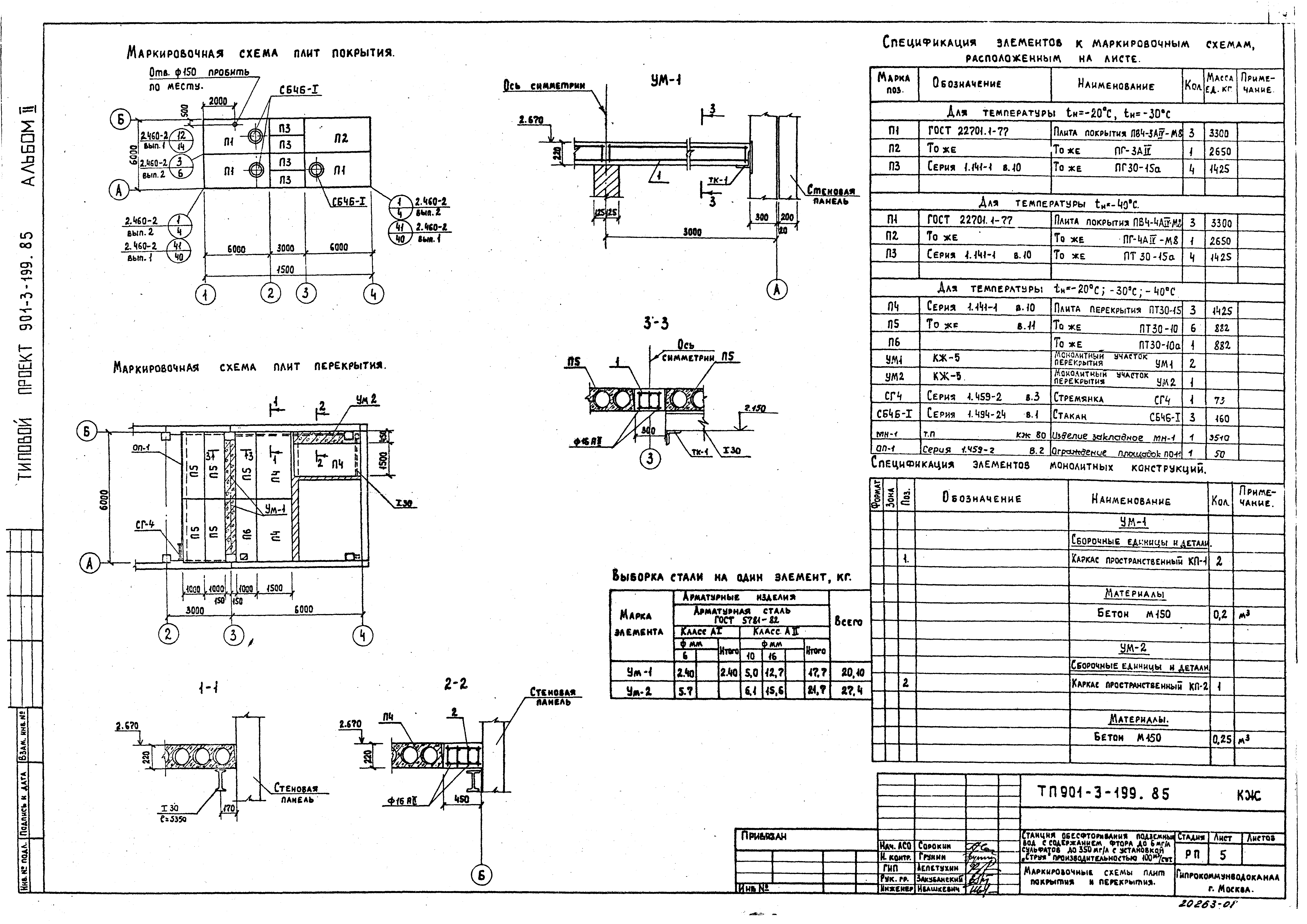
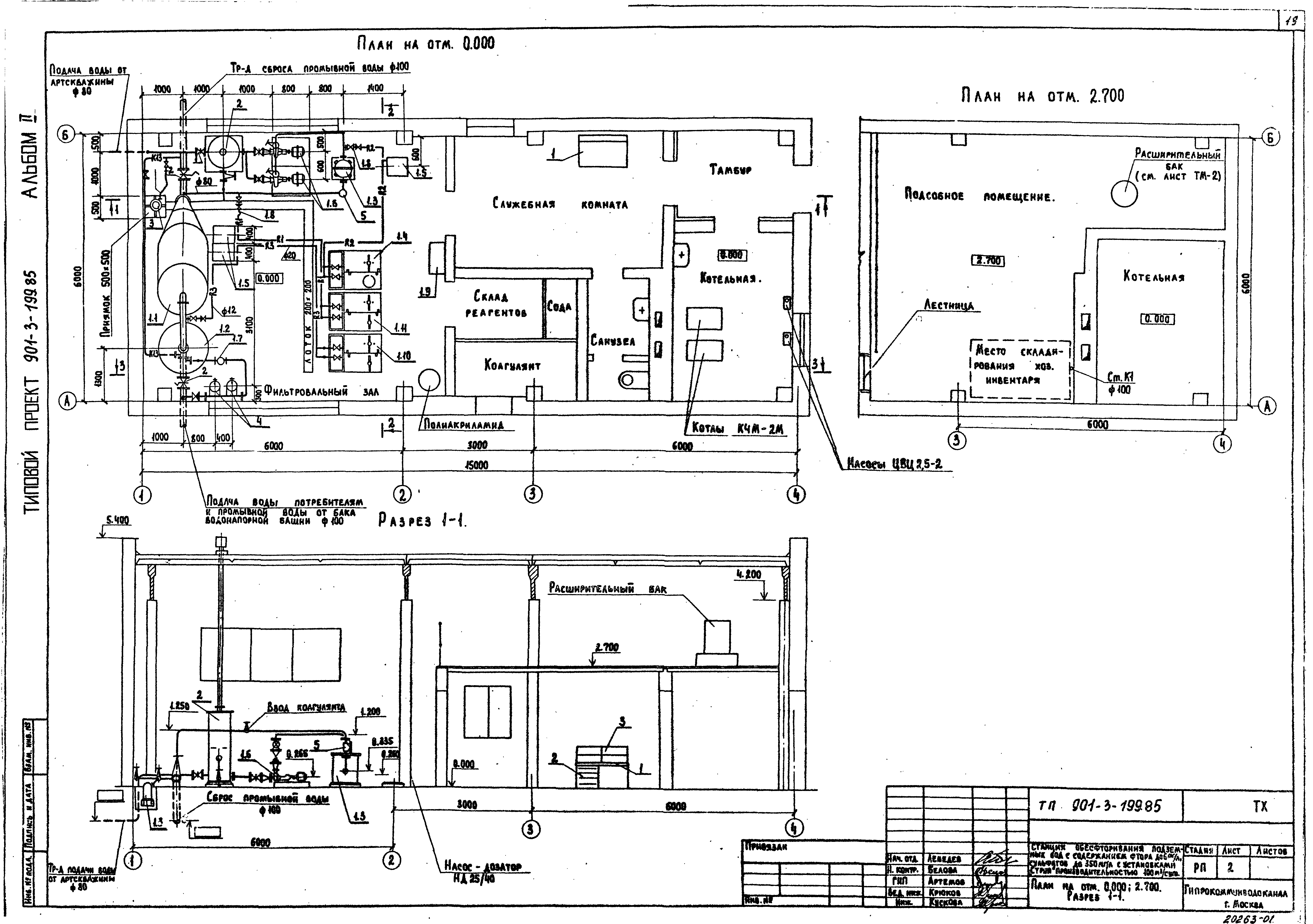
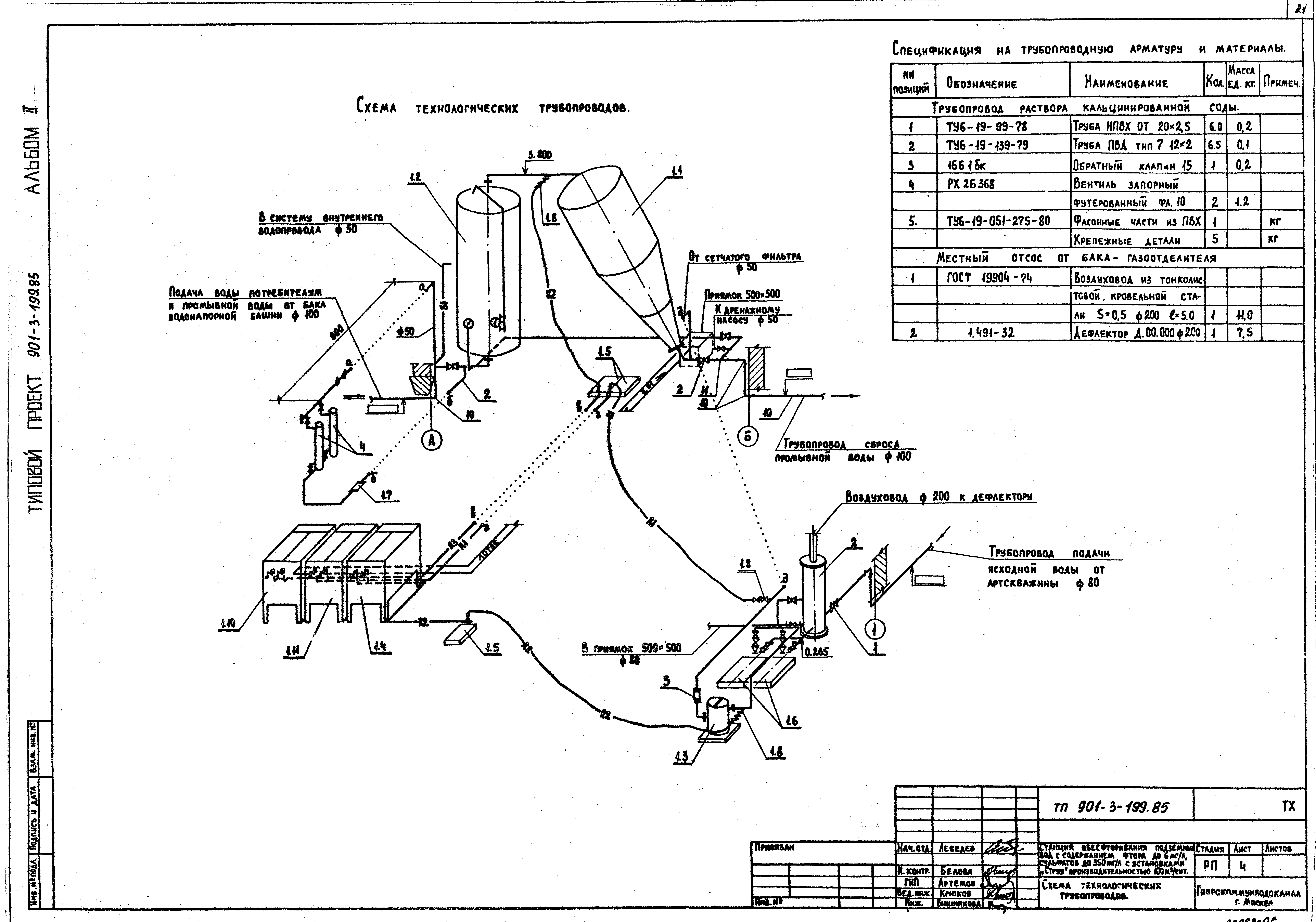
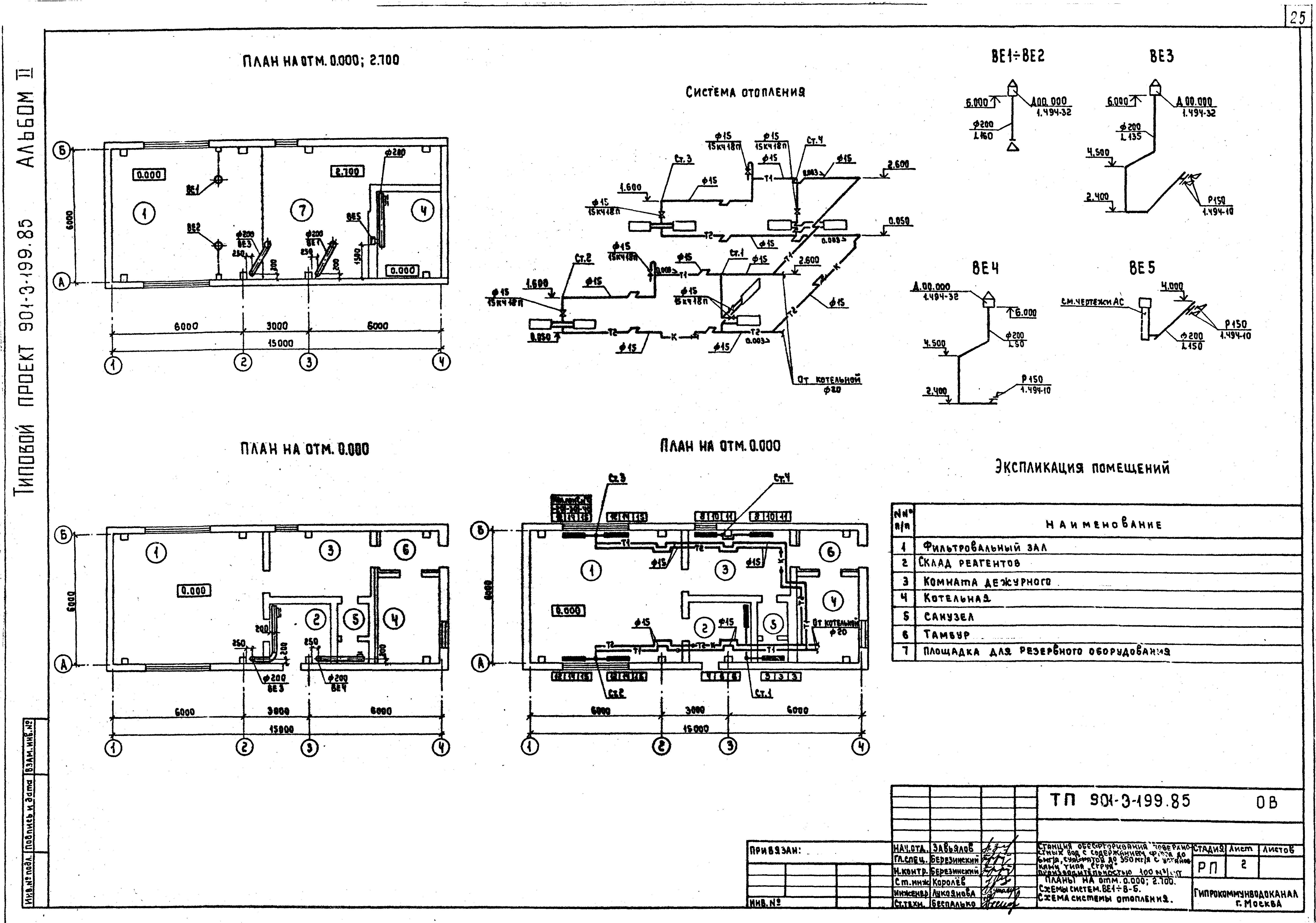
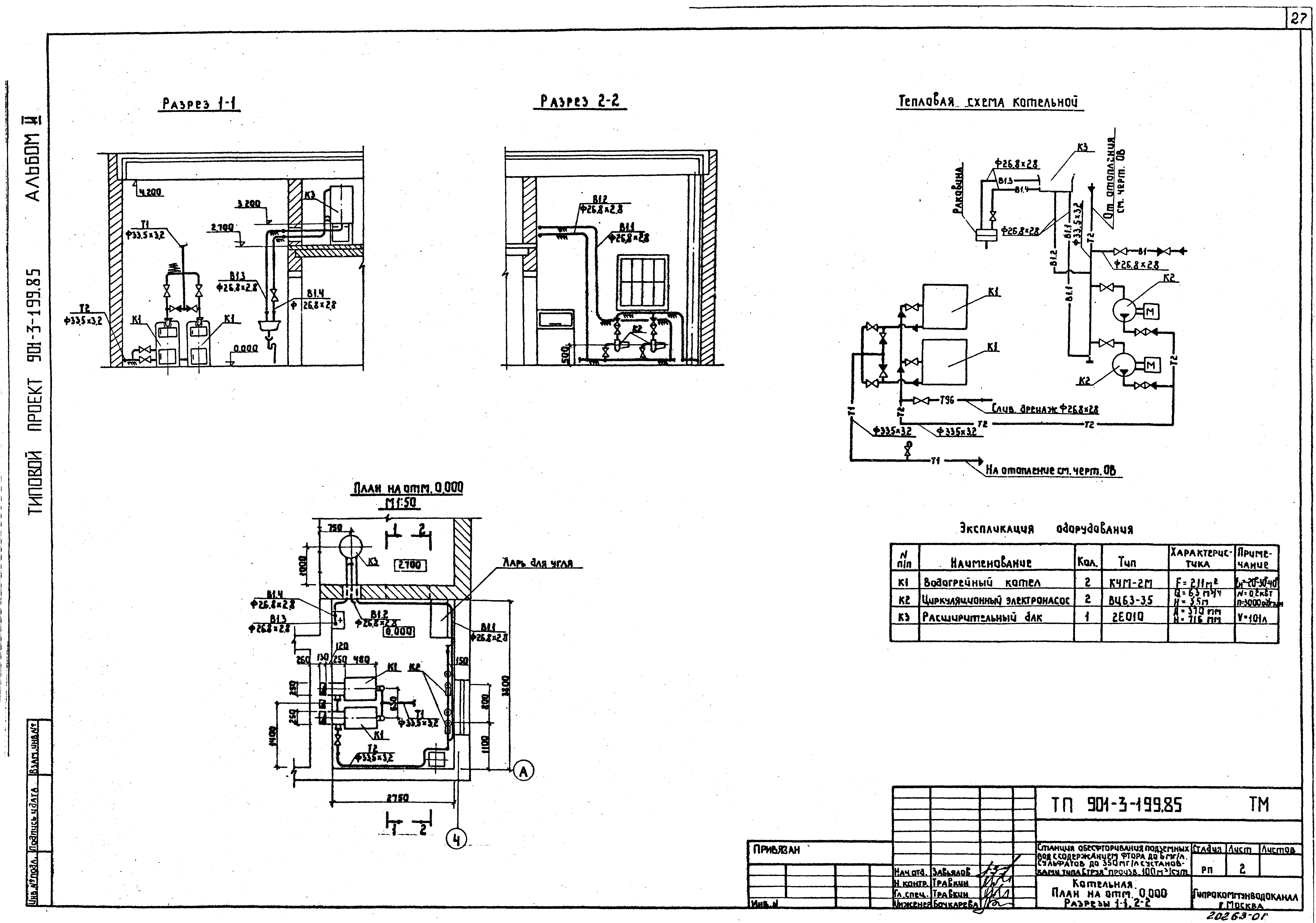
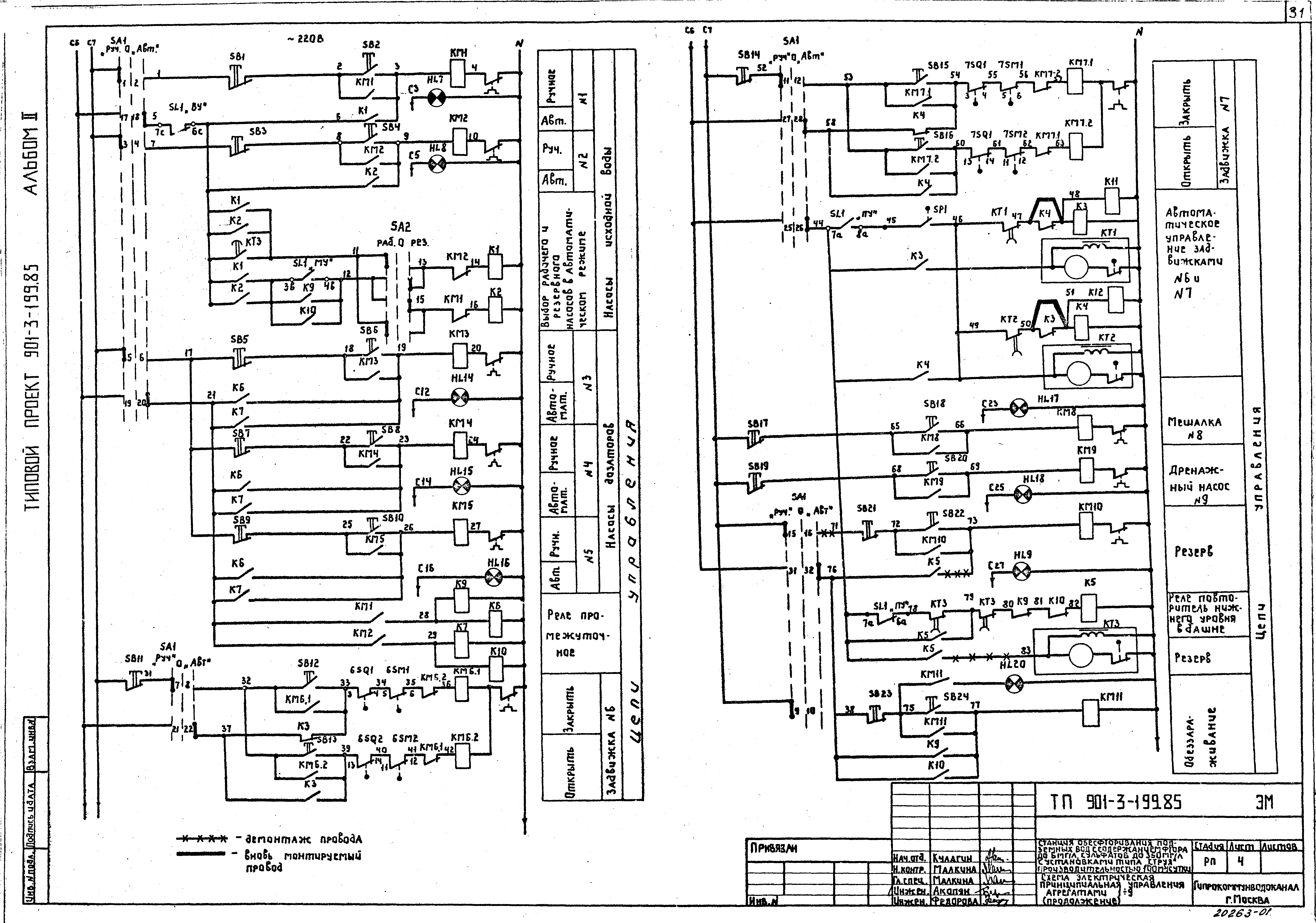
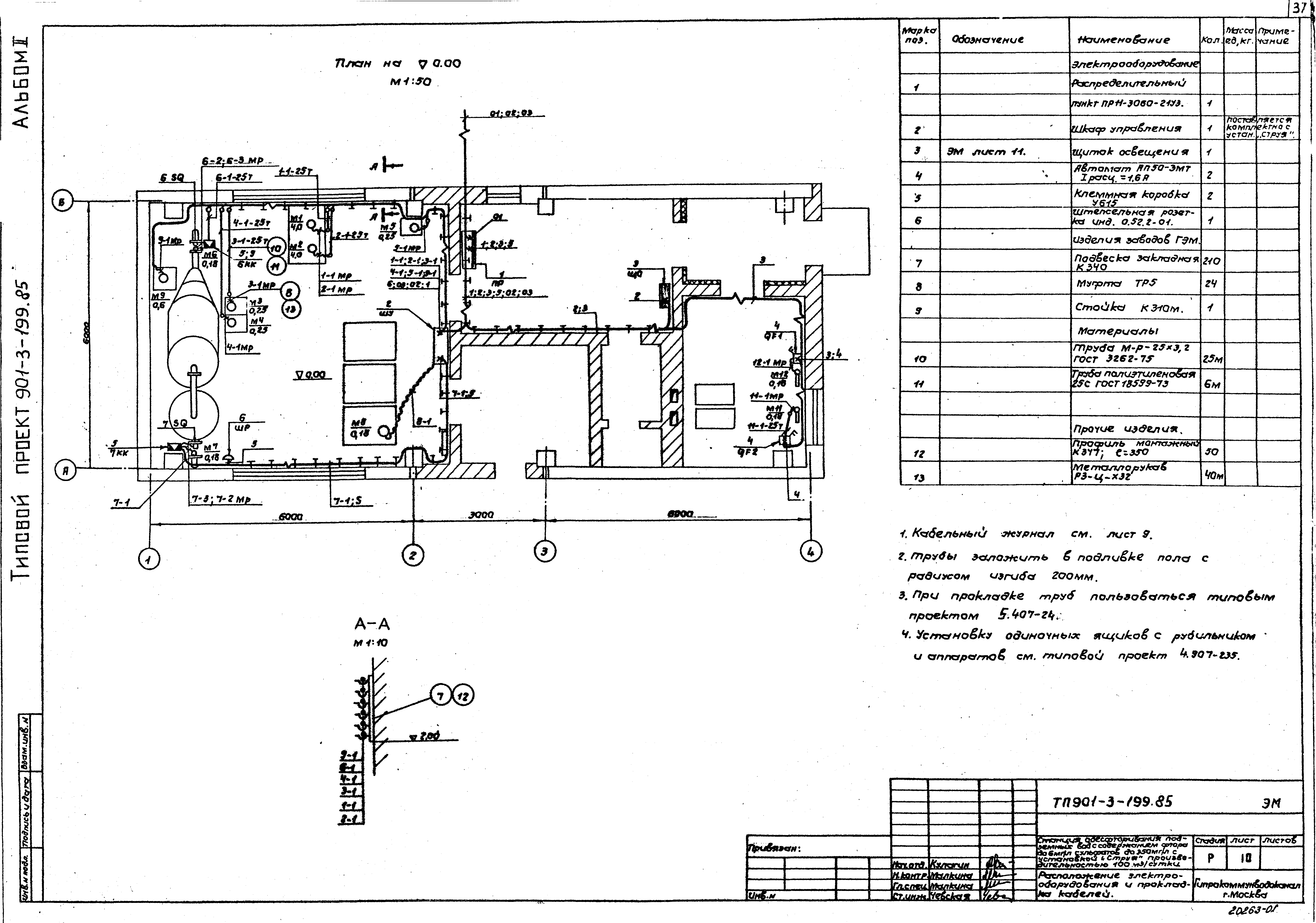
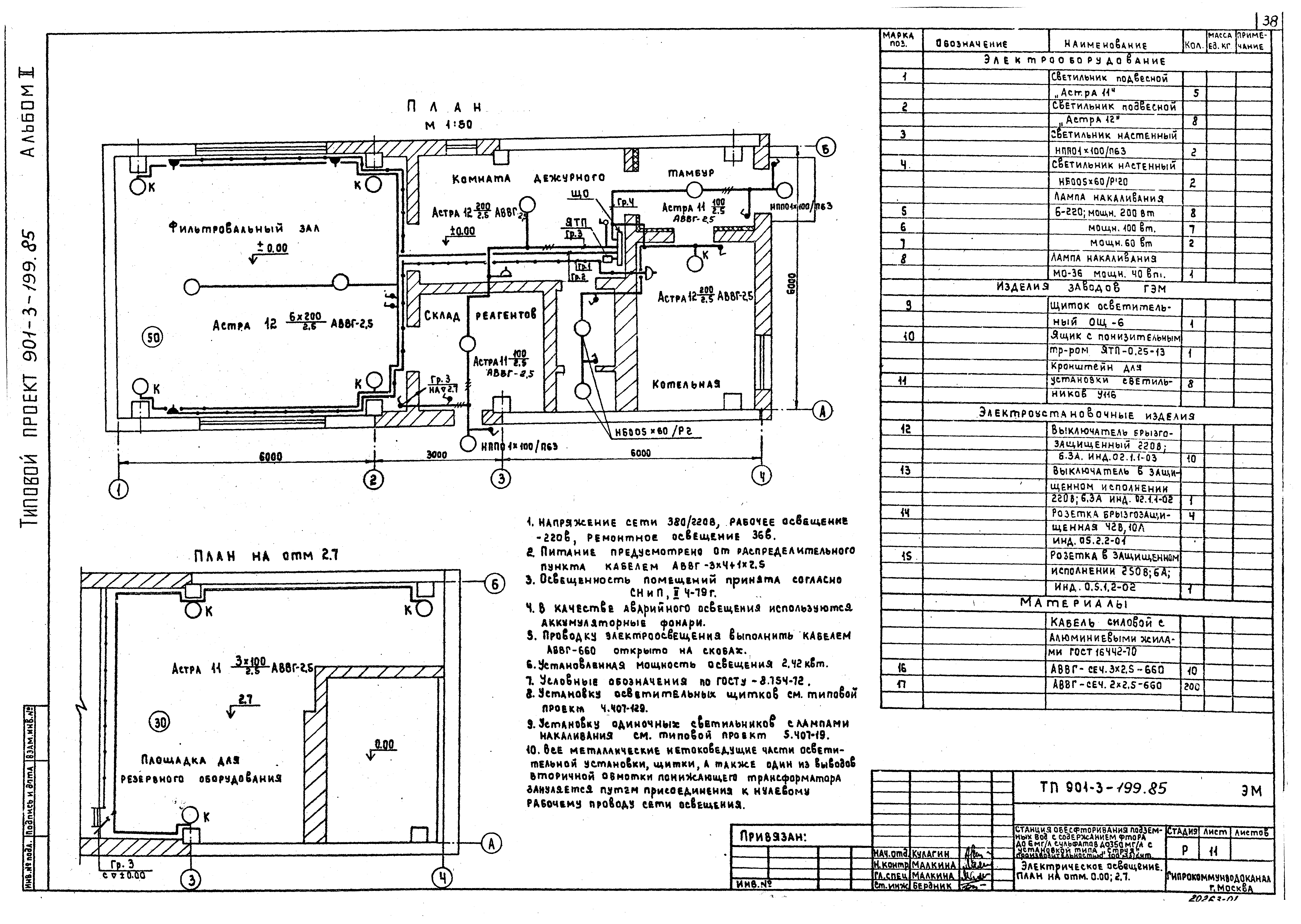
| Оглавление: | АР-1 Общие данные АР-2 Генплан АР-3 Планы на отм. 0,000 и 2,700. Экспликация помещений АР-4 Разрезы 1-1, 2-2 АР-5 Фасады 1-4, 4-1, А-Б, Б-А АР-6 План полов. План кровли. Экспликация полов. Ведомость отделки помещений. Ведомость перемычек АР-7 Узлы 1, 2, 3, 4. Сечения 1-1, 2-2 КЖ-1 Общие данные КЖ-2 Маркировочная схема фундаментов и фундаментных балок. Узлы 1, 2, 3 КЖ-3 Фундаменты Фм-1, Фм1-1, Фм-2, Фм-3 КЖ-4 Маркировочная схема колонн и балок покрытия КЖ-5 Маркировочные схемы плит покрытия и перекрытия КЖ-6 Маркировочные схемы стеновых панелей по осям "А", "Б", "1", "4". Фрагменты 1, 2, 3, 4, 5, 6. Маркировочная схема стальных насадок торцевого фахверка по осям "1" и "4" КЖ-7 Спецификации элементов к маркировочным схемам стеновых панелей КЖ-8 Маркировочная схема фундаментов под оборудование. Фундаменты ФО-1, ФО-2, ФО-3, ФО-4, ФО-5. Сечения 5-5, 6-6, 7-7 ТХ-1 Общие данные ТХ-2 План на отм. 0,000; 2,700. Разрез 1-1 ТХ-3 Разрезы 2-2, 3-3 ТХ-4 Схема технологических трубопроводов ТХ-5 Спецификация материалов и оборудования ВК-1 План на отм. 0,000. Схемы систем В1, К1 ОВ-1 Общие данные ОВ-2 Планы на отм. 0,000; 2,700. Схемы систем ВЕ1…2, 3, 4, 5. Схема системы отопления ТМ-1 Общие данные ТМ-2 Котельная. План на отм. 0,000. Разрезы 1-1, 2-2 ЭМ-1 Общие данные ЭМ-2 Схема электрическая принципиальная однолинейная ~380/220 В ЭМ-3 Схема электрическая принципиальная управления агрегатами 1…9 (начало) ЭМ-4 Схема электрическая принципиальная управления агрегатами 1…9 (продолжение) ЭМ-5 Схема электрическая принципиальная управления агрегатами 1…9 (окончание) ЭМ-6 Схема электрическая подключения отдельно стоящего оборудования (начало) ЭМ-7 Схема электрическая подключения отдельно стоящего оборудования (окончание) ЭМ-8 Шкаф управления ЩУ. Изменения в монтажной схеме ЭМ-9 Кабельный журнал. Сводка кабелей и проводов ЭМ-10 Расположение электрооборудования и прокладка кабелей ЭМ-11 Электрическое освещение. План на отм. 0,000 и 2,700 ЭМ.ВО-1 Ведомость объемов электромонтажных и строительных работ АТХ-1 Общие данные. Ведомость на приборы и средства автоматизации, кабельные изделия и материалы АТХ-2 Схема функциональная АТХ-3 Схема внешних кабельных и трубных прокладок. План проводок |
| Разработан: | Гипрокоммунводоканал Минжилкомхоза РСФСР |
| Утверждён: | 22.11.1984 МЖКХ РСФСР (20-ТД) |











































