Скачать Серия 1.463-9 Выпуск 1. Рабочие чертежи ферм с параллельными поясамиДата актуализации: 01.01.2021
|
| Обозначение: | Серия 1.463-9 |
| Обозначение англ: | Series 1.463-9 |
| Статус: | отменен |
| Название рус.: | Выпуск 1. Рабочие чертежи ферм с параллельными поясами |
| Дата добавления в базу: | 01.10.2014 |
| Дата актуализации: | 01.01.2021 |
| Дата введения: | 15.02.1974 |
| Дата окончания срока действия: | 01.10.2000 |
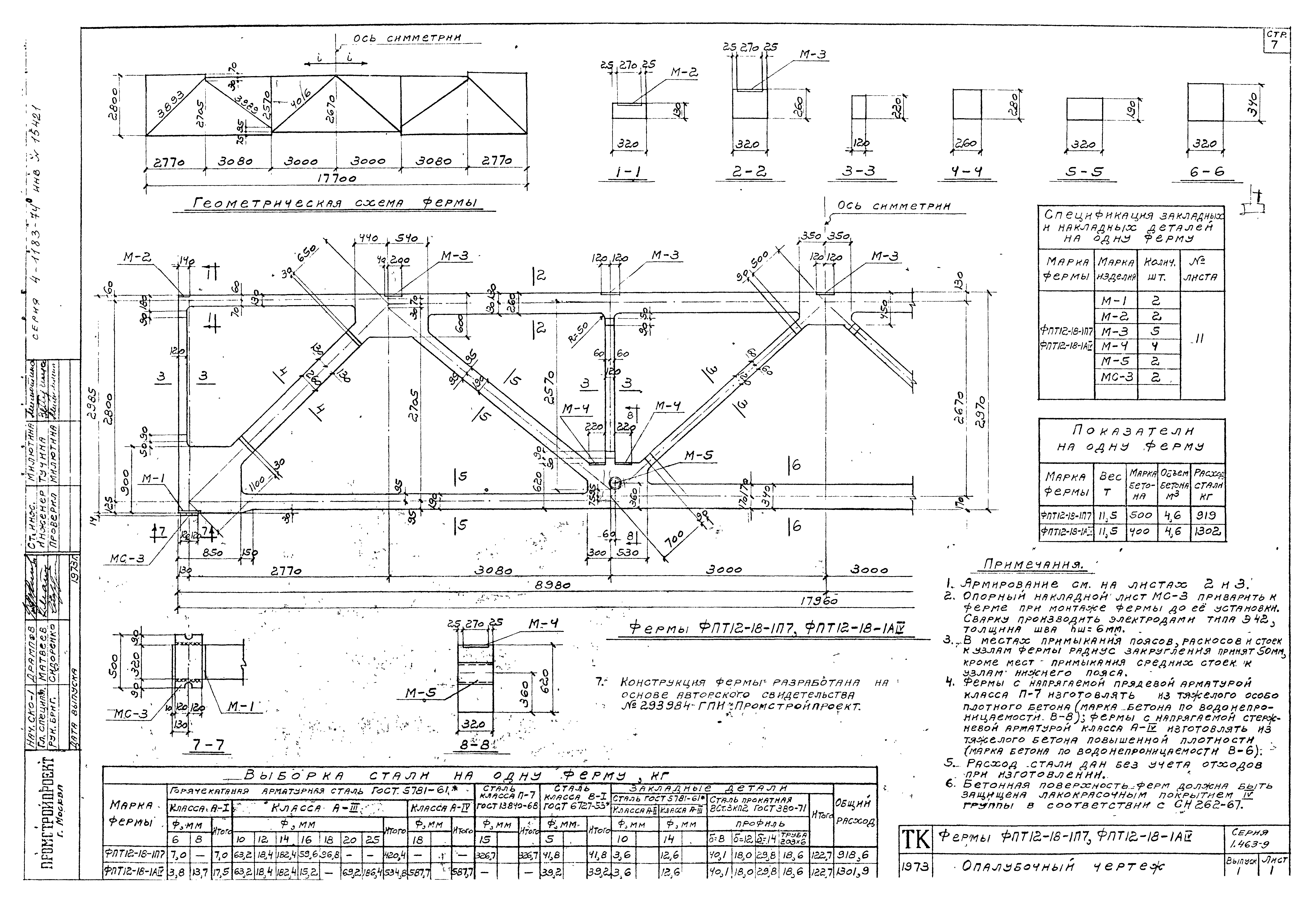
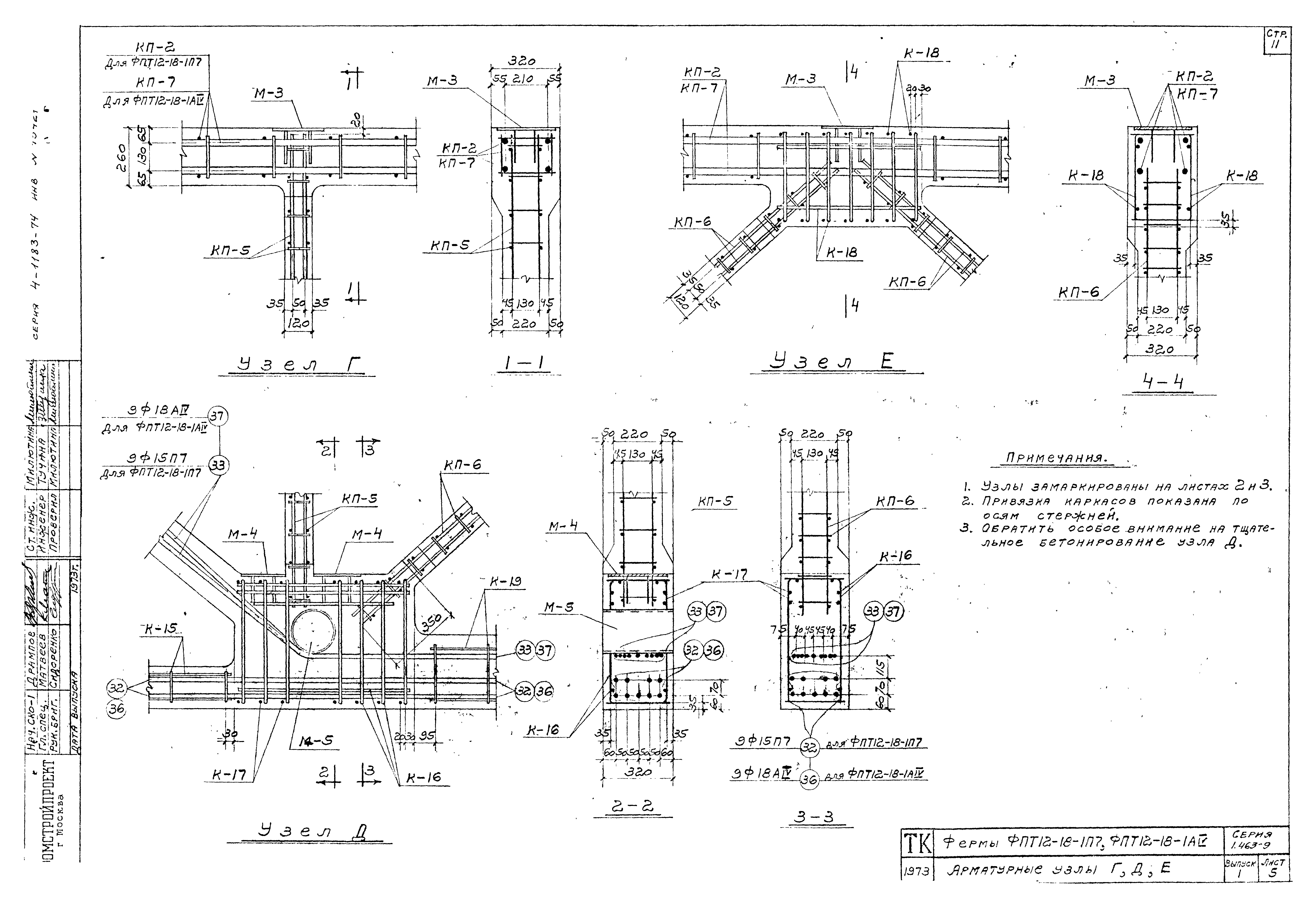
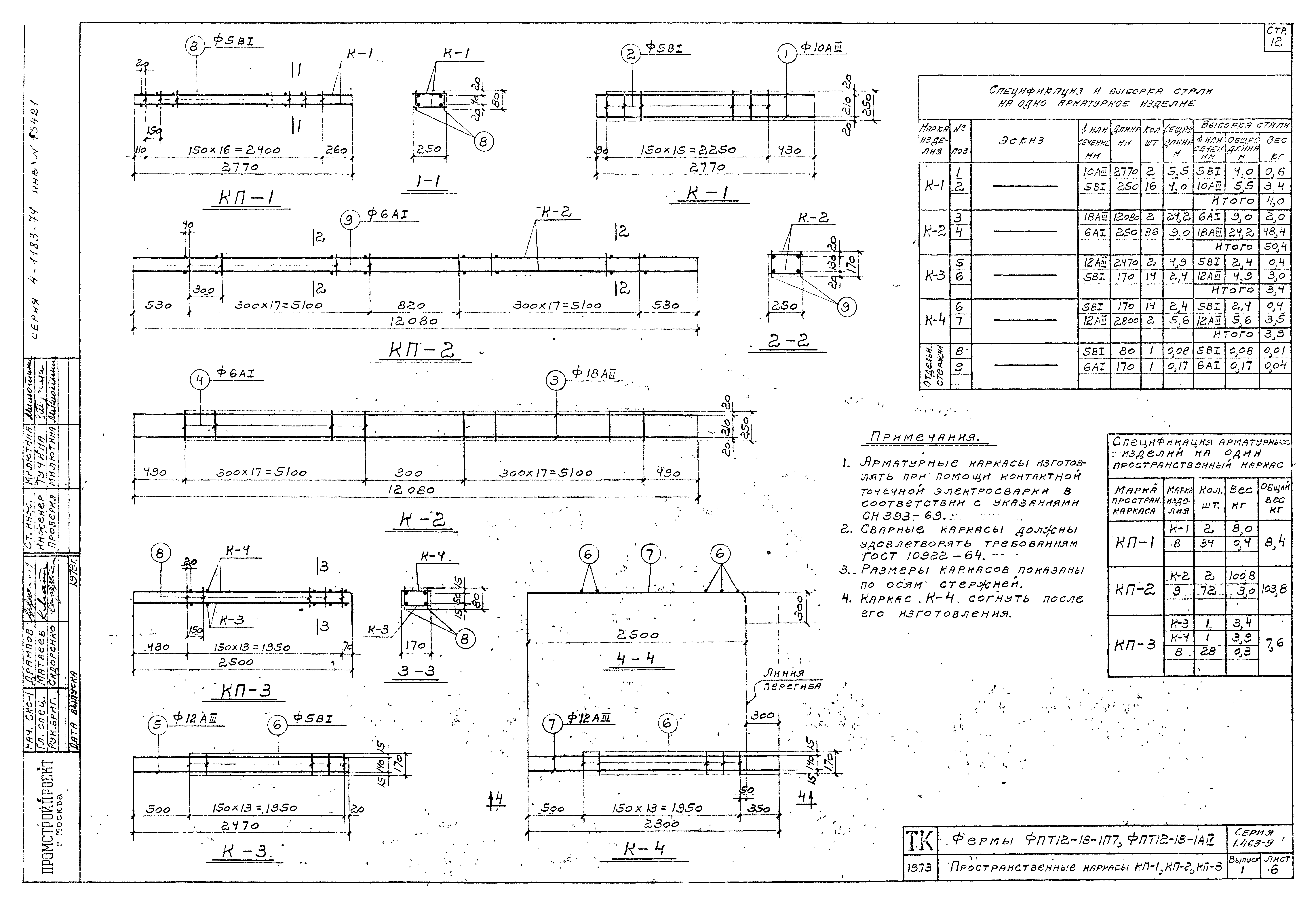
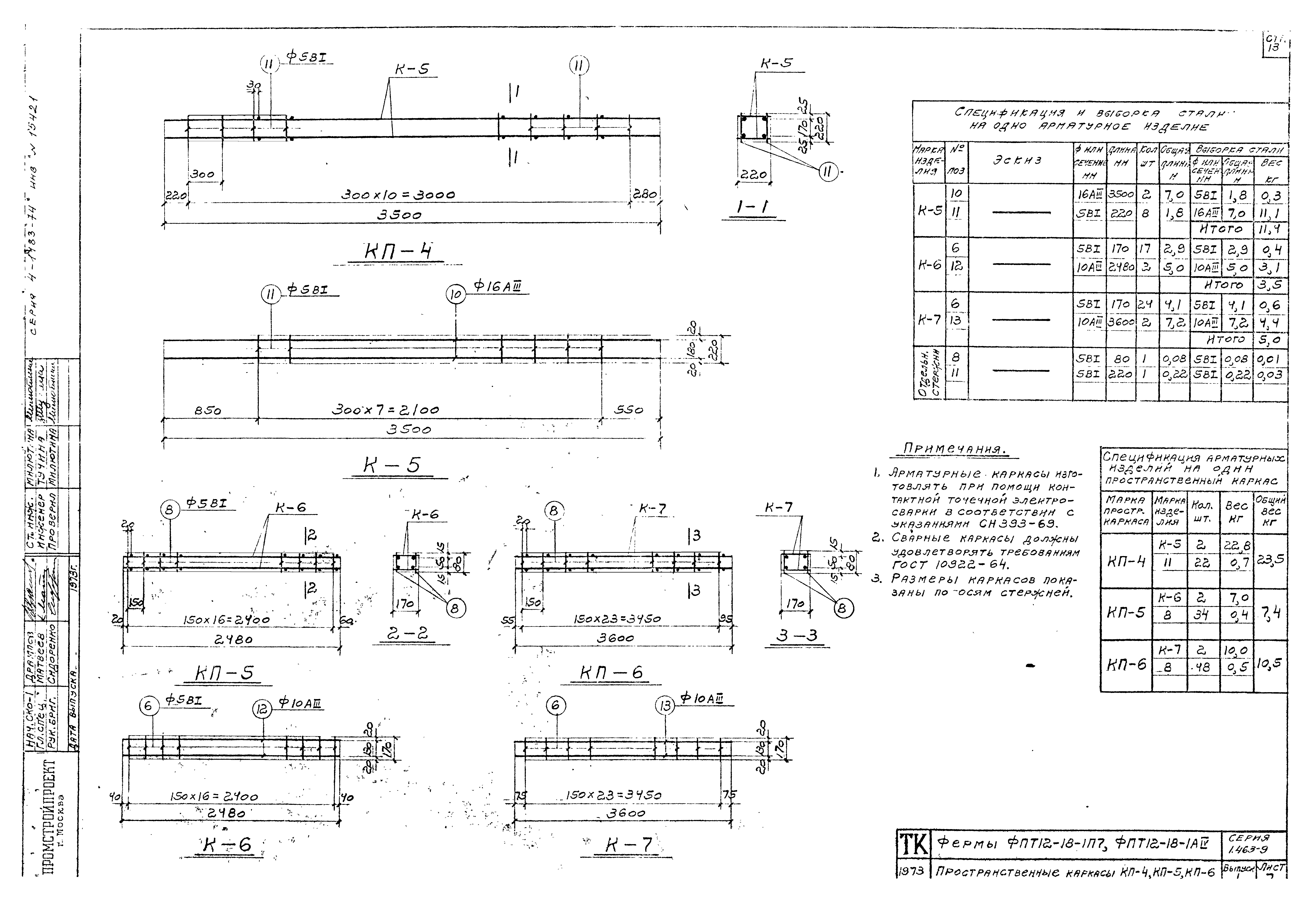
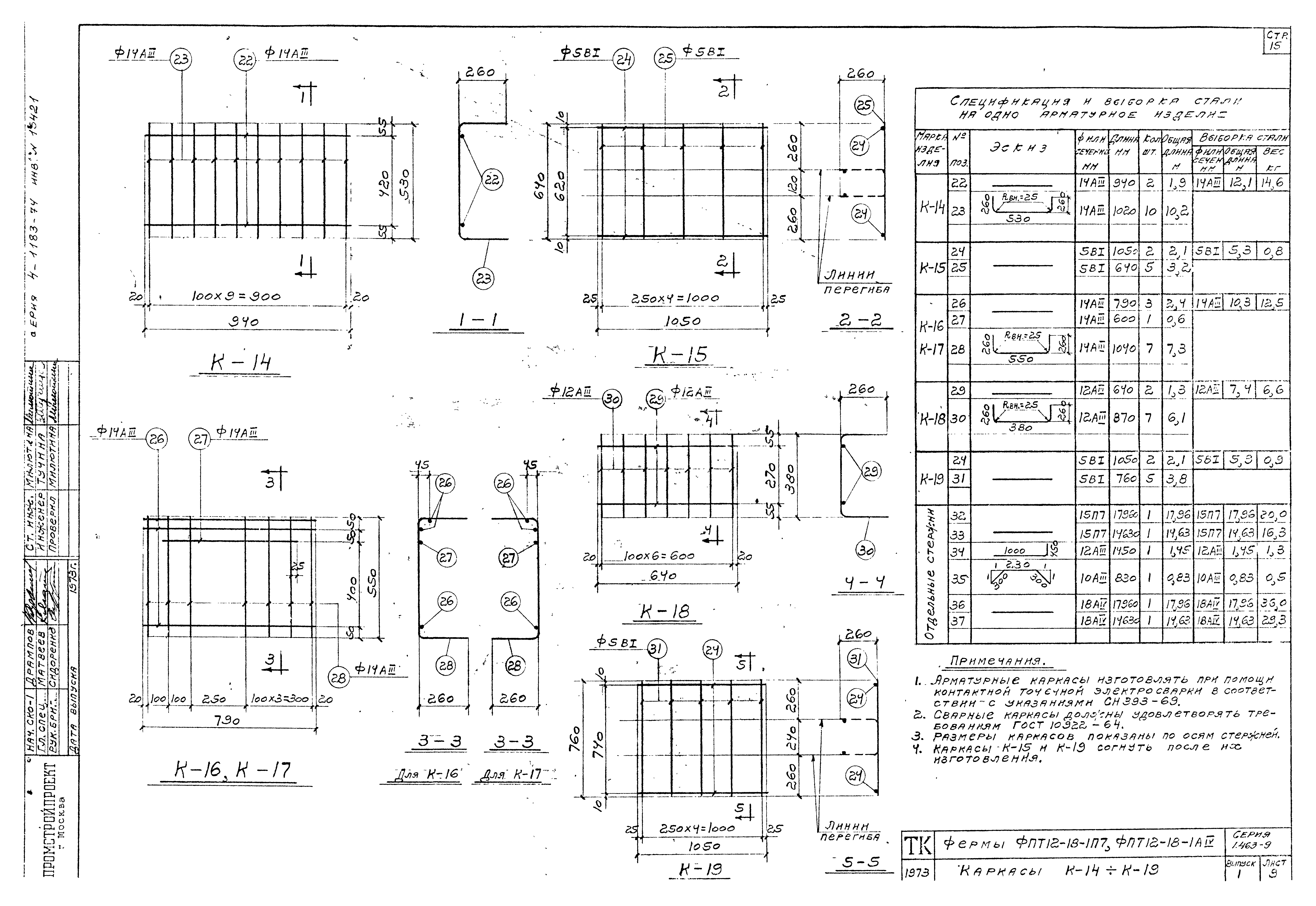
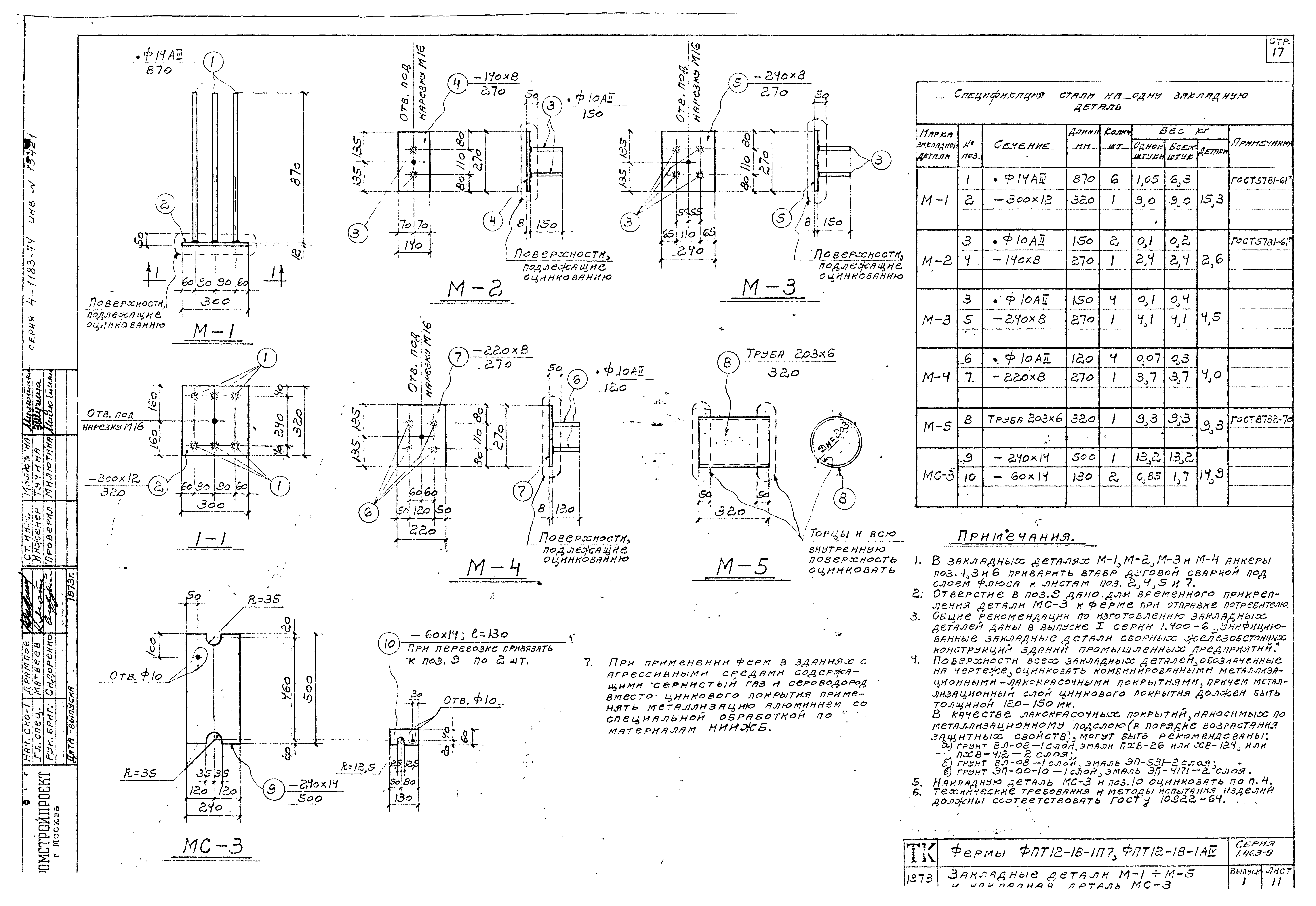
| Оглавление: | Пояснительная записка Фермы ФПТ12-18-1П7, ФПТ12-18-1АIV. Опалубочный чертеж Ферма ФПТ12-18-1П7. Арматурный чертеж Ферма ФПТ12-18-1АIV. Арматурный чертеж Фермы ФПТ12-18-1П7, ФПТ12-18-1АIV. Арматурные узлы А, Б, В Фермы ФПТ12-18-1П7, ФПТ12-18-1АIV. Арматурные узлы Г, Д, Е Фермы ФПТ12-18-1П7, ФПТ12-18-1АIV. Пространственные каркасы КП-1, КП-2, КП-3 Фермы ФПТ12-18-1П7, ФПТ12-18-1АIV. Пространственные каркасы КП-4, КП-5, КП-6 Фермы ФПТ12-18-1П7, ФПТ12-18-1АIV. Каркасы К-8 - К-13 Фермы ФПТ12-18-1П7, ФПТ12-18-1АIV. Каркасы К-14 - К-19 Ферма ФПТ12-18-1АIV. Пространственные каркасы КП-7, КП-8 Фермы ФПТ12-18-1П7, ФПТ12-18-1АIV. Закладные детали М-1 - М-5 и накладная деталь МС-3 |
| Разработан: | НИИЖБ Госстроя СССР ГПИ-1 Минлегпрома СССР ГПИ Промстройпроект |
| Утверждён: | 05.09.1973 Минлегпром СССР (USSR Minlegprom ) |


















