Скачать Серия 1.463-9 Выпуск 2. Рабочие чертежи ферм с уклоном верхнего поясаДата актуализации: 01.01.2021
|
| Обозначение: | Серия 1.463-9 |
| Обозначение англ: | Series 1.463-9 |
| Статус: | отменен |
| Название рус.: | Выпуск 2. Рабочие чертежи ферм с уклоном верхнего пояса |
| Дата добавления в базу: | 01.10.2014 |
| Дата актуализации: | 01.01.2021 |
| Дата введения: | 15.02.1974 |
| Дата окончания срока действия: | 01.10.2000 |
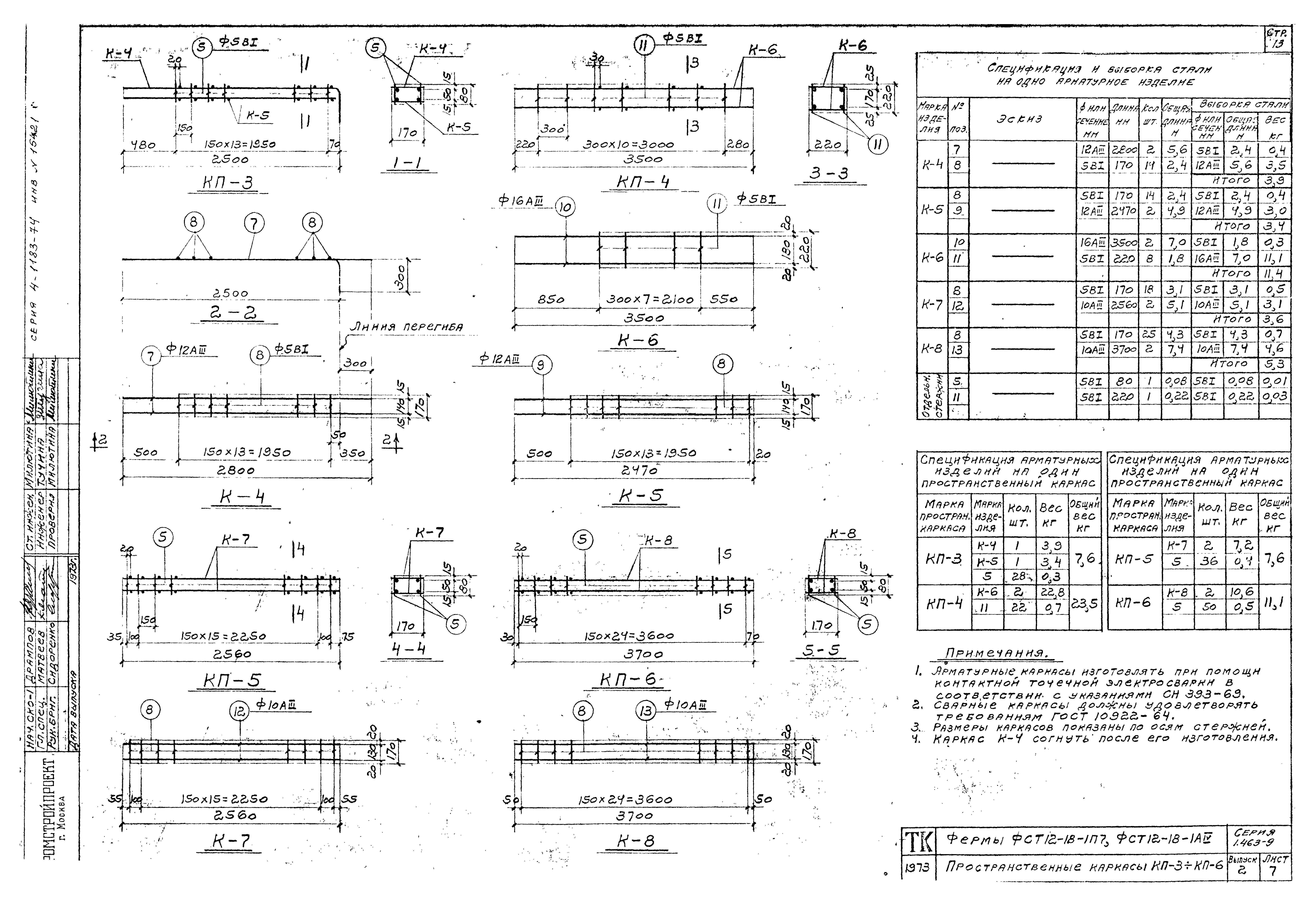
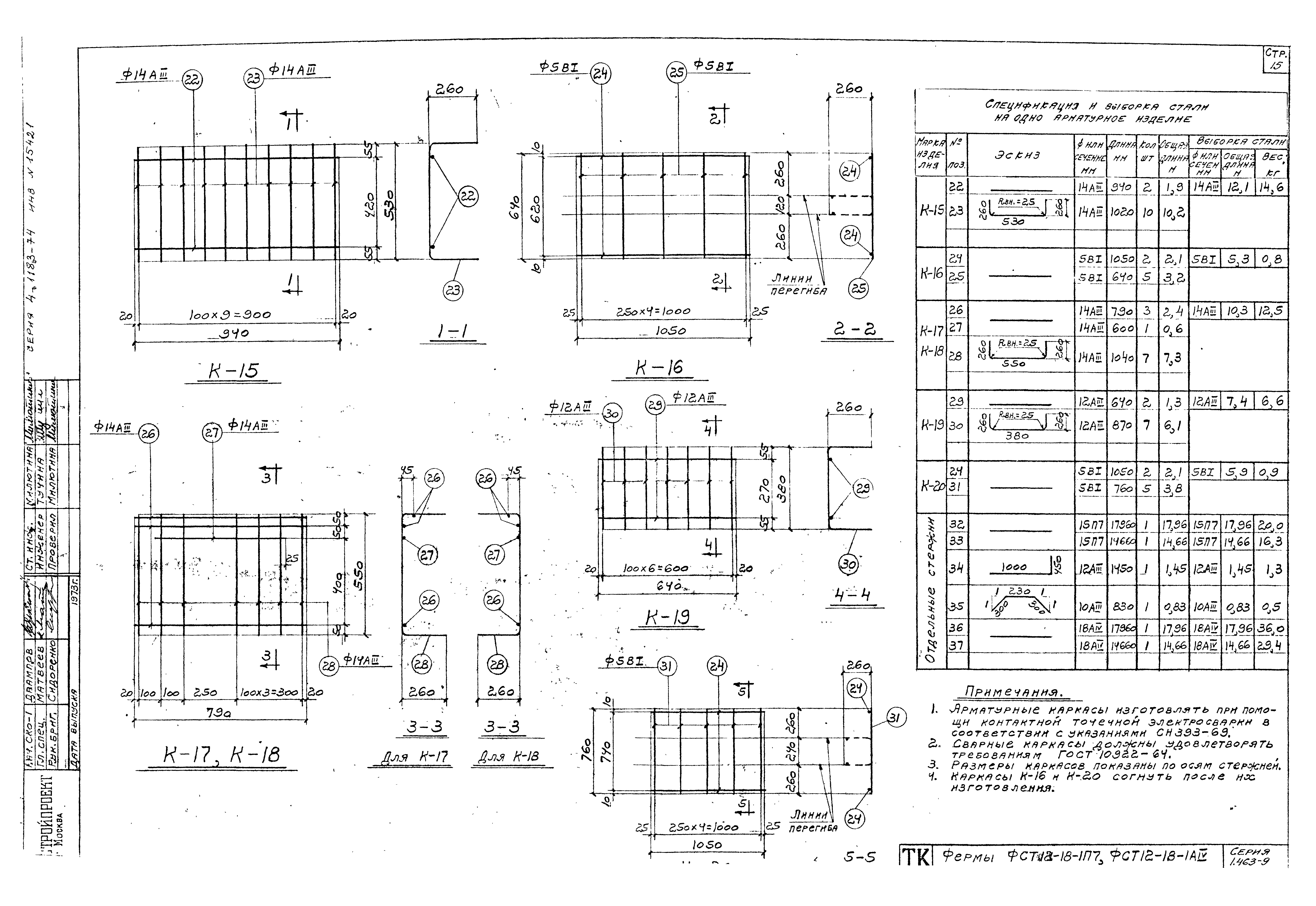
| Оглавление: | Пояснительная записка Фермы ФСТ12-18-1П7, ФСТ12-18-1АIV. Опалубочный чертеж Ферма ФСТ12-18-1П7. Арматурный чертеж Ферма ФСТ12-18-1АIV. Арматурный чертеж Фермы ФСТ12-18-1П7, ФСТ12-18-1АIV. Арматурные узлы А, Б, В Фермы ФСТ12-18-1П7, ФСТ12-18-1АIV. Арматурные узлы Г, Д, Е Фермы ФСТ12-18-1П7, ФСТ12-18-1АIV. Пространственные каркасы КП-1, КП-2 Фермы ФСТ12-18-1П7, ФСТ12-18-1АIV. Пространственные каркасы КП-3 - КП-6 Фермы ФСТ12-18-1П7, ФСТ12-18-1АIV. Каркасы К-9 - К-14 Фермы ФСТ12-18-1П7, ФСТ12-18-1АIV. Каркасы К-15 - К-20 Ферма ФСТ12-18-1АIV. Пространственные каркасы КП-7, КП-8 Фермы ФСТ12-18-1П7, ФСТ12-18-1АIV. Закладные детали М-1 - М-5 и накладная деталь МС-3 |
| Разработан: | НИИЖБ Госстроя СССР ГПИ-1 Минлегпрома СССР ГПИ Промстройпроект |
| Утверждён: | 05.09.1973 Минлегпром СССР (USSR Minlegprom ) |


















