Скачать Серия 1.465.1-17 Выпуск 2. Плиты с проемами в полке для легкосбрасываемой кровли. Рабочие чертежиДата актуализации: 01.01.2021
|
| Обозначение: | Серия 1.465.1-17 |
| Обозначение англ: | Series 1.465.1-17 |
| Статус: | заменен |
| Название рус.: | Выпуск 2. Плиты с проемами в полке для легкосбрасываемой кровли. Рабочие чертежи |
| Дата добавления в базу: | 01.10.2014 |
| Дата актуализации: | 01.01.2021 |
| Дата введения: | 01.01.1991 |
| Дата окончания срока действия: | 01.12.1994 |
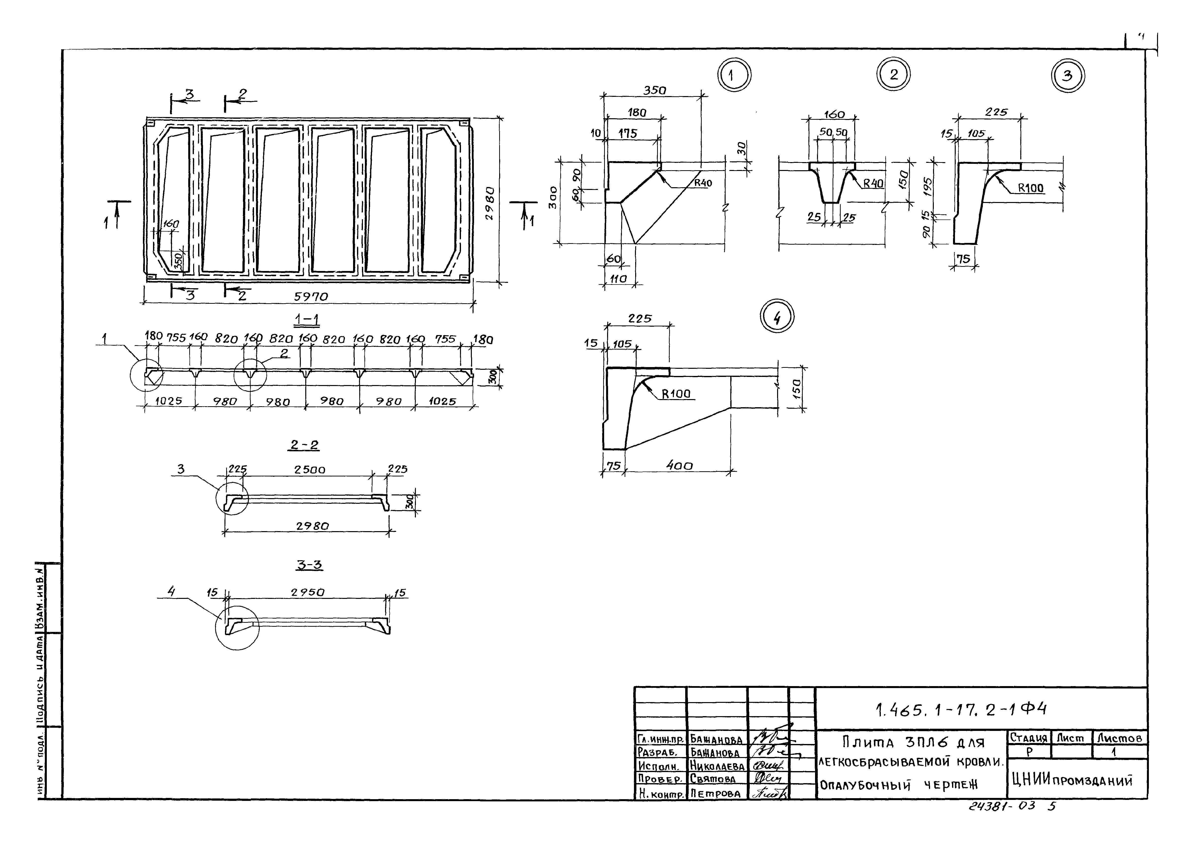
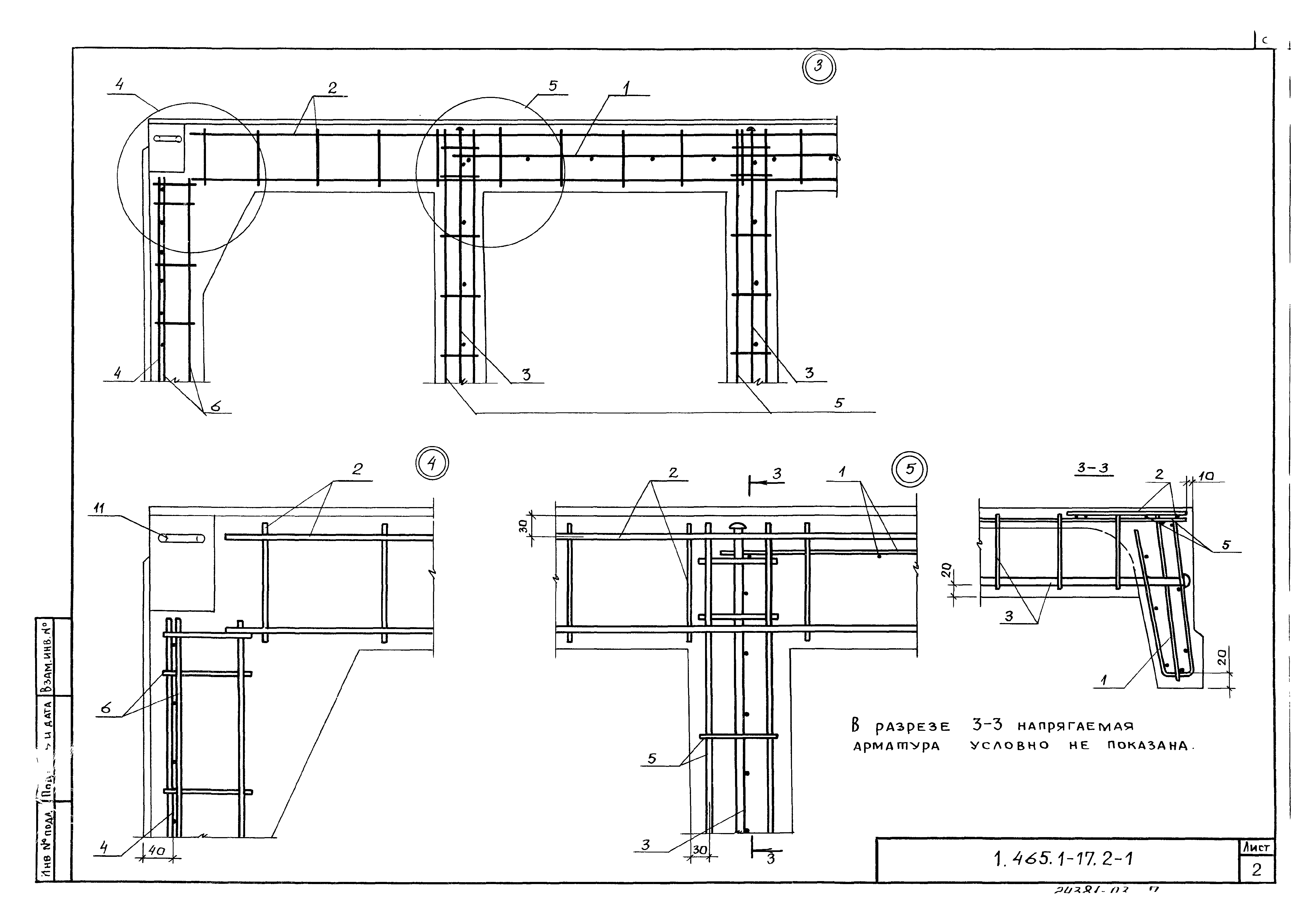
| Оглавление: | 1.465.1-17.2-ТТ Технические требования 1.465.1-17.2-1ФЧ Плита 3ПЛ6 для легкосбрасываемой кровли. Опалубочный чертеж 1.465.1-17.2-1 Плита 3ПЛ6 для легкосбрасываемой кровли 1.465.1-17.2-РС Ведомость расхода стали на плиту 3ПЛ6, кг |
| Разработан: | НИИЖБ Госстроя СССР НИИСК Госстроя СССР ЦНИИпромзданий |
| Утверждён: | 23.02.1989 Госстрой СССР (Государственный комитет Совета Министров СССР по делам строительства) (USSR Gosstroy ) |
| Чем заменён: |












