Скачать Серия 3.820-6 Выпуск 2. Оголовки с ныряющими стенкамиДата актуализации: 01.01.2021
|
| Обозначение: | Серия 3.820-6 |
| Обозначение англ: | Series 3.820-6 |
| Статус: | не определен законодательством |
| Название рус.: | Выпуск 2. Оголовки с ныряющими стенками |
| Дата добавления в базу: | 01.09.2013 |
| Дата актуализации: | 01.01.2021 |
| Дата введения: | 01.04.1981 |
| Дата окончания срока действия: | 30.06.2003 |
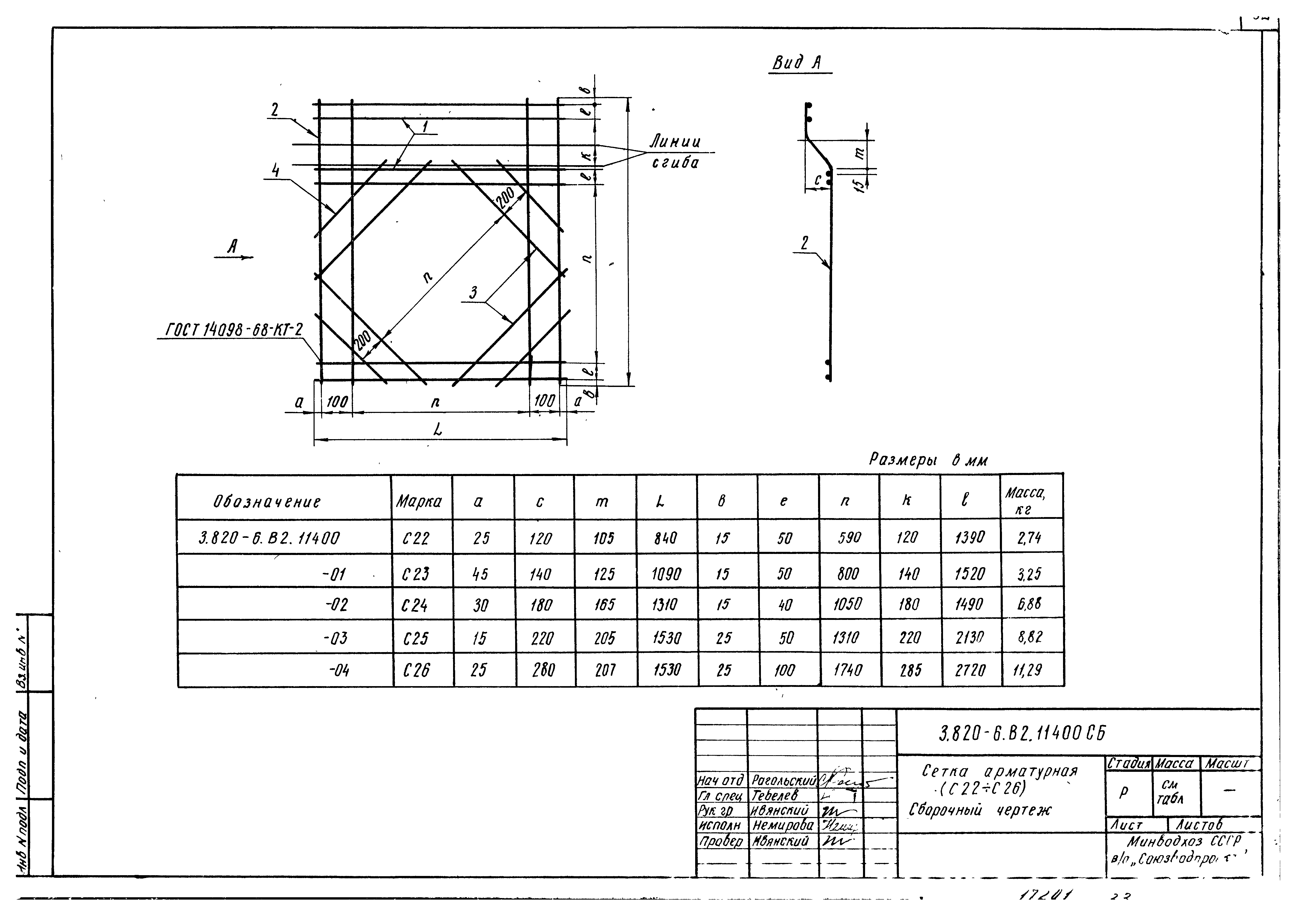
| Оглавление: | Содержание альбома Пояснительная записка Оголовок с ныряющими стенками (ОН-4) Сетка арматурная (С1…С5). Сборочный чертеж Оголовок с ныряющими стенками (ОН-4). Сборочный чертеж Оголовок с ныряющими стенками (ОН-6). Оголовок с ныряющими стенками (ОН-6). Сборочный чертеж Оголовок с ныряющими стенками (ОН-8). Оголовок с ныряющими стенками (ОН-8). Сборочный чертеж Оголовок с ныряющими стенками (ОН-10). Оголовок с ныряющими стенками (ОН-10). Сборочный чертеж Оголовок с ныряющими стенками (ОН-14). Оголовок с ныряющими стенками (ОН-14). Сборочный чертеж Оголовок с ныряющими стенками (ОН-4-5). Оголовок с ныряющими стенками (ОН-4-5). Сборочный чертеж Оголовок с ныряющими стенками (ОН-6-5). Оголовок с ныряющими стенками (ОН-6-5). Сборочный чертеж Сетка арматурная (С1…С5) Сетка арматурная (С6) Сетка арматурная (С6). Сборочный чертеж Сетка арматурная (С7) Сетка арматурная (С7). Сборочный чертеж Сетка арматурная (С8) Сетка арматурная (С8). Сборочный чертеж Сетка арматурная (С9) Сетка арматурная (С9). Сборочный чертеж Сетка арматурная (С10) Сетка арматурная (С10). Сборочный чертеж Сетка арматурная (С11) Сетка арматурная (С11). Сборочный чертеж Сетка арматурная (С12) Сетка арматурная (С12). Сборочный чертеж Сетка арматурная (С13) Сетка арматурная (С13). Сборочный чертеж Сетка арматурная (С14) Сетка арматурная (С14). Сборочный чертеж Сетка арматурная (С15…С18) Сетка арматурная (С15…С18). Сборочный чертеж Сетка арматурная (С19) Сетка арматурная (С19). Сборочный чертеж Сетка арматурная (С20, С21) Сетка арматурная (С20, С21). Сборочный чертеж Сетка арматурная (С22...С26) Сетка арматурная (С22...С26). Сборочный чертеж Изделие закладное (МН27…МН35) Изделие закладное (МН27…МН35). Сборочный чертеж Изделие закладное (МН36…МН39) Изделие закладное (МН36…МН39). Сборочный чертеж Выборка стали |
| Разработан: | Союзводпроект Минводхоза СССР |
| Утверждён: | 24.07.1980 Минводхоз РСФСР (Russian Federation Minvodkhoz 397) |






































