Скачать Типовой проект 901-5-38.87 Альбом 1. Технологическая и электрическая частиДата актуализации: 01.01.2021
|
| Обозначение: | Типовой проект 901-5-38.87 |
| Обозначение англ: | 901-5-38.87 |
| Статус: | не определен законодательством |
| Название рус.: | Альбом 1. Технологическая и электрическая части |
| Дата добавления в базу: | 01.09.2013 |
| Дата актуализации: | 01.01.2021 |
| Дата введения: | 01.05.1987 |
| Дата окончания срока действия: | 30.06.2003 |
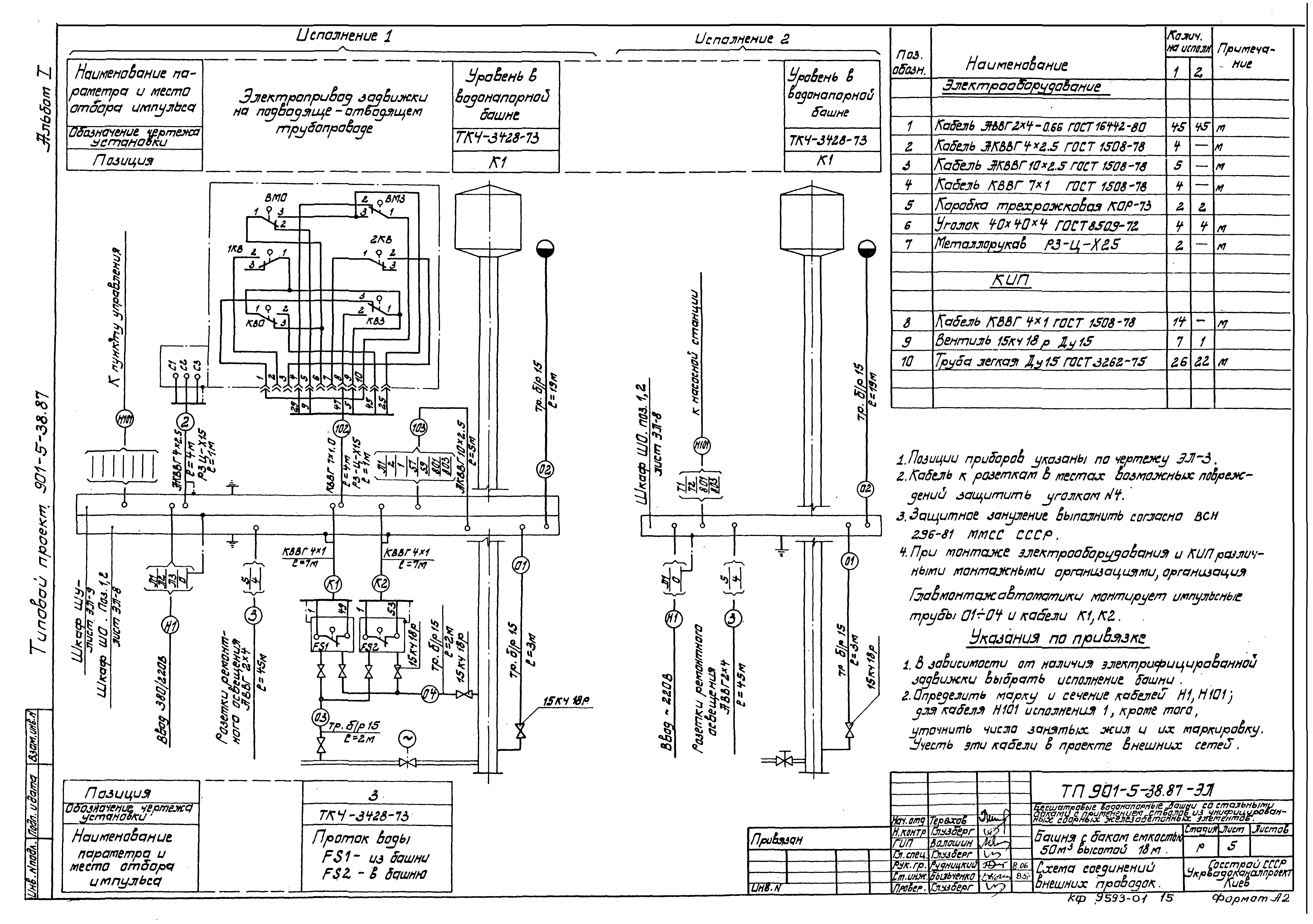
| Оглавление: | СА Содержание альбома ПЗ Пояснительная записка (начало) ПЗ Пояснительная записка (окончание) НВ Общие данные НВ Планы, разрезы, аксонометрическая и монтажная схемы трубопроводов НВ Опорное колено НВ Клапан-захлопка диам. 150 НВ Детали крепления переливного трубопровода ЭЛ Общие данные ЭЛ Схемы принципиальные: однолинейная 380/220 В; электропитания шкафа ШО ЭЛ Схема функциональная технологического контроля ЭЛ Схема принципиальная управления задвижкой (исполнение 1) ЭЛ Схема соединения внешних проводок ЭЛ Расположение оборудования и проводок (исполнение 1) ЭЛ Расположение оборудования и проводок (исполнение 2) ЭЛ Шкаф утепленный, обогреваемый ШО ЭЛ Шкаф управления ШУ. Чертеж общего вида ЭЛ Шкаф управления ШУ. Таблица технических данных аппаратов ЭЛ Шкаф управления ШУ. Таблица перечня надписей ЭЛ Шкаф управления ШУ. Схема электрических соединений |
| Разработан: | Укрводоканалпроект |
| Утверждён: | 29.04.1986 Госстрой СССР (Государственный комитет Совета Министров СССР по делам строительства) (USSR Gosstroy А4-25) |



















