Скачать Типовой проект 901-5-38.87 Альбом 2. Архитектурно-строительная частьДата актуализации: 01.01.2021
|
| Обозначение: | Типовой проект 901-5-38.87 |
| Обозначение англ: | 901-5-38.87 |
| Статус: | не определен законодательством |
| Название рус.: | Альбом 2. Архитектурно-строительная часть |
| Дата добавления в базу: | 01.09.2013 |
| Дата актуализации: | 01.01.2021 |
| Дата введения: | 01.05.1987 |
| Дата окончания срока действия: | 30.06.2003 |
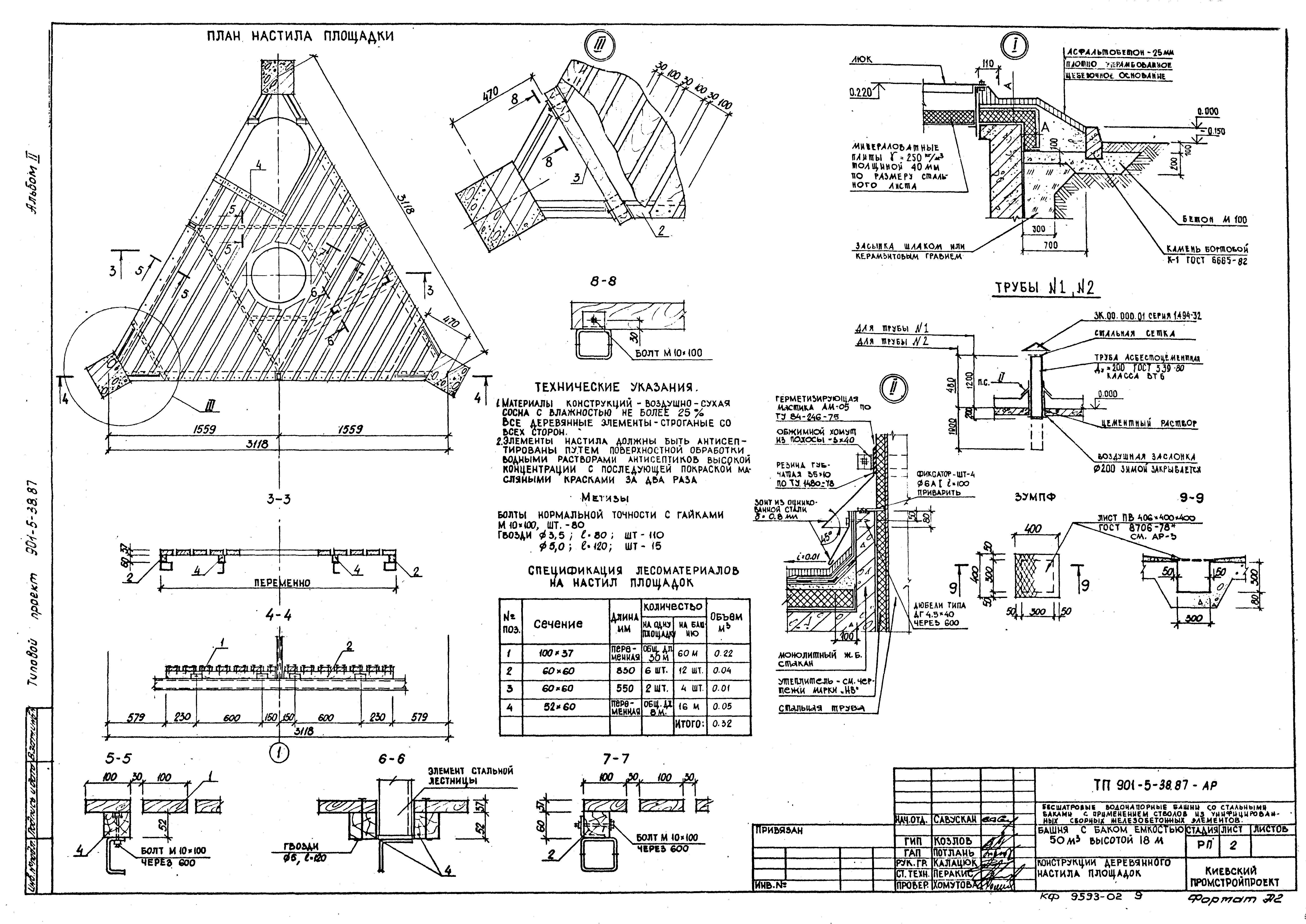
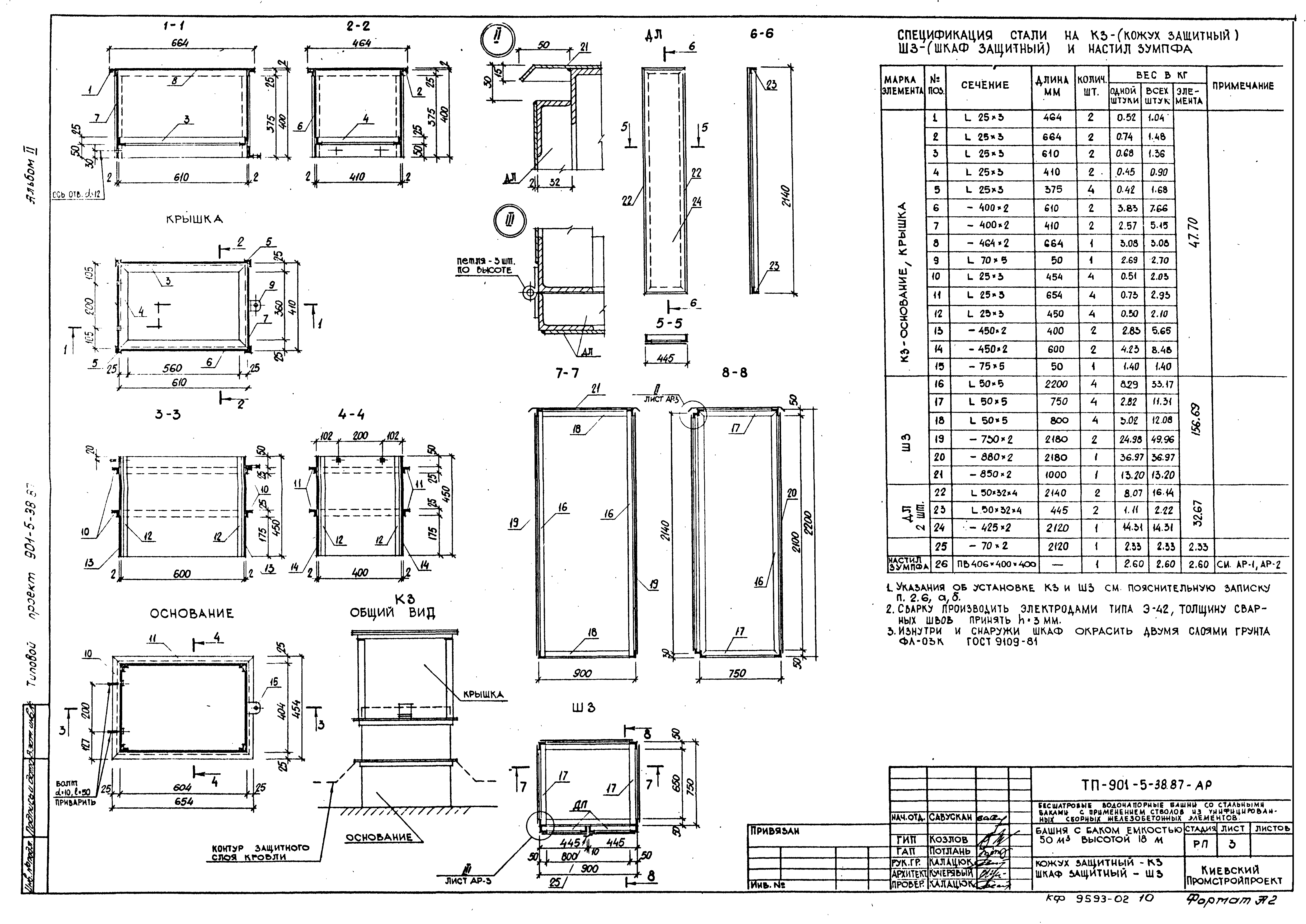
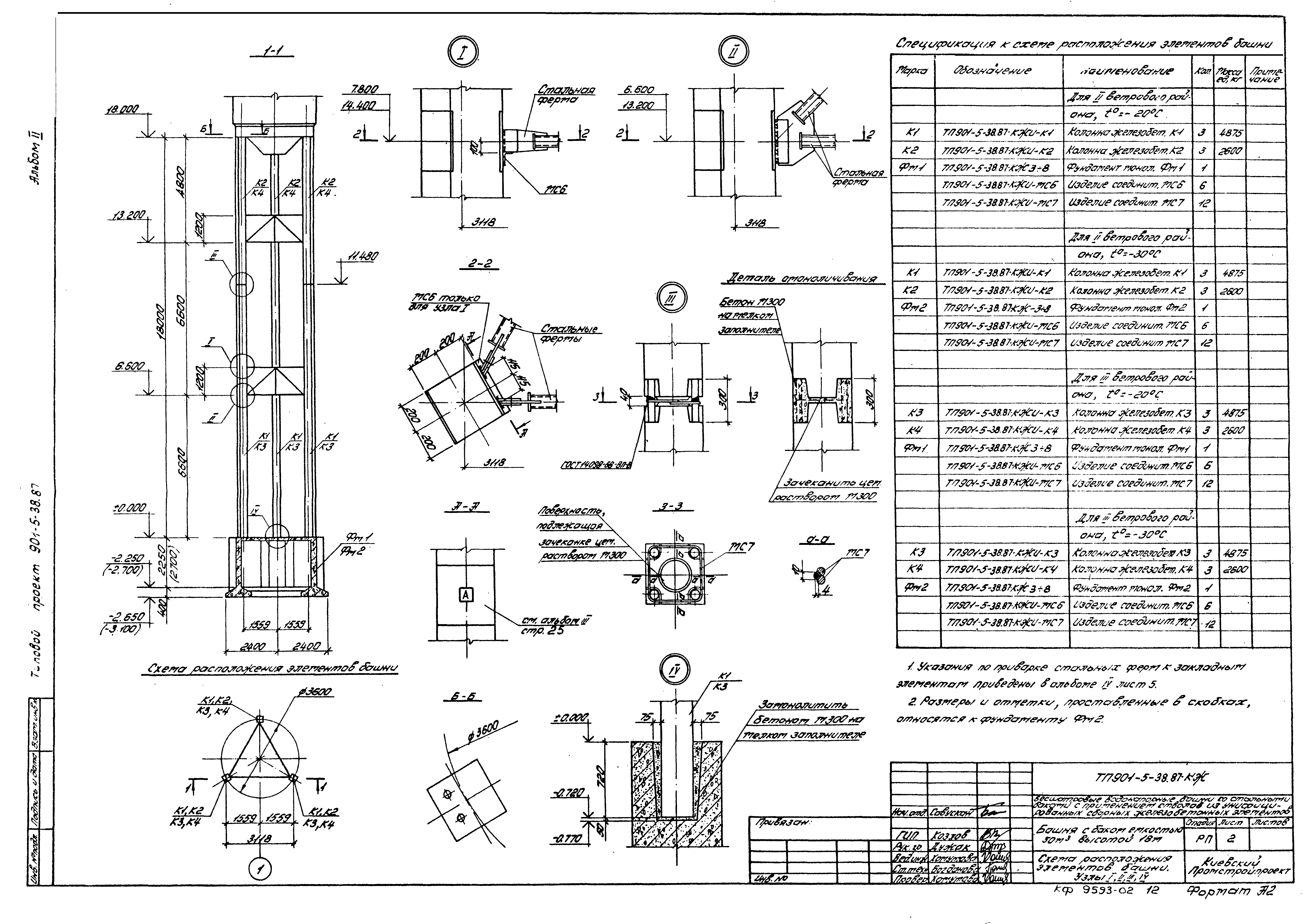
| Оглавление: | Содержание альбома Пояснительная записка Архитектурная часть Общие данные, фасад, разрез 1-1, планы Конструкция деревянного настила площадок Кожух защитный - КЗ Шкаф защитный - ШЗ Строительная часть Общие данные Схема расположения элементов башни. Узлы 1, 2, 3 Фундаменты Фм1, Фм2. Опалубка. Разрезы 1-1…11-11 Фундаменты Фм1, Фм2. Армирование. Разрезы 1-1, 2-2. Узел 1 Фундаменты Фм1, Фм2. Армирование. Разрезы 3-3, 4-4 Фундаменты Фм1, Фм2. Армирование. Разрезы 5-5, 6-6. Ведомость расхода стали Фундаменты Фм1, Фм2. Армирование. Спецификация Основные положения по организации строительства |
| Разработан: | Киевский Промстройпроект |
| Утверждён: | 29.04.1986 Госстрой СССР (Государственный комитет Совета Министров СССР по делам строительства) (USSR Gosstroy А4-25) |


















