Скачать Типовой проект 902-2-412.86 Альбом 3. Электротехническая часть. Автоматизация. Связь и сигнализацияДата актуализации: 01.01.2021
|
| Обозначение: | Типовой проект 902-2-412.86 |
| Обозначение англ: | 902-2-412.86 |
| Статус: | не определен законодательством |
| Название рус.: | Альбом 3. Электротехническая часть. Автоматизация. Связь и сигнализация |
| Дата добавления в базу: | 01.09.2013 |
| Дата актуализации: | 01.01.2021 |
| Дата введения: | 01.09.1986 |
| Дата окончания срока действия: | 30.06.2003 |
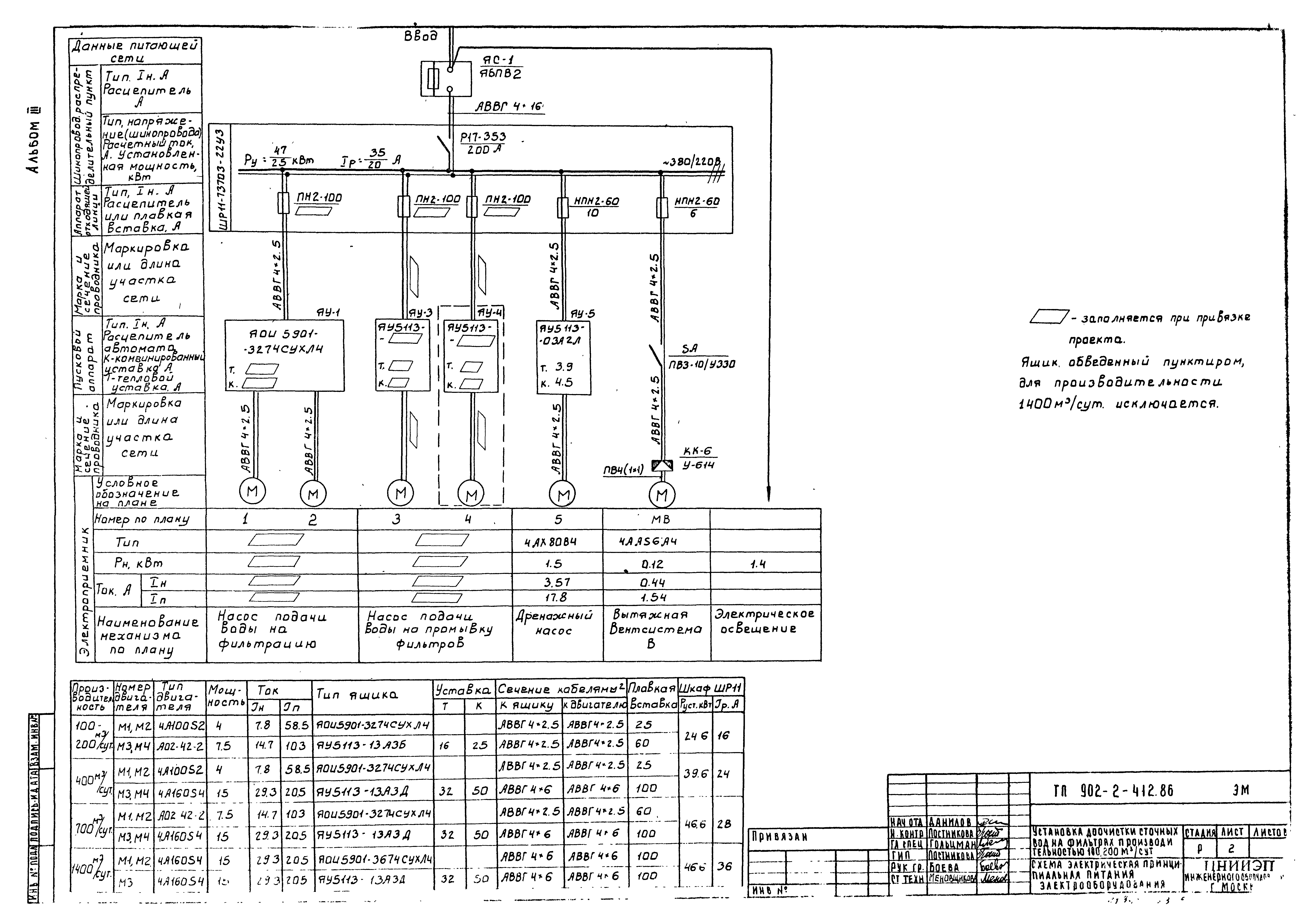
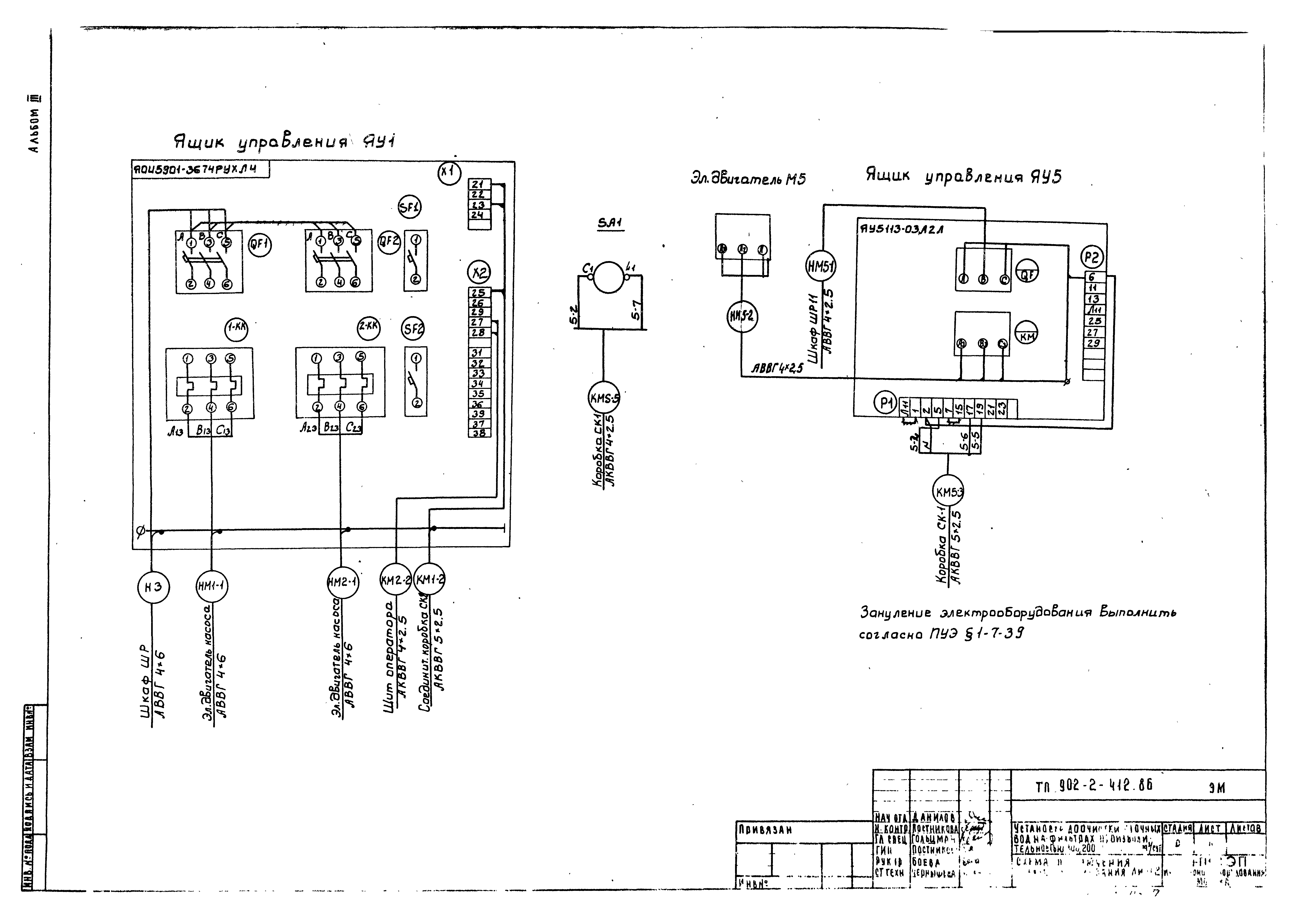
| Оглавление: | ЭМ-1 Общие данные ЭМ-2 Схема электрическая принципиальная питания электрооборудования ЭМ-3 Схема подключения электрооборудования. Лист 1 ЭМ-4 Схема подключения электрооборудования. Лист 2 ЭМ-5 Производительность 100, 200, 400, 700 куб. м/сутки. Кабельный журнал ЭМ-6 Производительность 1400 куб. м/сутки. Кабельный журнал ЭМ-7 Производительность 100, 200, 400, 700 куб. м/сутки. Размещение электрооборудования и прокладка кабеля ЭМ-8 Производительность 1400 куб. м/сутки. Размещение электрооборудования и прокладка кабеля Электроосвещение. Производительность 100 - 200 куб. м/сутки ЭО1 Общие данные. План. Схема принципиальная электрической сети Электроосвещение. Производительность 400 - 700 куб. м/сутки ЭО1 Общие данные. План. Схема принципиальная электрической сети Электроосвещение. Производительность 1400 куб. м/сутки ЭО1 Общие данные. План. Схема принципиальная электрической сети АТХ-1 Общие данные. Схема электрическая принципиальная управления дренажным насосом АТХ-2 Схема функциональная АТХ-3 Схема соединений внешних проводок АТХ-4 Производительность 100, 200, 400, 700 куб. м/сутки. План расположения АТХ-5 Производительность 1400 куб. м/сутки. План расположения СС-1 Общие данные. План на отм. 0,000 с сетями связи |
| Разработан: | ЦНИИЭП |
| Утверждён: | 28.02.1986 Госгражданстрой (Gosgrazhdanstroy 68) |



















