Скачать Типовые проектные решения 901-2-0149с.86 Альбом I. Архитектурно-строительные решения. Конструкции железобетонные. Технологические решения. Отопление и вентиляция. Внутренние водопровод и канализация. Электротехническая часть. Технологический контрольДата актуализации: 01.01.2021
|
| Обозначение: | Типовые проектные решения 901-2-0149с.86 |
| Обозначение англ: | 901-2-0149с.86 |
| Статус: | справочные материалы, мп, тпр |
| Название рус.: | Альбом I. Архитектурно-строительные решения. Конструкции железобетонные. Технологические решения. Отопление и вентиляция. Внутренние водопровод и канализация. Электротехническая часть. Технологический контроль |
| Дата добавления в базу: | 01.09.2013 |
| Дата актуализации: | 01.01.2021 |
| Дата введения: | 12.08.1986 |
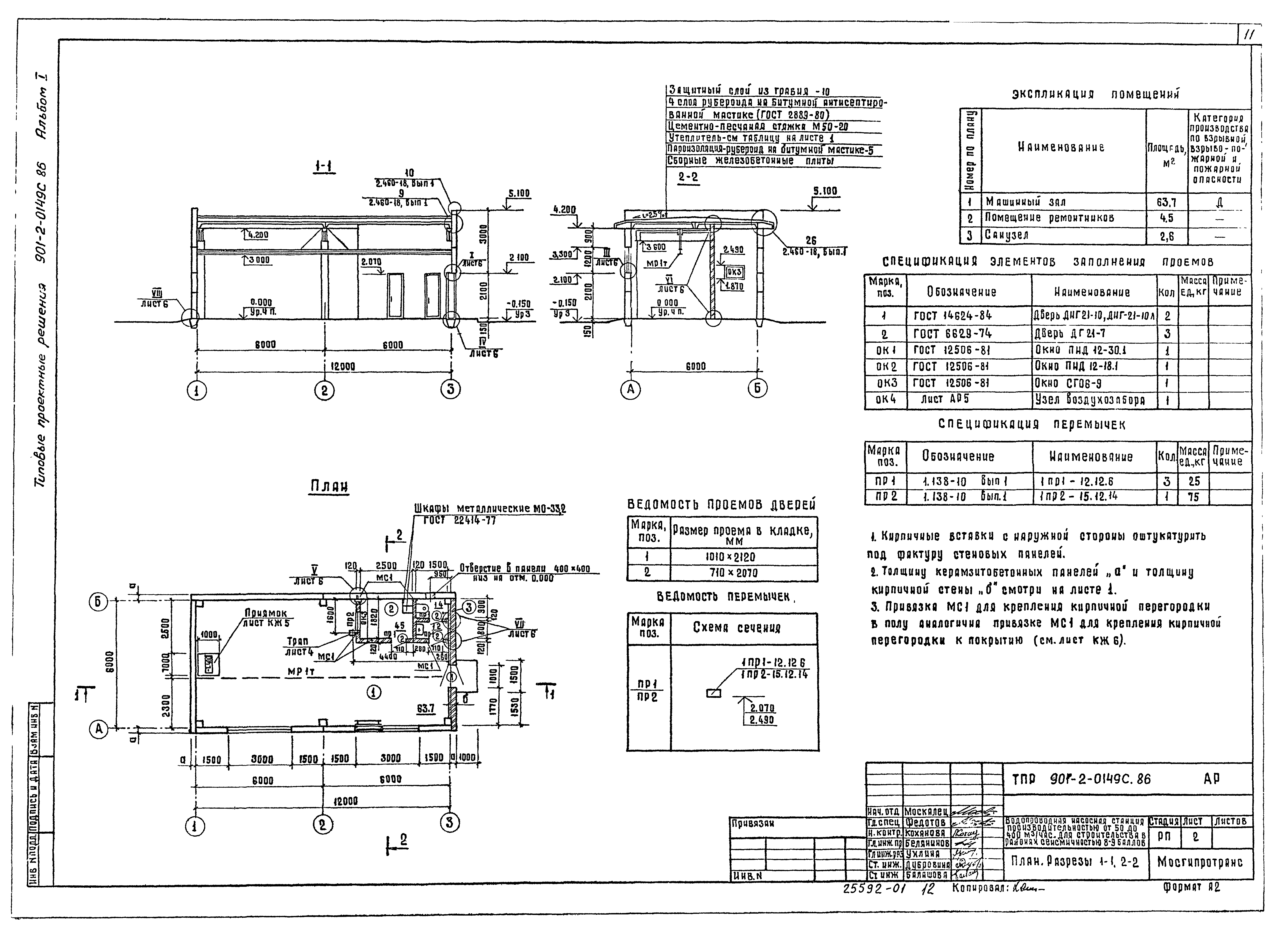
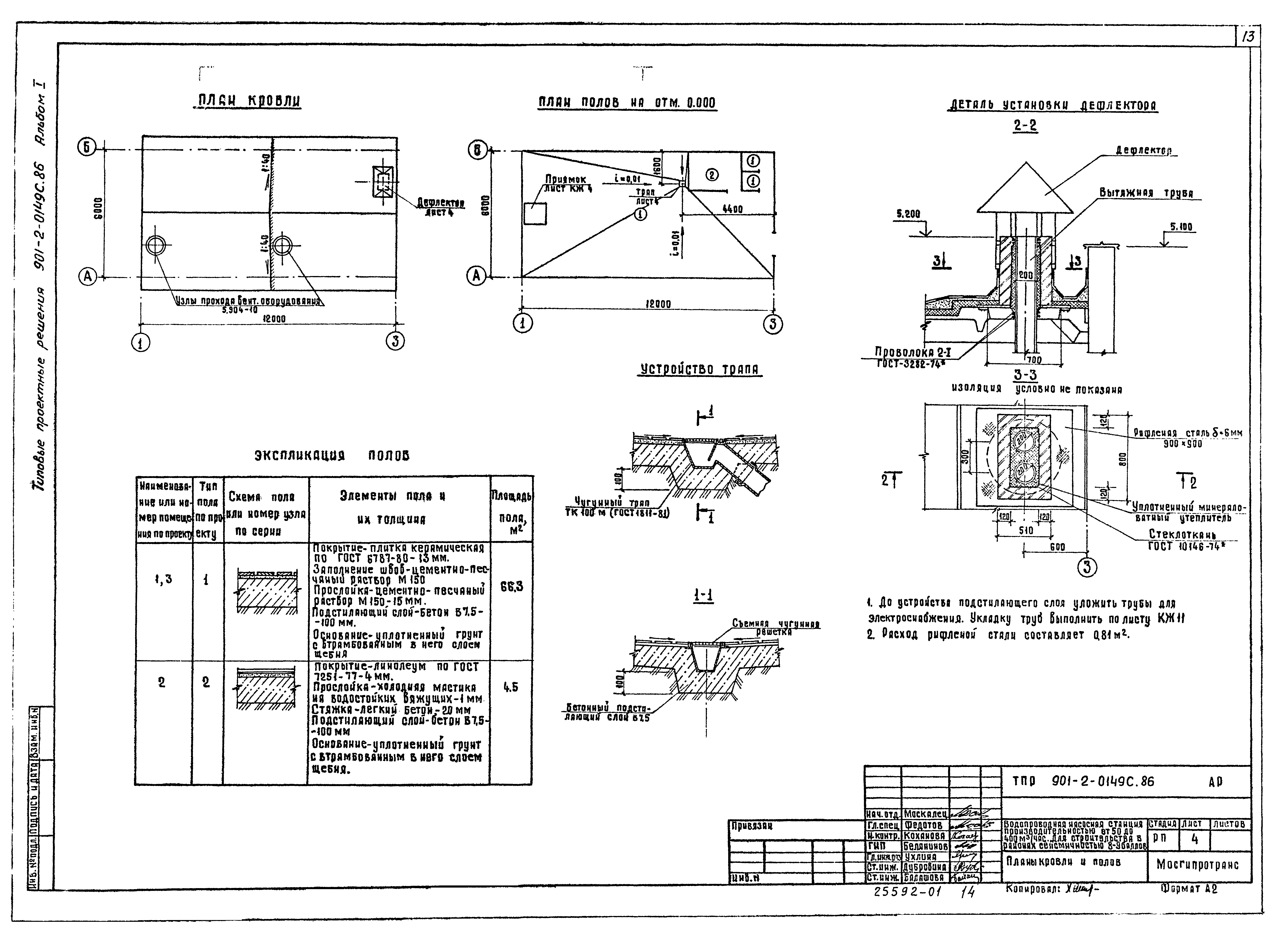
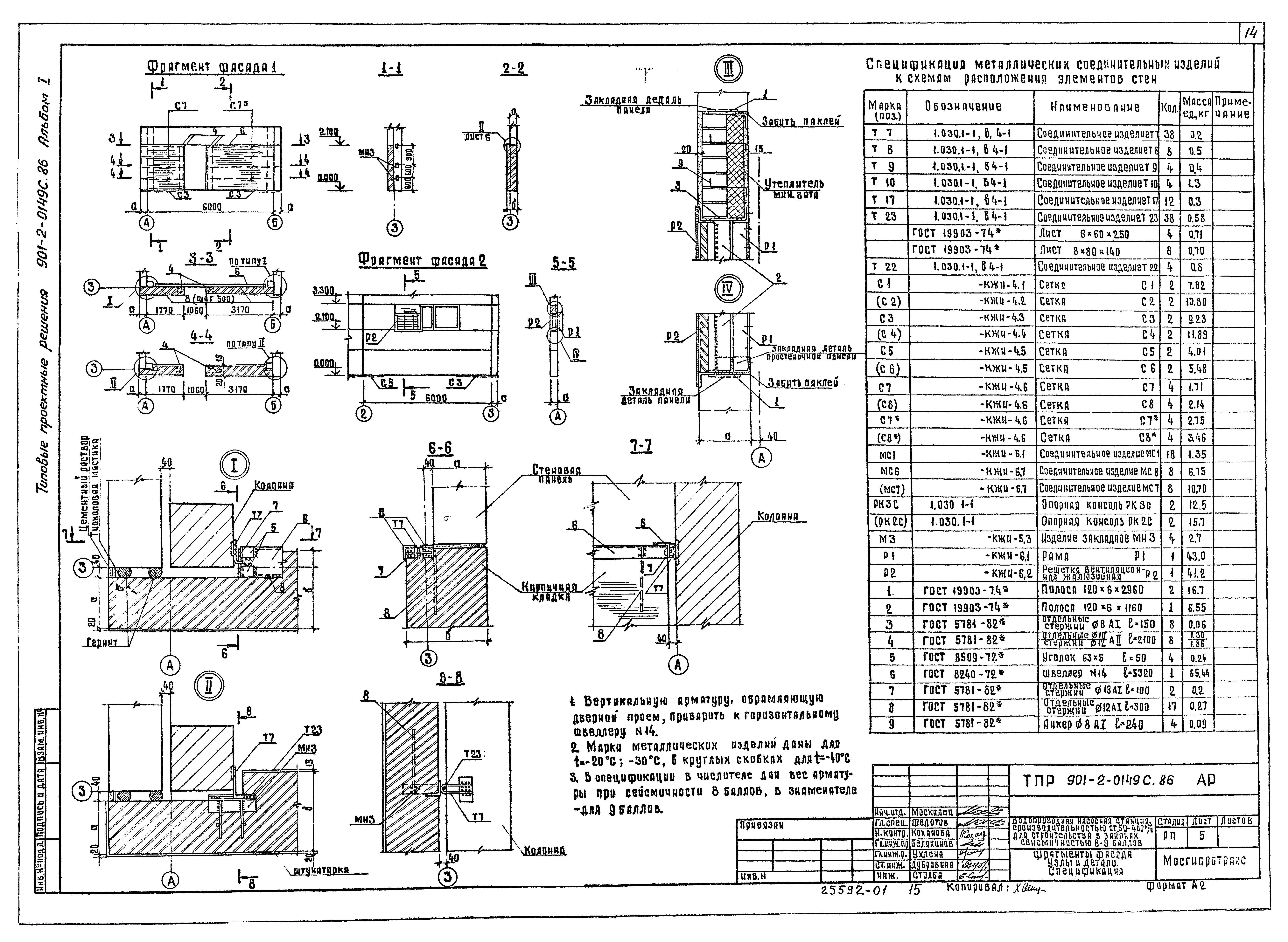
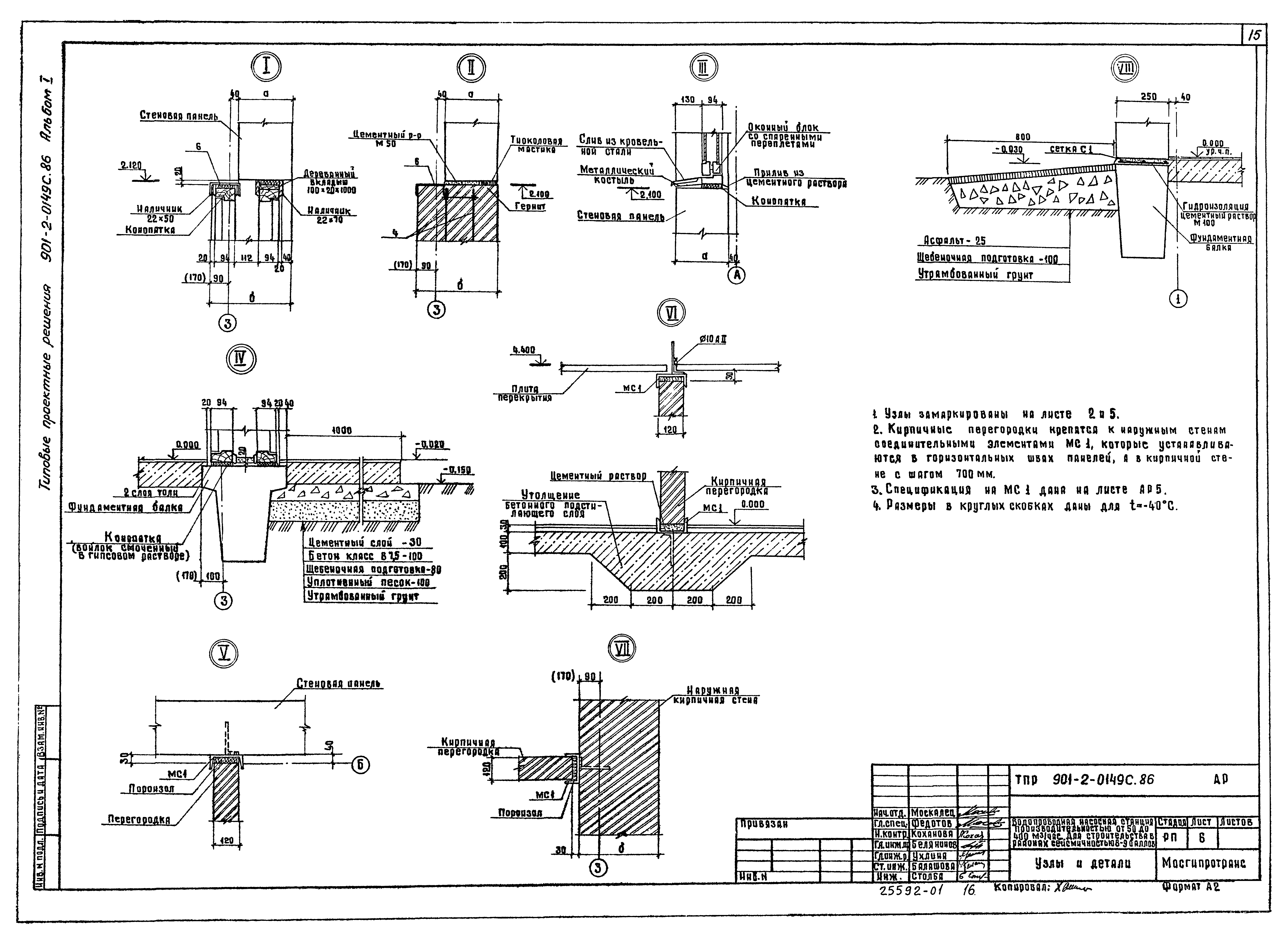
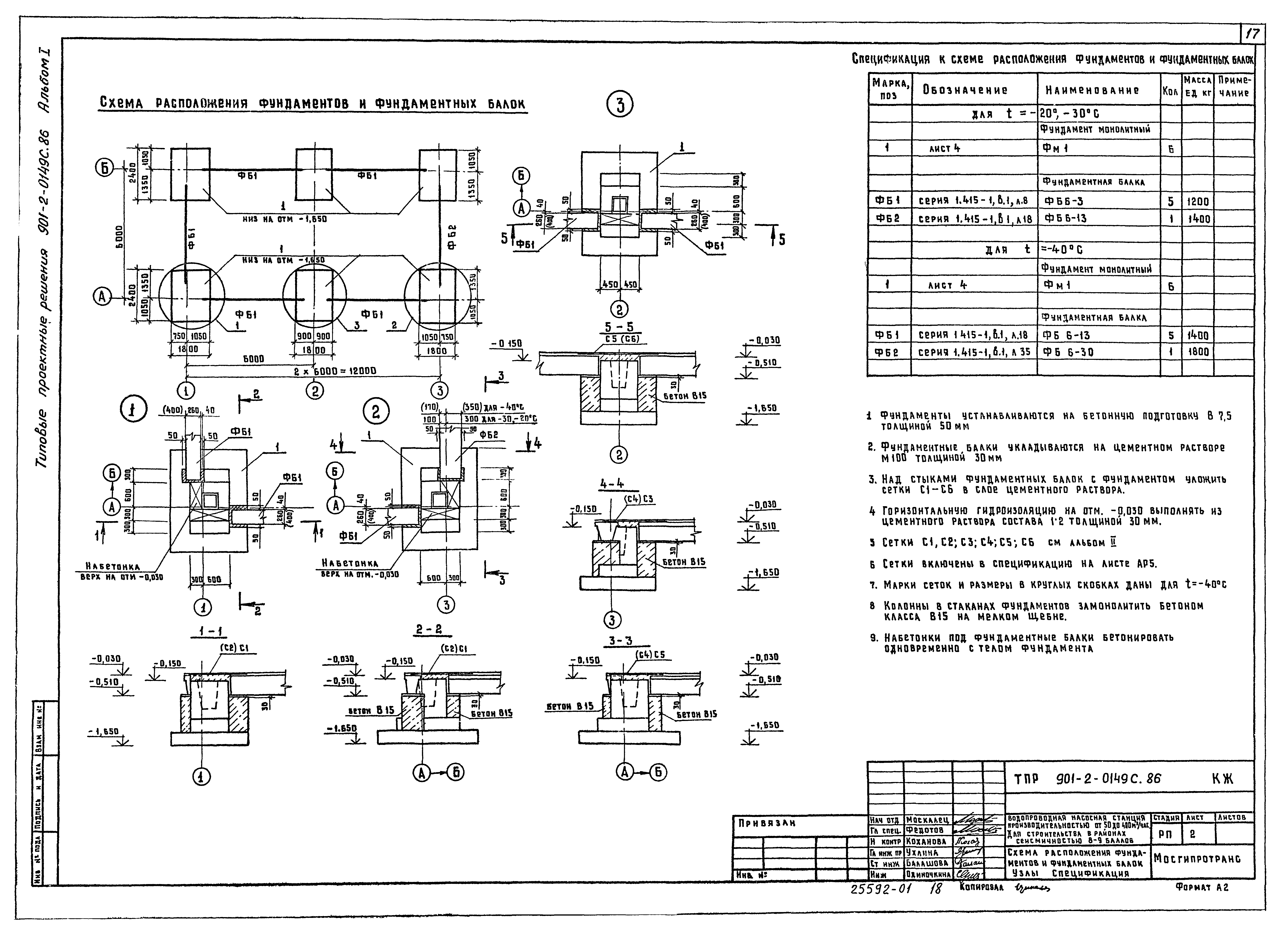
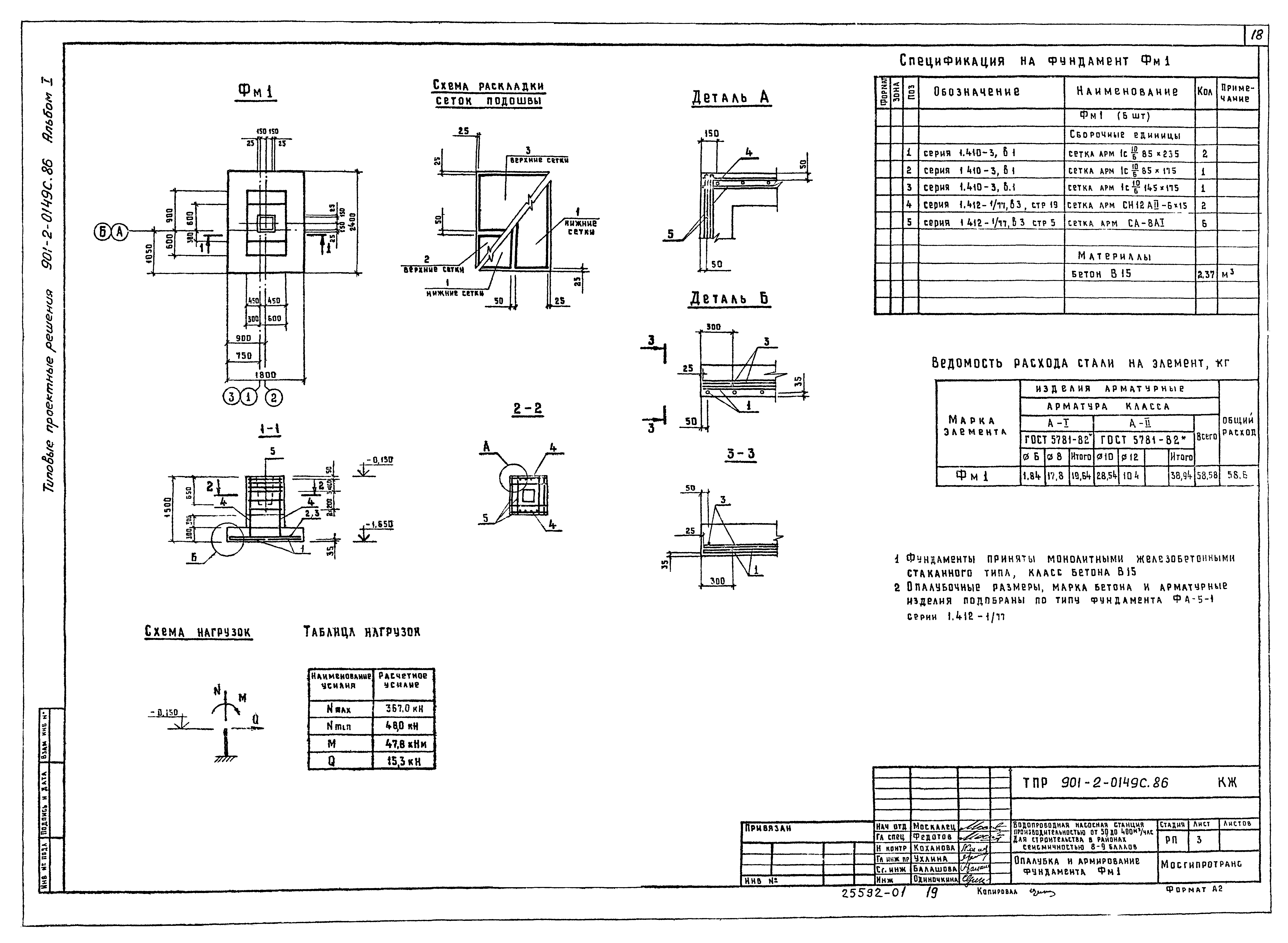
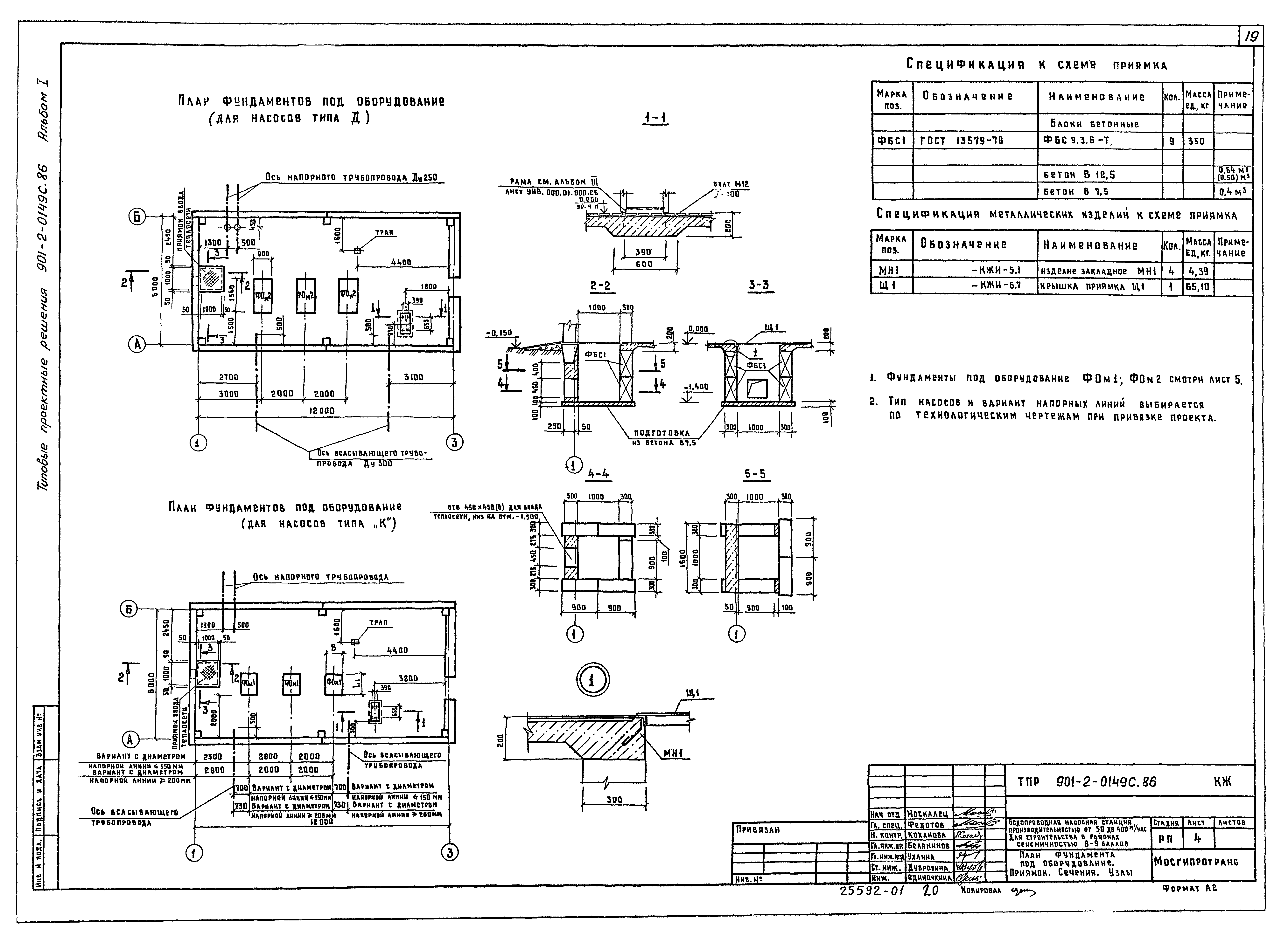
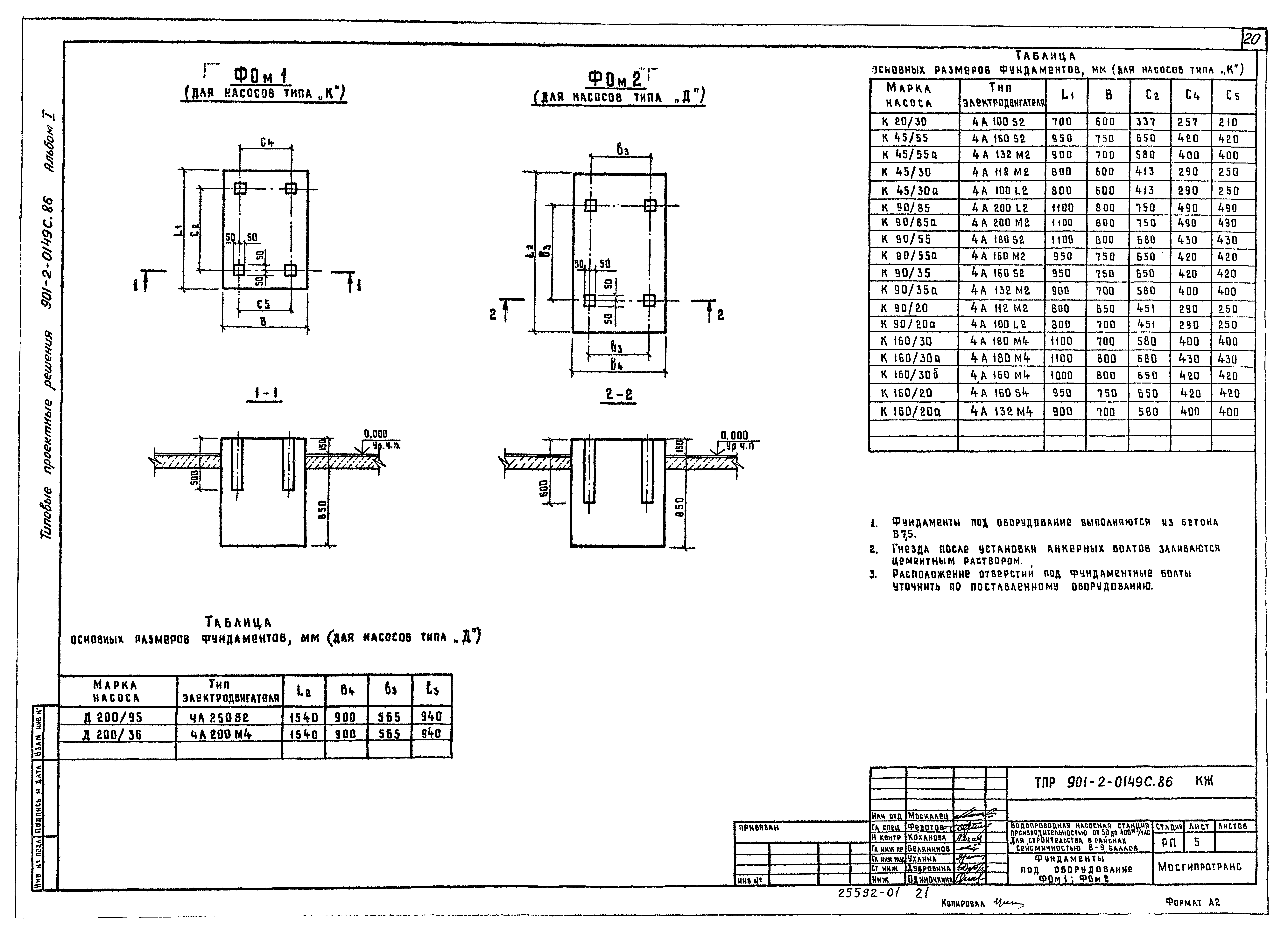
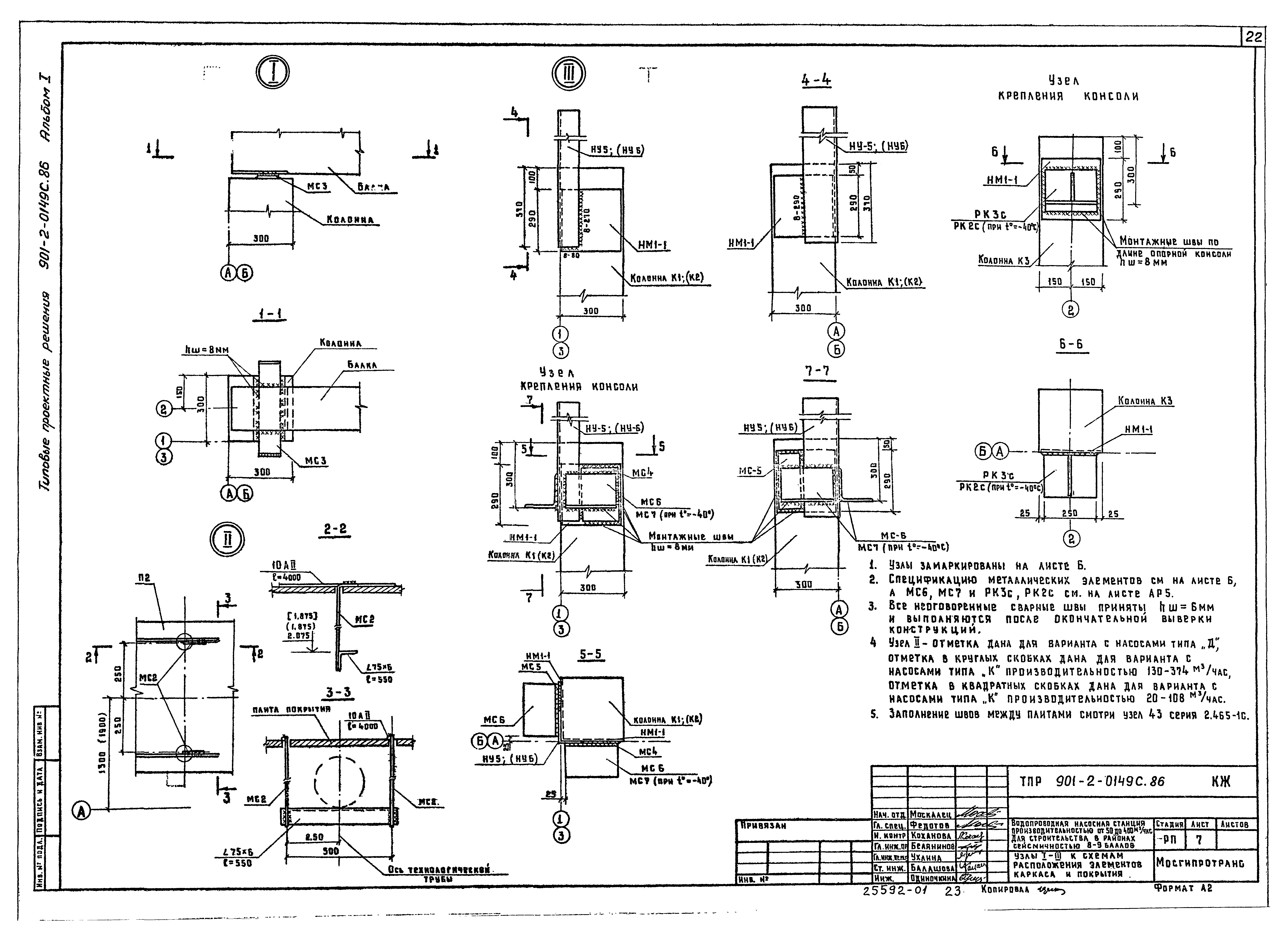
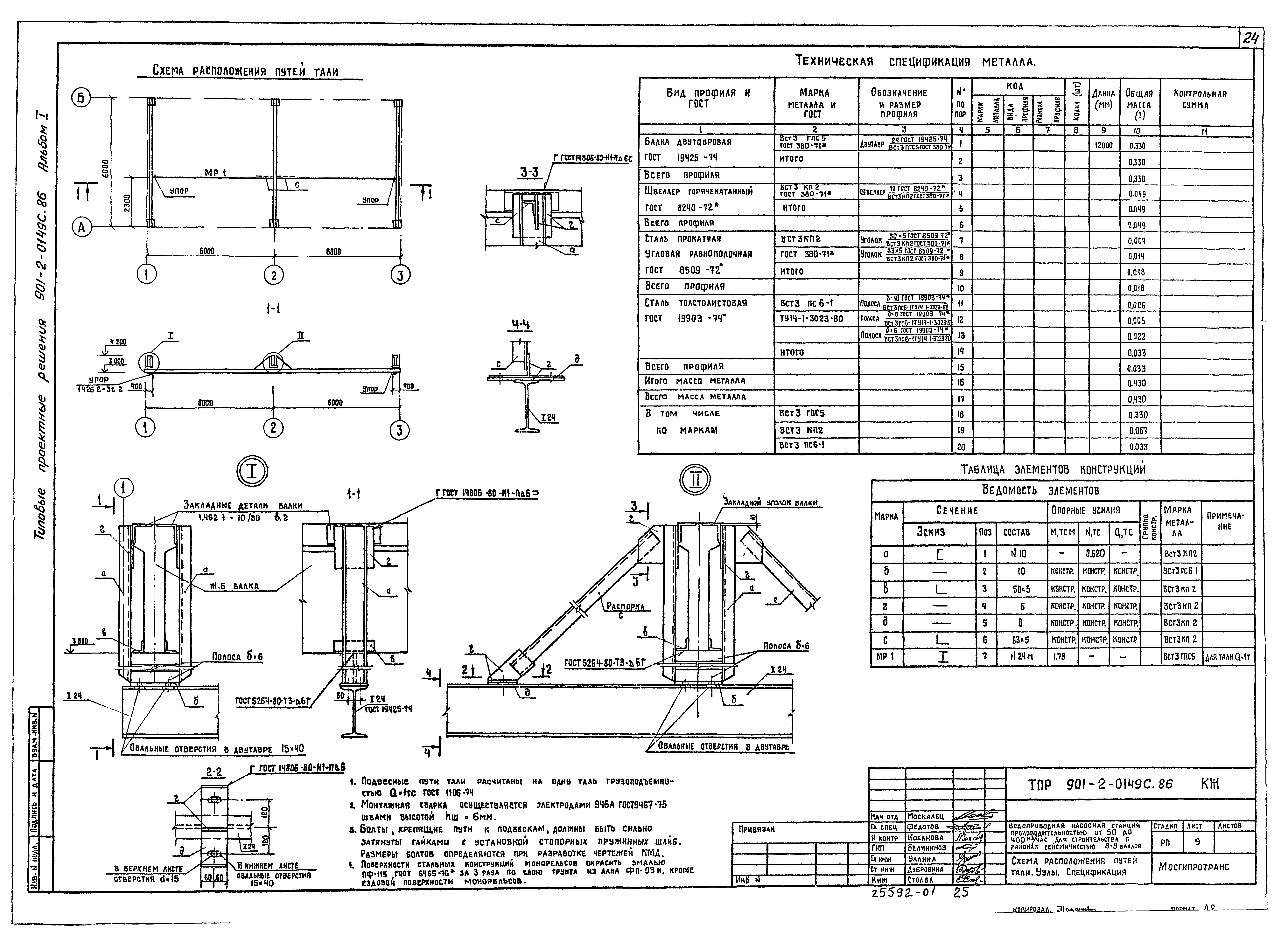
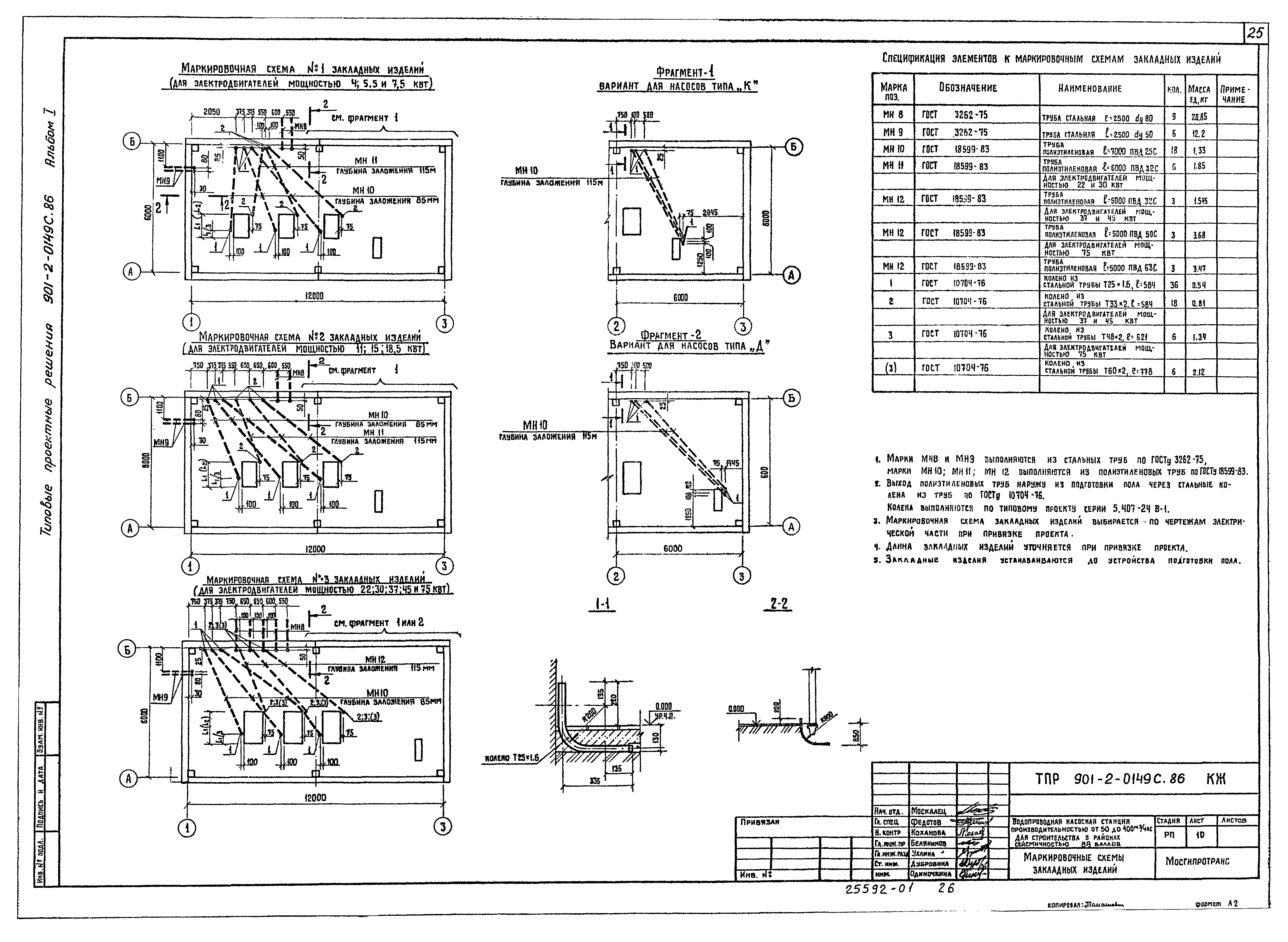
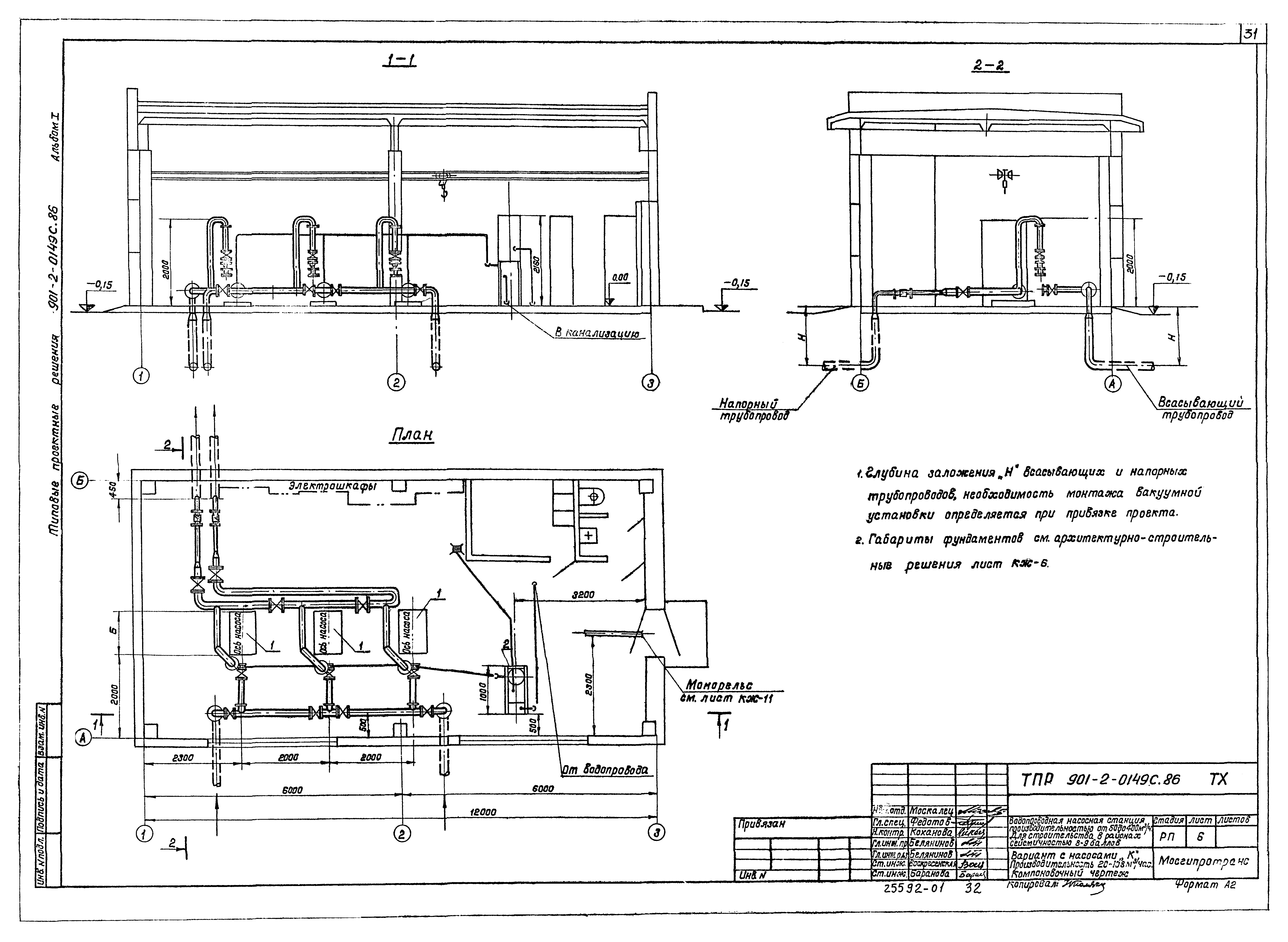
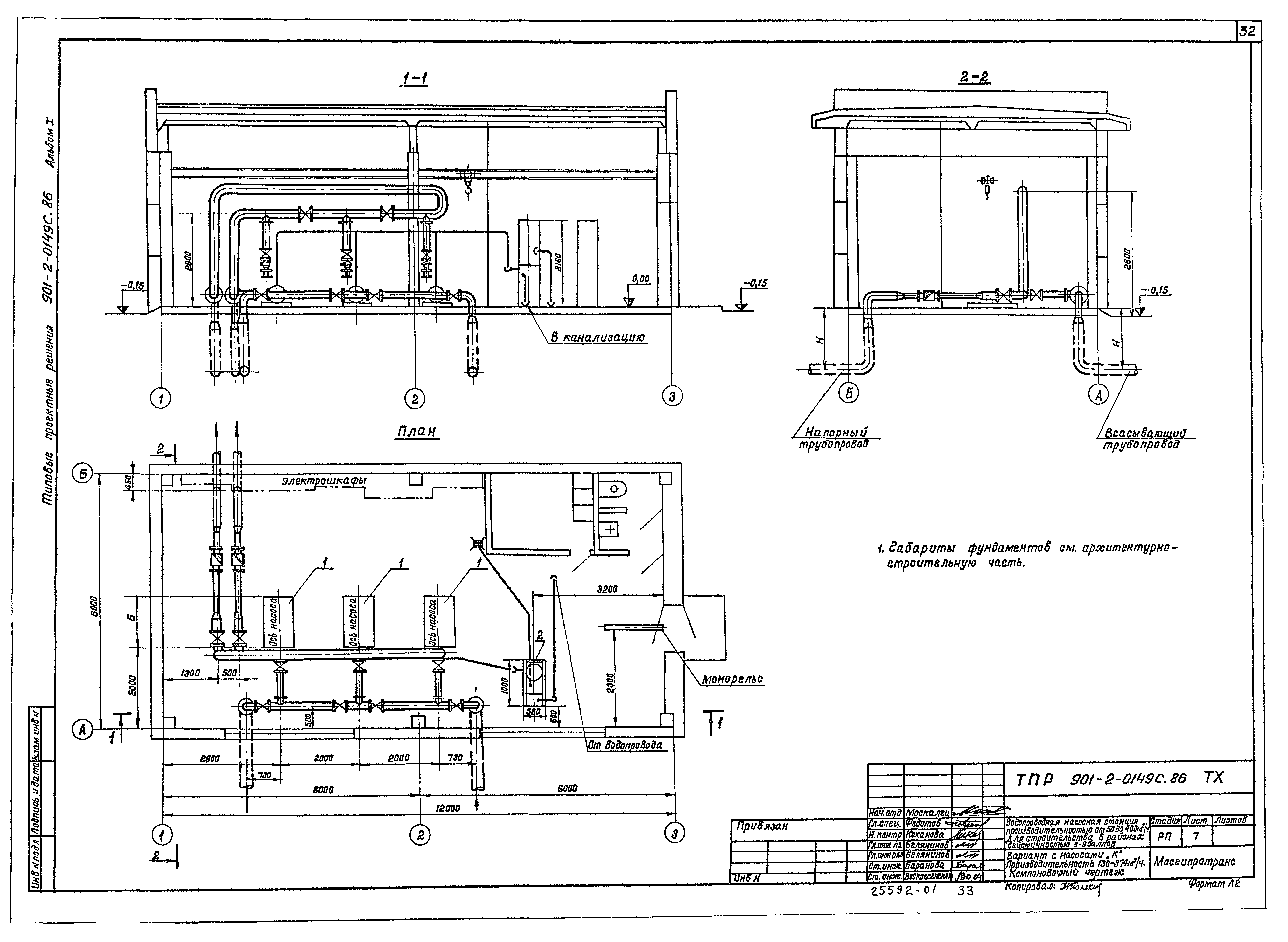
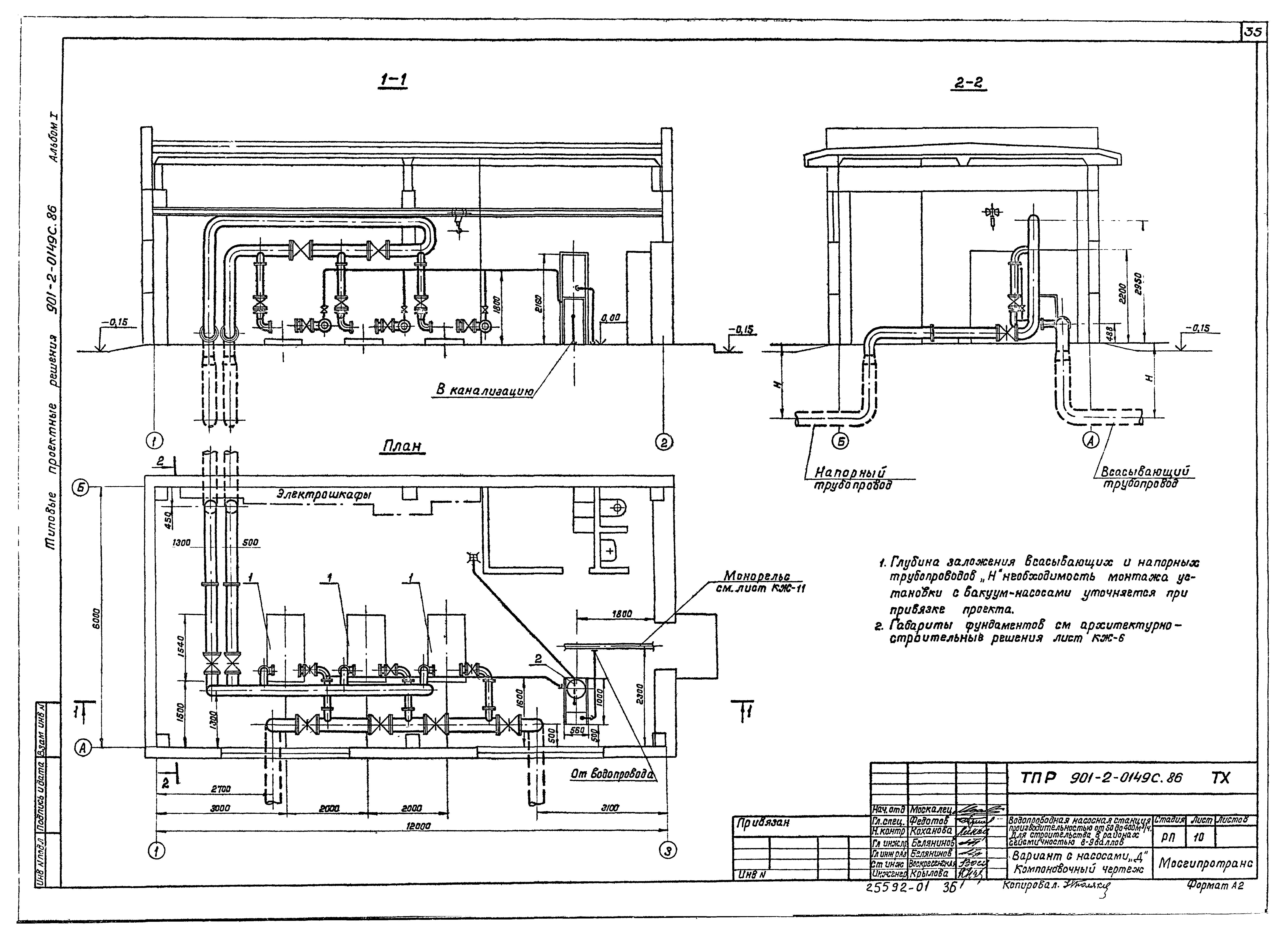
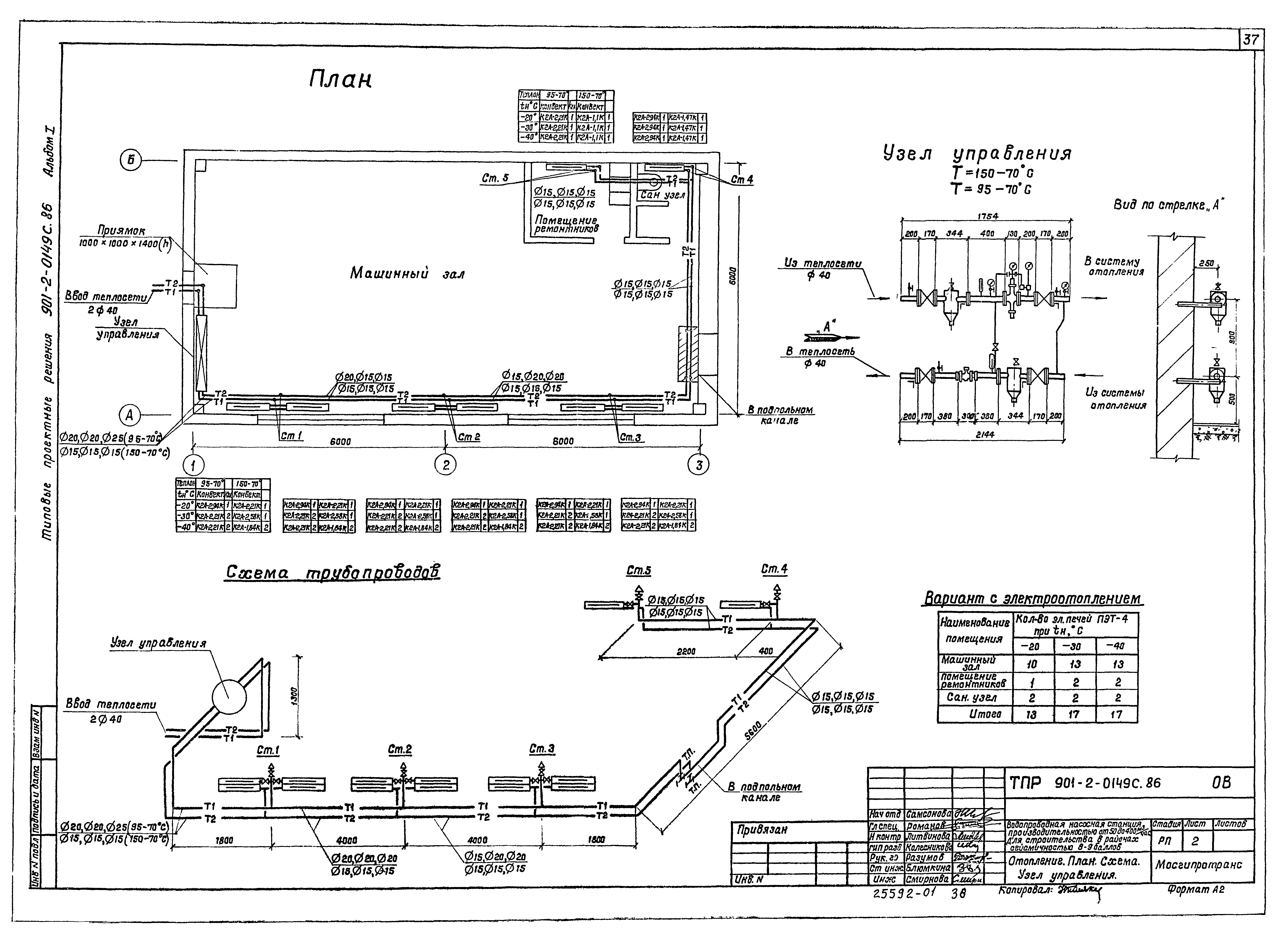
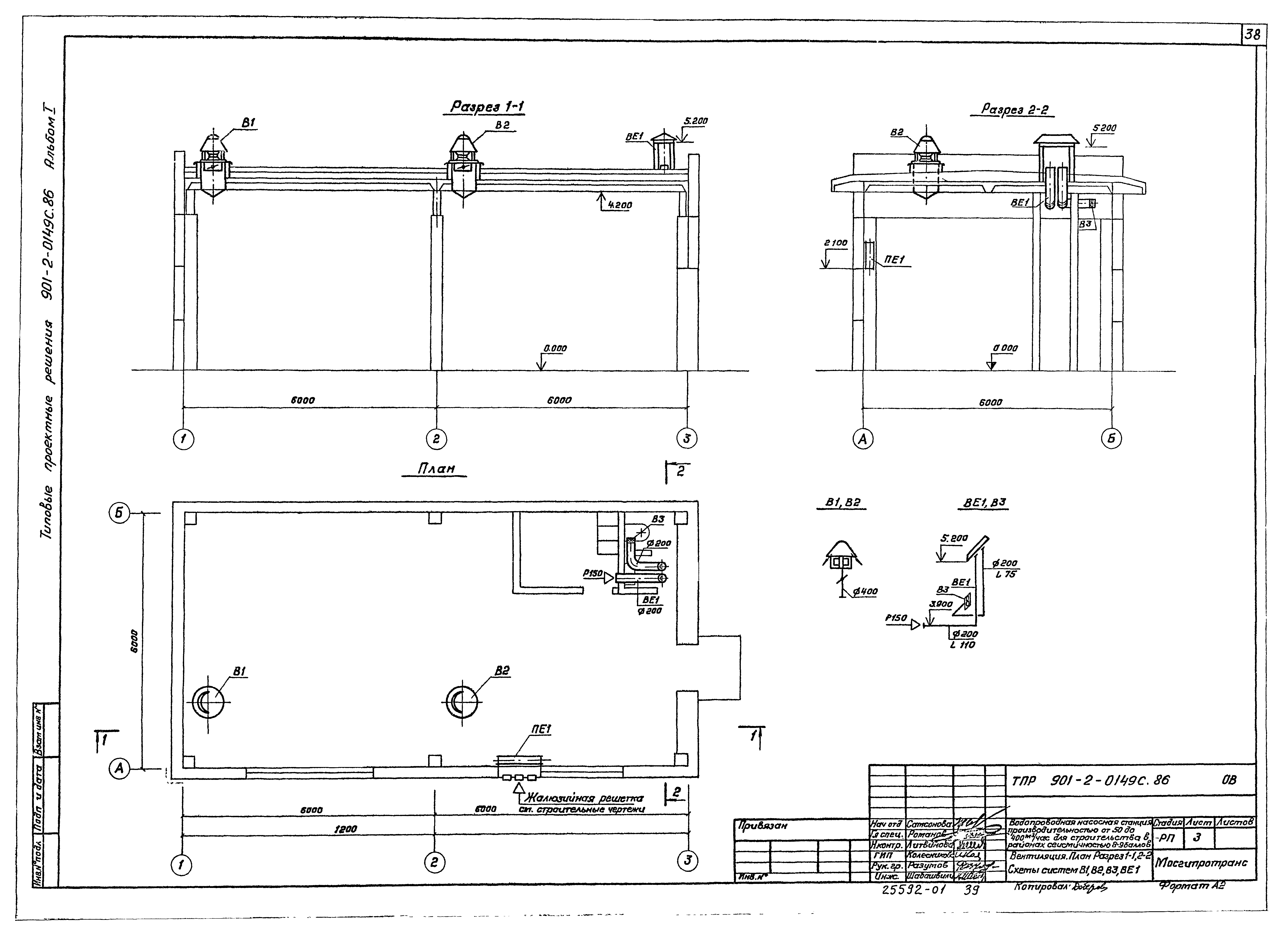
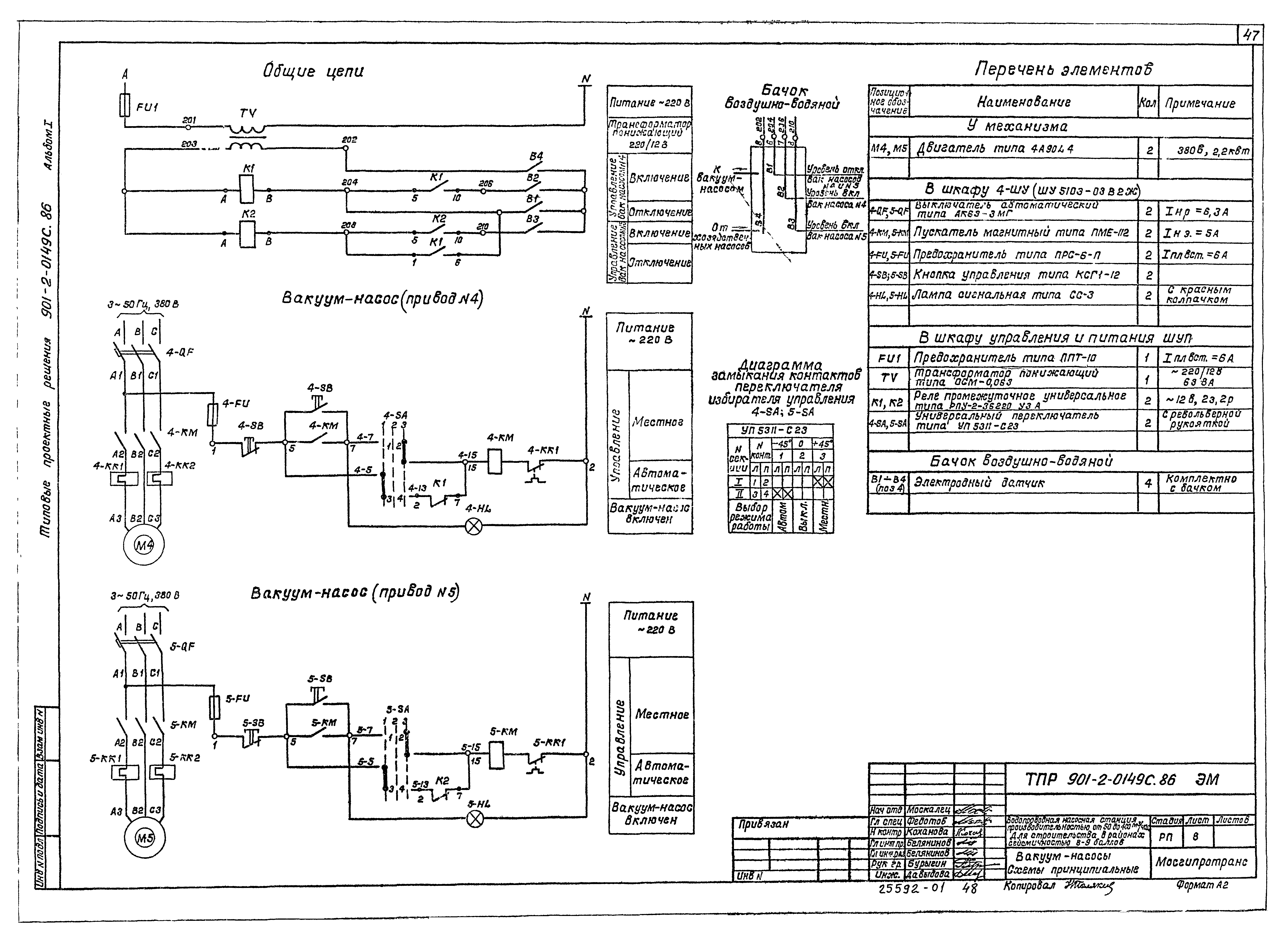
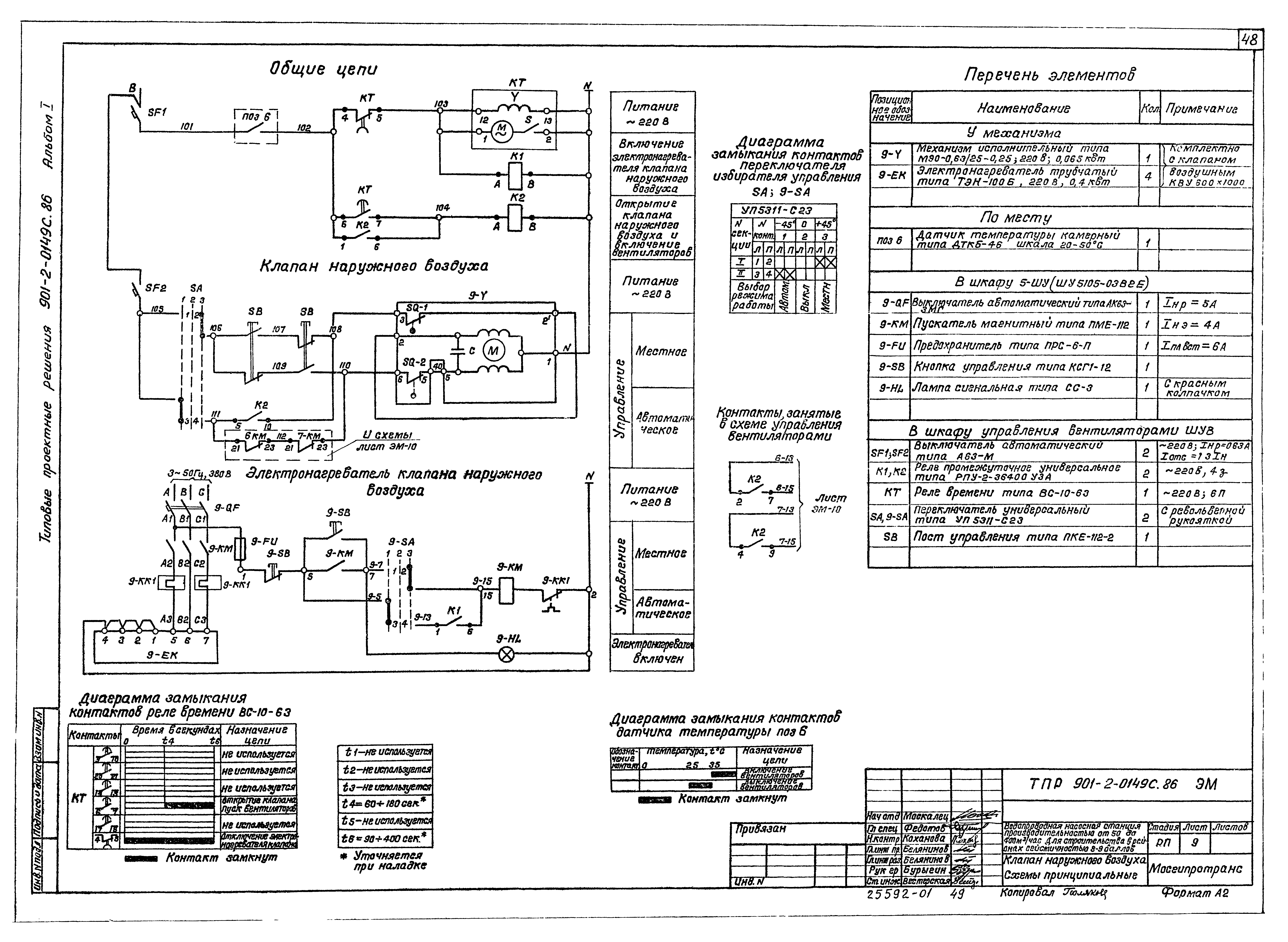
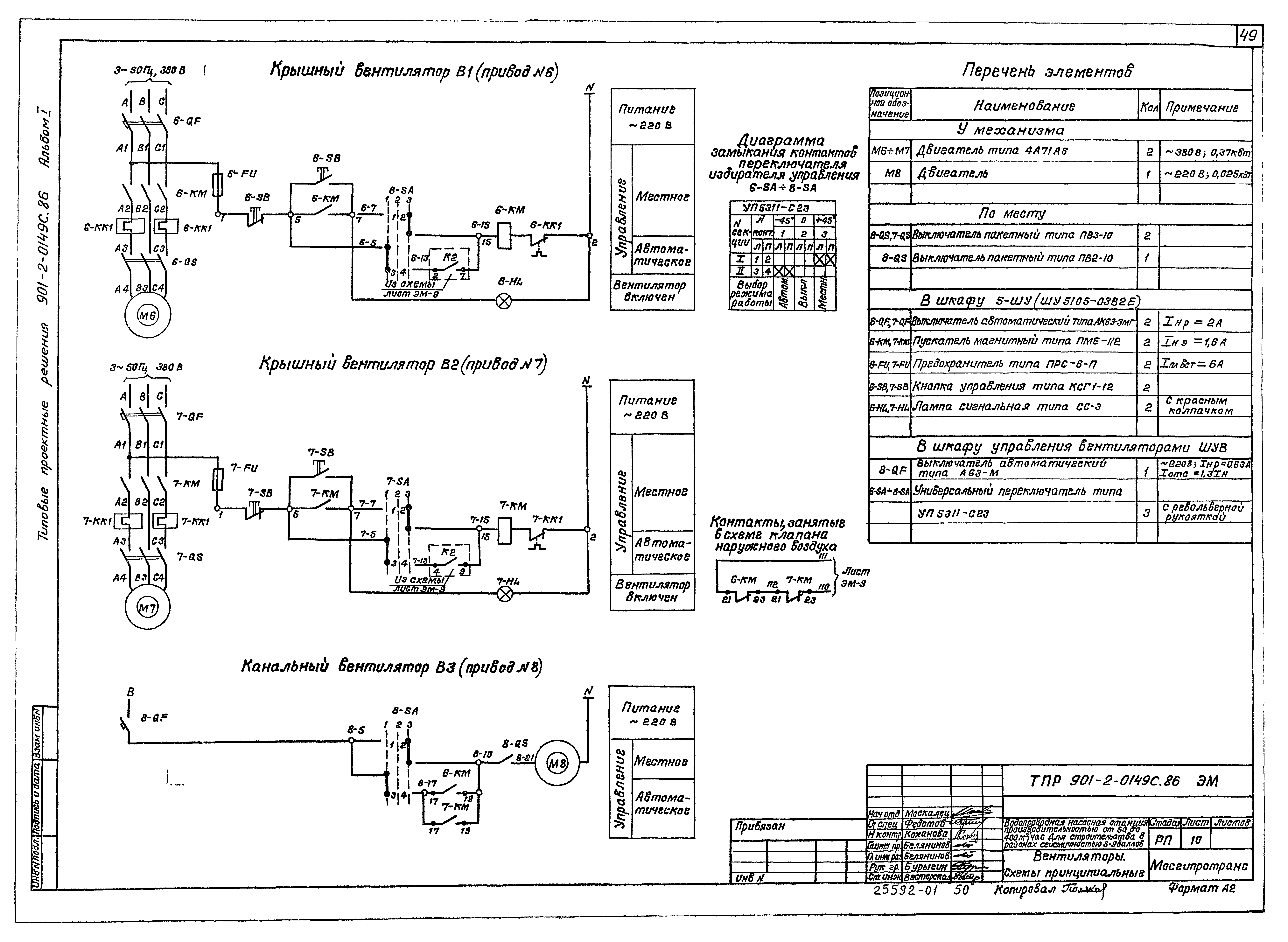
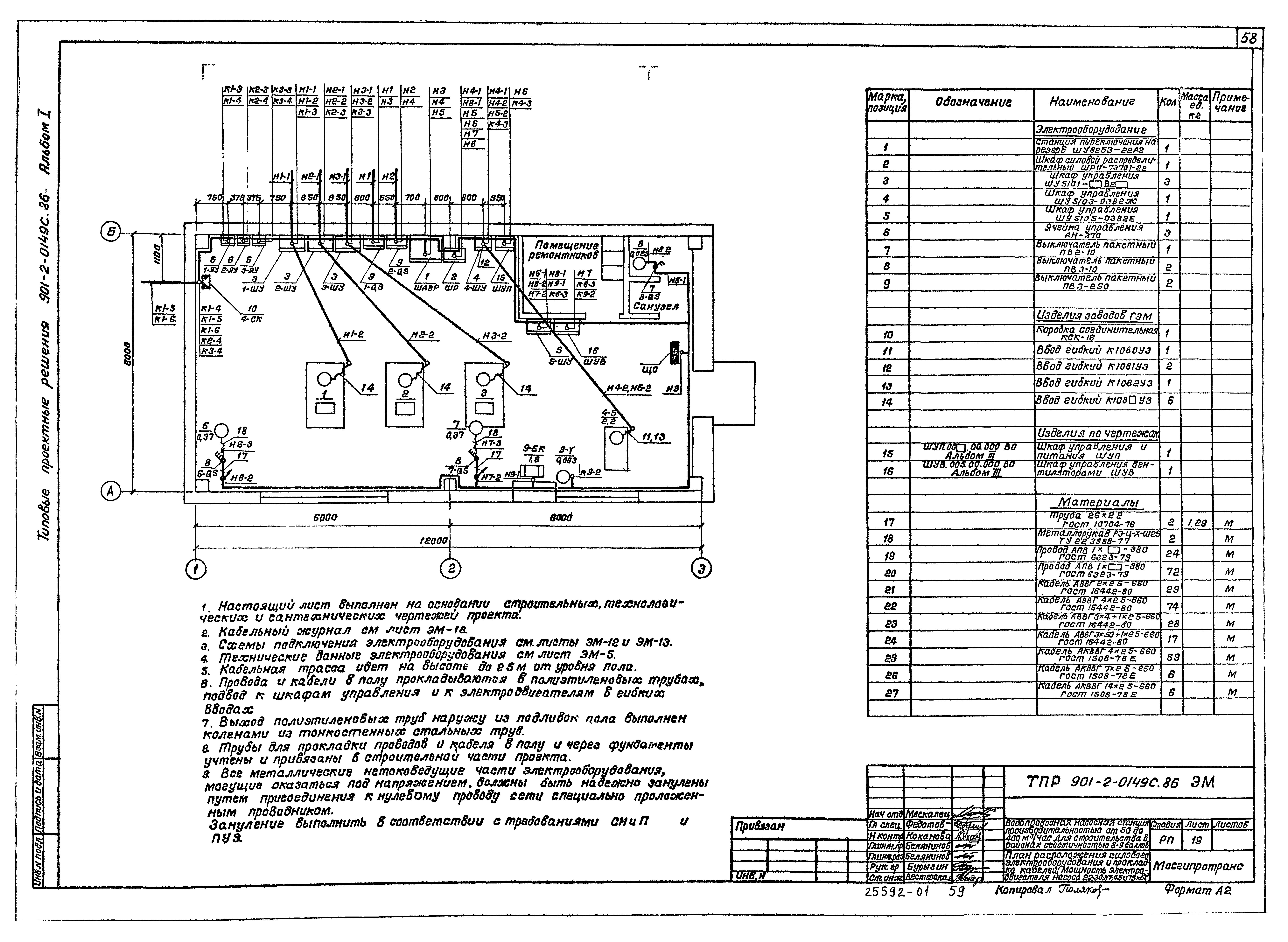
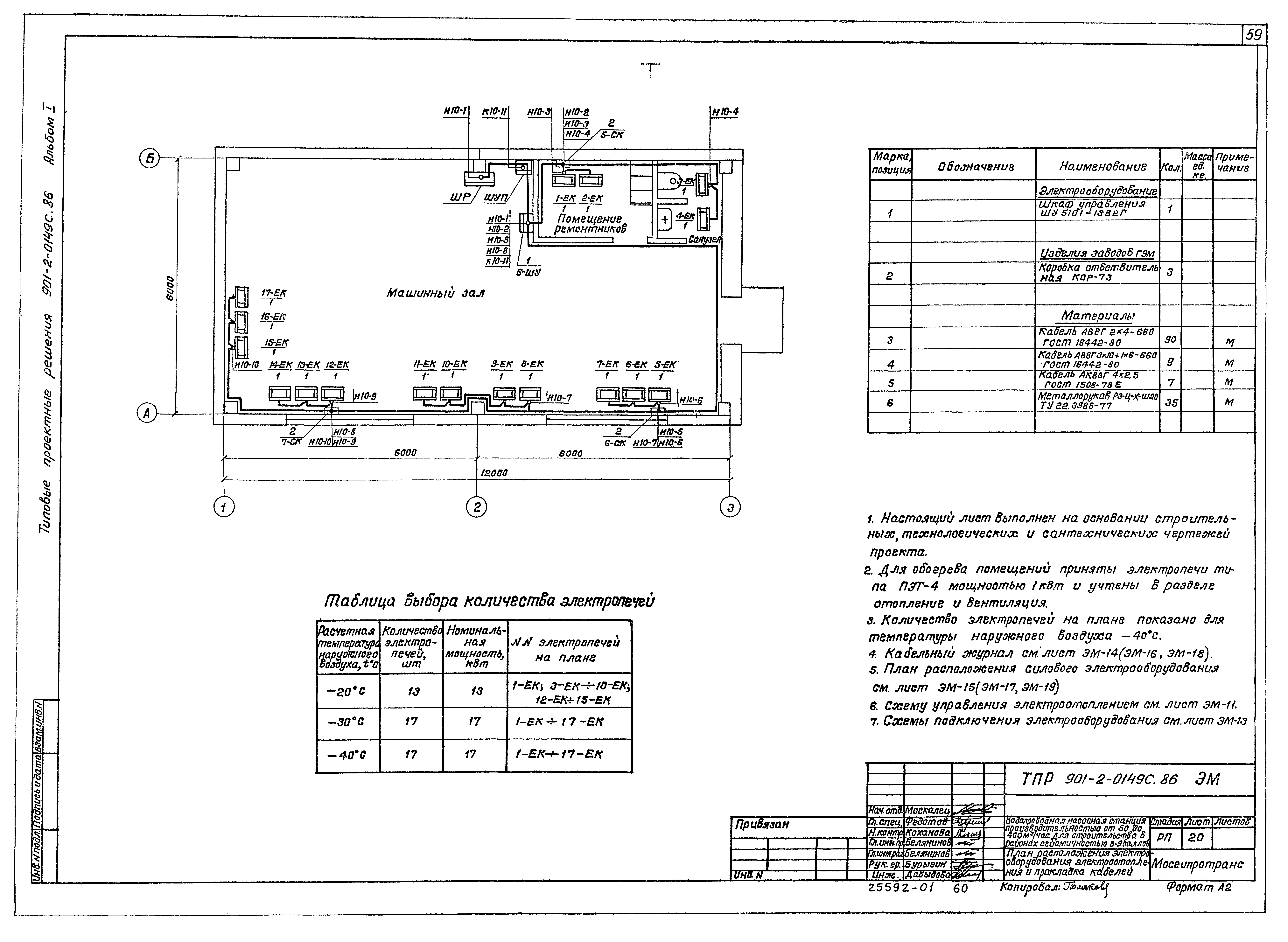
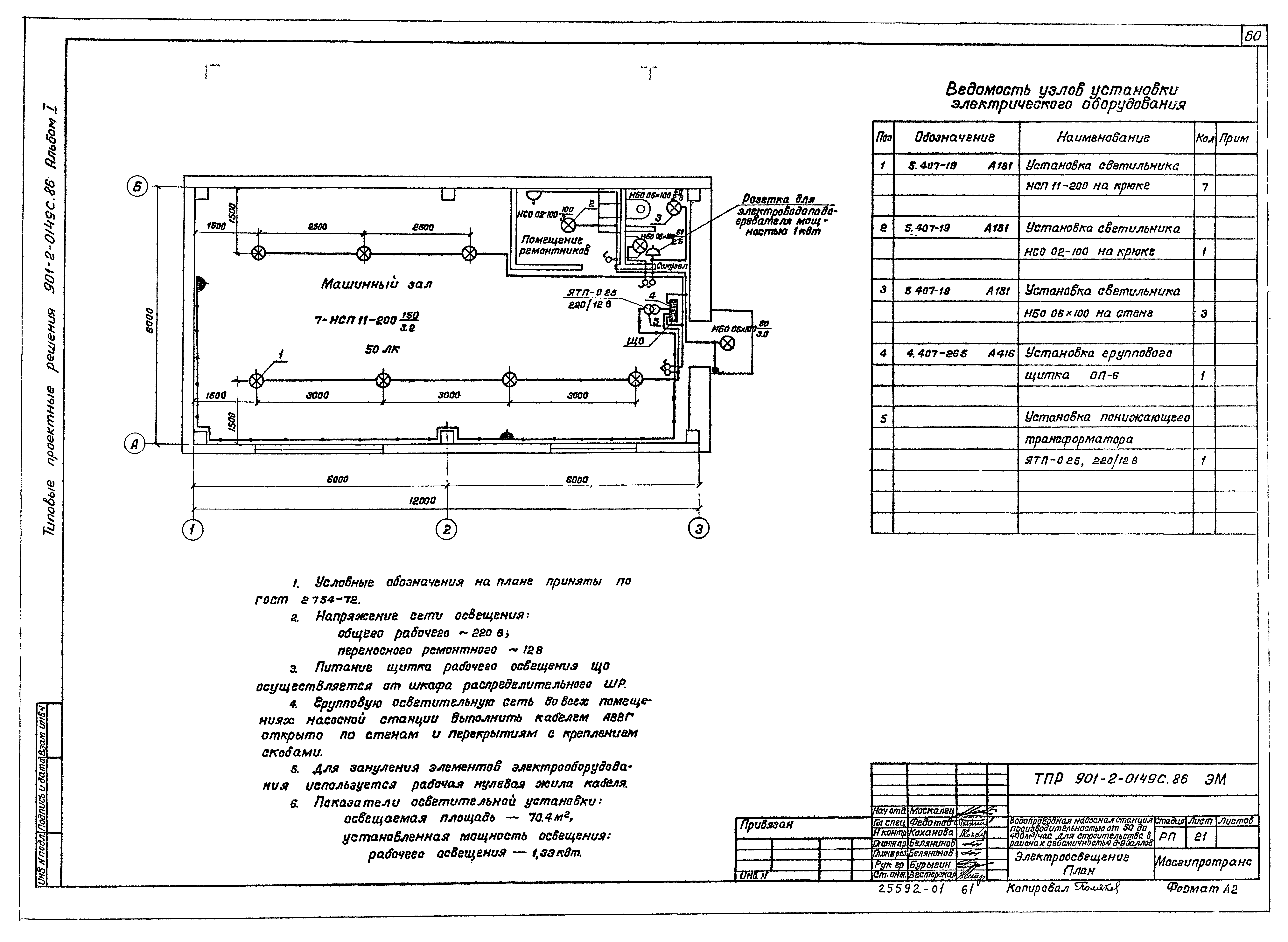
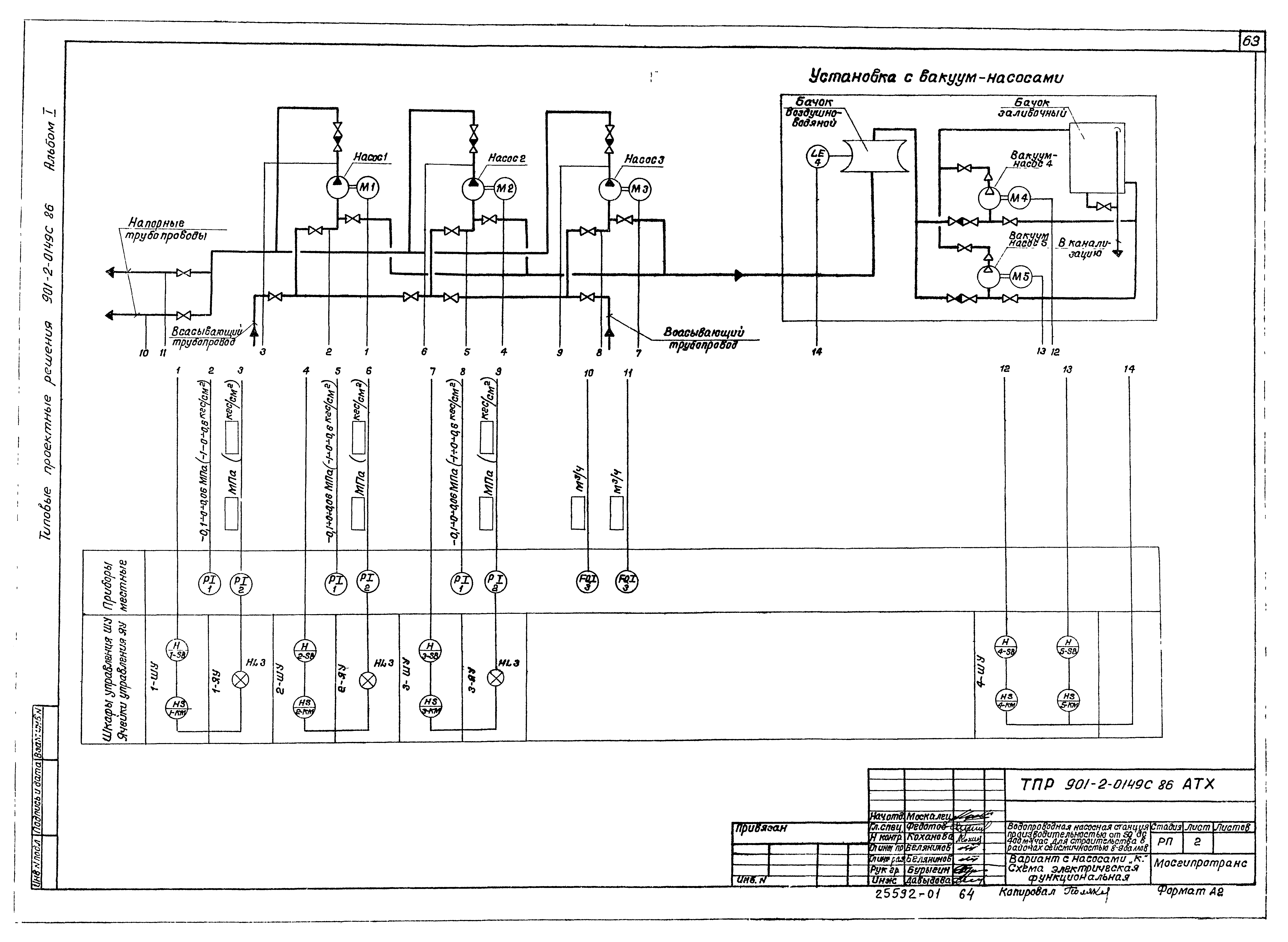
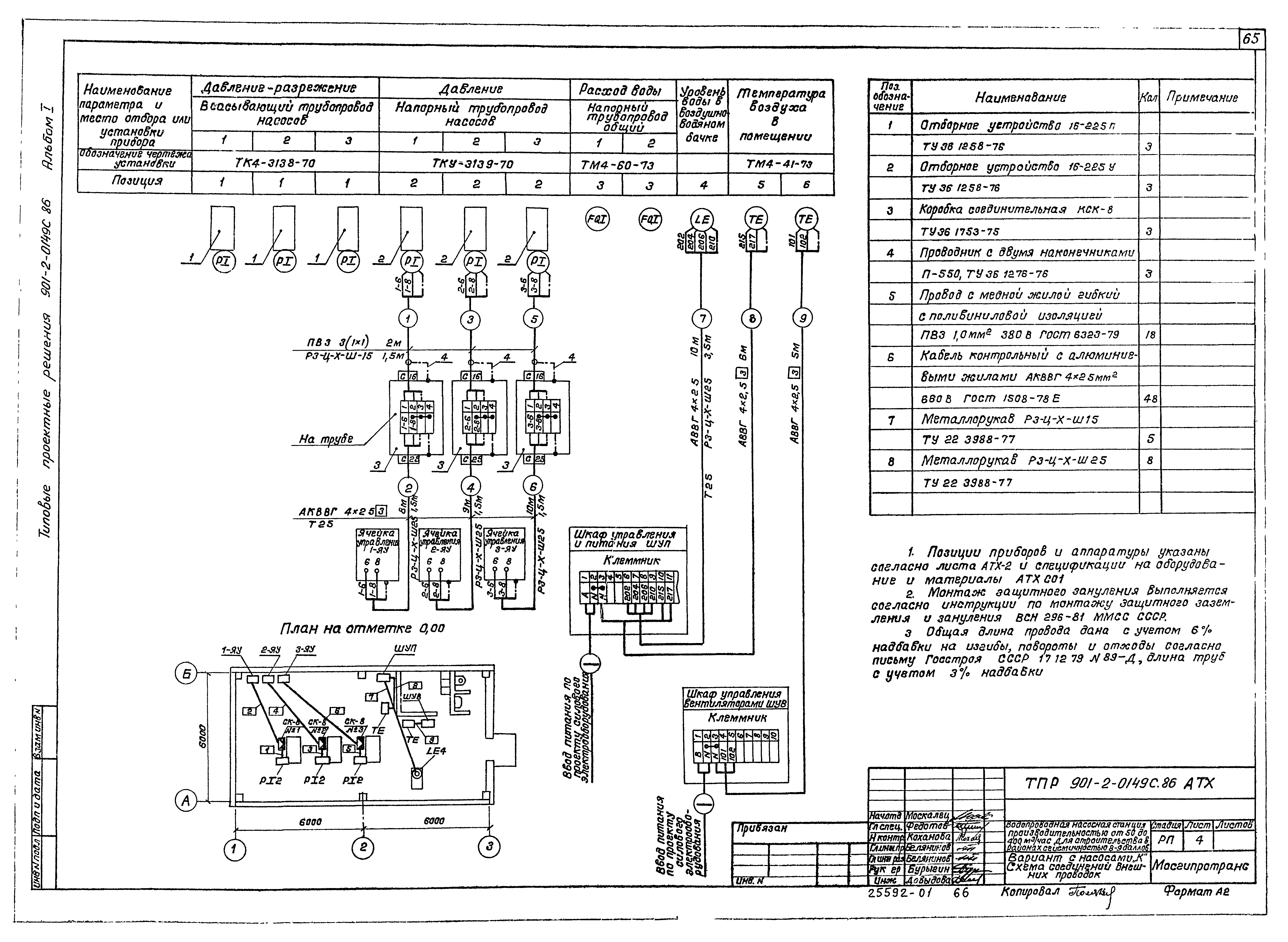
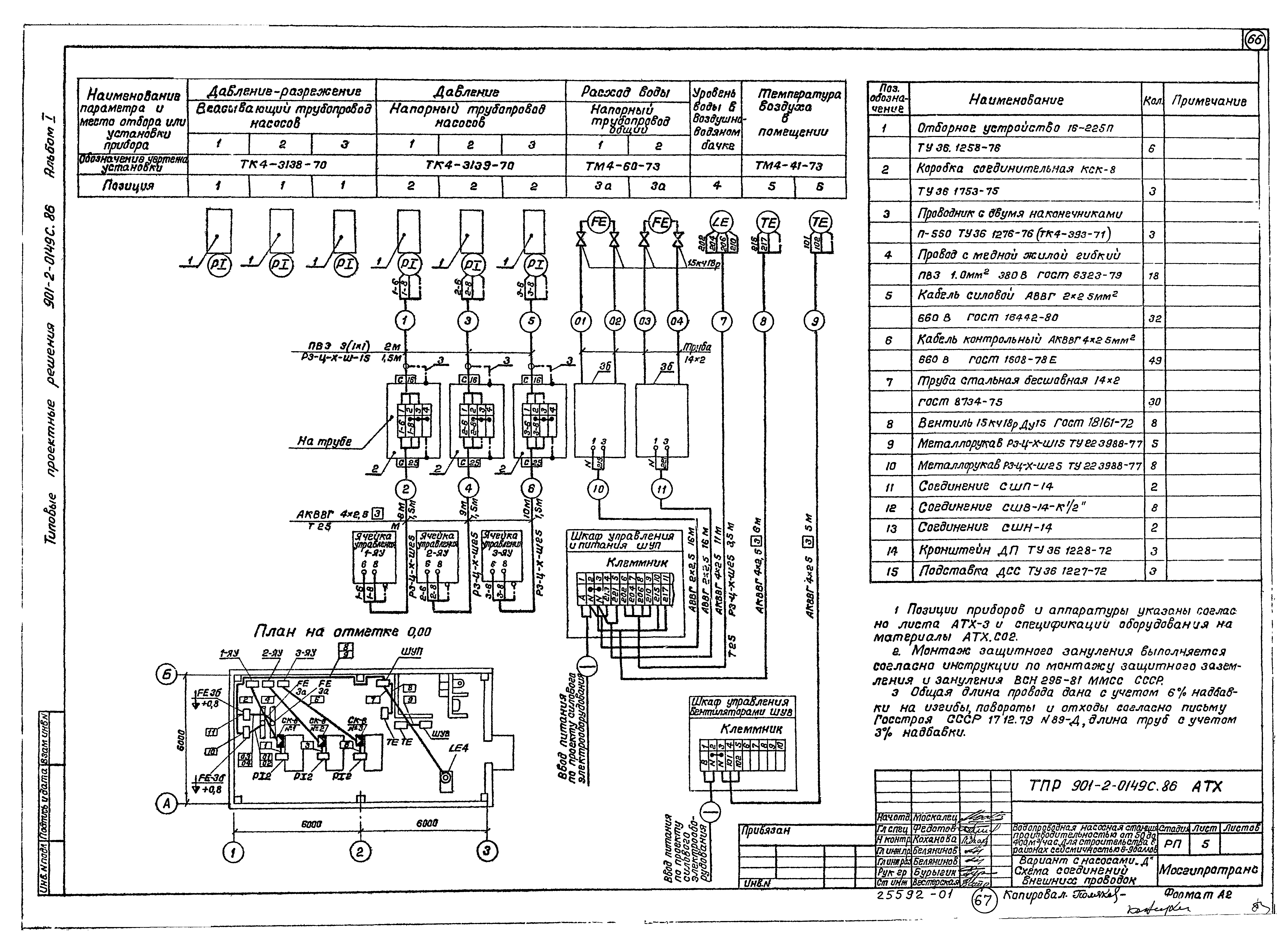
| Оглавление: | Обложка Заглавный лист Содержание альбома Пояснительная записка Архитектурно-строительные решения Общие данные План. Разрезы 1-1; 2-2 Фасады Планы кровли и полов Фрагмент фасада. Узлы и детали. Спецификация Узлы и детали Конструкции железобетонные Общие данные Схема расположения фундаментов и фундаментных балок. Узлы. Спецификация Опалубка и армирование фундамента ФМ1 План фундаментов под оборудование. Приямок. Сечения. Узлы Фундаменты под оборудование ФОМ1, ФОМ2 Схемы расположения элементов каркаса и покрытия. Спецификация Узлы I - III к схемам расположения элементов каркаса и покрытия Схема расположения элементов стен. Спецификация Схема расположения путей тали. Узлы. Спецификация Маркировочные схемы закладочных изделий Технологические решения Общие данные Вариант с насосами "К". Схемы установки системы ВО. Схема с вакуум-насосами Вариант с насосами "К". Спецификация установки насосов Вариант с насосами "К". Производительность 20 - 108 куб. м/ч. Компоновочный чертеж. План. Разрезы Вариант с насосами "К". Производительность 130 - 137 куб. м/ч. Компоновочный чертеж. План. Разрезы Вариант с насосами "Д". Схемы установки системы ВО. Схема с вакуум-насосами Вариант с насосами "Д". Спецификация установки насосов Вариант с насосами "Д". Компоновочный чертеж. План. Разрезы Отопление и вентиляция Общие данные Отопление. План. Схема системы отопления. Узел управления Вентиляция. План. Разрезы 1-1; 2-2. Схемы систем В1, В2, В3, ВЕ1 Внутренние водопровод и канализация Общие данные. План с сетями В1 и К1. Схемы систем В1 и К1 Электротехническая часть Общие данные Распределительная сеть 380/220 В. Схема принципиальная (мощность электродвигателя насоса 4 и 7,5 кВт) Распределительная сеть 380/220 В. Схема принципиальная (мощность электродвигателя насоса 11; 15 и 18,5 кВт) Распределительная сеть 380/220 В. Схема принципиальная (мощность электродвигателя насоса 22; 30; 37; 45 и 75 кВт) Распределительная сеть 380/220 В. Схема принципиальная. Технические данные электрооборудования. Таблица Хозяйственно-питьевые насосы. Схема принципиальная Хозяйственно-питьевые насосы. Схема применения проекта автоматизации Вакуум-насосы. Схемы принципиальные Клапан наружного воздуха. Схемы принципиальные Вентиляторы. Схемы принципиальные Электроотопление Схемы принципиальные Хозяйственно-питьевые насосы. Схемы подключения Вакуум-насосы. Вентиляторы. Элекроотопление. Схемы подключения Кабельный журнал (мощность электродвигателя насоса 4 и 7,5 кВт) План расположения силового электрооборудования и прокладка кабелей (мощность электродвигателя насоса 4 и 7,5 кВт) Кабельный журнал (мощность электродвигателя насоса 11, 15 и 18,5 кВт) План расположения силового электрооборудования и прокладка кабелей (мощность электродвигателя насоса 11, 15 и 18,5 кВт) Кабельный журнал (мощность электродвигателя насоса 22, 30, 37, 45 и 75 кВт) План расположения силового электрооборудования и прокладка кабелей (мощность электродвигателя насоса 22, 30, 37, 45 и 75 кВт) План расположения электрооборудования, электроотопления и прокладка кабелей Электроосвещение. План Распределительная сеть ~380/220 В. Схема принципиальная (мощность электродвигателя насоса 22, 30, 37, 45 и 75 кВт). Вариант с противопожарным насосами Технологический контроль Общие данные Вариант с насосами "К". Схема электрическая функциональная Вариант с насосами "Д". Схема электрическая функциональная Вариант с насосами "К". Схема соединений внешних проводок Вариант с насосами "Д". Схема соединений внешних проводок |
| Разработан: | Мосгипротранс |
| Утверждён: | 12.08.1986 Министерство транспортного строительства СССР (USSR Ministry of Transport Construction ГА-1122) |


































































