Скачать Типовые проектные решения 901-2-0149с.86 Альбом II. Строительные изделия КЖИДата актуализации: 01.01.2021
|
| Обозначение: | Типовые проектные решения 901-2-0149с.86 |
| Обозначение англ: | 901-2-0149с.86 |
| Статус: | справочные материалы, мп, тпр |
| Название рус.: | Альбом II. Строительные изделия КЖИ |
| Дата добавления в базу: | 01.09.2013 |
| Дата актуализации: | 01.01.2021 |
| Дата введения: | 12.08.1986 |
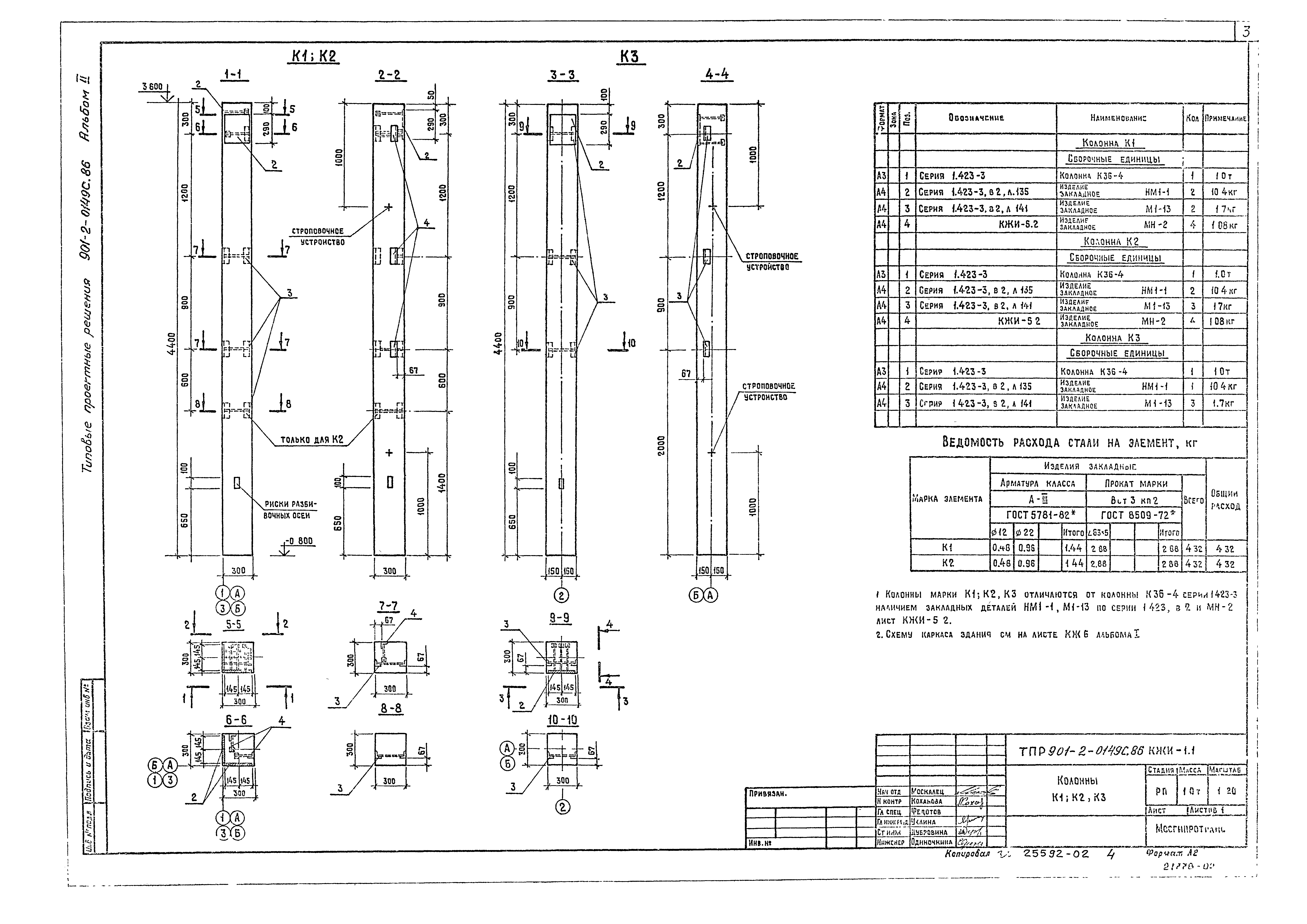
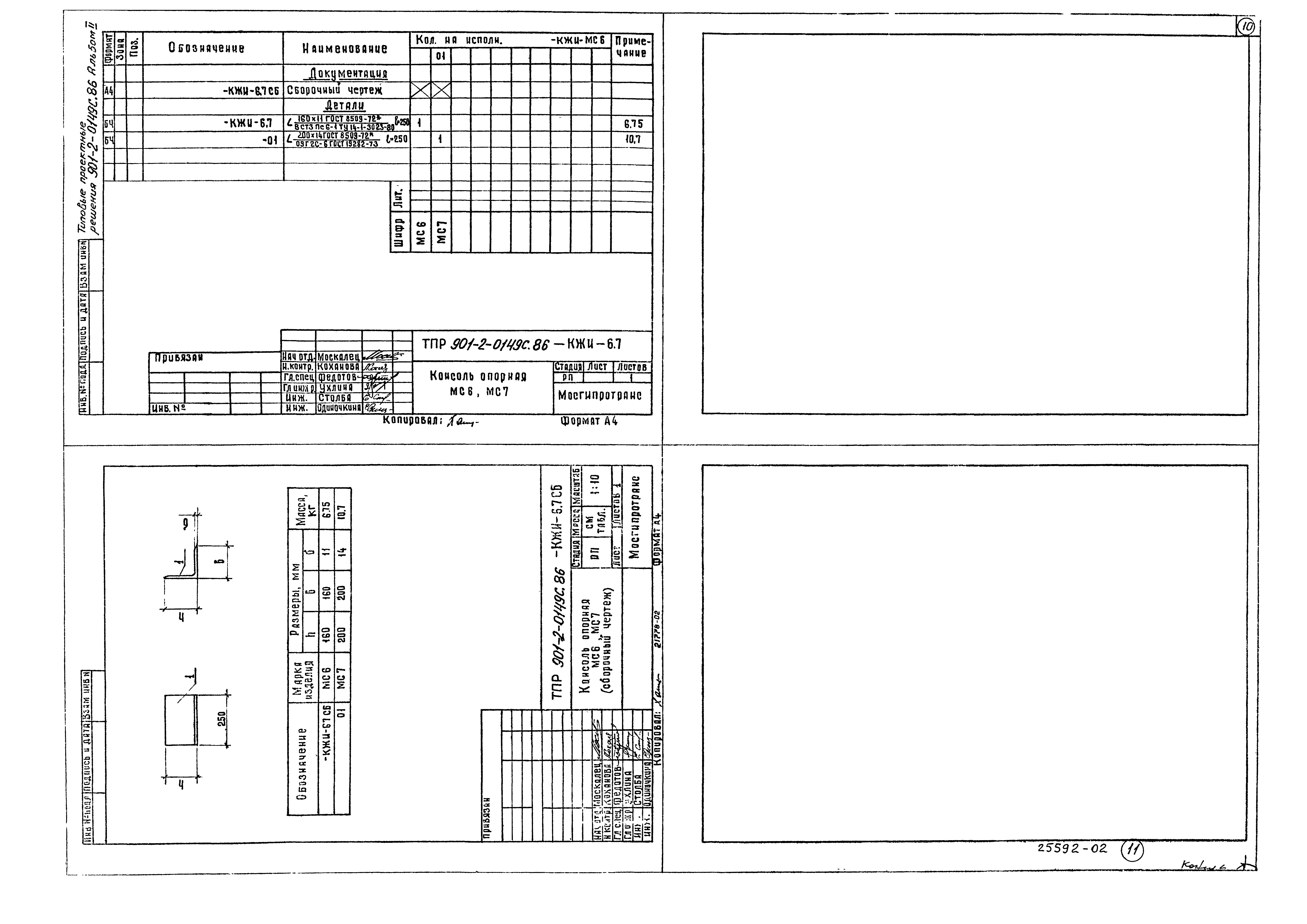
| Оглавление: | ТП 901-2-0149с.86 Обложка ТП 901-2-0149с.86 Заглавный лист ТП 901-2-0149с.86 Содержание альбома ТП 901-2-0149с.86-КЖ-ТУ Технические условия ТП 901-2-0149с.86-КЖ-1.1 Колонны К1;К2;К3 ТП 901-2-0149с.86-КЖ-2.1СБ Стеновая панель ПС.65.18.2.0-4л-И1; ПС65.5.18.2.5-4.л-И1; ПС66.18.3.0-6л-И1. Сборочный чертеж ТП 901-2-0149с.86-КЖ-2.1 Стеновая панель ТП 901-2-0149с.86-КЖ-3.1 Балка Б1 ТП 901-2-0149с.86-КЖ-4.1 Сетка С1 ТП 901-2-0149с.86-КЖ-4.2 Сетка С2 ТП 901-2-0149с.86-КЖ-4.3 Сетка С3 ТП 901-2-0149с.86-КЖ-4.4 Сетка С4 ТП 901-2-0149с.86-КЖ-4.5СБ Сетка С5;С6. Сборочный чертеж ТП 901-2-0149с.86-КЖ-4.5 Сетка С5;С6 ТП 901-2-0149с.86-КЖ-4.6СБ Сетка С7;С7*;С8;С8*. Сборочный чертеж ТП 901-2-0149с.86-КЖ-4.6 Сетка С7;С7*;С8;С8* ТП 901-2-0149с.86-КЖ-5.1 Изделие закладное МН1 ТП 901-2-0149с.86-КЖ-5.2 Изделие закладное МН2 ТП 901-2-0149с.86-КЖ-5.3 Изделие закладное МН3 ТП 901-2-0149с.86-КЖ-6.1 Рама Р1 ТП 901-2-0149с.86-КЖ-6.2 Решетка вентиляционная жалюзийная Р2 ТП 901-2-0149с.86-КЖ-6.3 Крышка приямка Щ1 ТП 901-2-0149с.86-КЖ-6.4 Изделия соединительные МС1;МС2 ТП 901-2-0149с.86-КЖ-6.5 Изделие соединительное МС3 ТП 901-2-0149с.86-КЖ-6.6 Изделия соединительные МС4;МС5 ТП 901-2-0149с.86-КЖ-6.7СБ Консоль опорная МС6;МС7. Сборочный чертеж ТП 901-2-0149с.86-КЖ-6.7 Консоль опорная МС6;МС7 |
| Разработан: | Мосгипротранс |
| Утверждён: | 12.08.1986 Министерство транспортного строительства СССР (USSR Ministry of Transport Construction ГА-1122) |










