Скачать Типовой проект 903-9-13сп.86 Альбом IV. Передвижная стремянка. Рабочие чертежи (из ТП 903-9-12сп.86)Дата актуализации: 01.01.2021
|
| Обозначение: | Типовой проект 903-9-13сп.86 |
| Обозначение англ: | 903-9-13сп.86 |
| Статус: | не определен законодательством |
| Название рус.: | Альбом IV. Передвижная стремянка. Рабочие чертежи (из ТП 903-9-12сп.86) |
| Дата добавления в базу: | 01.09.2013 |
| Дата актуализации: | 01.01.2021 |
| Дата введения: | 18.06.1985 |
| Дата окончания срока действия: | 30.06.2003 |
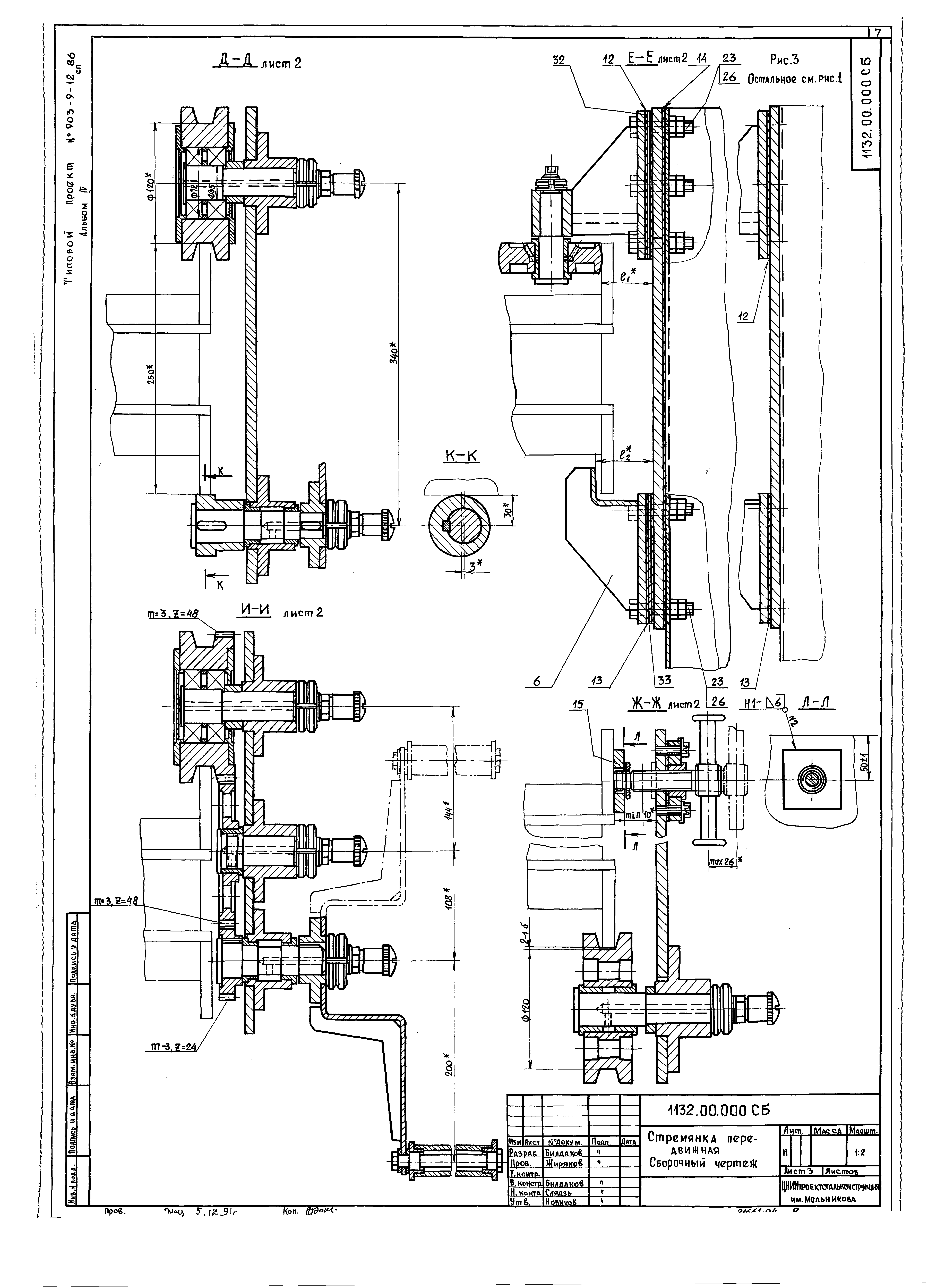
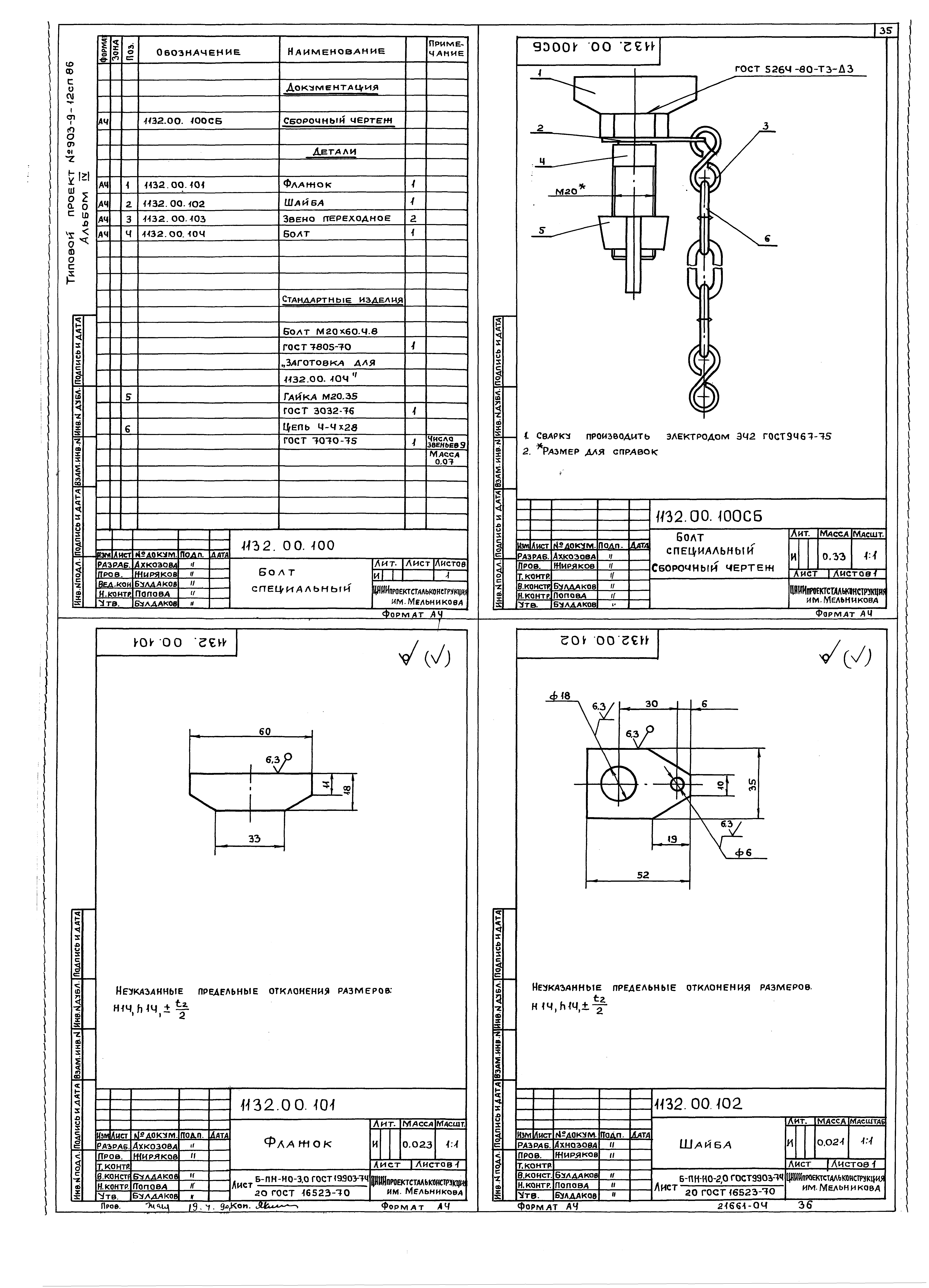
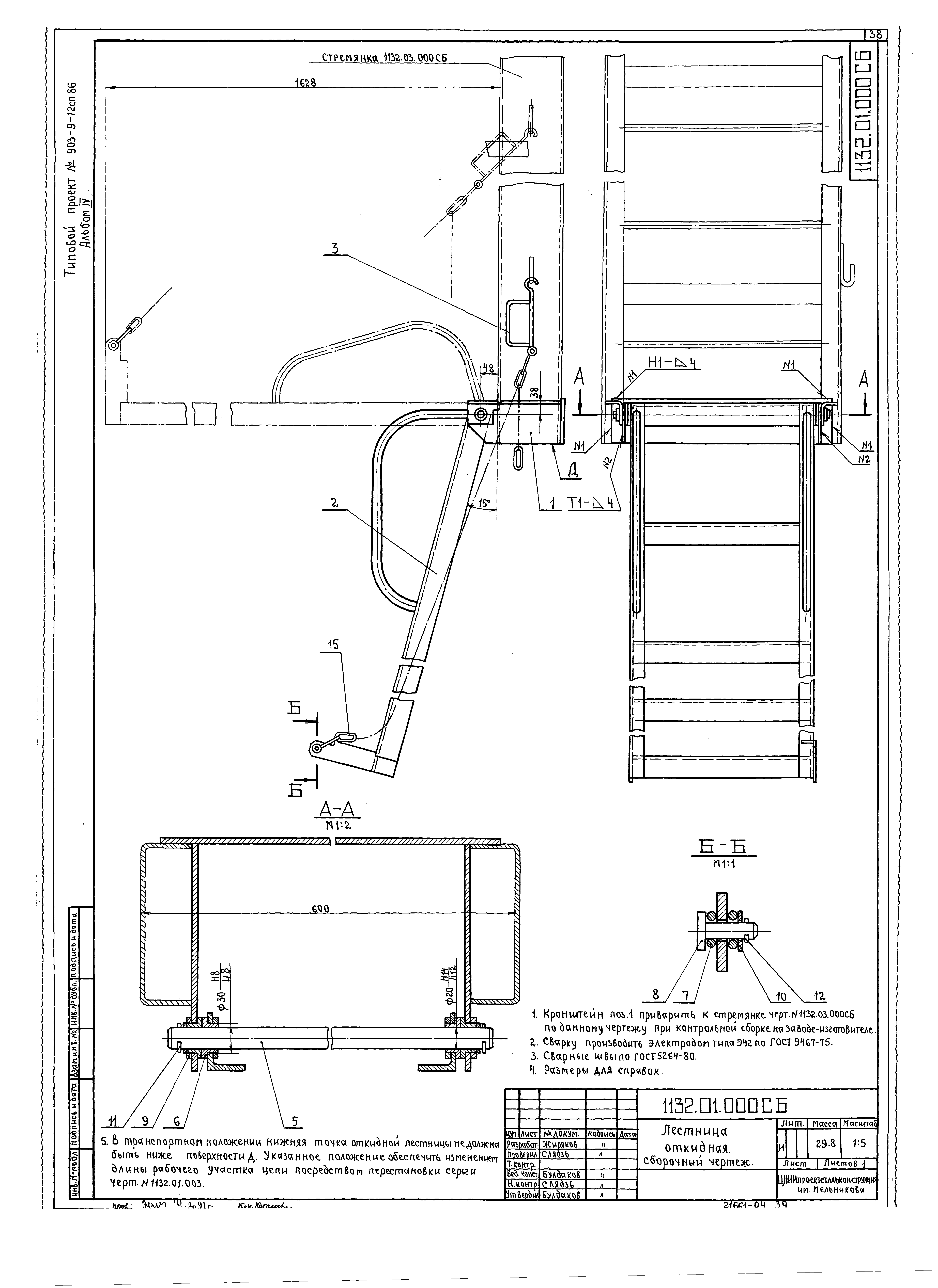
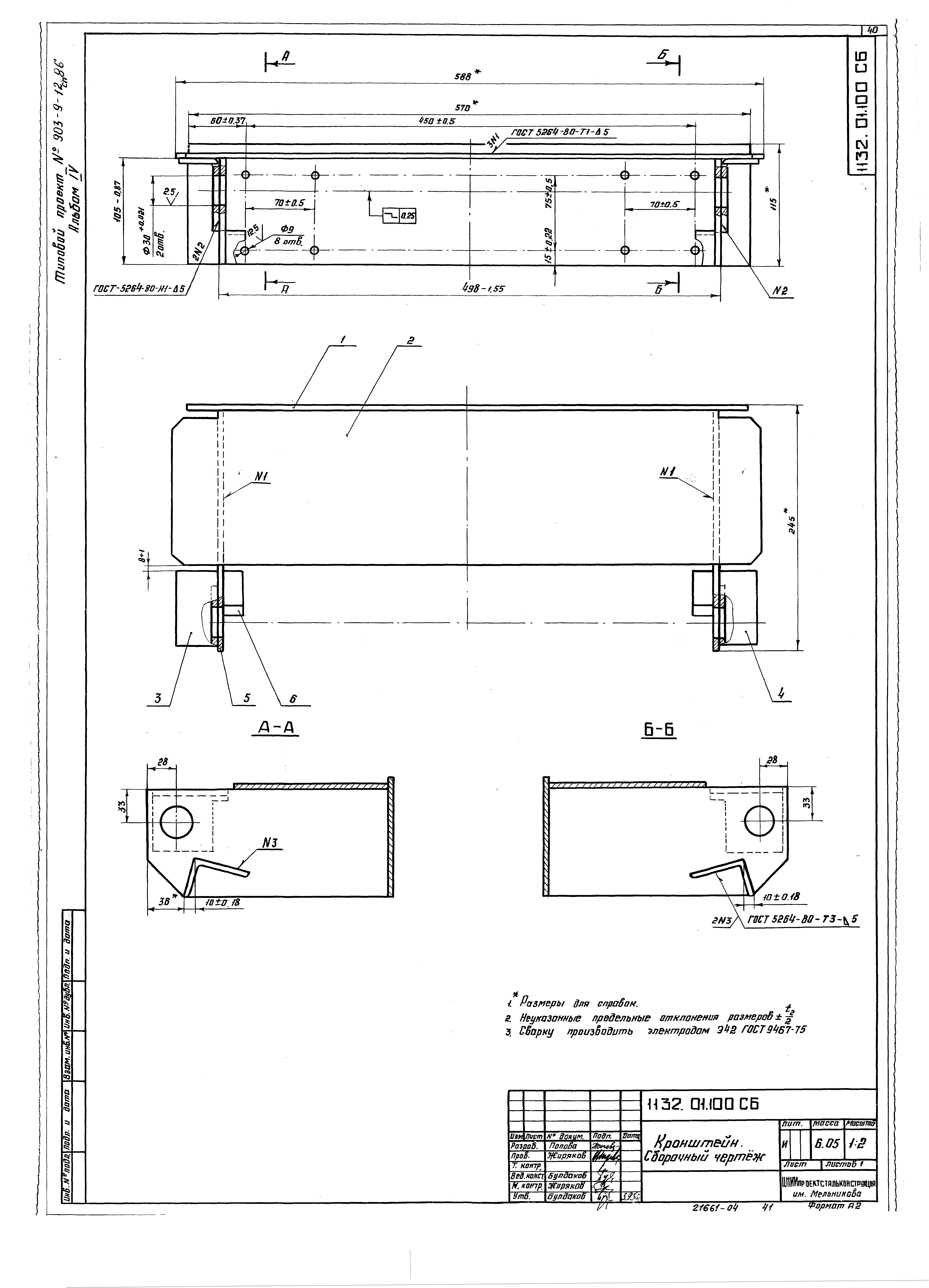
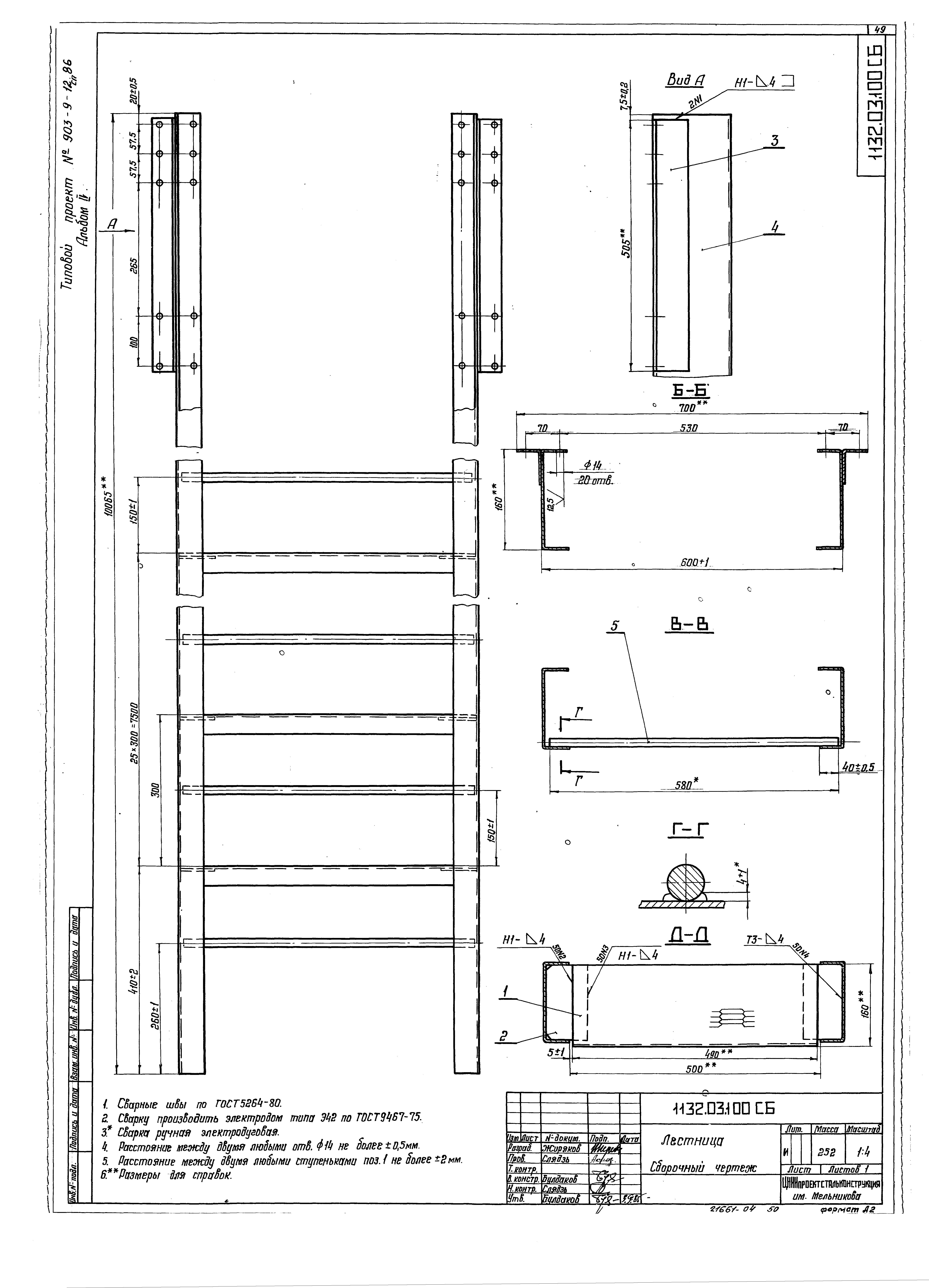
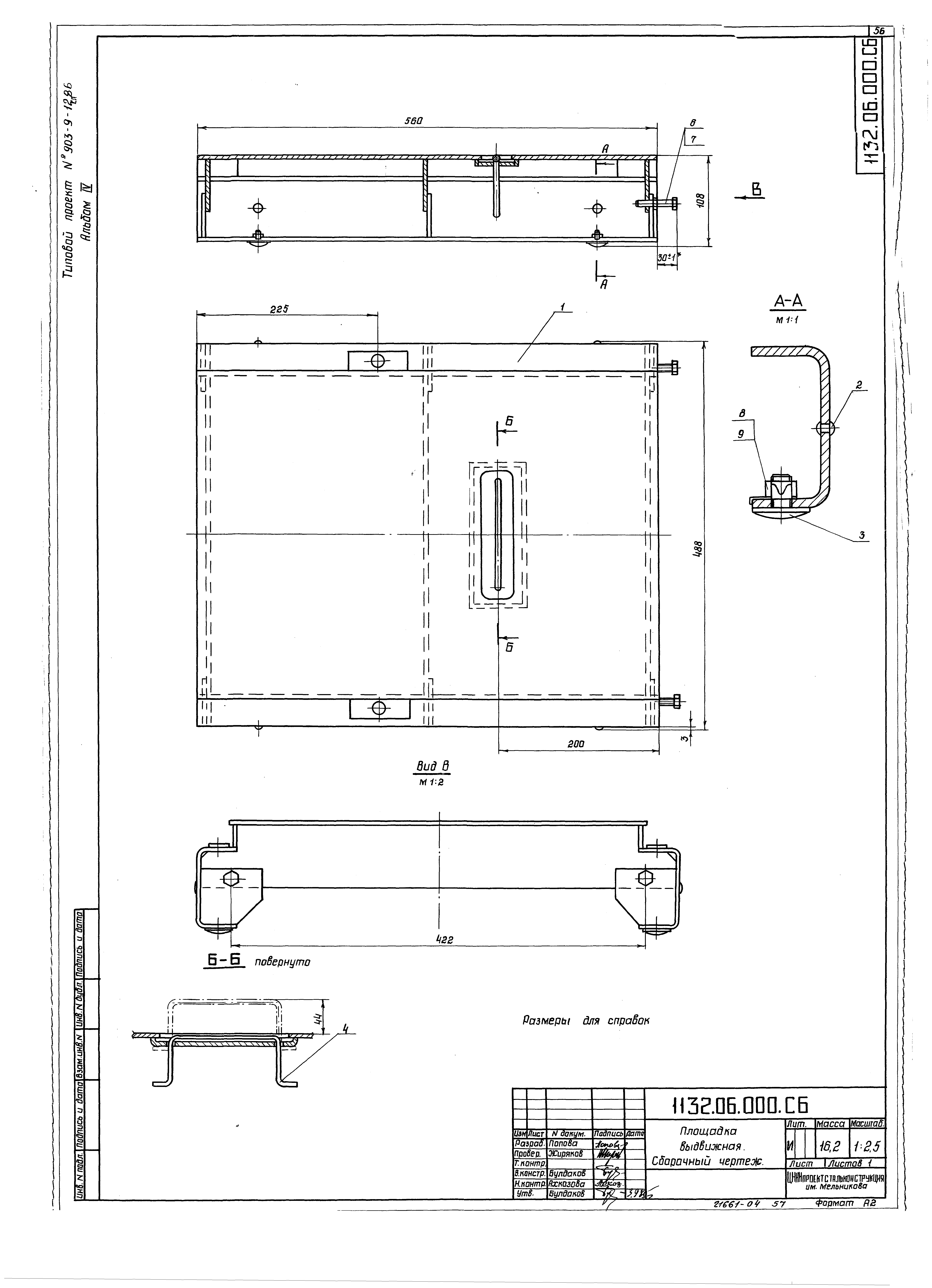
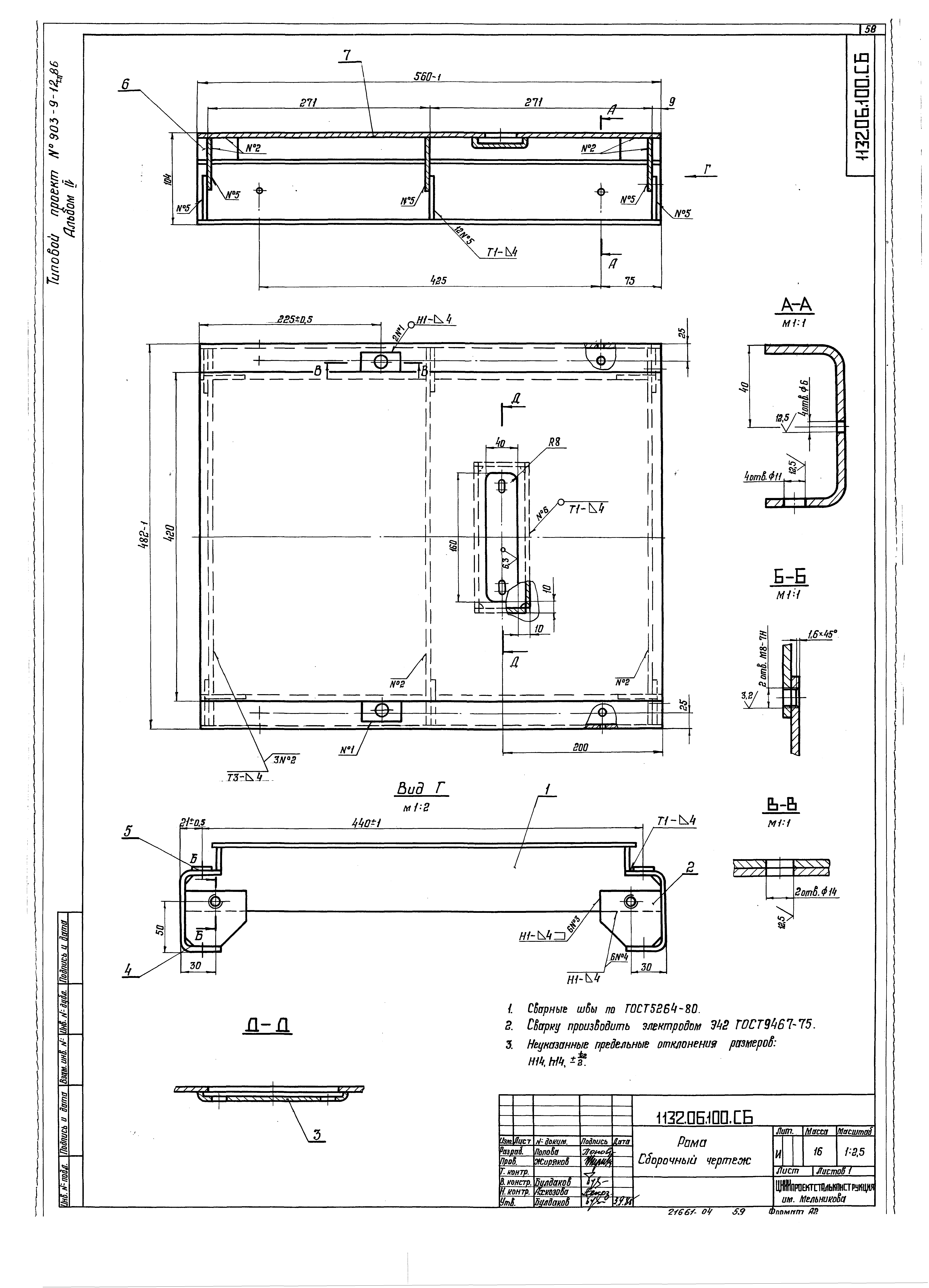
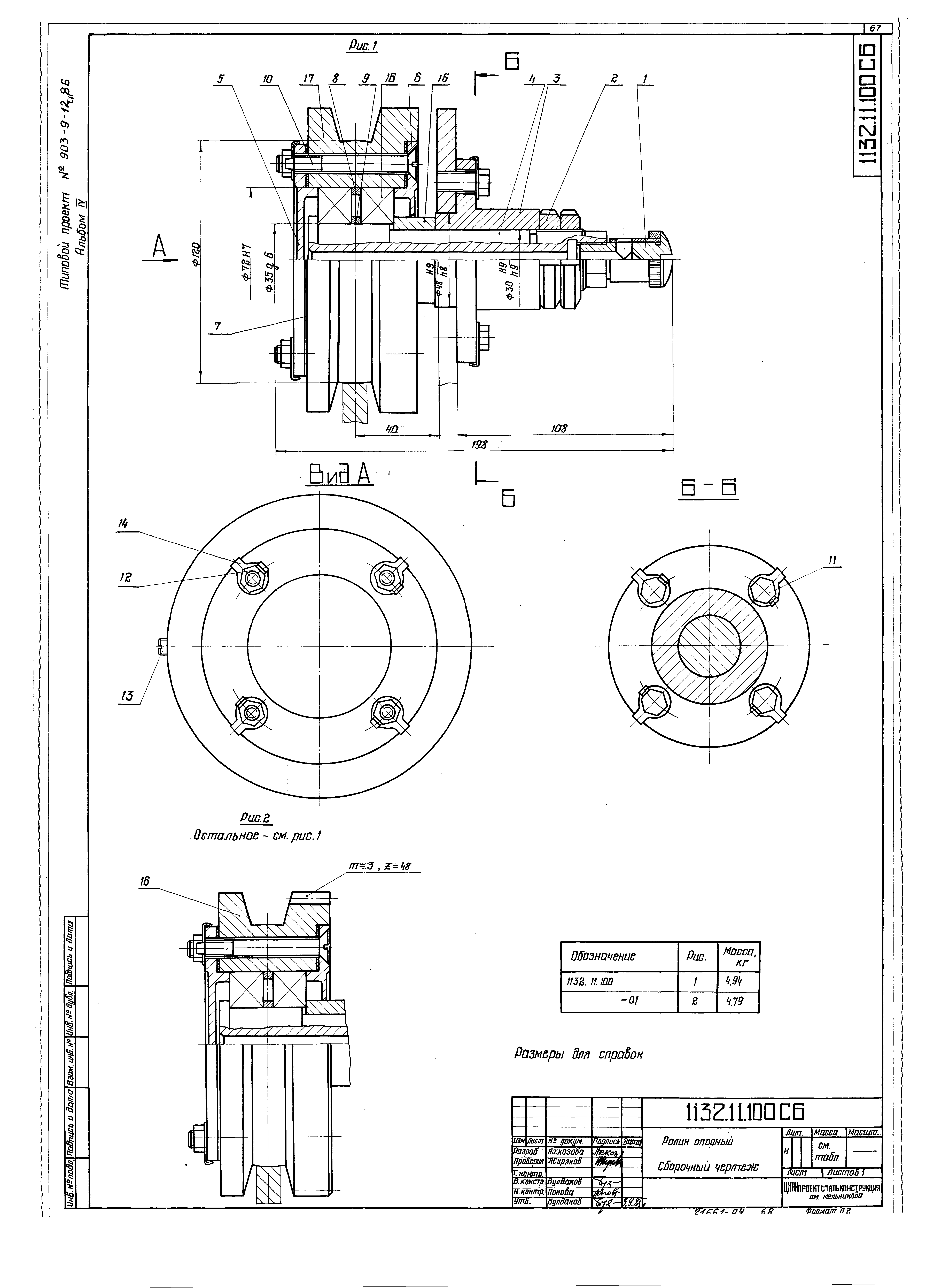
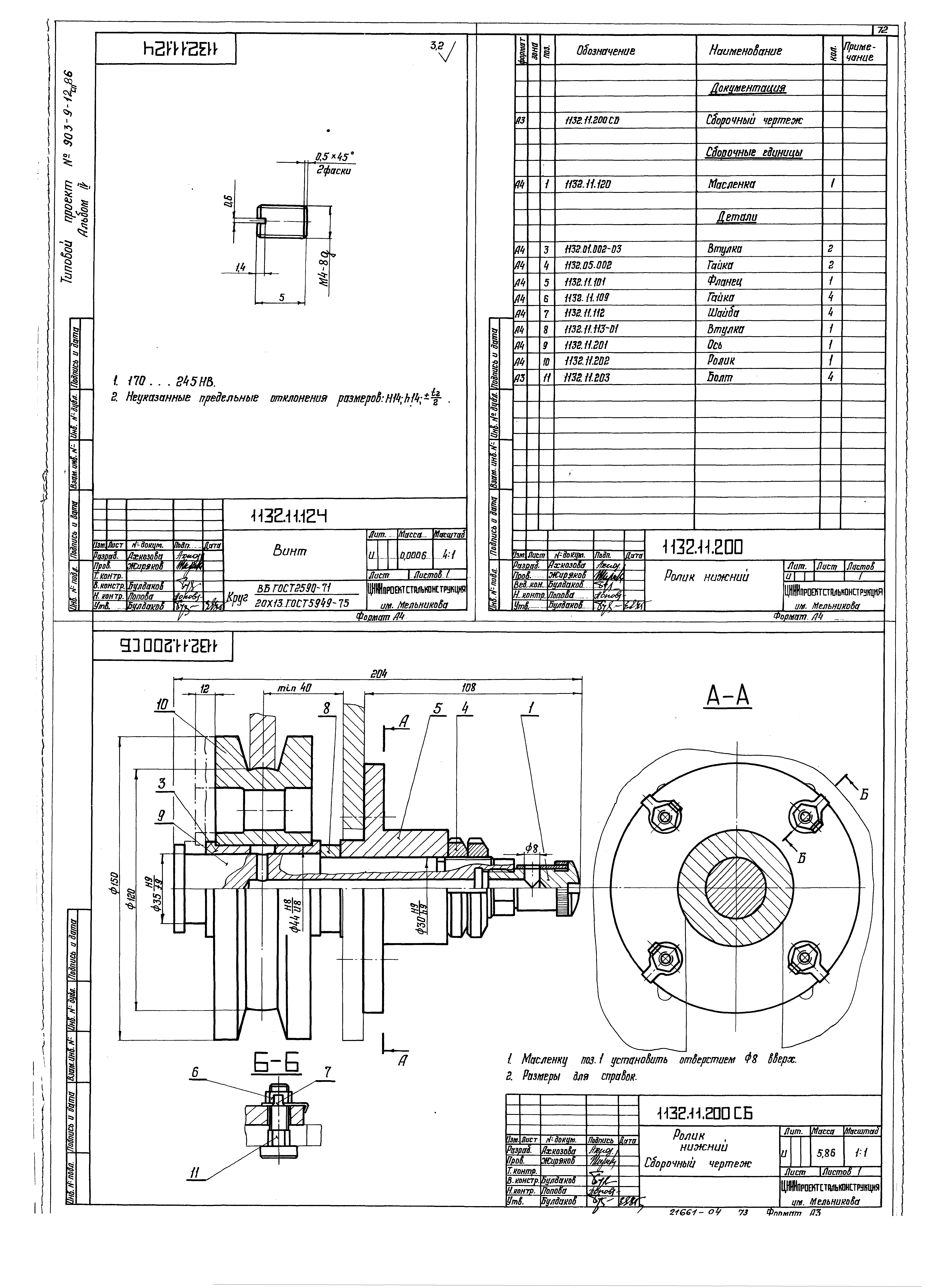
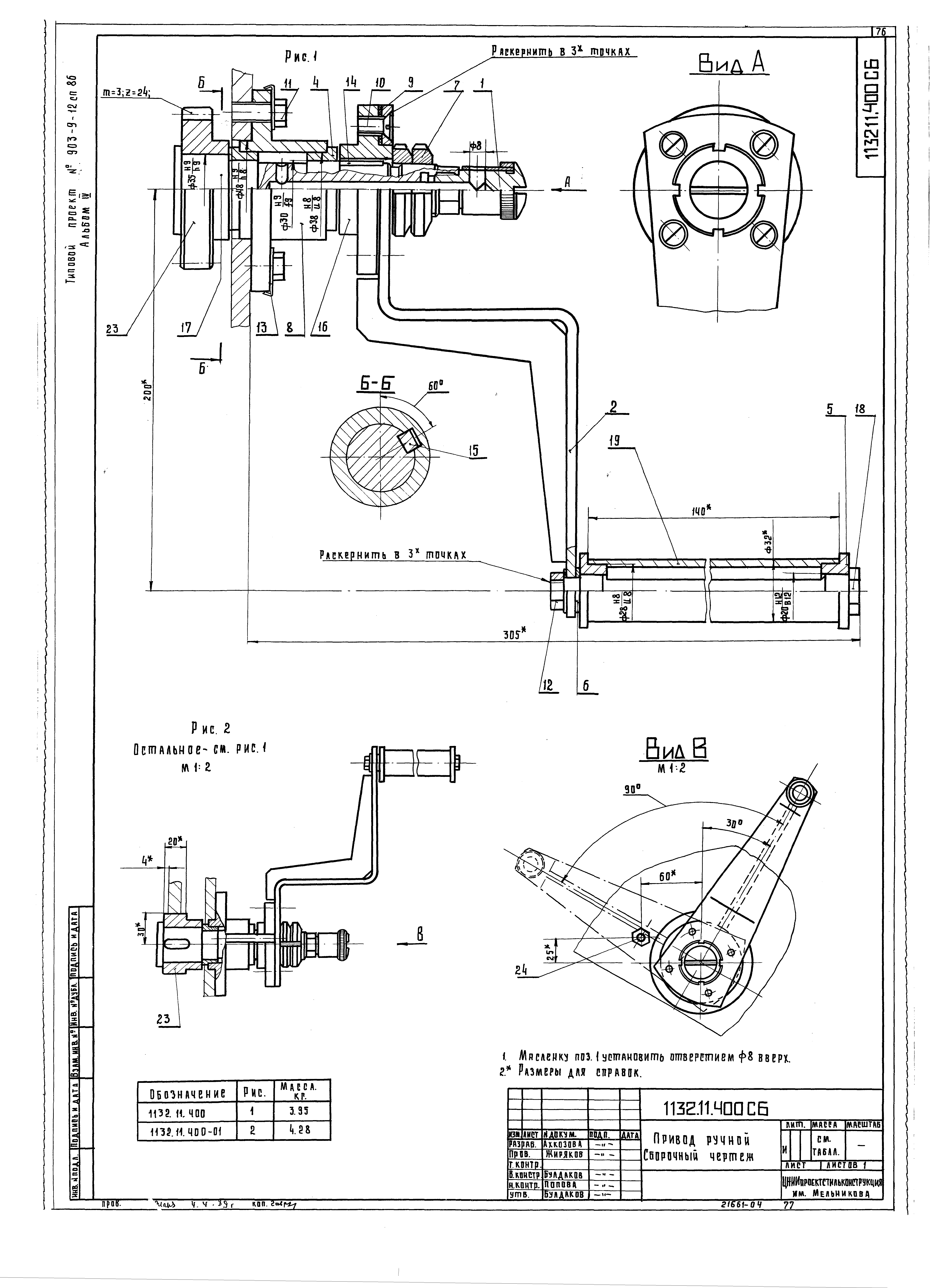
| Оглавление: | ТП 903-9-12сп.86 Титульный лист ТП 903-9-12сп.86 Содержание ТП 903-9-12сп.86 1132.00.000 Стремянка передвижная ТП 903-9-12сп.86 1132.00.000 СБ Стремянка передвижная. Сборочный чертеж ТП 903-9-12сп.86 1132.00.000 ВС Ведомость спецификаций ТП 903-9-12сп.86 1132.00.000 ВП Ведомость покупных изделий ТП 903-9-12сп.86 1132.00.000 ТУ Технические условия ТП 903-9-12сп.86 1132.00.000 ПС Паспорт ТП 903-9-12сп.86 1132.00.001 Прокладка ТП 903-9-12сп.86 1132.00.002 Прокладка ТП 903-9-12сп.86 1132.00.003 Прокладка ТП 903-9-12сп.86 1132.00.004 Бобышка ТП 903-9-12сп.86 1132.00.005 Болт ТП 903-9-12сп.86 1132.00.006 Прокладка ТП 903-9-12сп.86 1132.00.009 Прокладка ТП 903-9-12сп.86 1132.00.011 Подкос ТП 903-9-12сп.86 1132.00.100 Болт специальный ТП 903-9-12сп.86 1132.00.100 СБ Болт специальный. Сборочный чертеж ТП 903-9-12сп.86 1132.00.101 Флажок ТП 903-9-12сп.86 1132.00.102 Шайба ТП 903-9-12сп.86 1132.00.103 Звено переходное ТП 903-9-12сп.86 1132.00.104 Болт ТП 903-9-12сп.86 1132.00.200 Кронштейн ТП 903-9-12сп.86 1132.00.201 Ребро ТП 903-9-12сп.86 1132.01.000 Лестница откидная ТП 903-9-12сп.86 1132.01.000 СБ Лестница откидная. Сборочный чертеж ТП 903-9-12сп.86 1132.01.001 Ось ТП 903-9-12сп.86 1132.01.002 Втулка ТП 903-9-12сп.86 1132.01.003 Серьга ТП 903-9-12сп.86 1132.01.004 Палец ТП 903-9-12сп.86 1132.01.005 Шайба ТП 903-9-12сп.86 1132.01.100 Кронштейн ТП 903-9-12сп.86 1132.01.100 СБ Кронштейн. Сборочный чертеж ТП 903-9-12сп.86 1132.01.102 Площадка ТП 903-9-12сп.86 1132.01.103 Уголок ТП 903-9-12сп.86 1132.01.104 Ребро ТП 903-9-12сп.86 1132.01.200 Лестница ТП 903-9-12сп.86 1132.01.200 СБ Сборочный чертеж ТП 903-9-12сп.86 1132.01.201 Стойка ТП 903-9-12сп.86 1132.01.204 Поручень ТП 903-9-12сп.86 1132.01.205 Накладка ТП 903-9-12сп.86 1132.01.206 Кронштейн ТП 903-9-12сп.86 1132.01.300 Зацеп ТП 903-9-12сп.86 1132.01.301 Ручка ТП 903-9-12сп.86 1132.01.302 Крюк ТП 903-9-12сп.86 1132.02.000 Ограждение ТП 903-9-12сп.86 1132.02.000 СБ Ограждение. Сборочный чертеж ТП 903-9-12сп.86 1132.02.001 Хомут ТП 903-9-12сп.86 1132.02.002 Хомут ТП 903-9-12сп.86 1132.03.000 Стремянка ТП 903-9-12сп.86 1132.03.000 СБ Стремянка. Сборочный чертеж ТП 903-9-12сп.86 1132.03.001 Хомут ТП 903-9-12сп.86 1132.03.002 Хомут ТП 903-9-12сп.86 1132.03.003 Скоба ТП 903-9-12сп.86 1132.03.100 Лестница ТП 903-9-12сп.86 1132.03.100 СБ Лестница. Сборочный чертеж ТП 903-9-12сп.86 1132.03.101 Ступенька ТП 903-9-12сп.86 1132.03.102 Подкладка ТП 903-9-12сп.86 1132.03.103 Уголок ТП 903-9-12сп.86 1132.03.200 Площадка ТП 903-9-12сп.86 1132.03.200 СБ Сборочный чертеж ТП 903-9-12сп.86 1132.03.201 Ребро ТП 903-9-12сп.86 1132.04.000 Ограничитель ТП 903-9-12сп.86 1132.04.000 СБ Ограничитель. Сборочный чертеж ТП 903-9-12сп.86 1132.04.001 Ребро ТП 903-9-12сп.86 1132.04.002 Уголок ТП 903-9-12сп.86 1132.05.000 Ролик горизонтальный ТП 903-9-12сп.86 1132.05.000 СБ Ролик горизонтальный. Сборочный чертеж ТП 903-9-12сп.86 1132.05.001 Ролик ТП 903-9-12сп.86 1132.05.002 Гайка ТП 903-9-12сп.86 1132.05.003 Шайба ТП 903-9-12сп.86 1132.05.004 Ось ТП 903-9-12сп.86 1132.05.100 Кронштейн ТП 903-9-12сп.86 1132.05.100 СБ Кронштейн. Сборочный чертеж ТП 903-9-12сп.86 1132.05.101 Ребро ТП 903-9-12сп.86 1132.05.103 Ребро ТП 903-9-12сп.86 1132.06.000 Площадка выдвижная ТП 903-9-12сп.86 1132.06.000 СБ Площадка выдвижная. Сборочный чертеж ТП 903-9-12сп.86 1132.06.001 Заклепка ТП 903-9-12сп.86 1132.06.002 Болт сферический ТП 903-9-12сп.86 1132.06.003 Рукоятка ТП 903-9-12сп.86 1132.06.100 Рама ТП 903-9-12сп.86 1132.06.100 СБ Рама. Сборочный чертеж ТП 903-9-12сп.86 1132.06.101 Ребро ТП 903-9-12сп.86 1132.06.102 Косынка ТП 903-9-12сп.86 1132.06.103 Планка ТП 903-9-12сп.86 1132.07.000 Фиксатор ТП 903-9-12сп.86 1132.07.000 СБ Фиксатор. Сборочный чертеж ТП 903-9-12сп.86 1132.07.001 Кольцо ТП 903-9-12сп.86 1132.07.002 Рукоятка ТП 903-9-12сп.86 1132.07.003 Винт ТП 903-9-12сп.86 1132.07.004 Плита ТП 903-9-12сп.86 1132.07.005 Шайба ТП 903-9-12сп.86 1132.07.006 Прокладка ТП 903-9-12сп.86 1132.08.000 Ролик горизонтальный ТП 903-9-12сп.86 1132.08.000 СБ Ролик горизонтальный. Сборочный чертеж ТП 903-9-12сп.86 1132.08.001 Прокладка ТП 903-9-12сп.86 1132.08.002 Ось ТП 903-9-12сп.86 1132.08.100 Кронштейн ТП 903-9-12сп.86 1132.08.100 СБ Кронштейн. Сборочный чертеж ТП 903-9-12сп.86 1132.08.101 Щека ТП 903-9-12сп.86 1132.11.000 Каретка ТП 903-9-12сп.86 1132.11.000 СБ Каретка. Сборочный чертеж ТП 903-9-12сп.86 1132.11.001 Плита ТП 903-9-12сп.86 1132.11.100 Ролик опорный ТП 903-9-12сп.86 1132.11.100 СБ Ролик опорный. Сборочный чертеж ТП 903-9-12сп.86 1132.11.101 Фланец ТП 903-9-12сп.86 1132.11.102 Ось ТП 903-9-12сп.86 1132.11.103 Крышка ТП 903-9-12сп.86 1132.11.104 Крышка ТП 903-9-12сп.86 1132.11.105 Прокладка ТП 903-9-12сп.86 1132.11.106 Кольцо ТП 903-9-12сп.86 1132.11.107 Винт ТП 903-9-12сп.86 1132.11.108 Болт ТП 903-9-12сп.86 1132.11.109 Гайка ТП 903-9-12сп.86 1132.11.111 Пробка ТП 903-9-12сп.86 1132.11.112 Шайба ТП 903-9-12сп.86 1132.11.113 Втулка ТП 903-9-12сп.86 1132.11.114 Ролик ТП 903-9-12сп.86 1132.11.120 Масленка ТП 903-9-12сп.86 1132.11.121 Корпус ТП 903-9-12сп.86 1132.11.122 Втулка ТП 903-9-12сп.86 1132.11.123 Втулка ТП 903-9-12сп.86 1132.11.124 Винт ТП 903-9-12сп.86 1132.11.200 Ролик нижний ТП 903-9-12сп.86 1132.11.200 СБ Ролик нижний. Сборочный чертеж ТП 903-9-12сп.86 1132.11.201 Ось ТП 903-9-12сп.86 1132.11.202 Ролик ТП 903-9-12сп.86 1132.11.203 Болт ТП 903-9-12сп.86 1132.11.300 Шестерня паразитная ТП 903-9-12сп.86 1132.11.300 СБ Шестерня паразитная. Сборочный чертеж ТП 903-9-12сп.86 1132.11.301 Шестерня ТП 903-9-12сп.86 1132.11.400 Привод ручной ТП 903-9-12сп.86 1132.11.400 СБ Привод ручной. Сборочный чертеж ТП 903-9-12сп.86 1132.11.401 Шпонка ТП 903-9-12сп.86 1132.11.402 Фланец ТП 903-9-12сп.86 1132.11.403 Ось ТП 903-9-12сп.86 1132.11.404 Ось ТП 903-9-12сп.86 1132.11.405 Труба ТП 903-9-12сп.86 1132.11.406 Шестерня ведущая ТП 903-9-12сп.86 1132.11.407 Эксцентрик ТП 903-9-12сп.86 1132.11.408 Штырь ТП 903-9-12сп.86 1132.11.420 Рычаг ТП 903-9-12сп.86 1132.11.421 Ребро ТП 903-9-12сп.86 1132.11.422 Планка ТП 903-9-12сп.86 1132.11.500 Фиксатор ТП 903-9-12сп.86 1132.11.500 СБ Фиксатор. Сборочный чертеж ТП 903-9-12сп.86 1132.12.000 Кронштейн ТП 903-9-12сп.86 1132.12.000 СБ Кронштейн. Сборочный чертеж ТП 903-9-12сп.86 1132.12.001 Упор ТП 903-9-12сп.86 1132.12.004 Ребро ТП 903-9-12сп.86 1132.12.005 Ребро ТП 903-9-12сп.86 1132.12.006 Косынка ТП 903-9-12сп.86 1132.12.008 Раскос |
| Разработан: | ЦНИИпроектстальконструкция |
| Утверждён: | 18.06.1985 Минэнерго СССР (USSR Minenergo 58) |



















































































