Скачать Типовой проект 902-2-413.86 Альбом 2. Технологические, архитектурно-строительные, санитарно-технические решения. Внутренний водопровод и канализация. Нестандартизированное оборудованиеДата актуализации: 01.01.2021
|
| Обозначение: | Типовой проект 902-2-413.86 |
| Обозначение англ: | 902-2-413.86 |
| Статус: | не определен законодательством |
| Название рус.: | Альбом 2. Технологические, архитектурно-строительные, санитарно-технические решения. Внутренний водопровод и канализация. Нестандартизированное оборудование |
| Дата добавления в базу: | 01.09.2013 |
| Дата актуализации: | 01.01.2021 |
| Дата введения: | 01.09.1986 |
| Дата окончания срока действия: | 30.06.2003 |
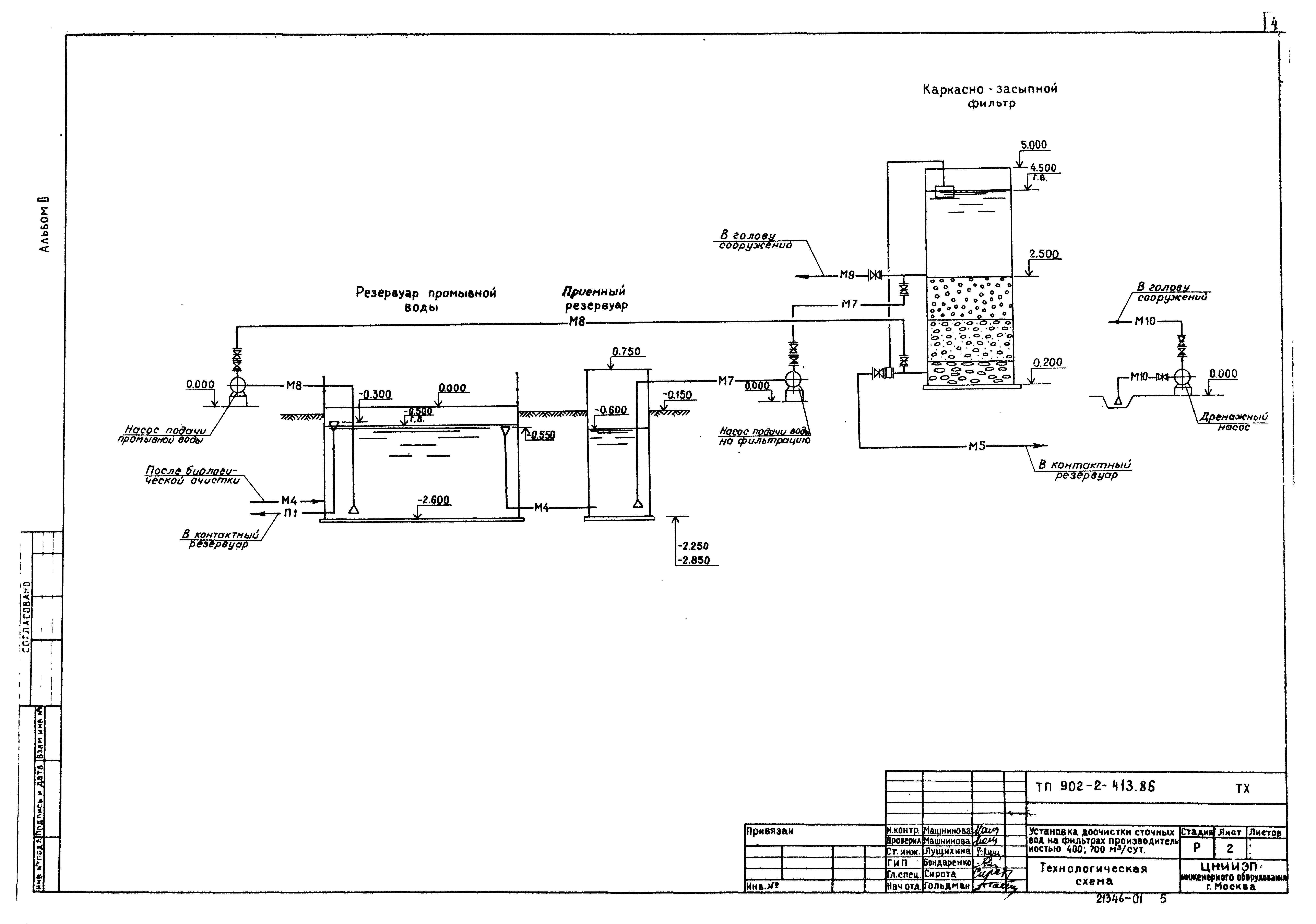
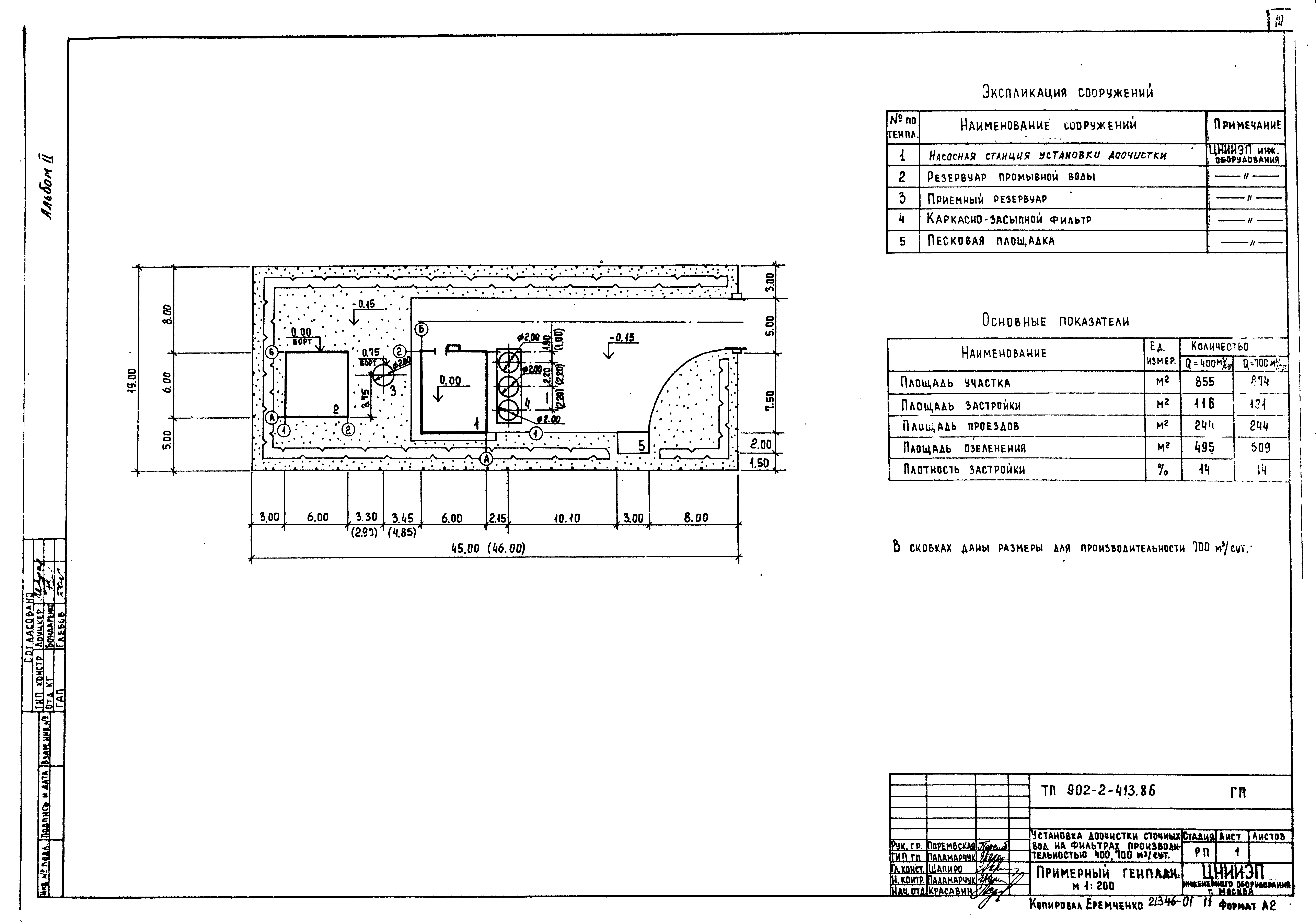
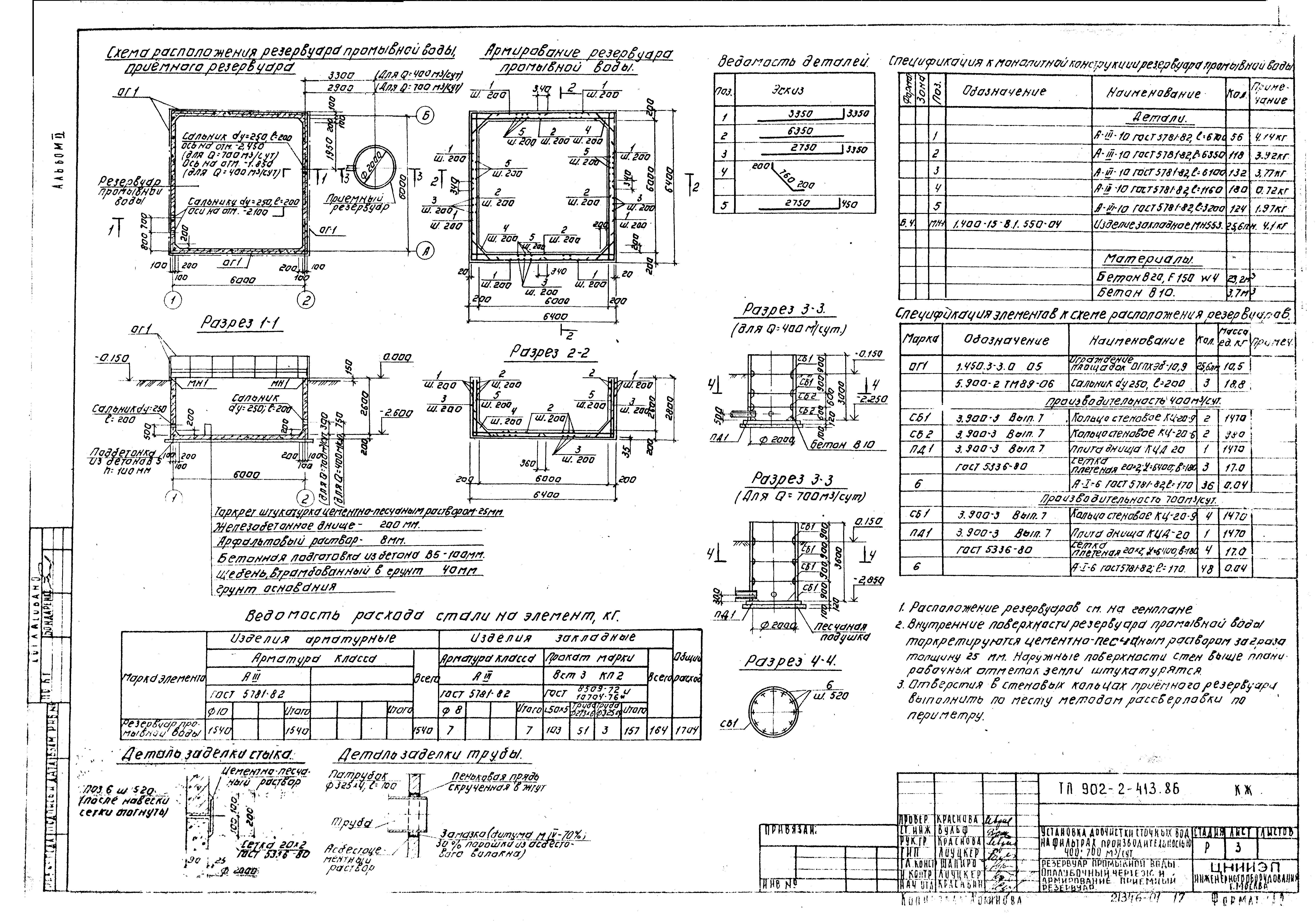
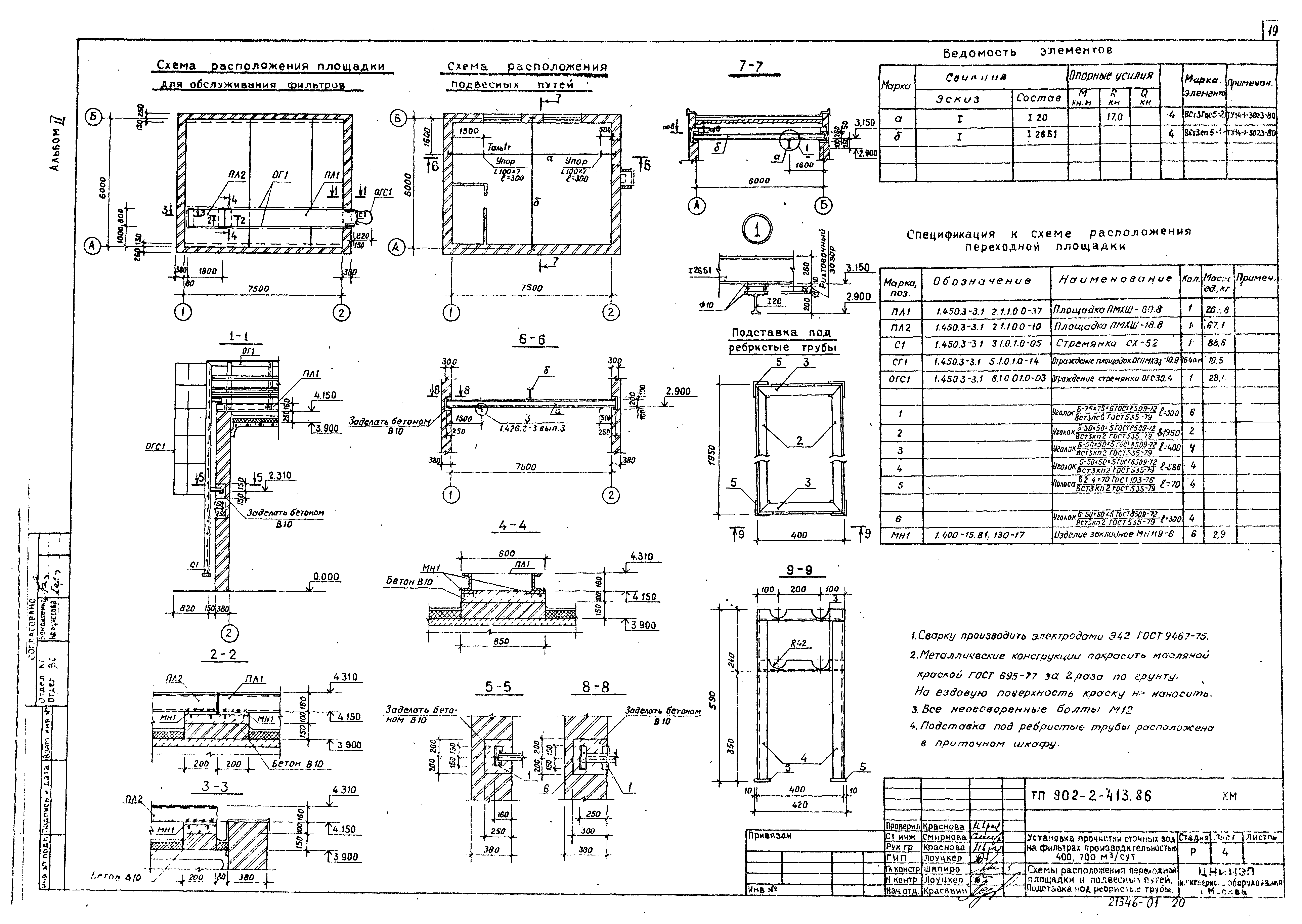
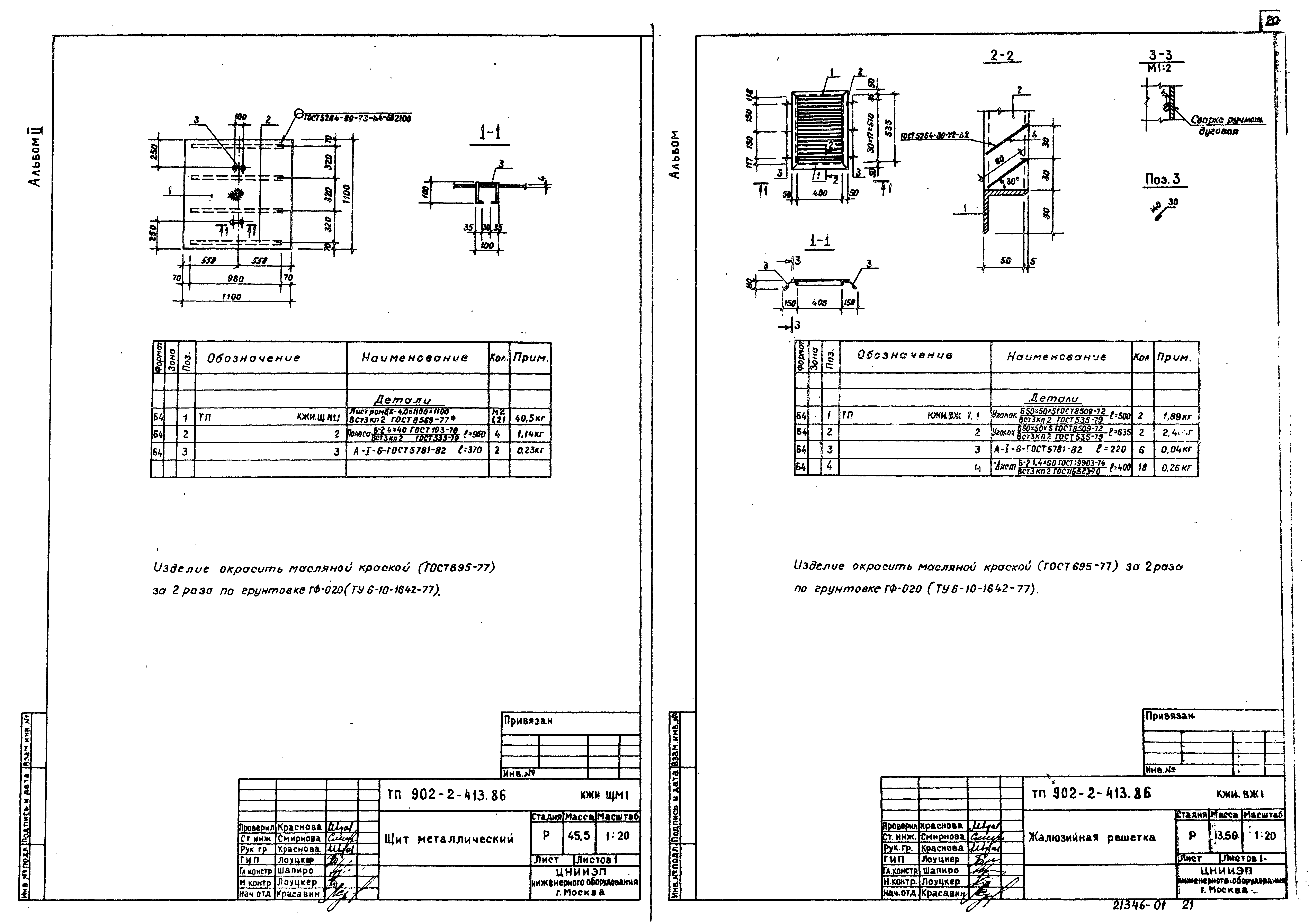
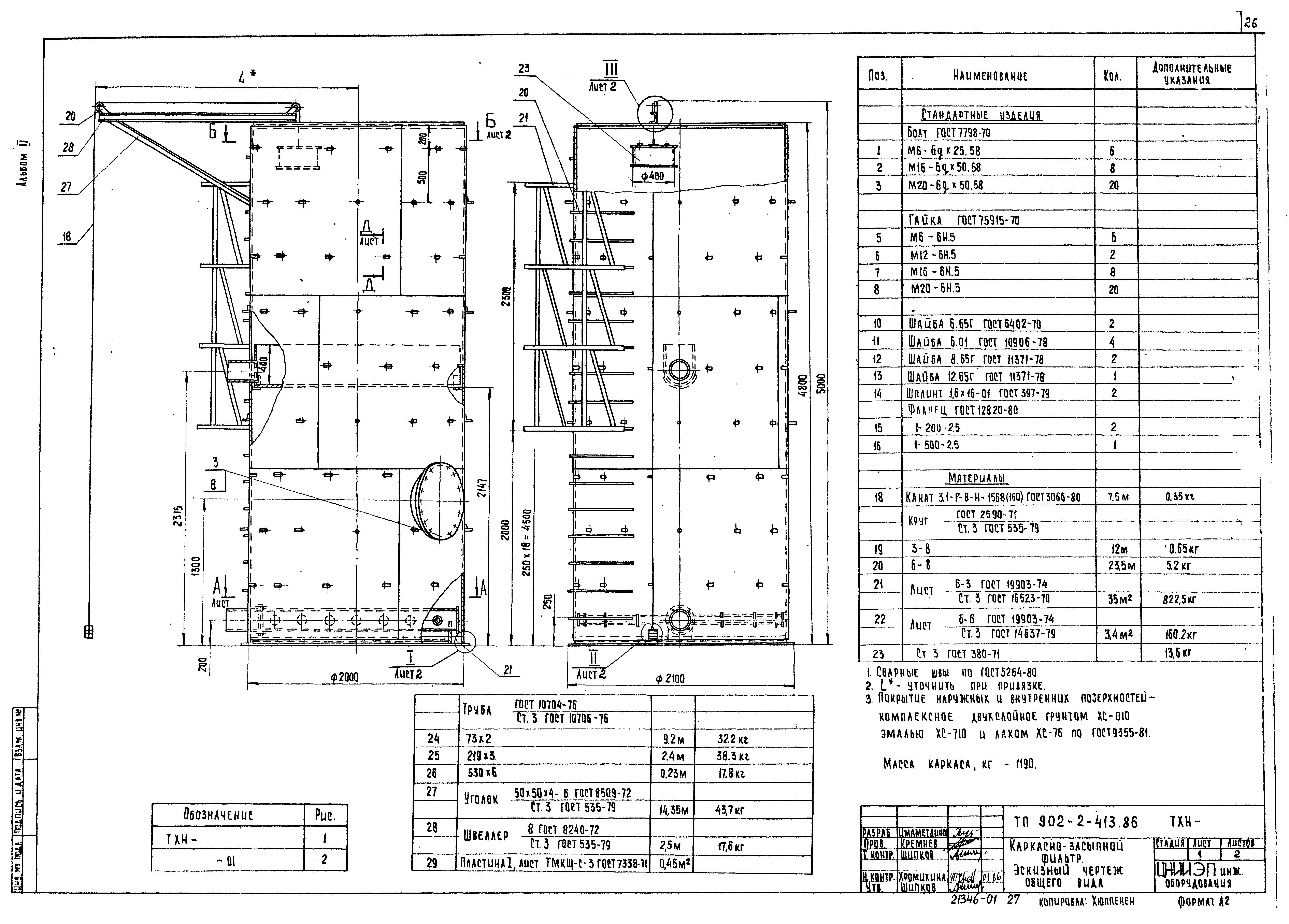
| Оглавление: | Содержание альбома Технологические решения Общие данные Технологическая схема Производительность 400 куб. м/сутки. План на отм. 0,000. Разрезы 1-1, 2-2 Производительность 400 куб. м/сутки. Схемы трубопроводов М5, М7, М8, М9, М10 Производительность 700 куб. м/сутки. План на отм. 0,000. Разрезы 1-1, 2-2 Производительность 700 куб. м/сутки. Схемы трубопроводов М5, М7, М8, М9, М10 Приемный резервуар и резервуар промывной воды. План. Разрез 1-1. Схемы трубопроводов Архитектурно-строительные решения Примерный генплан Общие данные План. Разрезы 1-1, 2-2. Фасады 1-2, А-Б, 2-1, Б-А. Детали Приточный шкаф Конструкции железобетонные Общие данные Схемы расположения ленточных фундаментов, фундаментов под оборудование, плит покрытия. Разрезы Резервуар промывной воды. Опалубочный чертеж и армирование. Приемный резервуар Техническая спецификация стали Общие данные (начало) Общие данные (продолжение). Техническая спецификация стали на типовые конструкции Общие данные (окончание). Ведомость металлоконструкций по видам профилей Схемы расположения переходной площадки и подвесных путей. Подставка под ребристые трубы Щит металлический. Жалюзийная решетка Щит деревянный. Изделие закладное МН2 Отопление и вентиляция Общие данные. План. Схема системы отопления. Схема системы В1. Схема системы теплоснабжения установки ПЕ1. Узел управления Воздуховод из асбестоцементных листов. Узлы соединений Тепловая изоляция Воздухосборник вертикальный Внутренний водопровод и канализация Общие данные. План на отм. 0,000. Схемы трубопроводов В1, К1 Нестандартизированное оборудование Каркасно-засыпной фильтр. Эскизный чертеж общего вида Изоляция трубопроводов мягкими теплоизоляционными материалами |
| Разработан: | ЦНИИЭП |
| Утверждён: | 28.02.1986 Госгражданстрой (Gosgrazhdanstroy 68) |




























