Скачать Типовой проект 901-5-32с Альбом 1. Пояснительная записка. Архитектурно-строительные, технологические чертежи и чертежи по автоматизацииДата актуализации: 01.01.2021
|
| Обозначение: | Типовой проект 901-5-32с |
| Обозначение англ: | 901-5-32с |
| Статус: | не определен законодательством |
| Название рус.: | Альбом 1. Пояснительная записка. Архитектурно-строительные, технологические чертежи и чертежи по автоматизации |
| Дата добавления в базу: | 01.09.2013 |
| Дата актуализации: | 01.01.2021 |
| Дата введения: | 09.08.1976 |
| Дата окончания срока действия: | 30.06.2003 |
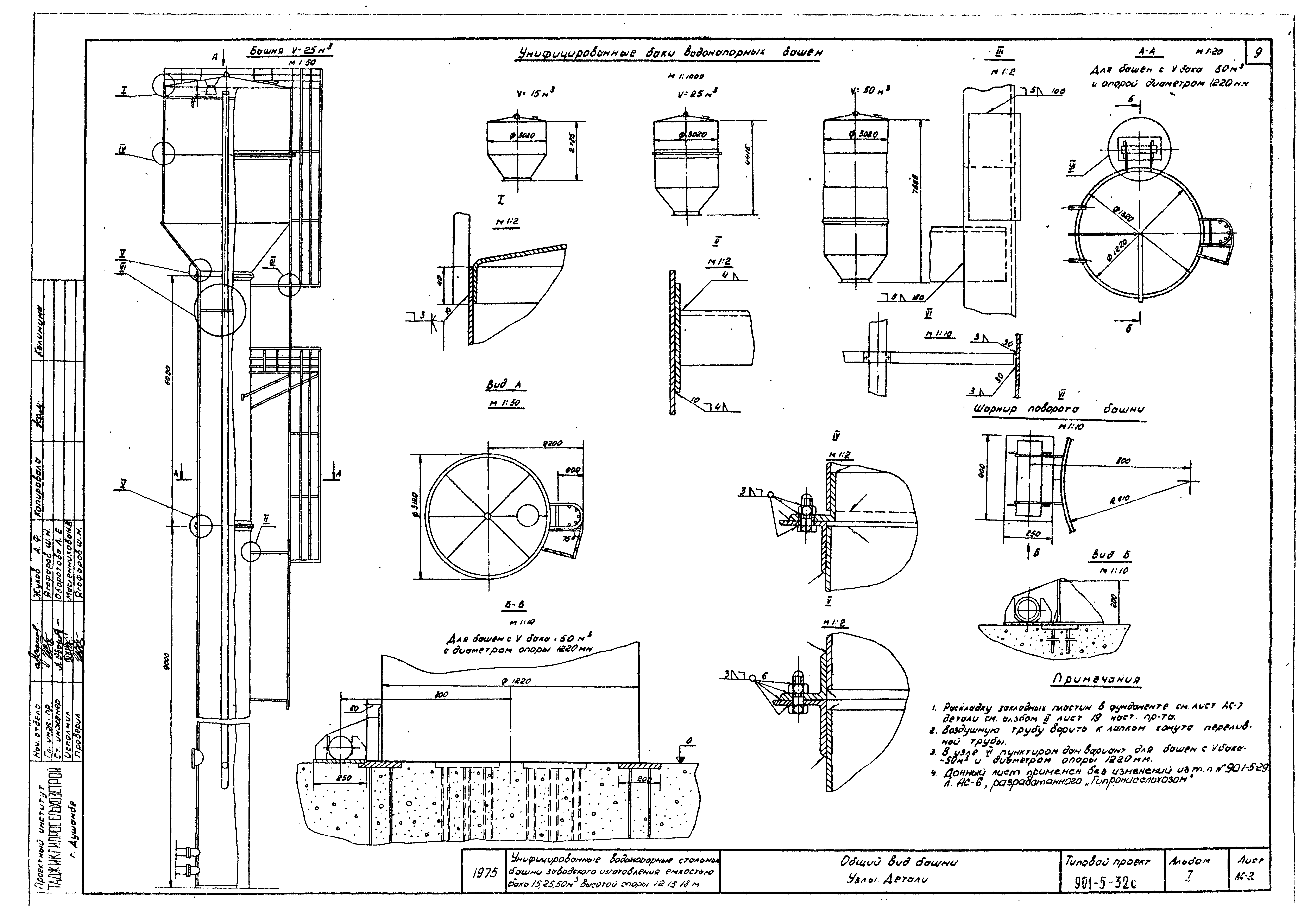
| Оглавление: | Заглавный лист Пояснительная записка Чертежи основного комплекта марки АС Фасады Общий вид башни. Узлы. Детали Фундаменты. Колодцы. Таблица нагрузок на фундамента. Таблица расхода материалов Железобетонный фундамент башмак. Спецификация и выборка арматуры. Спецификация стали на закладную деталь Утепление башни. Детали. Узлы Вращающаяся лестница Проект грунтовой подушки и устройство фундаментов на просадочных грунтах Чертежи основного комплекта марки ВК Водопроводные башни емкостью 15; 25; 50 куб. м с водонаполненной опорой Ф 1220 мм. План. Разрез. Монтажная схема оборудования. Спецификация Водопроводные башни емкостью 50 куб. м с водонаполненной опорой Ф 2000 мм и Ф 3020 мм. Монтажная схема оборудования. Спецификация. План. Разрез Чертежи основного комплекта марки АВ Гидропневмосистема регулирования уровня воды Чертежи основного комплекта марки ППР Схема подъема башни |
| Разработан: | Таджикгипросельхозстрой |
| Утверждён: | 17.12.1975 Госстрой Таджикской ССР (142) |

















