Скачать Типовой проект 902-3-94.91 Альбом 2. Технологические решения. Отопление и вентиляция. Внутренний водопровод и канализация. Силовое электрооборудование. Автоматизация. Освещение. Связь и сигнализацияДата актуализации: 01.01.2021
|
| Обозначение: | Типовой проект 902-3-94.91 |
| Обозначение англ: | 902-3-94.91 |
| Статус: | не определен законодательством |
| Название рус.: | Альбом 2. Технологические решения. Отопление и вентиляция. Внутренний водопровод и канализация. Силовое электрооборудование. Автоматизация. Освещение. Связь и сигнализация |
| Дата добавления в базу: | 01.09.2013 |
| Дата актуализации: | 01.01.2021 |
| Дата введения: | 01.09.1991 |
| Дата окончания срока действия: | 30.06.2003 |
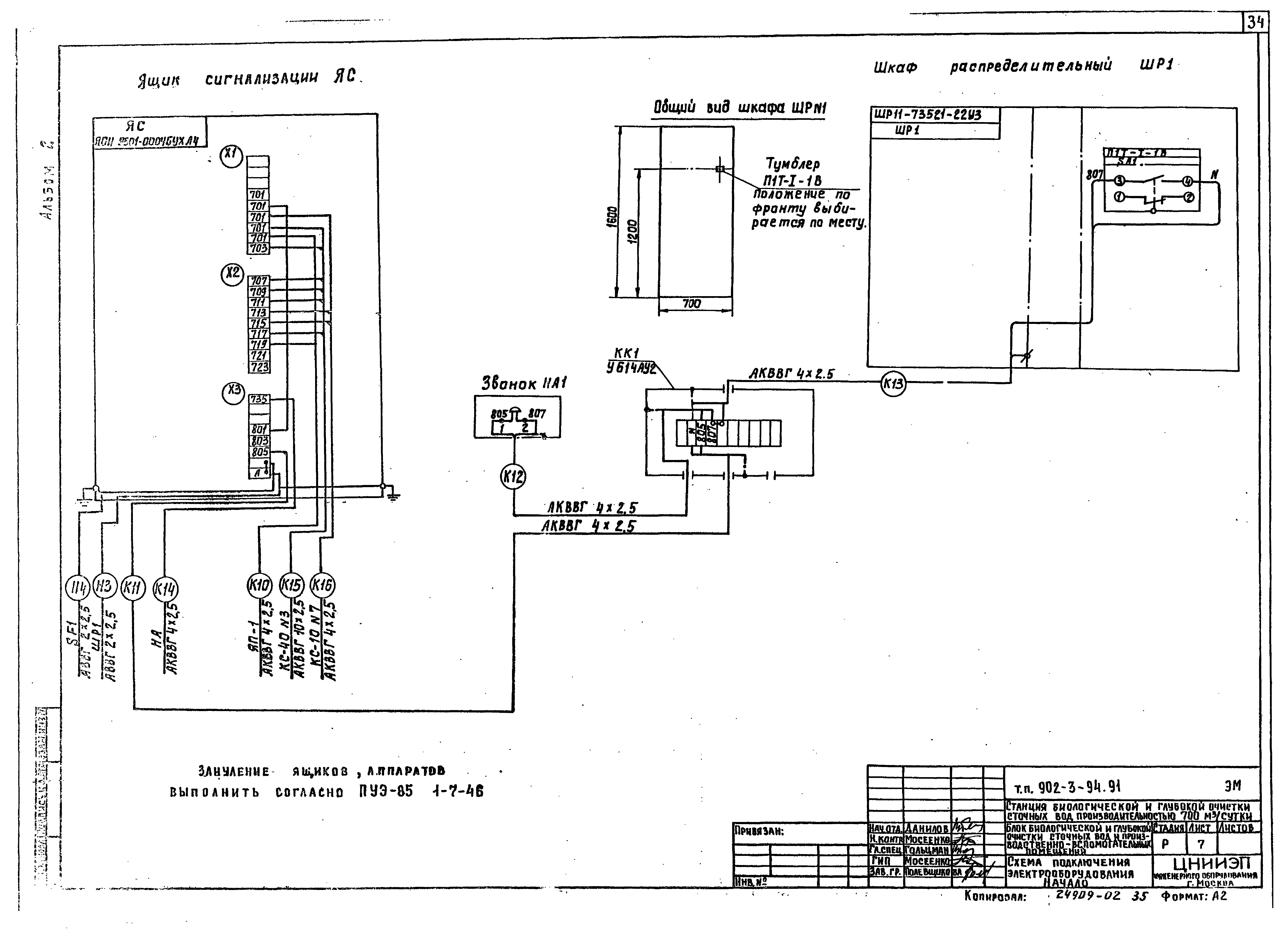
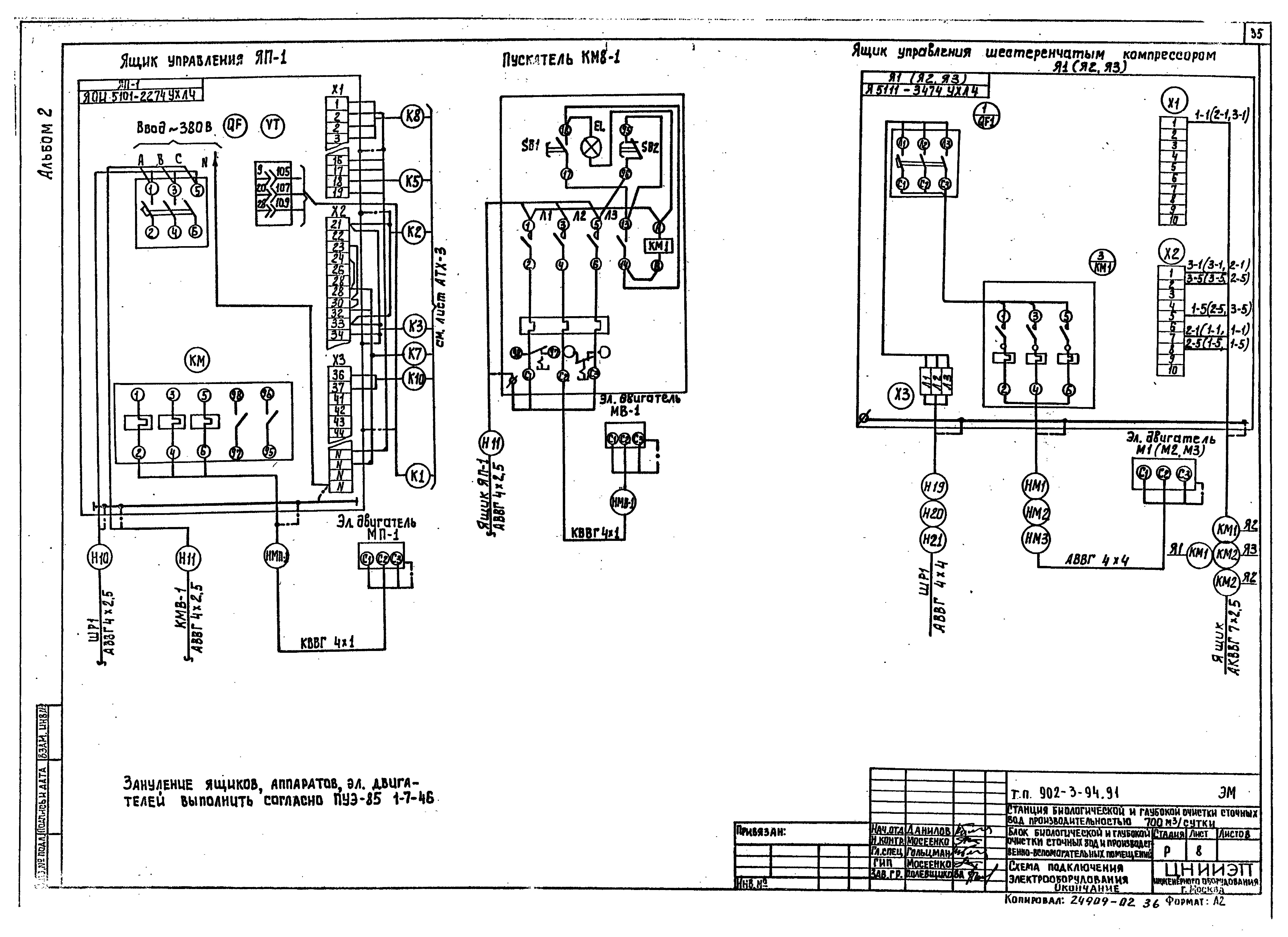
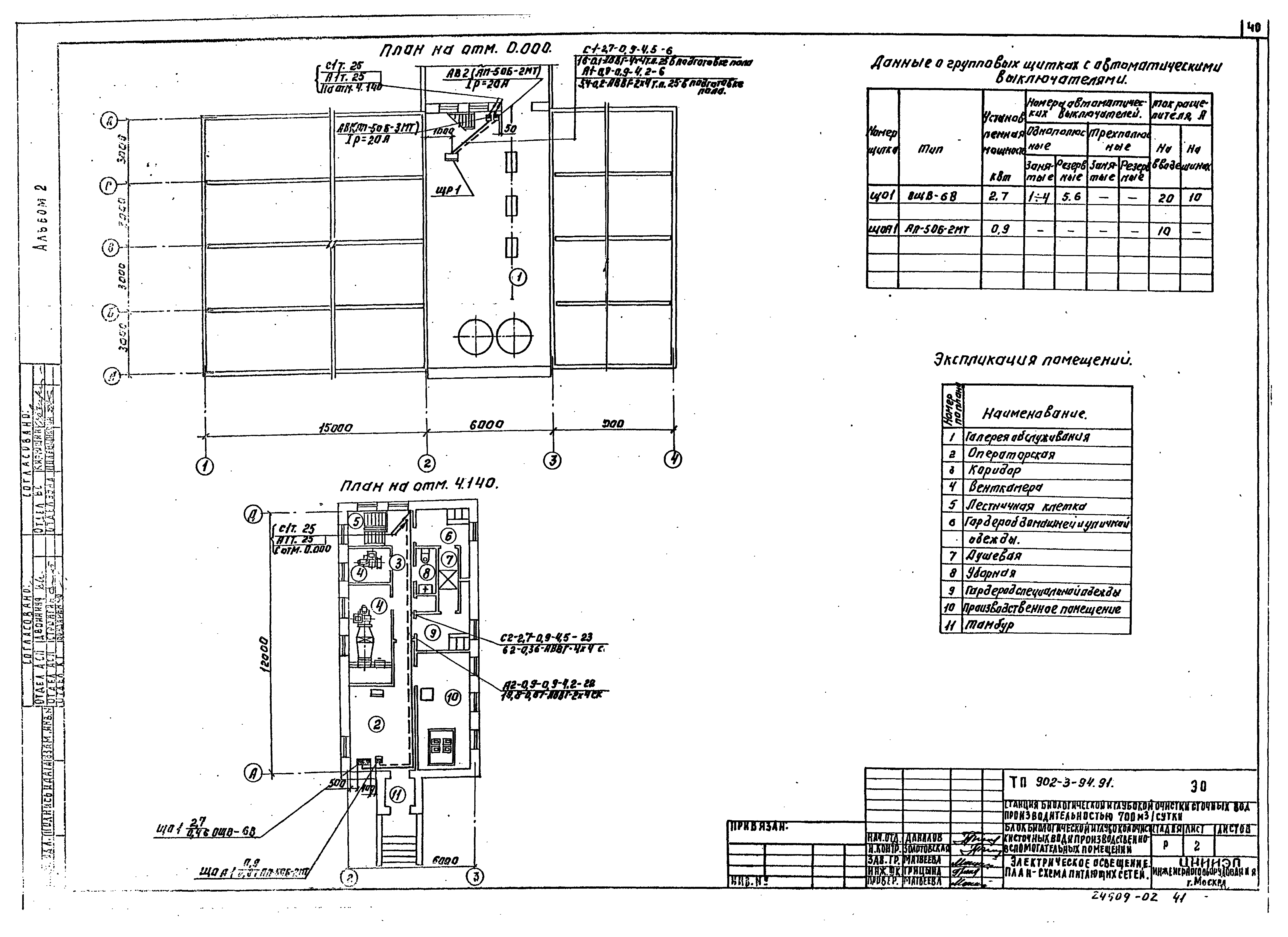
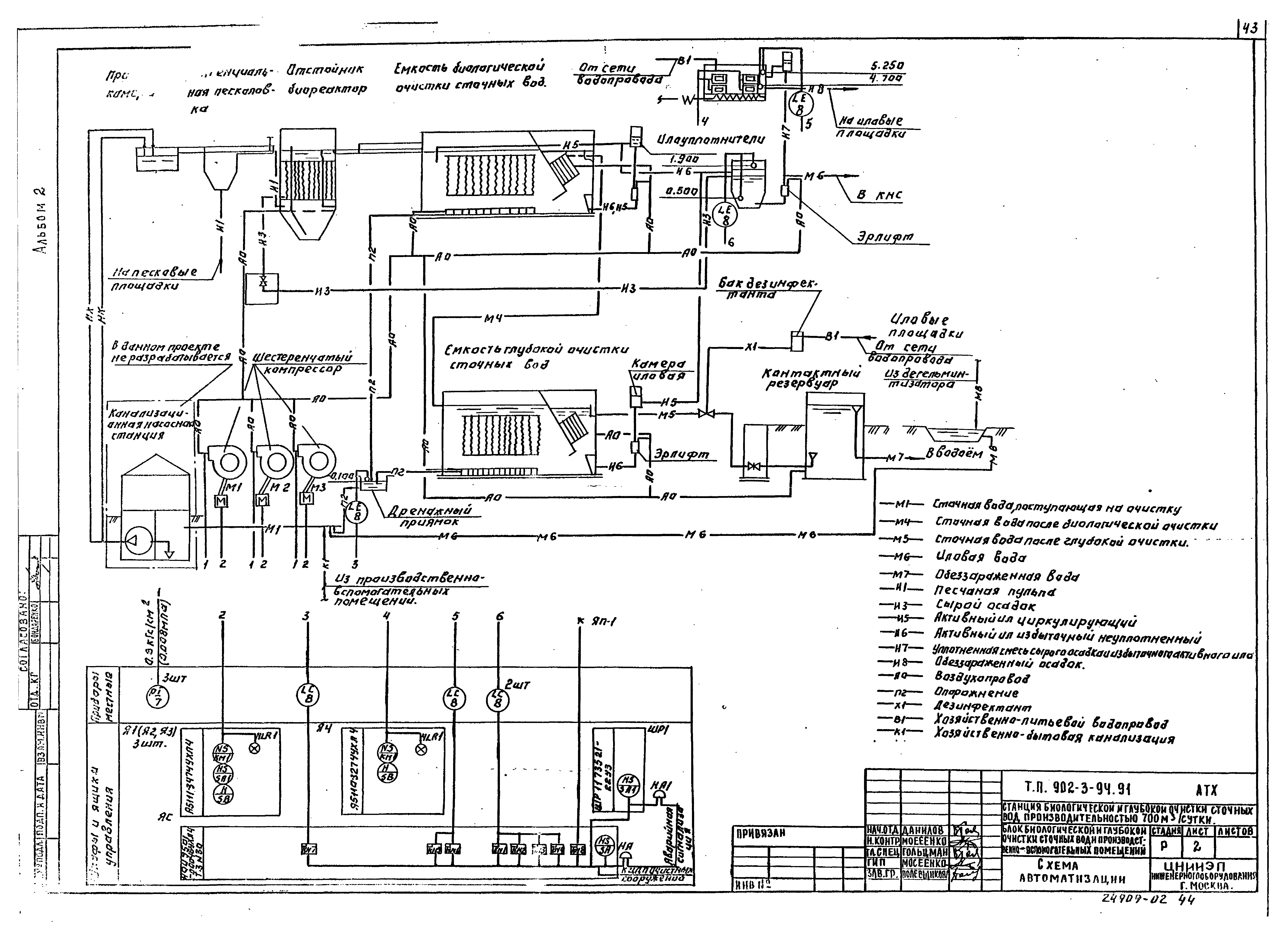
| Оглавление: | Содержание альбома Технологические решения Общие данные Технологическая схема Размещение технологического оборудования. Экспликация оборудования, сооружений, помещений План в осях 2 - 4 Фрагмент плана в осях 1 - 2. Установка фильтросных труб. План. Вид А-А. Узел I Разрезы 1-1, 2-2, 3-3, 4-4 Разрезы 5-5, 6-6, 7-7 Установка вторичного отстойника. План. Узел III, IV Установка вторичного отстойника. Разрезы 8-8, 9-9. Узлы I, II Установка третичного отстойника. План. Узел III, IV Установка третичного отстойника. Разрезы 10-10; 11-11. Узел I, II План на отм. 4.140. Разрезы 1-1, 2-2. Схемы трубопроводов Х1, И8 Схемы трубопроводов М4, М5, М6, И3, П2 Схемы трубопроводов И5, И6, И7 Схемы трубопровода А0 Отстойник-биореактор. План. Разрезы 1-1, 2-2. Схемы трубопроводов М1, И3, А0 Контактный резервуар. План. Разрез 1-1. Схемы трубопроводов М5, М7, А0 Внутриплощадочные сети. Колодцы 1, 2, 3, 4. Планы. Разрезы. Схемы трубопроводов И3, М5, 4 Узел ввода дезинфектанта. Глушитель шума Детали крепления фильтросных труб Отопление и вентиляция Общие данные Планы на отм. 0.000; 4.140 Установки П1, В1. Планы. Разрезы 1-1, 2-2 Схема теплоснабжения. Схема системы отопления. Схемы вентиляции П1, В1, ВЕ1. Узел управления Внутренний водопровод и канализация Общие данные. Фрагмент плана на отм. 4.140. Схемы трубопроводов В1, К1 Силовое электрооборудование Общие данные Схема электрическая принципиальная распределительной сети Схема электрическая принципиальная управления шестеренчатым компрессором М1 (М2, М3) Схема электрическая принципиальная приточной системы П1 Схема электрическая принципиальная сигнализации Схема подключения электрооборудования Кабельный журнал План расположения оборудования и прокладки кабеля Электрическое освещение Общие данные Электрическое освещение. План-схема питающих сетей Электрическое освещение. План на отм. 0.000 и 4.140 Автоматизация Общие данные. Схема автоматизации приточной системы П-1 Схема автоматизации Схема соединения внешних проводок План расположения Связь и сигнализация Общие данные. План на отм. 4.140 с сетями связи и сигнализации |
| Разработан: | ЦНИИЭП |
| Утверждён: | 28.02.1991 Госкомархитектура (24) |














































