Скачать Типовой проект 902-3-94.91 Альбом 3. Генплан. Архитектурные решения. Конструкции железобетонные. Конструкции металлические. Организация строительстваДата актуализации: 01.01.2021
|
| Обозначение: | Типовой проект 902-3-94.91 |
| Обозначение англ: | 902-3-94.91 |
| Статус: | не определен законодательством |
| Название рус.: | Альбом 3. Генплан. Архитектурные решения. Конструкции железобетонные. Конструкции металлические. Организация строительства |
| Дата добавления в базу: | 01.09.2013 |
| Дата актуализации: | 01.01.2021 |
| Дата введения: | 01.09.1991 |
| Дата окончания срока действия: | 30.06.2003 |
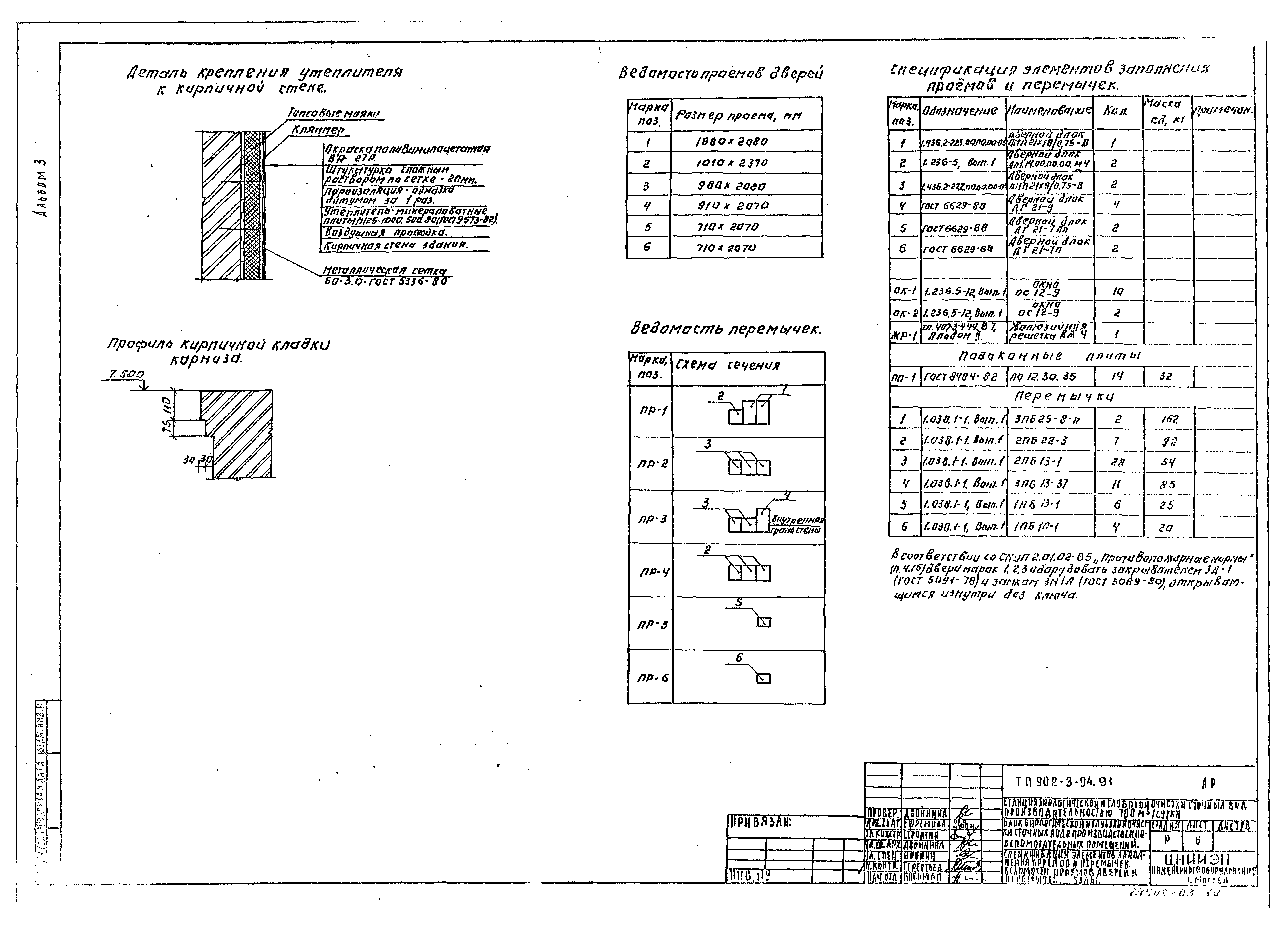
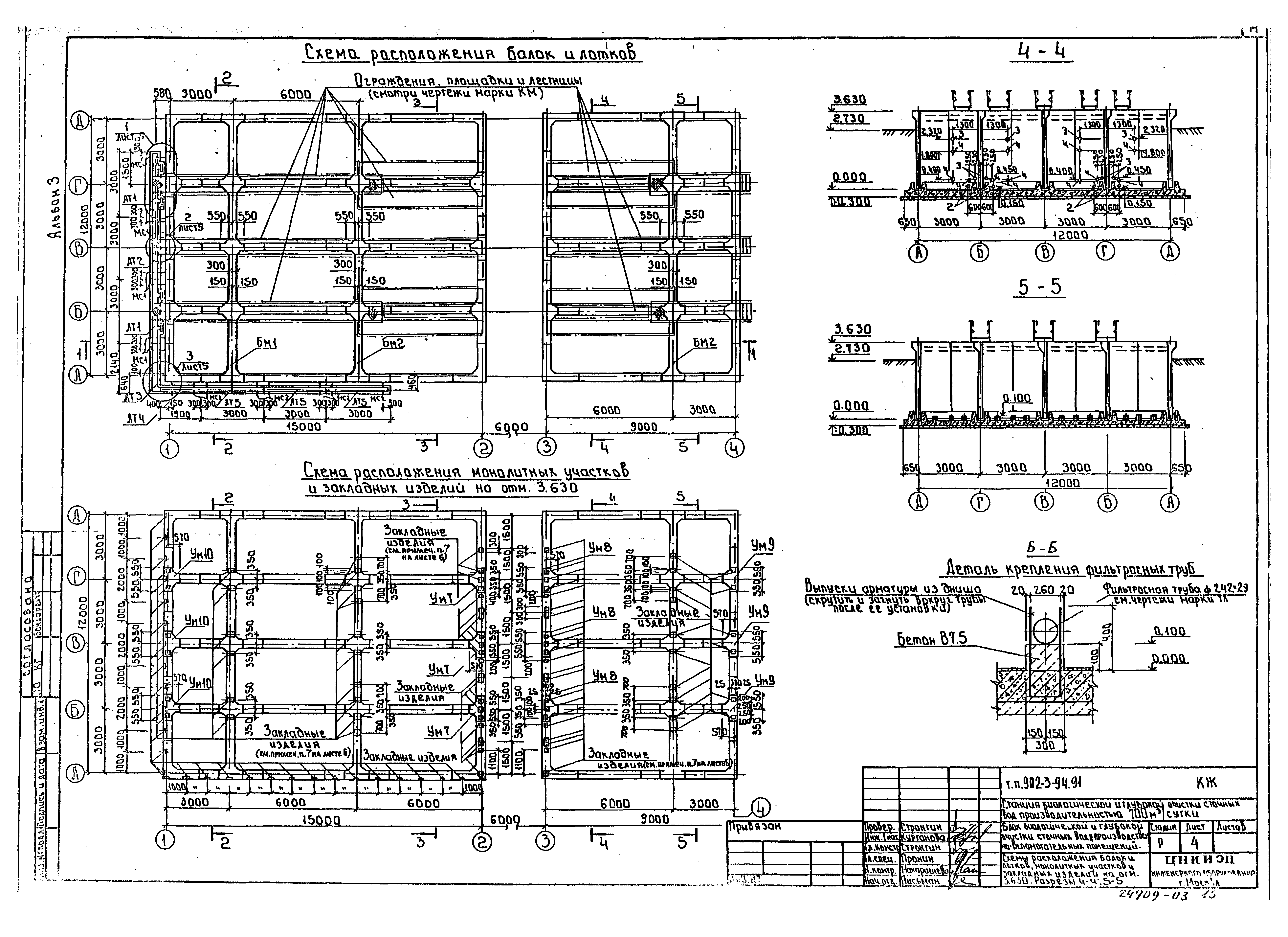
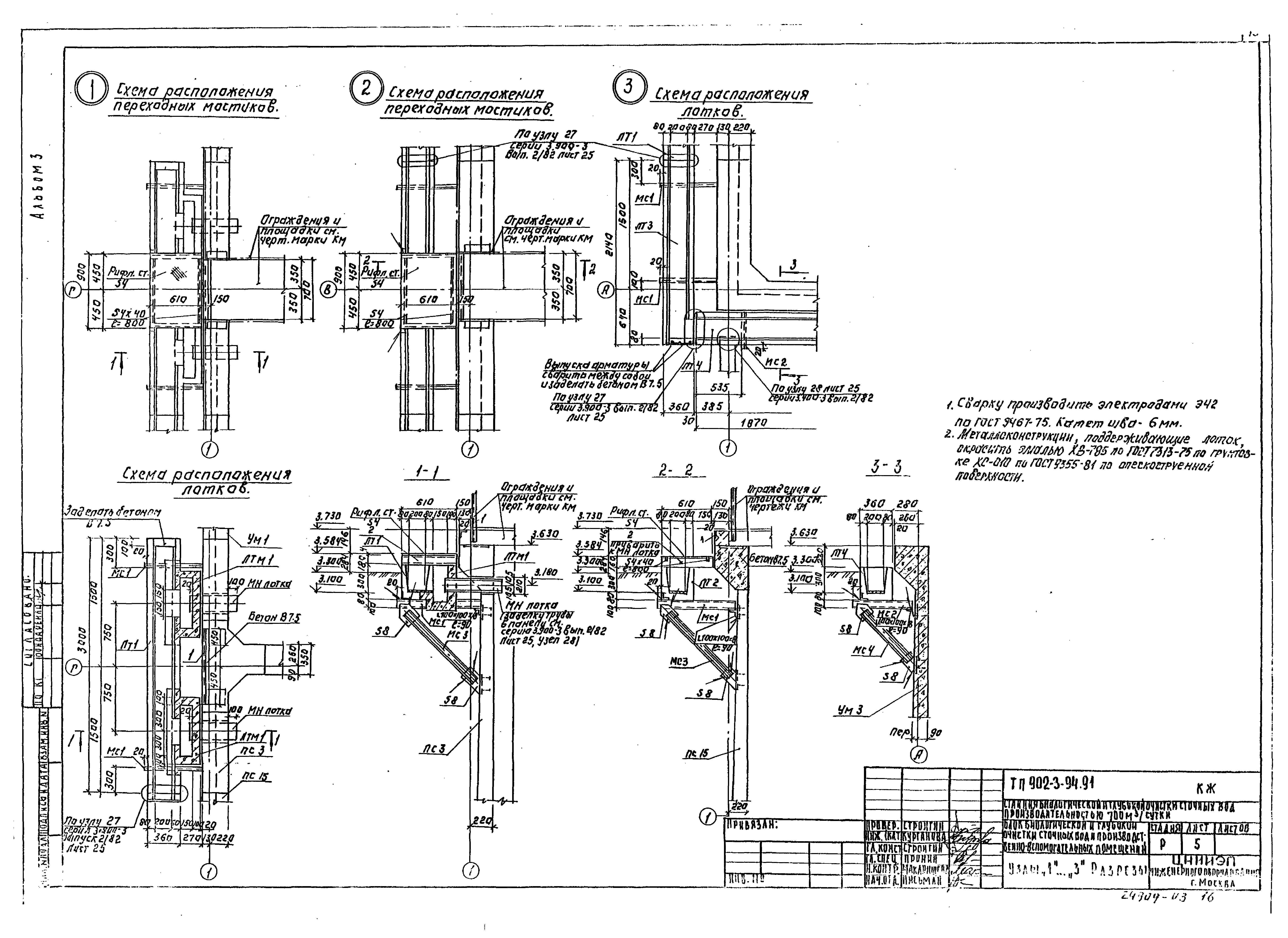
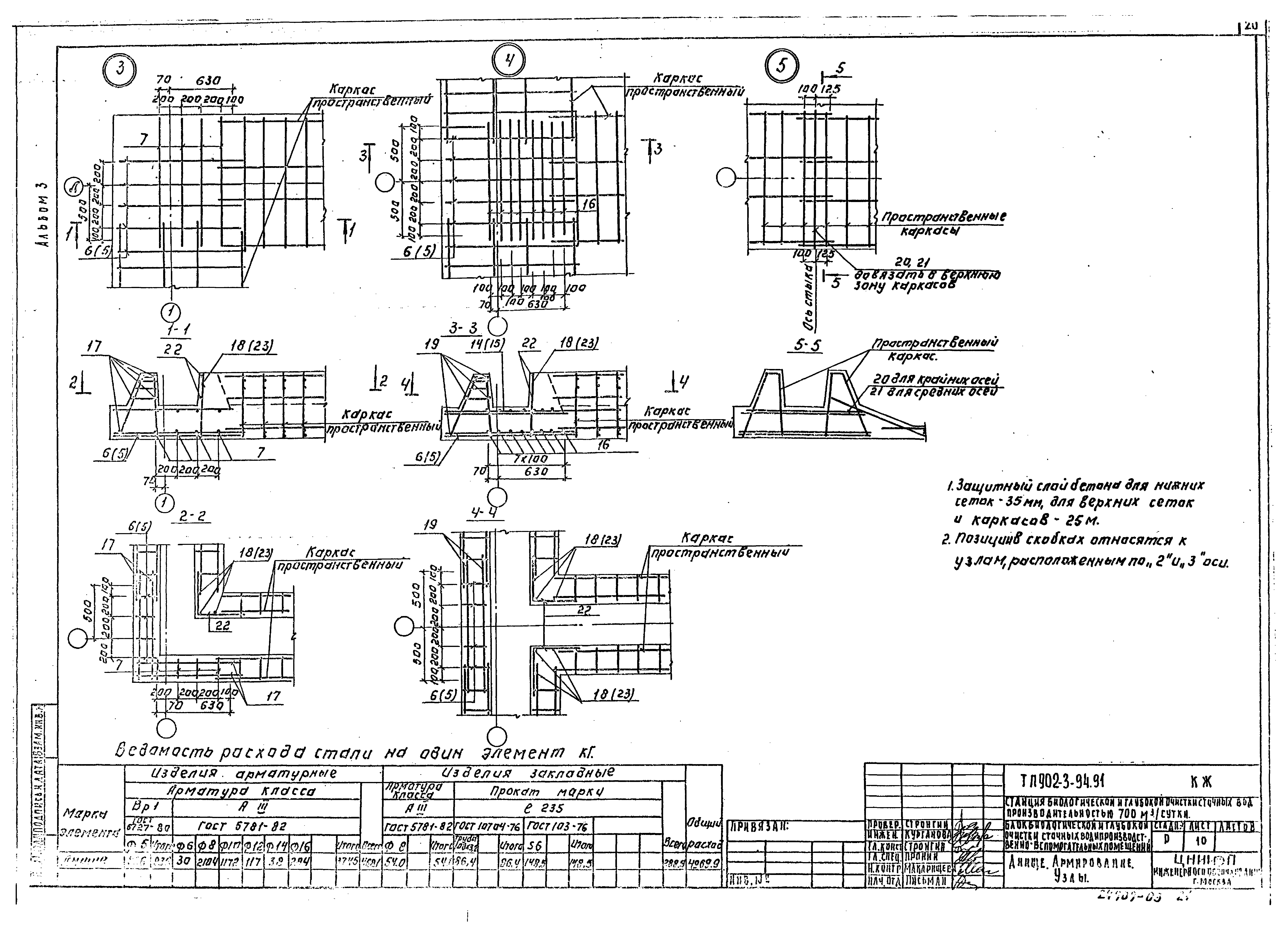
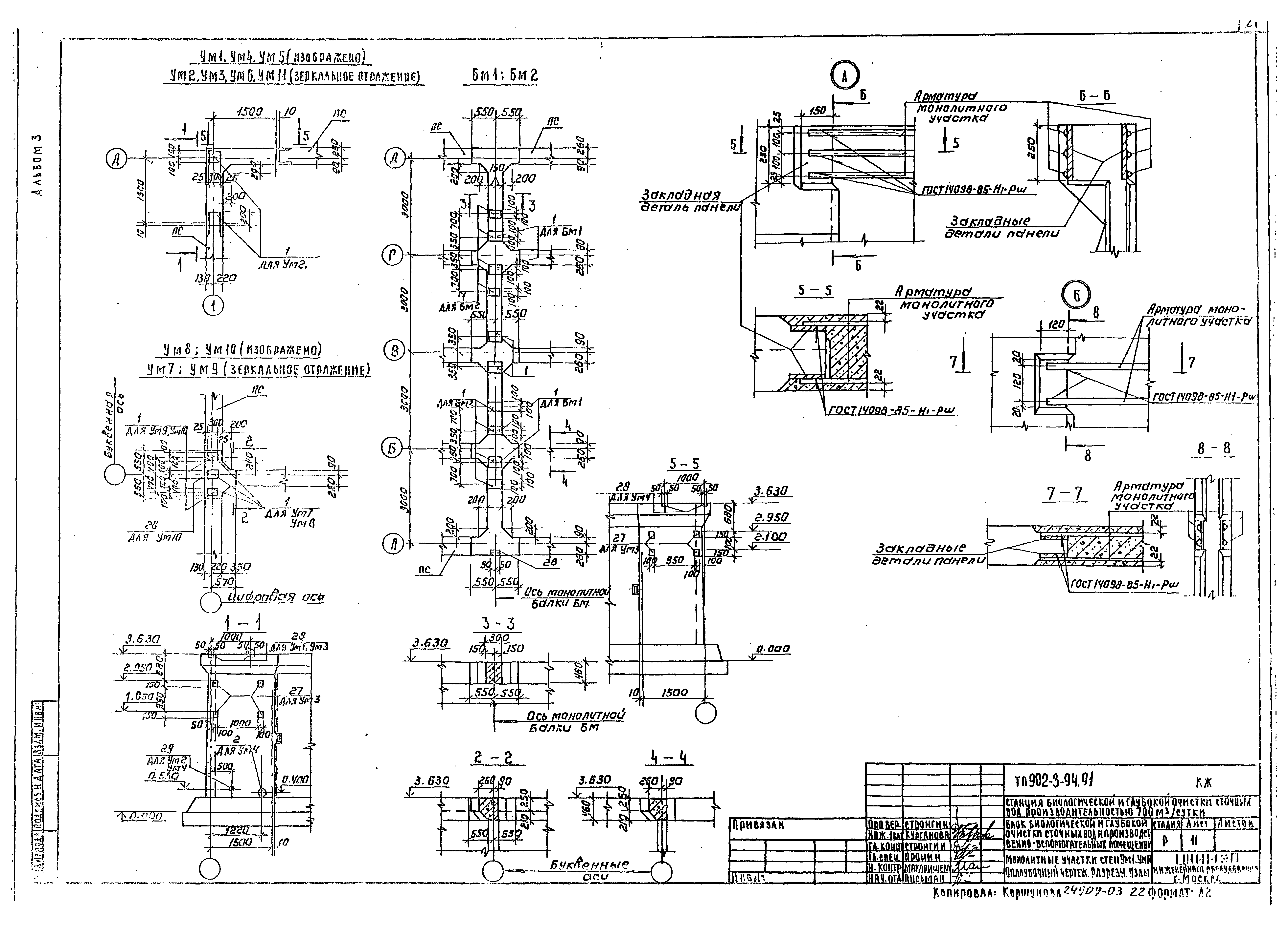
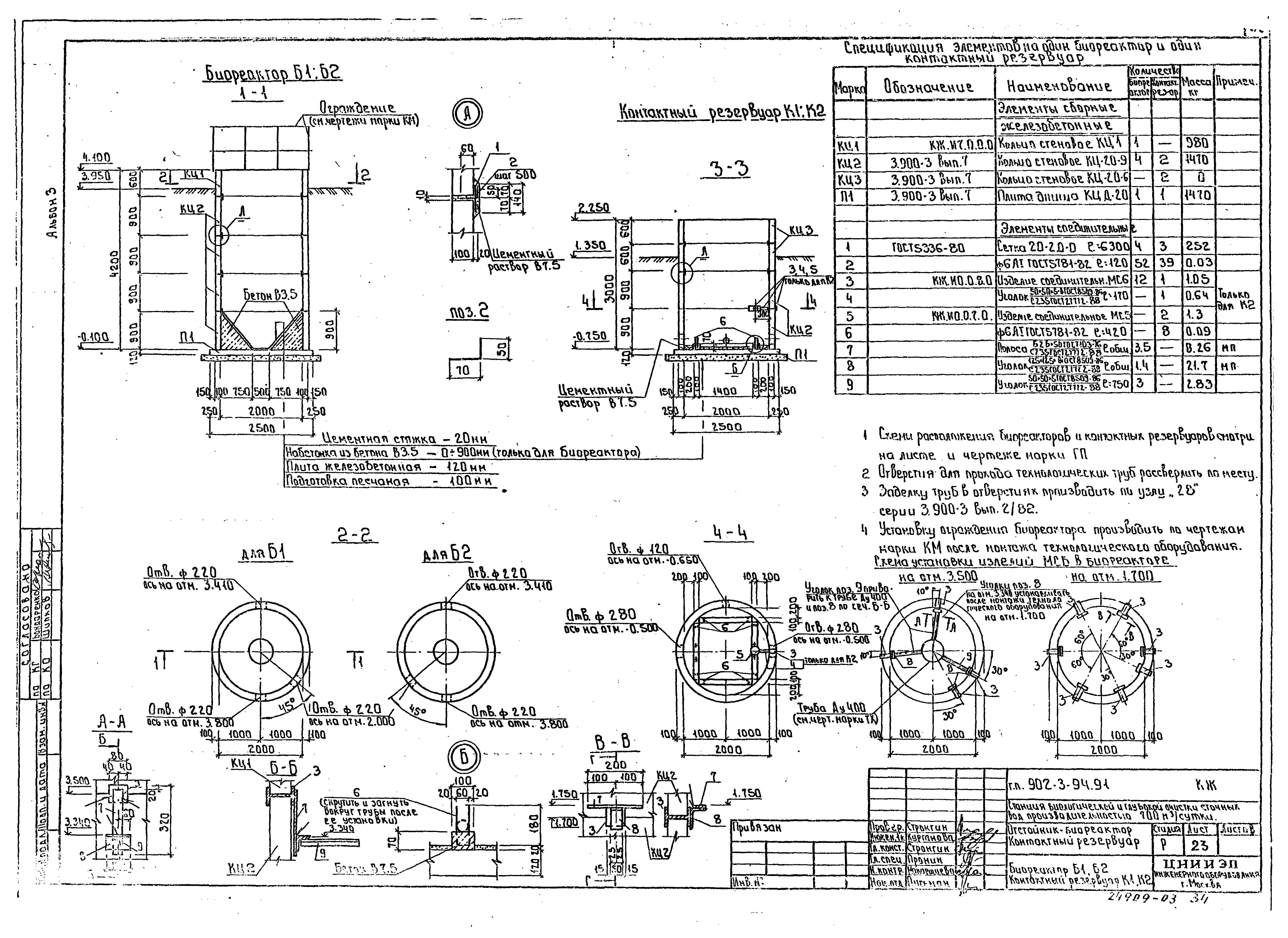
| Оглавление: | Содержание альбома Примерный генплан Архитектурно-строительные решения Общие данные Планы на отм. 0.000; 4.140 Разрезы 1-1; 2-2 Фасады 1 - 4; А - Д Фасады 4 - 1; Д - А Спецификация элементов заполнения проемов и перемычек. Ведомости проемов дверей и перемычек. Узлы План кровли. Планы полов. Экспликация полов. Ведомость отделки помещений Конструкции железобетонные Общие данные Схема расположения стеновых панелей. Разрезы 1-1…3-3 Схемы расположения балок и лотков, монолитных участков и закладных изделий на отм. 3.630. Разрезы 4-4, 5-5 Узлы "1"…"3". Разрезы Спецификация к схемам расположения стеновых панелей, балок и переходных мостиков, монолитных участков и закладных изделий на отм. 3.630 Днище. Опалубочный чертеж. План. Разрезы. Узлы Днище. Армирование. Схема расположения нижних сеток. Разрезы 1-1, 2-2. Узлы 1, 2 Днище. Армирование. Схемы расположения верхних сеток, каркасов Днище. Армирование. Узлы Монолитные участки стен Ум1…Ум11. Опалубочный чертеж. Разрезы. Узлы Монолитные участки стен. Балки Бм1, Бм2. Армирование Лотки монолитные Лтм1…Лтм3. Опалубочный чертеж. Армирование Схемы расположения бетонных подготовок и подпорных стен Схема расположения фундаментов под оборудование и приямков. Разрезы 1-1…10-10 Схема расположения фундаментов под оборудование и приямков. Фо1, Фо2 Схемы расположения плит покрытия и перекрытия на отм. 4.140. Разрезы 1-1, 2-2 Схемы расположения плит покрытия и перекрытия на отм. 4.140. Разрезы 3-3…9-9 Монолитное перекрытие Пм1 Венткамера. Разрезы Схема расположения закладных деталей в стенах и полу на отм. 4.140 Схема расположения биореакторов, лотков и фундаментов под песколовку, контактных резервуаров Биореактор Б1, Б2. Контактный резервуар К1, К2 Конструкции металлические Общие данные Схемы расположения переходных мостиков на отм. 3.790; балок, площадок и лестниц на отм. 2.400 Схемы расположения переходных мостиков на отм. 3.730; балок, площадок и лестниц на отм. 2.400. Разрезы 1-1…8-8 Узлы 1…13 Схемы расположения путей подвесного транспорта на отм. 0.000 и 4.140. Разрезы 1-1 - 5-5 Схемы расположения путей подвесного транспорта. Узлы I - IV Схема расположения ограждения биореакторов Организация строительства Схема стройгенплана |
| Разработан: | ЦНИИЭП |
| Утверждён: | 28.02.1991 Госкомархитектура (24) |









































