Скачать Типовой проект 902-3-14 Альбом 2. Технологическая часть. Заказные спецификацииДата актуализации: 01.01.2021
|
| Обозначение: | Типовой проект 902-3-14 |
| Обозначение англ: | 902-3-14 |
| Статус: | не определен законодательством |
| Название рус.: | Альбом 2. Технологическая часть. Заказные спецификации |
| Дата добавления в базу: | 01.09.2013 |
| Дата актуализации: | 01.01.2021 |
| Дата введения: | 01.03.1982 |
| Дата окончания срока действия: | 30.06.2003 |
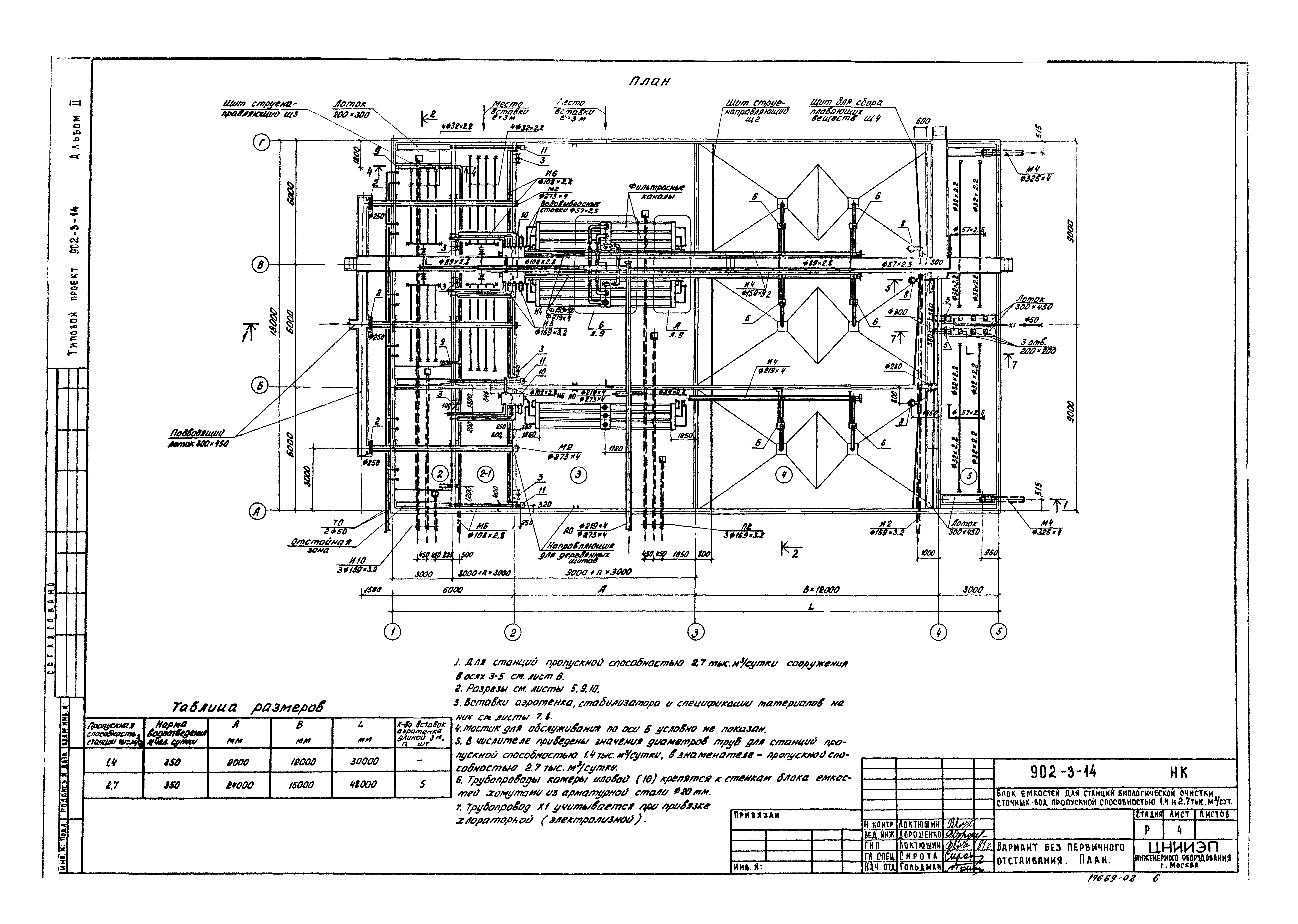
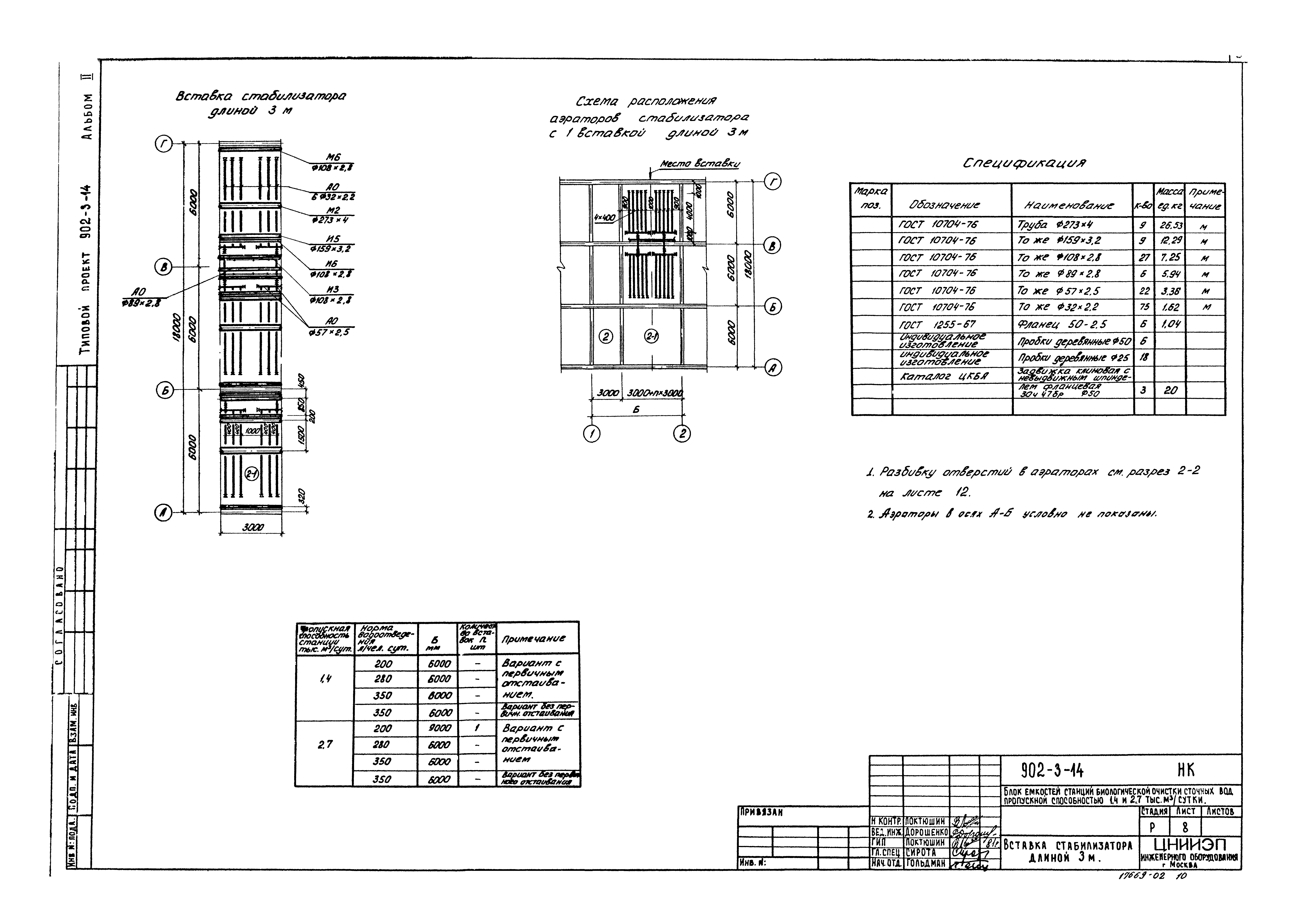
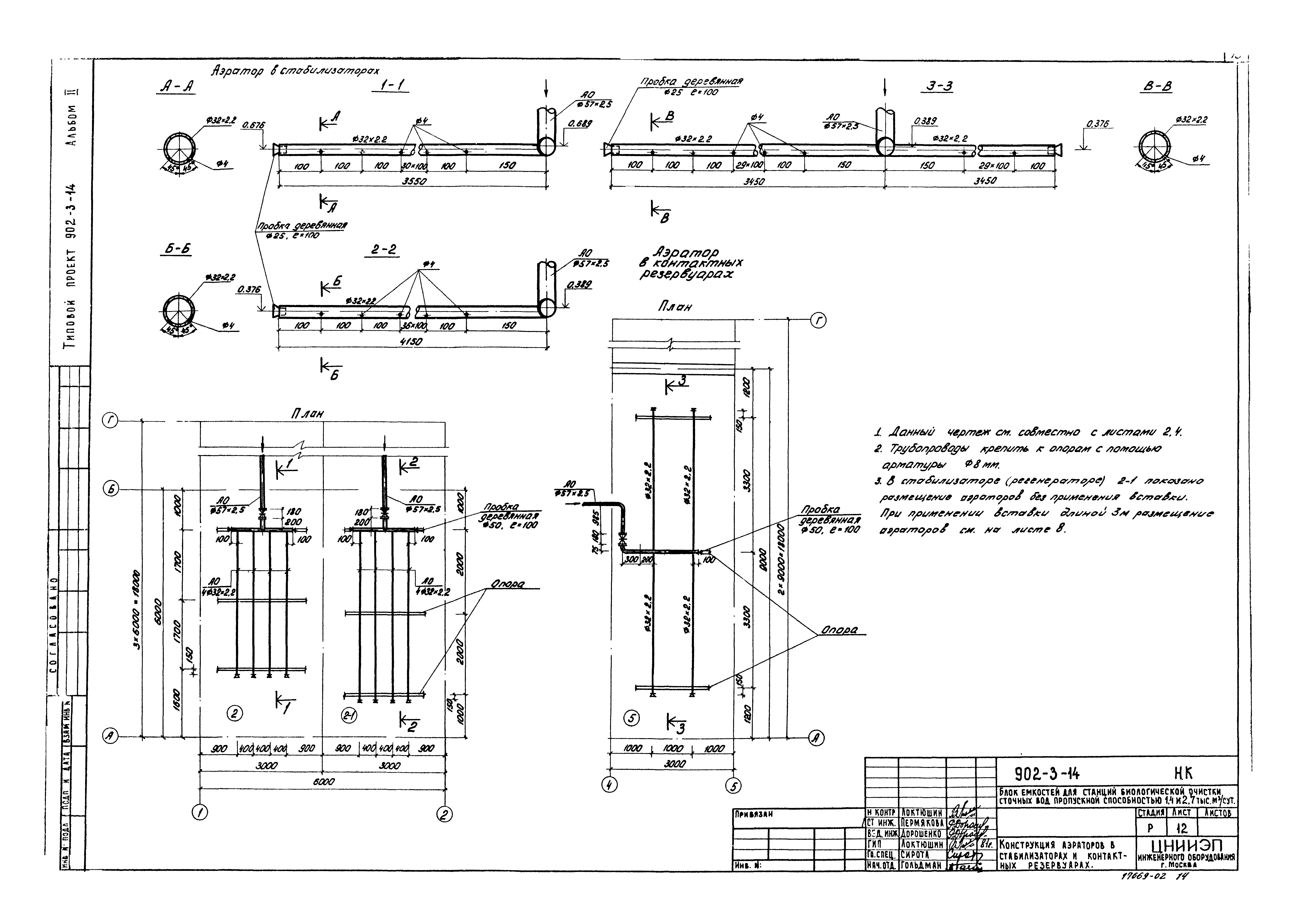
| Оглавление: | Общие данные Вариант с первичным отстаиванием. План Вариант с первичным отстаиванием. Разрезы 1-1, 2-2, 3-3 Вариант без первичного отстаивания. План Вариант без первичного отстаивания. Разрезы 1-1, 2-2 Вторичные отстойники. План. Разрезы 1-1, 2-2 Вставка аэротенка длиной 3 м. Схема расположения фильтроносных каналов Вставка стабилизатора длиной 3 м Разрезы 4-4, 5-5 Узлы "А" и "Б" Аксонометрическая схема воздуховодов (АО) Конструкция аэраторов в стабилизаторах и контактных резервуарах Аксонометрические схемы трубопроводов иловой камеры и обогрева стабилизаторов (ТО) Спецификация Заказная спецификация на насосное оборудование Заказная спецификация на нестандартизированное оборудование. Начало Заказная спецификация на нестандартизированное оборудование. Окончание Заказная спецификация на арматуру. Начало Заказная спецификация на арматуру. Окончание |
| Разработан: | ЦНИИЭП |
| Утверждён: | 20.02.1981 Госгражданстрой (Gosgrazhdanstroy 59) |





















