Скачать Типовой проект 902-3-15 Альбом 3. Строительная часть. Конструкции железобетонныеДата актуализации: 01.01.2021
|
| Обозначение: | Типовой проект 902-3-15 |
| Обозначение англ: | 902-3-15 |
| Статус: | не определен законодательством |
| Название рус.: | Альбом 3. Строительная часть. Конструкции железобетонные |
| Дата добавления в базу: | 01.09.2013 |
| Дата актуализации: | 01.01.2021 |
| Дата введения: | 08.07.1981 |
| Дата окончания срока действия: | 30.06.2003 |
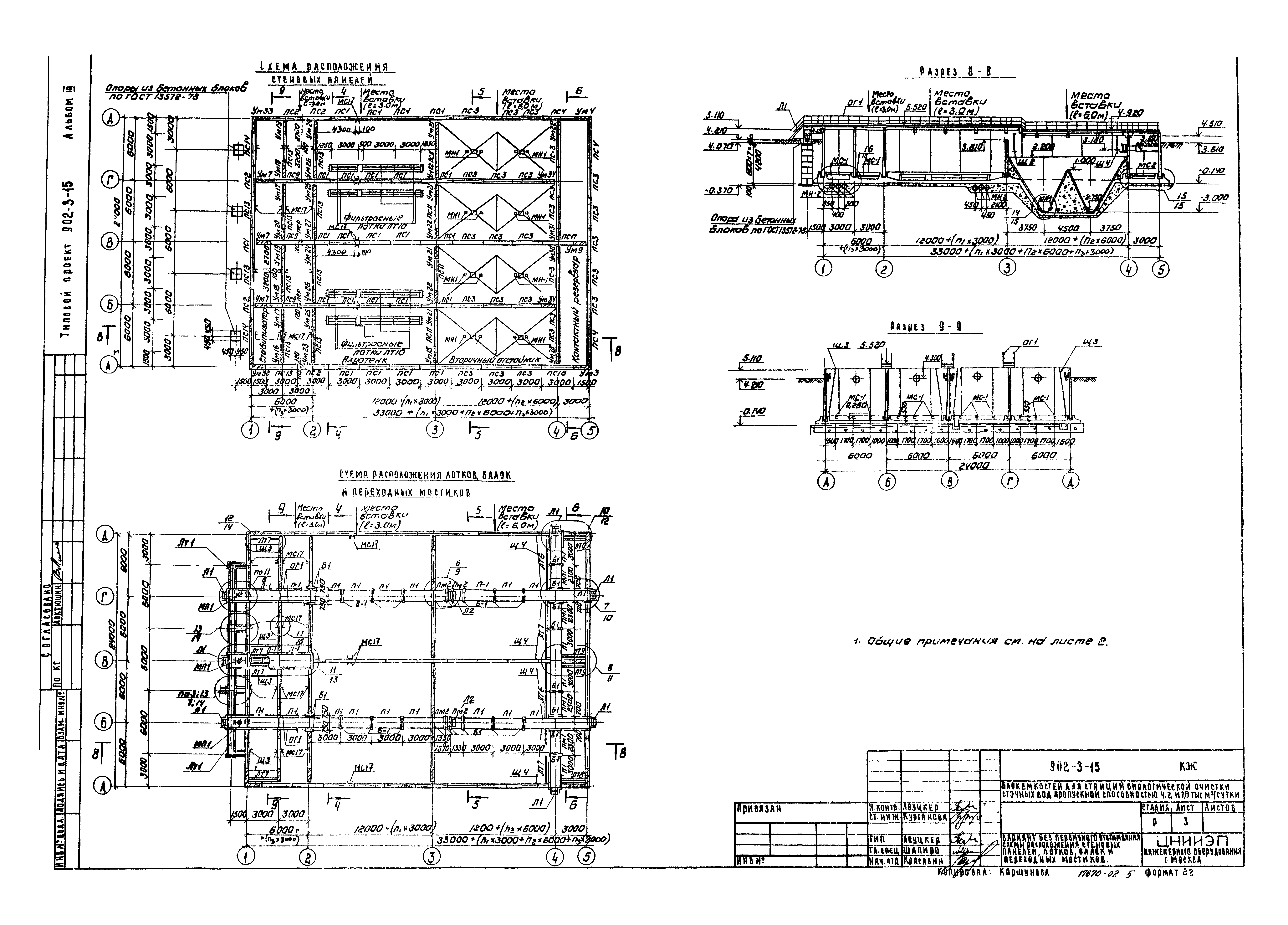
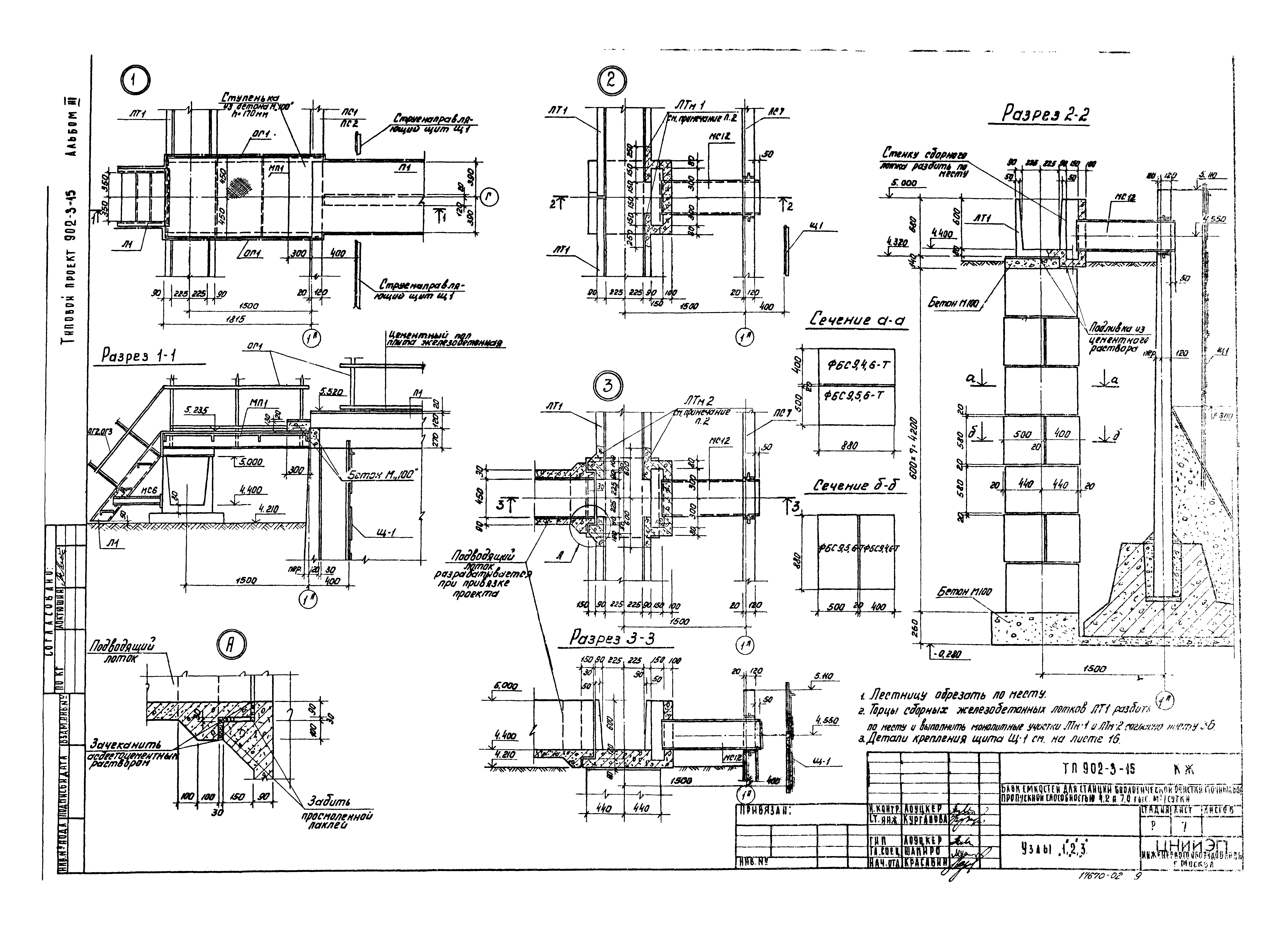
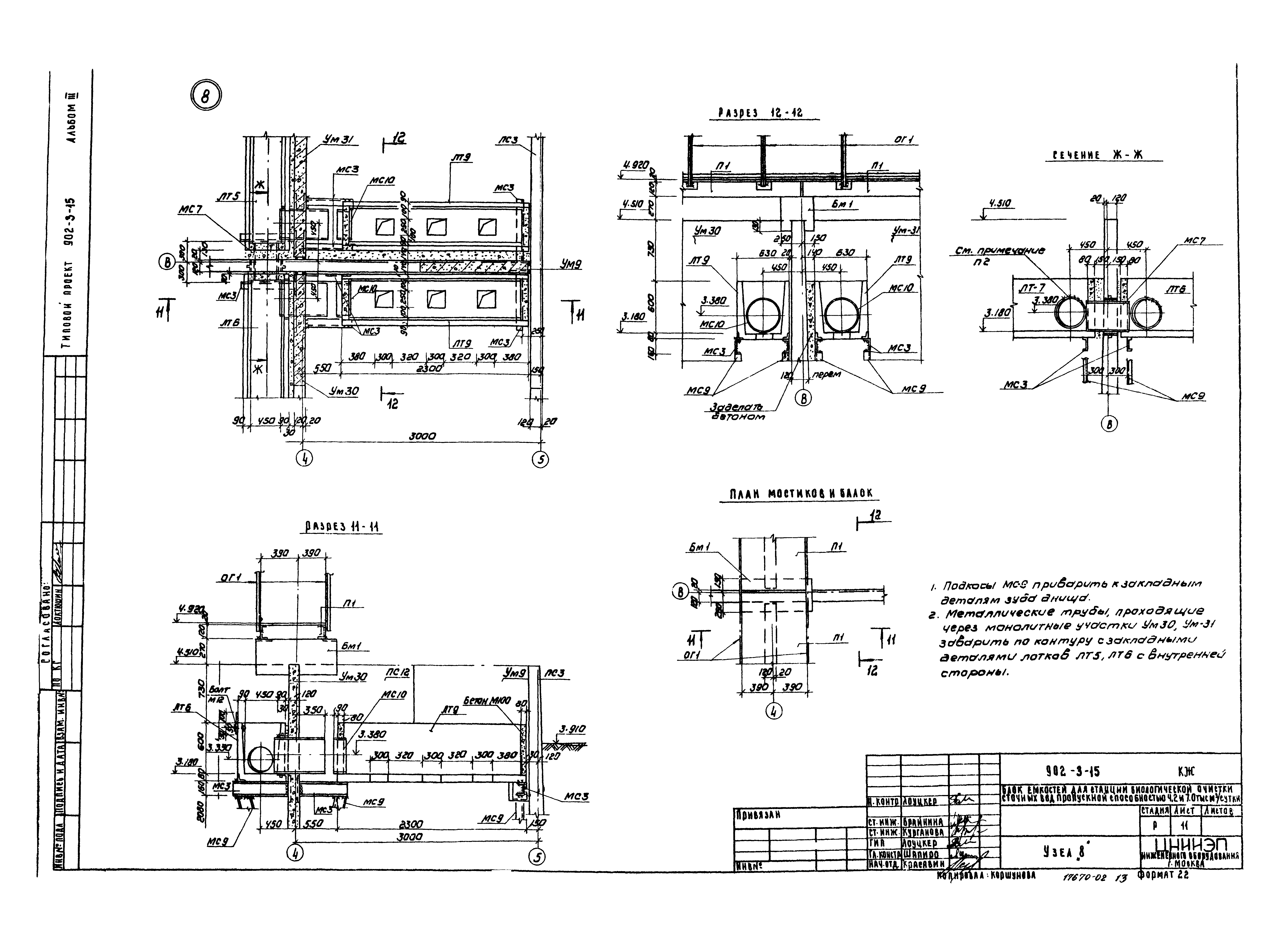
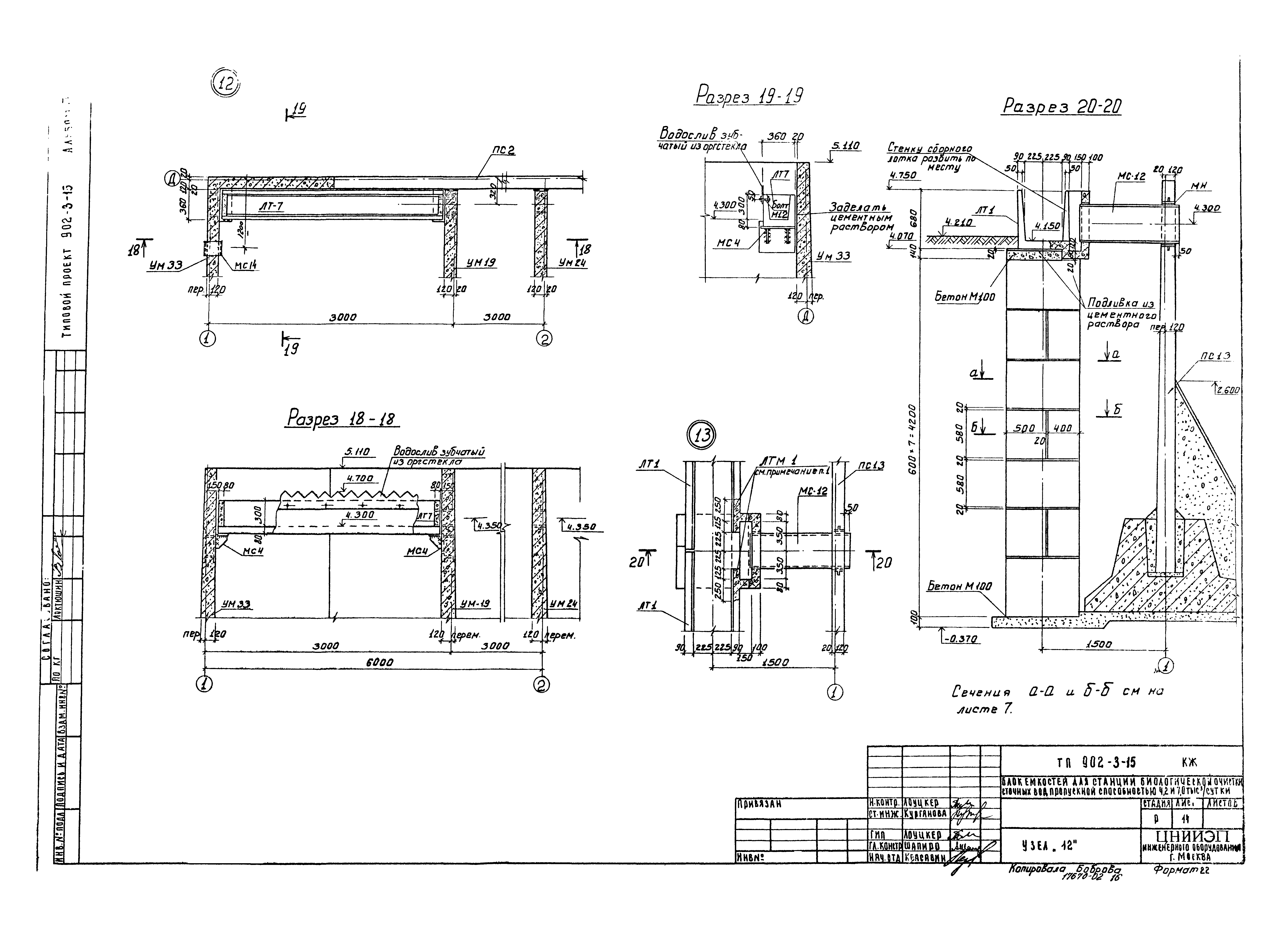
| Оглавление: | Общие данные Вариант с первичным отстаиванием. Схемы расположения стеновых панелей, лотков, балок и переходных мостиков Вариант без первичного отстаивания. Схемы расположения стеновых панелей, лотков, балок и переходных мостиков Разрезы. Детали Спецификация к схемам расположения стеновых панелей, лотков, балок и переходных мостиков. Начало Спецификация к схемам расположения стеновых панелей, лотков, балок и переходных мостиков. Окончание Узлы "1", "2", "3" Узел "4" Узлы "5", "6" Узел "7" Узел "8" Узлы "9", "10" Узел "11" Узел "12" Деталь деформационного шва в стенах, в днище, резинового компенсатора, установки труб опорожнения. Узлы 14…17, "А" Детали крепления струенаправляющих щитов Щ1…Щ4 Детали установки фильтроносных лотков Днище. Опалубочный чертеж. Планы. Разрезы Днище. Опалубочный чертеж. Разрезы. Узлы Днище. Армирование. Вариант с первичным отстаиванием. Схема расположения нижних и верхних сеток. Спецификация Днище. Армирование. Вариант с первичным отстаиванием. Схема расположения каркасов. Разрез 1-1. Спецификации Днище. Армирование. Вариант без первичного отстаивания. Схема расположения нижних и верхних сеток. Спецификация Днище. Армирование. Вариант без первичного отстаивания. Схема расположения каркасов. Разрез 1-1. Спецификации Днище. Армирование. Разрезы Днище. Армирование. Узлы 1…11 Днище. Армирование. Узлы 12…22 Армирование бункерной части для первичных и вторичных отстойников. Разрезы. Спецификации Монолитные участки стен. Опалубочный чертеж. Планы Монолитные участки стен. Опалубочный чертеж. Разрезы Монолитные участки стен. Спецификация к монолитным участкам стен. Начало Монолитные участки стен. Спецификация к монолитным участкам стен. Окончание Монолитные участки стен Ум1…4, 32, 33. Армирование Монолитные участки стен Ум5…7, 10…14, 16…20, 23…27. Армирование Монолитные участки стен Ум8, 9, 15, 21, 22, 28, 29, 30. Армирование Монолитные участки стен. Армирование. Спецификация Монолитные участки лотков ЛТм, плит ПМ и балки Бм 3-х метровая вставка аэротенков 3-х метровая вставка вторичных отстойников 3-х метровая вставка стабилизаторов |
| Разработан: | ЦНИИЭП |
| Утверждён: | 20.02.1981 Госгражданстрой (Gosgrazhdanstroy 59) |








































