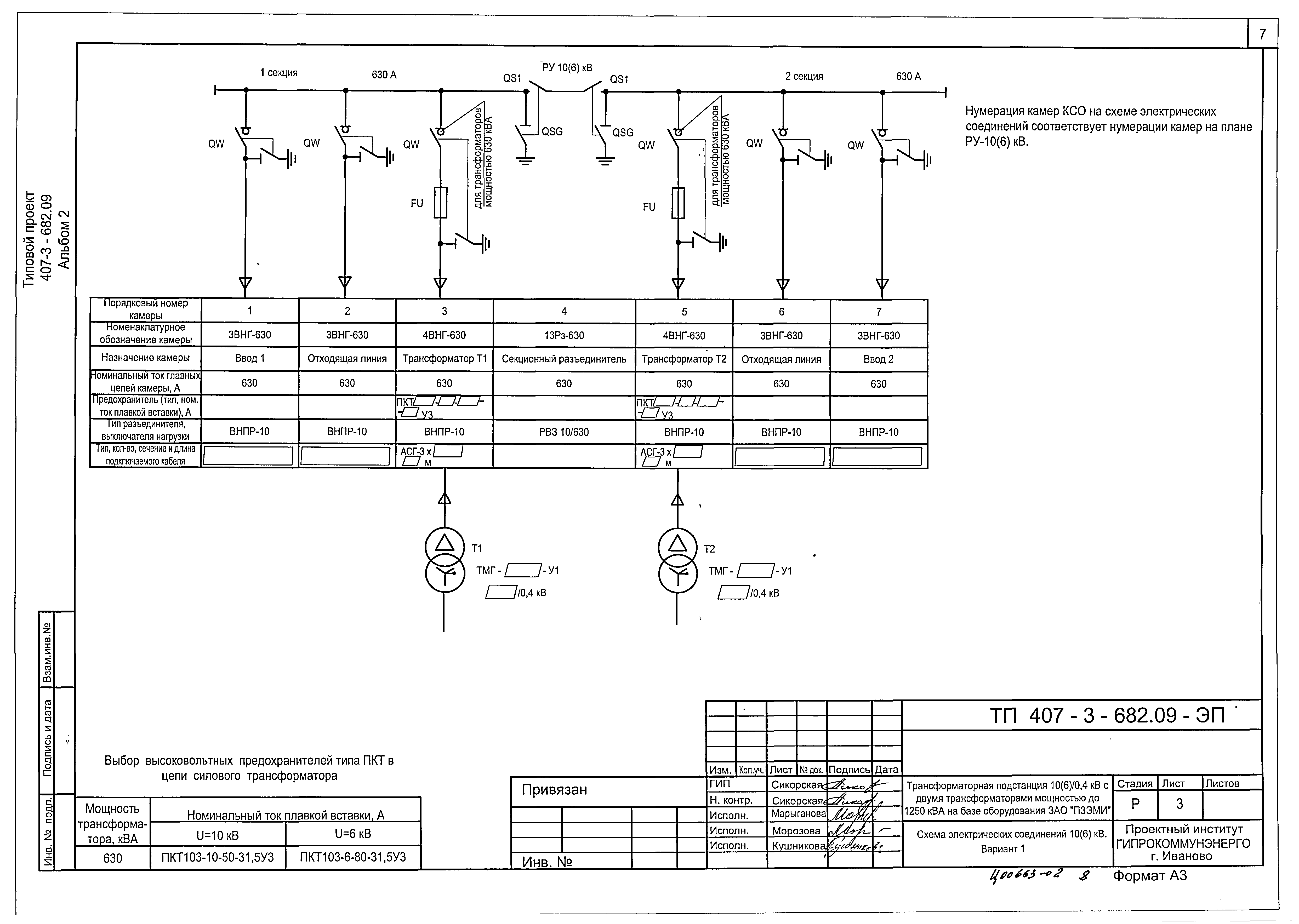
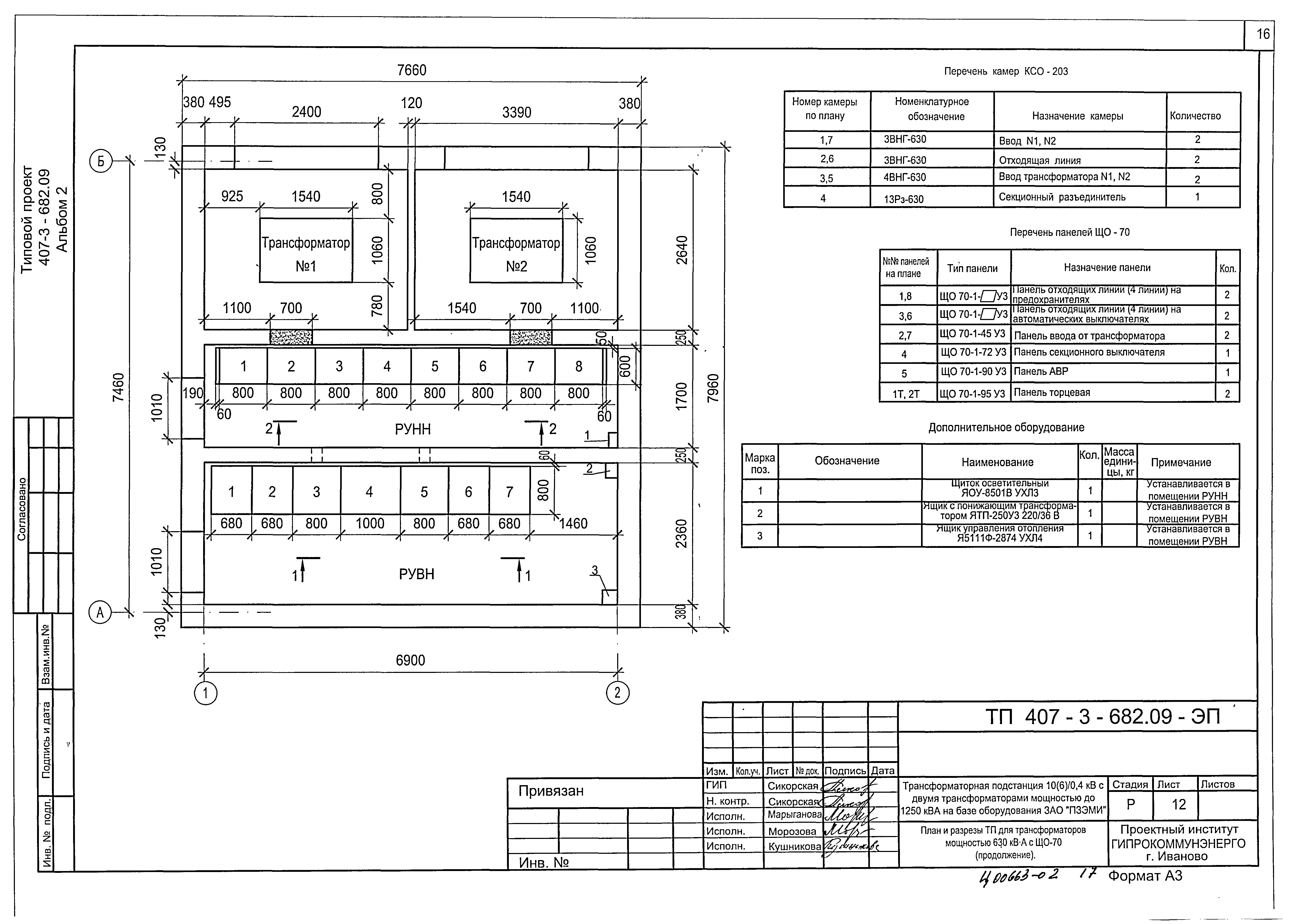
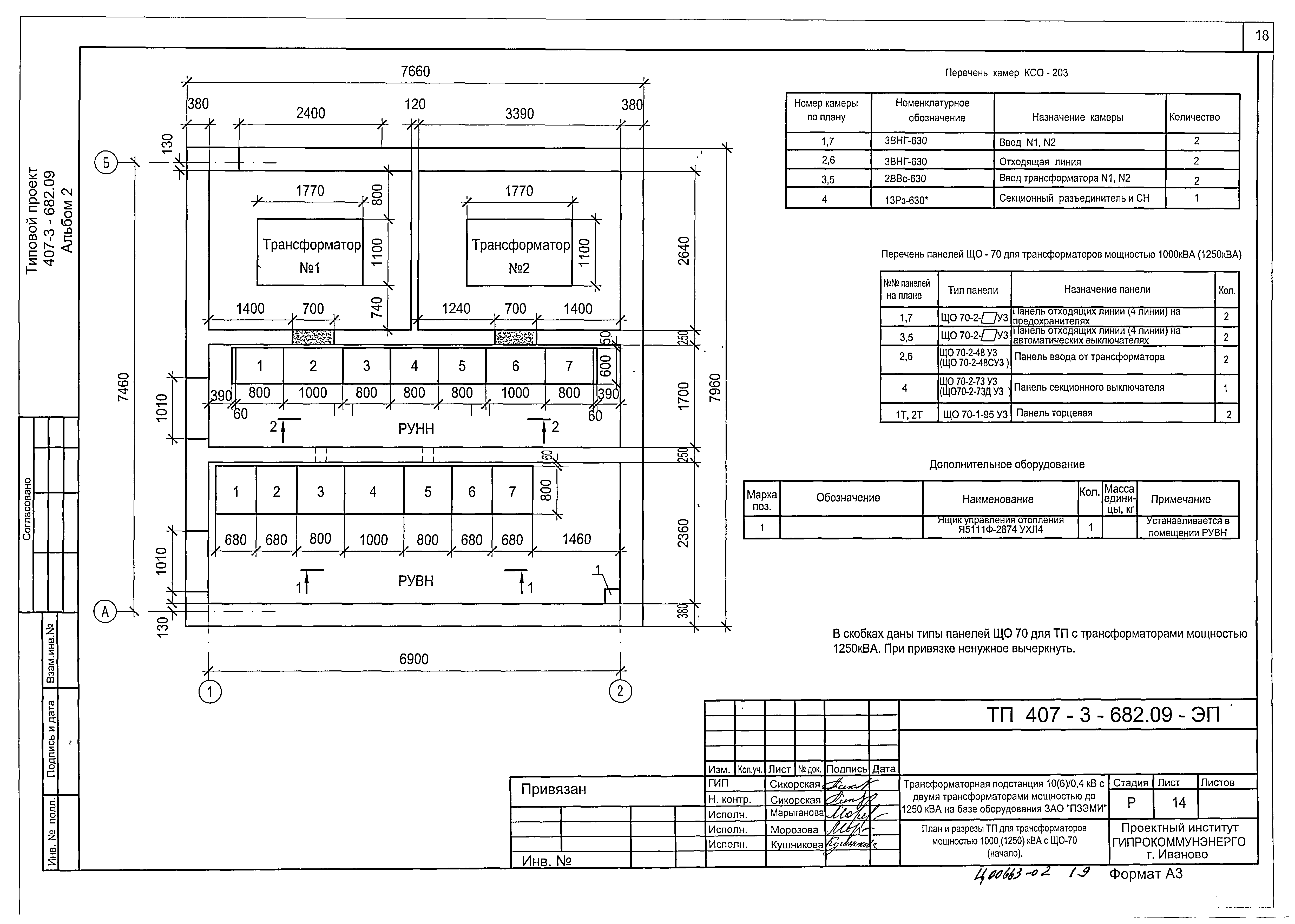
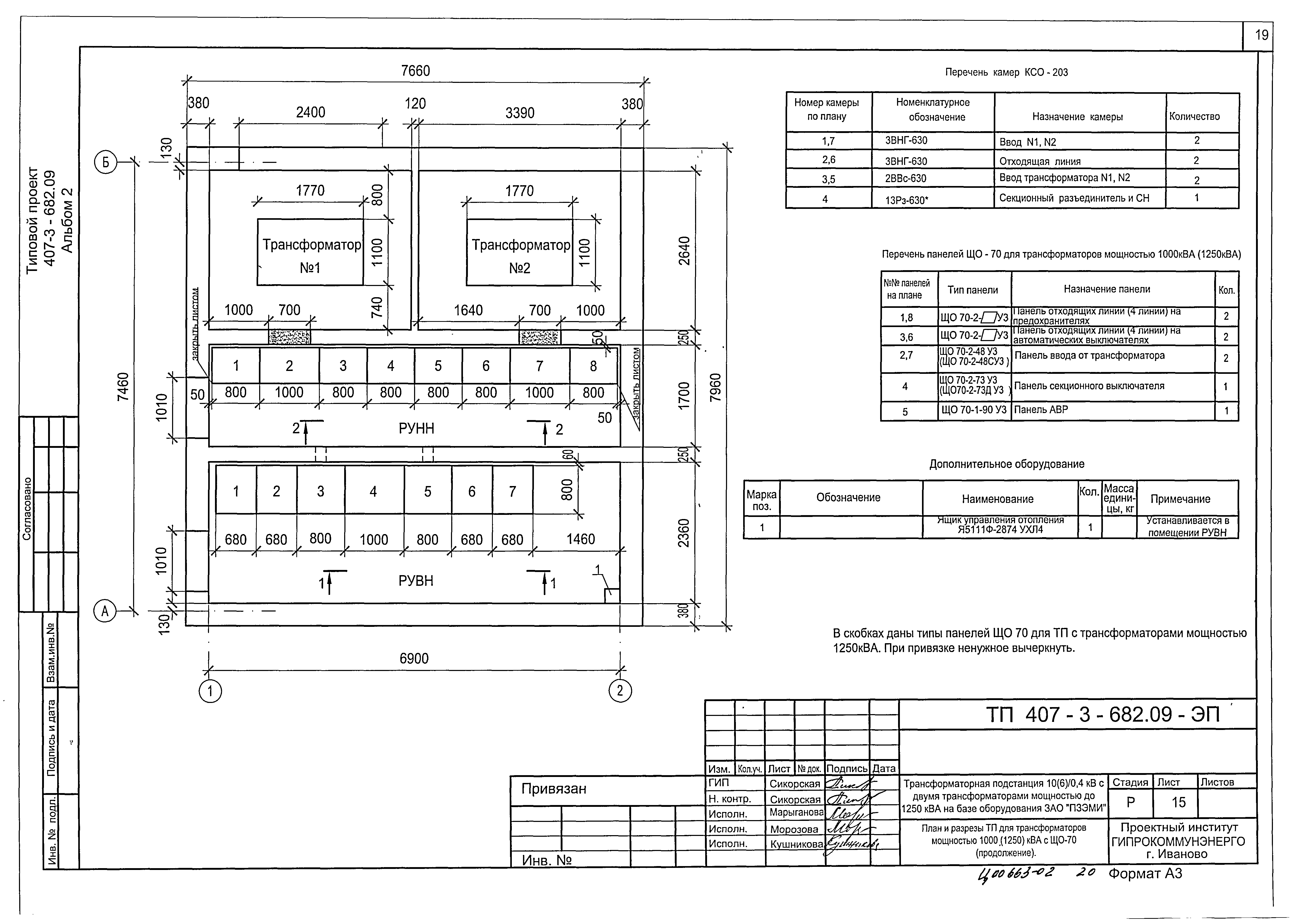
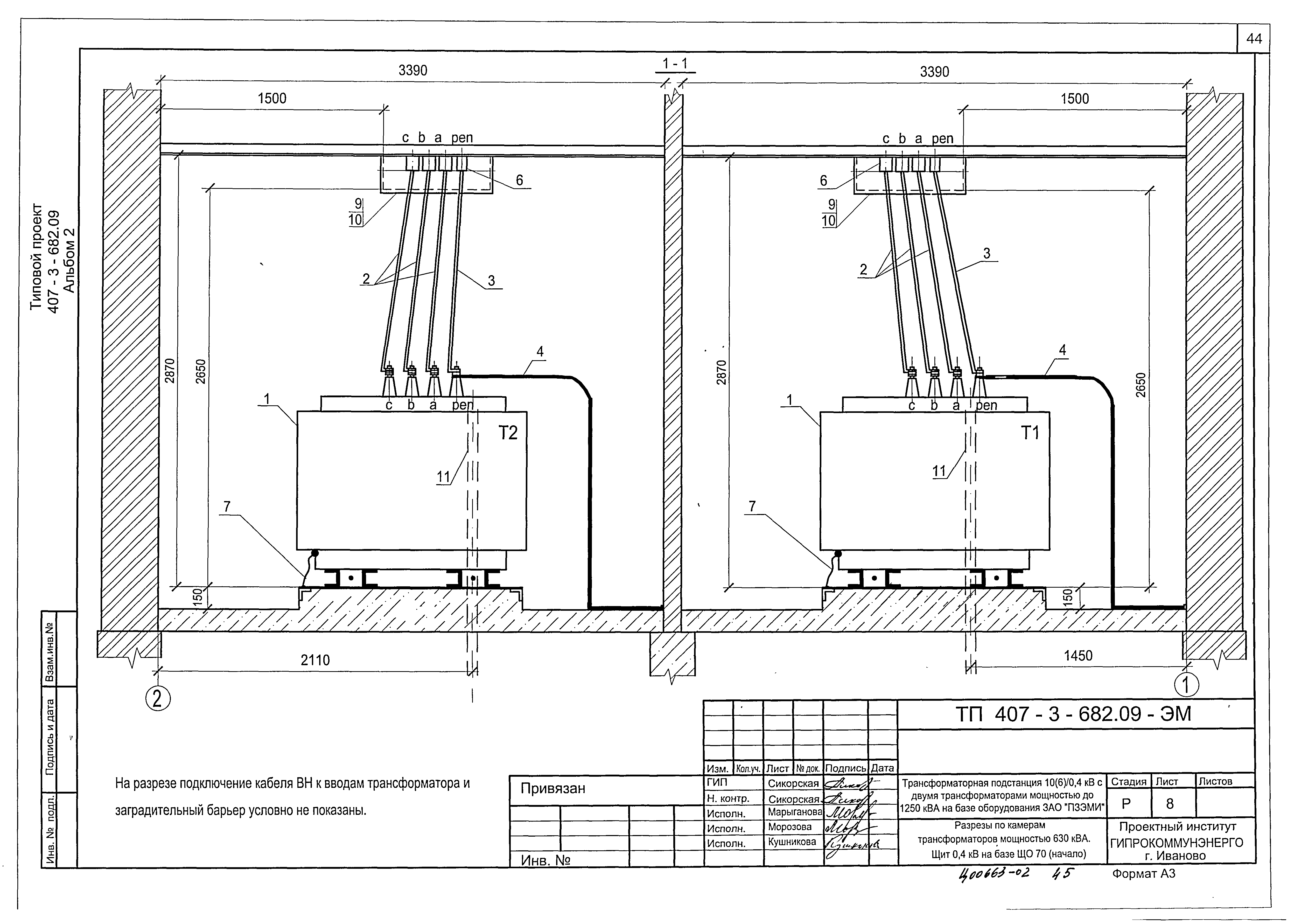
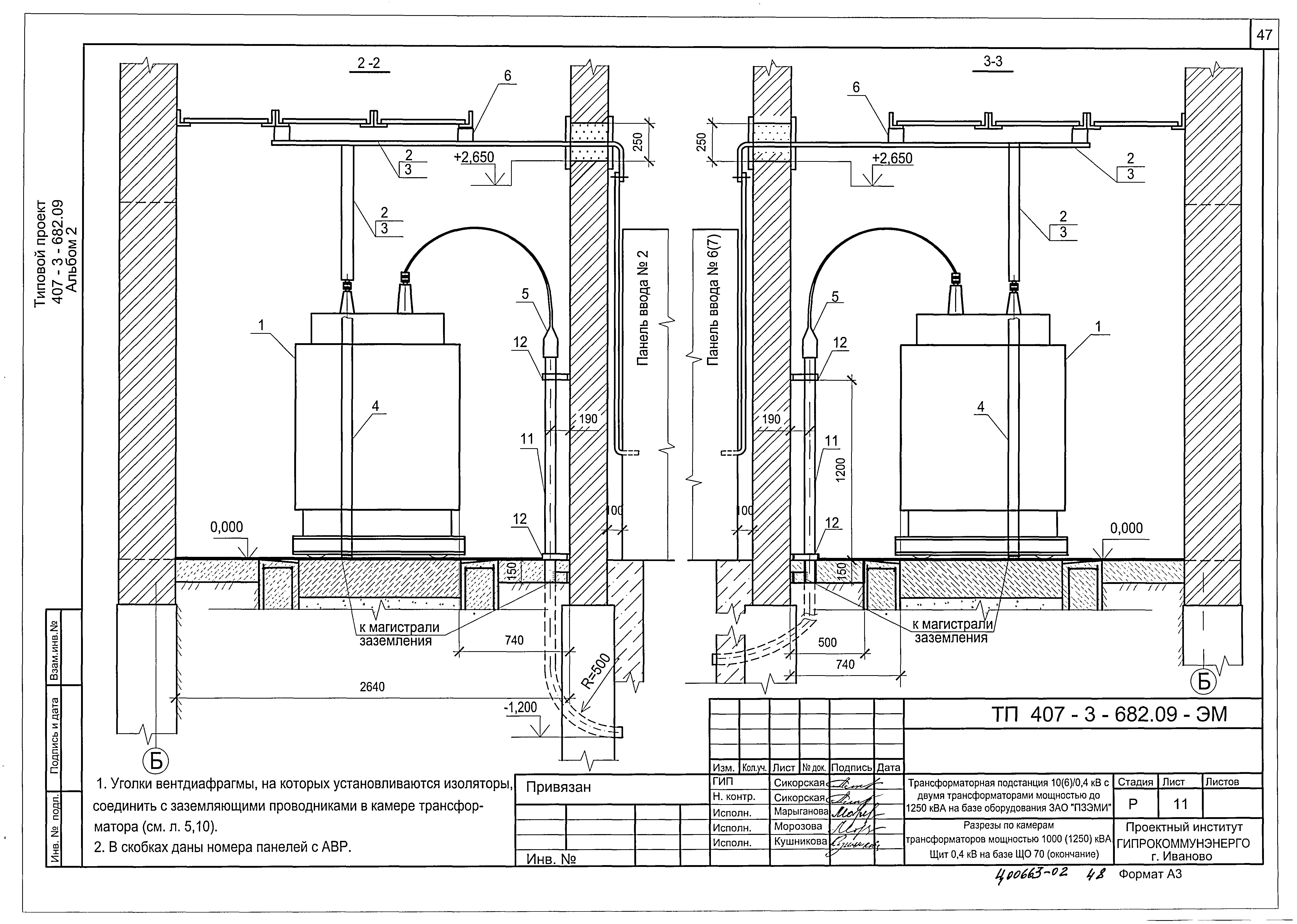
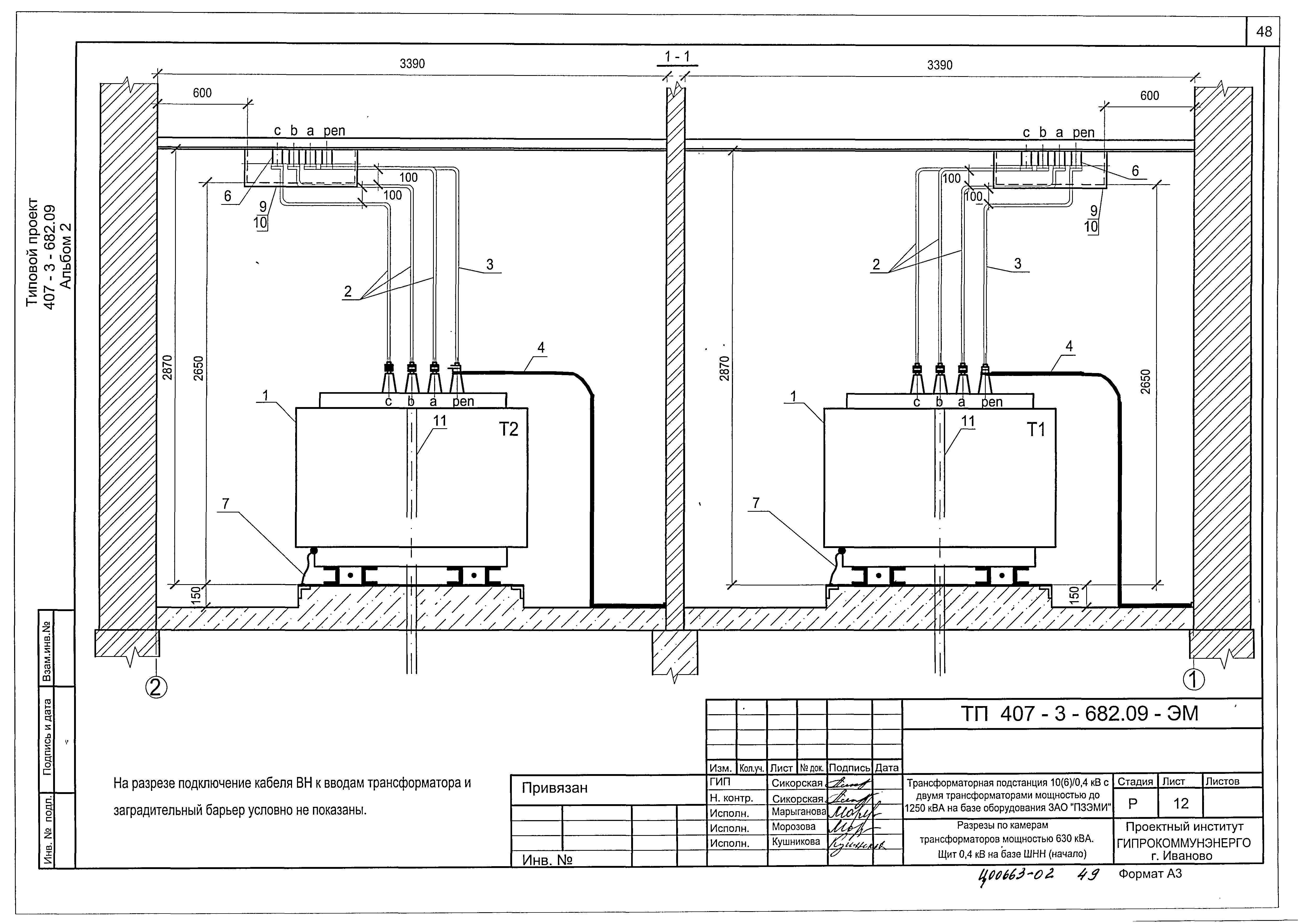
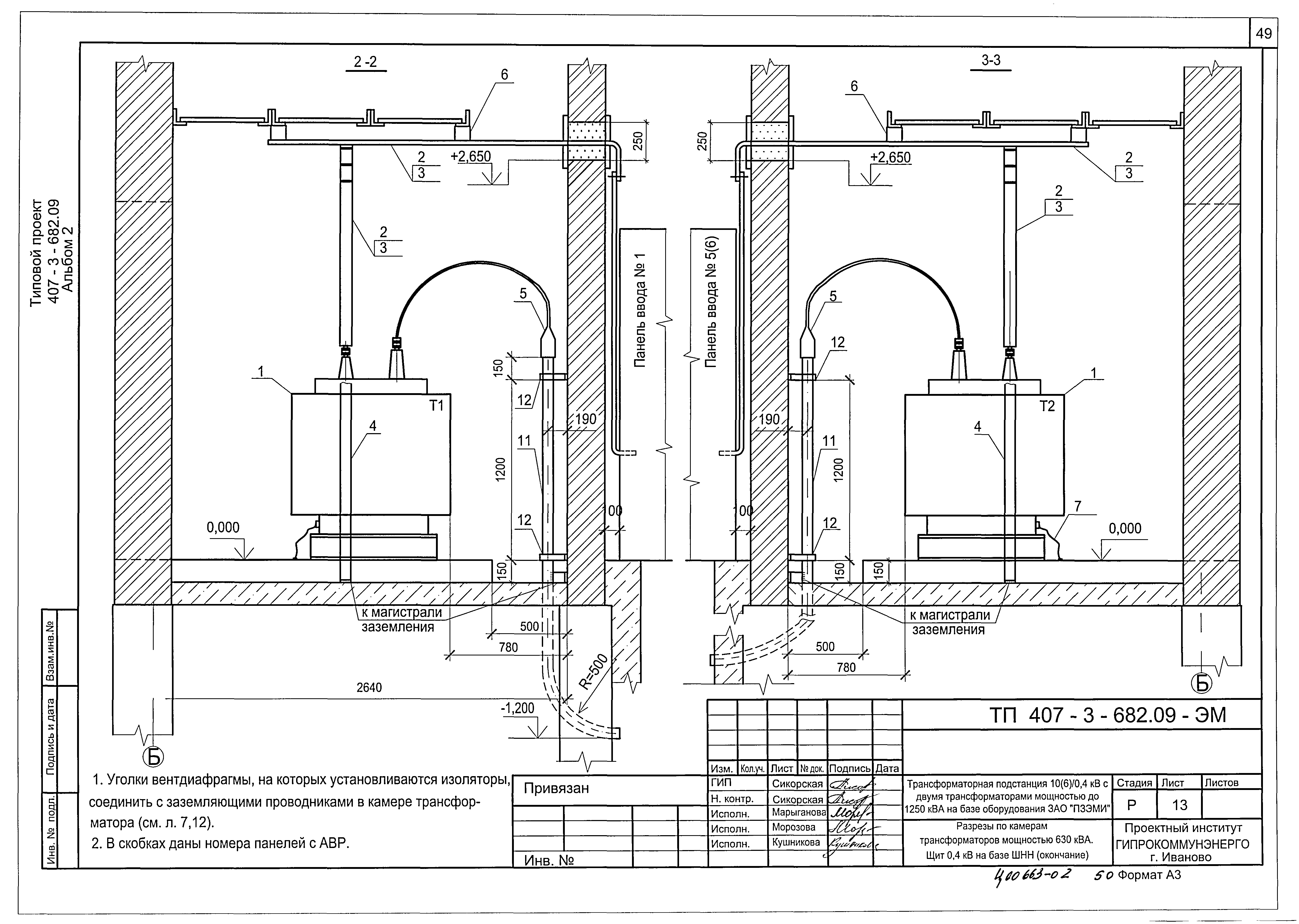
Скачать Типовой проект 407-3-682.09 Альбом 2. Электротехническая часть. Электросиловое оборудование. Электромонтажные конструкцииДата актуализации: 01.01.2021
|
| Обозначение: | Типовой проект 407-3-682.09 |
| Обозначение англ: | 407-3-682.09 |
| Статус: | не определен законодательством |
| Название рус.: | Альбом 2. Электротехническая часть. Электросиловое оборудование. Электромонтажные конструкции |
| Дата добавления в базу: | 01.09.2013 |
| Дата актуализации: | 01.01.2021 |
| Дата введения: | 02.07.2009 |
| Разработан: | Гипрокоммунэнерго |
| Утверждён: | 02.07.2009 ЗАО ПЗЭМИ (113) |
| Издан: | Информационный бюллетень о нормативной, методической и типовой проектной документации ФГУП ЦПП (2009 г. (11)) |




































































