Скачать Серия 3.004-3 Выпуск 20. Фундамент под молот ковочный паровоздушный модели К05.580 и М1545 с массой падающих частей 3300 кг. Рабочие чертежиДата актуализации: 01.01.2021
|
| Обозначение: | Серия 3.004-3 |
| Обозначение англ: | Series 3.004-3 |
| Статус: | отменен |
| Название рус.: | Выпуск 20. Фундамент под молот ковочный паровоздушный модели К05.580 и М1545 с массой падающих частей 3300 кг. Рабочие чертежи |
| Дата добавления в базу: | 01.09.2013 |
| Дата актуализации: | 01.01.2021 |
| Дата введения: | 01.03.1987 |
| Дата окончания срока действия: | 01.05.1999 |
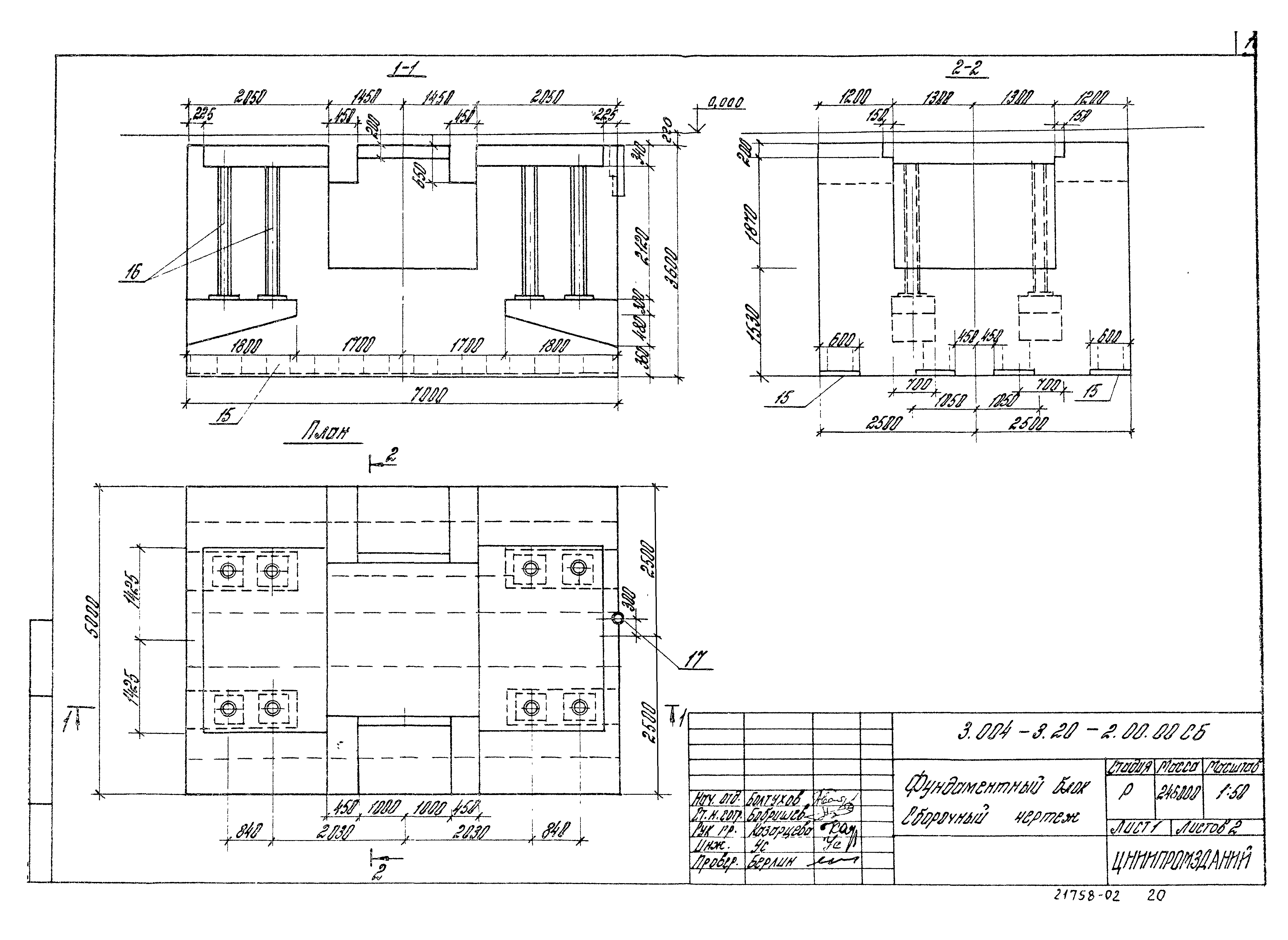
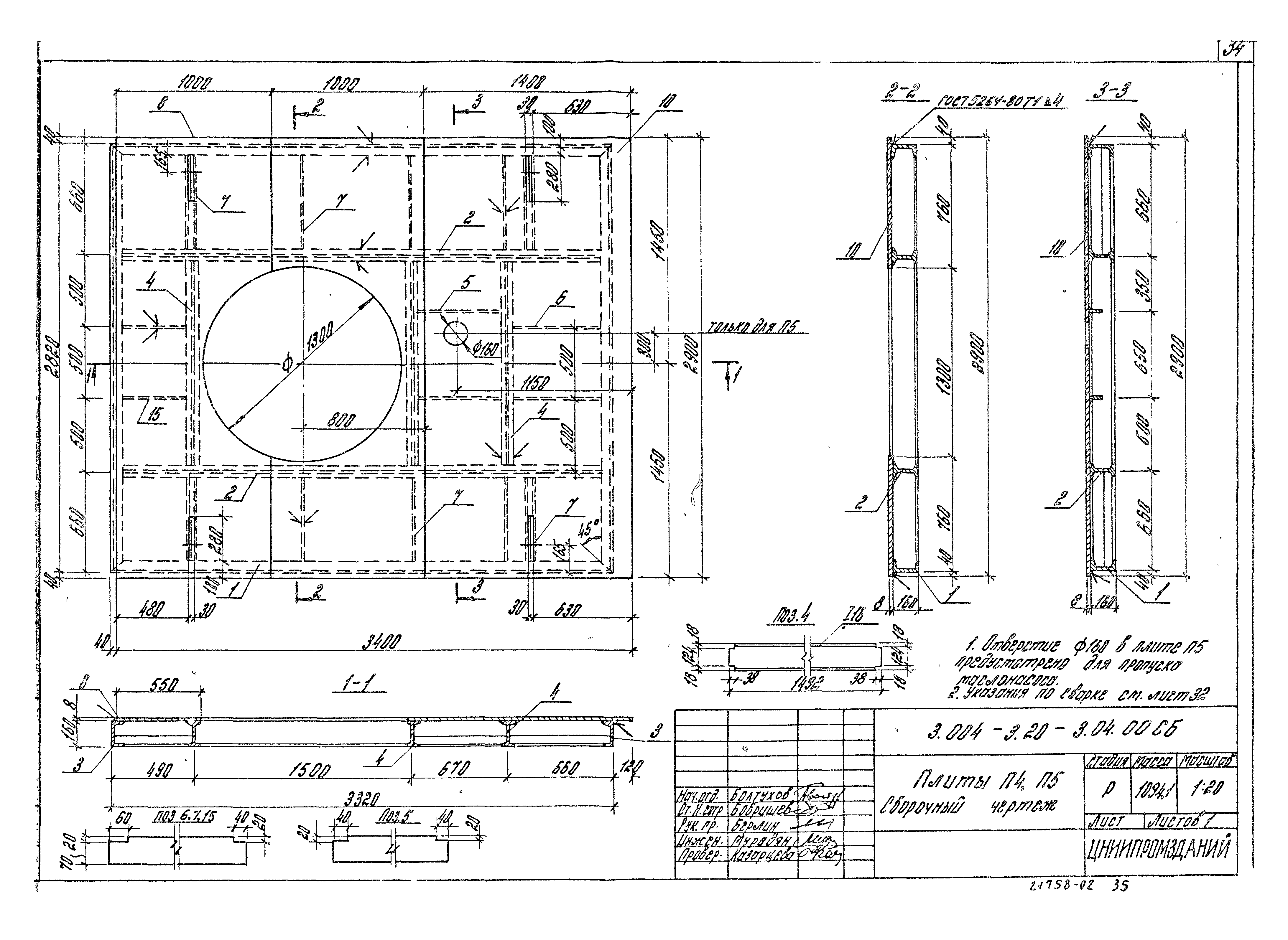
| Оглавление: | 3.004-3.20-0.00.00С Содержание 3.004-3.20-0.00.00ПЗ Пояснительная записка 3.004-3.20-0.00.00 Виброизолированный фундамент под молот модели К05-580 (М1545) 3.004-3.20-1.00.00 Подфундаментный короб 3.004-3.20-1.01.00 Сетка С1…С12 3.004-3.20-0.00.00СБ Виброизолированный фундамент под молот модели К05-580 (М1545). Сборочный чертеж 3.004-3.20-1.00.00СБ Подфундаментный короб. Сборочный чертеж 3.004-3.20-1.13.00СБ Пространственный каркас ПК 3.004-3.20-1.13.01СБ Каркас 3.004-3.20-1.14.00СБ Закладное изделие М1 3.004-3.20-1.15.00СБ Закладное изделие М2 3.004-3.20-1.16.00СБ Закладное изделие М3 3.004-3.20-1.17.00СБ Закладное изделие М4 3.004-3.20-1.18.00СБ Закладное изделие М5 3.004-3.20-1.19.00СБ Закладное изделие М6 3.004-3.20-1.20.00СБ Закладное изделие М7 3.004-3.20-1.21.00СБ Закладное изделие М8 3.004-3.20-2.00.00 Фундаментный блок 3.004-3.20-2.00.00СБ Фундаментный блок. Сборочный чертеж 3.004-3.20-2.01.00 Сетка С1…С12 3.004-3.20-2.13.00 Сетка С13, С13а 3.004-3.20-2.13.00СБ Сетка С13, С13а. Сборочный чертеж 3.004-3.20-2.16.00СБ Закладное изделие М2 3.004-3.20-2.17.00СБ Закладное изделие М3 3.004-3.20-3.00.00 Перекрытие 3.004-3.20-3.00.00СБ Перекрытие. Сборочный чертеж 3.004-3.20-3.01.00 Плита П1 3.004-3.20-3.01.00СБ Плита П1. Сборочный чертеж 3.004-3.20-3.02.00 Плита П2 3.004-3.20-3.02.00СБ Плита П2. Сборочный чертеж 3.004-3.20-3.03.00 Плита П3 3.004-3.20-3.03.00СБ Плита П3. Сборочный чертеж 3.004-3.20-3.04.00 Плита П4, П5 3.004-3.20-3.04.00СБ Плита П4, П5. Сборочный чертеж 3.004-3.20-3.06.00 Плита П6 3.004-3.20-3.06.00СБ Плита П6. Сборочный чертеж 3.004-3.20-3.07.00 Плита П7 3.004-3.20-3.07.00СБ Плита П7. Сборочный чертеж 3.004-3.20-3.08.00 Крышка люка 3.004-3.20-3.09.00 Балка 3.004-3.20-3.08.00СБ Крышка люка. Сборочный чертеж 3.004-3.20-3.10.00СБ Связь 3.004-3.20-3.09.00СБ Балка. Сборочный чертеж 3.004-3.20-4.00.00 Подшаботная прокладка П1 3.004-3.20-4.00.00СБ Подшаботная прокладка П1. Сборочный чертеж 3.004-3.20-5.00.00 Подшаботная прокладка П2 3.004-3.20-5.00.00СБ Подшаботная прокладка П2. Сборочный чертеж 3.004-3.20-6.00.00 Подшаботная прокладка П3 3.004-3.20-6.00.00СБ Подшаботная прокладка П3. Сборочный чертеж 3.004-3.20-7.00.00 Лестница 3.004-3.20-7.00.00СБ Лестница. Сборочный чертеж 3.004-3.20-8.00.00 Виброизолятор резиновый 3.004-3.20-8.00.00СБ Виброизолятор резиновый. Сборочный чертеж 3.004-3.20-8.01.00 Корпус 3.004-3.20-8.00.01 Резиновый элемент 3.004-3.20-8.01.00СБ Корпус. Сборочный чертеж 3.004-3.20-9.00.00 Виброизолятор пружинный 3.004-3.20-9.01.00 Крышка верхняя 3.004-3.20-9.00.00СБ Виброизолятор пружинный. Сборочный чертеж 3.004-3.20-9.01.00СБ Крышка верхняя. Сборочный чертеж 3.004-3.20-9.02.00 Крышка нижняя 3.004-3.20-9.02.00СБ Крышка нижняя. Сборочный чертеж 3.004-3.20-0.00.00 Ведомость расхода стали и материалов на фундамент |
| Разработан: | ЦНИИСК им. В.А. Кучеренко ЦНИИпромзданий |
| Утверждён: | 13.10.1986 Госстрой СССР (Государственный комитет Совета Министров СССР по делам строительства) (USSR Gosstroy АЧ-65) |
| Заменяет собой: |























































