Скачать Серия 3.004-3 Выпуск 22. Фундамент под молот ковочный паровоздушный модели М1340 с массой падающих частей 1000 кг. Рабочие чертежиДата актуализации: 01.01.2021
|
| Обозначение: | Серия 3.004-3 |
| Обозначение англ: | Series 3.004-3 |
| Статус: | отменен |
| Название рус.: | Выпуск 22. Фундамент под молот ковочный паровоздушный модели М1340 с массой падающих частей 1000 кг. Рабочие чертежи |
| Дата добавления в базу: | 01.09.2013 |
| Дата актуализации: | 01.01.2021 |
| Дата введения: | 01.03.1987 |
| Дата окончания срока действия: | 01.05.1999 |
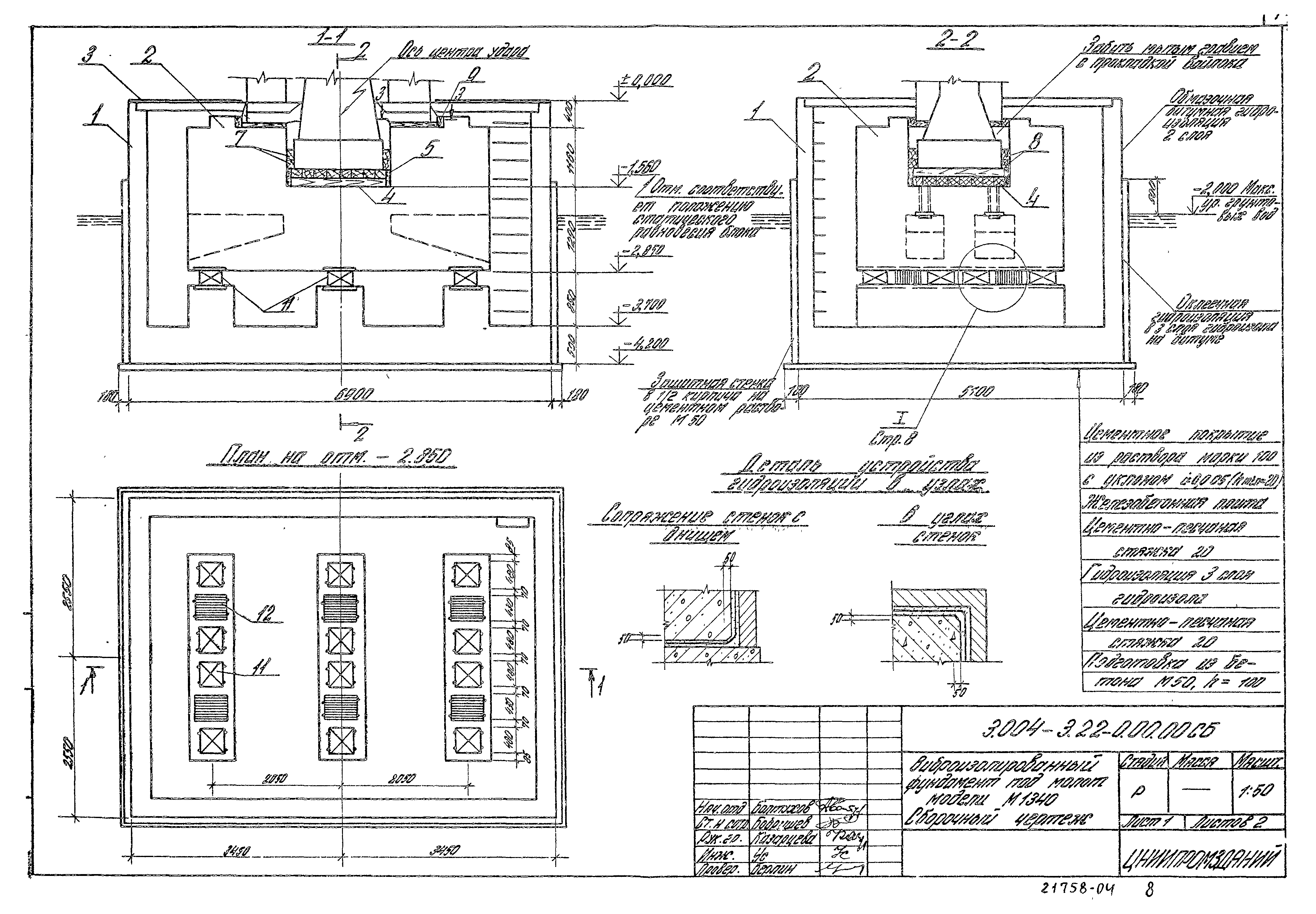
| Оглавление: | 3.004-3.22-0.00.00С Содержание 3.004-3.22-0.00.00ПЗ Пояснительная записка 3.004-3.22-0.00.00 Виброизолированный фундамент под молот модели М1340 3.004-3.22-1.00.00 Подфундаментный короб 3.004-3.22-0.00.00СБ Виброизолированный фундамент под молот модели М1340. Сборочный чертеж 3.004-3.22-1.00.00СБ Подфундаментный короб. Сборочный чертеж 3.004-3.22-1.01.00 Сетка С1…С11 3.004-3.22-1.16.00СБ Закладное изделие М3 3.004-3.22-1.12.00СБ Пространственный каркас. Сборочный чертеж 3.004-3.22-1.12.01СБ Каркас. Сборочный чертеж 3.004-3.22-1.14.00СБ Закладное изделие М1 3.004-3.22-1.15.00СБ Закладное изделие М2 3.004-3.22-2.00.00 Фундаментный блок 3.004-3.22-2.01.00 Сетка С1…С9 3.004-3.22-2.00.00СБ Фундаментный блок. Сборочный чертеж 3.004-3.22-2.10.00 Сетка С10, С11 3.004-3.22-2.10.00СБ Сетка С10, С11. Сборочный чертеж 3.004-3.22-2.13.00СБ Закладное изделие М2 3.004-3.22-3.00.00 Перекрытие 3.004-3.22-3.00.00СБ Перекрытие. Сборочный чертеж 3.004-3.22-3.01.00 Плита П1 3.004-3.22-3.01.00СБ Плита П1. Сборочный чертеж 3.004-3.22-3.02.00 Плита П2 3.004-3.22-3.02.00СБ Плита П2. Сборочный чертеж 3.004-3.22-3.03.00 Плита П3 3.004-3.22-3.03.00СБ Плита П3. Сборочный чертеж 3.004-3.22-3.07.00 Крышка люка 3.004-3.22-3.07.00СБ Крышка люка. Сборочный чертеж 3.004-3.22-4.00.00 Подшаботная прокладка П1 3.004-3.22-4.00.00СБ Подшаботная прокладка П1. Сборочный чертеж 3.004-3.22-5.00.00 Подшаботная прокладка П2 3.004-3.22-5.00.00СБ Подшаботная прокладка П2. Сборочный чертеж 3.004-3.22-6.00.00 Подшаботная прокладка П3 3.004-3.22-6.00.00СБ Подшаботная прокладка П3. Сборочный чертеж 3.004-3.22-8.00.00 Виброизолятор резиновый 3.004-3.22-8.00.00СБ Виброизолятор резиновый. Сборочный чертеж 3.004-3.22-8.01.00 Корпус 3.004-3.22-8.00.01 Резиновый элемент 3.004-3.22-8.01.00СБ Корпус. Сборочный чертеж 3.004-3.22-9.00.00 Виброизолятор пружинный 3.004-3.22-9.01.00 Крышка верхняя 3.004-3.22-9.00.00СБ Виброизолятор пружинный. Сборочный чертеж 3.004-3.22-9.01.00СБ Крышка верхняя. Сборочный чертеж 3.004-3.22-9.02.00 Крышка нижняя 3.004-3.22-9.02.00СБ Крышка нижняя. Сборочный чертеж 3.004-3.22-0.00.00ВМ Ведомость расхода стали и материалов на фундамент |
| Разработан: | ЦНИИСК им. В.А. Кучеренко ЦНИИпромзданий |
| Утверждён: | 13.10.1986 Госстрой СССР (Государственный комитет Совета Министров СССР по делам строительства) (USSR Gosstroy АЧ-65) |
| Заменяет собой: |








































