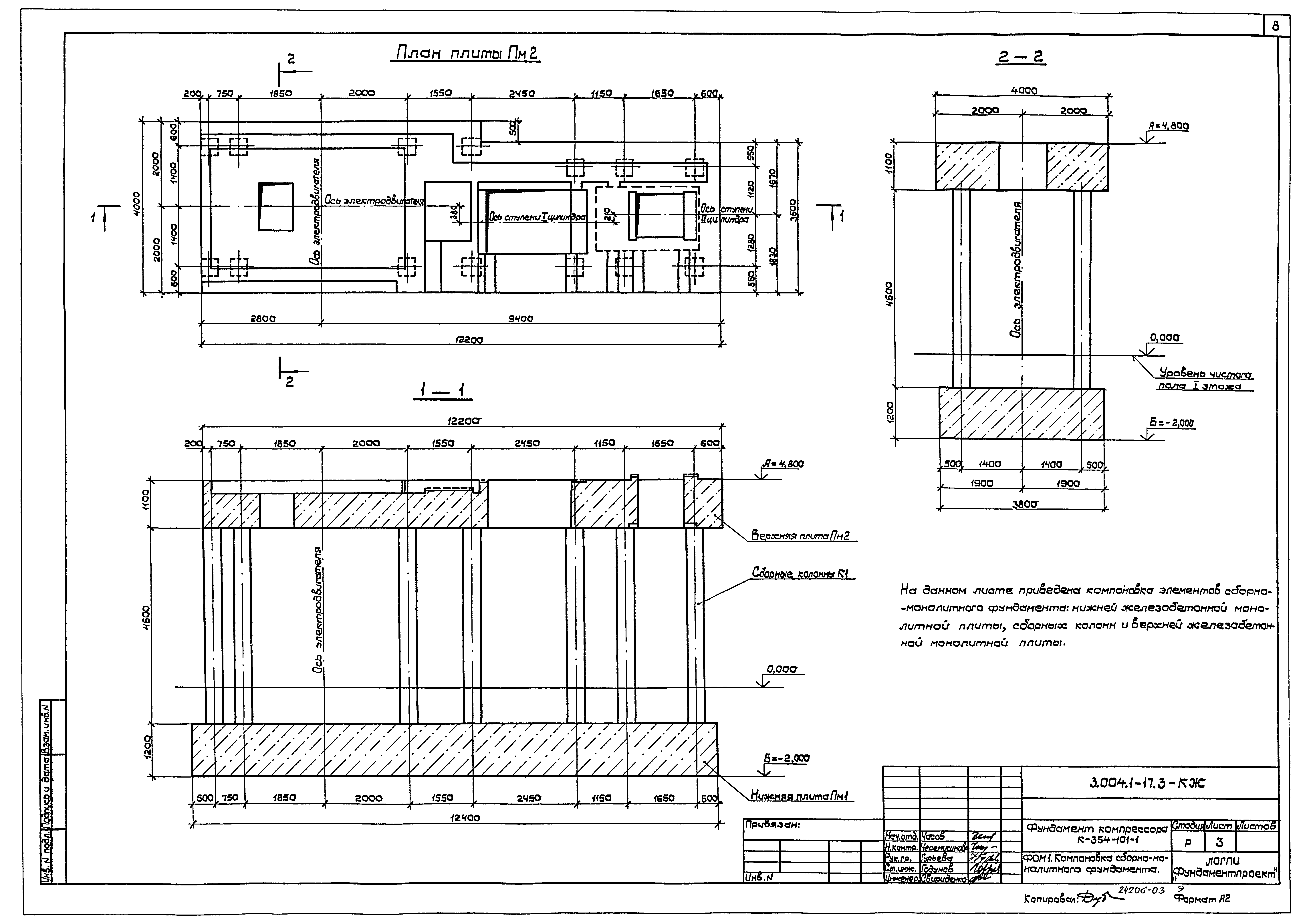
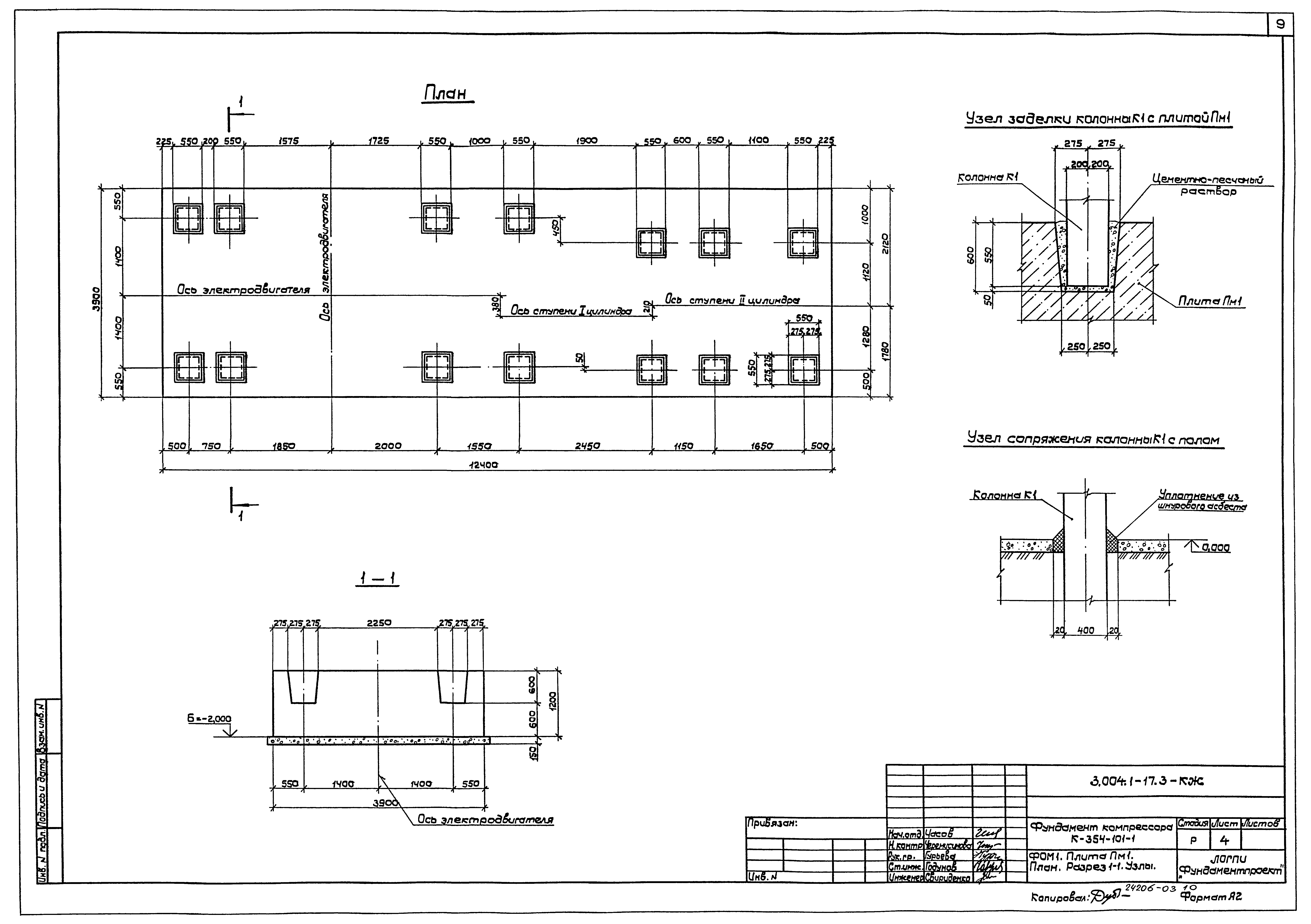
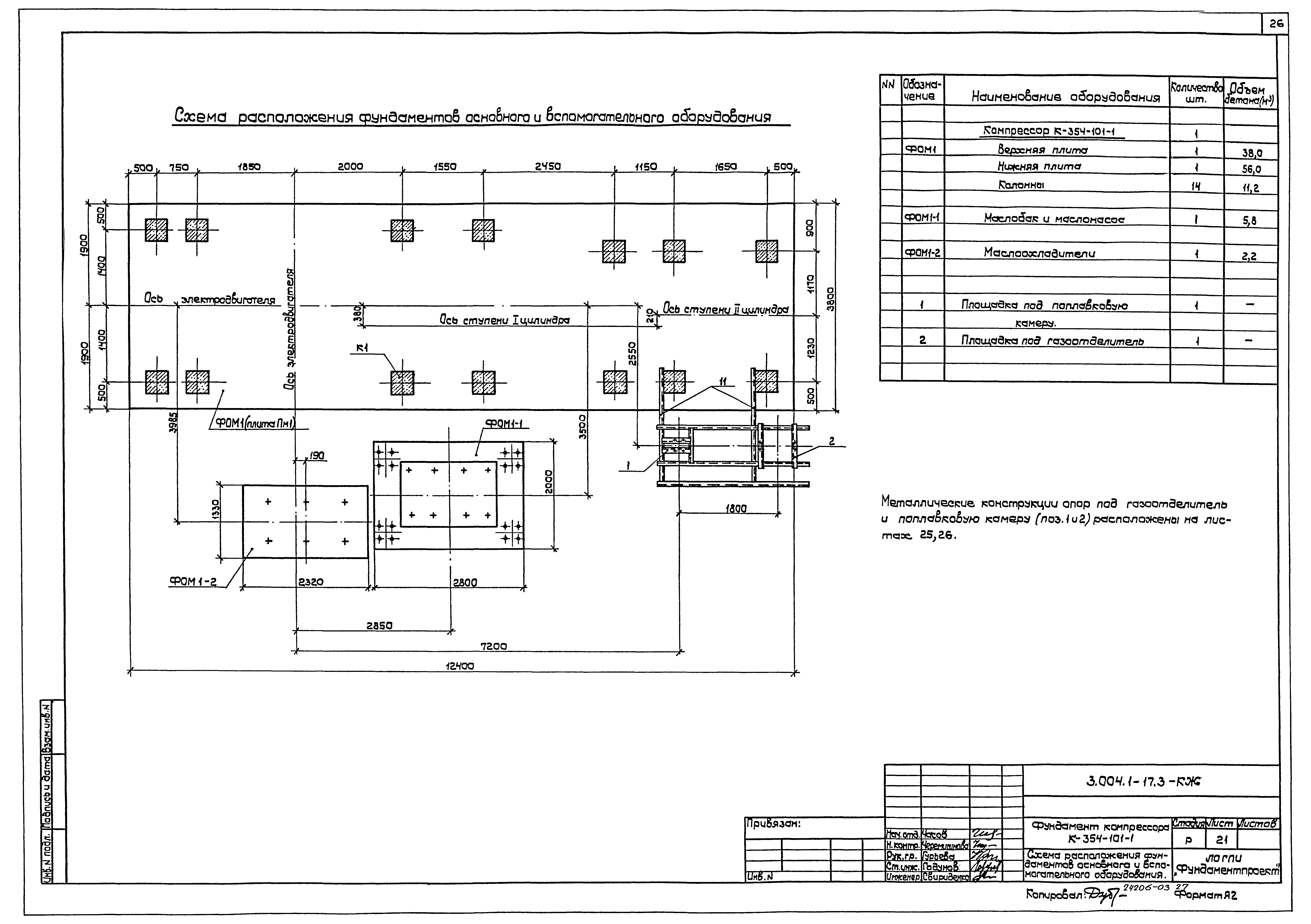
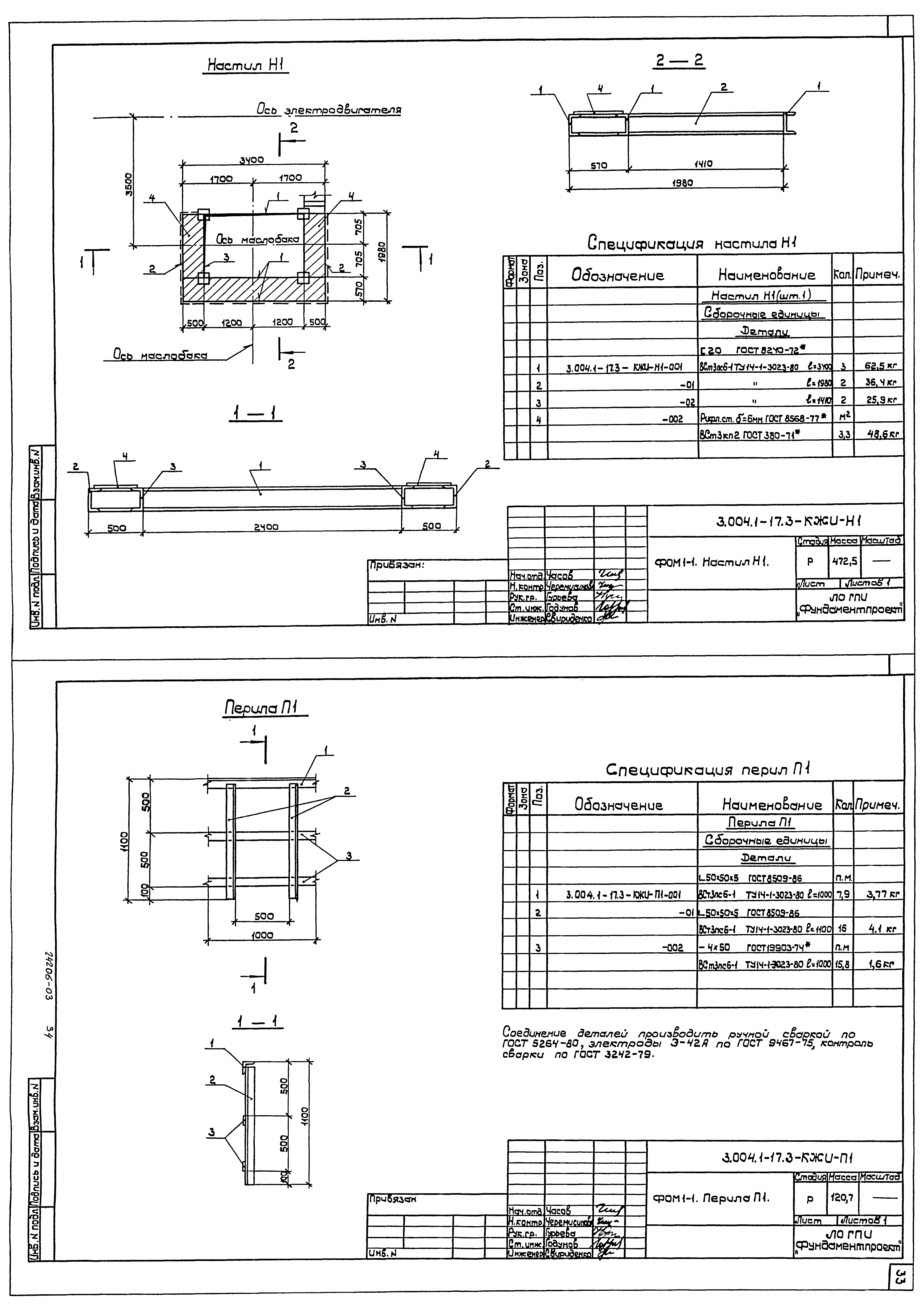
Скачать Серия 3.004.1-17 Выпуск 3. Фундамент турбокомпрессора марки К-354-101-1. Рабочие чертежиДата актуализации: 01.01.2021 Серия 3.004.1-17
Выпуск 3. Фундамент турбокомпрессора марки К-354-101-1. Рабочие чертежи| Обозначение: | Серия 3.004.1-17 | | Обозначение англ: | Series 3.004.1-17 | | Статус: | не действует | | Название рус.: | Выпуск 3. Фундамент турбокомпрессора марки К-354-101-1. Рабочие чертежи | | Дата добавления в базу: | 01.01.2021 | | Дата актуализации: | 01.01.2021 | | Дата введения: | 01.01.1990 | | Дата окончания срока действия: | 01.05.1999 | | Разработан: | ЛО ГПИ Фундаментпроект
| | Утверждён: | 22.08.1989 Госстрой СССР (Государственный комитет Совета Министров СССР по делам строительства) (USSR Gosstroy 4/5-1151)
| | Издан: | ЦИТП Госстроя СССР (CITP, Gosstroy (USSR) 1990 г. )
|
                                       
|