Скачать Типовые проектные решения 407-03-410.86 Альбом I. Электротехническая частьДата актуализации: 01.01.2021
|
| Обозначение: | Типовые проектные решения 407-03-410.86 |
| Обозначение англ: | 407-03-410.86 |
| Статус: | справочные материалы, мп, тпр |
| Название рус.: | Альбом I. Электротехническая часть |
| Дата добавления в базу: | 01.09.2013 |
| Дата актуализации: | 01.01.2021 |
| Дата окончания срока действия: | 16.06.1986 |
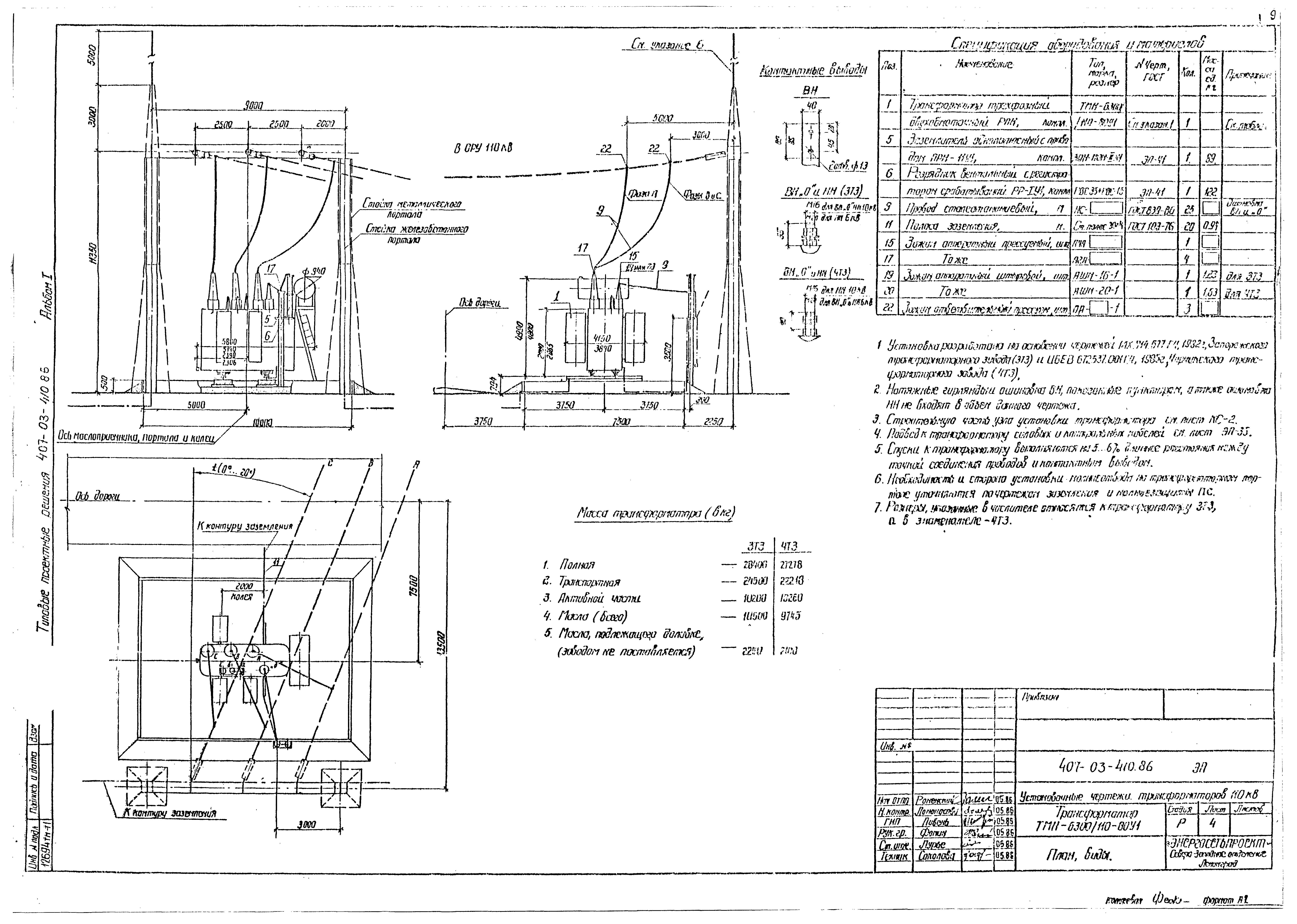
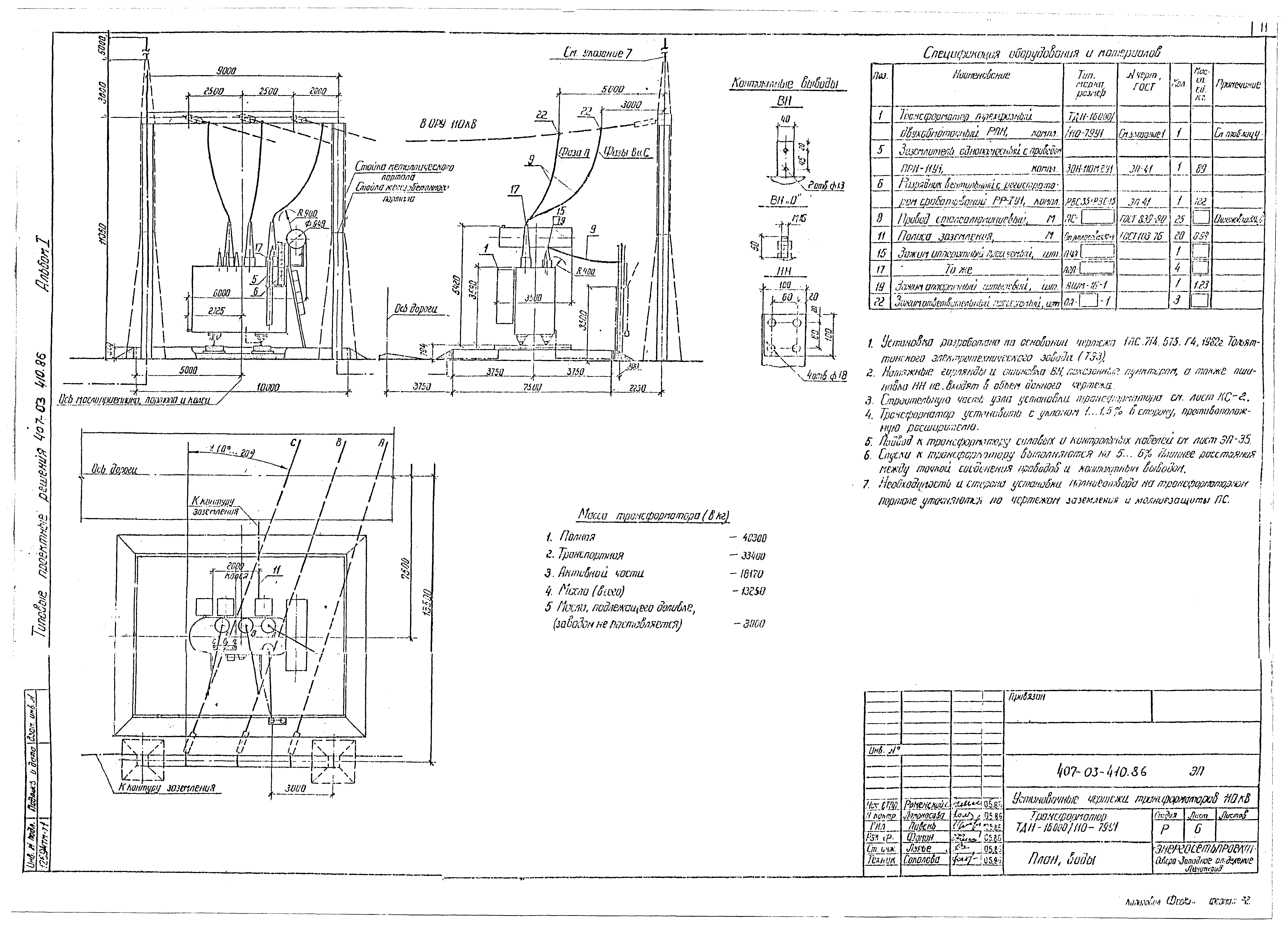
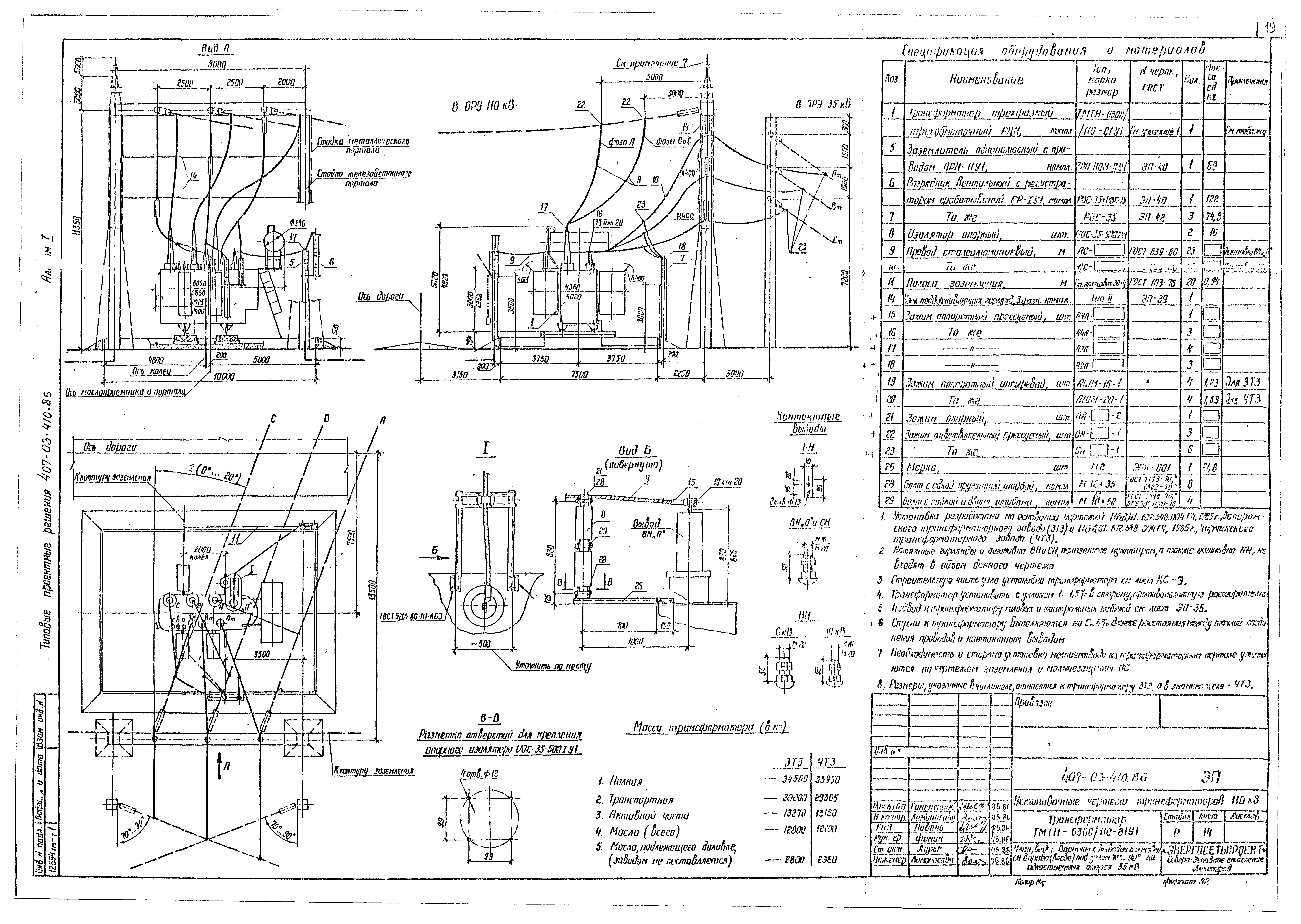
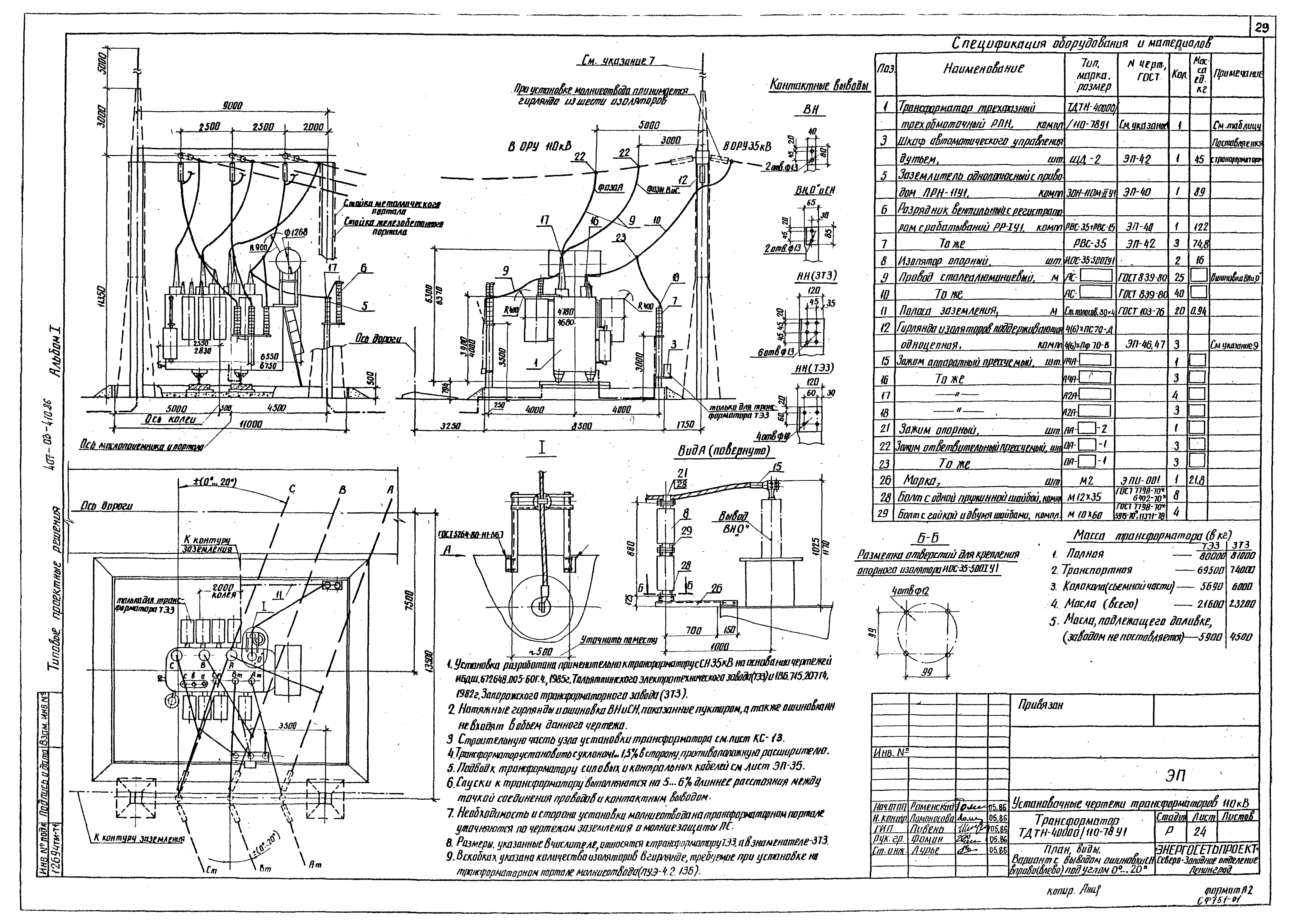
| Оглавление: | Титульный лист Содержание альбома Пояснительная записка ТП 407-03-410.86 ЭП-1…2 Общие данные ТП 407-03-410.86 ЭП-3 Трансформатор ТМН-2500/110-80У1. План, виды ТП 407-03-410.86 ЭП-4 Трансформатор ТМН-6300/110-80У1. План, виды ТП 407-03-410.86 ЭП-5 Трансформатор ТДН-10000/110-82У1. План, виды ТП 407-03-410.86 ЭП-6 Трансформатор ТДН-16000/110-79У1. План, виды ТП 407-03-410.86 ЭП-7 Трансформатор ТРДН-25000/110-79У1. План, виды ТП 407-03-410.86 ЭП-8 Трансформатор ТРДН-40000/110-80У1. План, виды ТП 407-03-410.86 ЭП-9 Трансформатор ТРДН-63000/110-80У1. План, виды ТП 407-03-410.86 ЭП-10 Трансформатор ТРДН-80000/110-81У1. План, виды ТП 407-03-410.86 ЭП-11 Трансформатор ТРДЦН-125000/110-74У1. План, виды ТП 407-03-410.86 ЭП-12 Трансформатор ТМТН-6300/110-81У1. План, виды. Вариант с выводом ошиновки СН вправо (влево) под углом 0…20 градусов ТП 407-03-410.86 ЭП-13 Трансформатор ТМТН-6300/110-81У1. План, виды. Вариант с выводом ошиновки СН вправо (влево) под углом 70…90 градусов на ячейковых порталах 35 кВ ТП 407-03-410.86 ЭП-14 Трансформатор ТМТН-6300/110-81У1. План, виды. Вариант с выводом ошиновки СН вправо (влево) под углом 70…90 градусов на одностоечных опорах 35 кВ ТП 407-03-410.86 ЭП-15 Трансформатор ТДТН-10000/110-79У1. План, виды. Вариант с выводом ошиновки СН вправо (влево) под углом 0…20 градусов ТП 407-03-410.86 ЭП-16 Трансформатор ТДТН-10000/110-79У1. План, виды. Вариант с выводом ошиновки СН вправо (влево) под углом 70…90 градусов на ячейковых порталах 35 кВ ТП 407-03-410.86 ЭП-17 Трансформатор ТДТН-10000/110-79У1. План, виды. Вариант с выводом ошиновки СН вправо (влево) под углом 70…90 градусов на одностоечных опорах 35 кВ ТП 407-03-410.86 ЭП-18 Трансформатор ТДТН-16000/110-90У1. План, виды. Вариант с выводом ошиновки СН вправо (влево) под углом 0…20 градусов ТП 407-03-410.86 ЭП-19 Трансформатор ТДТН-16000/110-80У1. План, виды. Вариант с выводом ошиновки СН вправо (влево) под углом 70…90 градусов на ячейковых порталах 35 кВ ТП 407-03-410.86 ЭП-20 Трансформатор ТДТН-16000/110-80У1. План, виды. Вариант с выводом ошиновки СН вправо (влево) под углом 70…90 градусов на одностоечных опорах 35 кВ ТП 407-03-410.86 ЭП-21 Трансформатор ТДТН-25000/110-79У1. План, виды. Вариант с выводом ошиновки СН вправо (влево) под углом 0…20 градусов ТП 407-03-410.86 ЭП-22 Трансформатор ТДТН-25000/110-79У1. План, виды. Вариант с выводом ошиновки СН вправо (влево) под углом 70…90 градусов на ячейковых порталах 35 кВ ТП 407-03-410.86 ЭП-23 Трансформатор ТДТН-25000/110-79У1. План, виды. Вариант с выводом ошиновки СН вправо (влево) под углом 70…90 градусов на одностоечных опорах 35 кВ ТП 407-03-410.86 ЭП-24 Трансформатор ТДТН-40000/110-78У1. План, виды. Вариант с выводом ошиновки СН вправо (влево) под углом 0…20 градусов ТП 407-03-410.86 ЭП-25 Трансформатор ТДТН-40000/110-78У1. План, виды. Вариант с выводом ошиновки СН вправо (влево) под углом 70…90 градусов на ячейковых порталах 35 кВ ТП 407-03-410.86 ЭП-26 Трансформатор ТДТН-40000/110-78У1. План, виды. Вариант с выводом ошиновки СН вправо (влево) под углом 70…90 градусов на одностоечных опорах 35 кВ ТП 407-03-410.86 ЭП-27 Трансформатор ТДТН-63000/110-81У1. План, виды. Вариант с выводом ошиновки СН вправо (влево) под углом 0…20 градусов ТП 407-03-410.86 ЭП-28 Трансформатор ТДТН-63000/110-81У1. План, виды. Вариант с выводом ошиновки СН вправо (влево) под углом 70…90 градусов на ячейковых порталах 35 кВ ТП 407-03-410.86 ЭП-29 Трансформатор ТДТН-63000/110-81У1. План, виды. Вариант с выводом ошиновки СН вправо (влево) под углом 70…90 градусов на одностоечных опорах 35 кВ ТП 407-03-410.86 ЭП-30 Трансформатор ТДТН-80000/110-83У1. План, виды. Вариант с выводом ошиновки СН вправо (влево) под углом 0…20 градусов ТП 407-03-410.86 ЭП-31 Трансформатор ТДТН-80000/110-83У1. План, виды. Вариант с выводом ошиновки СН вправо (влево) под углом 70…90 градусов на ячейковых порталах 35 кВ ТП 407-03-410.86 ЭП-32 Трансформатор ТДТН-80000/110-83У1. План, виды. Вариант с выводом ошиновки СН вправо (влево) под углом 70…90 градусов на одностоечных опорах 35 кВ ТП 407-03-410.86 ЭП-33 Реактор шунтирующий РОД-33333/110. План, виды ТП 407-03-410.86 ЭП-34 Реакторная группа 3хРОД-33333/110. План, виды ТП 407-03-410.86 ЭП-35 Узел подвода к трансформатору силовых и контрольных кабелей, проложенных в пределах маслоприемника ТП 407-03-410.86 ЭП-36 Взаимное расположение двух трансформаторов и ремонтных площадок. План (Пример) ТП 407-03-410.86 ЭП-37 Пример размещения оборудования на ремонтных площадках. План ТП 407-03-410.86 ЭП-38 Узел поддерживающих гирлянд. Тип 1 ТП 407-03-410.86 ЭП-39 Узел поддерживающих гирлянд. Тип 2 ТП 407-03-410.86 ЭП-40 Установка однополюсного заземлителя ЗОН-110Н-IIУ1 с разрядниками РВС - РВС-15 или РВМ-35 - РВМ-20 на опоре 0-110-1 ТП 407-03-410.86 ЭП-41 Установка однополюсного заземлителя ЗОН-110Н-IIУ1 с разрядниками РВС - РВС-15 или РВМ-35 - РВМ-20 на опоре 0-110-2 ТП 407-03-410.86 ЭП-42 Установка разрядников РВС-35 и шкафов ШД-2, ШД на опорах 0-110-3, 0-110-4, 0-110-5 ТП 407-03-410.86 ЭП-43 Установка шкафа ШД-2 на опоре 0-110-7 ТП 407-03-410.86 ЭП-44 Установка трансформатора тока ТФЗМ-35А-У1 на опорах 0-110-8,9 ТП 407-03-410.86 ЭП-45 Установка шкафа ШДОТ на опоре 0-110-6 ТП 407-03-410.86 ЭП-46 Гирлянды изоляторов 4(6)хПС70-Д,4(6)хПФ70-В поддерживающие. Гирлянда изоляторов для одного провода ТП 407-03-410.86 ЭП-47 Гирлянды изоляторов 4(6)хПС70-Д,4(6)хПФ70-В поддерживающие. Гирлянда изоляторов для двух проводов ТП 407-03-410.86 ЭП-48 Гирлянды изоляторов 4(6)хПС70-Д,4(6)хПФ70-В поддерживающие. Гирлянда изоляторов для одного провода с одним промежуточным звеном ТП 407-03-410.86 ЭП-49 Гирлянды изоляторов 4(6)хПС70-Д,4(6)хПФ70-В поддерживающие. Гирлянда изоляторов для двух проводов с одним промежуточным звеном ТП 407-03-410.86 ЭП-50 Гирлянды изоляторов 4(6)хПС70-Д,4(6)хПФ70-В поддерживающие. Гирлянда изоляторов для одного провода с двумя промежуточным звеньями ТП 407-03-410.86 ЭП-51 Гирлянды изоляторов 4(6)хПС70-Д,4(6)хПФ70-В поддерживающие. Гирлянда изоляторов для двух проводов с двумя промежуточным звеньями ТП 407-03-410.86 ЭПИ-001 Марка М(М1, М2, М3) Сводная спецификация оборудования |
| Разработан: | Северо-западное отделение института Энергосетьпроект |
| Утверждён: | 16.06.1986 Минэнерго СССР (USSR Minenergo 7) |























































