Скачать Типовые проектные решения 902-03-37.85 Альбом 2. ЧертежиДата актуализации: 01.01.2021
|
| Обозначение: | Типовые проектные решения 902-03-37.85 |
| Обозначение англ: | 902-03-37.85 |
| Статус: | справочные материалы, мп, тпр |
| Название рус.: | Альбом 2. Чертежи |
| Дата добавления в базу: | 01.09.2013 |
| Дата актуализации: | 01.01.2021 |
| Дата введения: | 01.09.1985 |
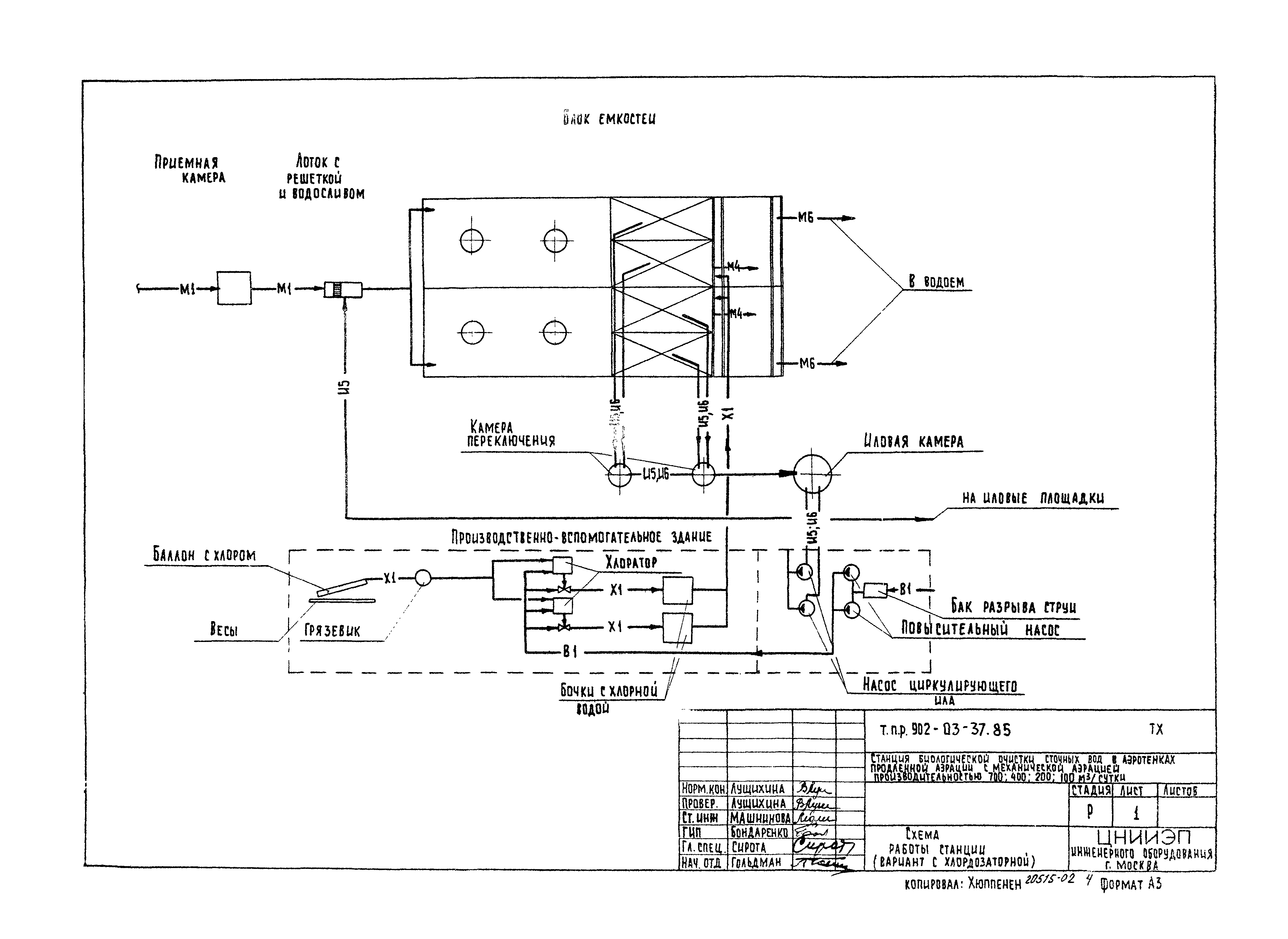
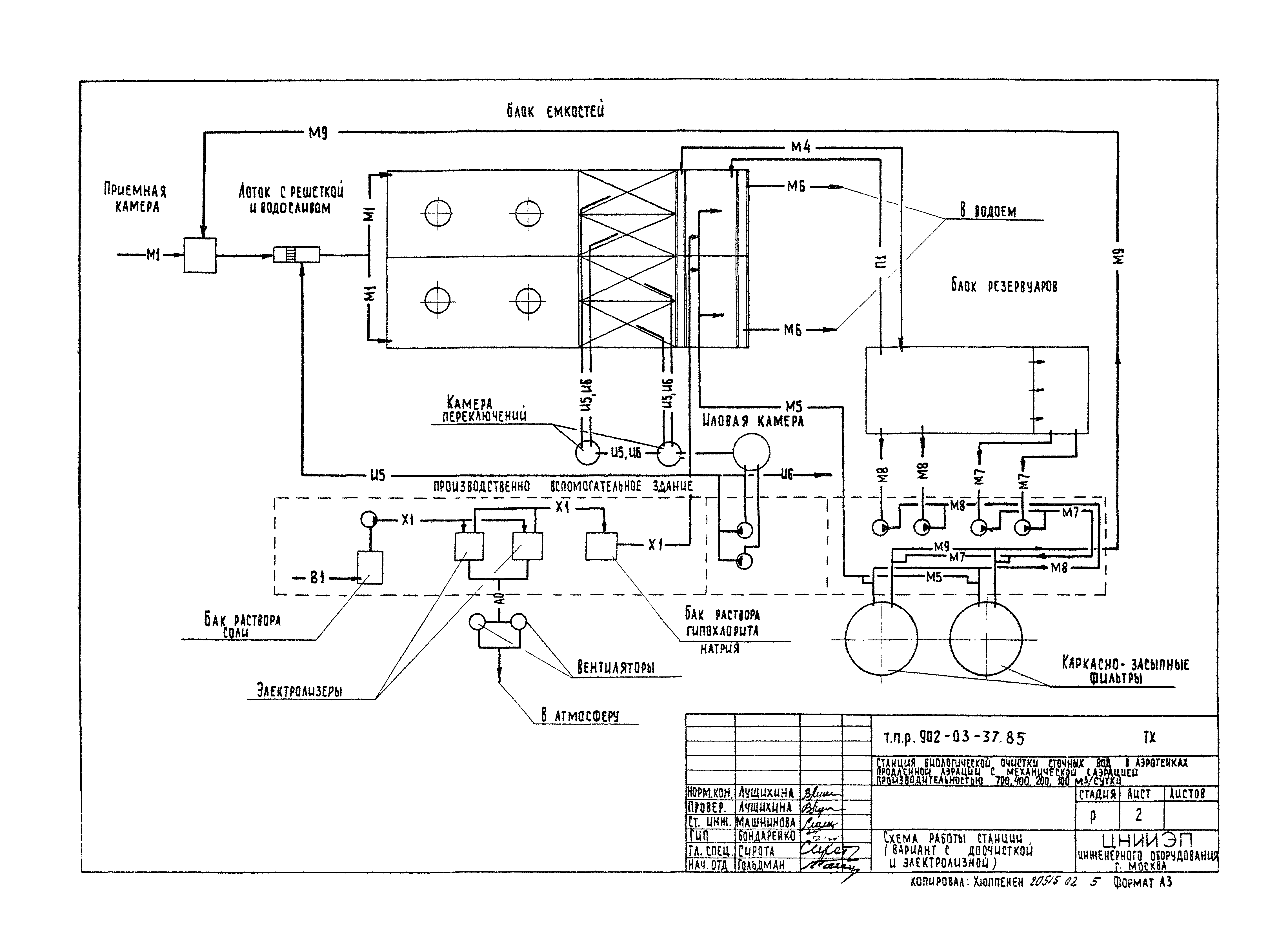
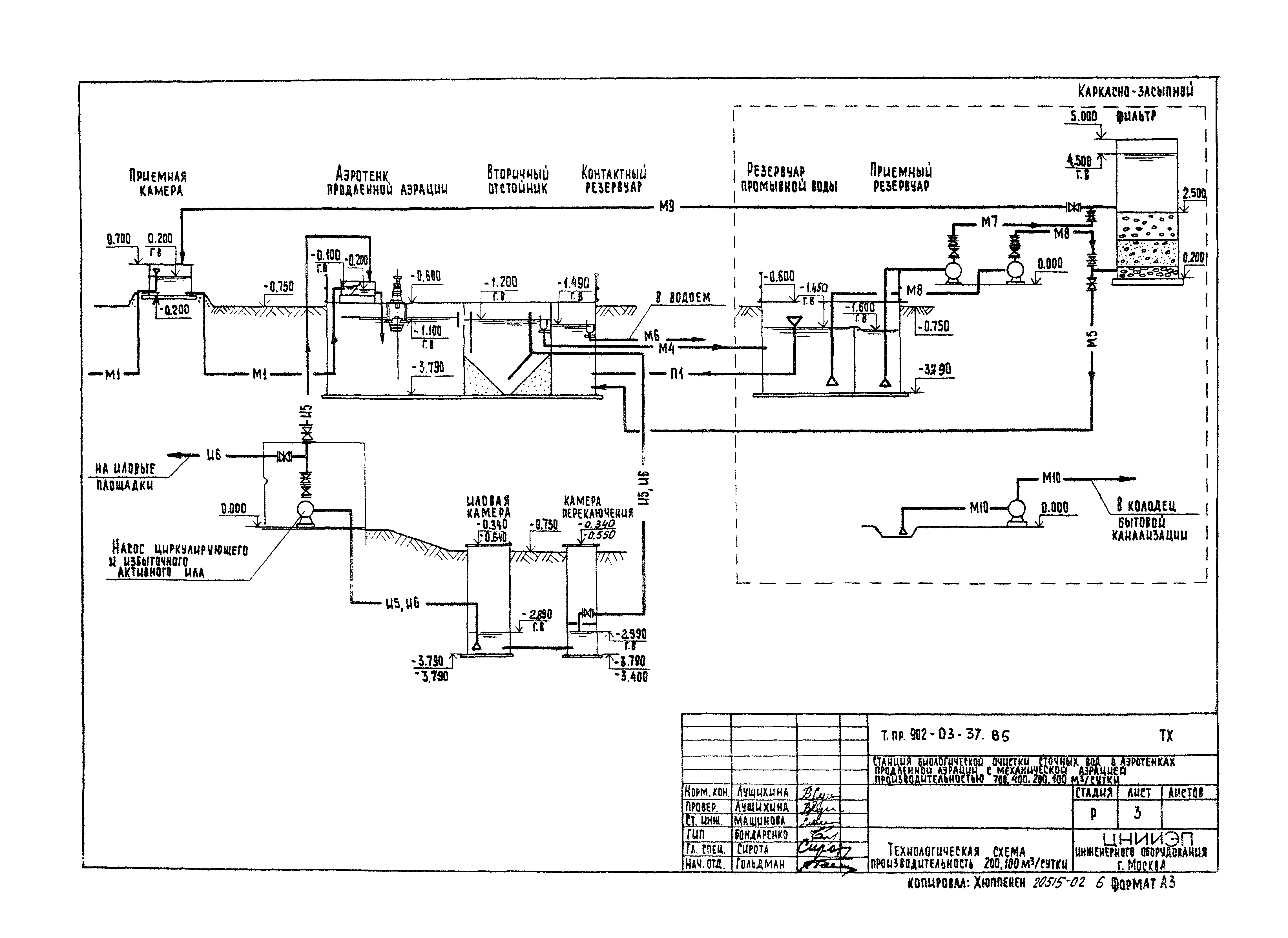
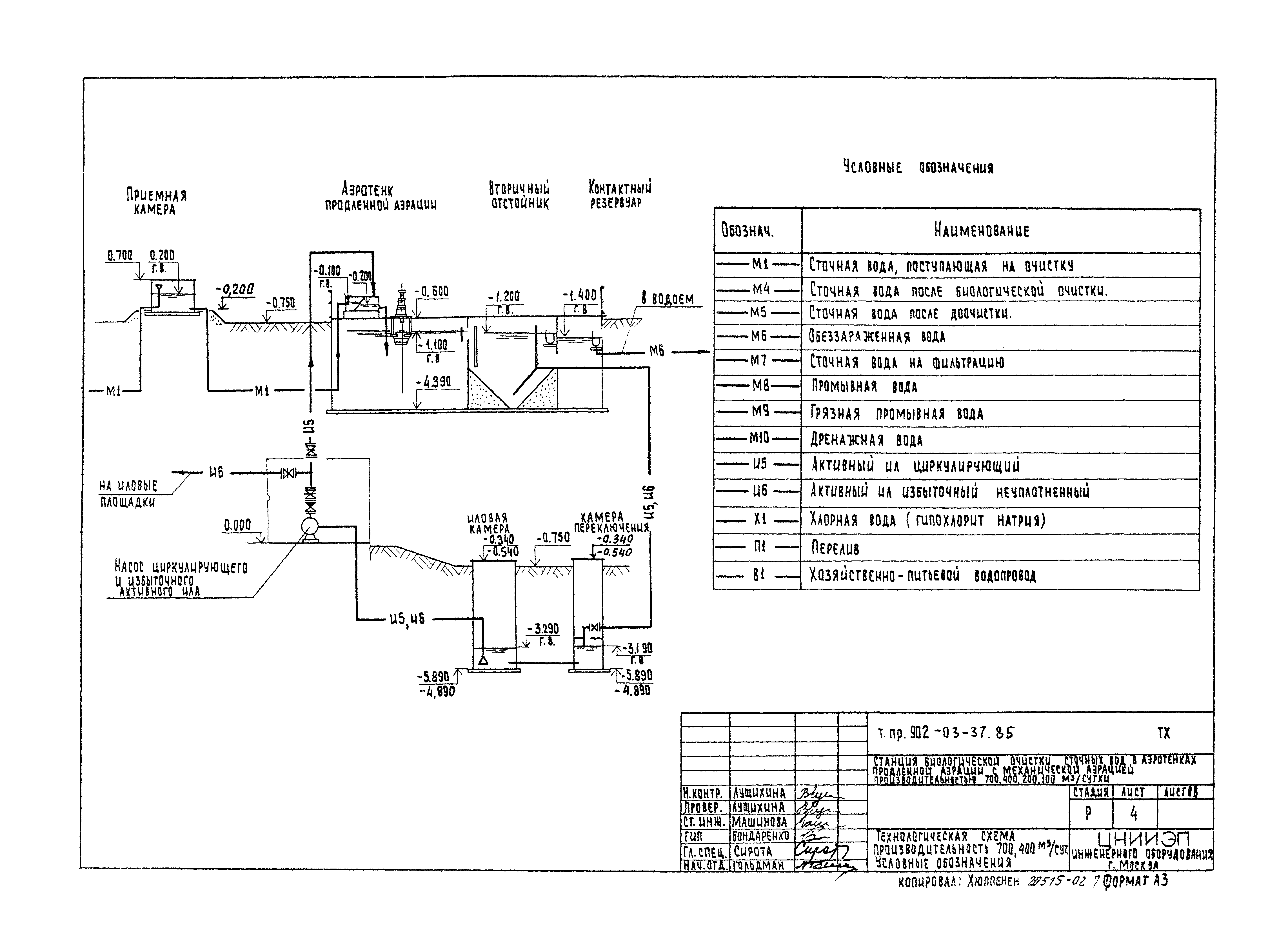
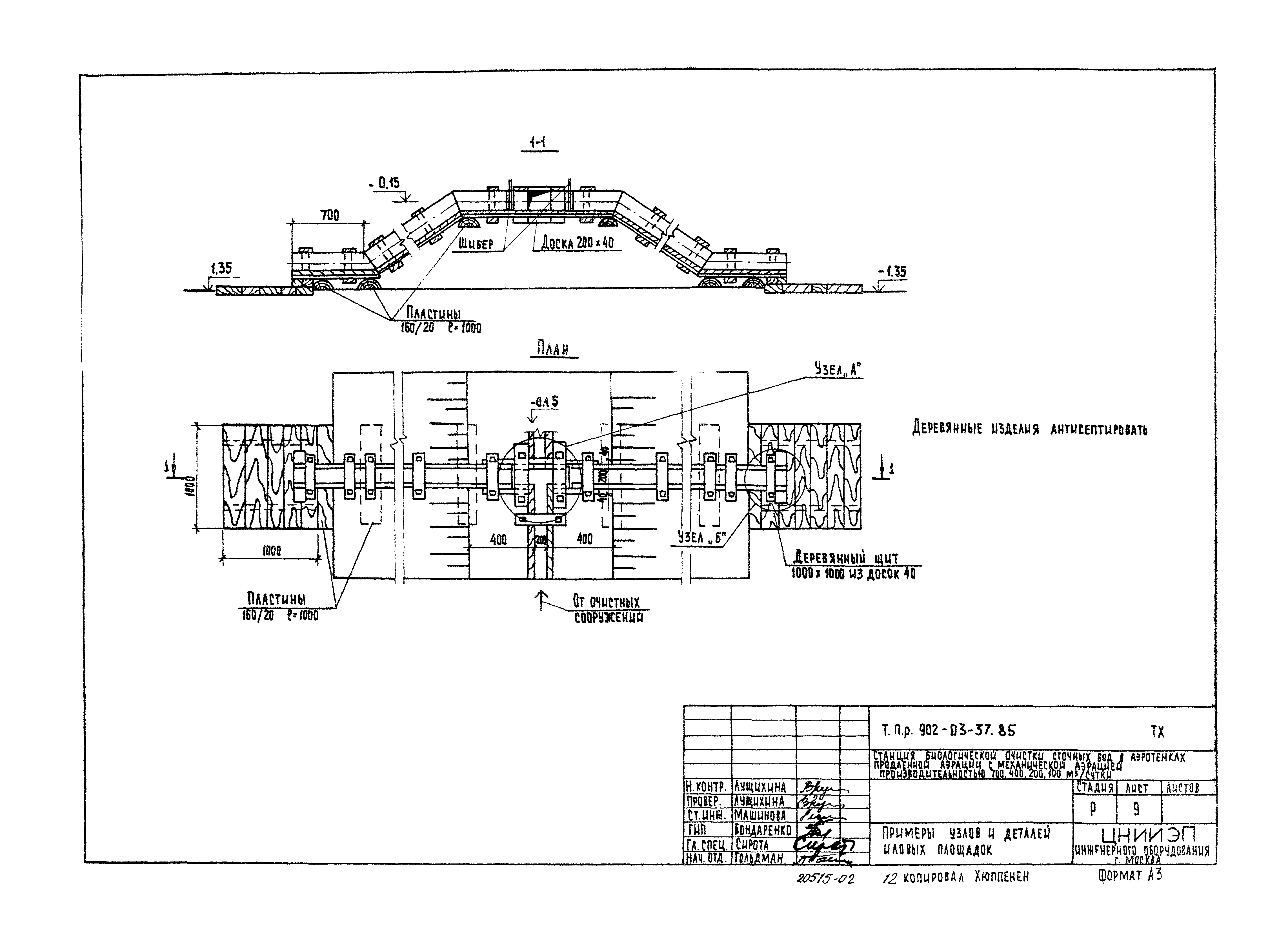
| Оглавление: | Содержание альбома Схема работы станции (вариант с хлордозаторной) Схема работы станции (вариант с доочисткой и электролизной) Технологическая схема (производительность 200, 100 куб. м/сутки) Технологическая схема (производительность 700, 400 куб. м/сутки). Условные обозначения Примерный генплан (производительность 200, 100 куб. м/сутки) Примерный генплан (производительность 700, 400 куб. м/сутки) Примерный генплан (производительность 200, 100 куб. м/сутки вариант с доочисткой) Примерный генплан (производительность 700, 400 куб. м/сутки вариант с доочисткой) Примеры узлов и деталей иловых площадок Сборный колодец иловой воды |
| Разработан: | ЦНИИЭП |
| Утверждён: | 02.11.1984 Госгражданстрой (Gosgrazhdanstroy 316) |














