Скачать Типовой проект 902-3-38.85 Альбом 2. Технологические, строительные решения. Нестандартизированное оборудование. Спецификации оборудованияДата актуализации: 01.01.2021
|
| Обозначение: | Типовой проект 902-3-38.85 |
| Обозначение англ: | 902-3-38.85 |
| Статус: | не определен законодательством |
| Название рус.: | Альбом 2. Технологические, строительные решения. Нестандартизированное оборудование. Спецификации оборудования |
| Дата добавления в базу: | 01.09.2013 |
| Дата актуализации: | 01.01.2021 |
| Дата введения: | 20.03.1985 |
| Дата окончания срока действия: | 30.06.2003 |
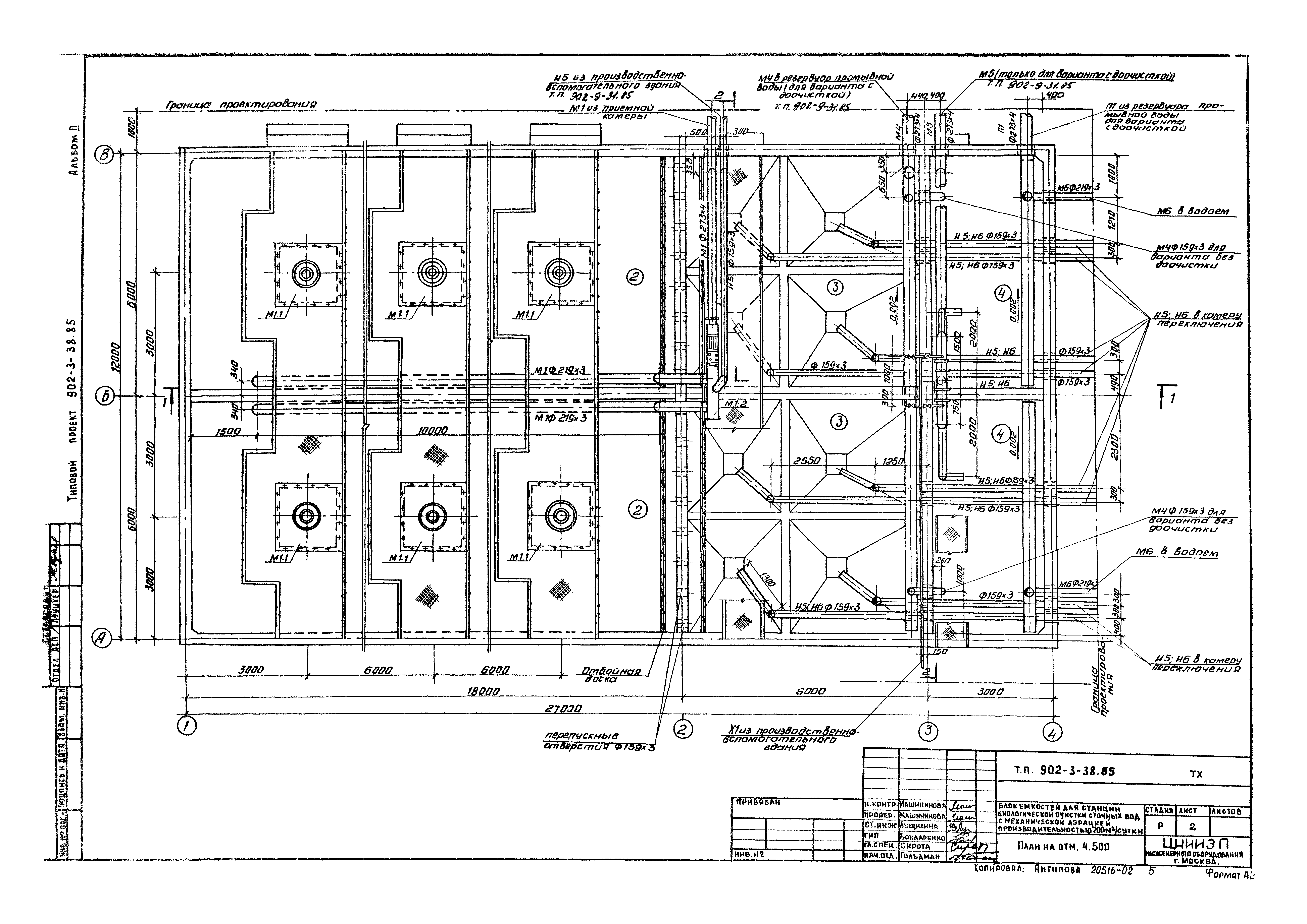
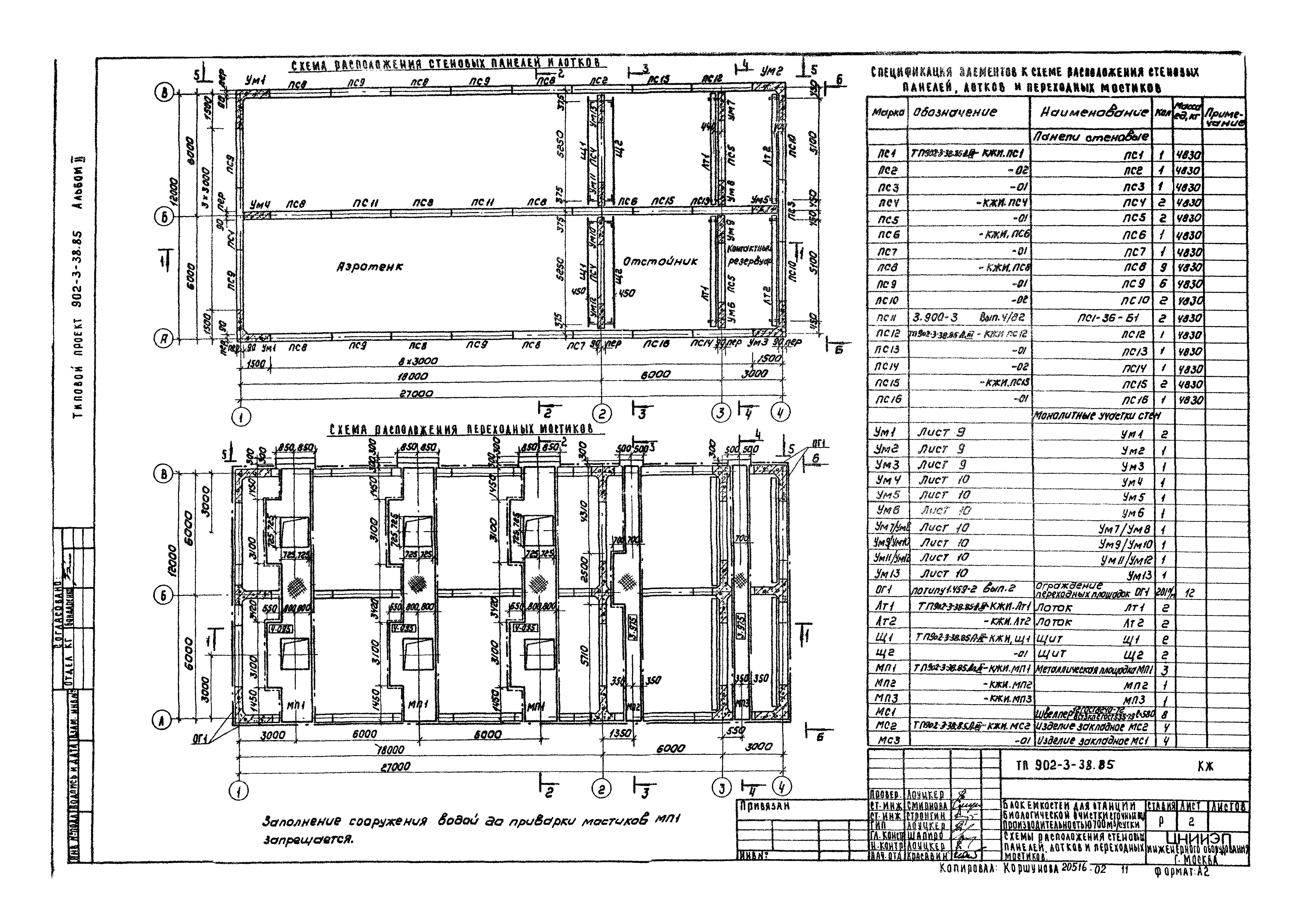
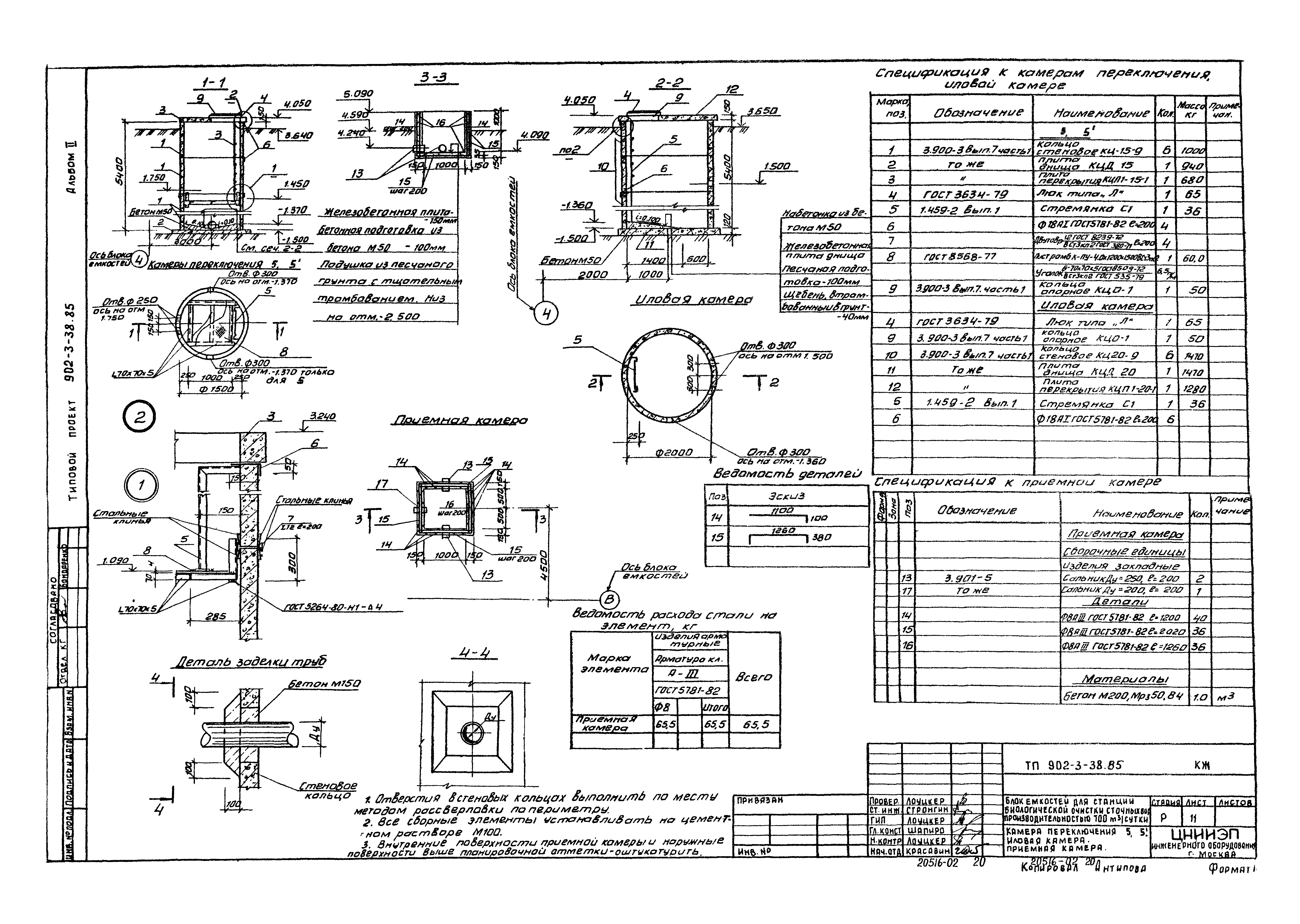
| Оглавление: | Содержание альбома Технологические решения Общие данные План на отм. 4,500 Разрезы 1-1, 2-2 Схемы трубопроводов М1, М4, М5, М6, М9, И5, И6, Х1 Камера переключения 5,5. Иловая камера. Приемная камера. Планы. Разрезы. Схемы трубопроводов Спецификация оборудования к основному комплекту чертежей марки ТХ Строительные решения Общие данные Схемы расположения стеновых панелей, лотков и переходных мостиков Разрезы Узлы Днище. Опалубочный чертеж. Разрезы. Узлы Днище. Армирование. Схема расположения верхних и нижних сеток Днище. Армирование. Узлы. Разрезы Монолитные участки стен. Опалубочный чертеж Монолитные участки стен. Ум1…Ум3. Армирование Монолитные участки стен. Ум4…Ум13. Армирование Камера переключения 5,5. Иловая камера. Приемная камера Нестандартизированное оборудование Лоток с решеткой и водосливом. Эскизный чертеж общего вида. Черт. 1426.00.000 Водослив. Черт. 1326.00.001. Решетка. Эскизный чертеж общего вида. Черт. 1426.02.000 Корпус. Эскизный чертеж общего вида. Черт. 1426.01.000 Лоток. Эскизный чертеж общего вида. Черт. 1426.03.000 |
| Разработан: | ЦНИИЭП |
| Утверждён: | 02.11.1984 Госгражданстрой (Gosgrazhdanstroy 316) |
























