Скачать Серия 3.501.3-186.09 Выпуск 0. Материалы для проектированияДата актуализации: 01.01.2021
|
| Обозначение: | Серия 3.501.3-186.09 |
| Обозначение англ: | Series 3.501.3-186.09 |
| Статус: | не определен законодательством |
| Название рус.: | Выпуск 0. Материалы для проектирования |
| Дата добавления в базу: | 01.09.2013 |
| Дата актуализации: | 01.01.2021 |
| Дата введения: | 01.01.2010 |
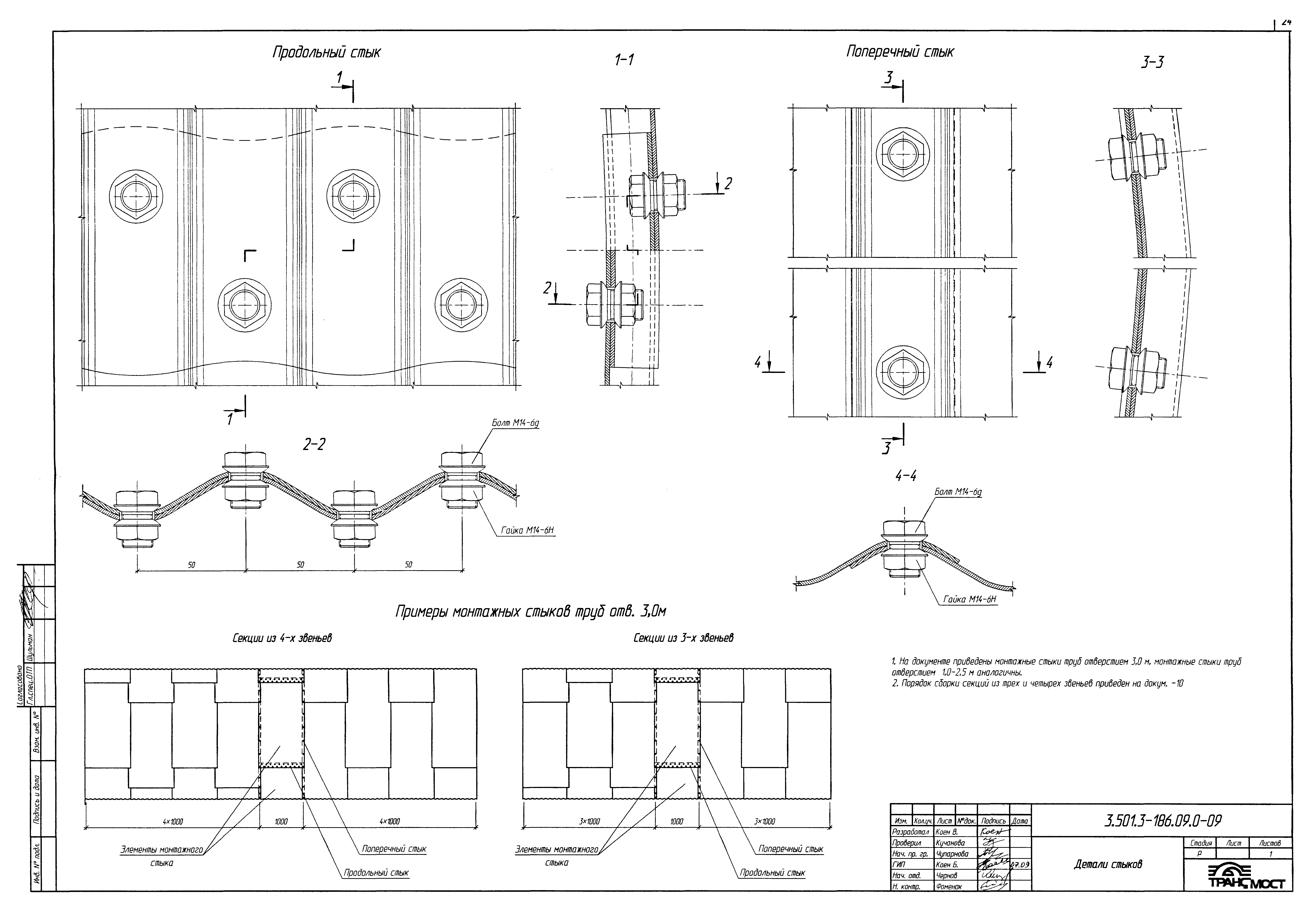
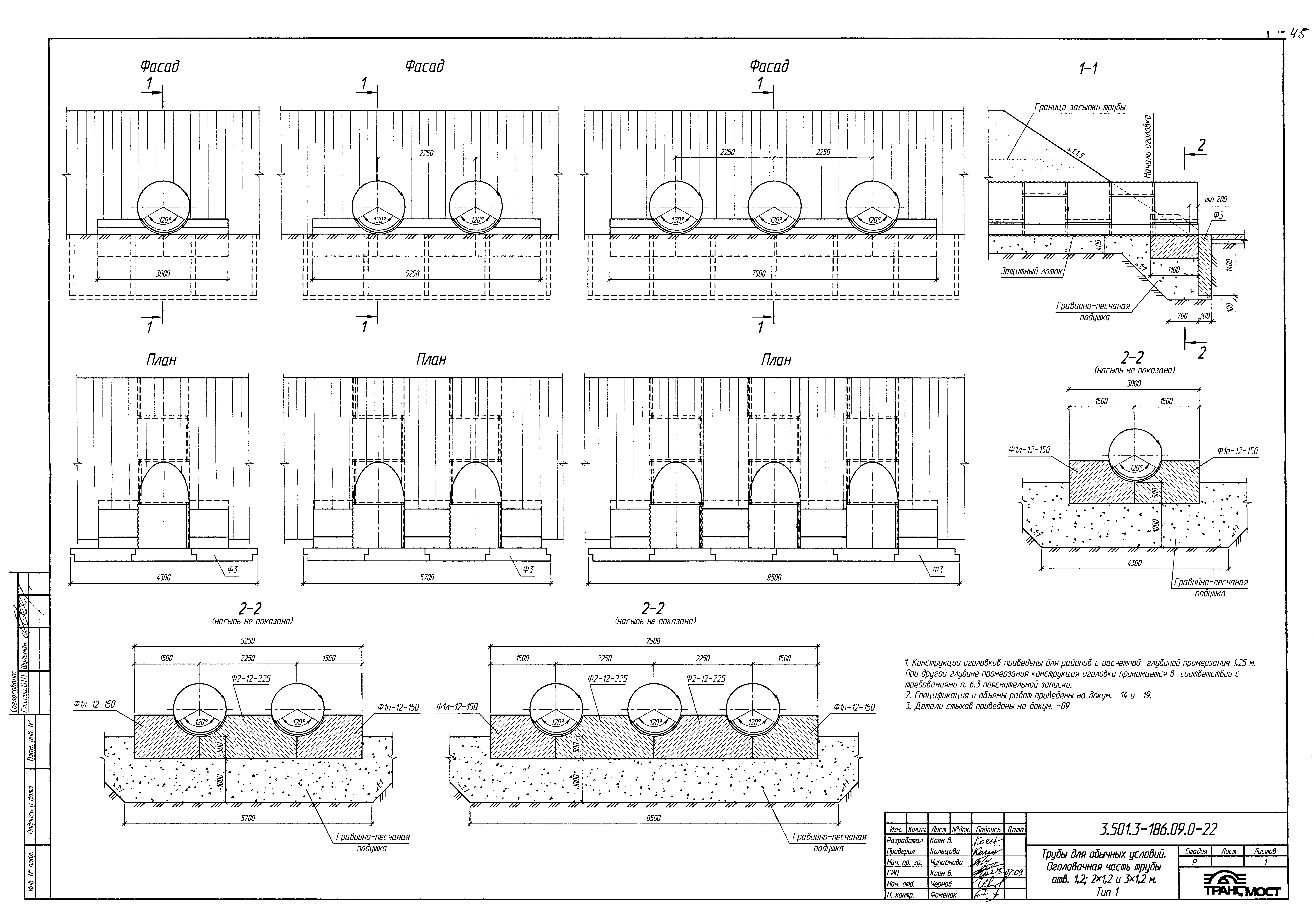
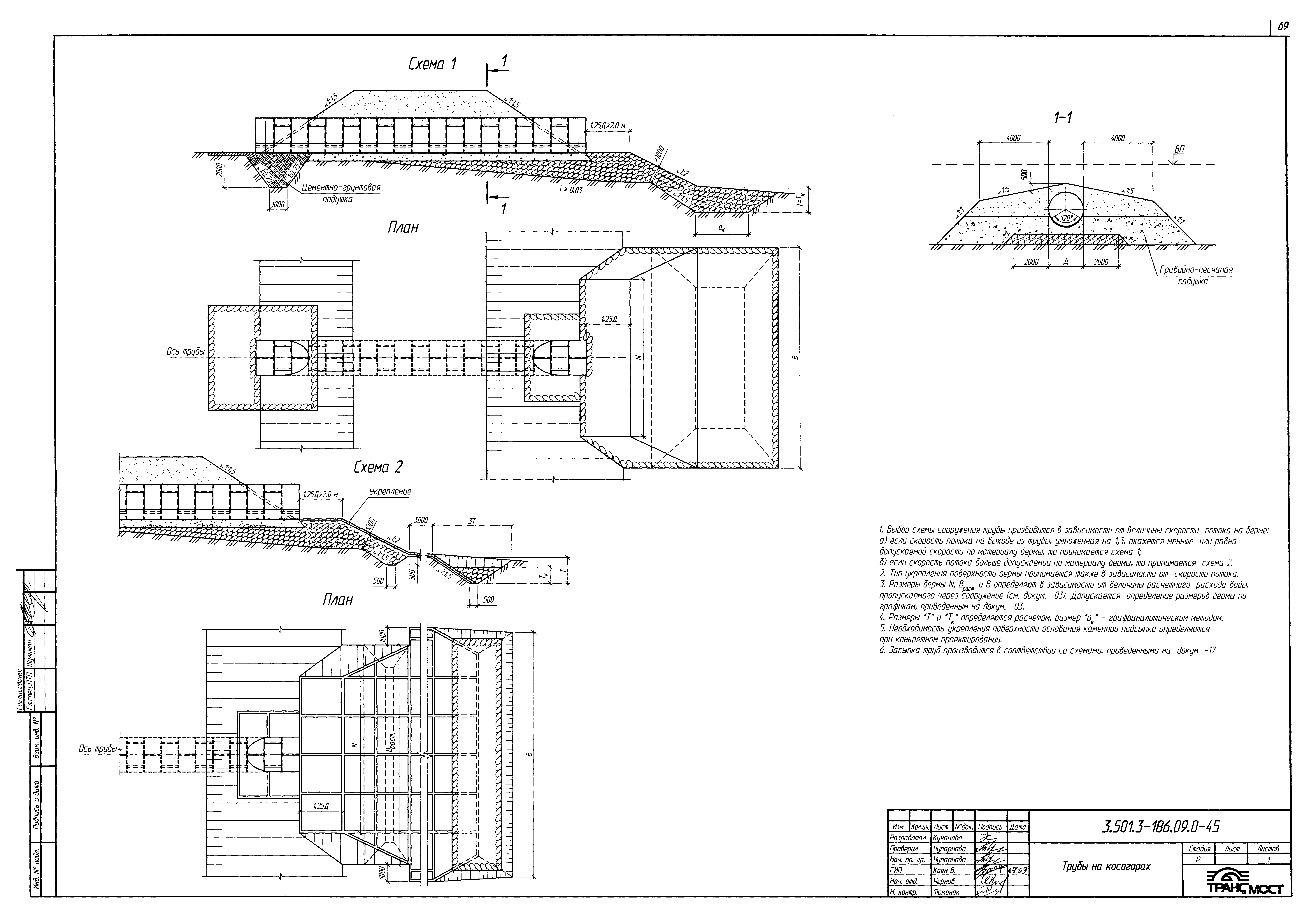
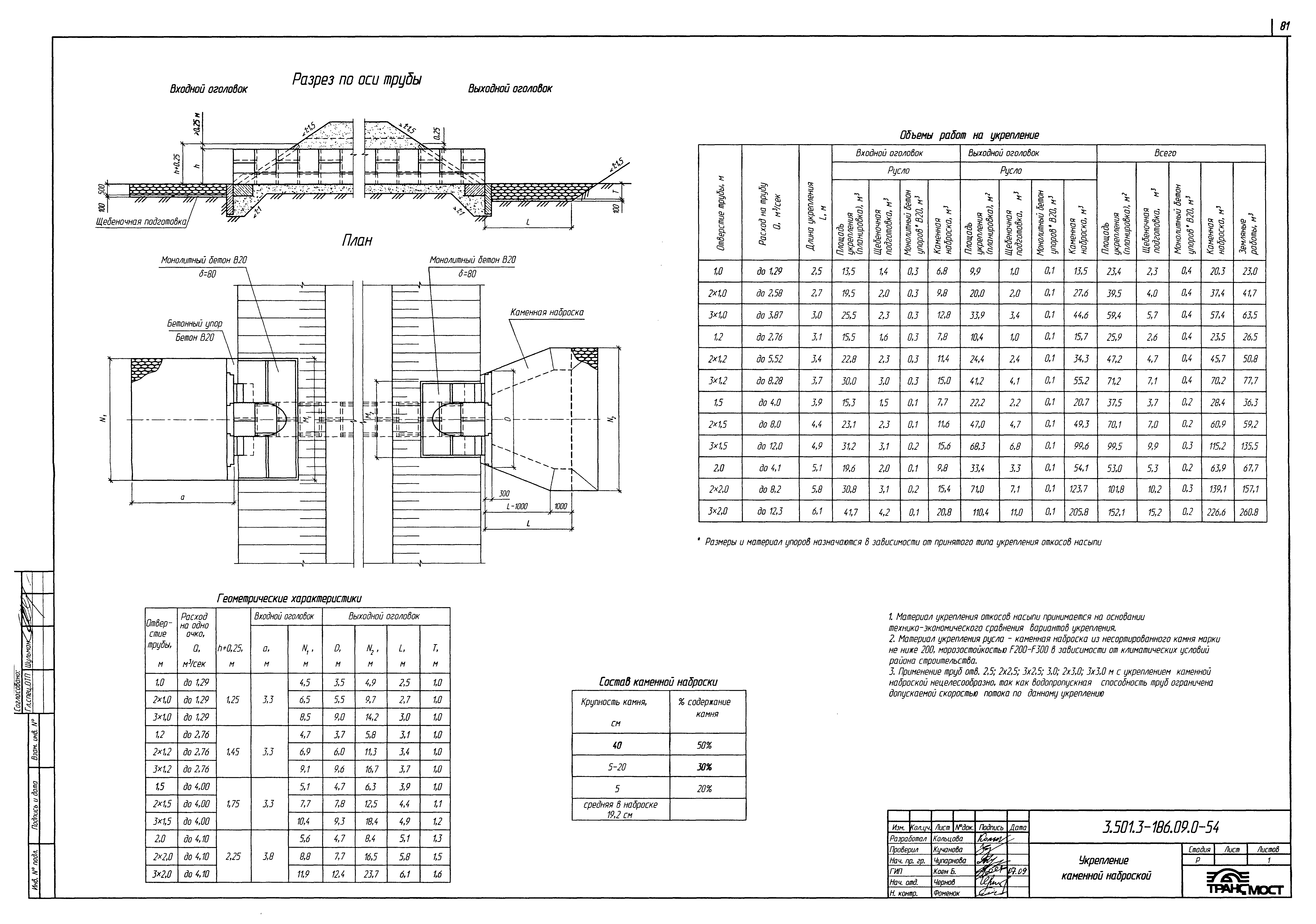
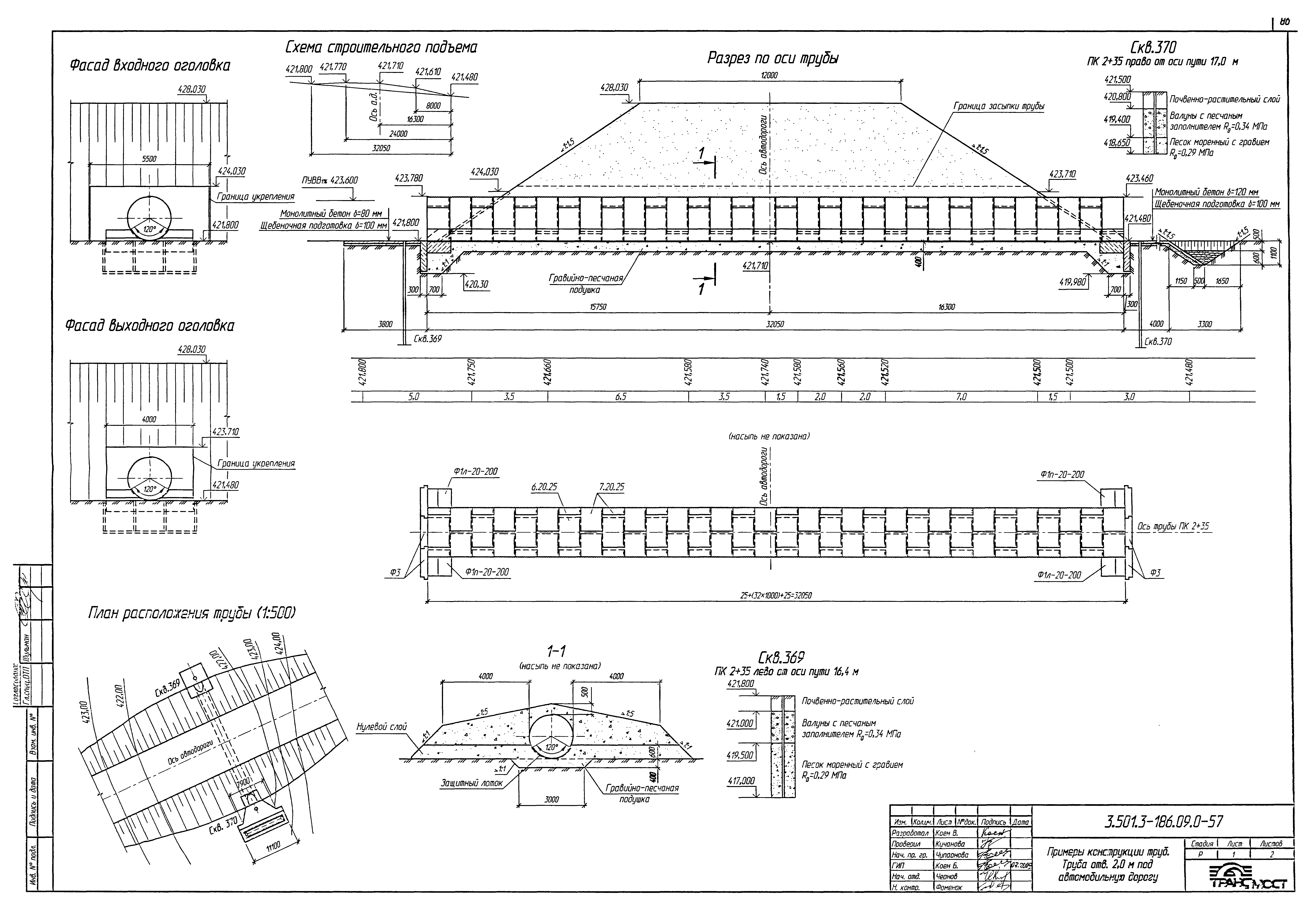
| Оглавление: | 3.501.3-186.09.0-ПЗ Пояснительная записка 3.501.3-186.09.0-01 Гидравлические расчеты 3.501.3-186.09.0-02 Графики водопропускной способности труб 3.501.3-186.09.0-03 Гидравлические расчеты труб на каменной подсыпке 3.501.3-186.09.0-04 Графики расчетных давлений на грунт 3.501.3-186.09.0-05 Номенклатура металлических элементов труб 3.501.3-186.09.0-06 Номенклатура бетонных блоков 3.501.3-186.09.0-07 Блок бетонный Ф 3.501.3-186.09.0-08 Сборный защитный лоток 3.501.3-186.09.0-09 Детали стыков 3.501.3-186.09.0-10 Порядок сборки трубы 3.501.3-186.09.0-11 Спецификация металла на секцию трубы длиной 1х1000 мм 3.501.3-186.09.0-12 Спецификация металла на секцию трубы длиной 3х1000 мм 3.501.3-186.09.0-13 Секция труб 3.501.3-186.09.0-14 Спецификация металла на оголовочную часть трубы. Типы 1 и 1а 3.501.3-186.09.0-15 Спецификация металла на оголовочную часть трубы. Типы 2 и 2а 3.501.3-186.09.0-16 Развертки оголовочных частей труб отв. 2.0;2.5 и 3.0 м. Типы 2 и 2а 3.501.3-186.09.0-17 Трубы для обычных условий. Средняя часть трубы. Схема засыпки трубы 3.501.3-186.09.0-18 Трубы для обычных условий. Ведомость объемов работ на среднюю часть трубы 3.501.3-186.09.0-19 Трубы для обычных условий. Ведомость объемов работ на оголовочную часть трубы. Типы 1 и 1а 3.501.3-186.09.0-20 Трубы для обычных условий. Оголовочная часть трубы отв. 1.0;2х1.0 и 3х1.0 м. Тип 1 3.501.3-186.09.0-21 Трубы для обычных условий. Оголовочная часть трубы отв. 1.0;2х1.0 и 3х1.0 м. Тип 1а 3.501.3-186.09.0-22 Трубы для обычных условий. Оголовочная часть трубы отв. 1.2;2х1.2 и 3х1.2 м. Тип 1 3.501.3-186.09.0-23 Трубы для обычных условий. Оголовочная часть трубы отв. 1.2;2х1.2 и 3х1.2 м. Тип 1а 3.501.3-186.09.0-24 Трубы для обычных условий. Оголовочная часть трубы отв. 1.5;2х1.5 и 3х1.5 м. Тип 1 3.501.3-186.09.0-25 Трубы для обычных условий. Оголовочная часть трубы отв. 1.5;2х1.5 и 3х1.5 м. Тип 1а 3.501.3-186.09.0-26 Трубы для обычных условий. Оголовочная часть трубы отв. 2.0;2х2.0 и 3х2.0 м. Тип 1 3.501.3-186.09.0-27 Трубы для обычных условий. Оголовочная часть трубы отв. 2.0;2х2.0 и 3х2.0 м. Тип 1а 3.501.3-186.09.0-28 Трубы для обычных условий. Ведомость объемов работ на оголовочную часть трубы. Типы 2 и 2а 3.501.3-186.09.0-29 Трубы для обычных условий. Оголовочная часть трубы отв. 2.0;2х2.0 и 3х2.0 м. Тип 2 3.501.3-186.09.0-30 Трубы для обычных условий. Оголовочная часть трубы отв. 2.0;2х2.0 и 3х2.0 м. Тип 2а 3.501.3-186.09.0-31 Трубы для обычных условий. Оголовочная часть трубы отв. 2.5;2х2.5 и 3х2.5 м. Тип 2 3.501.3-186.09.0-32 Трубы для обычных условий. Оголовочная часть трубы отв. 2.5;2х2.5 и 3х2.5 м. Тип 2а 3.501.3-186.09.0-33 Трубы для обычных условий. Оголовочная часть трубы отв. 3.0;2х3.0 и 3х3.0 м. Тип 2 3.501.3-186.09.0-34 Трубы для обычных условий. Оголовочная часть трубы отв. 3.0;2х3.0 и 3х3.0 м. Тип 2а 3.501.3-186.09.0-35 Трубы для обычных условий. Пример оголовочной части трубы отв. 1.5 м при глубине промерзания 2.0 м. Тип 1а 3.501.3-186.09.0-36 Трубы северного исполнения. Средняя часть трубы. Схема засыпки трубы 3.501.3-186.09.0-37 Трубы северного исполнения. Ведомость объемов работ на среднюю часть трубы 3.501.3-186.09.0-38 Трубы северного исполнения. Ведомость объемов работ на оголовочную часть трубы. Тип 1а 3.501.3-186.09.0-39 Трубы северного исполнения. Оголовочная часть трубы отв. 1.5;2х1.5 и 3х1.5 м. Тип 1а 3.501.3-186.09.0-40 Трубы северного исполнения. Оголовочная часть трубы отв. 2.0;2х2.0 и 3х2.0 м. Тип 1а 3.501.3-186.09.0-41 Трубы северного исполнения. Ведомость объемов работ на оголовочную часть трубы. Тип 2а 3.501.3-186.09.0-42 Трубы северного исполнения. Оголовочная часть трубы отв. 2.0;2х2.0 и 3х2.0 м. Тип 2а 3.501.3-186.09.0-43 Трубы северного исполнения. Оголовочная часть трубы отв. 2.5;2х2.5 и 3х2.5 м. Тип 2а 3.501.3-186.09.0-44 Трубы северного исполнения. Оголовочная часть трубы отв. 3.0;2х3.0 и 3х3.0 м. Тип 2а 3.501.3-186.09.0-45 Трубы на косогорах 3.501.3-186.09.0-46 Трубы в узких логах и прорезях. Схемы расположения 3.501.3-186.09.0-47 Укрепление монолитным бетоном. Конструкция укреплений 3.501.3-186.09.0-48 Укрепление монолитным бетоном. Ведомость объемов работ 3.501.3-186.09.0-49 Укрепление сборными блоками П-1. Конструкция укреплений 3.501.3-186.09.0-50 Укрепление сборными блоками П-1. Ведомость объемов работ 3.501.3-186.09.0-51 Укрепление сборными блоками ГП. Конструкция укреплений 3.501.3-186.09.0-52 Укрепление сборными блоками ГП. Ведомость объемов работ 3.501.3-186.09.0-53 Конструкция конца укрепления 3.501.3-186.09.0-54 Укрепление каменной наброской 3.501.3-186.09.0-55 Пример конструкции трубы отв. 2.5 м на слабых грунтах под железную дорогу 3.501.3-186.09.0-56 Пример конструкции трубы отв. 1.5 м на косогоре под железную дорогу 3.501.3-186.09.0-57 Пример конструкции трубы отв. 2.0 м под автомобильную дорогу 3.501.3-186.09.0-58 Пример конструкции трубы отв. 2х1.5 м под автомобильную дорогу |
| Разработан: | ОАО Трансмост |
| Утверждён: | 28.08.2009 ЗАО Домодедовский завод металлоконструкций Метако (01/821) |
| Издан: | Информационный бюллетень о нормативной, методической и типовой проектной документации ФГУП ЦПП (2009 г. (12)) |
























































































