Скачать Серия 1.460-4 Выпуск 1. Покрытия пролетами 18; 24; 30 и 36 м для зданий, возводимых в несейсмических районах с расчетными температурами минус 40 градусов Цельсия и выше. Чертежи КМДата актуализации: 01.01.2021
|
| Обозначение: | Серия 1.460-4 |
| Обозначение англ: | Series 1.460-4 |
| Статус: | заменен |
| Название рус.: | Выпуск 1. Покрытия пролетами 18; 24; 30 и 36 м для зданий, возводимых в несейсмических районах с расчетными температурами минус 40 градусов Цельсия и выше. Чертежи КМ |
| Дата добавления в базу: | 01.09.2013 |
| Дата актуализации: | 01.01.2021 |
| Дата введения: | 01.10.1973 |
| Дата окончания срока действия: | 01.04.1981 |
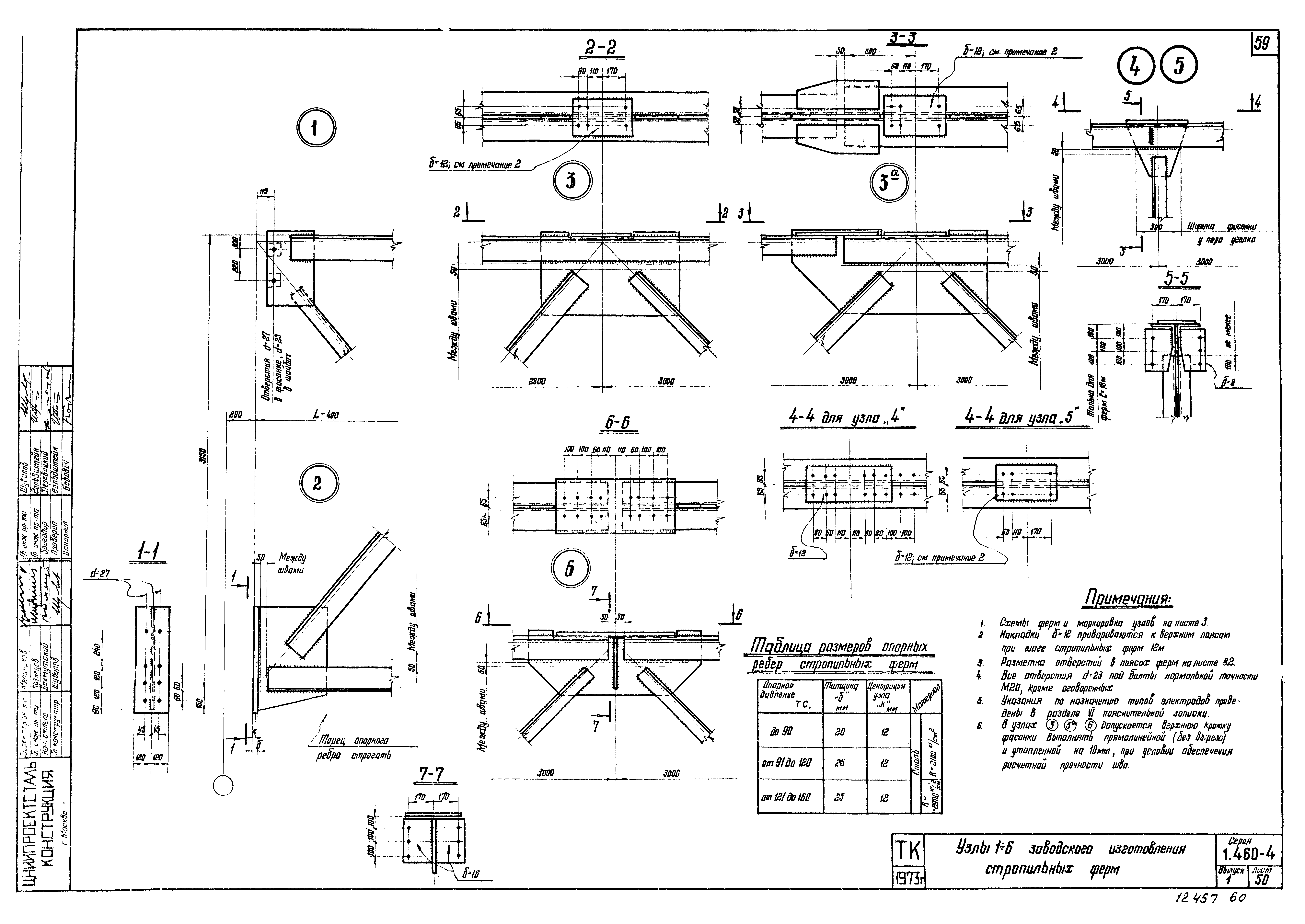
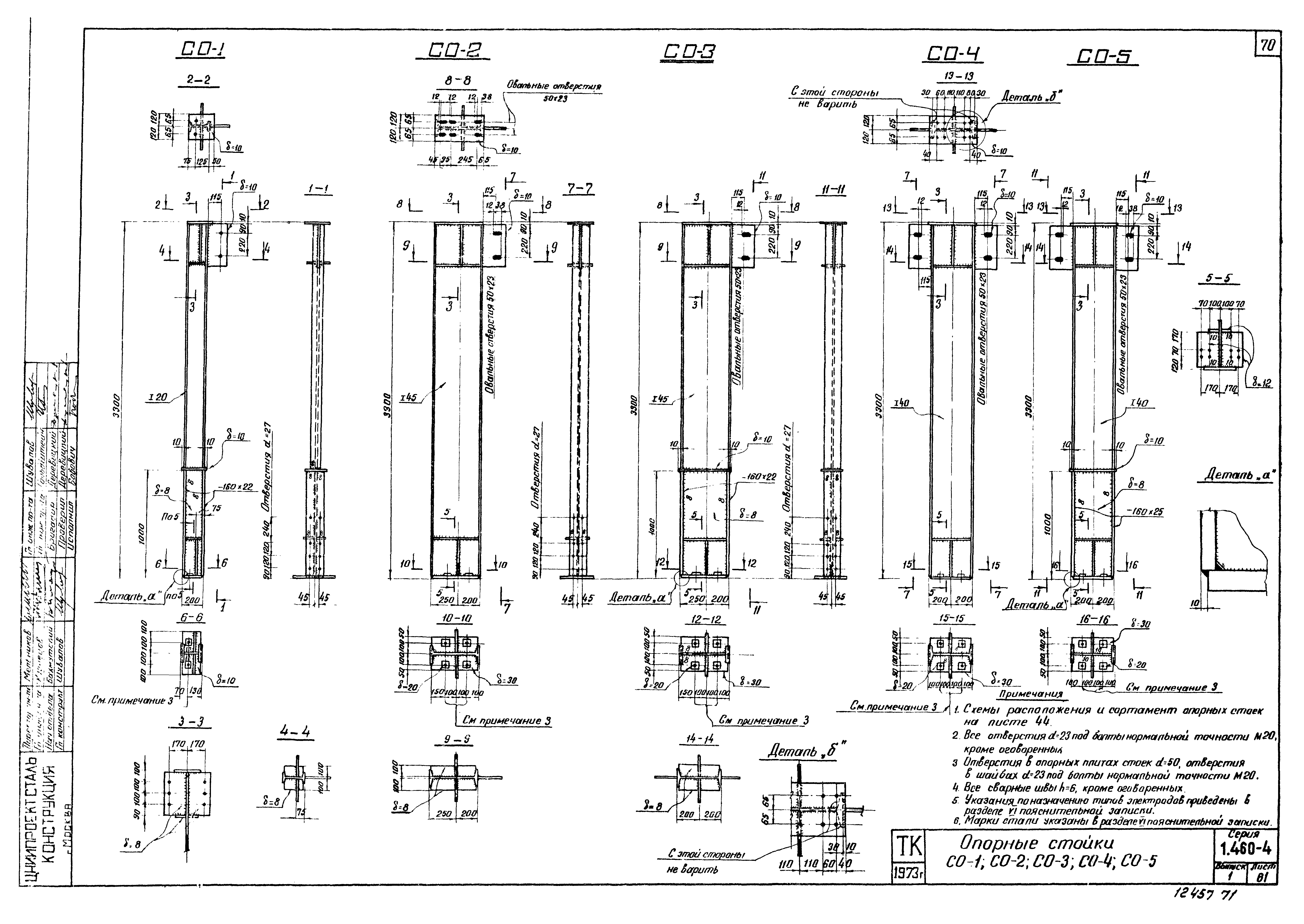
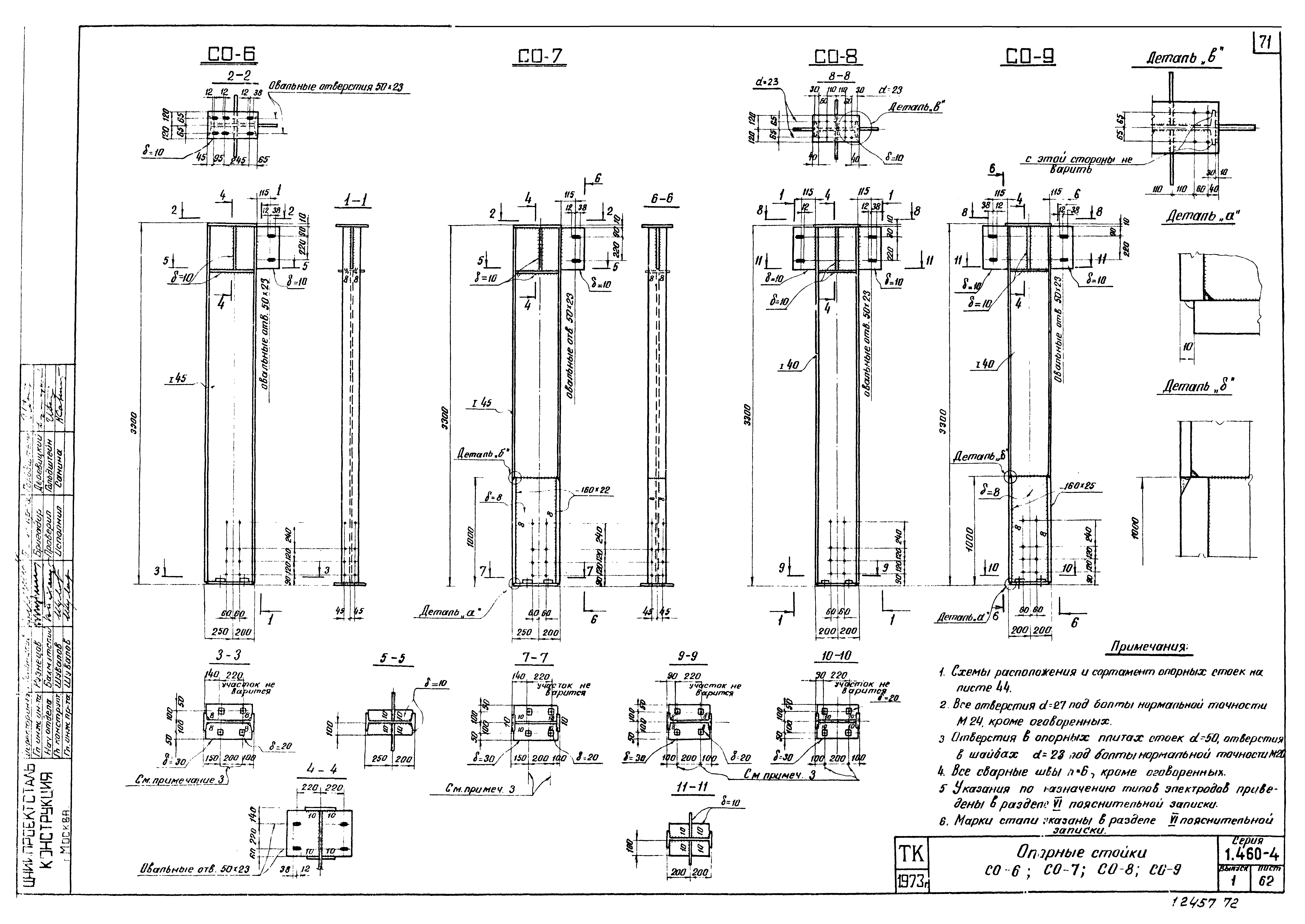
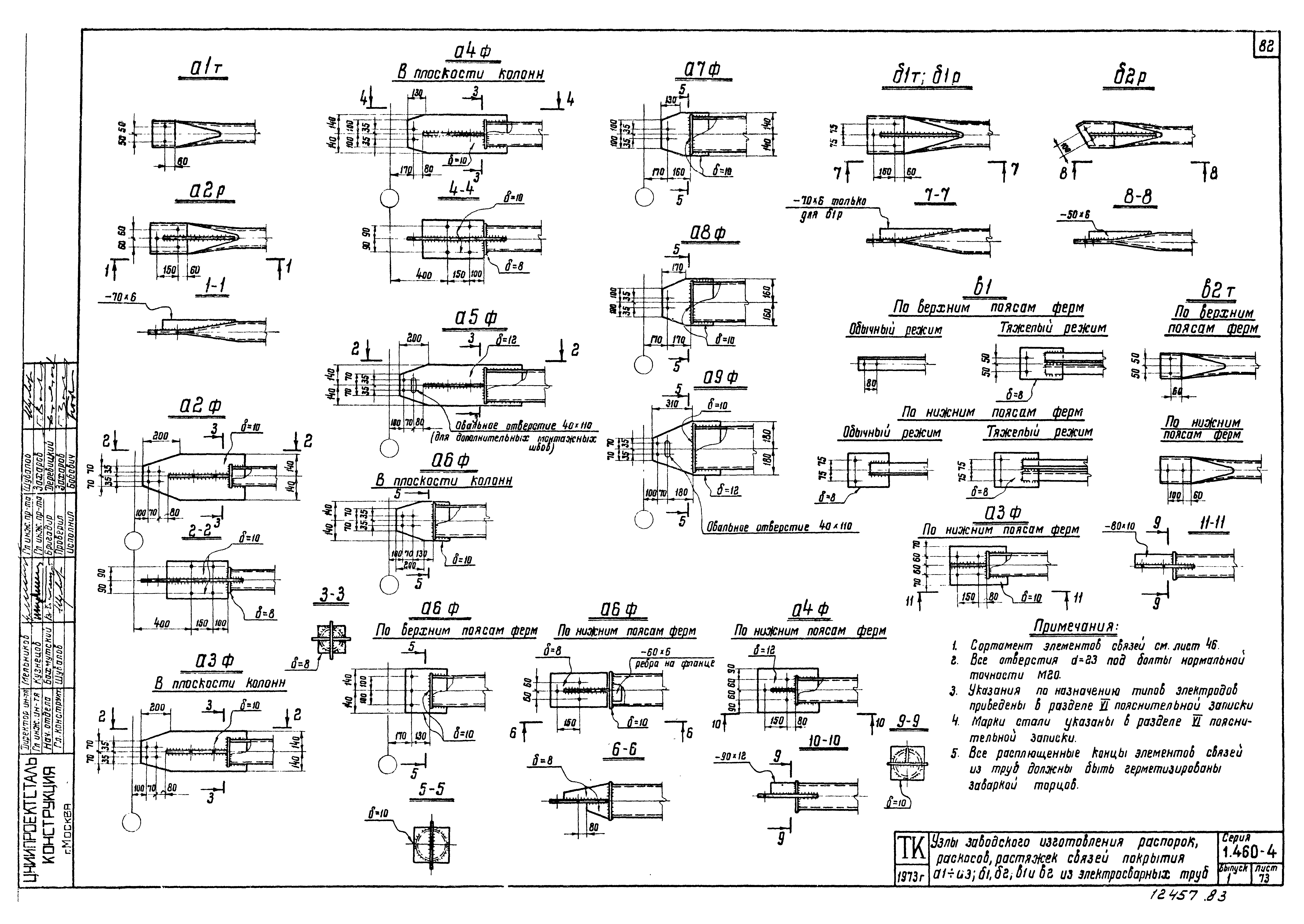
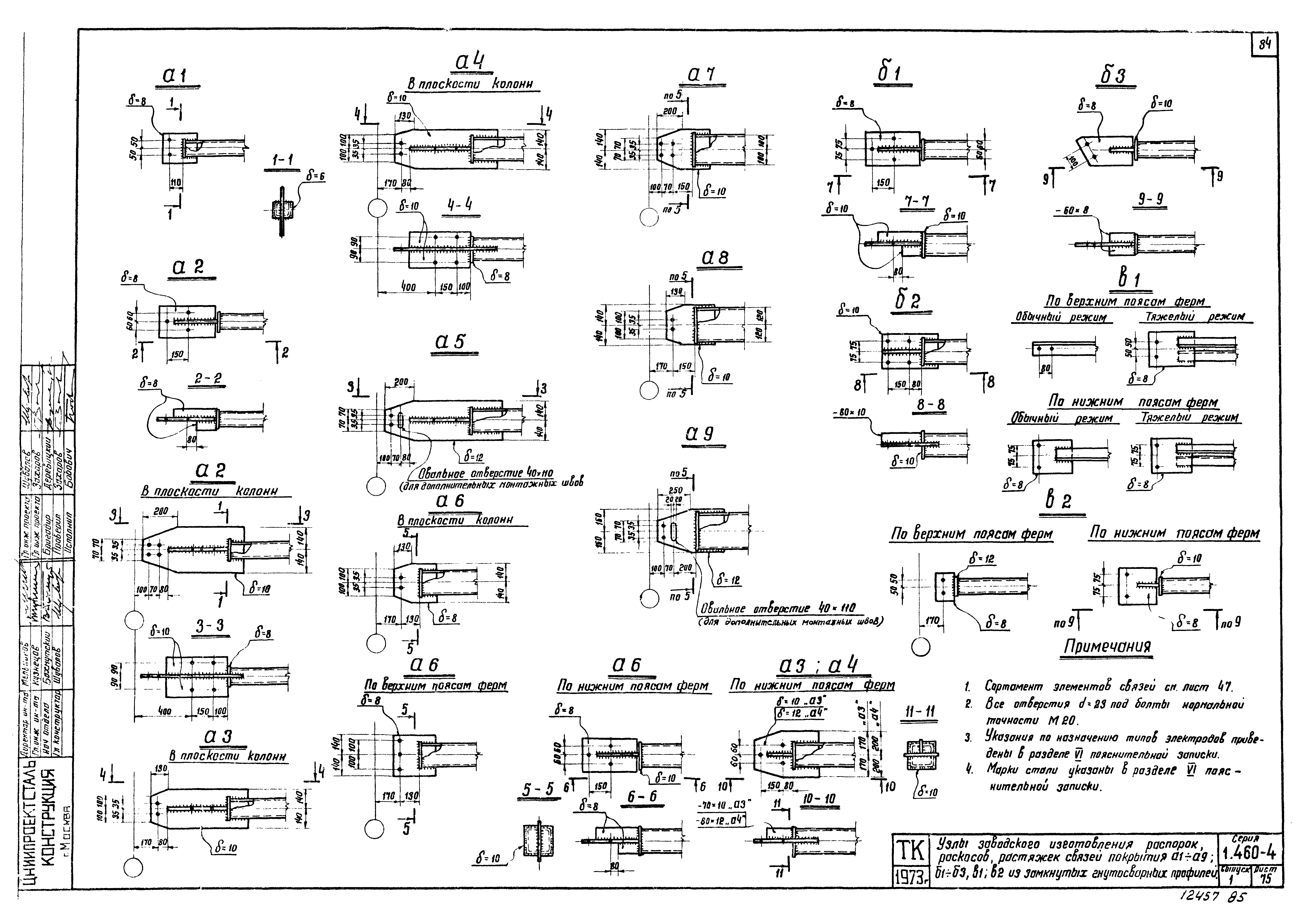
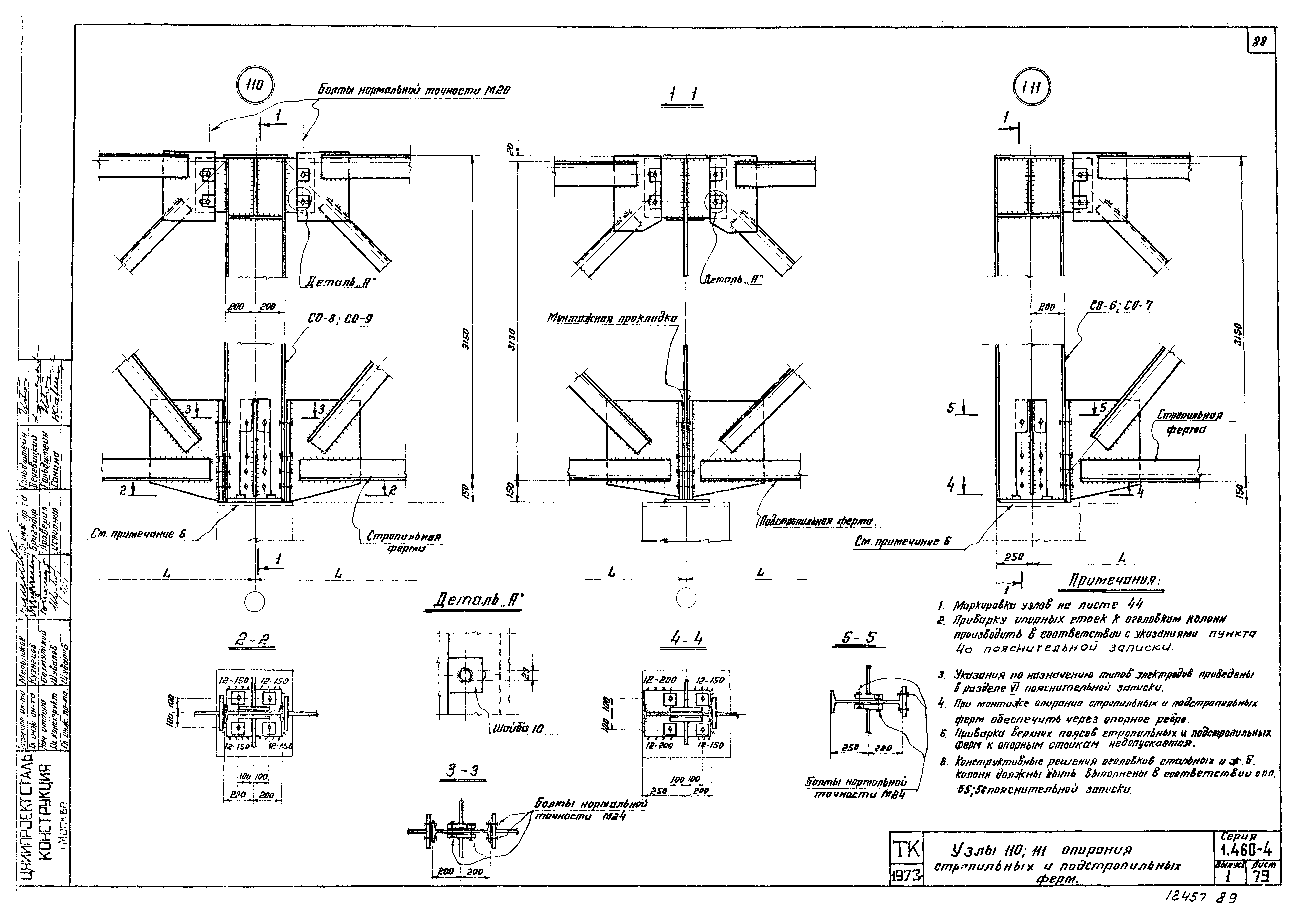
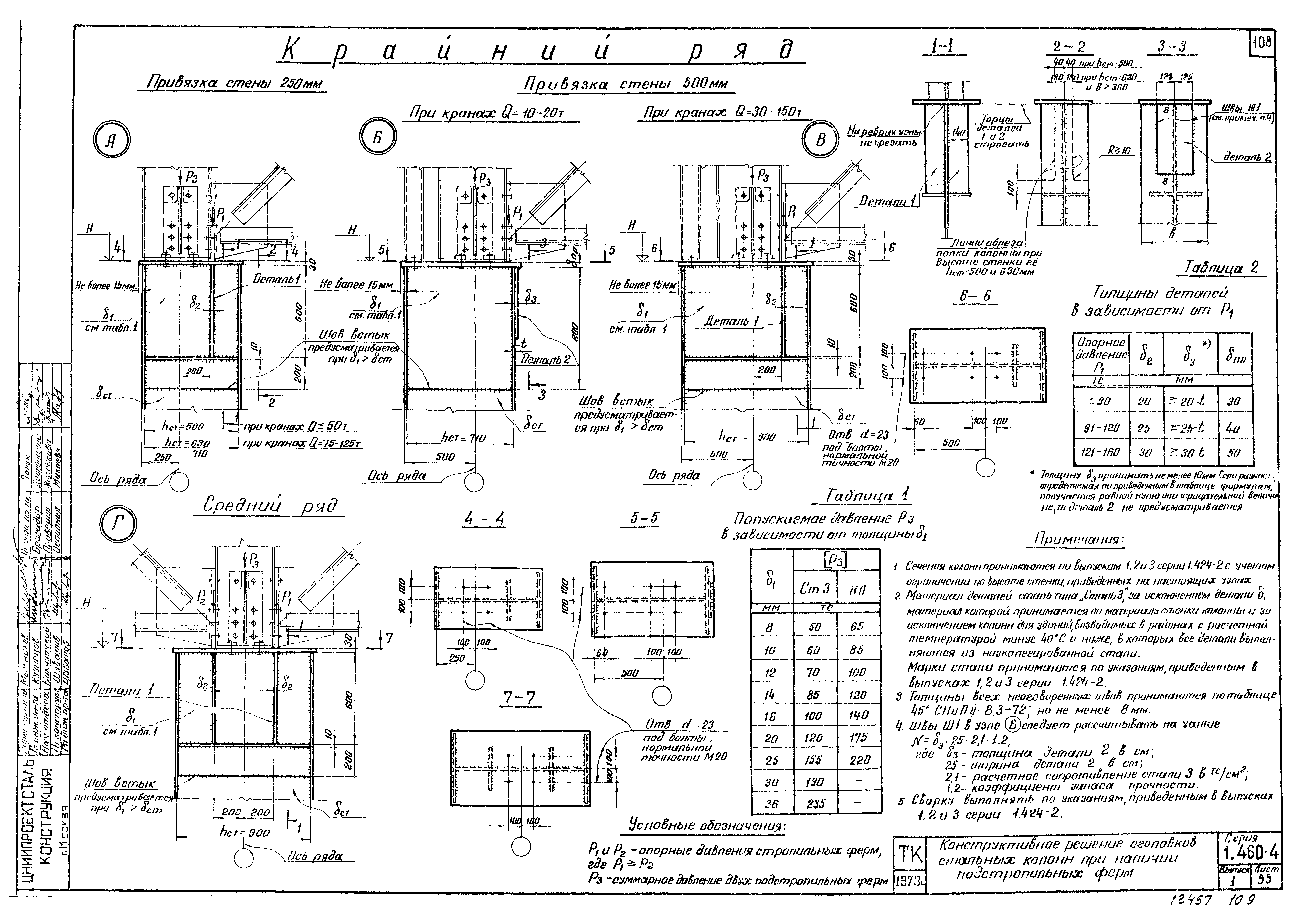
| Оглавление: | Содержание альбома Пояснительная записка Эквивалентные равномерно-распределительные расчетные нагрузки от снегового покрова Эквивалентные равномерно-распределительные расчетные нагрузки от подвесных электрических однобалочных кранов общего назначения и от фонаря Схемы стропильных и подстропильных ферм с маркировкой заводских и монтажных узлов Схемы стропильных ферм при наличии подвесных однобалочных кранов. Маркировка узлов заводского изготовления Схемы расположения связей и прогонов по верхним поясам стропильных ферм пролетом 18 м. Здания без фонарей и с фонарями. Шаг ферм 6 м. Шаг колонн 6 и 12 м Схемы расположения связей и прогонов по верхним поясам стропильных ферм пролетом 24 м. Здания без фонарей и с фонарями. Шаг ферм 6 м. Шаг колонн 6 и 12 м Схемы расположения связей и прогонов по верхним поясам стропильных ферм пролетом 30 м. Здания без фонарей и с фонарями. Шаг ферм 6 м. Шаг колонн 6 и 12 м Схемы расположения связей и прогонов по верхним поясам стропильных ферм пролетом 36 м. Здания без фонарей и с фонарями. Шаг ферм 6 м. Шаг колонн 6 и 12 м Схемы расположения связей и прогонов по верхним поясам стропильных ферм пролетом 18 м. Здания без фонарей и с фонарями. Шаг ферм и колонн 12 м Схемы расположения связей и прогонов по верхним поясам стропильных ферм пролетом 24 м. Здания без фонарей и с фонарями. Шаг ферм и колонн 12 м Схемы расположения связей и прогонов по верхним поясам стропильных ферм пролетом 30 м. Здания без фонарей и с фонарями. Шаг ферм и колонн 12 м Схемы расположения связей и прогонов по верхним поясам стропильных ферм пролетом 36 м. Здания без фонарей и с фонарями. Шаг ферм и колонн 12 м Пример решения схемы связей 1-го типа по нижним поясам стропильных ферм пролетом 18 м. Здания без фонарей и с фонарями. Шаг ферм 6 м. Шаг колонн 6 и 12 м Пример решения схемы связей 1-го типа по нижним поясам стропильных ферм пролетом 24 м. Здания без фонарей и с фонарями. Шаг ферм 6 м. Шаг колонн 6 и 12 м Пример решения схемы связей 1-го типа по нижним поясам стропильных ферм пролетом 30 м. Здания без фонарей и с фонарями. Шаг ферм 6 м. Шаг колонн 6 и 12 м Пример решения схемы связей 1-го типа по нижним поясам стропильных ферм пролетом 36 м. Здания без фонарей и с фонарями. Шаг ферм 6 м. Шаг колонн 6 и 12 м Пример решения схемы связей 1-го типа по нижним поясам стропильных ферм пролетом 18 м. Здания без фонарей и с фонарями. Шаг ферм и колонн 12 м Пример решения схемы связей 1-го типа по нижним поясам стропильных ферм пролетом 24 м. Здания без фонарей и с фонарями. Шаг ферм и колонн 12 м Пример решения схемы связей 1-го типа по нижним поясам стропильных ферм пролетом 30 м. Здания без фонарей и с фонарями. Шаг ферм и колонн 12 м Пример решения схемы связей 1-го типа по нижним поясам стропильных ферм пролетом 36 м. Здания без фонарей и с фонарями. Шаг ферм и колонн 12 м Пример решения схемы связей 2-го типа по нижним поясам стропильных ферм пролетами 18; 24; 30; 36 м. Здания без фонарей и с фонарями. Шаг ферм и колонн 6 м Пример решения схемы связей 2-го типа по нижним поясам стропильных ферм пролетами 18; 24; 30; 36 м. Здания без фонарей и с фонарями. Шаг ферм и колонн 12 м Схемы расположения подвесных путей и тормозных балок по нижним поясом стропильных ферм пролетом 18 м, шагом 6 м, при наличии подвесного транспорта Схемы расположения подвесных путей и тормозных балок по нижним поясом стропильных ферм пролетом 24 м, шагом 6 м, при наличии подвесного транспорта Схемы расположения подвесных путей и тормозных балок по нижним поясом стропильных ферм пролетом 30 м, шагом 6 м, при наличии подвесного транспорта Схемы расположения подвесных путей и тормозных балок по нижним поясом стропильных ферм пролетом 36 м, шагом 6 м, при наличии подвесного транспорта Разрезы 5-5; 6-6; 7-7 по продольным рядам колонн. Колонны стальные и железобетонные в зданиях без мостовых кранов. Колонны стальные в зданиях с мостовыми кранами Разрезы 5-5; 6-6; 7-7 по продольным рядам колонн. Колонны стальные и железобетонные в зданиях с мостовыми кранами и в бескрановых зданиях малой высоты Расположение растяжек по нижним поясом стропильных ферм. Шаг ферм 6 и 12 м Таблицы для выбора марок поясов и раскосов горизонтальных связей расположенных в торце здания Сортамент стропильных ферм пролетом 18 м Сортамент стропильных ферм пролетом 24 м Сортамент стропильных ферм пролетом 30 м Сортамент стропильных ферм пролетом 36 м Сортамент стропильных ферм пролетом 18 и 24 м при наличии подвесного транспорта. Шаг ферм 6 м Сортамент стропильных ферм пролетом 30 и 36 м при наличии подвесного транспорта. Шаг ферм 6 м Схемы расположения дополнительных стоек в стропильных фермах в зависимости от значений рамных сжимающих усилий в нижнем поясе Сортамент подстропильных ферм пролетом 12 м Схемы опирания стропильных ферм. Маркировка монтажных узлов. Сортамент опорных стоек Указания по выбору марок вертикальных связей и распорок покрытия, расположенных в плоскости колонн Сортамент связей из электросварных труб Сортамент связей из замкнутых гнутосварных профилей Сортамент связей из горячекатаных и гнутых профилей Таблицы для выбора марок прогонов и профилеразмера настила при сопряжении кровли в одном уровне. Сортамент прогонов пролетом 6 м Узлы 1 - 6 заводского изготовления стропильных ферм Узлы 7 - 11 заводского изготовления стропильных и подстропильных ферм Узлы 12 заводского изготовления подстропильных ферм Монтажные узлы 13 - 16 стропильных ферм Монтажные стыки стропильных ферм на высокопрочных болтах. Узлы с 17 по 20 Монтажные стыки стропильных ферм на высокопрочных болтах. Узлы с 21 по 24 Монтажные стыки стропильных ферм на высокопрочных болтах. Узлы с 25 по 28 Ключ для выбора накладок и болтов к монтажным стыкам стропильных ферм пролетом 24 м Ключ для выбора накладок и болтов к монтажным стыкам стропильных ферм пролетом 30 и 36 м Узлы 29 - 31 стропильных ферм при наличии подвесных кранов Узлы 32 - 34 стропильных ферм при наличии подвесных кранов Опорные стойки СО-1, СО-2, СО-3, СО-4, СО-5 Опорные стойки СО-6, СО-7, СО-8, СО-9 Узлы 35 - 42 крепления связей и прогонов по верхним поясам ферм Узлы 49 - 51 крепления связей и прогонов по верхним поясам ферм Узлы 52 - 59; 90; 91 крепления связей и прогонов по верхним поясам ферм Узлы 60 - 66 крепления связей и прогонов по верхним поясам ферм Узлы 67 - 69 опирания стропильных ферм и погонов на подстропильные фермы Узлы 70 - 72 крепления связей по нижним поясам ферм Узлы 73 - 78 крепления связей по нижним поясам ферм Узлы 79 - 85 крепления связей по нижним поясам ферм Узлы 86 - 89 крепления тормозных балок и связей по нижним поясам ферм при наличии подвесных кранов Узлы 92 - 106 заводского изготовления вертикальных связей Р, Т, ВС1 - ВС8 из электросварных труб Узлы заводского изготовления распорок, раскосов, растяжек связей покрытия а1-а9, б1, б2, в1 и в2 из электросварных труб Узлы 92 - 104 заводского изготовления вертикальных связей Р, Т, ВС1 - ВС8 из замкнутых гнутосварных профилей Узлы заводского изготовления распорок, раскосов, растяжек связей покрытия а1 - а9, б1 - б3, в1 и в2 из замкнутых гнутосварных профилей Узлы 92 - 105 заводского изготовления вертикальных связей Р, Т, ВС1 - ВС8 из горячекатаных и гнутых профилей Узлы заводского изготовления распорок, раскосов, растяжек связей покрытия а1 - а5, б1, б2, в1 и в2 из горячекатаных профилей Узлы 107, 108, 109 опирания стропильных ферм Узлы 110, 111 опирания стропильных и подстропильных ферм Узлы 112 - 117 крепления стропильных ферм к опорным стойкам в пониженной части перепада здания Пример решения схемы продольных горизонтальных связей по нижним поясам ферм с шагом 12 м при опирании фахверковых стоек Разметка отверстий в верхних и нижних поясах стропильных ферм Разметка отверстий в верхних и нижних поясах подстропильных ферм Схемы раскладки профилированного настила. Узлы крепления профилированного настила к прогонам Указания по расчету и выбору марок настила и прогонов в местах перепада профиля покрытия Пример выбора марки стропильной фермы при наличии дополнительных узловых нагрузок Схемы 1 - 5 расположения в пролетах подвесных электрических однопролетных кранов общего назначения, их геометрические параметры и масса. Нормативные и расчетные крановые нагрузки Схемы 6 - 9 расположения в пролетах подвесных электрических 2-х и 3-х пролетных кранов общего назначения, их геометрические параметры и масса. Нормативные и расчетные крановые нагрузки Спецификация стали стропильных ферм пролетами 18 и 24 м Спецификация стали стропильных ферм пролетами 30 и 36 м Спецификация стали подстропильных ферм пролетом 12 м Расход стали в кг/кв. м на стропильные и подстропильные фермы Усилия в стержнях стропильных ферм пролетами 18 и 24 м от единичных нагрузок Усилия в стержнях стропильных ферм пролетами 30 и 36 м от единичных нагрузок Несущая способность стержней стропильных ферм. Пояса. Сталь низколегированная R = 2900 кгс/кв. см Несущая способность стержней стропильных ферм. Раскосы и стойки. Сталь углеродистая - "Сталь 3" Указания по расчету монтажных и заводских стыков поясных уголков в узлах ферм Расчетные схемы настила, значения моментов и опорных реакций от единичных нагрузок q = 100кгс/кв. м Конструктивное решение оголовков стальных колонн при наличии подстропильных ферм Конструктивное решение оголовков стальных колонн при отсутствии подстропильных ферм |
| Разработан: | ЦНИИпроектстальконструкция |
| Утверждён: | 10.07.1973 Госстрой СССР (Государственный комитет Совета Министров СССР по делам строительства) (USSR Gosstroy 117) |
| Чем заменён: |














































































































