Скачать Каталог. Навесные и выносные площадки

Дата актуализации: 01.01.2021

Каталог. Навесные и выносные площадки

Статус:справочные материалы, мп, тпр
Название рус.:Каталог. Навесные и выносные площадки
Дата добавления в базу:01.09.2013
Дата актуализации:01.01.2021
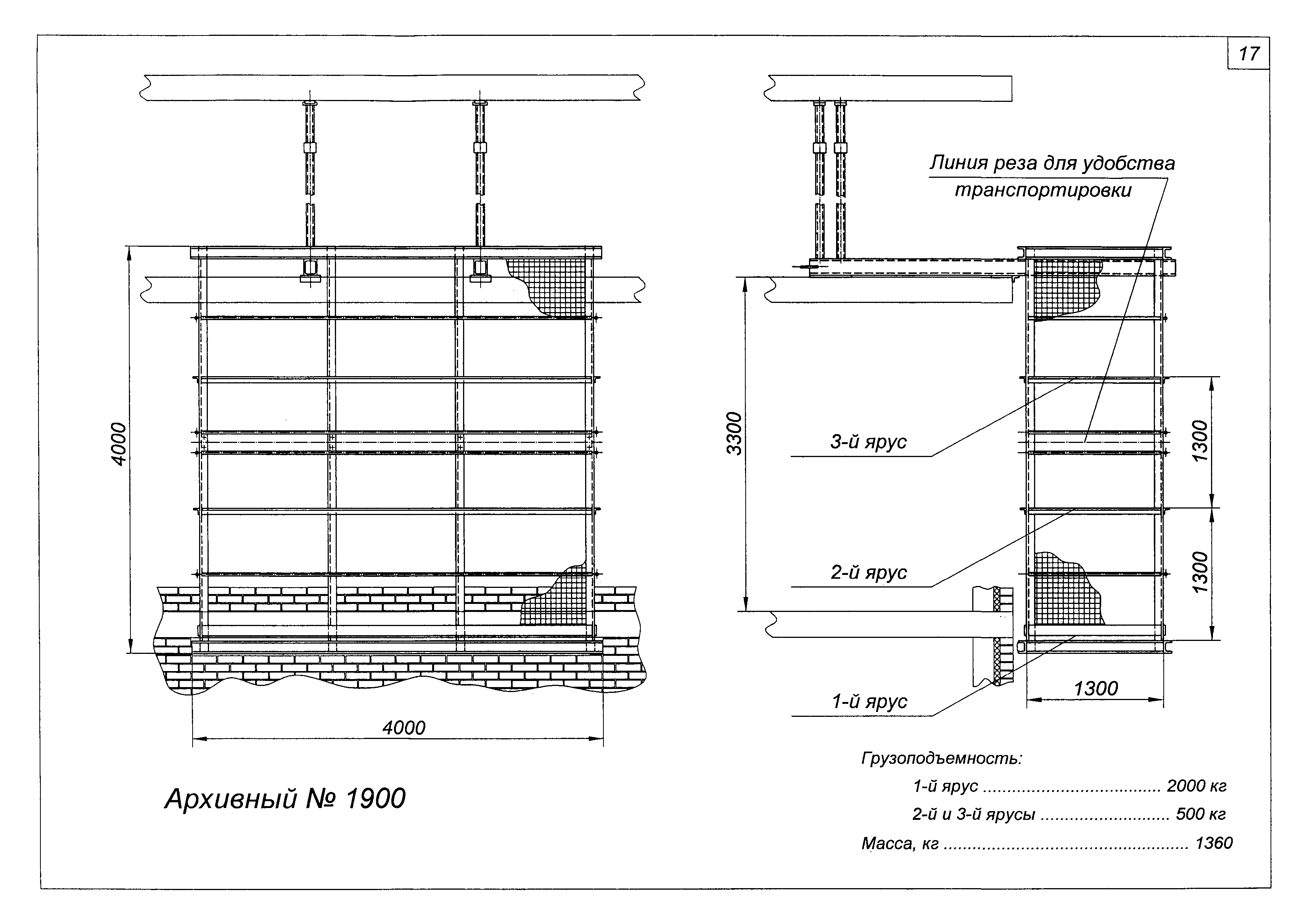
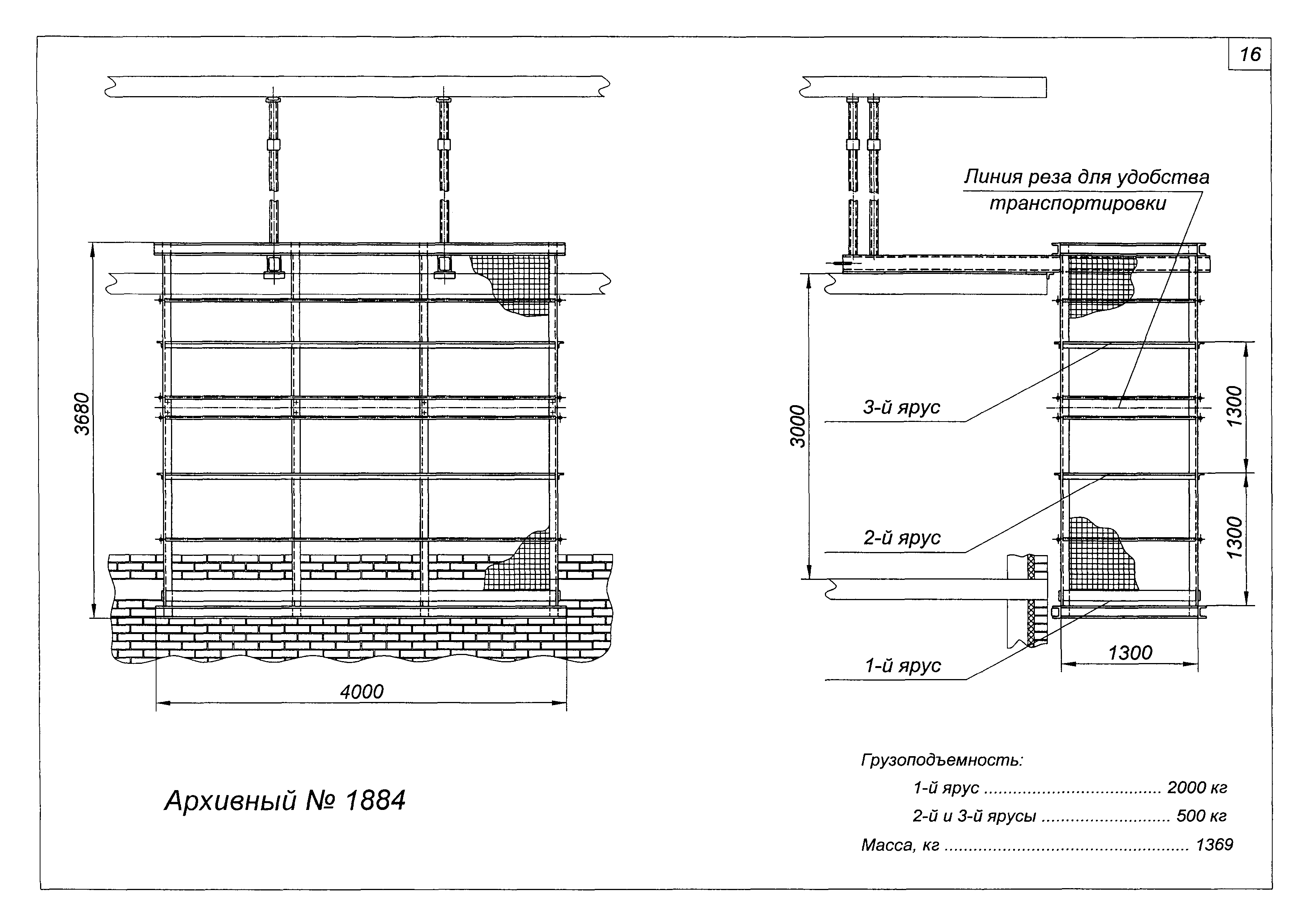
Область применения:В каталоге содержатся общие виды и основные технические характеристики навесных и выносных площадок, используемых для выполнения строительно-монтажных работ (СМР)
Оглавление:Общая часть
А. Навесные плошадки
Б. Выносные площадки
Разработан: ОАО ПКТИпромстрой
Утверждён: ОАО ПКТИпромстрой (PKTIpromstroy OAO )