Скачать Серия 1.832.1-9 Выпуск 1. Опалубочные чертежи и армированиеДата актуализации: 01.01.2021
|
| Обозначение: | Серия 1.832.1-9 |
| Обозначение англ: | Series 1.832.1-9 |
| Статус: | заменен |
| Название рус.: | Выпуск 1. Опалубочные чертежи и армирование |
| Дата добавления в базу: | 01.09.2013 |
| Дата актуализации: | 01.01.2021 |
| Дата введения: | 01.08.1981 |
| Дата окончания срока действия: | 01.10.1994 |
| Область применения: | Настоящая серия содержит рабочие чертежи стеновых двухслойных панелей из легких бетонов для сельскохозяйственных зданий |
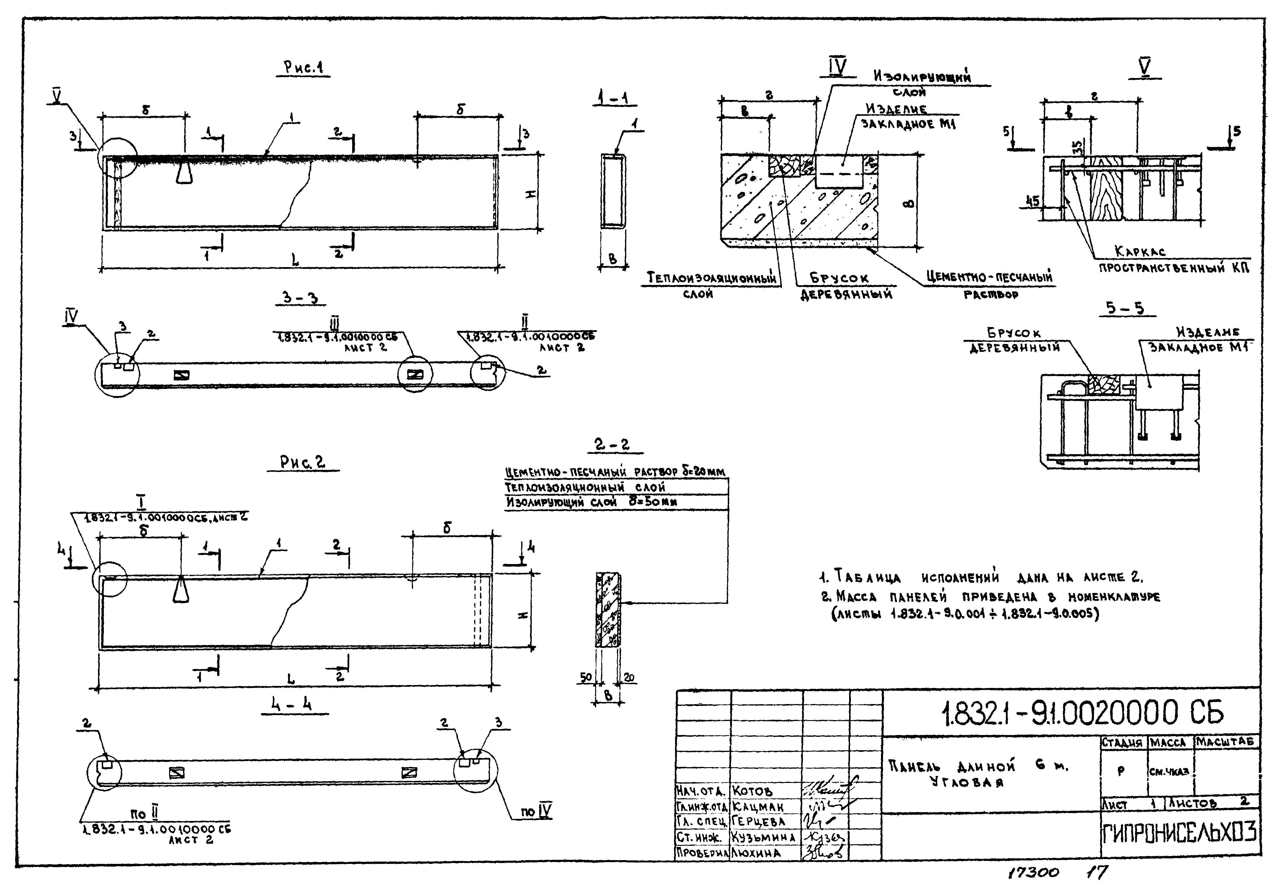
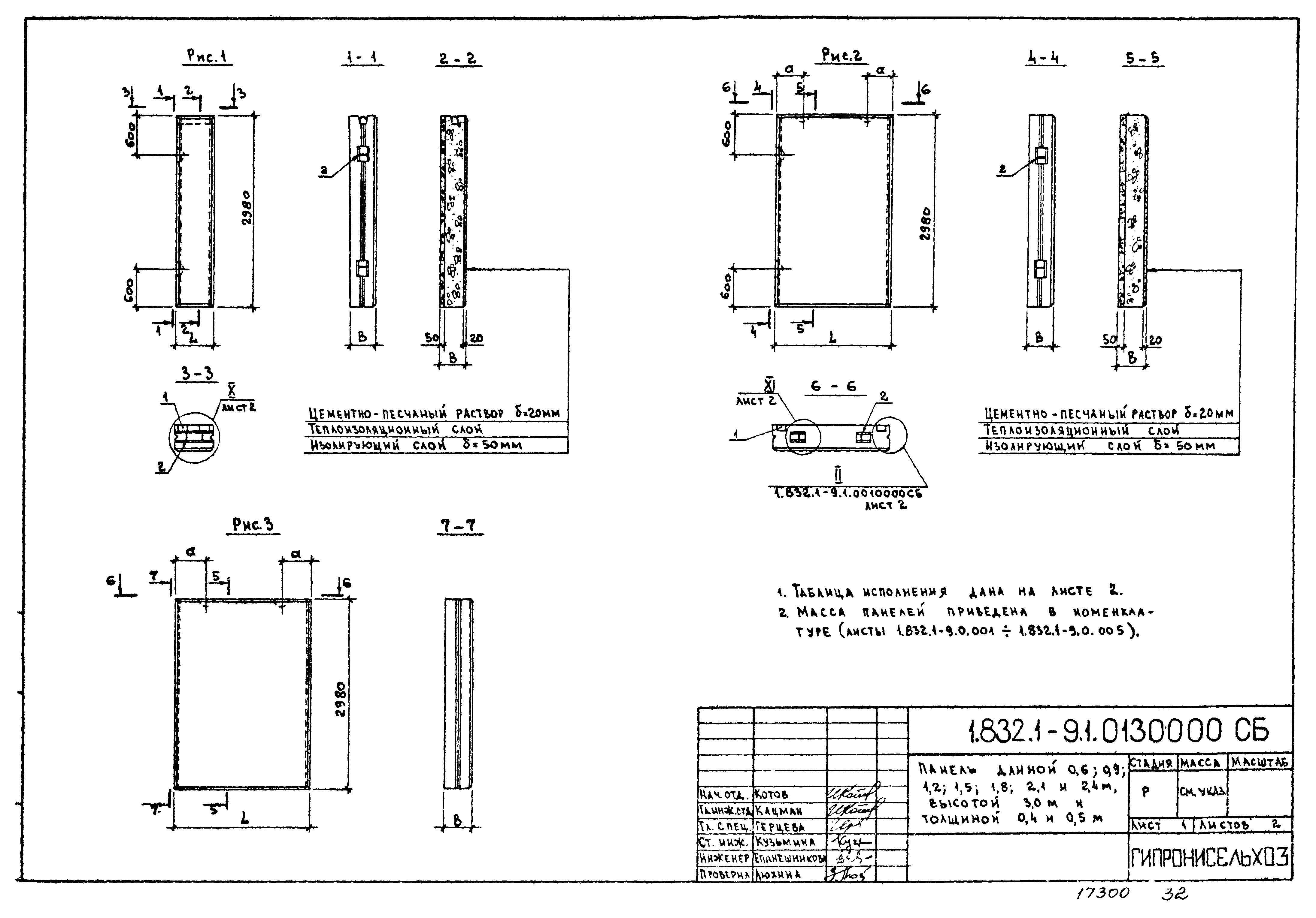
| Оглавление: | 1.832.1-9.1.0000000ПЗ Пояснительная записка 1.832.1-9.1.0010000и Панель длиной 6 м 1.832.1-9.1.0010000СБ Панель длиной 6 м 1.832.1-9.1.0020000 Панель длиной 6 м. Угловая 1.832.1-9.1.0020000СБ Панель длиной 6 м. Угловая 1.832.1-9.1.0030000 Панель длиной 3 м; высотой 0,6; 0,9 м и толщиной 0,2; 0,25 и 0,3 м 1.832.1-9.1.0040000 Панель длиной 3 м; высотой 1,2; 1,8 м и толщиной 0,2; 0,25 и 0,3 м 1.832.1-9.1.0050000 Панель длиной 3 м; толщиной 0,4 и 0,5 м 1.832.1-9.1.0060000 Панель длиной 1,5 м; высотой 0,6 м и толщиной 0,2; 0,25 и 0,3 м. Угловая 1.832.1-9.1.0070000 Панель длиной 1,5 м; высотой 0,9 м и толщиной 0,2; 0,25 и 0,3 м. Угловая 1.832.1-9.1.0080000 Панель длиной 1,5 м; высотой 0,6 и 0,9 м и толщиной 0,4 и 0,5 м. Угловая 1.832.1-9.1.0090000 Панель длиной 1,5 м; высотой 1,2 м и толщиной 0,2; 0,25 и 0,3 м. Угловая 1.832.1-9.1.0100000и Панель длиной 1,5 м; высотой 1,8 м и толщиной 0,2; 0,25 и 0,3 м. Угловая 1.832.1-9.1.0110000 Панель длиной 1,5 м; высотой 1,2 и 1,8 м и толщиной 0,4 и 0,5 м. Угловая 1.832.1-9.1.0120000 Панель длиной 0,6; 0,9; 1,2; 1,5; 1,8; 2,1 и 2,4 м; высотой 3,0 м и толщиной 0,2; 0,25 и 0,3 м 1.832.1-9.1.0120000СБ Панель длиной 0,6; 0,9; 1,2; 1,5; 1,8; 2,1 и 2,4 м; высотой 3,0 м и толщиной 0,2; 0,25 и 0,3 м 1.832.1-9.1.0130000 Панель длиной 0,6; 0,9; 1,2; 1,5; 1,8; 2,1 и 2,4 м; высотой 3,0 м и толщиной 0,4 и 0,5 м 1.832.1-9.1.0130000СБ Панель длиной 0,6; 0,9; 1,2; 1,5; 1,8; 2,1 и 2,4 м; высотой 3,0 м и толщиной 0,4 и 0,5 м 1.832.1-9.1.0140000 Панель длиной 0,6 и 1,2 м; высотой 1,2 м и толщиной 0,2; 0,25 и 0,3 м. Простеночная 1.832.1-9.1.0150000и Панель длиной 0,6 и 1,2 м; высотой 1,2 м и толщиной 0,4 и 0,5 м. Простеночная 1.832.1-9.1.0000000ВМС Выборка стали |
| Разработан: | НИИЖБ ЦНИИЭПсельстрой ГипроНИсельхоз (Институт Гипронисельхоз ) |
| Утверждён: | 09.06.1981 Госстрой СССР (Государственный комитет Совета Министров СССР по делам строительства) (USSR Gosstroy 89) |
| Чем заменён: | |
| Нормативные ссылки: |
|








































