Скачать Типовой проект 902-1-54 Альбом 3. Архитектурно-строительные решения (глубина заложения подводящего коллектора 4,0 м). Подземная часть (вариант из монолитного железобетона)Дата актуализации: 01.01.2021
|
| Обозначение: | Типовой проект 902-1-54 |
| Обозначение англ: | 902-1-54 |
| Статус: | не определен законодательством |
| Название рус.: | Альбом 3. Архитектурно-строительные решения (глубина заложения подводящего коллектора 4,0 м). Подземная часть (вариант из монолитного железобетона) |
| Дата добавления в базу: | 01.09.2013 |
| Дата актуализации: | 01.01.2021 |
| Дата введения: | 01.12.1980 |
| Дата окончания срока действия: | 30.06.2003 |
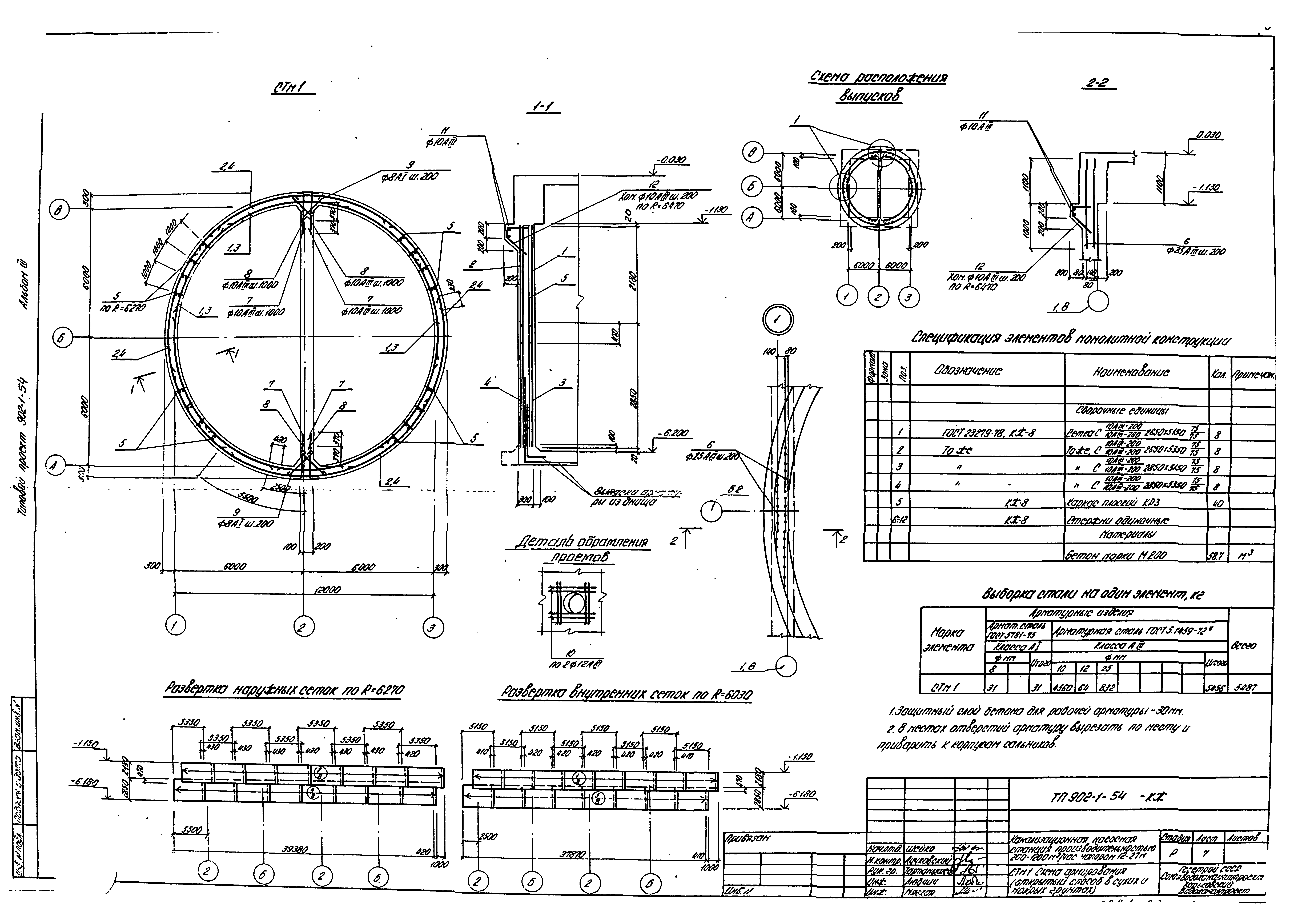
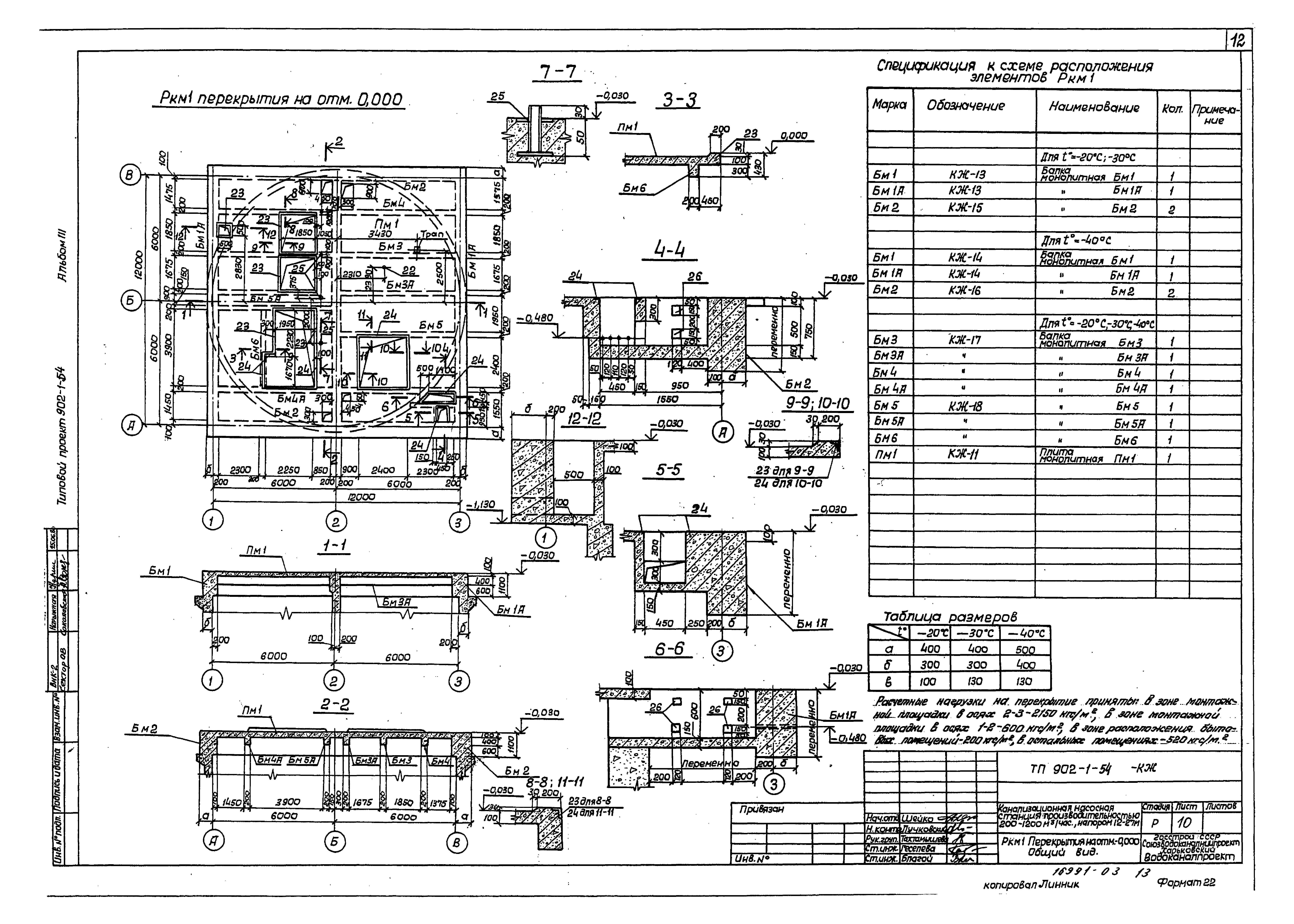
| Оглавление: | Содержание Общие данные Планы на отм. - 3.250; - 5.305. Разрезы 1-1, 2-2 Схема расположения элементов подземной части (открытый способ в сухих и мокрых грунтах) СТМ1. Развертка. Разрезы 3-3 - 4-4 (открытый способ в сухих и мокрых грунтах) Плита днища ПДм1. Общий вид и схема армирования (открытый способ в сухих грунтах) Плита днища ПДм1. Общий вид и схема армирования (открытый способ в мокрых грунтах) СТМ1. Схема армирования (открытый способ в сухих и мокрых грунтах) Плита днища ПДм1. Стена СТМ1. Раскрой сеток (открытый способ в сухих и мокрых грунтах) СТМ2. Схема армирования РКМ1. Перекрытия на отм. 0.000. Общий вид РКМ1. Перекрытия на отм. 0.000. ПМ1. Схема армирования ПМ1. Схема армирования. Разрезы 3-3 - 8-8. Узел 2 РКМ1. Перекрытия на отм. 0.000. Балка Бм1, Бм1А (t = - 20; t = - 30 градусов Цельсия) РКМ1. Перекрытия на отм. 0.000. Балка Бм1, Бм1А (t = - 40 градусов Цельсия) РКМ1. Перекрытия на отм. 0.000. Балка Бм2 (t = - 20; t = - 30 градусов Цельсия) РКМ1. Перекрытия на отм. 0.000. Балка Бм2 (t = - 40 градусов Цельсия) РКМ1. Перекрытия на отм. 0.000. Балки БМ3, БМ3А, БМ4, БМ4А РКМ1. Перекрытия на отм. 0.000. Балки БМ5, БМ5А, БМ6 РКМ1. Перекрытия на отм. 0.000. Сетки С8 - С16. Каркасы КР9 - КР11 РКМ2. Перекрытия на отм. - 3.250. Общий вид РКМ2. Перекрытия на отм. - 3.250. ПМ1. БМ1 - БМ3. Общие виды и схемы армирования РКМ2. Перекрытия на отм. - 3.250. БМ4 - БМ6. Общие виды и схемы армирования РКМ2. Перекрытия на отм. - 3.250. БМ7, БМ8. Общие виды и схемы армирования РКМ2. Перекрытия на отм. - 3.250. Общие виды и схемы армирования ЛТм1 РКМ2. Перекрытия на отм. - 3.250. Каркасы плоские КР12 - КР20. Сетка С17 РКМ2. Перекрытия на отм. - 3.250. Ведомость стержней Закладные изделия МН11 - МН18 |
| Разработан: | Харьковский Водоканалпроект |
| Утверждён: | 19.06.1980 Союзводоканалпроект (Soyuzvodokanalproject 43) |
| Заменяет собой: |
|




























