Скачать Типовой проект 902-1-54 Альбом 6. Архитектурно-строительные решения (глубина заложения подводящего коллектора 5,5 м). Подземная часть (вариант из сборного железобетона)Дата актуализации: 01.01.2021
|
| Обозначение: | Типовой проект 902-1-54 |
| Обозначение англ: | 902-1-54 |
| Статус: | не определен законодательством |
| Название рус.: | Альбом 6. Архитектурно-строительные решения (глубина заложения подводящего коллектора 5,5 м). Подземная часть (вариант из сборного железобетона) |
| Дата добавления в базу: | 01.09.2013 |
| Дата актуализации: | 01.01.2021 |
| Дата введения: | 01.12.1980 |
| Дата окончания срока действия: | 30.06.2003 |
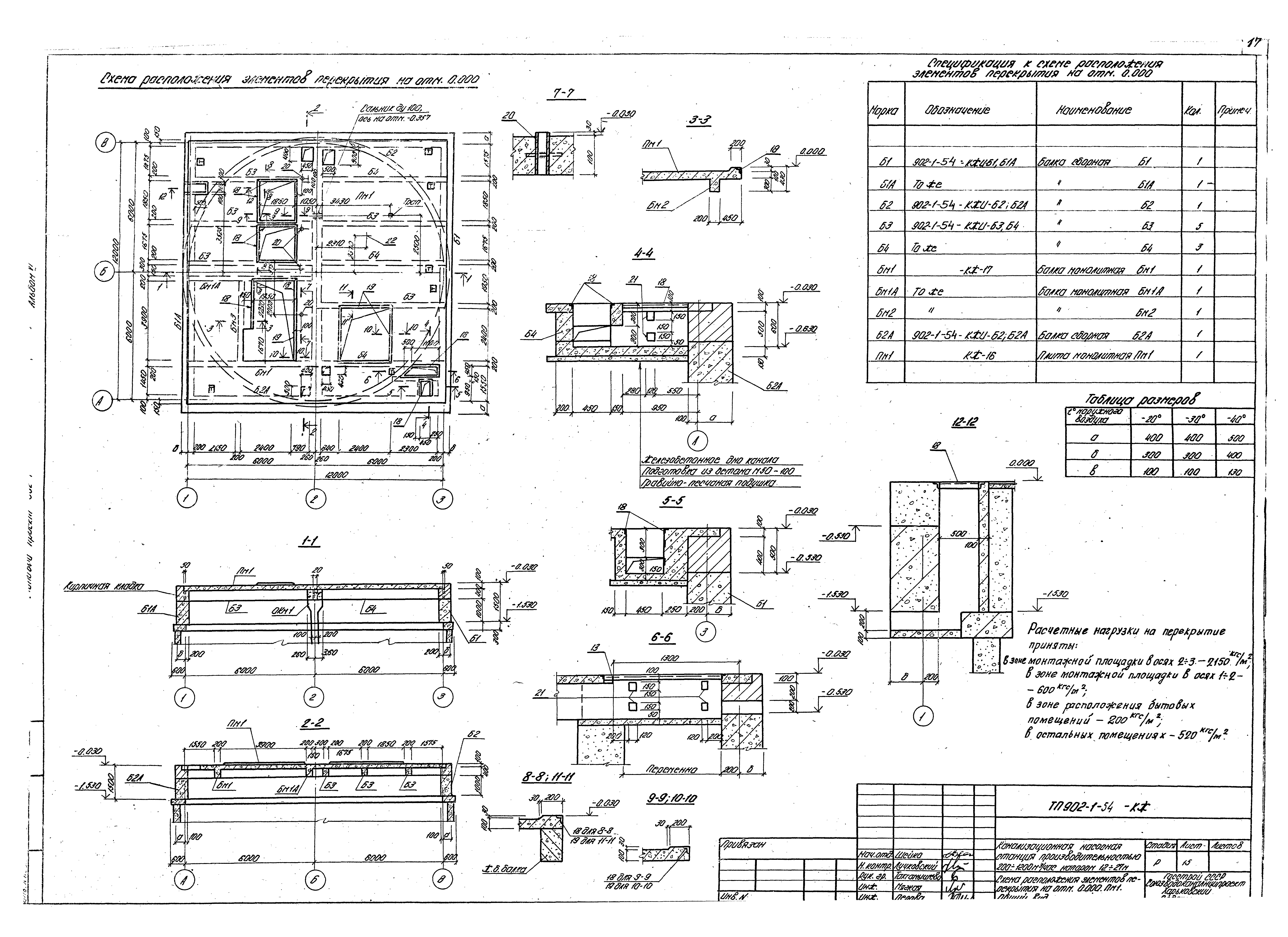
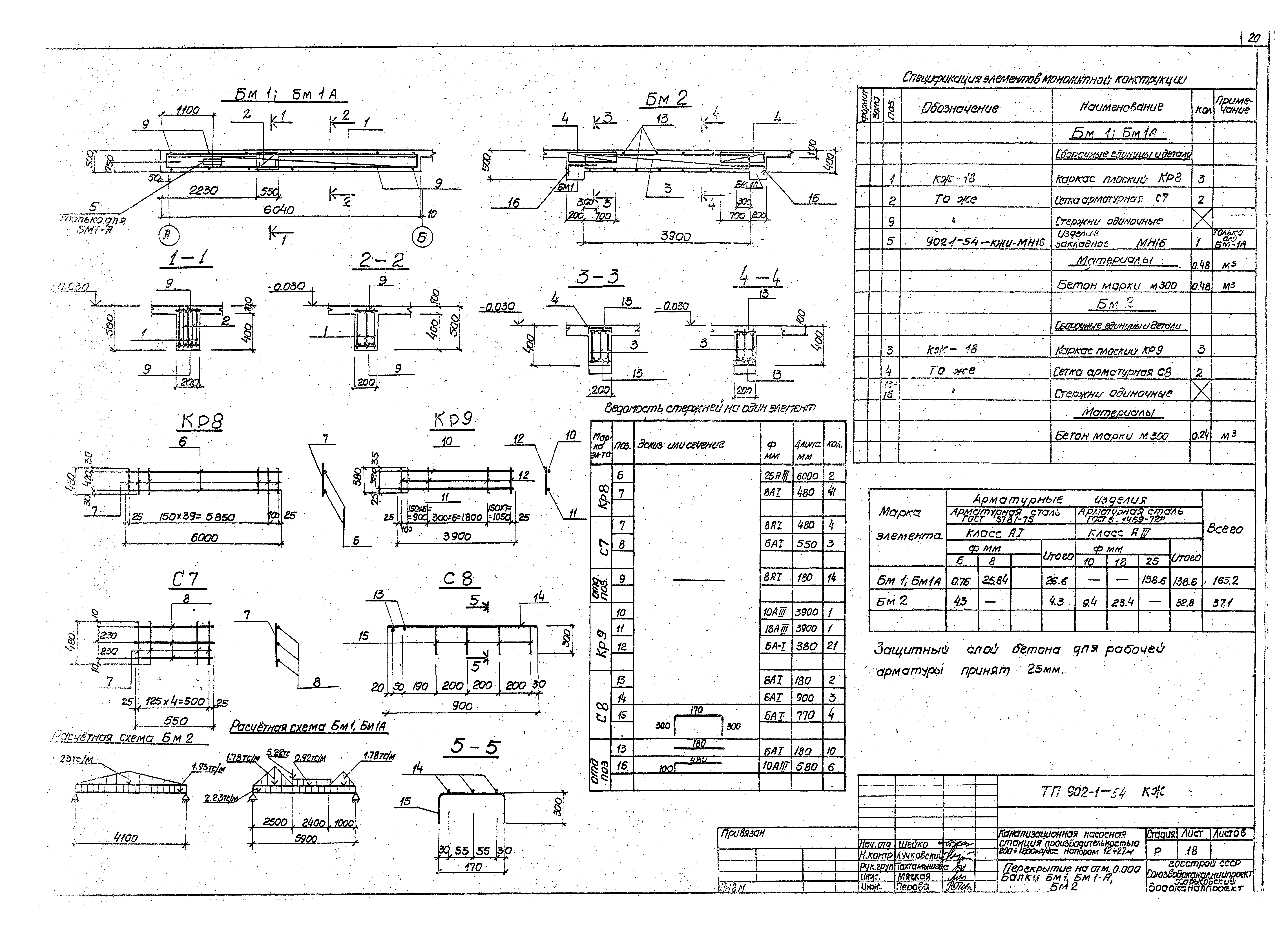
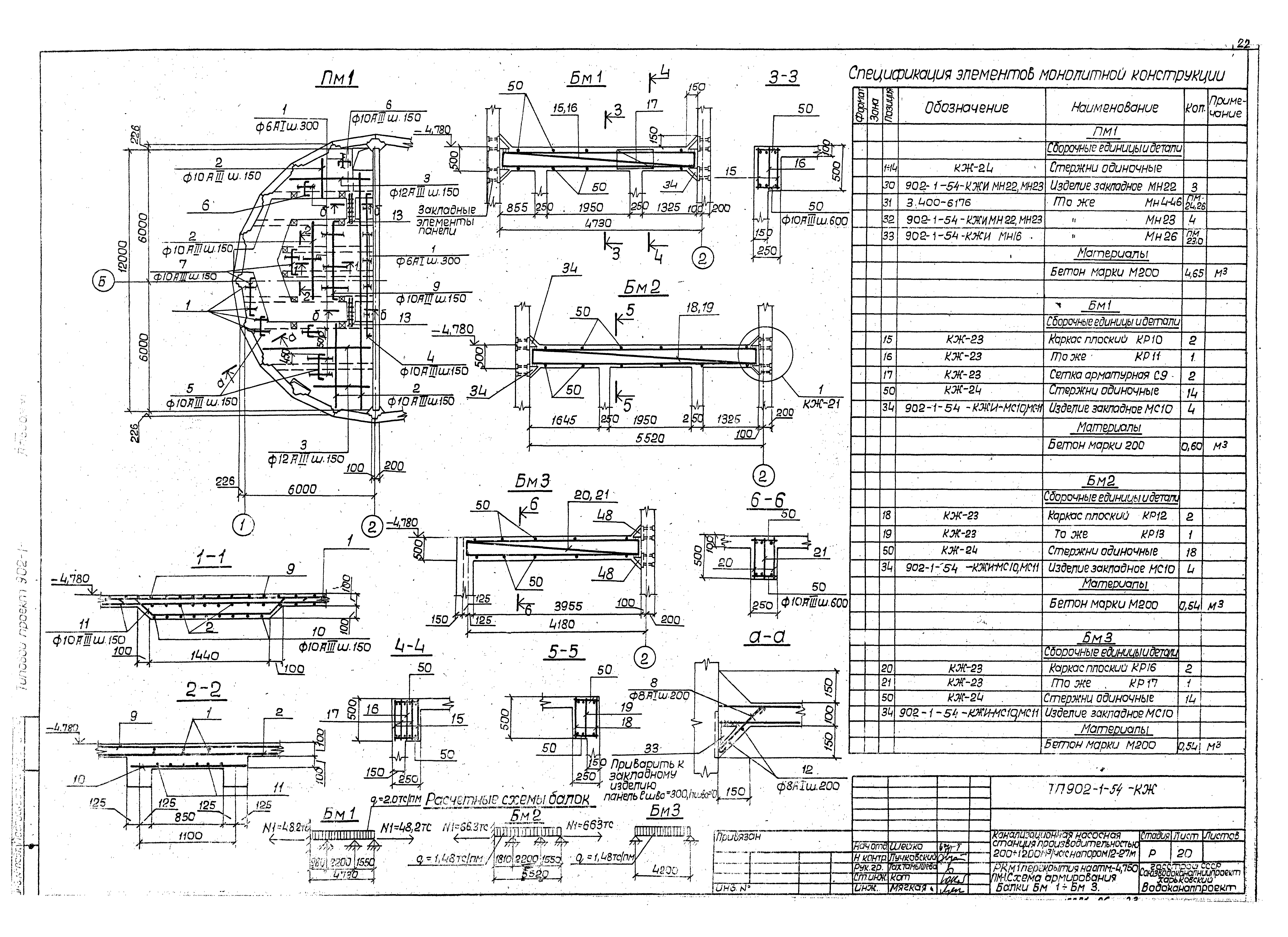
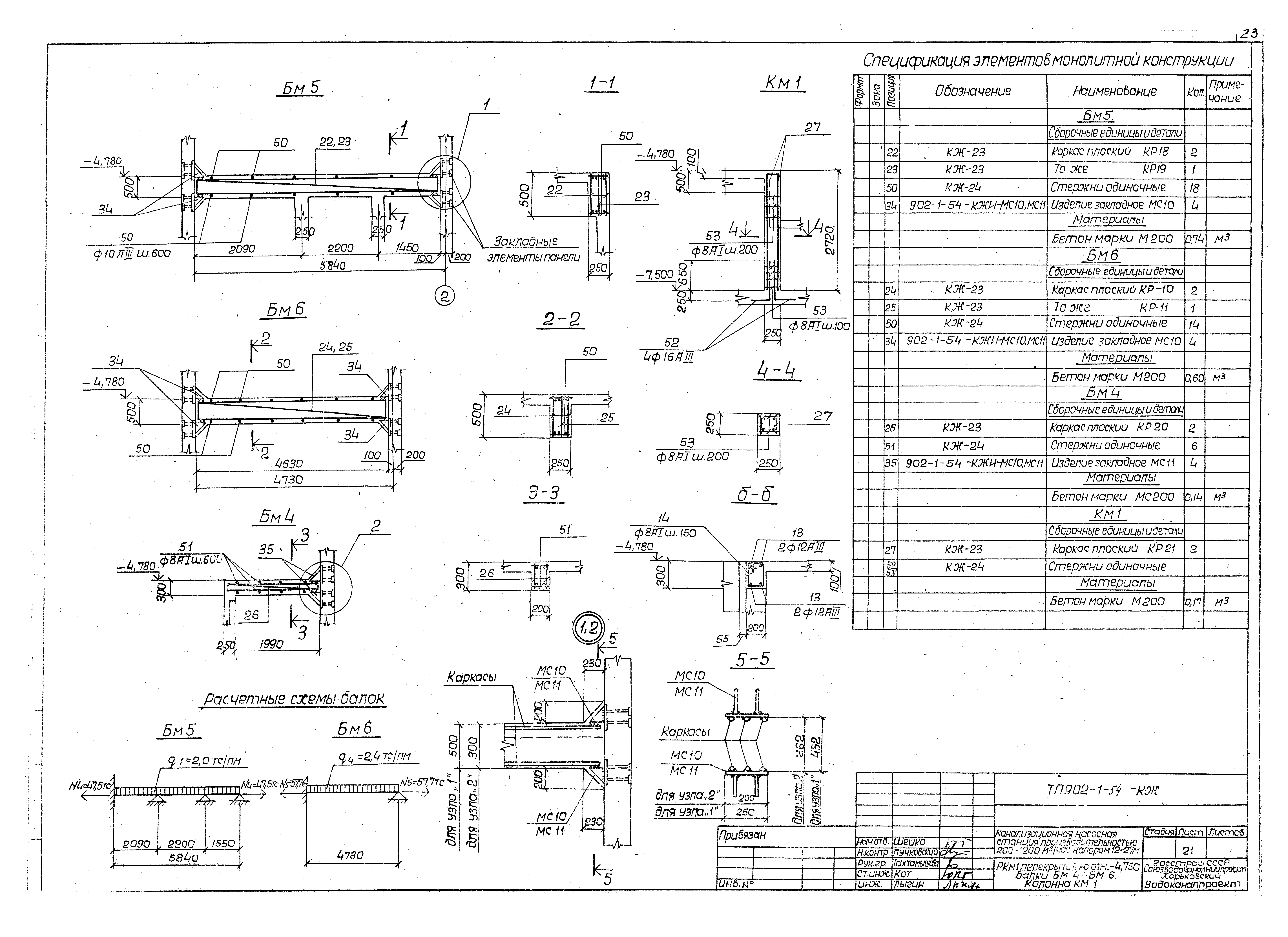
| Оглавление: | Содержание Общие данные Планы на отм. - 4.750 и - 6.605. Разрезы 1-1, 2-2 Схема расположения элементов подземной части Схема расположения стеновых панелей Схема расположения стеновых панелей. Развертка наружной стены Схема расположения стеновых панелей. Спецификация Схема расположения стеновых панелей. Узлы 1 - 4 Схема расположения стеновых панелей. Узлы 1а - 4а Плита днища ПДМ1. Общий вид и схема армирования Плита днища ПДМ1. Схема армирования. Раскрой сеток Опорное кольцо ОКм1. Общий вид Опорное кольцо ОКм1. Схема армирования Схема расположения элементов перекрытия на отм. 0.000. ПМ1. Общий вид Перекрытие на отм. 0.000. ПМ1. Схема армирования. Разрезы 1-1, 2-2 Перекрытие на отм. 0.000. ПМ1. Схема армирования. Разрезы 3-3 - 8-8 Перекрытие на отм. 0.000. Балки БМ1, БМ1А, БМ2 РКМ1 перекрытия на отм. 4.750. Общий вид РКМ1 перекрытия на отм. 4.750. ПМ1. Схема армирования. Балки БМ1 - БМ3 РКМ1 перекрытия на отм. 4.750. Балки БМ4 - БМ6. Колонна КМ1 РКМ1 перекрытия на отм. 4.750. ЛТМ1. Схема армирования РКМ1 перекрытия на отм. 4.750. Каркасы КР10 - КР21. Сетка С9 РКМ1 перекрытия на отм. 4.750. Балка БМ7. Ведомость стержней Схема погружения опускного колодца в тиксотропной рубашке Схема монтажа стен опускного колодца Схема последовательности операций при монтаже панелей с помощью кондуктора |
| Разработан: | Харьковский Водоканалпроект |
| Утверждён: | 19.06.1980 Союзводоканалпроект (Soyuzvodokanalproject 43) |
| Заменяет собой: |
|




























