Скачать Типовой проект 902-1-54 Альбом 13. Нестандартизированное оборудованиеДата актуализации: 01.01.2021
|
| Обозначение: | Типовой проект 902-1-54 |
| Обозначение англ: | 902-1-54 |
| Статус: | не определен законодательством |
| Название рус.: | Альбом 13. Нестандартизированное оборудование |
| Дата добавления в базу: | 01.09.2013 |
| Дата актуализации: | 01.01.2021 |
| Дата введения: | 01.12.1980 |
| Дата окончания срока действия: | 30.06.2003 |
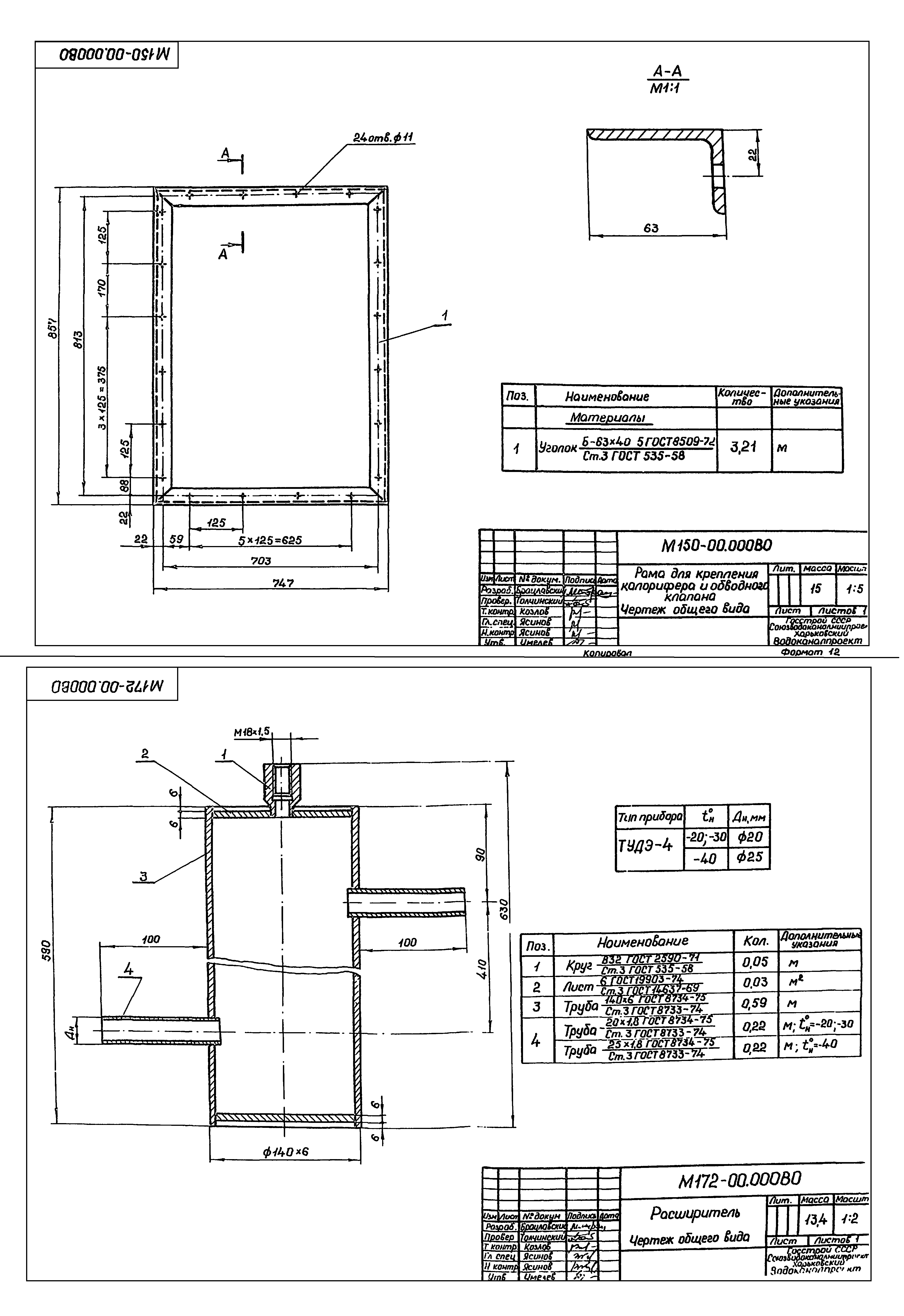
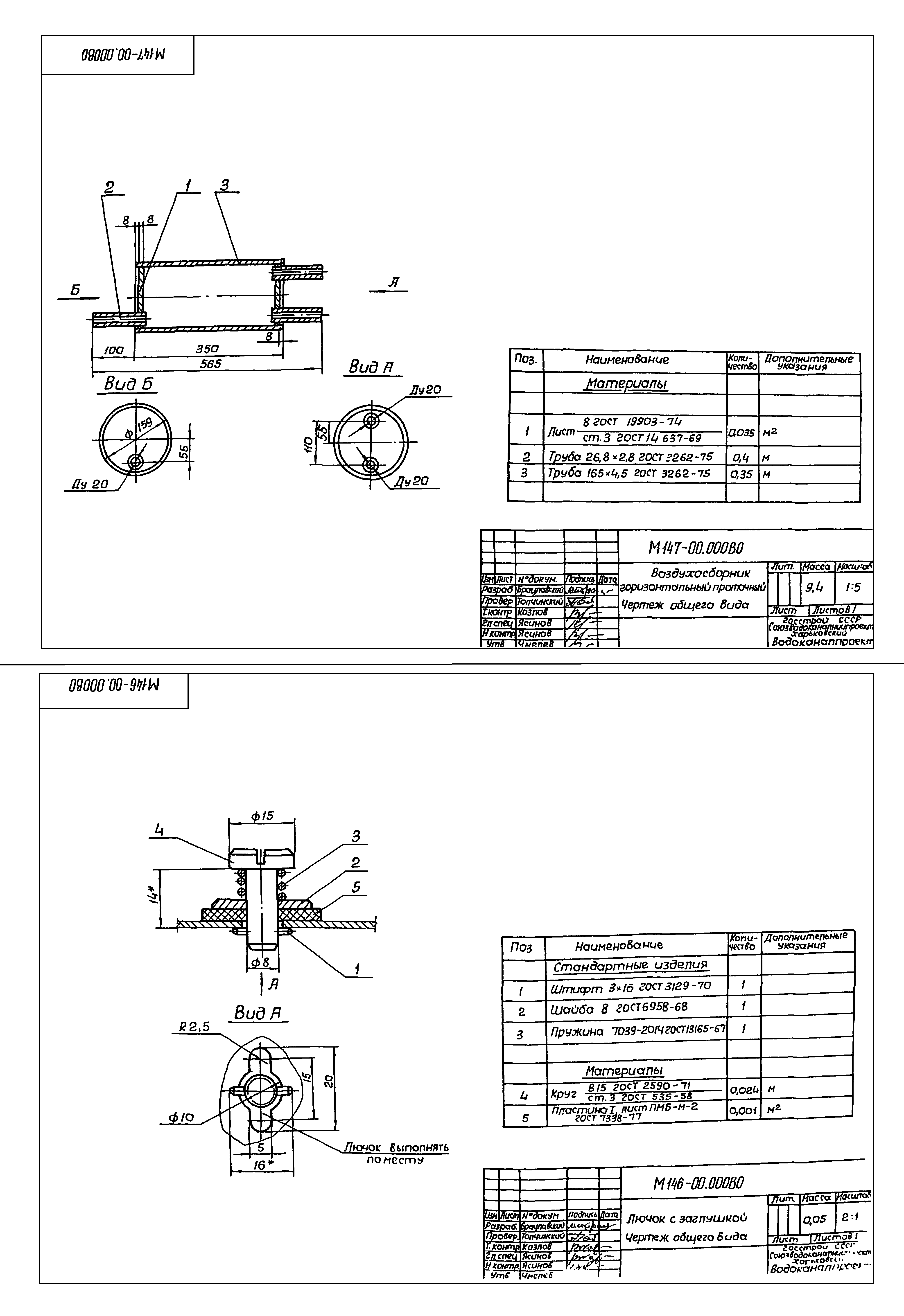
| Оглавление: | М140-00.00080 Лоток загрузочный. Чертеж общего вида М141-00.00080 Затвор щитовой 1000х1000 с ручным приводом. Чертеж общего вида М142-00.00080 Шандор. Чертеж общего вида М170-00.00080 Установка датчика. Чертеж общего вида М171-00.00080 Установка мембранного разделителя. Чертеж общего вида М150-00.00080 Рама для крепления калорифера и обводного клапана. Чертеж общего вида М172-00.00080 Расширитель. Чертеж общего вида М145-00.00080 Короб воздухосборный. Чертеж общего вида М146-00.00080 Лючок с заглушкой. Чертеж общего вида М147-00.00080 Воздухосборник горизонтальный проточный. Чертеж общего вида М148-00.00080 Клапан обводной. Чертеж общего вида |
| Разработан: | Харьковский Водоканалпроект |
| Утверждён: | 19.06.1980 Союзводоканалпроект (Soyuzvodokanalproject 43) |
| Заменяет собой: |
|











