Скачать Типовой проект 704-1-151с Альбом I. Рабочие чертежи КМ резервуараДата актуализации: 01.01.2021
|
| Обозначение: | Типовой проект 704-1-151с |
| Обозначение англ: | 704-1-151с |
| Статус: | не действует |
| Название рус.: | Альбом I. Рабочие чертежи КМ резервуара |
| Дата добавления в базу: | 01.09.2013 |
| Дата актуализации: | 01.01.2021 |
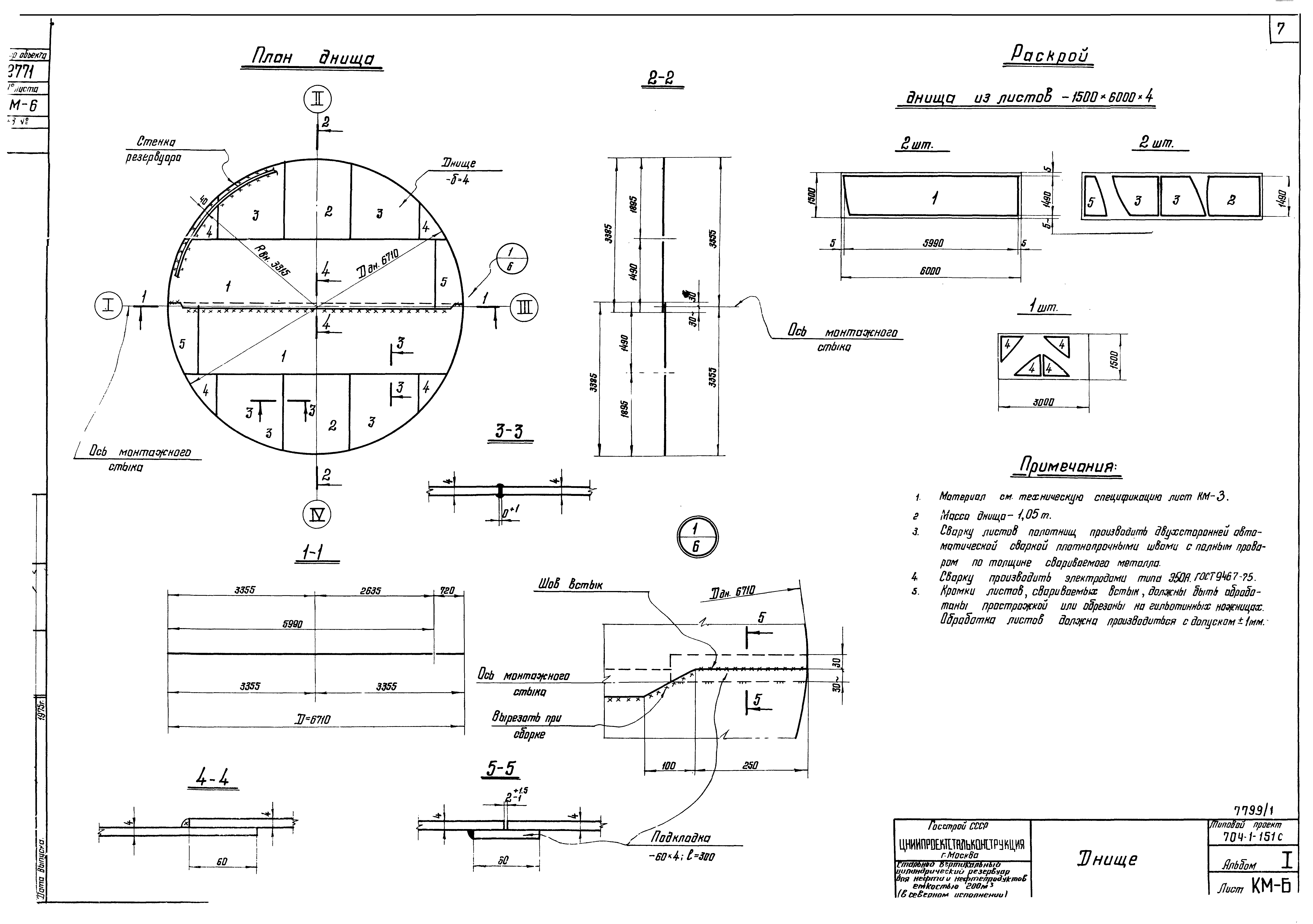
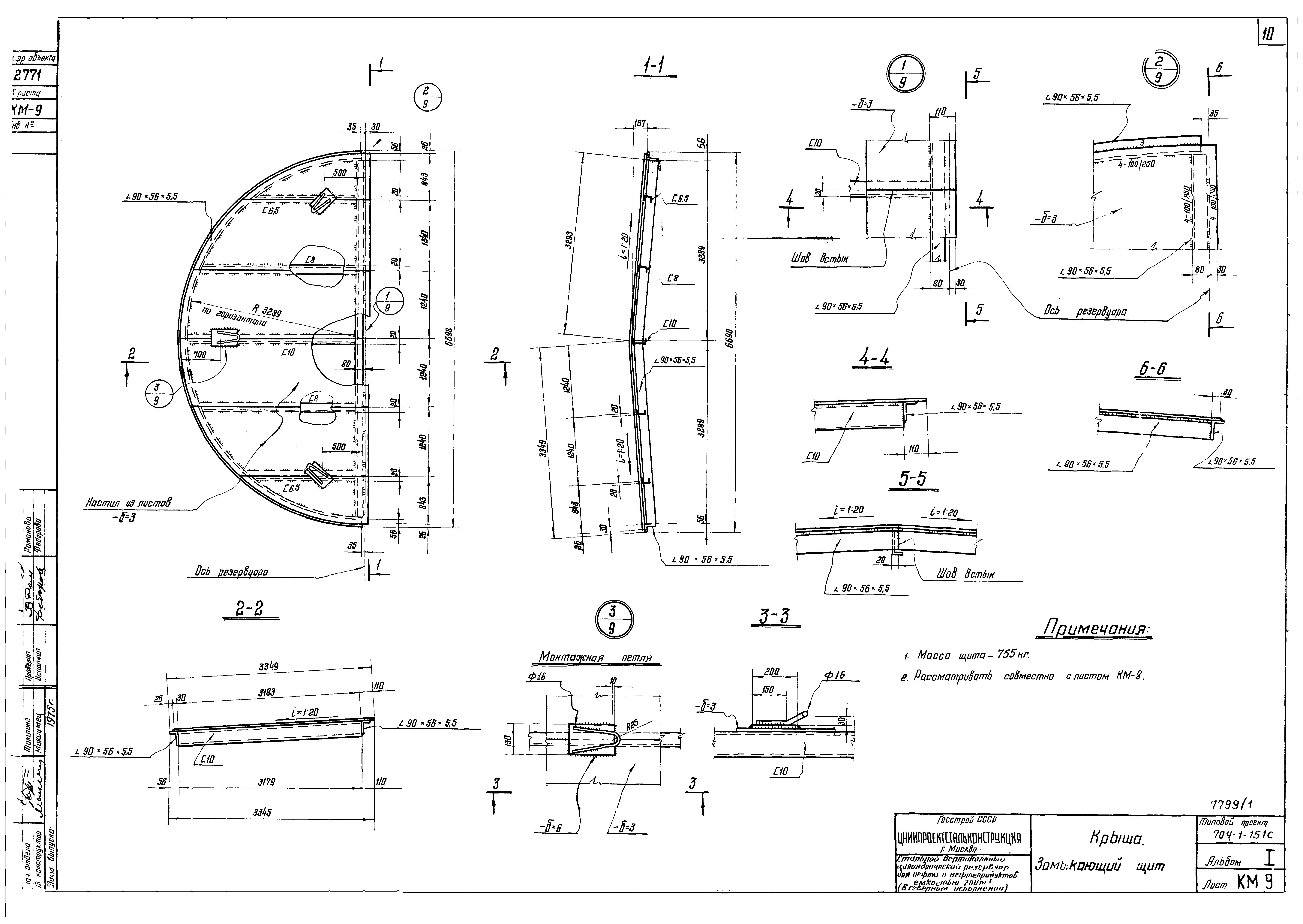
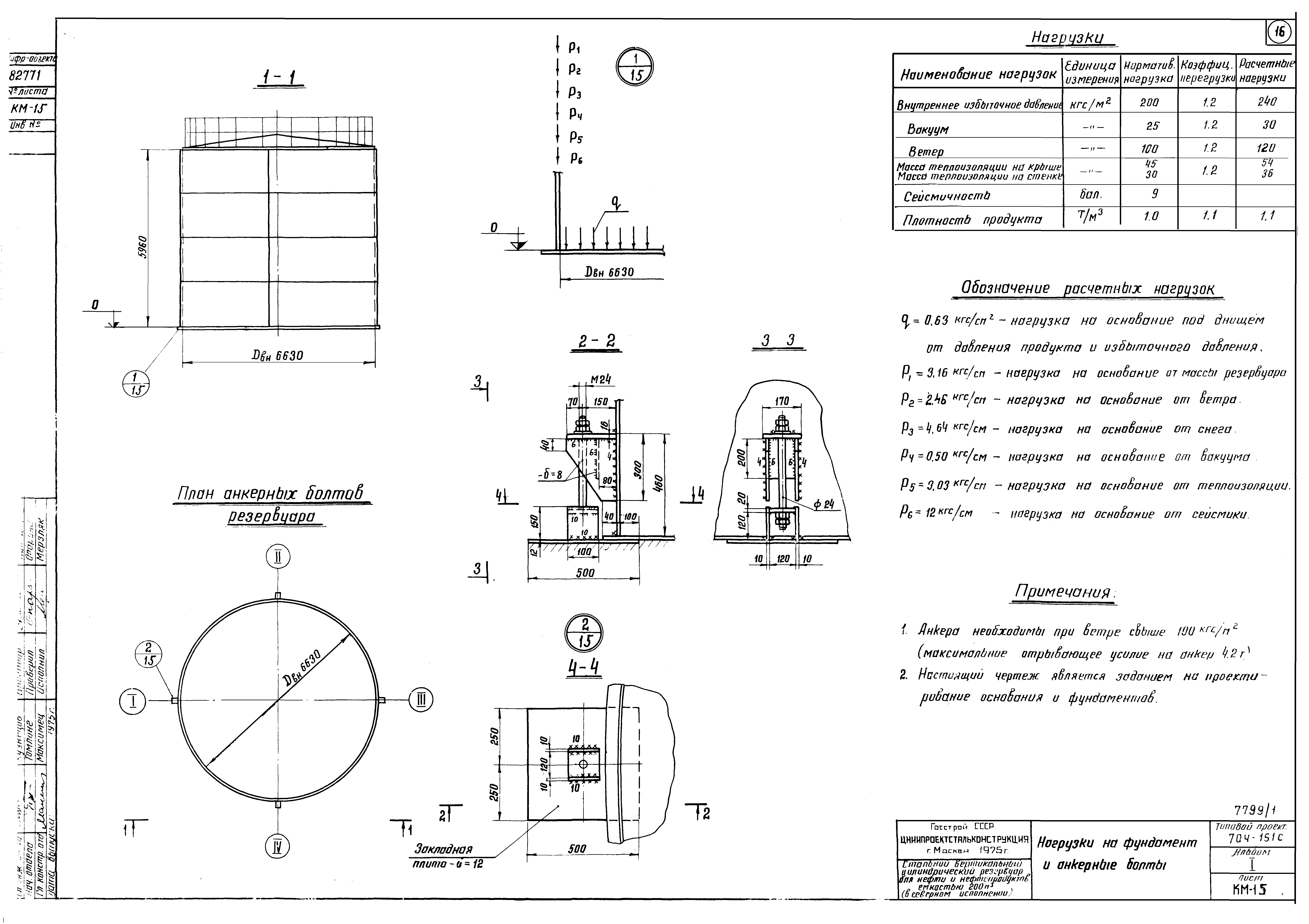
| Оглавление: | ТП 704-1-151с Титульный лист ТП 704-1-151с КМ-1 Содержание альбома ТП 704-1-151с КМ-2 Пояснительная записка ТП 704-1-151с КМ-3 Техническая спецификация стали ТП 704-1-151с КМ-4 Общий вид ТП 704-1-151с КМ-5 Монтажные узлы ТП 704-1-151с КМ-6 Днище ТП 704-1-151с КМ-7 Стенка ТП 704-1-151с КМ-8 Крыша. Начальный щит ТП 704-1-151с КМ-9 Крыша. Замыкающий щит ТП 704-1-151с КМ-10 Площадки и ограждения на крыше ТП 704-1-151с КМ-11 Люк-лаз в 1 поясе Ду500 и патрубки на крыше ТП 704-1-151с КМ-12 Световой люк Ду500. Приемно-раздаточные патрубки Ду100;150 ТП 704-1-151с КМ-13 Патрубки для УДУ-10 и зачистки ТП 704-1-151с КМ-14 Кронштейн для УДУ-10 ТП 704-1-151с КМ-15 Нагрузки на фундамент и анкерные болты |
| Разработан: | ЦНИИпроектстальконструкция |
| Утверждён: | 21.03.1977 Миннефтепром (Minnefteprom ) |















