Скачать Типовой проект 704-1-151с Альбом II. Рабочие чертежи КМ понтонаДата актуализации: 01.01.2021
|
| Обозначение: | Типовой проект 704-1-151с |
| Обозначение англ: | 704-1-151с |
| Статус: | не действует |
| Название рус.: | Альбом II. Рабочие чертежи КМ понтона |
| Дата добавления в базу: | 01.09.2013 |
| Дата актуализации: | 01.01.2021 |
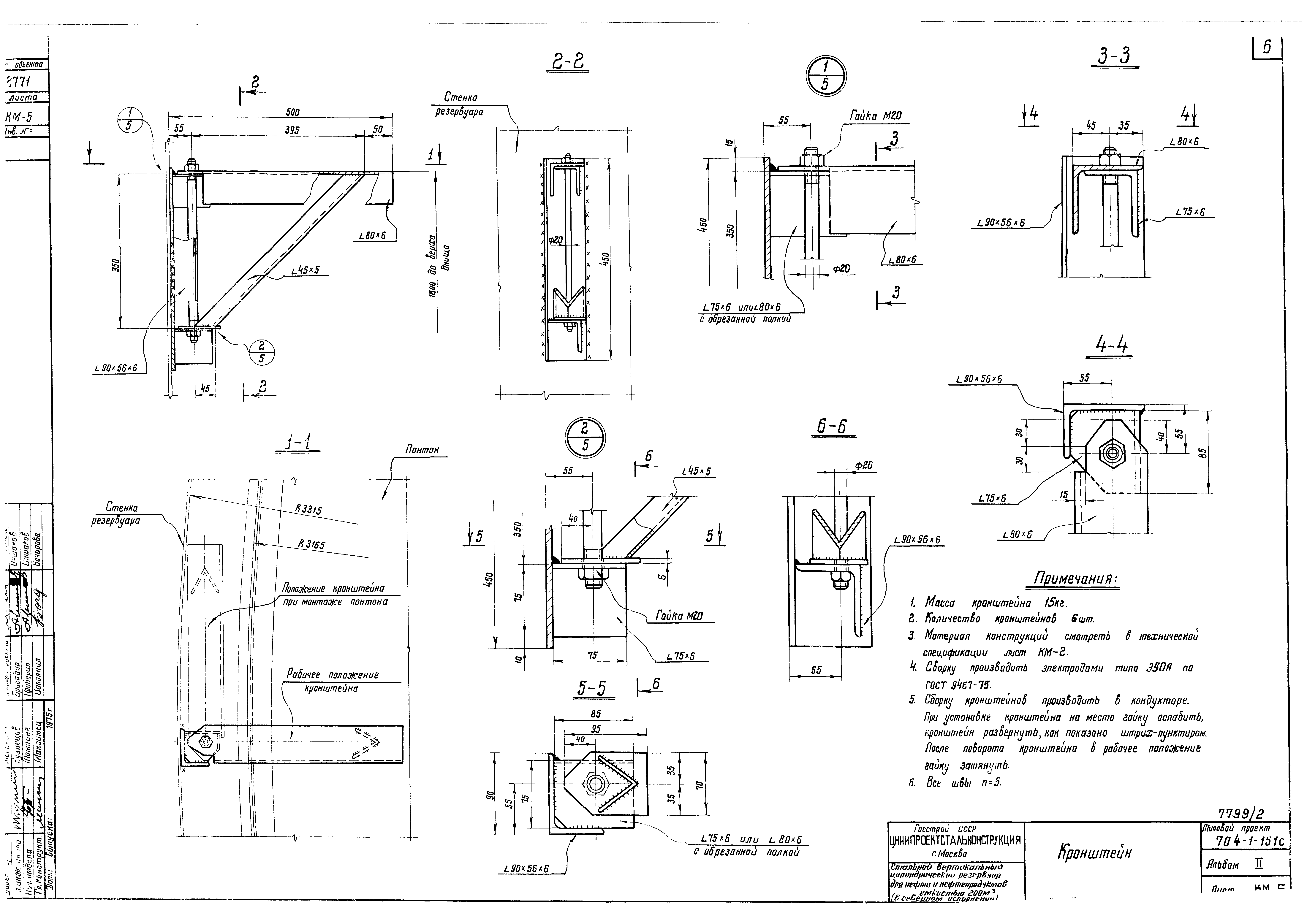
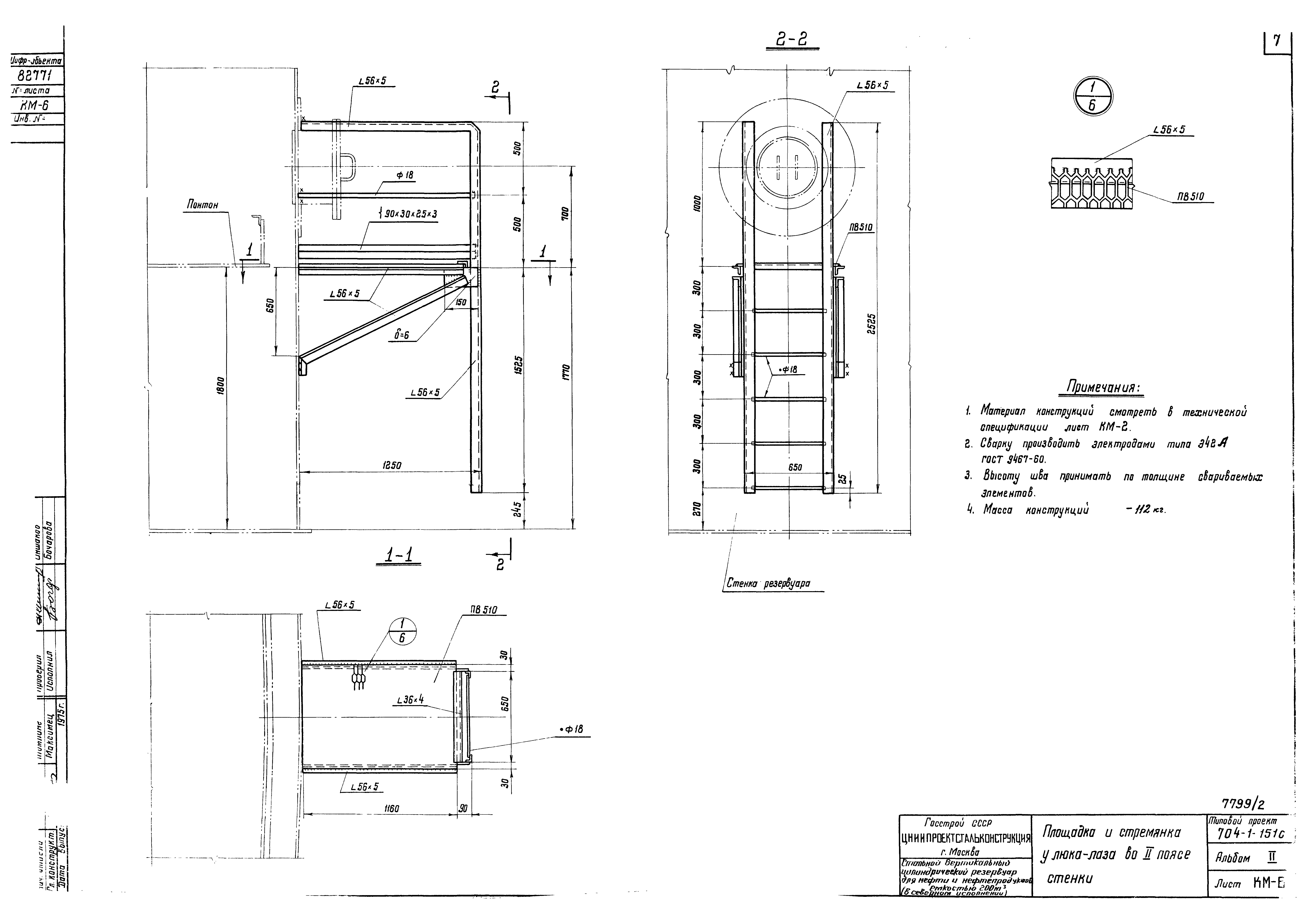
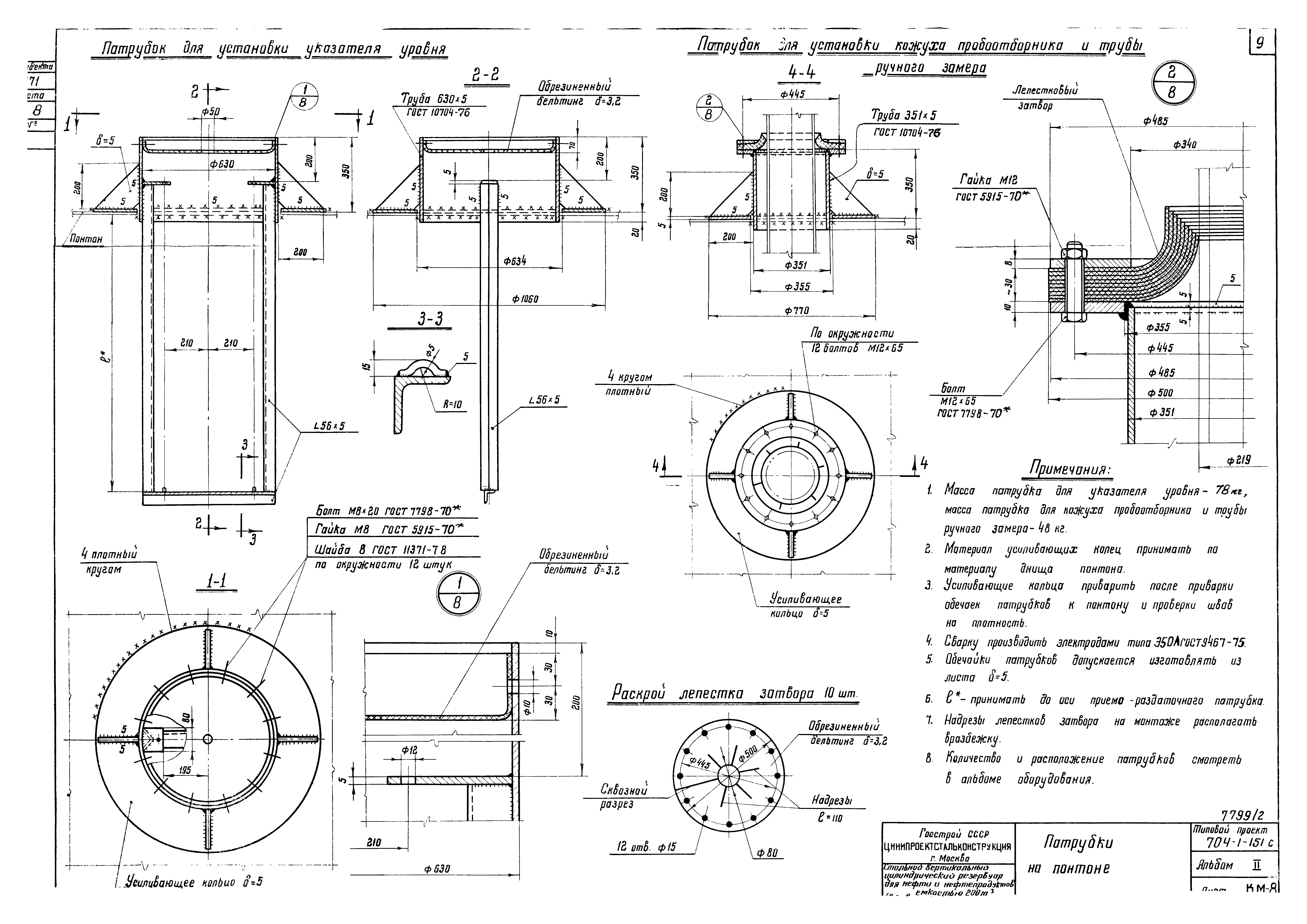
| Оглавление: | Титульный лист ТП 704-1-151с КМ-1 Содержание альбома и пояснительная записка ТП 704-1-151с КМ-2 Техническая спецификация стали и материалов на понтон ТП 704-1-151с КМ-3 Понтон. План и разрез ТП 704-1-151с КМ-4 Понтон. Днище и узлы ТП 704-1-151с КМ-5 Кронштейн ТП 704-1-151с КМ-6 Площадка и стремянка у люка-лаза во 2 поясе стенки ТП 704-1-151с КМ-7 Люк-лаз во 2 поясе стенки и патрубки ТП 704-1-151с КМ-8 Патрубки на понтоне ТП 704-1-151с КМ-9 Труба ручного замера уровня Ду200 ТП 704-1-151с КМ-10 Кожух пробоотборника Ду200- ТП 704-1-151с КМ-11 Петлевой затвор |
| Разработан: | ЦНИИпроектстальконструкция |
| Утверждён: | 21.03.1977 Миннефтепром (Minnefteprom ) |











