Скачать Типовой проект 704-1-151с Альбом VI. Оборудование резервуара для темных нефтепродуктовДата актуализации: 01.01.2021
|
| Обозначение: | Типовой проект 704-1-151с |
| Обозначение англ: | 704-1-151с |
| Статус: | не действует |
| Название рус.: | Альбом VI. Оборудование резервуара для темных нефтепродуктов |
| Дата добавления в базу: | 01.09.2013 |
| Дата актуализации: | 01.01.2021 |
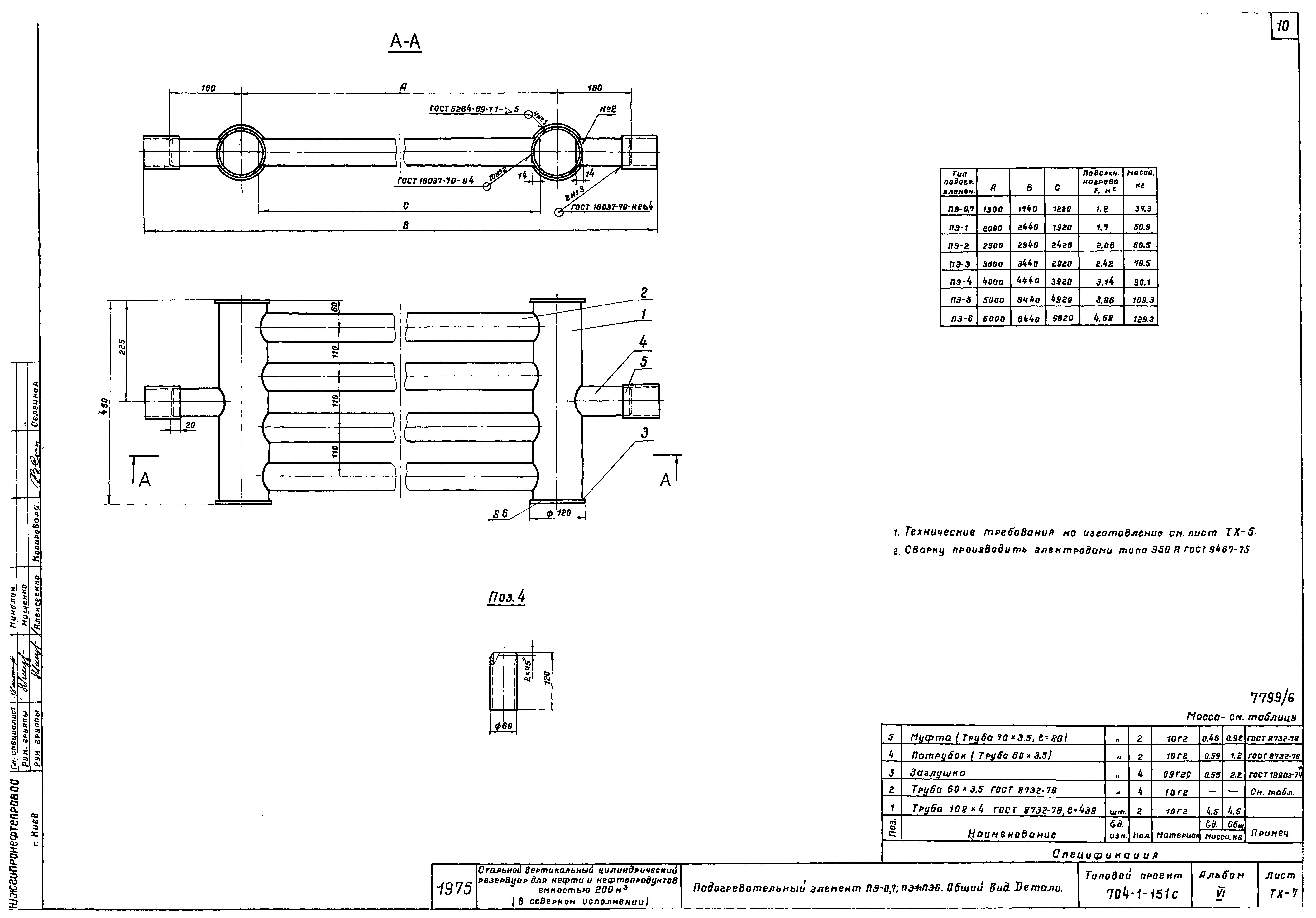
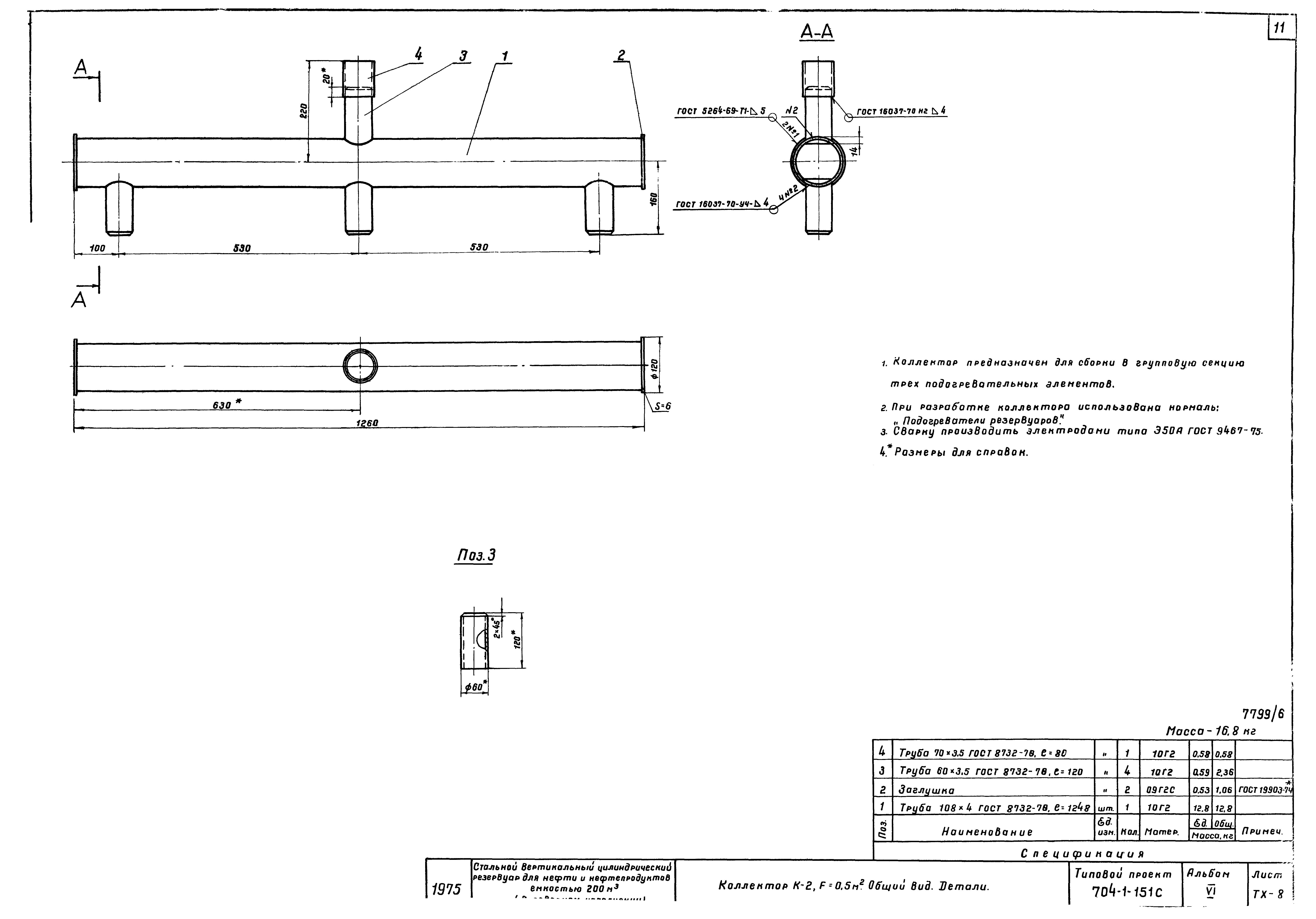
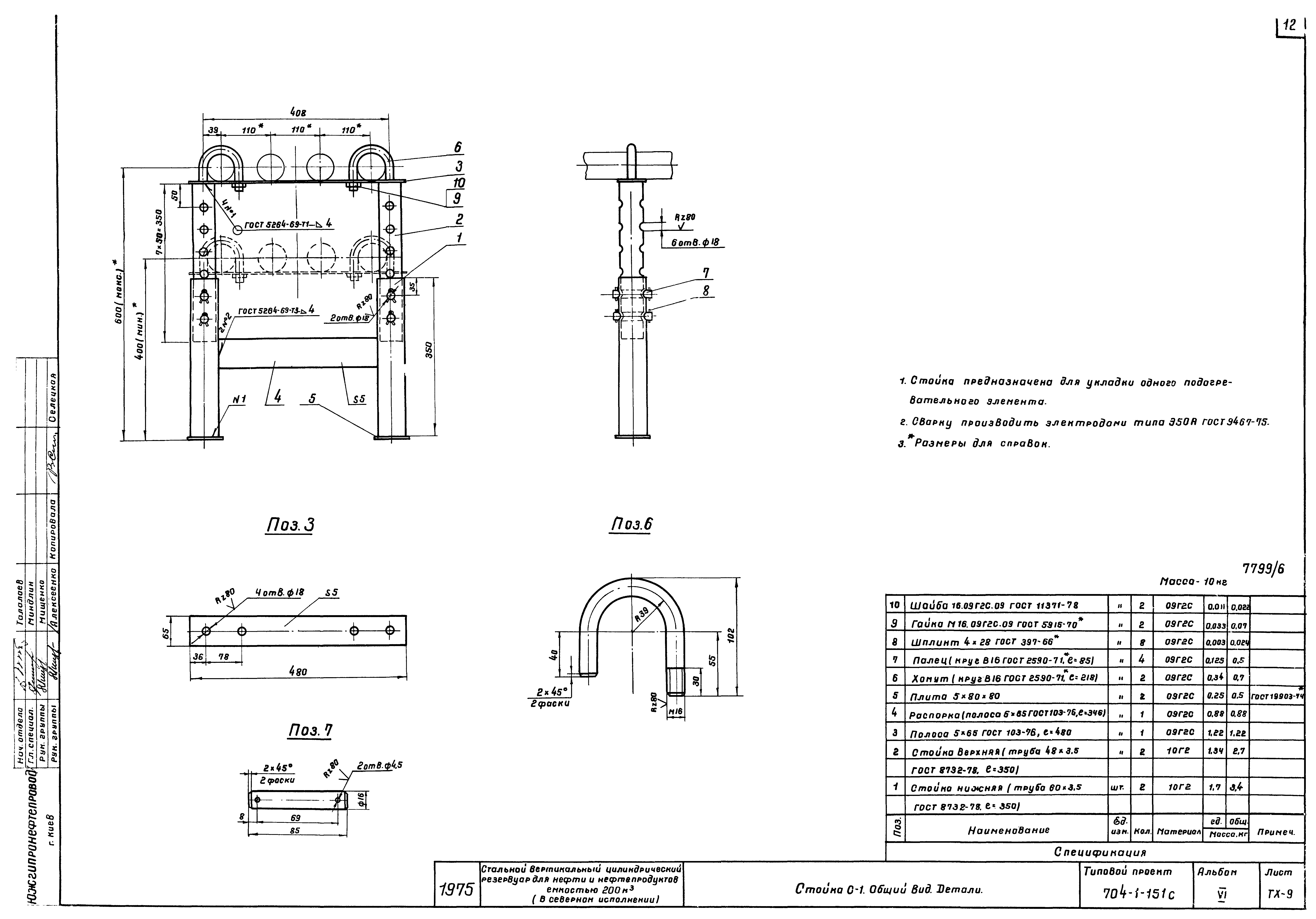
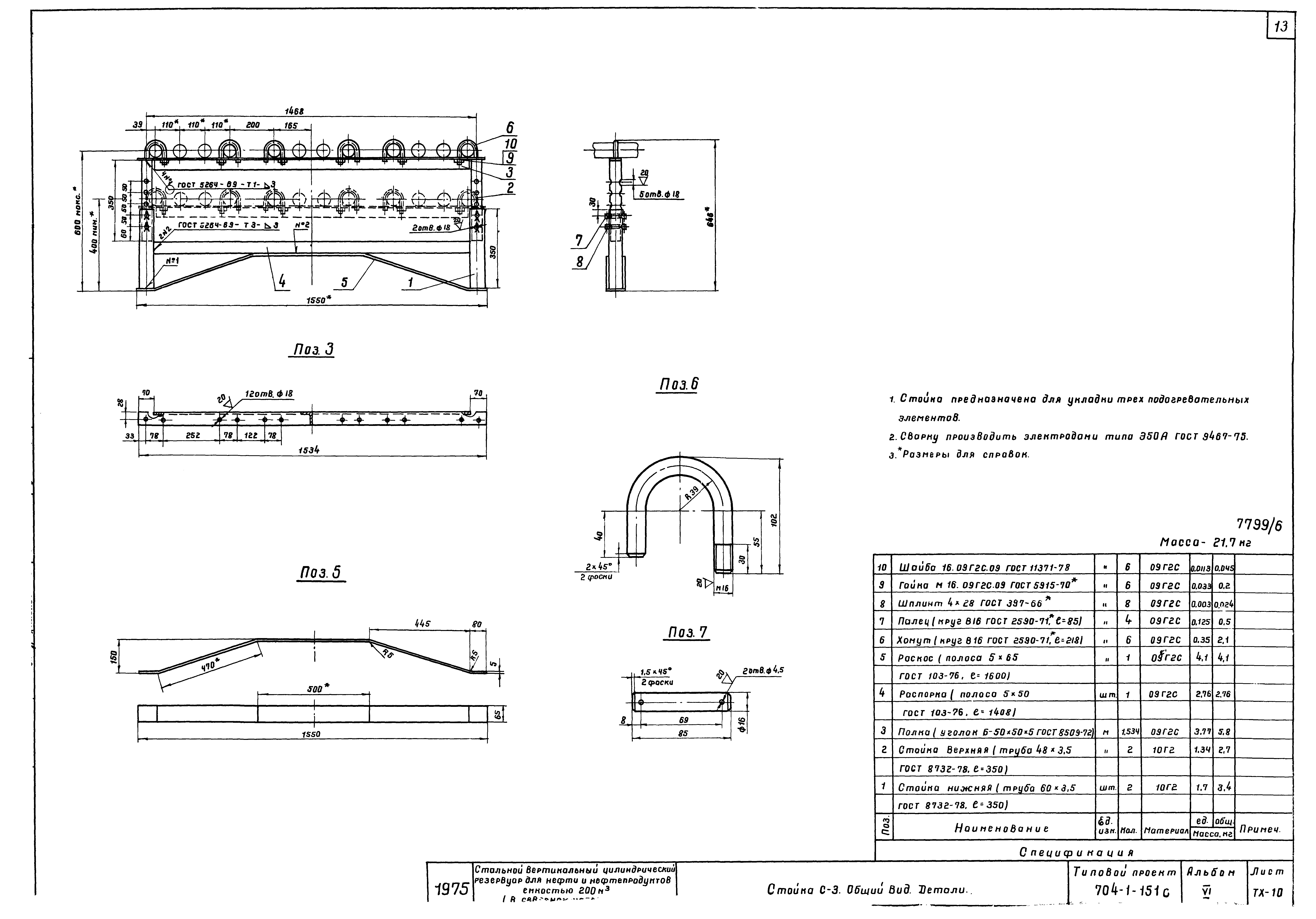
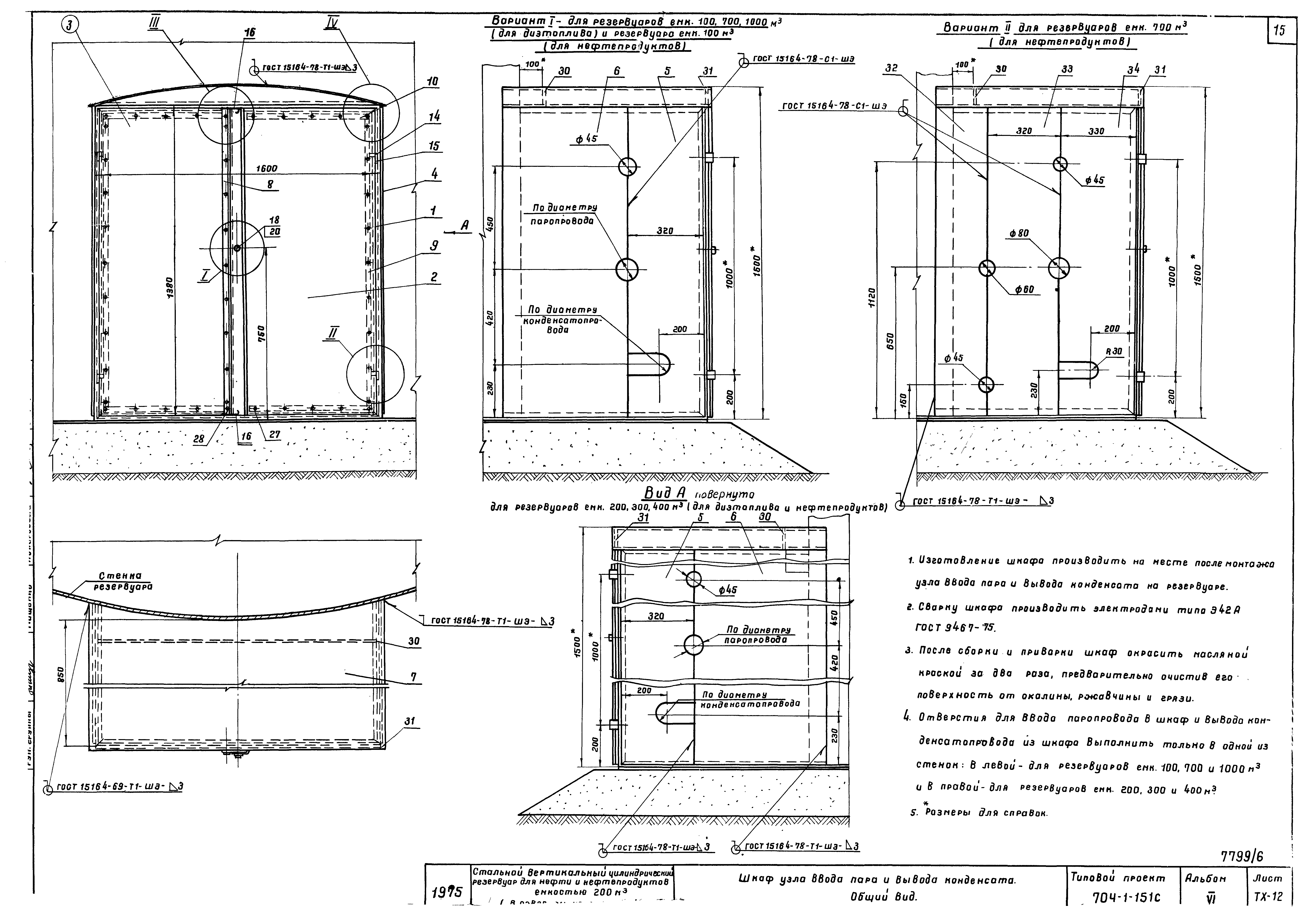
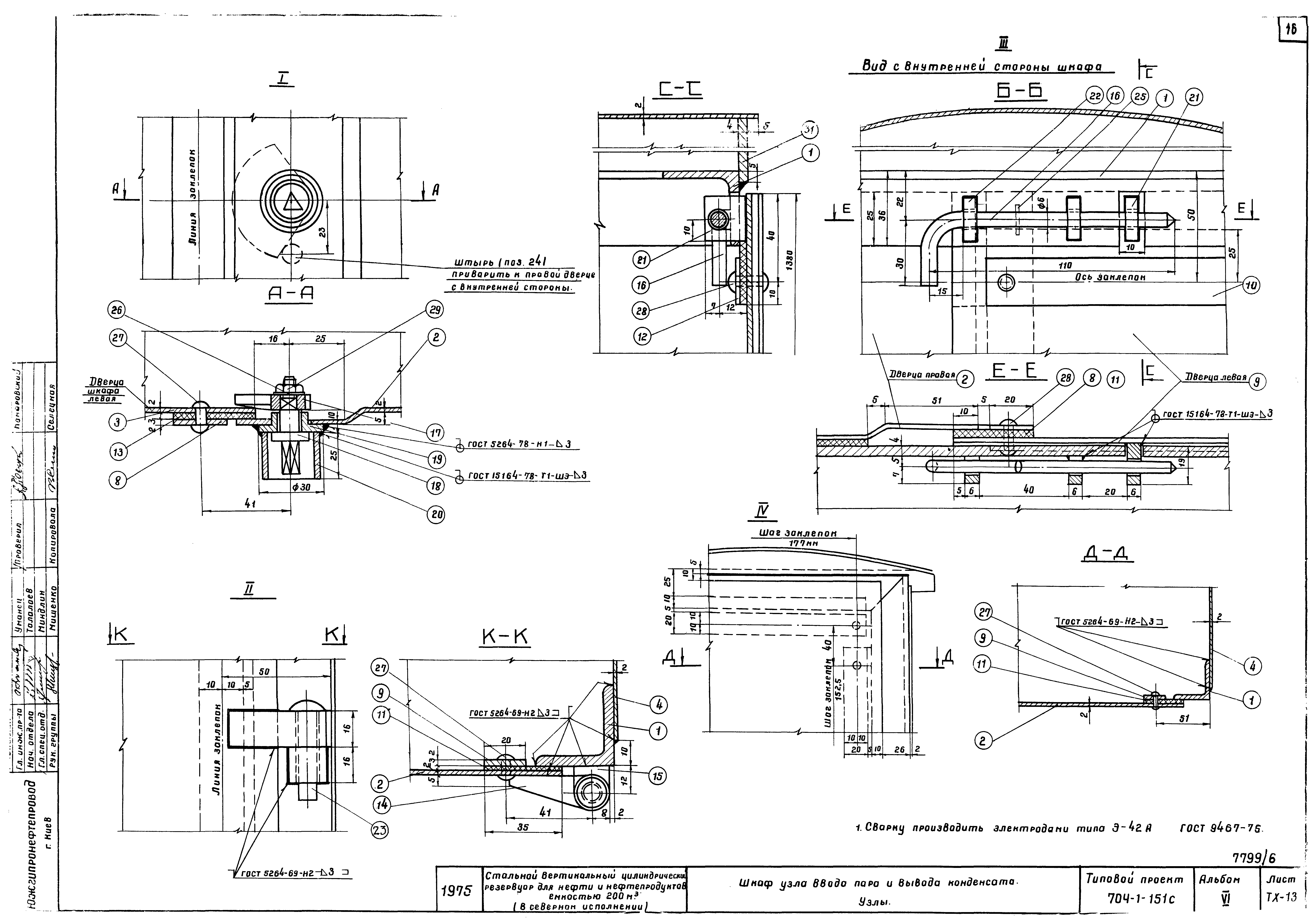
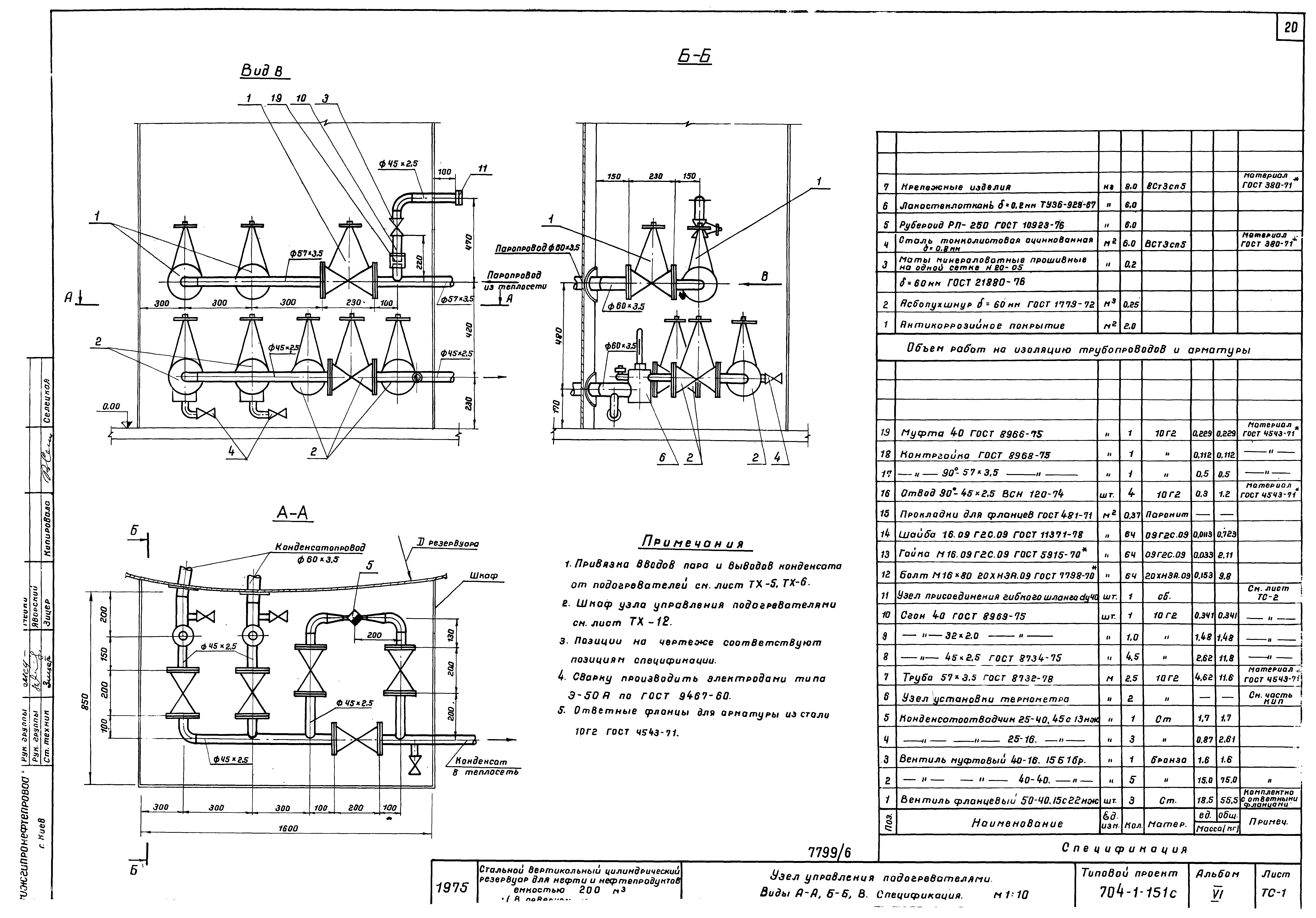
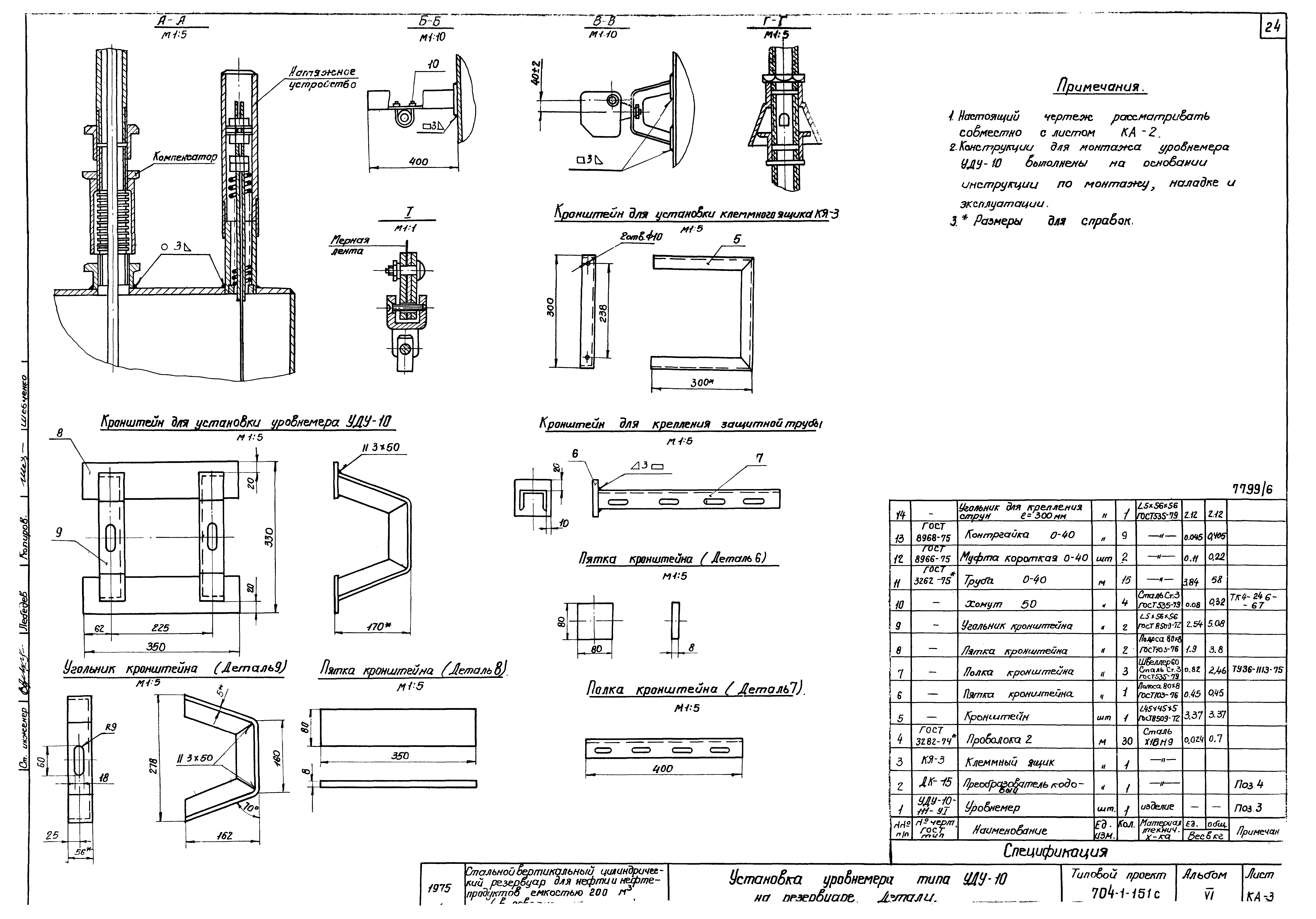
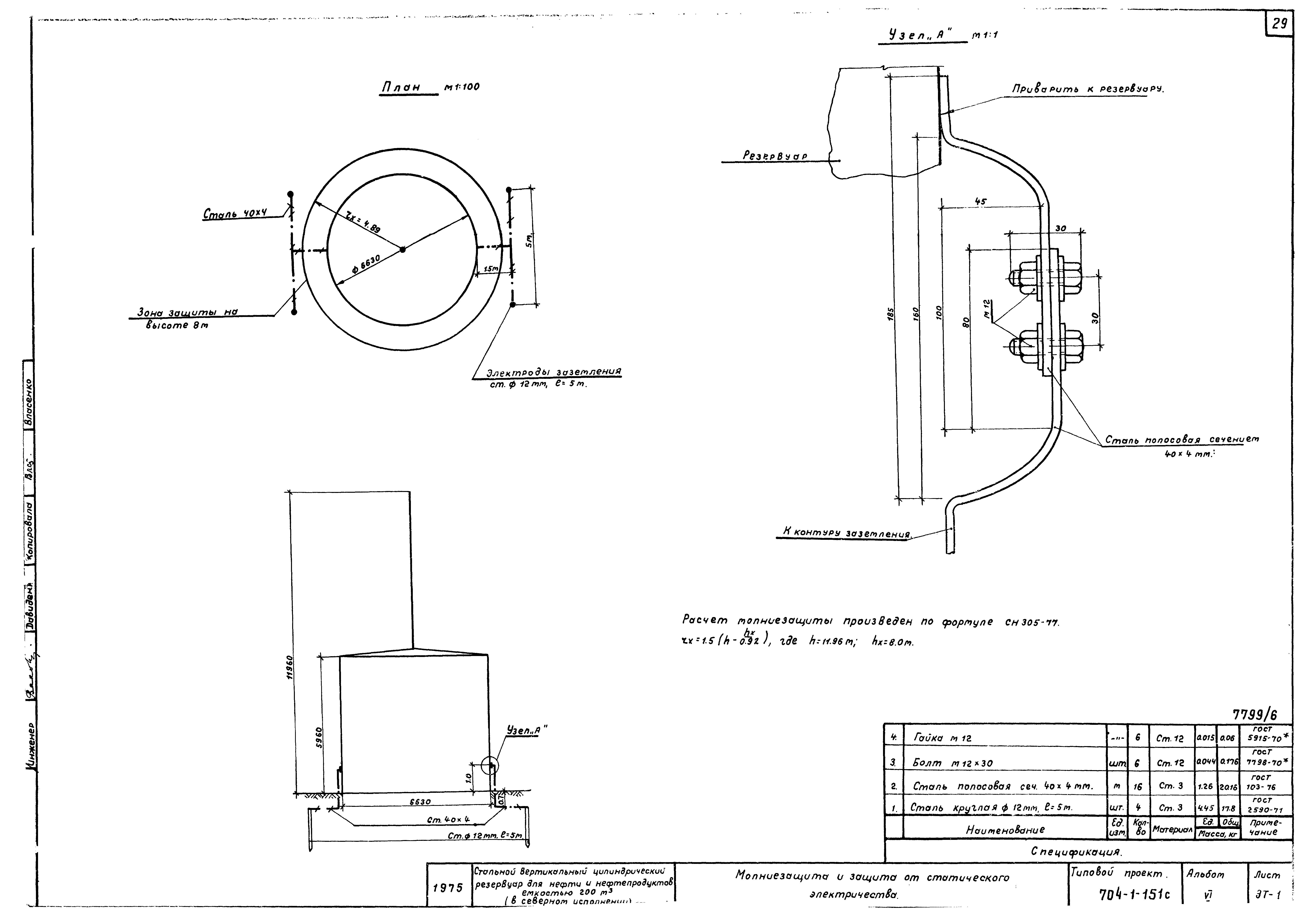
| Оглавление: | Содержание альбома. Пояснительная записка Чертежи основного комплекта марки ТХ Оборудование резервуара для темных нефтепродуктов. Общий вид Установка приемо-раздаточного устройства Ду = 100 Установка приемо-раздаточного устройства Ду = 150 Расположение секционных подогревателей F = 8 кв. м Расположение секционных подогревателей F = 18 кв. м Подогревательный элемент ПЭ-0.7;ПЭ-1…6 Коллектор К-2, F = 0.5 кв. м Стойка С-1 Стойка С-3 Стойка С-5. Стойка С-4 Шкаф узла ввода пара и вывода конденсата Чертежи основного комплекта марки ТС Узел управления подогревателями Узел управления подогревателями. Деталь присоединения гибкого шланга Ду40 Чертежи основного комплекта марки КА Функциональная схема автоматизации Установка указателя уровня типа УДУ-10 Установка указателя уровня типа УДУ-10. Детали Установка пробоотборника типа ПСР-4 Установка термометра на стенке резервуара Установка термометра на конденсатопроводе Установка термометра на конденсатопроводе. Детали Чертежи основного комплекта марки ЭТ Молниезащита от статического электричества Молниеотвод |
| Разработан: | Южгипронефтепровод Миннефтепрома СССР |
| Утверждён: | 21.03.1977 Миннефтепром (Minnefteprom ) |





























