Скачать 7388 Пример автоматизированной разработки проекта производства работДата актуализации: 01.01.2021
|
| Обозначение: | 7388 |
| Обозначение англ: | 7388 |
| Статус: | действует |
| Название рус.: | Пример автоматизированной разработки проекта производства работ |
| Дата добавления в базу: | 01.09.2013 |
| Дата актуализации: | 01.01.2021 |
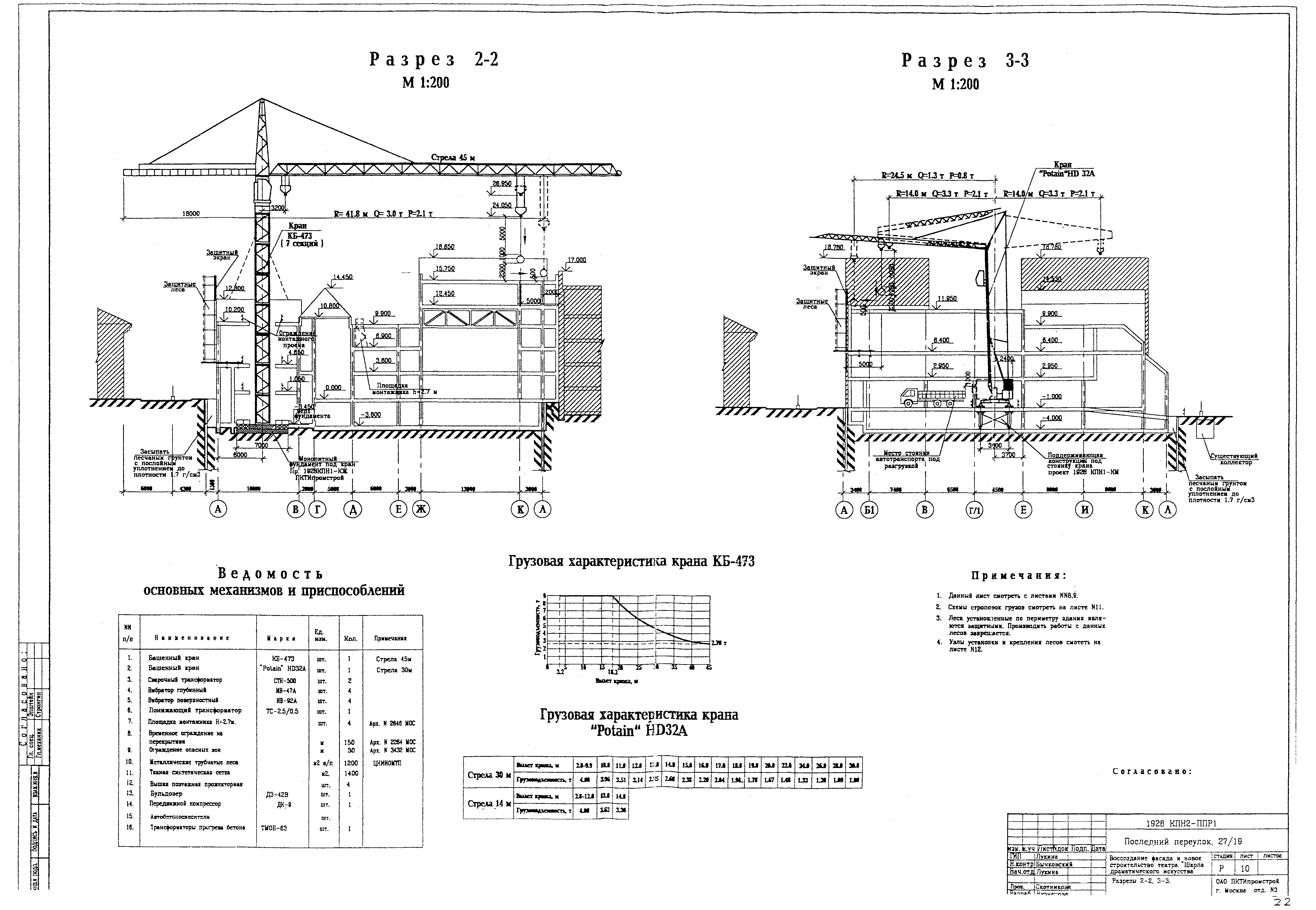
| Область применения: | Документ предназначен для инженерно-технических работников проектно-технологических и строительно-монтажных организаций, физических лиц, а также владельцев грузоподъемных машин и механизмов и других организаций, занятых на строительстве и реконструкции зданий и сооружений, как методический пример построения схем и текстового материала проектов производства работ с использованием автоматизированных компьютерных программ и технологических карт на различные виды строительно-монтажных работ, разработанных в ОАО ПКТИпромстрой. |
| Оглавление: | 1. Введение 2. Автоматизированное обеспечение разработки проектов производства работ 3. Примеры автоматизированной разработки отдельных чертежей ППР 4. Перечень нормативно-технической документации Приложения |
| Разработан: | ОАО ПКТИпромстрой |
| Утверждён: | ОАО ПКТИпромстрой (PKTIpromstroy OAO ) |
| Нормативные ссылки: |




































