Скачать Серия 3.818.9-2 Выпуск 9. Кормушки и поилки для овец и коз. Рабочие чертежиДата актуализации: 01.01.2021
|
| Обозначение: | Серия 3.818.9-2 |
| Обозначение англ: | Series 3.818.9-2 |
| Статус: | не определен законодательством |
| Название рус.: | Выпуск 9. Кормушки и поилки для овец и коз. Рабочие чертежи |
| Дата добавления в базу: | 01.09.2013 |
| Дата актуализации: | 01.01.2021 |
| Дата введения: | 01.11.1991 |
| Дата окончания срока действия: | 30.06.2003 |
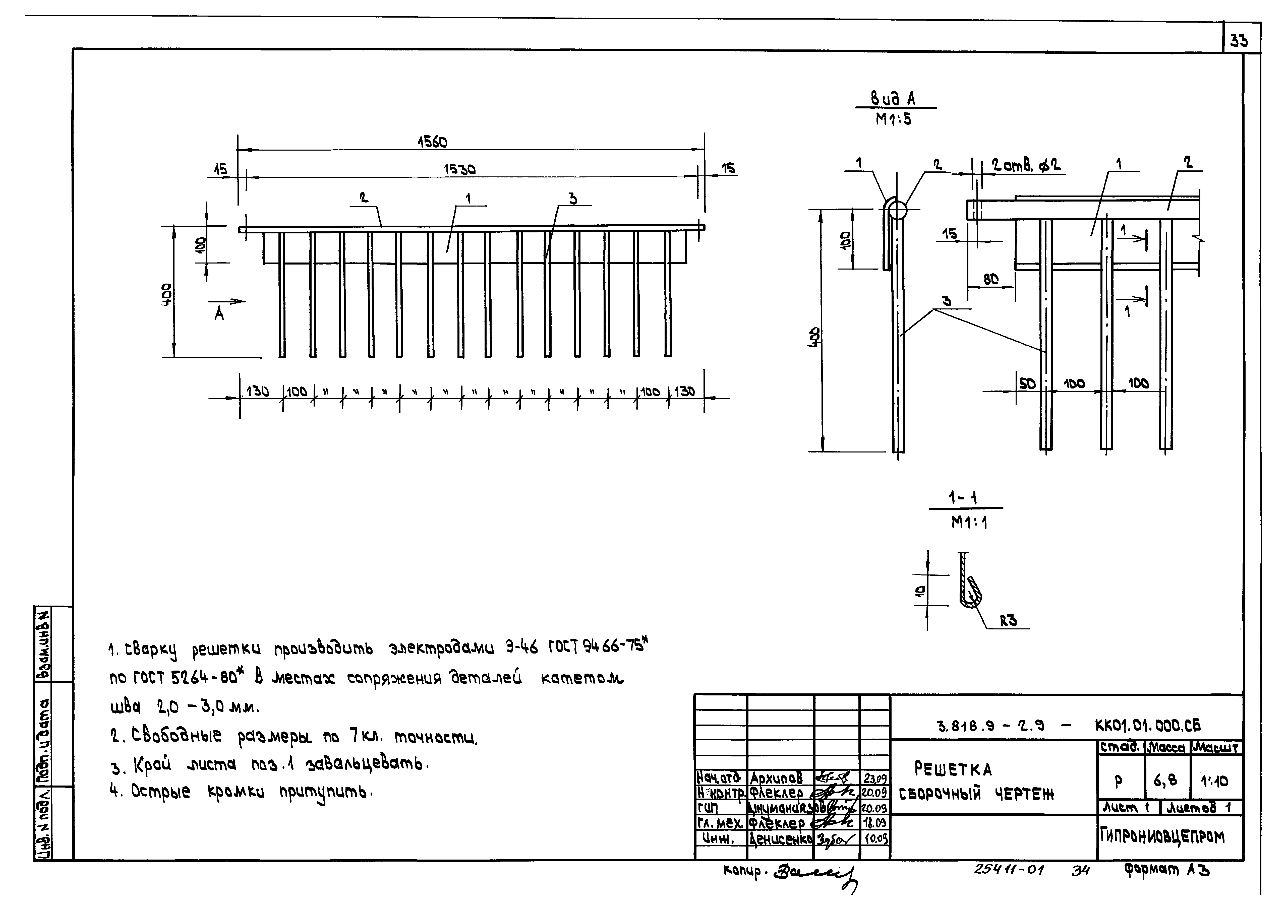
| Оглавление: | 3.818.9-2.9-00.00 Содержание выпуска 3.818.9-2.9-00.00 ПЗ Пояснительная записка Кормушки 3.818.9-2.9-КО2.00.00 Кормушка универсальная односторонняя КО2 3.818.9-2.9-КО2.00.00 СБ Кормушка универсальная односторонняя КО2. Сборочный чертеж 3.818.9-2.9-КО2.01.000 Решетка 3.818.9-2.9-КО2.01.000 СБ Решетка. Сборочный чертеж 3.818.9-2.9-КО2.02.000 Козырек 3.818.9-2.9-КО2.02.000 СБ Козырек. Сборочный чертеж 3.818.9-2.9-КО3.00.010 Корыто 3.818.9-2.9-КО2.00.003 Корыто 3.818.9-2.9-КО3.00.000 Кормушка универсальная двухсторонняя КО3 3.818.9-2.9-КО3.00.00 СБ Кормушка универсальная двухсторонняя КО3. Сборочный чертеж 3.818.9-2.9-КО3.02.000 Надставка 3.818.9-2.9-КО3.02.000 СБ Надставка. Сборочный чертеж 3.818.9-2.9-КО4.00.000 Кормушка индивидуальная КО4 3.818.9-2.9-КО4.00.000 СБ Кормушка индивидуальная КО4. Сборочный чертеж 3.818.9-2.9-ККБ.00.000 Кормушка комбинированная ККО-2 3.818.9-2.9-ККБ.00.000 СБ Кормушка комбинированная ККО-2. Сборочный чертеж 3.818.9-2.9-КБА.00.000 Кормушка бункерная КБО-10 3.818.9-2.9-КБА.00.000 СБ Кормушка бункерная КБО-10. Сборочный чертеж 3.818.9-2.9-КМФ07.02.000 Кормушка комбинированная двухметровая КМФ-2 3.818.9-2.9-КМФ07.02.000 СБ Кормушка комбинированная двухметровая КМФ-2. Сборочный чертеж 3.818.9-2.9-КМФ07.05.000 Шибер 3.818.9-2.9-КМФ07.05.000 СБ Шибер. Сборочный чертеж 3.818.9-2.9-КГ1.00.000 Кормушка групповая КГ-1 3.818.9-2.9-КГ1.00.000 СБ Кормушка групповая КГ-1. Сборочный чертеж 3.818.9-2.9-КК01.00.000 Кормушка комбинированная ККО1 3.818.9-2.9-КК01.00.000 СБ Кормушка комбинированная ККО1. Сборочный чертеж 3.818.9-2.9-КК01.01.000 Решетка 3.818.9-2.9-КК01.01.000 СБ Решетка 3.818.9-2.9-КК01.00.000 СБ Кормушка комбинированная для ягнят ККЯ-1 3.818.9-2.9-ККЯ2.00.000 СБ Кормушка комбинированная для ягнят ККЯ-2 3.818.9-2.9-К05.00.000.СБ Кормушка железобетонные КО5,КО6. Сборочный чертеж 3.818.9-2.9-К05.00.00 Кормушка железобетонные КО5,КО6. Ведомость расхода стали 3.818.9-2.9-К05.01.01 Петля монтажная П1 3.818.9-2.9-К05.01.02 Закладное изделие МН1 3.818.9-2.9-ОК5.00.00 Ограждение кормушки КО5 (одно звено - 10м) 3.818.9-2.9-ОК5.00.00 Ограждение кормушки КО6 (одно звено - 10м) 3.818.9-2.9-К07.00.00 Кормушка-ясли КО7 3.818.9-2.9-К07.00.01 Скоба МС1 3.818.9-2.9-К07.00.02 Стойка металлическая СМ1 3.818.9-2.9-К08.00.00 Кормушка-ясли КО8 3.818.9-2.9-К08.00.01 Стойка металлическая 3.818.9-2.9-К08.01.00 Заслонка ЗТ1,ЗТ2 Поилки 3.818.9-2.9-ПО1А.00.000 Поилка индивидуальная ПО-1А 3.818.9-2.9-ПО1А.00.000 СБ Поилка индивидуальная ПО-1А. Сборочный чертеж 3.818.9-2.9-ПО2А.00.000 Поилка групповая ПО-2А 3.818.9-2.9-ПО2А.00.000 СБ Поилка групповая ПО-2А. Сборочный чертеж 3.818.9-2.9-ПО3А.00.000 Поилка групповая ПО-3А 3.818.9-2.9-ПО3А.00.000 СБ Поилка групповая ПО-3А. Сборочный чертеж 3.818.9-2.9-ПГ.00.000 Поилка групповая для выпойки ЗОМ. ПГ-30М 3.818.9-2.9-ПГ.00.000 СБ Поилка групповая для выпойки ЗОМ. ПГ-30М. Сборочный чертеж 3.818.9-2.9-ПГ.02.000 Ведро для выпойки ЗОМ 3.818.9-2.9-ПГ.02.000 СБ Ведро для выпойки ЗОМ. Сборочный чертеж 3.818.9-2.9-ПГ.01.000 Подставка под ведро для выпойки ЗОМ 3.818.9-2.9-ПГ.01.000 СБ Подставка под ведро для выпойки ЗОМ. Сборочный чертеж 3.818.9-2.9-ПГ.02.001 Штуцер 3.818.9-2.9-ПГ.02.005 Ведро с крышкой 3.818.9-2.9-ПГ.02.005 Соска |
| Разработан: | Гипрониовцепром |
| Утверждён: | 01.11.1991 Минсельхозпрод СССР (USSR Minselkhozprod 54) |


















































